第1章 综合说明 1
第2章 施工现场平面布置 2
第3章 项目管理班子主要管理人员 4
第4章 劳动力计划 10
第5章 施工进度计划 11
第6章 施工进度施工工期保证措施 11
第7章 主要施工机械、设备 12
第8章 基础施工方案或方法 13
第9章 基础质量保证措施 26
第10章 基础排水和防止沉降措施 30
第11章 主体结构主要施工方法或方案和施工措施 31
第12章 主体结构质量保证措施 42
第13章 新技术、新工艺、专利技术 46
第1节 新技术应用情况: 46
第2节 新技术应用创新情况 48
第14章 各工序的协调措施 64
第15章 冬、雨期施工措施 65
第16章 施工安全保证措施 67
第17章 现场文明施工措施 70
第18章 施工现场环保措施 71
第19章 施工现场维护措施 72
第20章 工程交验后服务措施 74
综合说明
| 序号 | 项目 | 内容 |
| 1 | 工程名称 | ××市××人民法院审判综合楼 |
| 2 | 工程地址 | ××市××区××路原趾内 |
| 3 | 建设单位 | ××市××人民法院 |
| 4 | 设计单位 | ××市××工程建筑设计有限公司 |
1.2.建筑设计概况(见表1-2) 表1-2 建筑设计概况
1.3.结构设计概况(见表1-3)
表1-3 结构设计概况
2.工程特点
| 建筑面积 | 51152.82m2 | 建筑用途 | 审判、办公 | |||||
| 地下1 层, | ||||||||
| 地上层数 | 建筑高度 | 75.95m | ||||||
| 地上 17 层 | ||||||||
| ±0.00 标高 | 相当于大沽高程4.243 | |||||||
| 序号 | 项目 | 内容 | ||||||
| 基础结构形 | 钻孔灌注桩独立承台及筏片基 | |||||||
| 式 | 础 | |||||||
| 主体结构形 | ||||||||
| 1 | 结构形式 | 框架-剪力墙结构 | ||||||
| 式 | ||||||||
| 屋盖结构形 | ||||||||
| 主次梁及部分井字梁 | ||||||||
| 式 | ||||||||
| 2 | 钢筋类别 | Ⅰ、Ⅱ | ||||||
本工程结构复杂,智能化程度高,涉及新技术范围广、数量大;
(2)施工场地狭小,故物料的存放,临建的搭设,大型机械设备的安置有很大困难且北侧原有办公楼需正常使用,特别是在基础施工阶段,能直接用于现场施工的场地很有限;
(3)工程座落在繁华地区,人流量大,并且高层施工安全保障及运输调度难度大,外檐脚手架整体刚度安全防护设计要求高;
(4) 主楼南立面是圆弧形,梁为曲线状,采用折角处理,常规放线不能同视定位,并且外檐干挂石材对施工测量放线的精度要求高;
(5)高层建筑施工的垂直度控制、标高等测量精度要求高,且高度上的退台多达14 处,增加了垂直度控制难度;
(6) 主楼高度为75.95m, 弧形的外檐混凝土柱、梁对模板设计的精度、整体刚度及外檐干挂石材埋件的位置准确度的要求高;
(7)该工程工期紧迫,各工序穿插繁杂,施工组织要求高。
3.工程标准质量目标:确保工程创“鲁班奖”。工期目标:按工程合同工期如期完工。安全生产目标:杜绝重大事故,一般事故频率小于1.5‰。文明施工和环保目标:创建天津市“市级文明工地”。服务目标:建用户满意工程。
施工现场平面布置
1.现场情况说明现场周围道路畅通,场内地上没有障碍物,施工现场较小。
2.施工现场平面布置原则及依据
2.1.布置原则
为保证施工现场布置紧凑合理,现场施工顺利进行,施工平面布置原则确定如下:
①. 合理布置现场,规划好施工道路和场地,减少运输费用和场内二次倒运。
②.布置符合现场卫生、安全防火和环境保护等方面的要求。
2.2.布置依据
(1)建设单位的有关要求。
(2)现场红线、临界线、水源、电源位置,以及现场勘察成果。
(3)总平面图、建筑平面、立面图。
(4)总进度计划及资源需用量计划。
(5)总体部署和主要施工方案。
(6)安全文明施工和环境保护要求。
3.施工现场平面布置
3.1.施工临时用电
施工用电,由建设单位提供的变压器处引线,干线以地下埋设为主,线路按三相五线制设置。干线截面匹配为95mm2 →75mm2 →50mm2 →35 mm2 绝缘铝线外套硬塑管。总闸箱设置在变压器或电源下,线路中设分控箱,将电源按平面图所示引入栋号或设备旁。如该地片有停电可能,将及时备置发电机,来保证正常施工。
3.2.施工临时用水
施工用水由建设单位给定水源位置接管,干管选用镀锌管由φ50→φ38→φ25 入地埋设,分别接至施工栋号附近、办公区及生活区,并在栋号外围安装φ19 的立节,每立节安装两个冷水截门。在墙体砌筑及装修阶段用水量增大时,(如果当地水压不足)在栋号附近增设蓄水池,内设高扬泵,给每层提供混凝土养护和砌抹工程施工用水。
3.3.现场排水设施
为了保证排入市政管线的污水符合要求,现场沿施工道路两侧设宽300mm 深500mm 的排水沟,以使场内雨水自然向两边经排水沟排入场区的市政排水管网内,现场设4000mm×2500mm×3000mm 的沉淀池一座,施工用水经沉淀池沉淀后,一部分可进行现场道路的洒水降尘使用,其余排入市政排水管网内,保证排入市政管线的水不带泥砂。
3.4.现场临时设施、堆场的设置
施工现场各种临时设施分别布置在施工现场内,现场主要设置办公区;大型工具堆放区;钢材、钢筋堆放、加工区;材料堆放区;搅拌站以及水泥库等设施。
(1)办公区
所有办公用房将选用保温彩板活动房,地面铺贴地面砖。办公区设置项目经理办公室、内业和施工员办公室、会议室、微机室,以及提供建设单位驻现场代表和监理单位办公室。
办公室及会议室安装空调,统一配备桌椅,微机室配备电脑、传真机等必备的办公器材。会议室配备拼装式长型会议桌,办公区门前进行绿化。
(2)钢筋加工区钢筋加工场地分为钢筋堆放、钢筋加工棚、钢筋
调直场地和钢筋半成品及成品堆场。
钢筋加工棚采用钢管扣件搭设,四周和顶部围挡采用镀锌瓦楞板,内设加工操作平台,钢筋切断机、钢筋弯曲机和钢筋对焊机等设备。
(3)模板加工及钢管等大型工具堆放区
竹胶模板加工现场设置木工棚,采用钢管扣件搭设,围挡采用镀锌瓦楞板围护。加工棚内设平刨机、压刨机和圆盘锯。钢管和大型工具堆放区,设置在尽可能靠近槽边,但不能紧贴槽边,要与槽边有1~ 2m 的距离,防止边坡坍塌。
(4)搅拌站
本工程混凝土将全部采用商品混凝土,墙体砌筑和抹灰所用砂浆采用现场搅拌,现场砂浆搅拌区分三部分:搅拌棚、砂堆场、水泥库和标养室。搅拌棚内设3 台JS-350 型搅拌机,以满足墙体砌筑和内外檐抹灰砂浆需用量,搅拌棚后台设计量器具,满足计量要求。水泥库设在搅拌棚旁。
3.5.现场大门的布置
现场主入口大门设置要方便车辆进出,大门口处设置门卫室。
3.6.现场施工道路场内沿栋号四周设环形施工道路,路宽4m。根据现
场土质情况,路基拟垫200~300mm 厚炉渣,现场大门入口处全部为混凝土硬地面,以便于施工及车辆行驶。
3.7.生活居住区本工程为了便于现场管理,生活居住区不设在施工现场,将外租场地搭建生活区。
施工人员住房采用活动板房搭设,生活区设食堂,内配冰柜、蒸箱、炉灶等设施。炉灶采用燃气炉灶,满足施工人员用餐。宿舍每间20 人,分上下铺,床架统一,实行公寓式管理。
生活区内设侧所一座,浴室一座。整个生活区,每天设专人定时进行卫生打扫,做到干净、整洁、无异味、排水畅通,道路整洁。生活区进行适当绿化、美化,以营造一个整洁、卫生的环境,展现企业形象。
项目管理班子主要管理人员
1.项目组织管理机构设置
该工程质量标准为市优质工程,我方亦将此工程定为创优质精品工程,为此我们将组建管理公司,具有相对独立的管理和财政职能,对该工程进行重点管理,服从设计、尊重监理、服务建设单位,选择较强的施工管理人员组成项目班子,负责施工管理。
本工程实行项目法施工,根据本工程的需要和我公司具备人员的素质,选择政治素质、领导素质、知识素质、实践经验、身体素质符合本工程项目需要,具有本专业技术知识,有工作干劲,主动承担责任,能吃苦耐劳,能随时都保持高度竞技状态的人作为本工程的项目经理。
项目组织机构图见图3-1。

图3-1 项目组织机构图
2.项目经理部主要成员及主要职责
2.1.项目人员组成以总公司及相关部室为指导,组建项目经理部,选择能力较强的施工管理人员组成项目管理班子,进行施工管理。
项目经理部本着以“年富力强,精力充沛,工作扎实,业务精通,有较多技术和项目管理经验”为配备原则,主要配备:项目经理部领导层由项目经理、项目副经理、项目总工程师组成;管理层为技术组、质量组、安全组、物资组、经营组组成;负责从施工准备、工程施工、质量安全检查、工程预结算,至工程回访回修等工作,对建设单位实行全过程的负责。
项目主要管理人员情况见表3-1。
表3-1 主要管理人员一览表
| 名称 | 姓 | 名 | 职 | 务 | 职 | 称 | 主要资历、经验及承担过的项目 |
| 一、总部 | |||||||
| 1.项目主管 | |||||||
| 2.其他人员 | |||||||
| 二、现场 | |||||||
| 1.项目经理 | |||||||
| 2.项目副经理 | |||||||
| 3.项目工程师 | |||||||
| 4.质量管理 | |||||||
| 5.材料管理 | |||||||
| 6.计划管理 | |||||||
| 7.安全管理 | |||||||
| 8.施工管理 | |||||||
| 9.资料管理 | |||||||
| 10.预算管理 |
2.2.项目主要人员管理职责
(1)项目经理管理职责:
1)执行ISO9001 质量计划程序,负责项目开工前的施工准备。
2)负责组织项目工程总体施工管理、控制项目成本、实施计划、检查部位、控制质量、变更签证、负责组织编制质量计划。
3)组织项目器材人员严格执行进货检验和试验程序,负责组织竣工自检。确保进场
材料合格并进行标识。
4)按照施工(生产)中不合格品控制程序严把质量关。
5)负责7.5.1 条款的实施,组织做好回访回修工作。
6)负责组织工程结算及工程款的及时回收工作。
7)负责组织编制施工组织设计(施工方案)。
8)负责组织竣工自检。
9)负责文明施工管理。
10 )负责工程结算及工程款的及时回收。
(2)施工员管理职责:
1)负责实现所属栋号各分部、分项工程的质量达到预定的质量目标。
2)负责实现所管栋号的施工生产的组织及过程控制。
3)负责本栋号施工的人员在施工时的安全负责。
4)对直接从事本栋号施工的人员在施工时的安全负责。
5)保证所管栋号的文明施工。
6)负责所属工程施工技术和施工管理工作。
7)及时填写各种质量记录。
8)施工员有对工程的绝对指挥权及对施工人员的处罚权(包括停工、罚款、驱逐施工队或个人等)以及奖励权。
9)及时进行签证依据表的签证工作。
10 )详细了解所属栋号的施工组织设计并按照施工组织设计要求组织施工。
11)要对新技术、新工艺有一定的了解,逐步应用到施工过程中。
12 )及时总结施工过程中的得失,发表各种成果。
13 )对施工人员进行技术、安全交底。
(3)器材员管理职责:
1)负责项目使用材料的数量和质量的验收工作。
2) 数量验收:对所有进场材料都必须进行数量验收,并对验收数量的多少及7.5.3 条款负责。
3)质量验收:以材料验收规范为依据,配合质量员对进场的个别材料进行质量验收包括外观尺寸、送验及检查各种检验报告。
4)负责大型工具的租赁工作。以各栋号施工员提供的数量、规格为依据,按施工计划准时进场,并按规范检查其质量是否符合要求。
5)负责栋号范围以外的施工现场的文明施工。
6)负责钢筋小样的收发管理工作,负责本项目工程在加工厂钢筋制作工作间的对筋工作,负责签发进场验收及协调施工队伍合理使用工作。
7)负责提供料具需用计划。
8)负责监督项目对废弃、闭管的大型工具及时退场,降低工程成本。
9)保证用在各道工序上的材料及工具都符合要求。
10 )项目使用的材料、大型工具、成品及半成品、构件均由器材负责统一验收、统一保管、统一按计划发放给施工队。
11 )及时填写库房现有极具明细及大型工具报表并报项目经理。
12 )健全各类统计记录,累计各类统计数据,填报各类统计报表。
13 )按顺序、月份、将各种单据装订成册,妥为保管。
14 )保持库存材料帐、卡、物相符,并按时上报余额表。
(4)加工订货员管理职责:
1)负责工程项目加工订货、钢筋翻样,对项目施工人员进行业务指导。
2)负责工程项目钢筋、铁件的汇总表,参与工程投招标的测算工作。
3)负责分发、保送定货单,做好台帐登记工作。
4)负责工程结算时配合预算科进行核对工程量。
(5)计划统计员管理职责:
1)计算工程量(根据图样)以书面形式为用户提供数据。
2)提供各栋号之分部、分项工程的工程量、材料用量及其他有关的数据。
3)核对预算工程量的大小及是否丢项。
4)协助项目经理运用网络图或横道图技术制定制定施工计划。
5)给建设单位提供对外施工计划。
6)按月统计本月已完成的工作量,并上报项目经理和分公司。
7)负责组织项目的签证工作,并将签证转交给分公司有关部门。督促工长提供对预
算件活口部分进行签证(签证依据表)。以工长提供的签证依据表的内容及有关基础数据为依据,完善签证内容,经项目经理同意后再进行签证,且对签证的数量、大小及金额多少负责。
8)负责全项目的图样、标准图、变更图的管理工作。
9)协助成本员做好月结成本工作。
(6)资料员管理职责:
1)负责全项目各栋号的有关资料的收集编制存档工作,督促工长及时填写有关的技
术资料,及收集有关的材质资料。
2)负责各种生产、质量、安全方面的会议记录工作。
3)负责全项目的各种质量记录收集、整理、归档工作。
(7)定额员管理职责:
1)负责控制整个项目经理部的人工费的支出。
2)根据计划统计员提供的工程量,计算各分部、分项工程的所需工日数,及时将数据提供计划统计员,并在工序开始之前将任务单交于施工队负责。
3)负责各施工队的人工费结算工作,并组织协调各种扣款。
4)负责民工队进场教育工作,并签订人工费结算方面的协议书。
5)检查各分项工程在1/3、2/3 工作量时已消耗的工日数与计划工日数之间的平衡关系,并推测出人工费的亏嬴量,及时向项目经理汇报,做到人工费的动态控制并通知成本员。
6)及时填写人工费情况表并交给项目经理(以人工费情况表的形式)。
7)协助成本员做好月结成本工作。
8)负责检查各施工队的有效劳动力的数量。
9)负责民工住宅区及办公区的管理工作。
10 )协助安全员对所有施工队的安全教育工作及有关安全协议的签署工作。
(8)成本员管理职责:
1)对项目成本进行监控,成本的动态监控。
2)预控材料的预控,检查并统计各分项工作在1/3、2/3 施工部的材料耗用情况,且与计划用量比较,并推测出该分项完成后材料的亏嬴数量,且向项目经理及时汇报并提醒工长。机械费的预控,统计全项目机械设备及大型工具,在本月内的使用效率--利润率。人工费的预控:检查统计劳动力的耗用量与完成部位的计划工日数之间的关系,预测出人工费亏赢数量,且及时汇报给项目经理,并提醒工长。
3)财务统计收集、整理、核对、把关项目各种费用,并将收集的数据分类、记录、等帐,并将有关报表及时交于分公司有关部门。做好二包汇款的台帐记录。负责项目月结成本,协调器材、定额及统计的步骤,使月结成本真实。成本分析:根据工、料、机的计划用量,预算用量及实际使用量,对各个栋号的分部、分项工程的成本进行分析,并找出各种原因,且于每月20 日交于项目长(以报表和成本分析表的形式),月成本报表于每月10 日前交于项目经理。
(9)安全员管理职责:
1)负责对工地安全随时进行检查,及时对高空作业存在安全隐患提出整改措施,督促整改。
2)工地安全用电执行标准化措施,随时进行检查,对存在问题提出整改措施,督促整改。
3)对工地中小型机械和电动工具的安全防护设施随时进行检查,对隐患及时提出并督促整改。
4)填写安全记录,指导工地分包队伍安全员工作。
5)制止违章指挥、违章作业,遇有险情有权暂停生产,并及时报告工地项目经理部
和领导。
6)负责对所有施工人员的安全教育工作及有关安全协议的签署。
7)协助工长对施工人员进行安全交底。
(10)机管员管理职责
1)掌握机械设备动态,组织机械设备的平衡调度,做到合理使用,充分发挥机械效率。
2)完善施工现场机械设备的交接制度和务种岗位责任制,落实保养规程及“十字作业”方针。
3)参加各级组织的机械检查和各项竞赛活动。
4)负责施工机械安全技术操作规程的落实工作。
5)负责各项目工地机械设备的租赁、核算工作。
6)负责每年价格指导数测算和竣工结算后全部工程的经济技术指标测算。
7)做好合同履约记录的填写工作。
(11)预算员管理职责:
1) 认真学习深刻领会《天津市建筑工程综合预算定额》套用定额及有关规定要准确。
2)能够运用定额编制原理,编制各项定额。
3)掌握最新材料调价、费用调整和市场价格变化信息。
4)认真审图、准确计算,熟悉《施工组织设计》内容,从中找出有关经济的章节段落、编制完整的施工图预算。
5)搞好预结算工作的动态管理,预算员对分管的项目经常深入工地,做好变更、签证收集工作,使竣工结算不丢不漏。
6)学习理解《天津市工程建设施工招标投标管理办法》,掌握投标工作要点,依据建设单位招标文件要求,编制完整标价。搞好投标资料的汇集,为领导决策提供依据,减少废标。
2.3.公司与项目经理部的关系公司与现场经理部的关系是“公司监督、部门科室协助、授权管理、全面负责”。“公司监督”是指公司按合同要求和承诺,对项目经理部的实施情况进行全过程监督,必要时调动全局的人力、物力,确保合同要求和承诺全面兑现。
“部门科室协助”是指总部的工程、技术质量、安全、生产、联营、财务、预算等各业务部门科室对项目提供人、财、物的全方位支持,各部门对项目的管理以服务为主,监督为辅。
“授权管理”是指公司授权范围为本工程及本工程项目有关的施工管理活动所需权限,包括对人、财、物的一定支配权。“全面负责”是指项目经理部全面履行合同要求和承诺,对本工程一切施工活动包括工期、质量、安全、成本、文明施工等全面负责并组织落实。总之,在项目管理活动中,公司是依托,项目是主体,部门是保证,达标是目的。
3.项目经理部工程管理组织协调
项目经理部由公司授权管理,按照GB/T9002-ISO9002 标准模式建立的质量管理体系运作,形成以全面质量管理为中心,以专业管理和计算机管理相结合的科学化管理体制。
项目经理部工程管理按照公司颁布的《程序文件》、《质量手册》和《岗位管理职责》执行。根据管理体系及职能分配图,项目经理部在项目开工之初制定项目质量岗位责任制,明确领导班子成员的责任,确定每个部门的职责,落实到每个管理人员,并签订相应的质量岗位责任状,形成由项目经理为主责任人,各职能部门执行监督、施工队伍严格实施的网络化的项目组织管理体系,从上到下明确分工职责,落实施工责任,各岗位各尽其职。
劳动力计划
根据工程特点和拟采用的施工方法,现场配备四支施工专业队伍和一支水电专业安装队伍,其队伍素质为专建设单位体施工队伍,具有长期的主体施工经历和专业施工经验,并且在近三年里所施工的项目均达到合格标准,各队内配备施工员两名,质量检验员两名,安全员一名,施工管理规范化。
表4-1 劳动力配备表
| 工种、级 | 按工程施工阶段投入劳动力情况(人) | |||||
| 别 | 基础阶段 | 主体阶段 | 装饰阶段 | 水电配合 | 水电安装 | 水电调试 |
| 钢筋工 | 70 | 100 | —— | —— | —— | —— |
| 木工 | 100 | 150 | 20 | —— | —— | —— |
| 瓦工 | 15 | 120 | 10 | —— | —— | —— |
| 灰土工 | 50 | 70 | —— | —— | —— | —— |
| 抹灰工 | 10 | 50 | 150 | —— | —— | —— |
| 油工 | 200 | —— | —— | —— | ||
| 架子工 | 15 | 50 | 30 | —— | —— | —— |
| 电工 | 10 | 40 | 40 | 60 | 60 | 30 |
| 电焊工 | 15 | 24 | 4 | —— | —— | —— |
| 机械工 | 3 | 3 | 6 | —— | —— | —— |
| 水暖工 | 4 | 20 | 20 | 60 | 80 | 40 |
施工进度计划
1.施工进度计划说明
我公司将本工程列为重点工程,在施工进度计划安排上,在突出保证工程质量、安全文明生产施工的前提下,达到快速施工,以体现本工程的重要性。为保证工程按计划完工,施工中对主要分部工程制定如下计划:
| 审判综合楼 | ||
| 主楼地下室: | 2000 年 9 月 2 日~ 2000 年11 月20 日。 | |
| 主楼主体: | 2000 年11 月20 日~2001 年9 月30 日。 | |
| 主楼围护砌筑: | 2001 年 9 月30 日~2001 年12 月25 日。 | |
| 主楼装修: | 2002 年 3 月1 日~ 2002 年8 月31 日。 | |
| 综合服务楼 | ||
| 基础工程: | 2002 年3 月1 日~ | 2002 年4 月30 日。 |
| 主体工程: | 2002 年5 月1 日~ | 2002 年6 月30 日。 |
| 围护砌筑: | 2002 年7 月1 日~ | 2002 年7 月31 日。 |
| 装饰工程: | 2002 年8 月1 日~ | 2002 年9 月30 日。 |
| 2.施工进度计划 | ||
该工程招标文件要求开工日期为2000 年9 月2 日,竣工日期为2002 年9 月30 日,总工期749 日历天。我公司根据自身的技术力量和机械力量,积极组织、合理安排、按期交工,即2002 年9 月30 日竣工。
施工进度施工工期保证措施
1.施工组织保证措施
(1)建立保证施工进度例会制度,按周计划每周召开一次例会,确保施工进度按计划完成。
(2)为了充分利用施工空间和时间,合理安排工序,在绝对保证施工安全和质量的前提下,充分利用施工空间,科学组织结构,装修和设备安装等工程的立体交叉作业。
(3)严格工序施工质量,确保一次验收合格,杜绝返工,以一次成优的施工来获取工期缩短的保证。
(4)为保证工期在结构工程施工阶段,要对装修做法进行认定,从材料的选定,样板的确定等均要提前落实,为装修阶段施工的插入做好准备。
(5) 制定分级控制保证计划:根据总控计划编制季控计划,根据季控计划编制月计划,根据月计划编制周计划,实行周保月、月保季、季保总控计划的管理方式。
2.优选施工队伍,提高施工机械化水平
为保证工期按计划完成,我们将优选高素质且具有一级施工资质和良好的合作基础的施工队伍,以增强其进度的竞争性和可比性,互相激励促进。为缩短工期,降低劳动强度,我们将最大限度地提高机械化施工水平,各施工队五配备专用中小型施工机具,为按计划完成施工任务打下良好的基础。
3.采用先进施工技术
积极推广应用四新技术,从科技含量上争取工期的缩短。例如钢筋连接采用闪光对焊、电渣压力焊、直螺纹连接等施工技术;主体结构采用竹胶模板减少抹灰量;混凝土一次泵送浇筑,有效缩短技术间歇时间等。
4.外部环境因素保证措施
做好施工扰民问题的细致工作,积极热情地与当地居民联系沟通,取得周围单位和居民的理解支持,做到必要时能全天候施工,保证施工进度要求。
主要施工机械、设备
根据工程施工需要现场垂直运输机械设置塔吊一台,外跨电梯两部、卷扬机二台,混凝土输送泵二台,搅拌机3 台,钢筋加工机械2 套,钢筋切断机2 台,其他机械若干详见表7-1
表7-1 主要机械机具计划表
| 序号 | 机械或设备名称 | 型号规格 | 数量 | 国别产地 | 制造年份 | 额定功率 | 生产能力 |
| 1 | 挖掘机 | D40 | 2 | 日产 | 1998 | ||
| 2 | 装载车 | QD351-7T | 10 | 国产 | 1998 | ||
| 3 | 潜水泵 | 4DA-8 | 30 | 国产 | 1997 | 2.8kW | 34-28 |
| 4 | 混凝土输送泵 | HB6-3 | 2 | 国产 | 1999 | 32.2 | |
| 5 | 钢筋剪断机 | GJ5-40 | 4 | 国产 | 1998 | ||
| 6 | 钢筋成型机 | WJ40-1 | 4 | 国产 | 1997 | ||
| 7 | 振捣棒 | 1.5kW | 20 | 国产 | 1998 | 1.1kW | |
| 8 | 电锯 | 2 | 国产 | 1996 | 5.5kW | ||
| 9 | 无齿锯 | 6 | 国产 | 1996 | 2.2kW | ||
| 10 | 电焊机 | BS-300 | 8 | 国产 | 1999 | 29.5kW | |
| 11 | 蛙夯 | HW-201 | 12 | 国产 | 1998 | 3 | 100m3/ min |
| 12 | 塔吊 | 23F/B | 1 | 国产 | 1995 | ||
| 13 | 搅拌机 | HJ-350 | 3 | 国产 | 1998 | 7.5 | 200L |
| 14 | 物料提升机 | JST-220 | 2 | 国产 | 1998 | ||
| 15 | 等离子切割 | 2 | 国产 | 1999 | |||
| 16 | 自动套丝机 | 2”4” | 各3 | 国产 | 1999 | ||
| 17 | 试压泵 | 2 | 国产 | 1998 | |||
| 18 | 外跨电梯 | SCB200K 双笼 | 2 | 国产 | 1998 |
基础施工方案或方法
一、钻孔灌注桩施工方案
1 . 基础结构主要施工方案
1.1 钻孔灌注桩施工方案
该工程采用钻孔灌注桩基础,桩径600mm,其中主楼共设桩:281 根,桩长:25m; 配楼设桩:71 根,桩长:21m。桩身混凝土等级C20。
1.2 钻孔灌桩施工工艺流程(见图8-1)

图8-1 钻孔灌桩施工工艺流程图
2.施工准备
2.1 施工前应探明地下障碍物埋深和位置,挖出探坑作好明确标记。地上位于施工范围内民用电、电信线等要采取相应的保护措施,并应该办理必要的书面手续。
2.2 场地平整人工配合推土机将施工现场平整后并进行碾压,并把水电引至现场。
2.3 桩定位由专业人员根据设计图样放出桩位中心线,并用钢筋棍钉入中心点,露出自然地坪2~3cm (钢筋采用φ12~φ16 为宜,长度根据地质情况决定,一般为30~50cm 为宜)并用白灰线标注。此外做好测量记录以便复核。
2.4 根据桩位点埋好成孔护筒,护筒内径要比桩身直径大100mm, 护筒中心与桩位中心偏差≤20mm。并保证护筒垂直,护筒深度应超过杂质土层深度,且护筒底埋入原土深度宜≥200 mm。
3.成孔
3.1 成孔时钻机定位应准确、水平、稳定、钻机回转盘中心与护筒中心偏差小于20mm,成孔过程中钻机搭架头部滑轮组,回转器与钻头应始终保持在同一垂直线上,保证钻头在吊紧状态下钻进。
3.2 成孔直径必须达到设计桩径。
3.3 成孔过程中孔内泥浆液面应保持稳定,正循环成孔不应低于自然地坪30cm ,反循环成孔内水头压力比地下水的压力大20kPa 左右。
3.4 在相邻混凝土刚灌注完毕的邻桩成孔施工,其安全距离不宜小于4d,或最少时间间隔不应少于36h。
3.5 正循环成孔的泥浆循环系统由泥浆池、沉淀池、循环槽、泥浆泵等设施设备组成,并应有排水、清洗、排废等设施,沉淀池可串联并用。容积不宜小于6m3 泥浆池的容积是钻孔容积的1.2~1.5 倍。
3.6 在软工地区施工时,必须在孔内注入护壁泥浆,泥浆性能技术指标应满足表8-1 的规定。表8-1 泥浆性能技术指标规定
4.成孔质量标准
| 项目 | 技术指标 | 排除泥浆指标 | |
| 1 | 泥浆密度(g/cm3) | ≤1.15 | ≤1.30 |
| 2 | 黏度(S) | 18~22 | 20~26 |
表8-2 钻进成孔质量标准
| 项目 | 允许偏差 | 检测方法 |
| 钻孔中心位置 | ≯300mm | 用TJY 型井径仪 |
| 孔径 | -0.05~+.010d | 超声波测井仪 |
| 倾斜度 | ≤0.5% | 用TTX 型测斜仪、超声波测井仪 |
5.清孔
5.1 孔壁土质较好,不易塌孔可用空气吸泥机清孔。
5.2 孔壁土质较差者,宜用泥浆循环或抽渣筒抽渣清孔,清孔后距孔底0.2~0.1m 处的泥浆密度应控制在1.15~1.25,黏度≤28s,含砂率≤10%。
5.3 清孔过程中必须及时补给足够的泥浆以保证孔内液面的稳定。
5.4 孔后孔底沉淤厚度为200~300mm(用带圆锥型测锤的标准水文绳测度)。
6.钢筋笼制作和安装
6.1 钢筋笼制作偏差应符合下表的规定表8-3 钢筋笼制作偏差规定
6.2 钢筋笼的制作除按设计要求外,用导管灌注水下混凝土时,灌注桩钢筋笼内径应比导管接头外径大100mm 以上。
6.3 分段制作的钢筋笼其长度以5~8m 为宜,钢筋笼在制作、运输和安装过程中应采取措施,防止不可恢复的复型,并设置保护垫块。
6.4 钢筋笼吊放入孔时不得碰撞孔壁,其顶面、底面的标高平面位置均应符合设计要求误差不大于50mm。
6.5 钻孔灌注桩各工序应连续进行钢筋笼放入孔内后,应进行第二次清孔,在测得沉淤厚度,符号规定后半小时灌注混凝土,灌注充盈系数(实际灌注混凝土体积与设计桩身计算体积之比)不小于1,一般土质为1∶1,软土为1.2~1.3。7 混凝土的灌注
7.1 混凝土的骨料粒径:粗骨料粒径不应大于40mm 且宜小于钢筋最小净距的1/3。
7.2 灌注桩中所用水泥强度等级不宜低于32.5 级,每立方米混凝土中水泥用量不宜小于350kg。
7.3 混凝土的坍落度应符合下列规定:水下灌注的为16~22cm,干作业成孔的为8~10cm 。
7.4 混凝土浇筑时,混凝土试块的预留按监理工程师与规范的要求执行。
7.5 钻孔灌注桩工程质量应符合国家规范规定见表8-4。表8-4 钻孔灌注桩工程质量规定
| 项目 | 允许偏差(mm) | |
| 主筋间距 | ±10 | |
| 箍筋间距 | ±20 | |
| 长度 | ±100 | |
| 直径 | ±10 | |
| 个别扭曲 | ±10 | |
| 项目 | 允许偏差 mm | |
| 桩位允差 | 1/12d 且≤30 | |
| 平面纵向轴线偏差 | <100 | |
| 垂直度允许差 | ≤0.5% | |
| 桩顶标高(凿出浮渣后的桩顶标高) | ±50 | |
| 桩长、桩径混凝土强度等级 | 符合设计要求 | |
二、基坑支护方案
本工程基坑实际开挖深度:4.15m 和4.75m。根据现场及土质情况,施工现场不具备基坑全部开挖放坡的条件,采用双排格构式重力挡土墙与双排水泥搅拌桩相结合的支护体系。基坑北侧采用双排水泥搅拌桩,桩长10m,桩径500mm, 槽内做一步退台后放坡;东西两侧采取放坡形式兼采用双排水泥桩,槽内做1∶1 留土设坡,双排水泥桩加固土坡兼做止水帷幕;南侧基坑开挖深度较深,且该侧地面施工荷载较大,采用格构式重力挡土墙,桩径700mm,桩长10m,外排做双排桩,咬合150m,内排为单排,内外间距为两桩径,每隔三根做格构形式。
1.施工工艺流程(见图8-2)
图8-2 施工工艺流程图2 施工准备
2.1 施工前应探明地下障碍物埋深和位置,挖出探坑作好明确标记。地上位于施工范围内民用电、电信线等要采取相应的保护措施,并应该办理必要的书面手续。
2.2 对施工区域内的建筑垃圾等,必须进行清理之后对场区内进行平整压实,并把水电引至现场。
2.3 测量定位:由专业人员根据设计图样放出桩位中心线,并用钢筋棍钉入中心点,露出自然地坪2~3cm (钢筋采用φ12~φ16 为宜,长度根据地质情况决定,一般为30~50cm 为宜)并用白灰线标注。此外做好测量记录以便复核。3 桩机就位(对中、调平)
3.1 由机长统一指挥,桩机的就位工作,移动桩机上下左右前后各方有无障碍,发现有障碍应及时排除。移动结束后,应检查桩机定位情况,并及时纠正。
3.2 桩机就位对中后应平稳固定、周正,并且其动力头、搅拌头及桩位三者的中心应处于同一垂直线上。
3.3 根据规范要求,桩机搅拌头的定位偏差不大于5cm。
4.预搅下沉
4.1 启动沉层搅拌桩机电机,放松起吊钢丝绳,使搅拌机沿导向架搅拌下沉,下沉速度由电器控制装置的电流监测表控制。施工时,应严格控制下沉速度,密切观察动力头工作负荷,其工作电流指数不应大于额定值,以防烧毁电机。
4.2 如遇较硬地层下沉速度过慢时,可以通过中心管压入少量稀浆使土体润湿,从而加快下沉速度。
5.制备固化剂浆液
在深层搅拌机预搅下沉的同时后台拌制固化剂浆液(水泥浆等)待压浆前将浆液倒入集料斗中。
6.喷浆搅拌提升(第一次注浆、提升搅拌)
搅拌机下沉到设计深度后,先上提搅拌头0.2m 左右后,然后开起灰浆泵,待浆液达到喷浆口时,再按设计确定的提升速度及灰浆泵流量,边喷浆,边提升深层搅拌桩机,待深层搅拌机喷浆,提升设计桩顶标高以上0.5m 时,关闭灰浆泵。
7.重复搅拌(第二次注浆、提升搅拌)为了使软土和浆液搅拌均匀,再次将深层搅拌机下沉到设计深度后,再将深层搅拌机提升出地表。
如果施工中采用“两搅两喷”成桩工艺,则在搅拌机第二次提升的同时,也应向地层中同时连续压入固化剂浆液(水泥浆)
8.桩机位移待深层搅拌机提出地面后,应先关闭电机,然后将桩机移至新的桩位。
9.质量标准
9.1 保证项目:深层搅拌桩使用的水泥品种、强度等级、水泥浆的水灰比、水泥加固土的掺入比和外加剂的品种、掺量必需符合设计要求。
9.2 基本项目:深层搅拌桩的深度、断面尺寸、搭接情况,整体稳定的墙体,桩身强度必需符合设计要求。
9.3 允许偏差见表8-5:检查数量:按墙(柱)体数量抽查5%。

表8-5 深层搅拌桩允许偏差
| 项目 | 允许偏差(mm) | 检查方法 |
| 桩体、桩顶位移 | 10(20) | 用尺测量 |
| 桩(墙)体垂直度 | 0.5H /100 | 用测量仪或吊线和尺量检查 |
注:括号为填筑层遇障碍物时偏差值,H 为桩的长度。
三、基坑降水施工方法由于主楼基坑开挖较深,基坑内采用大口井降水。井深分别为:9m、10m、11m 和14m。基坑内设置21 口井,其中沿基坑四周设15 口,基础底板下设六口。井内设置潜水泵将地下水通过胶管排出。为了保证基坑施工干场作业,基坑开挖前7d 开始降水,当降至槽底标高下50cm 后开始基坑开挖,回填土后可停止降水。配楼基坑开挖较浅,采用集水井及排水沟来排水,每侧配楼设两口集水井,排水沟宽500mm,深300~600mm,沟底回填碎石,纵向按2%找泛水与各集水井相连,使沟内水流入集水井,集水井内设置潜水泵将地下水通过胶管排出。做好排水工作,设专人负责管理水泵,按照涌水量掌握停开机间隔时间,将地下水降至基础底标高50cm 以下,保证干场作业。
四、施工方案
1.1.土方开挖施工
本工程主楼基础形式为承台梁底板箱形基础,配楼基础为独立承台。配楼承台顶标高-2.7,主楼基础底上皮标高-5.55,土方开挖采取大开挖的形式,现场配备两台挖土机进行施工,机械挖土槽底预留200~300mm 土方由人工清除。
1.2.模板工程基础结构模板将主要选用钢模板,支撑采用钢管脚手架。
1.3.钢筋工程
φ22 以下钢筋接头优先采用闪光对焊,小直径钢筋采用绑扎搭接,φ22 以上竖向钢筋采用电闸压力焊连接;水平钢筋接头采用直螺纹连接。
1.4.混凝土工程施工混凝土采用商品混凝土,泵送浇筑。
2.施工测量
2.1.施工测量准备
(1)校对测量仪器本工程应用的经纬仪、水准仪等须经计量检测单位校核,并确保在有效的检定周期内。
(2)复核水准点及坐标点
对规划勘测部门或建设单位提供的坐标桩及水准点进行复测,确定水准点和坐标的准确性。
2.2.建筑物定位放线
施工总平面图中给出了建筑红线四个角坐标。为提高定位放线的精度,我们选用极坐标法。
(1)在基坑开挖前,根据《施工总平面图》提供的坐标点及相对位置,在现场内通视条件较好,易于保护的位置引测四个坐标点,并用混凝土固定,必要时设防护栏杆。
(2)依据规划勘测部门提供的坐标桩及总平面图施测,进行建筑物定位,复测无误后,申请规划勘测部门验线。
2.3.水准点引测
根据建设单位提供的由规划勘测部门设置的水准点引测现场施工用水准点,采用精密水准仪进行数次往返闭合,敷设现场施工用水准点。水准点布置数量不少于三个,以便相互校核。
2.4.地下结构的施工测量
(1)地下结构的平面控制采用极坐标法,先在地下室垫层上引测建筑物轴线交点,然后根据地下室平面图弹出
所有轴线及建筑物外边线。将轴线控制点外移至基坑边,并设法设置木桩作为地下结构的平面控制点。在基础施工过程中,对轴线控制桩每半月测一次,以防控制桩位移,影响精度。基础验线时,允许偏差如表8-6。
表8-6 允许偏差
| 轴线长度(l) | 允许偏差 | ||
| 国家标准(mm | ) | 内控标准(mm | |
| l≤30m | ±5 | ±3 | |
| 30m<l≤90m | ±10 | ±8 | |
| 60m<l≤90m | ±15 | ±12 | |
| 90m<l | ±20 | ±18 |
(2)地下结构的标高控制
基础结构施工时,所需标高可以从现场内水准点逐步引至槽底,并在槽边适当位置设置水准点。基础施工时,可从槽底水准点向上传递,也可以从现场内水准点直接引测,无论采取哪种方式,都要往返闭合,误差控制在规范要求之内。
3.地下结构简介
主楼地下一层(车库和配套用房),地上十七层,附楼无地下,地上五层,总建筑面积25437 ㎡,工程分为主楼、东附楼、西附楼、车库四部分。主楼、附楼基础完全分开,主楼与车库基础连为一体,其间留0.8m 宽的后浇带,主楼采用混凝土灌注桩基础,地下室的底板厚0.6m 下皮标高为-5.55, 承台厚1.2m 下皮标高-6.75,局部-7.55, 附楼采用独立承台基础(承台厚度1.2m)底标高-3.9。主楼基坑面积为2700 ㎡。
4.主要施工方法
4.1.土方开挖工程
(1)工艺流程
确定开挖的顺序和坡度→分段分层平均下挖→修边和清底。
(2)施工方法
主楼槽底设计标高为-6.75(局部-7.55); 配楼槽底标高-3.90, 土方开挖均采取大开挖的形式,放坡系数为1∶0.75,现场配备两台挖土机进行施工,开挖采用反铲挖土机端头挖土法进行施工,即从基坑的端头以倒退行驶的方法进行开挖,从上到下分层分段进行,机械挖土槽底预留200~300mm 土方由人工清除。
土方开挖严禁超挖搅动基土,当挖至设计标高后如遇软弱或淤泥质土层,与设计单位联系,经设计提出意见后进行地基处理。
4.2.桩头处理及垫层混凝土施工
各分段基坑土方开挖完毕后,及时进行破除桩头和混凝土垫层的施工。破除桩头采用人工剔凿,保留工程桩锚固钢筋。
混凝土垫层模板采用100mm 宽钢模板或100mm×100mm 木方支设,泵送混凝土浇筑,平板振捣器振捣,用大杠刮平后,木抹子搓平。
4.3.钢筋绑扎工程本工程所用钢筋全部采取现场加工制作。根据设计图样中构件配筋图,进行抽样填写钢筋小样

单,审查无误后,进行下料加工。
(1)钢筋下料与加工钢筋调直:采用钢筋调直机来调直钢筋。钢筋切断:钢筋切断设备主要用钢筋切断机和无齿锯。钢筋弯曲成型:钢筋弯曲成型前,对形状复杂的钢筋,根据配料单上表明的尺寸,用粉笔将弯曲点位置划出,划线工作要从钢筋中线开始向两边进行,对划线钢筋各尺寸复核无误后,即可进行加工成型。
(2)钢筋接头
钢筋接头是整个钢筋工程中一个重要环节,接头的好坏是保证钢筋能否正常受力的关键。因此,对钢筋接头形式要认真选择,我们选择的原则是“可靠方便、经济”。本工程基础钢筋大于φ22 的竖向接头电渣压力焊,水平接头采用套管挤压连接,接头位置按设计要求同一截面≯25%, 可在任意位置设置。小于φ22 的钢筋接头优先选用闪光对焊,其次选用搭接绑扎。
(3)钢筋绑扎与安装
钢筋绑扎前,先划出钢筋位置线。根据本工程的具体情况,承台、底板、地梁钢筋位置线在垫层上划线;基础墙、柱箍筋在竖向钢筋上划点。
基础承台钢筋网片绑扎时,必须将全部钢筋交叉点绑扎牢固。柱子与基础钢筋连接采用插筋,必要时采取焊

接的方法,确保柱子钢筋位置和拄轴线准确。

梁箍筋接头交错布置在两根架立钢筋上。梁箍筋加密区范围符合设计要求。基础底板上层钢筋网片要设置预先制作好的马凳,保证钢筋位置正确。墙体钢筋采用搭接绑扎,先绑2~4 根竖筋,并画
好横筋分档标志,然后在下部及齐胸处绑两根横筋定位,并画好竖向钢筋分档标志,然后依据标志进行绑扎。墙筋按设计要求绑扎拉结筋来固定两网片的间距。
梁板钢筋绑扎前,在主梁模板上划出箍筋间距,将箍筋穿于主筋之上,分好箍筋固定弯起筋和主筋,穿次梁弯起筋和主筋并套好箍筋,放主筋架立筋及次梁架立筋并固定,然后再绑主筋(主次梁同时进行)。箍筋接头交错布置在两根架立钢筋上。梁箍筋加密区范围符合设计要求。
板的钢筋绑扎与基础相同,负筋要加密马凳绑牢。另外,板上负筋必须与梁的两根架立筋扎牢(有梁时), 以防位移。
钢筋绑扎后应要随即垫好塑料垫块。
墙及顶板穿过后浇带的钢筋在后浇带处要断开,待浇筑后浇带时再进行搭接,其搭接长度为45d, 并增设加强筋。所有部位后浇带两侧均加设钢丝网片一道。

4.4.模板工程
本工程配楼承台1200mm 厚,主楼基础底板600mm 厚。底板侧模采用240mm 砖模砌筑。所有砖模内侧抹1∶2.5 水泥砂浆找平层。为保证砖模在底板混凝土浇筑时不移位,浇筑混凝土之前,将砖模外侧的回填土回填完毕,回填土采用素土,使用蛙夯分层夯实。
为保证底板侧绑钢筋保护层的厚度,砌筑砖模前,在底板垫层上弹出砖模的位置线,
位置线预留出砖模的抹灰层的厚度。墙体模板采用钢模板拼接,模板外侧采用钢管扣件做为加固背肋及支撑加固体系。支撑体系与边坡要支顶牢固。
基础外墙模板采用φ16mm 止水螺栓连接加固。内墙模板均采用φ16mm 穿墙螺栓连接加固,间距均为500mm,内墙穿墙螺栓为便于周转使用,螺栓外套内径φ18mm 的硬塑管,并兼做模板内支撑,模板外侧使用钢管扣件支顶加固,门窗口侧模采用木模。

承台高出底板部分模板支设采取吊绑支设的方法,上阶模板的侧板用吊杠加以固定。
(1) 矩形、方柱模板:统一使用木模板体

系,面板采用1cm厚竹胶板。竖肋采用50mm×80mm木方,横肋采用φ48钢管。先沿柱四角设置方木作为主控加固带,用铁钉每隔1m加固,初步加固后,再在四面填充方木,方木间距:不大于200mm,用φ48钢管作为模肋,用扣件紧固,并与满堂红脚手架锁牢。底部在柱模位置垫方木。接缝处用海绵条塞严,以防跑浆漏浆。(支模具体方法见附图4、5) 为了保证柱、梁结点清晰,顺直,结点处模板采用整板,在板上锯出梁豁口。截面为800mm ×800mm,柱的长边设置一道φ14穿柱螺栓,螺栓的纵向间距为600mm。
(2) 梁板模板:
采用国际钢模板体系,不合模数处采用木模。支模采用梁侧模包底模、楼板模板顶梁侧模板的方法施工。用碗扣式脚手架和φ48钢管扣件搭设满堂红脚手架作为模板的垂直支撑。支模时,应注意先按照设计标高调整好支柱高度,模板的接缝处用海绵条镶嵌牢固。(详见附图4、5、6)梁底模板均从两端向中间配制,不符合模数的地方采用木模。木模使用前必须刨光。梁板相交处,梁侧模板交接处及板与板交接处使用海绵密封条及胶带纸封堵。楼板支撑从边跨一侧开始,先安第一排立杆,再安第二排立杆,二者必须用横杆连好,依次逐排安装。立杆间距1.2m 楼板模板下顺模板方向铺钢管其间距1.2m,垂直于模板方向钢管间距为0.6m。模板的拆除:柱、梁侧模板的拆除以不破坏棱角为准。一般试块强度达到1.2mpa, 才允许拆模。底模板的拆除必须符合规范的要求。模板配制的数量:根据工程进度的要求,模板与支撑各按二层半配制。
4.5 混凝土工程本工程主楼基础底板、混凝土墙设计强度等级为C40 抗渗等级S8;配楼基础承台混凝土设计强度等级为C30,框架柱强度等级为C40;井字梁顶板强度等级为C30。混凝土将全部采用商品混凝土,泵送浇筑。
(1)混凝土施工工艺流程每一个施工段浇筑混凝土的施工工艺流程为:基础承台底板梁→基础墙、柱、梁顶板。
(2)混凝土泵送混凝土浇筑分两个施工段,每个施工段可分别进行施工,A、D 区基坑较深,要先施工,在东面和西面各设一台混凝土输送泵,B、C 区西侧设一台输送泵,分段流水浇筑混凝土,即先浇筑A、D 区,然后再浇筑B~C 区。
(3)混凝土振捣在浇筑混凝土时,地下室底板、墙、梁、柱均采用HZ-50 插入式振捣器;在梁相互交叉处钢筋较密,改用HZ6X-30 插入式振捣器进行振捣。
混凝土分层浇筑时,每层混凝土的厚度要符合规范要求,在下层混凝土初凝前及时覆盖上层混凝土,保持浇筑的连续性。
(4)混凝土浇筑方法
为加快施工进度,根据现场情况,对底板混凝土采用固定泵与汽车泵混合使用的方法进行输送。由于混凝土流动性较大,混凝土在按斜面分层向前推进时,振捣棒要在坡尖、坡中和坡顶分别布置,保证混凝土振捣密实,且不漏振。当混凝土浇到底板顶标高后,用2m 长木杠将混凝土表面找平,且控制好板顶标高。然后用木抹子拍打、搓抹两遍,在混凝土终凝前进行收浆压光。
墙体混凝土浇筑从一端开始,采用斜面分层法向另一端推进,墙高度大于3m,混凝土浇筑时利用串筒向下送料。
由于墙体与顶板采取一次浇筑,因此地下室共设一道水平施工缝,施工缝均埋设-400mm×300mm 钢板止水带。水平施工缝留设位置:外墙和底板相交300mm 位置处。另天津六建建筑工程有限公司33 外,依据设计要求,设置了一道后浇带,后浇带宽800mm, 后浇带要在基础底板混凝土施工完毕后60d 后再进行浇筑。
柱子浇筑混凝土时先将柱子混凝土浇筑至梁下皮,振捣时快插慢拔,插点均匀排列,逐步移动不得漏振。振捣器移动间距控制在30~40cm, 为避免上下两层之间的接缝,振捣上层时,插入下层5cm 深度。
柱子混凝土浇至梁底部位后,根据梁的高度先浇筑成阶梯形,至楼板底标高后再与板一起浇筑,随着阶梯形不断延长,梁板浇筑连续向前推进。最终实现柱、梁板同时浇筑。
后浇带混凝土内掺入UEA 微膨胀剂,混凝土强度提高一级。后浇带混凝土浇筑前,将其两侧混凝土表面浮浆和杂物清除干净,先铺净浆再铺30~50mm 厚1∶1 水泥砂浆,并及时浇筑混凝土。
(5)混凝土自然养护
混凝土养护采取覆盖浇水养护,其要在混凝土浇筑完毕后12h 以内进行,浇水次数要根据能保证混凝土处于湿润的状态来决定。对于竖向构件采取涂刷养护液进行养护;水平构件采取塑料薄膜覆盖或浇水养护。
对于地下室有抗渗要求的混凝土,养护时间不少于14d。后浇带部位混凝土养护时间不少于28d。
4.6 地下外防水工程
4.6.1 该工程地下室防水标准为二级,两道设防
其中一道为钢筋混凝土自防水,抗渗等级为S8。并采用 “澳克-D 型刚性聚合物防水砂浆”作为防水附加层,对地下室迎水墙进行防水处理,即外防水。
4.6.2 混凝土基层处理基层结构钢筋混凝土其强度等级不应低于C10; 现浇混凝土拆模后即用钢丝刷将混凝土表面扫毛,并对基层表面的松动物、油脂、涂料、封闭模及其他污染物清除干净,并用水充分润湿新旧界面,但抹灰前不得留有明水,一般混凝土应提前1d 浇水。对<10mm 的棱角或遇>10mm 处则应将不平处剔成缓坡,浇水清理后,用聚合物水泥砂浆交替分层填平。剔除蜂窝空洞处松散石子,孔边剔成斜边后,用聚合物水泥砂浆交替分层填平,如孔洞浅于20mm 石子粘结牢固时可不剔除,只用聚合物水泥砂浆填压密实后扫毛即可。混凝土收缩裂缝或微裂应剔成“V”型槽,先刷干净后抹聚合物水泥砂浆压实填平后扫毛。基层表面预埋钢件或拉结筋等金属件应剔除,距表面大于10mm 深处,后用聚合物防水砂浆压实填平。
4.6.3.防水材料拌制方法澳克-D 型聚合物刚性防水砂浆为双组分产品、粉料为50kg/袋,液体为22kg/桶包装。砂浆宜采用砂浆搅拌机搅拌,不提倡人工搅拌。砂浆粉料与乳液、水的重量配合比为1∶0.0628∶0.08~0.09, 为方便施工,可按7 袋
粉料配一桶乳液,一满桶(装乳液的桶)水的比例进行,用水量可根据实际施工需要进行调查。因该聚合物砂浆拌合物凝固较快,故搅拌量不宜过多,以随拌随用在1h 内用完最好。
4.6.4.聚合物防水砂浆施工方法本砂浆采用抹灰施工,防水层厚度为15-20mm, 应分层作业,每层厚度为8mm 为宜,防水砂浆的层次要清楚,厚度均匀。抹灰操作应边压实边抹灰且只准顺一个方向抹压,每层施工时应压实后刷毛。所有阴阳角处要求做成圆角以利于防水层形成封闭的整体(阳角R=5mm ,阴角R= 25mm)当抹灰面积较大,一次完成有困难时可在一定部位留施工缝,施工缝要做齐,其位置须距阴阳角≥200 处并分道甩槎、每道宽60~200mm 且在厚度上留成斜面,其表面刷毛,接槎时仍按原有道数分层压满并涂抹密实。
对已完成防水层进行全面质量检查,遇明显缺陷处应及时用聚合物水泥砂浆修补。并加强保护工作,严禁钢管等硬物碰击,发现后应及时修补。养护非常重要,尤其是露天作业或环境温度高及有大风时更应设专人加强,在防水砂浆施工时应根据硬化情况随时养护,一般抹灰0.5~1.5h 后即需进行,必须保证砂浆表面充分湿润不缺水。防水保护层:对防水层质量进行全面检查后应尽快进行防水层保护。防护层为M5 砂浆砌砖保护墙,具体参照98J2(33)
(一)做法。
4.6.5.关于后浇缝防水措施
外墙垂直施工缝防水构造示意见图案8-3。

图8-3 外墙垂直施工缝防水构造示意见图
基础质量保证措施
1.工程桩质量保证措施
1.1 钻孔灌注桩施工施工前应探明地下障碍物埋深和位置,挖出探坑作好明确标记。地上位于施工范围内民用电、电信线等要采取相应的保护措施,并应该办理必要的书面手续。场地平整人工配合推土机将施工现场平整后并进行碾压,并把水电引至现场。桩定位:由专业人员根据设计图样放出桩位中心线,并用钢筋棍钉入中心点,露出自然地坪2~3cm(钢筋采用φ12~φ16 为宜,长度根据地质情况决定,一般为30~50cm 为宜)并用白灰线标注。此外做好测量记录以便复核。
根据桩位点埋好成孔护筒,护筒内径要比桩身直径大100mm,护筒中心与桩位中心偏差≤20mm。并保证护筒垂直,护筒深度应超过杂质土层深度,且护筒底埋入原土深度宜≥200 mm。
成孔时钻机定位应准确、水平、稳定、钻机回转盘中心与护筒中心偏差小于20mm。成孔过程中孔内泥浆液面应保持稳定,正循环成孔不低于自然地坪30cm。成孔质量标准见表9-1。表9-1 钻进成孔质量标准
| 项目 | 允许偏差 | 检测方法 |
| 钻孔中心位置 | ≯300mm | 用TJY 型井径仪 |
| 孔径 | -0.05~+.010d | 超声波测井仪 |
| 倾斜度 | ≤0.5% | 用TTX 型测斜仪、超声波测井仪 |
| 孔深 | 比设计深度300~500mm | 核定钻头和钻杆长度 |
钢筋笼必须严格按施工图施工,其制作偏差控制在如下范围:主筋间距:±10mm; 箍筋间距:±20mm;长度:±100mm;弯曲度<l%。为保证钢筋主筋保护层厚度的准确,在钢筋外侧每隔 3m 设置水泥砂浆套环,以控制保护层厚度。钢筋笼下入孔内后,必须立即下入混凝土灌注管,导管平直,内壁光滑。导管接头采用螺扣连接,以保证紧密不渗漏。导管长度不小于孔深。利用导管进行第二次清孔。清孔后检查孔底沉渣厚度,测得沉渣小于100mm 时方可进行检灌注。首次混凝土灌注时,必须下隔水塞,以避免混凝土与泥浆混合。导管下口离孔底小于0.4m,初灌混凝土的量应大于2m3。
混凝土灌注时设专人随时监控混凝土上升高度,合理拆卸导管,要保证导管埋深在2~ 6m 之间,避免断桩现象的发生。要做好原始记录。严格控制灌注高度,避免超灌量过大,其超灌量应控制在1m 左右。
在相邻混凝土刚灌注完毕的邻桩成孔施工,其安全距离不宜小于4d,或最少时间间隔不应少于36h。钻孔灌注桩工程质量应符合国家规范规定见表9-2 表9-2 钻孔灌注桩工程质量标准
| 项目 | 允许偏差 mm |
| 桩位允差 | 1/12d 且≤30 |
| 平面纵向轴线偏差 | <100 |
| 垂直度允许差 | ≤0.5% |
| 桩顶标高(凿出浮渣后的桩顶标高) | ±50 |
| 桩长、桩径混凝土强度等级 | 符合设计要求 |
2.钢筋工程质量保证措施钢筋表面必须清洁,其规格、形状、尺寸、数量、间距、锚固长度、接头设置必须符合设计要求和施工规范的规定。
钢筋绑扎前在垫层和模板上弹好钢筋位置线,按照钢筋位置线进行排筋,先铺底板下层钢筋,一般先铺短向钢筋,再铺长向钢筋。钢筋绑扎时必须保证钢筋不位移。钢筋的缺扣、松扣数量不得超过绑扣数的10%。
底板混凝土较厚时,一般的钢筋保护层垫块很容易压坏,因此采用豆石垫块以增加其
强度。基础底板上层钢筋网片要设置预先制作好的马凳,保证钢筋位置正确。钢筋对焊接头要无横向裂纹和烧伤,焊包均匀,接头处钢筋轴线的偏移不大于0.1d,
且不大于2mm。柱子钢筋的下端用90°弯钩与基础底板钢筋绑扎,绑扎前接轴线校对插筋位置,然后绑扎牢固或焊接,
柱筋绑扎时,先将箍筋套在下层伸出的搭接筋上,然后立柱子钢筋。柱基、柱顶、梁柱交接处按设计要求箍筋加密。保护层垫块提前绑在柱主筋外皮上,厚度与保护层厚度一致。
梁的箍筋要与受力钢筋垂直设置,箍筋弯钩叠合处要沿受力钢筋方向错开设置。
墙、板钢筋除靠近外围两行钢筋的交叉点全部绑牢外,中间部位交叉点可间隔交错绑牢,但要必须保证受力钢筋不产生位移,双向受力钢筋,必须将全部交叉点绑牢。
钢筋焊接随时观察电源电压的波动情况,对于闪光对焊,电压下降大于5%,小于8% 时,要采取提高焊接变压器级数的措施,大于或等于8%时,不准进行焊接。对于电渣压力焊,电源电压下降大于5%时,不准进行焊接。
钢筋接头取样要求每一至二层楼中以300 个同接头形式、同钢筋级别的接头作为一批;不足300 个时,仍作为一批。
所有钢筋接头均接头按照50%错开,错开距离为35d。框架柱钢筋接头拟采用锥螺纹施工工艺,接头按照50%错开,错开接头为35d。
3.模板工程质量保证措施基础底板侧壁240mm 厚的砖模内侧抹1∶2.5 水泥砂浆找平层。为保证砖模在底板混凝土浇筑时不移位,砖模随砌随回填外侧土方,回填土采用素土,采用人工分层夯实。为保证底板侧绑钢筋保护层的厚度,砌筑砖模前,在底板垫层上弹出砖模的位置线,位置线预留出砖模的抹灰层的厚度。
墙柱根部采取底板混凝土浇筑时,在墙柱根部支设模板处分别用4m 和2m 刮杠刮平,并控制墙体两侧及柱四周标高,标高偏差控制在2mm 以内,并用铁抹子找平,支模时加设海棉条,可有效地控制墙柱根部烂根现象的发生。
顶板模板与墙体模板接缝处,用带企口的方木支设,将顶板模板搭在企口上,板模与方木接触处垫海棉条,所有模板板缝采用粘贴胶纸带的办法,防止漏浆。
4.混凝土工程质量保证措施
混凝土浇筑前,要对串筒、振捣棒、混凝土泵等机具设备按需要进行准备落实。所用的机具要在混凝土浇筑前进行检查和试运转。检查模板、支架、钢筋和预埋件等尺寸、规格、数量及位置是否符合设计和规范要求,模板支撑固定是否牢固可靠;模板内的垃圾、木屑是否清理干净。
基础底板混凝土浇筑采取分段分层浇筑振捣,每段层浇筑厚度不大于500mm,且每段层浇筑长度控制在2~3m 距离,呈阶梯形向前推进。浇筑上层混凝土时,要求振捣棒插入下层混凝土表面50mm,以消除两层间的接缝。
基础墙壁与基础底板接缝部位上返300mm 处留设施工缝,采用止水钢板止水,基础墙壁与顶板采取一次浇筑,不留施工缝。
振捣棒要做到“快插慢拔”。振捣时将振捣棒上下略为抽动,以使混凝土上下振捣均匀。
每一插点要掌握好振捣时间,过短不易密实,过长易引起混凝土产生离析现象,振捣时一般视混凝土表面呈水平,不再显著沉降、不再出现气泡及表面泛出灰浆为准。
混凝土振捣完毕后,用2m 大杠按设计标高进行找平,并随刮随拍打使混凝土沉实。然后用木抹子反复搓抹,提浆找平,使混凝土面层进一步的密实,最后在混凝土终凝前再抹压收浆一遍,避免因混凝土收缩而出现裂缝。
墙体施工缝属防水薄弱环节,为此,墙体施工缝除采用橡胶止水带外,再对施工缝迎水面上下150mm 范围内进行机磨打光,外抹1∶2.5 防水砂浆15mm 厚,确保无渗漏。
给水管、压力排水管、电缆电线等密闭穿墙短管,必须按设计要求制作,密闭翼环采用大于3mm 厚的钢板制作,钢板要平整,其翼高控制在30~50mm 以内,密闭翼环与密闭处理时,在密闭穿墙短管两端各焊一块密闭翼环,两块密闭翼环要与所在墙体的钢筋焊牢,且不得露出墙面。
在梁柱相交处钢筋粗而密,振捣器改用HZ-30 型,同时在初凝前采取二次振捣,保证柱头处混凝土密实。
混凝土浇筑连续进行,柱子混凝土浇筑至梁底部位后,根据梁的高度先浇筑成阶梯形,至楼板底标高后再与板一起浇筑,随着阶梯形不断延长,梁板浇筑连续向前推进。最终实现柱、梁板同时浇筑。
混凝土养护采取覆盖浇水养护,要在混凝土浇筑完毕后12h 以内进行,浇水次数要根据能保证混凝土处于湿润的状态来决定。
对于竖向构件采取涂刷养护液进行养护;水平构件采取塑料薄膜覆盖或浇水养护。
对于地下室有抗渗要求的混凝土,养护时间不少于14d; 普通混凝土养护时间不少于7d。
5.地下防水工程质量保证措施地下防水工程为特殊工序,施工前要对所用材料进行检查控制,施工时要进行连续监控。
所有防水材料地品种、牌号等必须符合设计要求,并有合格证及复试报告,基层必须清理干净。
(1) 本砂浆采用抹灰施工,防水层厚度为15~20mm, 应分层作业,每层厚度为8mm 为宜,防水砂浆的层次要清楚,厚度均匀。
(2)抹灰操作应边压实边抹灰且只准顺一个方向抹压,每层施工时应压实后刷毛。
(3) 所有阴阳角处要求做成圆角以利于防水层形成封闭的整体(阳角R=5mm ,阴角R=25mm)当抹灰面积较大,一次完成有困难时可在一定部位留施工缝,施工缝要做齐,其位置须距阴阳角≥200 处并分道甩槎、每道宽60~200mm 且在厚度上留成斜面,其表面刷毛,接槎时仍按原有道数分层压满并涂抹密实。
(4)对已完成防水层进行全面质量检查,遇明显缺陷处应及时用聚合物水泥砂浆修补。并加强保护工作,严禁钢管等硬物碰击,发现后应及时修补。养护非常重要,尤其是露天作业或环境温度高及有大风时更应设专人加强,在防水砂浆施工时应根据硬化情况随时养护,一般抹灰0.5~1.5h 后即需进行,必须保证砂浆表面充分湿润不缺水。防水保护层:对防水层质量进行全面检查后应尽快进行防水层保护。防护层为M5 砂浆砌砖保护墙。
基础排水和防止沉降措施
1.基础排水措施主楼基坑降水形式采取基坑内设大口井降水的方法,基槽内共设6 口大口井,井深9~ 14m(自然地坪),土方开挖前7d 开始降水。
土方开挖至设计底标高后,大口井之间采用300×500 的盲沟相连,盲沟内铺设砟石。基础底板施工前,采取跳封法对大口井进行封闭,保留2 口大口井,待基础底板施工完毕,再进行封井。
配楼基坑采取基坑内明排水的方法,挖土时随挖土过程在基坑内角设置4 口集水井,并做排水沟与其相连,集水井尺寸为1m×1m,井深1.5m,四周用机砖码砌,排水沟为300 ×500,内填砟石,以满足基础施工排水的需要。
基础施工过程中,各施工段设专人昼夜看护水泵,负责抽水。
2.防止沉降措施
本工程防止沉降措施主要针对深基坑施工时,对周围建筑物所造成的影响,对相邻建筑物沉降变形进行监控。由于基坑深度较大,土方开挖及基坑降水对相邻建筑物有一定的影响,因此要对相邻建筑物沉降变形进行连续监测。为此我们将聘请专业测量队伍进行观测,在基坑施工前对周围建筑物和管线进行详细调查,对发现的裂缝、倾斜等损坏迹象进行标记并记录文件存档,并及时通报给项目经理部,以采取必要的防护加固措施。
基坑支护结构的监测:基坑开挖过程中要做好支护结构的监控工作,基坑南侧开挖较深,基坑北侧有现状大法庭,故应做为监控的重点。基坑开挖前,在该两则支护结构的顶部6 轴、11 轴、15 轴处设置三处观测点(在水泥桩上砸入钢钉)作为原始点,在基坑的东、西两侧各选择一处不动点作为控制点。基坑开挖过程中,每天进行两次支护结构的位移观测,基坑开挖完成后,前一周内每天进行一次观测,以后每三天进行一次观测。观测工作要做好记录,当发现位移变化大(超过6cm) 时, 应立即停止开挖,必要时要将基坑回填,采取加固措施后再进行施工。尤其对基坑北侧支护结构外侧的地下水位要进行观测,防止支护结构漏水造成基坑外地下水位的下降,而导致原建筑的下沉。基坑开挖后设专人使用测绳进行地下水位的测量。基坑开挖后前一周每天进行两次测量,并做好记录。当发现地下水位下降过快时,要及时找出围护结构的渗漏点,采取措施堵漏。
地下管线、地上设施、
周围建筑物保护措施
为了保证施工顺利进行,安全施工,要对路边管线及沿路电线、通讯线作如下保护加固措施:对路边电线、通讯线,用木杆、竹巴片等绝缘材料进行遮挡、封闭,保证用电设备安全。在基础开挖前会同建设、规划等部门,对现场认真进行勘察,对埋有地下管线的部分采取人工刨挖,以免整体机械开挖破坏地下电缆管线。在相邻建筑物上作好沉降变形控制点,在基础阶段施工过程中,经常进行监测,防止出现墙体开裂变形。对靠近施工现场的临街马路便道,采取搭设防护棚及安全通道,确保行人车辆的安全。
主体结构主要施工方法或方案和施工措施
1.主体结构工程施工方案的选择
1.1.模板工程
本工程主体结构框架柱多为矩型柱,因此矩型柱模板选用竹胶模板,部分圆柱模采用定型模板,梁板模板采用新钢模板,支撑系统采用碗扣脚手架和早拆头。
1.2.钢筋工程
钢筋接头形式主要有三种:φ22 以上的梁上排钢筋接头采用套管挤压连接,框架柱主筋一、二层采用套管挤压,三层以上采用电渣压力焊连接,其他钢筋接头采用焊接和绑扎连接。
1.3.混凝土工程施工主体结构混凝土采用商品混凝土,泵送浇筑。
1.4.垂直运输和脚手架方案
垂直运输主楼采用一部塔吊和两部外跨电梯,配楼各设一部卷扬机,主体结构及外檐装修外脚手架采用落地式双排脚手架;内檐装修采用简易脚手架或移动式工作台。
2.施工测量
2.1.地上结构的平面控制基础施工完毕后,用现场内设置的四个点,对基础使用的定位控制桩进行复测,复核无误后,做为首层施工依据。上部结构的轴线传递采用经纬仪,为确保轴线传递的准确性,每层轴线均从首层基点向上传递。
根据规范的要求,轴线竖向投测的允许误差见表12-1
表12-1 轴线竖向投测的允许误差
2.2.地上结构的高程测量在每层的柱子及墙体浇筑完成后,用红三角标注,并以此做为上部结构高程测量的起始点。本工程采用50m 钢尺,从首层起始点开始向上传递,钢尺必须做加拉力、尺长、温度三差修正,且要往返数次测量,确保标高传递的准确性。在结构层内引测标高时,要使用水准仪引测,并往返测量与基准点校核,误差要控制在规范控制范围内。
标高竖向传递的允许偏差见表12-2。
表12-2 标高竖向传递的允许偏差
2.3.建筑物的沉降观测
| 项目 | 允许偏差 | ||||||||
| 国家标准 | 内控标准 | ||||||||
| 轴线竖向投测 | 每层 | 3mm | 2mm | ||||||
| 总高 | 5mm | 3mm | |||||||
| 高度(m) | 允许偏差 | ||||||||
| 国家标准 | 内控标准 | ||||||||
| 每层 | ±3 | ±2 | |||||||
| 总高 | ±5 | ±3 | |||||||
(1)水准点的设置
沉降观测要依据稳定性良好的水准点进行,水准点考虑永久使用,为了便于检查核对,专用水准点埋设不少于三个,埋设地点必须稳定不变,防止施工机械、车辆碰压。
(2)仪器选用
本工程使用德国芬奈S1 精密水准仪及配套的塔尺。
(3)观测依据及精度要求依据《工程测量规范》(GB50026-93)、《建筑变形测量规程》JGJ/T8-97 的有关要求。精度要求:建筑变形测量规程》JGJ/T8-97 二级的要求。
(4)沉降观测点的布置沉降观测点的布置要符合设计和规范的要求,设计未做出规定时,按下列原则设置:沉降观测点的布设,要每隔8~12m 设置一个,建筑物山墙必须在中部适中位置上设有观测点。框架结构沉降观测点要设置在混凝土柱子上。沉降观测点布设位置、标高为±0.000 以上500mm 处。沉降观测点的形式见图12-1。
(5)沉降观测的周期及观测时间主体结构施工阶段,每一结构层沉降观测不少于1 次,若遇特殊情况可增加观测频率。工程主体封顶后要进行百日观测。其后继观测周期

要根据百日平均沉降值确定,见表12-3。图12-1 沉降观测点的形式表12-3 百日平均沉降值
| 百日观测日平均值 | 后继观测周期 |
| >0.3mm/d | 半个月 |
| 0.1~0.3mm/d | 1 个月 |
| 0.05~0.1mm/d | 3 个月 |
| 0.02~0.05mm/d | 6 个月 |
| 0.01~0.02mm/d | 12 个月 |
沉降稳定控制值为0.01mm/d,当沉降观测值小于0.01mm 时沉降趋于稳定,可停止观测。沉降观测结束后,要及时整理观测资料,妥善保存,作为工程技术档案资料的一部分。
3.操作工艺流程
架体搭设→轴线放线→混凝土墙体钢筋绑扎→混凝土墙体模板支设→梁、顶板支撑架体搭设→梁、顶板模板支设→梁、顶板钢筋绑扎→混凝土浇筑→混凝土养护。
4.主要施工方法
4.1.钢筋工程施工钢筋进场时现场器材员要检验钢筋出厂合格证、炉号、批量和钢筋外观等,并及时对钢筋进行取样复试,钢筋复试合格后,方能批准使用。钢筋配筋严格按照《混凝土结构工程施工及验收规范》(GB50204-92)和设计要求执行,不允许出现现场割筋留洞的现象出现。钢筋要堆放在现场指定的场地内,钢筋堆放要进行挂牌标识,标识要注明使用部位、规格、数量、尺寸等内容。
钢筋要分类进行堆放,钢筋下面一定要垫木架空,防止钢筋浸在水中生锈。剪力墙及柱、梁板钢筋保护层控制均采用高强度等级水泥砂浆垫块,水泥砂浆垫块可以根据钢筋规格做成凹槽,使垫块和钢筋更好地联合在一起,保证不偏移和移位。
本工程设计图样要求钢筋搭接采用焊接或机械连接方法,钢筋接头搭接要求按照施工规范《GB50204-92》有关内容执行。
框架柱钢筋直径≤φ22 的接头采用搭接焊方法,钢筋直径≥φ22 的接头采用电渣压力焊连接;框架梁上部钢筋采用套管连接。钢筋接头按照50%错开,错开距离为35d。钢筋连接的操作是钢筋连接技术的关键,现场设专职工长负责该项检查工作。本工程设有四台挤压机,为减少工作重复,套筒挤压两端一次完成。施工时钢筋的对接,根据直径设定相应的套筒,确定钢筋的插入深度,以防压空。被连接钢筋的轴心与套筒轴心保持一致,以防偏心和弯折,在钢筋表面用红油漆标出插入深度,同时在套筒表面采用白油漆标出挤压位置和宽度。挤压顺序必须由套管中央开始顺序向端部逐渐挤压。由于钢筋长度较大为确保挤压机与钢筋轴线垂直,设专人扶正,挤压时不得出现漏压。漏压后按顺序从头再挤压一遍。挤压时必须盯好压力表,当达到预定值后,操作换向阀,完成一道挤压操作。
钢筋焊接施工前,要进行现场条件下的焊接性能试验,合格后方可正式焊接。对于从事焊接施工的操作人员,必须具有操作上岗证,项目经理部要对操作人员进行技术培训和考核,合格后方可进行施工。
钢筋接头取样要求每一至二层楼中以300 个同接头形式、同钢筋级别的接头作为一批;不足300 个时,仍作为一批。
浇筑梁板混凝土时,柱子的竖向钢筋会受到混凝土浆的污染,因此,在混凝土浇筑完毕后,使用钢刷将竖向钢筋上的水泥浆刷掉,保证剪力墙柱混凝土对钢筋的握裹力。
4.2.模板工程施工模板选型:剪力墙采用钢模板;框架柱采用竹胶模板,圆柱模采用定型模板,梁板模板采用钢模板
模板组装时,要考虑拆卸方便,模板拆卸下来后,必须及时清理干净,并涂刷隔离剂,模板拆除应遵循先支的后拆,后支的先拆,非承重部位先拆,承重部位后拆的原则。
剪力墙模板施工
剪力墙采用定型钢模板拼装,模板采用φ16 穿墙螺栓连接加固,其设置间距:横纵间距700mm,为便于穿墙螺栓的周转使用,螺栓外套内径φ18 的硬塑管,并兼做模板内支撑,硬塑管两端内塞堵海绵条,以防水泥浆渗入拔螺栓困难。模板外侧使用钢管扣件支顶加固,门窗口侧模采用木模。
框架柱方形柱模板施工本工程柱子断面形式以方柱为主,采用竹胶模板支设。将预先拼好和制作好的模板拼成四片,组拼排列采取“推磨式”方法,每片模板接缝处粘贴海绵条堵缝。

对于大截面柱子合模后,采用钢管做为柱箍,柱箍为双杆,每700mm 一道并与相邻柱网紧固连接,形成一体相互受力,为保证柱子断面尺寸不变形,在柱箍位置加设φ16 对拉螺栓进行紧固,确保柱子不变形。
对于小截面柱子合模后,背肋采用方钢,柱箍采用10×10 木方加固,柱箍采用φ16 对拉螺栓紧固。

图12-2 框架柱方形柱模板采用经纬仪和线锤校正模板垂直度无误后,将柱模内清理干净并封闭清理孔,办理柱模预检。
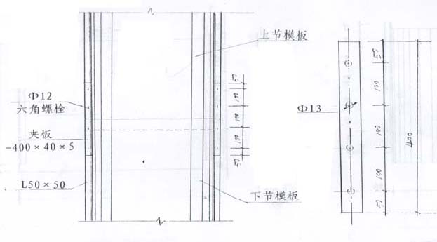
本工程共设计有圆形柱20 根,直径分别为600mm 和1200mm。在模板支护中采用六建公司自行研究开发的圆柱轻型曲面模板,并获得了很大成功,混凝土圆形柱表面达到了清水混凝土地效果。
圆柱轻型曲面模板采用薄型钢板与角钢组成。圆形以两片薄型钢板拼成,拼缝处采用角钢作为边肋,使用φ12 螺栓连接紧固,板面采用1.2mm 厚的薄型钢板,滚压成圆弧状形成曲面,模板高度为1m, 上下模板连接时,采用插入式,上下模板相插6cm, 因此考虑模板上端直径比下端直径大3mm(两个钢板的厚度)以便于模板的插入。

图12-3 圆柱模展开图
钢板与角钢的连接
首先在钢模板两侧分别与六个10mm 的圆帽螺栓和50×5
的角钢一边相连形成曲面模板,两片曲面模板边框采用角钢穿
7 个直径为12mm 的六角螺栓固定,形成圆柱模(见曲面模板简图)
圆柱模连接将上节模板下端插入下节模板上端插入60mm,然后采用400×40×5 厚的钢模板作为夹板分别与下节模板的最上两个螺栓,上节模板的最下两个螺栓连接(详见上下节模板连接图图12-5、夹板详图图12-6)。图12-4 曲面模板简图

图12-5 板上下节模板连接图图12-6 夹板详图模板固定好后,利用混凝土自重力将模板涨圆,模板拼缝少,成活混凝土表面平整光滑,达到清水效果。
框架梁板模板施工采用国际钢模板体系,不合模数处采用木模。支模采用梁侧模包底模、楼板模板顶梁侧模板的方法施工。用碗扣式脚手架和φ48钢管扣件搭设满堂红脚手架作为模板的垂直支撑。支模时,应注意先按照设计标高调整好支柱高度,模板的接缝处用海绵条镶嵌牢固。(详见附图4、5、6)梁底模板均从两端向中间配制,不符合模数的地方采用木模。木模使用前必须刨光。梁板相交处,梁侧模板交接处及板与板交接处使用海绵密封条及胶带纸封堵。楼板支撑从边跨一侧开始,先安第一排立杆,再安第二排立杆,二者必须用横杆连好,依次逐排安装。立杆间距1.2m。
楼板模板下顺模板方向铺钢管其间距1.2m,垂直于模板方向钢管间距为0.6m。模板的拆除:柱、梁侧模板的拆除以不破坏棱角为准。一般试块强度达到1.2MPa, 才允许拆模。底模板的拆除必须符合规范的要求。
模板配制的数量:根据工程进度的要求,模板与支撑各按二层半配制。

图12-7 主次梁、楼板钢管支模示意图
4.3.混凝土工程施工
本工程的结构混凝土全部采用商品混凝土。混凝土采取泵送,通过泵管送至浇筑地点,随着主体的增高,将输送泵管接到楼内,经过楼板上的预留孔洞使主管沿钢管搭设的脚手架垂直增高至浇筑地点。
各层混凝土浇筑采取两次浇筑的施工方法,即先柱子后梁板的顺序。
混凝土浇筑前做好充分的准备,工长对操作人员进行详细的技术交底,同时检查模板、钢筋、预留洞等预检和隐检项目,安全设施是否达到施工要求,并及时了解和掌握天气季节变化情况。
混凝土浇筑前,将模板内的垃圾等杂物清除干净。现场配备串筒。混凝土浇筑采用输送泵,通过泵管送至浇筑地点,随主体的增高,浆输送泵管接至楼内,经过楼板上的预留孔洞使主管沿钢管搭设的脚手架增高至浇筑地点。
剪力墙开始浇筑时,先浇筑10cm 厚与混凝土砂浆成分相同的水泥砂浆,每次铺设混凝土厚度不得超过50cm。混凝土浇筑过程中,不可随意挪动钢筋,要经常检查钢筋保护层厚度准确性。
梁板混凝土浇筑方法,采取由一端开始先将框架梁分层浇筑成阶梯形,当达到板底位置时即与楼板的混凝土一起浇筑,随阶梯形的不断连续向前推进,倾倒混凝土的方向要与浇筑方向相反。
混凝土使用插入式高频振捣器振捣。振捣时应快插慢拔,插点要均匀排列,逐点移动,顺序进行,不得遗漏,做到均匀振实。移动间距不大于振捣棒作用半径的1.5 倍(一般为300~ 400)。混凝土分层浇筑时振捣器应插入下层50mm,以保证混凝土的整体性。
梁节点钢筋较密处浇筑混凝土时视情况可采用同等级细石混凝土,并采用小直径振捣棒振捣。
混凝土浇筑12h 后要立即进行养护,养护方法采取自然养护法。框架柱梁采取外包塑料薄膜覆盖阻燃草帘的养护方法,楼板混凝土浇筑后12h 以内及时养护对预防混凝土楼板裂缝的产生至关重要,因此,在混凝土表面压平后,现在混凝土表面覆盖一层塑料薄膜,然后在塑料薄膜上覆盖一层阻燃草帘进行养护,养护期不少于7d,并设专人负责定期洒水。
4.4.墙体砌筑工程施工本工程主楼地下室砌体采用240 黏土砖砌筑,上层采用轻集料砌块;配楼采用烧结多孔砖砌块砌筑。工艺流程:

图12-8 墙体砌筑工程施工工艺流程
组砌方法:采用‘三一’砌筑方法和一顺一丁形式。

砂浆和水泥混合砂浆必须在拌成后3h 和4h 内用完。墙体砌筑采用满铺满挤砌筑,上下十子错缝,搭接长度不小于砌块长度的1/3,并不小于150mm。灰缝要横平竖直,砂浆饱满,水平灰缝厚度不大于15mm, 垂直灰缝不大于20mm。墙顶与楼板或梁底加一层机砖斜砌。
凝土小型砌块的龄期及干湿情况,龄期不足28d 及潮湿的小图12-9 组砌方法砌块不得砌筑
构造柱模板采用竹胶模板,加固使用钢管及φ12 螺栓加固,墙体砌筑时,在砖缝中预留φ20 硬塑管,支模时将螺栓穿入塑料管内加固模板,支模前清理模板,并涂刷隔离剂,在模板与墙体接缝处粘贴海绵条。

图12-10 构造柱支模剖面图图12-11 构造柱支模立面图
清除小砌块表面污物和芯柱用小砌块孔洞底部的毛边对基础进行检查,并基础顶面放出小砌块墙体的中心线及两侧边线。按照每层楼的墙体高度,计算出小砌块皮数及灰缝厚度据此制作皮数杆。皮数杆应树立于墙体转角处或交接处,皮数杆间距不宜超过15m。灌实孔洞的混凝土应采用C15 轻骨料混凝土。在纵横交接处和洞口两侧均应设置钢筋混凝土芯柱。外墙转角处应应灌实7 个孔;内外墙交接处应灌实5 个孔,其中内墙灌实2 个孔;门窗洞口两侧各灌实1~2 个孔。当为8 度设防时,按此要求设置芯柱,其插筋不应小于φ16。在外墙采用轻骨料混凝土双排孔或多排孔小砌块而不能设置芯柱时,应按照《建筑抗震设计规范》的要求设置钢筋混凝土构造柱。轻骨料混凝土小砌块砌筑前可洒水,但不宜过多。上下皮小砌块无法对孔砌筑时,竖向灰缝错开长度不应小于120mm, 当不能保证此规定时,应在水平灰缝中设置拉结钢筋或网片。非承重轻骨料混凝土小砌块墙中不得留设脚手眼。轻骨料混凝土小砌块墙的每日砌筑高度应控制在2.4m 以内。
4.5.网架、彩色压型钢板屋面工程
大法庭顶部采用钢结构(钢管球节点网架)屋顶结构由钢管球节点网架组成,长32.8m, 宽19.3m, 上下弦中心高度1.4m, 网架整体面积633 ㎡,网架形式为正放四角锥网架。上弦球为周边支撑,杆件、腹杆与球节点焊接,承重荷载直接作用在球节点上。
(1)钢管球节点网架安装定位本工程钢管球节点网架采用由地面拼装中心部分网架,然后进行整体吊装。地面定位是拼装和吊装的关键,它是保证网架长、宽、高三维空间几何尺寸的基准。在组装现场用经纬仪精确分布处承重支座。轴线位置,进而精确上下弦节点的中心线位置,并弹设在网架四周的梁、柱上,同时测出网格中心距。
网架安装采用整体吊装提升法:1)在吊装前应对吊点及设备检查,试验。经检验合格方可进行吊装。2)吊装吊点,本网架设计上弦支撑,需将吊点设在下弦。3)吊装将各吊点与网架锁牢,进行试吊,试吊高度距地面0.5m,静载4h,无异常后方可进
行正式吊装。施工人员应听从命令,做到令行一致。保持网架匀速上升。每吊装一阶段后,都应设专人检查力的匀速度,平衡度。吊装结束后,把各设备加牢固防止滑落。
(2)钢管球节点网架施工技术及质量措施
1)拼装焊接网架拼装时,由长度方向1/2 处开始进行,减少拼装中的误差积累和内应力,支座及顶托的安装可同网架一并进行。网架的拼装焊接顺序为先下弦,后腹杆(含上弦球)在插装上弦杆,拼装时水平误差不超过10mm,水平度用水平尺控制,楔块找平,球、杆不同心度不超过1mm 。焊接方向应与拼装方向一致,焊接顺序为先焊下弦后焊上弦,交替进行,下弦的焊接
应比上弦的焊接置前1~2 个网格。焊接的全过程中,下弦各节点均应垫实楔紧的状态下,以免产生凹陷或翘曲。2)球与杆件焊接工艺要求球、杆连接均匀点焊固定,电焊为三个点,点焊的位置按时钟标位法,应在六点钟,
两点钟和十点钟的位置,点焊的焊缝长度为15mm 左右,厚度不小于4mm 。
焊接应从六点钟的位置起焊,先顺时针方向沿半周向上至十二点钟位置,然后再从六点钟位置起焊,逆时针方向沿半周向上至十二点钟位置,从而完成环形焊缝,焊缝的接茬处,均应搭焊不小于10mm 的长度。
焊接电流控制在100~130A 之间。焊缝质量达到焊透,焊缝达到设计要求,且表面平滑无咬肉,内部无夹渣,气泡、裂纹。
3)对质量的要求网架的最终质量成果是同拼装质量,零件加工(精度)质量有不可分的关系。网架上所有零部件(空心钢球、杆件)的材质中化学成份,机械性能必须符合规范要求,标件披口,钢球壁厚,锻造外形,都一一检测,不合格的一律淘汰。零部件正式拼装前,先进行预装,监理人员检测无误后,再进行正式拼装。实施手工电弧焊所需要的焊条必须在300℃温箱内烘焙2h,且随用随取。
5.质量检验结果网架安装质量检验表见表12-4。
表12-4 网架安装质量检验表
| 序号 | 项目 | 允许偏差 | 实测 |
| 1 | 相邻支座 | 9mm(L1/400) | 6mm |
| 2 | 纵轴、横轴长度 | 15mm | 13mm、11mm |
| 3 | 支座中心偏移 | 10mm | 8mm |
| 4 | 周边支承网架相邻支座高差 | 15mm | 10mm |
| 5 | 支座最大高差 | 30mm | 22mm |
| 6 | 杆件弯曲高度 | 5mm | 4mm |
压型彩板安装
(1)施工前准备
1)压型钢板围护及屋顶施工安装之前,订制相应的施工图样,并根据设计文件编制组织设计及对施工人员进行技术培训和安全生产交底。
2)根据文件详细核对各类材料的规格和数量,对损坏的压型钢板,泛水板应及时修复和更换。
3)各类施工设备应齐全,并能正常运转。
4)复核与压型钢板施工安装有关钢构件的安装精度,清除檩条的安装焊缝药皮和飞
溅物,并涂刷防锈漆进行防腐处理。
(2)屋面压型彩板施工工序:
1)按图样要求将天沟固定在屋面下坡钢梁上,调整泛水位置,用檩条固定后再与钢梁加固焊接,天沟对接焊缝必须严密,不允许有漏缝现象。
2)依据屋顶板安装基准线位置,安装下顶板,将下顶板依次放在檩条上,用铆钉将其固定在檩条上。
3)铺设保温岩棉,将岩棉铺满铺实后,再铺屋面上顶板,上顶板安装板与板之间必须咬紧,接缝处粘贴密封胶条后,再用自攻螺钉固定,按屋面彩板宽不少于3 个螺钉固定。
4) 檐口,天沟及屋面板与天沟搭接处,做好防水处理,天沟的防水用玻璃布和冷沥青作处理,在屋面板与天沟搭接处,用聚氨酯泡沫制品填塞,并用冷沥青涂刷防水,檐口的防水用密封胶处理。
(3)墙板安装:墙板安装按檩条位置从一端开始进行,板与板之间必须咬紧,再用螺钉固定,墙板接缝处做好防水处理。
(4)压型钢板的铺设和固定原则:1)压型钢板均应逆主导风向铺设。2)压型钢板从屋面和墙面的一端开始铺设。3)压型钢板安装时,应边铺设边调整其位置,边固定。对于屋面,在铺设压型钢板的同时,还应根据设计要求,铺设防水密封材料。4)先安装压型钢板,然后再切割实洞口的尺寸和位置。5)铺设屋面压型钢板时,须在压型板上设置临时人行木板。
主体结构质量保证措施
质量保证措施组织:我公司坚持“用户是上帝,质量是生命”的质量方针,认真运作GB/T19002-9002 质量管理模式,对于不同工种及每一道工序都进行质量监督,使施工过程中的材料、半成品、成品质量都在受控状态之下,从而使工程质量从根本上得到有效的保证。
建立质量保证体系,自总公司、项目经理部管理,自上而下建立质量管理网络,使工程质量处于动态管理之中。制定项目质量保证计划,自开工到竣工后服务的全过程从工期计划、物资采购、器材发放、技术保障、机械设备管理,分包单位质量控制等,推行GB/T19002-9002 系列国家标准运作。
项目经理部按国家管理规定规范对工程质量进行严格控制,由项目经理对施工人员进行质量、技术交底,在操作中进行实测监控,做好记录。建立项目管理体系网络图。物资采购:严格按照我公司物资采购程序文件执行,对钢材、水泥、砂子、石子、防水材料等重要施工材料必须在我公司实验中心实验室进行二次复试合格后方可使用。不合格品不得进入现场。
对分包方优选:分包方必须经我公司资质评审组审查优选,通过后方可签定合同,并于施工前向公司提供承包项目施工方案,经项目经理部审批同意后方可施工。
1.钢筋工程绑扎时注意间距及钢筋的规格、钢筋间距、锚固长度必须符合设计图样和规范要求,还要注意不得漏扣以及绑扣丝向里,防止其锈蚀污染混凝土表面。采用定位卡在浇筑混凝土前将定位卡套在柱筋顶端,用绑扣将柱筋紧靠在定位卡上,控制钢筋间距位置下部用水泥砂浆垫块控制保护层厚度。
钢筋绑扎时要注意箍筋加密区的位置、长度、箍筋间距、箍筋弯钩长度、平直长度以及支座内要有一道箍筋。
(1)柱钢筋:箍筋接头位置相互错开,与主筋相交点全部绑扎,不准跳绑漏绑。柱子筋保护层垫块绑扎在柱立筋外皮上,间距为1m,以保证柱筋保护层厚度。
(2)框架梁钢筋::主筋大于φ20 的钢筋采用闪光对焊连接,针对焊接接头的数量由抽样人员抽样做好试验,验证合格后方可绑扎,对主筋间距按要求设计严格执行。
(3)楼板钢筋:楼板模板支完后,在模板上分好钢筋间距,按间距布置钢筋,短钢筋在下边。长向钢筋在上边绑扎时用八字扣,主筋相交点均绑扎。预埋件、电线管、预留孔等必须及时配合安装。钢筋绑扎允许偏差见表13-1 表13-1 钢筋绑扎允许偏差
| 项次 | 项目 | 允许偏差(mm) | |
| 1 | 网的长于宽 | ±10 | |
| 2 | 绑扎网眼 | ±20 | |
| 3 | 骨架宽度、高度 | ±5 | |
| 4 | 骨架长度 | ±10 | |
| 5 | 受力筋间距 | ±10 | |
| 6 | 受力筋排距 | ±5 | |
| 7 | 钢筋弯起点位移 | ±20 | |
| 8 | 箍筋、横向钢筋间距 | 绑扎骨架 | ±20 |
| 焊接骨架 | ±10 | ||
| 9 | 焊接预埋件 | 中心线位置 | 5 |
| 水平高差 | +3、-0 | ||
| 基础 | ±10 | ||
| 10 | 受力筋保护层 | 梁、柱 | ±5 |
| 墙、板 | ±3 | ||
2.模板工程严格控制柱顶的标高,一般要求误差不大于±1mm 。模板块相邻板面高差不得超过2mm 。所有节点的连接件必须连接牢固、卡紧。模板使用前必须涂刷隔离剂。
严格控制模板和立柱的拆除时间:按规范要求框架梁跨度小于8m,拆模时混凝土强度等级应达到设计强度的75%,大于8m 应达到100%方可拆除底模。板模拆除时的混凝土强度等级需达到设计强度的75%方可拆模。
严格控制楼层荷载,施工用料必须分散堆放,不得集中增加楼层的施工荷载。
对于现浇混凝土的施工,模板支得准确、牢固以保证混凝土截面尺寸,本工程使用的模板采用竹胶板和标准钢模板。模板及支架必须具有足够的强度、刚度、稳定性,支架的支撑有足够的支撑高度。
(1) 柱模板:将基层清理干净,放出轴线,校正柱钢筋,按柱模板线抹5cm水泥砂浆找平,待其达到一定强度后,将模板墩在上面以防止模板底部漏浆,模板上部用钢管加固。
(2)梁板楼板:施工中主要控制标高上平,预留洞位置及位置。支模时按50线量好板底标高,并挂好线,按线支模,根据梁间距确定横纵向支柱布置,支柱上口用钢管连接牢固,使钢管上平加上板底模的高度与设计板底一平,支柱间距不大于1.2m, 支柱下部设扫地杆。模板支好后即可铺板,接缝处必须严密,洞口处预先制出模板,准确的固定在模板上,模板支完后按规定起拱。模板支完后,在柱主筋上抄出水平控制线,以控制现浇楼板厚度和表面平整。
模板配制允许偏差见表13-2
表13-2 模板配制允许偏差
| 项次 | 项目 | 允许偏差(mm) | 检验方法 |
| 1 | 轴线位置(柱、墙、板) | 5 | 尺量检查 |
| 2 | 底模上表面标高 | +5、-5 | 用水准仪或拉尺检查 |
| 3 | 截面尺寸(柱、墙、板) | -5 | 尺量检查 |
| 4 | 每层垂直度 | 5 | 用2m托线板检查 |
| 5 | 相邻两板表面高低差 | 2 | 用直尺和尺量检查 |
| 6 | 表面平整度 | 4 | 用2m靠尺和楔形塞尺检查 |
(3)混凝土内的预埋件及预留孔洞不得遗漏,若需固定在模板上时,必须牢固、位
置准确,其允许偏差应符合要求见表13-3。表13-3 允许偏差
| 项次 | 项目 | 允许偏差(mm) | |
| 1 | 预埋钢板中心线位置 | 3 | |
| 2 | 预埋管、预留中心线位置 | 3 | |
| 3 | 预埋螺栓 | 中心线位置 | 2 |
| 外露长度 | +10,0 | ||
| 4 | 中心线位置 | 预留洞 | 10 |
| 截面内部尺寸 | +10,0 |
3.混凝土工程浇筑前,要对模板、钢筋、预埋件及管线进行复核,并做好隐检记录,并将模板内的垃圾清除干净。混凝土底板一次浇筑成型。
混凝土浇捣专业化,按日夜三班制,每班按输送泵编号,相对固定班组,并对口接班,工长负责混凝土的进出料开始,至浇捣混凝土、放埋件、保证模板不变形及排除泌水和面层找平。
浇筑方法:采用水平分层浇筑,每层为400mm, 循环推进,一次到顶的方法。并保证上下层混凝土不超过初凝时间。
振捣采用:根据混凝土泵送时自然形成的一个坡度的实际情况,在每个浇筑带的前后布置两道振动器,随着混凝土向前推进,振动器也相应跟上。
在梁柱相交处钢筋粗而密,振捣器改用HZ-30 型,同时在初凝前采取二次振捣,保证柱头处混凝土密实。
当混凝土振捣完毕后,用2m 长的木杠按设计标高进行找平,并随刮随拍打使混凝土沉实。然后用木抹子再反复搓抹,提浆找平,使混凝土面层进一步的密实,最后在混凝土终凝前再抹压收浆一遍,避免因混凝土收缩出现裂缝。
(1)工程所用的水泥、石子、砂子外加剂必须符合施工规范有关规定,水泥必须具有出厂合格证和复试报告。
(2)混凝土浇筑要严格按照商品混凝土的技术要求供应,对不符合要求的混凝土应予拒收。
(3)混凝土浇筑和振捣选择对称位置开始,以防模板走动,结构断面减小,钢筋密集的部位严格安分层浇筑分层振捣要求操作,浇筑到最上层表面必须用木抹子找平,使表面密实、平整。浇筑混凝土时分层分段进行,每层高度为振捣器作用部分的1.25倍,最大不超过500mm振捣密实,不漏振、不过振。振捣延续时间以使混凝土表面浮浆无气泡不下沉为止。
(4)框架柱浇筑混凝土前,应将接茬处松动的石子与浮浆剔除干净,浇筑前先均匀浇筑30~50mm厚与柱混凝土成分相同的水泥砂浆,砂浆用铁锹入模,不可用吊斗直接灌入模内。楼板混凝土浇筑时,板虚铺厚度略大于板厚,振捣器顺浇筑方向振捣,并用铁尺检查混凝土的厚度,振捣完毕后用木抹抹平。
(5)混凝土的养护:对已浇筑完的混凝土12h 内加以覆盖和浇水,养护时间不得小
于7d。底板及楼板混凝土强度未达到要求以前不得上人踩踏及安装模板等。混凝土结构尺寸允许偏差项目见表13-4。
表13-4 混凝土结构尺寸允许偏差
| 项次 | 项目 | 允许偏差mm | 检查方法 | |
| 1 | 轴线位移 | 墙、柱、梁 | 5 | 尺量检查 |
| 2 | 标高 | 层高 | ±5 | 用经纬仪检查 |
| 全高 | ±30 | 用经纬仪检查 | ||
| 3 | 截面尺寸 | 墙、柱、梁 | ±5 | 尺量检查 |
| 用2m托线板和塞尺检 | ||||
| 每层 | 5 | |||
| 4 | 柱、墙垂直度 | 查 | ||
| 全高 | 30 | 用经纬仪检查 | ||
| 5 | 表面平整度 | 8 | 2m靠尺板和塞尺检查 | |
| 6 | 预埋钢板中心线位置偏移 | 10 | 尺量检查 | |
| 7 | 预埋管、预留孔中心线位置偏移 | 5 | 尺量检查 | |
| 8 | 预留洞中心线位置偏移 | 15 | 尺量检查 | |
4.砌墙工程质量保证措施
(1)严把原材料质量关,砌体原材料,出厂后有具时效的质量证明书,并且经过复试合格后方可使用。
(2)墙内设有暗线,暗管,砌墙时确保预留线槽位置的正确,严禁在已砌好的墙体上乱凿槽凿孔,在构造柱与墙体相连部位,在构造柱支模板过程中,不准在砖墙上开孔下设加固管,用螺栓及垫板进行模板的固定施工,以保证墙体无洞眼保证整体性良好。
(3)对砂浆配合比的确定,应结合现场的材质情况进行试配,在满足砂浆和易性的条件下,控制砂浆强度。取样做砂浆试块养护后送试验室作抗压强度试验,试验结果应符合设计要求。
(4)砌体灰缝应砂浆饱满,水平灰缝饱满不得低于80%,竖缝不得出现透明缝,瞎缝。
水平灰缝平直、饱满,砂浆饱满度不低于90%, 竖向灰缝采取加浆灌缝的方法,其砂浆饱满度不低于80%,保证砂浆饱满。墙体转角处即交接处要同时砌筑。砌块砌筑时要上下错缝,搭接长度不小砌块长度的1/3,
并不小于150mm。
新技术、新工艺、专利技术
新技术应用情况:
1.深基坑支护技术
根据现场及土质情况,施工现场不具备基坑全部开挖放坡的条件,经研究决定采用双排格构式重力挡土墙与双排水泥搅拌桩相结合的支护体系。本工程采用了多种形式相结合的基坑支护方式,即起到了支护防水的作用,也解决了场地狭窄的问题。
2.高强高性能混凝土应用技术
本工程主体混凝土全部采用了双掺技术的商品混凝土。使用粉煤灰节约水泥,同时水泥全部采用散装水泥,节约了包装费用。采用双掺技术方便了施工,增加了可泵性,使泵送高度最高达80m。一至五层部分柱采用C50 混凝土与常规低强度等级混凝土相比,减小了柱子的截面尺寸,增加了使用空间,并减轻了结构自重。
根据不同混凝土的强度要求,进行试配,研究出不同强度等级的混凝土配合比;地下室底板厚0.6m 承台厚1.2m 为大体积混凝土施工,混凝土采用C40S8 抗渗混凝土,采用斜坡推进薄型浇筑,一次到顶;在混凝土浇筑完毕2h 左右,对现浇筑的混凝土进行2 次压实抹平消除混凝土表面快速失水而产生的干缩裂缝。使混凝土质量达到规范要求。
3.粗直径钢筋连接技术
本工程基础及主体中大于φ22 的竖向钢筋接头,采用电渣压力焊连接技术,合格率达到100%。在施工中,总结了“垂直切断做法”减少马蹄断面现象发生,保证压力焊接质量,减少浪费;大于φ22 横向水平筋长度超过12m 的连接方式全部采用钢套管挤压连接技术,应用挤压套管接头,按规范要求进行管理和检验,并制作铁卡具对压痕深度、间距宽度、深度、长度四种指标进行检测,使操作人员随时掌握成品的合格与否,便于检查验收,保证质量,提高施工效率。
4.建筑节能和新型墙体的应用技术该工程的屋面保温材料采用100mm 厚的水泥聚苯板。该材料保温效果好,自重轻,施工简便,造价低,有利于环境保护,加快施工进度,减少湿作业。
使用轻集料混凝土砌块作为结构主体的围护墙,既较大的减轻了结构的自重,同时增大了使用的面积,又节约了土地资源及能源消耗;为了保证设计图样要求的各部位几何尺寸和强度,在局部及转角,墙垛两侧组砌黏土实心砖,附楼主楼主要采用黏土砖作为墙体的填充。
采用轻集料砌块,此种材料不但能使建筑外墙达到节能30%以上的目的,并且施工简便,保温、吸声、防潮、阻燃、综合造价低。
5.新型模板和脚手架应用技术
该工程楼板全部采用竹胶合板,梁柱及整体结构墙主要采用中型钢模,梁板模支撑全部采用碗扣脚手架加早拆头组成支撑体系。中型模板拼缝少,强度高,刚度好,周转次数多,组装灵活,保证了墙、柱混凝土的外观质量。采用碗扣式脚手架的支撑体系,减少了50%模板、木材的用量,创造效益也利于调整梁板的标高。由于采用碗扣式脚手架,将技术劳动转化为简单劳动,提高效率将近1 倍。
该工程采用落地式双排外脚手架,使用钢管扣件搭设。由于架体的高度为80m,底部至42m 高度立杆采用双杆,自建筑物六层(26.4m 处), 沿建筑东、西、北三侧向内退台,相应的三侧的脚手架也随之退台。在每层结构混凝土边梁上预埋钢管与架体拉结,其单个拉结点的所占面积不大于24m2,增强架体的稳定性。
6.新型建筑防水和U-PVC 管材应用技术地下室防水:
该工程地下室防水标准为二级,两道设防。其中一道为钢筋混凝土自防水,抗渗标号为S8。并采用 “澳克-D 型刚性聚合物防水砂浆”作为防水附加层,对地下室迎水墙进行防水处理,即外防水。
澳克-D 型防水砂浆是一种低收缩、具有抗渗防腐功能的刚性防水砂浆,该聚合物水泥砂浆结构致密,粘接力强,抗渗水、抗酸碱、抗裂腐蚀功能优异。
屋面防水:
该工程屋面由十六个小屋面组成,分为上人屋面及非上人屋面两种。屋面工程为二级防水,耐用年限要求十五年。采用三元乙丙防水卷材。三元乙丙防水卷材耐老化性能好,使用寿命长;拉伸强度高,伸长率大,对基层伸缩与开裂变形的适应性强,便于保证防水工程质量;耐高低温性能好,能在严寒和酷暑的环境中长期使用,耐候性能优良。本工程屋面三元乙丙防水卷材应用面积2445m2。
卫生间防水:
本工程卫生间防水采用聚合物刚性防水砂浆。聚合物刚性防水砂浆是一种低收缩,具有抗渗防腐功能的防水砂浆,砂浆为高强度等级水泥、膨胀剂、超塑化剂、超微粉和精选级配骨料、聚合物乳液的双组份砂浆,砂浆和易性极佳,具有高粘结强度、高抗渗、耐腐蚀等多项优点。采用聚合物防水砂浆,提高了工程防水的耐久性,而且不会给后续施工造成困难,并可减短施工周期,操作简单,砂浆面不易开裂。
本工程采用的新型塑料管材主要是给水系统采用的PP-R 管材和排水系统采用的UPVC 管材,PPR 管主要使用在生活给水系统、饮用水系统。管径φ15~φ70,UPVC 管主要使用在生活排水系统,雨水系统。管径由φ50~φ150上述新型管材的应用提高了功效,减少了成本的支出,施工过程便于管理,工程质量有了大幅度的提高,明管从观感上更美观,与装修配合更和谐。
7. 钢结构技术的应用
本工程大法庭屋顶采用钢结构技术,网架形式为正放四角锥网架。采用网架屋面设计代替了传统的井字梁,屋面结构应用于大跨度的空间结构,不仅节约了大量空间,还增加了整个屋面的整体性。
新技术应用创新情况
1.外檐干挂石材技术
本工程建筑外檐采用干挂石材饰面,面积14450m2。石材饰面为大白花花岗石,厚度为3cm。石材面板的安装全部为干挂施工,主次龙骨与混凝土结构通过预埋件连接,主次龙骨连接采用焊接,龙骨与石材采用T 型挂件连接并在接触面注入干挂专用胶,最后在石材的缝隙内填充泡沫条并注入耐候胶。为解决通风问题,部分石材面板做成了百叶。施工过程中制定了一整套质量保证措施,为同类工程的施工积累了丰富的经验。
2.后浇带留置新工艺
本工程主楼基础形式为桩-承台基础,地下车库为浮筏基础,两部分基础间沿横向设置后浇带,长62m,宽800mm,贯通基础。施工中,在底部加设钢筋混凝土底板,内配φ14 双向钢筋,采取底板钢筋下部距离加大的方法,使后浇带混凝土浇筑前容易清理,并配合制作新型专用后浇带模板。
3.圆柱轻型曲面模板应用工艺
本工程地下室及首层共享大厅共有圆形柱20 根,施工中采用六建公司自行研究开发的圆柱轻型曲面模板支护法,以1.2mm 薄型钢板与角钢组合拼接形成圆弧型,靠浇筑时混凝土的自重力将模板涨园饱满。模板高度为1m,可根据柱子高度任意调节,上下连接采用插入式,且重量轻,构造简单,施工操作方便,拼缝少。与采用普通模板相比节约成本,并达到了外观平整的清水混凝土效果。
4.构造柱支模技术改进
本工程构造柱支模采用了竹胶模板加预埋连接件支撑加固的新工艺。在构造柱边沿墙体的砌筑时,在砖缝中预留φ20 硬塑管,构造柱浇筑支模时将螺栓穿入,进行模板加固。其优点为构造柱表面平整,不损坏墙体的整体性。
5.屋面保温层出气孔新做法
本工程屋面排气孔的做法根据上人屋面及石材外挂女儿墙的特点进行了改进。在排气管出口处做了新的处理,将排气管出口暗置于石材与女儿墙之间缝隙处,减少了与防水层结点的做法,避免了对防水层的破坏,并且提高了出气管的抗老化能力,使上人屋面整体美观。
6.PVC 橡塑海绵在管道保温中的应用
本工程空调设备机房管道采用PVC 橡塑海面条进行保温,该材料体积小,重量轻,具有一定的抗拉强度、隔音、减震且寿命长,不易老化,导热系数小,密封性能优异。安装只需要黏上胶水,贴于设备表面即可,安装方便,施工周期短,,外观平整美观。
7.专威特胶的开发应用技术
本工程地下待质室的软包墙体及外檐窗节点处,采用专威特胶将纤维网与固定好的高密度聚苯板粘贴,并用专威特灰胶在表面涂抹增加强度便于刮腻子刷涂料,改进了软包墙体的做法并解决了外檐与内墙衔接处的保温问题。并且施工方便、快捷、整体性好,无裂缝、阴阳角顺直,解决了设计缺口,达到了使用要求。
8.意大利内隔墙壁板应用技术
本工程内隔墙选用新型意大利轻质隔板,其特点为自重轻,板密度大,安装牢固平整,不易变型,隔音效果好,且美观耐用与砌筑隔墙比较缩短了工期。减少湿作业,且不必再做二次装修及家具的配备,节约了大量的资金。
9.玻璃幕墙施工技术
本工程外檐采用了部分玻璃幕墙,使用面积为3324m2,玻璃幕墙安装高度达80.3m, 玻璃主要采用钢化玻璃和中空玻璃,外檐玻璃幕墙为建筑物外檐饰面整体效果起到了点睛之笔的作用。
各种管道、线路等非主体结构
质量保证措施
1.水、电安装工程施工
1.1.工程内容本工程主要包括:给排水系统,通风、空调系统,消火栓、自喷系统,照明系统,动力系统,防雷接地系统,及弱电、火灾报警系统。
1.2.水、电、通主要设备管道安装施工方法
本工程系统安装,既要保证各分部分项工程的质量,也应考虑各工种交叉及与外单位协调施工的问题。各系统均遵循先重点后一般的原则,灵活安排各专业施工顺序,科学合理的组织交叉平行流水施工,确保工程顺利进行。先抓总平面预埋管线的施工,尽量减少日后的挖掘、回填土方的大量工作。预埋工作全面展开,紧跟土建的施工进度,避免和减少日后剔凿。工种的安排是,先抓管道,后抓电气,其中管道工程工作量大,工艺要求高,故施工的重点应以水系统为主。
(1)给水系统室内生活给水管采用PPR 给水管热熔及粘接以下介绍其施工工艺:
PPR 管道在安装施工前,应具备下列条件:
1)施工图样及其他技术文件齐全,且已进行图样技术交底,满足施工要求;2)施工方案、施工技术、材料机具供应等能保证正常施工;
3)工人员应经过建筑给水聚丙烯(PPR)管道安装的技术培训;
4)提供的管材和管件应符合设计规定,并附有产品书明书和质量合格证书。5)不得使用有损坏迹象的材料,如发现管道质量有异常,应在使用前进行技术签定或复检。
6)管道系统安装程中的开口处应及时封堵。
7)施工安装时应复核压力等级和使用场合。管道标记应面向外侧,处于显眼位置。管道敷设安装:
1)管道暗敷在地坪面层内,应按设计图样位置进行。如现场施工有更改,应有图示记录。
2)管道安装时,不得有轴向扭曲,穿墙或穿楼板时,不宜强制校正给水聚丙烯管与其他金属管道平行敷设时应有一定的保护距离,净距离不宜小于100mm, 且聚丙烯管宜在金属管道的内侧。
3)管道穿越楼板时,应设置钢套管,套管高出地面50mm, 并有防水措施。
4)直埋在地坪面层以及墙体内的管道,应在封蔽前做好试压和隐蔽工程的验收记录工作。
5)管道出地坪处应设置护管,其高度应高出地坪100mm。
6)调直的方法只能用冷调,且用于管径小弯曲不大的情况。调直方法可用手将管子
捋顺捋直。也可用胶锤敲击弯曲处,直到敲平为止。且锤击处宜垫胶质板,以免将管子打扁。
7) 管道的工作压力不大于0.6MPa。与之配套的管件必须能承受工作压力,杜绝渗漏并具有可靠的严密性。管道连接:1)同种材质的给水聚丙烯管及管配件之间,应采用热熔连接,安装应使专用热熔工具。
2)热熔连接应按下列步骤进行:
热熔工具接通电源,到达工作温度指示灯亮后方能开始操作;根据所需尺寸丈量合适长度的管材进行切割,必须使端面垂直于管轴线,管材切割一般使用管子剪或管道切割机,必要时可使用锋利的钢锯,但切割后管材断面应去除毛边和毛刺;
管材与管件连接端面必须清洁、干燥、无油;用卡尺和合适的笔在管端测量并标绘出热熔深度。
3)热熔弯头或三通时,按设计图样要求,应注意其方向,在管件和管材的直线方向上,用辅助标志出其位置;
4)热熔连接前,无旋转地把管端导入加热套内,插入到所标志的深度,同时无旋转地把管件推到加热头上,达到规定标志处;
5)达到加热时间后,立即把管材与管件从加热套与加热头上同时取下,迅速无旋转地直线均匀插入到所标深度,使接头处形成均匀凸缘。
试压:
1)冷水管试验压力,应为管道系统工作压力的1.5 倍,但不得小于1.0MPa;
2)管道水压试验应符合下列规定:热熔接管道,水压试验时间应在连接完成24h 后进行;水压试验之前,管道应固定,接头须明露;管道缓慢注水并排出管道内空气等注满水后再进行水密性检查;加压宜用手动泵,缓慢升压,时间不小于10min, 测定仪器的压力精度不应低于
0.01MPa;
至规定试验压力(30min 内,允许两次补压,升至试验压力),稳压1h,测试压力降不超过0.06MPa 为强度试验合格;
在工作压力的1.15 倍状态下,稳压2h,压力降不得超过0.03MPa,同时各连接处不得渗漏,为严密性试验合格;
强度试验和严密性试验均合格时,表示管道试压合格。
管道系统冲洗:
管道系统的冲洗在管道试压合格后、调试运行前进行。冲洗前将系统中流量孔板、过滤等装置拆除,冲洗水质合格后重新装好,冲洗完的水有排放去向,不损坏其他成品,冲洗压力P=0.3MPa。
(2)排水系统(及雨水系统)
本工程排水系统分为地上和地下两个部分,±0.000 以下部分采用铸铁排水管,石棉水泥捻口;泵排水部分的排水管采用内外涂塑钢管,丝口连接;室内重力流排水管道±0.000 以上部分采用白色内螺旋PVC-U 塑料排水管粘接连接。
1)配合预留预埋
严格按图样配合土建施工,预留孔洞,预埋件的位置及标高,确保准确无误。
管道穿墙时预设套管,其尺寸比穿过管道大1~2 号,其两端与饰面平齐。安装前先进行防锈处理,然后预制底漆,待交工前按统一色泽规定刷面漆。
2)支、吊架制作安装
安装管道所用的支、吊、托架必须统一加工制作,符合图样和规范要求。
安装支、吊架的位置、标高准确,间距合理。执行有关
标准图集(98S10)规定进行安装。
安装托、吊干管要先搭设架子,将托架按设计坡度裁好吊卡。量准吊棍尺寸,将预制
好的管道托、吊牢固。安装管道所用的支、吊、托架必须统一加工制作,符合图样和规范要求。与管道之间应采用塑料带或橡胶等软物隔垫。
UPVC 安装管道所用的支、吊、托架必须统一加工制作,符合图样和规范要求。安
装管时采用金属管卡或吊架时,金属管卡与管道之间应采用塑料带或橡胶等软物隔垫。3)管道连接承插连接:排水铸铁管采用石棉水泥捻口连接,UPVC 管采用承插粘接。
闭水试验: 闭水试验前将各预留口堵严,在系统最高点留出灌水口。由灌水口将水灌满后,按设计或规范的要求,对管道系统的管材、管件进行检查。如
有渗漏及时修理,并重新试验,直到符合要求。
(3)消火栓、自喷系统本系统采用镀锌钢管螺纹或法兰连接。配合预留预埋: 1)严格按照图样配合土建施工,预留孔洞、预埋件的位置及标高在土建钢结构施工
前进行复验,确保准确无误。穿楼板、梁的孔洞应防止临时套管移位。
2)管道穿楼板及墙时预下套管,应考虑保温层厚度后确定。安装在楼板内的套管,上端高于初装修地面60~70mm,下端与楼板平齐;安装在墙体内的套管,其两端与饰面平齐,管道安装前先进行防锈处理,然后预制底漆,待交工前按统一色泽规定刷面漆。
支、吊架制作安装: 安装管道所用的支、吊、托架统一加工制作,符合图样和规范要求及相关标准执行。管道连接: 管道加工后及支、吊架材料进入现场后,集中按设计和规范进行防腐处理,然后预制
安装。 1)进行套丝,将已套好螺纹的管材,配装管件。 2)安装前清扫管膛,螺纹连接管道抹上铅油缠好麻,用管钳按编号依次上紧,螺纹
外露2-3 扣,安装完后找直、找正,复核甩口位置、方向及变径无误。 3)除麻头,所有管口加好临时丝堵。管道试验: 1)水系统吹扫试验水压试验前,用空压机对管道及设备进行吹扫,管道吹扫时防止污物进入设备,以放
在出口处的干净白铁板无污物即为合格。吹扫循环冷却管道,先将空压机接至与分水器连接的管道上,关闭设备阀门后开始吹扫,从管道末端出口排放污物;然后再连接集水器,从管道末端出口排放污物。每开一次阀门排放一次污物,直到吹扫干净为止。
2)水压试验在干管铺设完成或隐蔽部位的管道安装完毕后进行单项试压,在全部干、立支管安装完毕后进行系统试压。管道系统试压分区、分段进行。试压后将管道内水放净,请有关人员验收并填写试验报告。
水压试验前用空压机对管道及设备进行吹扫,压力不大于1MPa ,管道吹扫应防止污物进入设备,以放在出口处的干净白铁板无污物即为合格。
连接试压泵,在首层或室外管道入口处。
试压前将预留口堵严,关闭入口总阀门和所有泄水阀门及低处防风阀门,打开各分路及主管阀门和系统最高处的放风阀门。
打开水源阀门,往系统内充水,满水后放净冷风并将阀门关闭。
检查全部系统,如有漏水应做好标记,并进行修理,修好后再充满水进行加压,而后复查, 如管道不渗漏,并持续到规定时间,压力降在允许范围内,通知有关单位验收并办理验收记录。
(4) 采暖系统: 1)严格按照图样配合土建施工,预留孔洞、预埋件的位置及标高在土建钢结构施工前进行复验,确保准确无误。穿楼板、梁的孔洞应防止临时套管移位。
2)管道穿楼板及墙时预下套管,应考虑保温层厚度后确定。安装在楼板内的套管,上端高于初装修地面60~70mm,下端与楼板平齐;安装在墙体内的套管,其两端与饰面平齐,管道安装前先进行防锈处理,然后预制底漆,待交工前按统一色泽规定刷面漆。
(5)水泵1)工艺流程基础复验→设备开箱检查→泵就位→泵找正找平→二次灌浆→精平和清洗加油→进
出水管安装→泵试运转。
2)作业条件
土建施工的预埋件位置、尺寸、数量符合设计要求,设备的基础位置、尺寸、外观符
合设计和规范要求。3)操作工艺泵就位前复查基础的位置、尺寸、标高及螺栓孔位置、混凝土强度等。地脚螺栓距孔边大于15mm,螺栓保持垂直;找正找平用垫铁调整安装精度。
灌浆宜用细石混凝土,其强度等级比基础混凝土高一级,灌浆捣固密实。扩紧地脚螺栓在灌注混凝土达到强度后进行,扩紧螺栓后,螺母与垫圈与设备底座间的接触均应良好,露出螺母1.5~3 牙。
管道与泵法兰之间的连接为无应力连接,即法兰平行度好,管道重量不支撑在泵体上;泵吸水管的连接采用上平下斜的偏心异径管,从吸水喇叭口接向泵的水平管有上升坡度,使吸水管内不积存空气,利于吸水;泵出水管上安装异径管、止回阀、闸阀和压力表。
所有管道系统保持畅通;电气按钮基本灵活正常,电机旋转方向符合泵的转向要求;各紧固连接部件不松动,安全保护装置灵敏可靠;加注润滑油的规格、质量、数量符合设备技术文件规定;泵启动前,入口阀全开,出口阀全闭,待启动后慢慢打开出口阀;泵在设计负荷下连续运转不小于2h,滚动轴承温度不高于75℃,滑动轴承温度不高于70℃。
(6)卫生洁具
1)工艺流程
安装准备→卫生洁具及配件检验→卫生洁具安装→卫生洁具配。
件预装→卫生洁具稳装→卫生洁具与墙、地缝隙处理→卫生洁具外观检查→通水试验。 2)作业条件所有与卫生洁具连接的管道、压力闭水试验已完毕,并已办好隐预检手续。3)操作工艺卫生洁具的型号、规格、质量符合设计要求。卫生洁具排水的出口与排水管连接处严密不漏。卫生洁具的排水管径和最小坡度符合设计要求和施工规范规定。
(7)散热器1)工艺流程编制组片统计表→散热器组对→外拉条预制、安装→散热器安装→散热器冷风门安装
→支管安装→系统试压→刷漆。2)作业条件
采暖干管、立管安装完毕,接往各散热器的支管预留管口的位置正确,标高符合要求。3)操作工艺散热器的型号、规格、质量符合设计要求。散热器安装稳固、标高位置一致。散热器落地安装腿片数量准确,分布均匀。
(8)通风、空调系统:风道安装的准备工作: 1)风管外观不准有变形、扭曲、开裂、凹陷等缺陷。2)安装的阀体、消声器、罩体、风口等部件检查调节装置灵活,消声片、油漆层无
损伤。3)安装使用的螺栓、螺母、垫圈、垫料等材料符合产品质量和设计文件规定。4)机具准备齐全。风道安装的作业条件:1)送排风系统和空调系统风管的安装,应在建筑物围护结构施工完,安装部位的障
碍物已清理,地面无杂物的条件下进行。2)检查现场结构预留孔洞的位置,尺寸符合图样要求,无遗漏现象,预留的孔洞应
比风管实际截面每边尺寸大100mm。3)作业地点要有相应的辅助设施,如梯子、架子、及电源等。4)风管安装应按设计图样及大样图给定的标高、位置,并有施工员的技术质量、安
全交底。风道附件安装:1)风口及阀门安装:风口及阀门安装位置、标高准确,安装前把风口及阀门擦净。风口及阀门安装与装修面贴实无缝隙,横平竖直,不扭歪,螺钉宜在风口及阀门侧面。三个以上风口及阀门安装整齐协调,方位一致,风口排列在同一轴线上。风口及阀门安装完无变形,开焊,开关灵活。风机安装: 1)工艺流程:基础验收→开箱检查→搬运→清洗→安装、找平、找正→试运转→检
查验收。2)准备工作:通风风机的安装所使用的主要材料,成品或半成品应有出厂合格证或质量鉴定文件。
风机开箱检查,皮带轮、皮带,电机的地脚螺栓是否齐备,符合设计要求,有无缺损等情况。风机轴承清洗,充填润滑剂其黏度应符合设计要求。3)作业条件:施工现场环境,除机房内的装修和地面未抹完外,基本具备安装条件。风机安装应按照设计要求进行,并有施工员的技术交底。4)操作工艺:通风机的机轴必需保持水平度,风机与电机用联轴节连接时,两轴中心线应在同一直
线上。通风机与电动机安装皮带轮时,操作者紧密配合,防止将手砰伤。挂皮带时不要把手指入皮带轮内,防止发生事故。通风机出口的接出风管应顺叶轮旋转方向。
(9)电气系统配合预留预埋 1)严格按照设计图样配合总包单位施工,预留孔洞、预埋件的位置及标高在土建施工前进行复检,确保准确无误。穿楼板的孔洞应防止套管移位。 2)电气专业应在分包单位抹灰前按照设计图样及有关规范要求将电气专业有关预埋
管绑在钢结构上,分包单位抹灰时应有专人配合。 3)所有操作人员应持证上岗,操作后由主管工长核对无误后方可进行下一道工序。配管:
胶粘接KBG 管的电线管路暗敷设时,应沿最近的路线敷设,且应减少弯曲。根据施工图样铺设管路,确定各种盒、箱位置并固定。套接扣式薄壁导管电线管路弯曲处敷设,不应有折皱、凹陷、裂纹等缺陷。其管材弯
扁程度不应大于管径外径的10%。严格执行规范。导线连接:导线按型号、规格进行分类及分色。穿带线检查并清扫,使之畅通。穿线前,金属配管的管口均加专用护口。当管路较长或转弯较多时,在穿线的同时往
管内吹入适量的滑石粉;两人穿线时,应配合协调一送一拉;穿线后导线有一定长度。4mm2
以下导线采用压线帽连接。导线包扎后呈枣核形。选择导线要根据标准,相线、零线及保护地线的颜色应加以区分,浅蓝色线做零线,
| 黄绿双色线做保护地线。 | |
| 桥架安装敷设: | |
| ┌→预埋吊杆支架┐ | |
| 桥架敷设:弹线定位→┼ | ┼→螺栓固定支架→桥架 |
| └→膨胀螺栓安装┘ | |
| 安装→保护接地线→质量验收 | |
电缆敷设:检查电缆及绝缘摇测→电缆敷设→挂标志牌→摇测电缆绝缘、检验潮气→
电缆终端头安装→试运行验收。操作工艺:桥架固定牢固可靠,横平竖直,布置合理,盖板无翘角,接口严密整齐,转角、丁字
连接、转弯连接正确严密,桥架内外无污染。桥架穿过梁、墙、楼板等处时,桥架不应被抹死在建筑物上,桥架内用连接板搭接,
不需固定。室内沿桥架敷设电缆,在管道工程基本完毕后进行,防止其他专业施工时损伤电缆。电缆敷设,排列整齐,标志牌设置正确。电缆施工前将电缆事先排列好,画出排列图
表,按照图表进行施工。电缆敷设时,敷设一根,整理一根,卡固一根。配电箱、灯具、开关、插座安装:配电箱安装:根据箱体高度搭支架,按顺序将箱放在其位置上,箱体就位、找正找平,
箱体之间用镀锌螺栓连接。箱体安装前检查:箱内二次配线应有编号,字迹清晰,不易退色,全部配线压头紧密牢固, 不损伤线芯。多股导线压头使用压线端子,柜体内开关灵活,接触紧密。送电运行及验收:清理箱体,明确指挥人、监护人、操作人,填写试验报告,由供电部门送电验收交接。照明电路的绝缘电阻值不小于0.5Ω,动力线路的绝缘电阻值不小于1Ω。配电箱盘位置正确,部件齐全,箱体开孔合适,切口整齐。暗式配电箱箱盖紧贴墙面,
零线经汇流排(零线端子)连接,无绞接现象,PE 线安装明显牢固。成排灯具的中心线保持在同一条直线上,偏差不超出允许范围。开关、插座盒内干净,盖板端正严密并与墙面平,同一室内高差不大于5mm 。线路检查及绝缘摇测:导线连接后进行检查,符合要求后进行分路摇测并做好记录。
绝缘摇测选用500V、量程为0~500MΩ的兆欧表。
弱电系统:
消防栓控制、电话通讯、访客对讲、计算机网络终端及有线电视预留预埋安装本公司将严格按照《建筑与建筑群综合布线系统工程施工及验收规范》进行预留预埋施工,以确保该工程达到要求。
防雷接地系统:
利用建筑物柱内两根主筋(直径为φ12以上)做避雷引下线沿柱暗敷设至建筑物基础底板(地梁)及桩基,并与底板筋、梁及桩基内钢筋可靠焊接,且引下线在距室外地坪下
0.8 m处由此钢筋上焊出一根φ10的镀锌圆钢。此圆钢伸向室外低平距外墙间距不小于1m, 防雷引下线间距小于20m,建筑物底部地圈、梁内两根主筋沿建筑物外侧墙周边焊接,并与防雷引下线可靠焊接,利用扁钢使建筑物成为环形接地。
1.3.水、暖、电主要设备管道安装质量保证措施:
(1)层层落实各级的质量责任制,严格执行ISO9002 系列质量管理程序文件,建立具有实效的质量保证体系,制定奖惩分明的制度,做到责任明确,各负其责。
(2)施工现场实行质量“三检制”,操作班组自检、预检和工长的交接检;质检员定期对工程进行专检及评定;现场施工及作业人员必须虚心接受建设单位、监理及各级质检人员的监督,及时整改质量问题。
我公司三检制度:
为了有效地控制施工质量,针对该工程质量等级要求较高特点,施工质量执行三级检验制度:分项工程在施工一个部位后,由操作人进行自检;在自检合格的基础上,专业工长组织操作人进行检验;经检验合格后,由工长组织公司专职质量员和操作人进行检查核验,并由专职质量员对该部分工程进行核定等级。在检验过程中,如果出现质量缺陷或不能满足有关规范及标准要求时,由专职质量员以书面形式下达施工质量整改通知单,并协助工长制定整改措施。专职质检员根据整改通知单的整改部位和时间进行跟踪复检,直至满足等级要求。上道工序未检验或检验不符合要求时不得进行下道工序的施工。对隐蔽工程及分项工程的试验阶段,除实行三检制外现场由工长组织有专职质检员和监理参加验评。施焊人员必须持证上岗,所持证件的合格项目必须和操作部位相吻合,施焊检验合格后,在焊缝旁打印操作人的岗印。(检验依据标准)。
(3)实行专业工长负责制。负责组织现场施工、技术交底、质量检查、监督施工顺序、成品验收等,直至工程交付建设单位使用的全部工作。
(4)专业工长应认真规范的填写施工日志,作为工程可追溯依据。
(5)项目经理组织各专业工长做好提前准备,各专业工长按施工方案、施工图样、规范要求和工程具体情况,向班组作业人员进行方案交底。
(6)严格按图样施工,严守工艺操作规程。施工中的合理化建议,按设计管理程序上报,未经技术部门和设计部门审核同意,不能擅自变更和修改设计,严禁违章作业。
(7)严禁在墙、柱、板上随意开孔打洞,若因设计变更等原因必须打洞,要征得设计单位和建设单位工程监理同意,且要落实补强措施,隐蔽工程完工,及时会同建设单位、工程监理及质检员检查验收。
(8)项目经理定期组织工程质量检查,公司质检和技术管理部门组织有关人员不定期对工程施工质量进行监督检查。
(9)工程材料设备必须达到质量合格,且具有合格证或材质证书,施工现场材料人员负责进场材料、设备检查验收。
(10)施工中使用的计量器具,必须是年检有效期内的合格器具。
(11)安装工程中设置的仪表,安装前送检合格,并由有关方面提供保证。
2.室内外装修工程施工
本工程装修具体施工范围包括:内檐墙面抹灰、顶棚吊顶;外檐墙面干挂石材和外檐玻璃幕墙;花岗石石材楼地面、防滑地砖楼地面;屋面工程。
2.1.外檐装饰外檐设计采用干挂石材和铝塑板幕墙。
(1)花岗石干挂石材
施工前先将干挂花岗石石板的墙面、门窗套用大线坠从上至下找出垂直,高层建筑用经纬仪找垂直。同时考虑石材厚度及石材内皮距结构表面的间距,一般控制在6~8cm 为
宜。根据花岗石石板的高度用水准仪测定并标注在墙上,一般竖向板缝为6~10mm, 横向板缝隙为6~10mm。弹线要从外墙饰面中心向两侧及上下分格,误差要均开。花岗石石板安装前要在石板背面涂刷防腐剂。(1)埋件加工生产后,抽样进行拉拔实验,检验合格准许进场预埋。预埋前在模板

上根据定位轴线与主龙骨相对位置标出埋件位置,主体施工人员和外檐装饰技术人员共同检验,做好预埋工作并在浇筑混凝土时校验。
(2)确定安装基准线,按石材布置图、主体结构轴线、标高进行全面测量放线,使用经纬仪、水准仪、钢尺和线锤等仪器进行引测。测量放线时,天气应晴朗、干燥、无风
以保证测量精确度,从而检验埋件位置的准确与否,要求垂直钢线每3 层一个固定支点,水平钢线每7m 一个固定点。
(3)骨架安装,根据龙骨安装分格图进行放线,先点焊主龙骨,再点焊次龙骨,确认龙骨位置无误后,再进行满焊加固,满焊经过施工队检验100%合格,上报监理检查验收,验收合格后进行2 道防锈漆1 道银粉防腐处理。注意要点:1)焊接前钢材不能处于潮湿状态;
2)焊工需持证上岗; 3)主次龙骨尽量减少接头,接头不能在同一平面内; 4)严格控制龙骨垂直度和平整度; 5)焊接要求焊缝饱满,不得有捍瘤、咬边、凹坑等现象;
(4)石材加工防腐处理,为了减小石材表面与水和大气的接触,并减少污物附在石材上,保护石材的美观并延长使用寿命,石材加工打磨后,对石材进行防水防污处理,刷表面防护剂,运输过程中,石材分规格码放,层数不能过多,相邻两块间垫付柔性薄片,底部必须垫平,保证运输中不损坏,进场后对每块石材进行防腐剂处理,必须逐块刷匀,以避免出现色差。
(5)安装大理石、花岗石石板前先测量准确位置,然后再进行钻孔开槽,对于钢筋混凝土或砖墙面,先在石板的两端距孔中心80~100mm 处开槽钻孔,孔深20~25mm,而后在墙面相对于石板开槽钻孔的位置钻直径8~10mm 的孔,将不锈钢胀管螺栓一端插入孔中固定,另一端挂好锚固件。由于钢筋混凝土柱、梁配筋率高,钢筋面积较大,在有些部位很难钻孔开槽,在测量弹线时,要先在柱或梁面上躲开钢筋位置,准确标出钻孔位置,待钻孔及固定好胀管螺栓锚固件后,再在石板的相对位置钻孔开槽。石材切槽安装固定,在石材上下端使用云石机开槽,要求开槽位置对称深度一致,以利于安装时控制平整度和垂直度。石材安装采取自上而下的顺序安装,挂件下端为固定状态,挂件上端做为临设状态,石材下端槽内注入石材干挂专用胶并且插入销板,石材上端槽内注入石材专用胶,插入销板将其固定,石材的调整,在水平及高度的基准线做好的情况下,给予前后左右微调,石材底部垫标准缝块材,石缝垂直度、水平度和进出度调好后,紧固挂件螺栓,固定时不可将螺栓超负荷固定,与次龙骨和主龙骨连接的连接件上的连结方形螺母安装与龙骨垂直,且防滑槽与龙骨防滑槽连接紧密,从螺栓拧紧程度应用力矩扳手检验,达到30Nm 为合格。
(6)底层花岗石底层石板安装要根据固定在墙面上的不锈钢固定件位置进行安装。
安装时石板孔槽和锚固件固定销对位安置好,利用锚固件的长方形螺栓孔,调节石板的平整,用方尺找阴阳角方正,拉通线找石板上口平直,然后用锚固件将石板固定牢固,并用嵌固胶将锚固件填堵固定。先往下一行石板的插销孔内注入嵌固胶,擦净残余胶液后,将上行花岗石石板安装底板的操作方法就位。检查安装质量,符合设计及规范要求后进行固定。对于檐口等石板上边不易固定的部位,可用同样方法对石板的两侧边进行锚固。汇报
(7) 待全部花岗石石板挂贴完毕后,进行表面清洁和清除缝隙中的灰尘。石材嵌缝、清理,将注胶面清理干净,使用砂布处理,对特别脏污处使用溶剂清扫(甲苯、酒精等)。安装泡沫条做为耐候胶的支撑材料,在填充支撑材料时一定要深度适中,以保证密封材料的填充饱满,用直径8~10mm 的泡沫塑料条填板内侧,留5~6mm 深缝,在缝两侧的石板上,靠缝粘贴10~15mm 宽的塑料胶带,以防打胶嵌缝时污染板面。然后用打胶枪填满封胶,若密封胶污染板面,必须立即擦净,最后揭掉胶带,。为防止填充密封时污染石材,使密封材料连接处两侧的边线清晰的显示出来,在接缝两侧贴胶带保护,要求胶带当天贴上密封后当天揭下,填充密封材料时使用喷嘴与接缝宽度相一致的手动胶枪。将喷嘴的前端插入交叉接缝处与拐角处的连接处,向其内部注入密封胶,要注意的是挤压密封胶时应防止气泡进入交叉部位,在填充作业结束后至未完全凝固前,不要用手和别的东西触及密封胶表面。
2.2 玻璃幕墙工程施工方案
(1)施工准备:
现场勘测:工程技术人员要依据设计图样,对主体工程的柱高、水平、周边长度进行必要的实地测量和校对,对主体各部位的情况心中有数以确定实际的加工、安装尺寸,以确定实施方法。
玻璃幕墙与主体结构连接的预埋件应在主体结构施工时按设计要求埋设,埋件应牢固,位置准确,埋件的标高偏差不应大于10mm,埋件位置与设计位置的偏差不应大于20mm。
构件安装前均应进行检验与校正,构件应平直、规方,不得有变形和刮痕不合格的构件不得安装。心中有数:施工人员要认真进行生产前的培训,使每一个人都熟悉图样和加工工艺,弄清上下工序的关系,做到本道工序是上道工序的检验员,确保加工质量。
(2)材料的购进
必须依据设计图样及规范要求组织购进材料,玻璃幕墙材料要符合国家现行产品标准的规定,要检查出厂合格证,结构钢材要有试验报告。玻璃幕墙材料要选用耐气候的材料。金属材料和零附件除不锈钢外,钢材要进行表面
热浸镀锌处理。铝合金要进行表面阳极氧化处理。玻璃幕墙材料要采用不燃性材料或难燃烧性材料。结构硅酮密封胶要有与接触材料相容性试验报告,并要有保险年限的质量证书。耐侯硅酮密封胶必须为中性。结构硅酮密封胶要在有效期内使用,结构硅酮密封胶的试验报告中,提供的必须是H
型试件的粘结拉伸强度。
(3)加工生产对车间加工的原材料还要进行检验,确定符合设计和规格要求的再进行加工制作。铝框架加工:依据最终确定的加工尺寸进行加工,其长度偏差小于等于1mm 。横料托角的安装尺寸
误差小于等于0.5mm,且安装牢固无松动现象。料端头不应有加工变形,毛刺不应大于0.2mm。位的允许偏差为±0.5mm,孔距的允许偏差为±0.5mm,累计偏差不应大于±1.0mm。铆钉的通孔尺寸偏差应符合现行国家标准《铆钉用通孔》GB152.1 的规定。
(4)玻璃加工:玻璃的品种、规格与色彩应与设计相符,整幅幕墙玻璃的色泽应均匀不应有析碱、
发霉和镀膜脱落等现象。璃裁割后必须倒梭、倒角。反射玻璃安装要将镀膜面朝向室内,非镀膜面朝向室外。依据实际测量尺寸,加工玻璃附栏和玻璃附框的加工要牢固无松动,四角对缝为八字
形,且对缝严密。
玻璃外型尺寸偏差小于等于1mm ,对角线偏差小于等于1mm 。玻璃四边要进行打磨处理。玻璃和附框的粘接部位要进行清理,双面胶条要粘实粘齐。结构胶要打饱满,不许有气泡和外溢,要在充分的湿度条件下固化。
(4)安装
1)玻璃幕墙立柱的安装:
应将立柱先与连接件连接,然后连接件再与主体预埋件连接,并应进行调整和固定。
立柱安装标高偏差不应大于3mm,轴线前后偏差不应大于2mm,左右偏差不应大于3mm 。临两根立柱安装标高偏差不应大于3mm ,同层立柱的最大标高偏差不应大于5mm,
相临两根立柱的距离偏差不应大于2mm 。2)玻璃幕墙横梁的安装:应将横梁两端的连接件及弹性胶垫安装在立柱的预定位置,并应安装牢固,其接缝应
严密。临两跟横梁的水平标高偏差不应大于1mm 。同层标高偏差:当幅幕墙宽度小于等于35m 时,不应大于5mm ;当幅幕墙宽度大于35m 时,不应大于7mm 。一层的横梁安装应由下向上进行。当安装完一层高度时,应进行检查、调整、校正、
固定,使其符合质量要求。3)玻璃幕墙其他主要附件的安装:有热工要求的幕墙,保温部分宜从内向外安装。当采用内衬板时,四周应套装弹性橡
胶密封条,内衬板与构件接缝应严密,内衬板就位后,应进行密封处理。定防火保温材料应锚钉牢固,防火加1.5 金属板达到层间封闭,防火保温层应平整,拼接处不应留缝隙。璃幕墙立柱安装就位,调整后应及时紧固。玻璃幕墙安装的临时螺栓等在构件安装、就位、调整、紧固后应及时拆除。现场焊接或高强螺栓紧固的构件固定后,应及时进行防锈处理。玻璃幕墙中与铝合金
接触的螺栓及金属配件应采用不锈钢或轻金属件。不同金属的接触面应采用垫片隔离处理。4)玻璃幕墙玻璃的安装:玻璃安装前应将表面尘土和污物擦试干净。热反射玻璃安装应将镀膜面朝向室内。璃与构件不得直接接触。玻璃四周与构件凹槽底应保持一定空隙,每块玻璃下部应设
不少于两块弹性定位垫块:垫块的宽度与槽口宽度应相同,长度不应小于100mm; 玻璃两边嵌入量及空隙应符合设计要求。
玻璃四周橡胶条应按规定型号选用,镶嵌应平整。橡胶条长度宜比边框内槽口长1.5% —2%, 其断口应留在四角;斜面断开后应拼成预定的设计角度,并应用粘接剂粘接牢固后嵌入槽内。
玻璃幕墙四周与主体结构之间的缝隙,应采用防火的保温材料填塞;内外表面应采用密封胶连续封闭,接缝应严密不漏火。铝合金装饰压板应符合设计要求,表面应平整,色彩应一致,不得有肉眼可见的变形、
波纹和凹凸不平,接缝应均匀严密。玻璃幕墙施工过程中应分层进行抗雨及渗透性能检查。耐侯硅酮密封胶的施工要求:耐侯硅酮密封胶的施工厚度应大于3.5mm, 施工宽度不应小于施工厚度的两倍;较深
的密封槽口底部应采用聚乙烯发泡材料填塞。耐侯硅酮密封胶在接缝内应形成相对两面粘接,不得三面粘接。安装完毕后要进行卫生清洁工作,并做好成品保护工作。
2.3.内墙面抹灰
(1)窗口专威特工艺施工方法:窗口两侧施工采用材料为:聚苯板、纤维网、专威特胶、普通水泥,具体做法如下:将节点处清理干净,将专威特灰胶配好【半桶胶、一袋水泥(普灰)】均匀的搅拌好,抹在柱子上,抹灰胶时保证平整度。将纤维网粘贴在混凝土柱子底一侧,待粘贴牢固后,将聚苯板的一面均匀的用胶灰找好平整点。(根据节点的缝隙裁好聚苯板)粘贴至节点缝隙处并压实,待专威特灰胶达到强度时,将聚苯板搓平,阳角顺直。将粘贴好的纤维网包在聚苯板的平面上,纤维网必须将聚苯板与柱子、墙面紧密的包牢固,最后用专威特灰胶在已包的柱子、墙及聚苯板上抹灰胶,待强度上来后即可刮腻子刷涂料。
(2)内墙面在抹灰前将基层灰尘、污垢等清理干净,浇水湿润后对混凝土墙面进行
凿毛处理,砌块墙面涂刷界面处理剂。
1)施工工艺流程:清理基层→找规矩→抹结合层→抹底子灰→罩面→养护。
2)材料的控制:对进场的水泥、砂子、石膏等材料要有材质合格证及复试报告,检
查是否合格,并挂牌指示。
3)过程控制:抹灰基层必须清理干净,补齐缺陷,抹灰前一天浇水湿润。基层检查
合格后做毛化处理。
4)质量检查:现场质量检查执行三捡制,对抹灰工序的保证项目、基本项目严格按照有关规范要求进行检查。检测项目:表面光滑、密实,不显接槎,线条顺直清晰。实测项目:立面垂直、表面平整、阴阳角垂直方正。
5)注意事项:混凝土基层部分剔平,凿毛均匀;每层抹灰前均要对基底浇水湿润,做毛化处理。严格控制每层抹灰的厚度,以7~10mm 为宜,抹灰超厚的部位应加设钢板网片。控制砂浆配台比,砂子含泥量不超过3%,同一施工面使用一致的配合比砂浆。罩面后待砂浆干硬后及时养护,并依据施工方案中成品保护措施执行。水泥砂浆墙面抹灰:抹1∶3 水泥砂浆结合层一道,随抹随扫出纹路,待干硬后浇水润湿,1∶3 水泥砂浆打底,待干硬后,检查垂直、平整及阴阳角方正,抹1∶2 水泥砂浆罩面抹实。质量标准: 各抹灰层之间,抹灰层与基层之间粘结牢固,无空鼓、开裂等缺陷。表面光滑、洁净、密实无抹纹,明显接槎。依据市优标准要求立面垂直、表面平整、阴阳角垂直方正,上口平直等各参数均控制±2mm 范围内,达到规范中要求高级抹灰质量标准。
2.4 瓷砖墙面
清理基层将墙面上残留的废余砂浆、灰尘、污垢等清理干净,并浇水润湿,吊垂直、找规矩、贴灰饼冲筋,分层分遍抹防水砂浆底灰,吊垂直、刮平,打底灰要随抹随扫毛,24h 后浇水养护,待基层灰六至七成干时,即可按要求排砖,并在底层砂浆上弹出垂直与水平控制线,一般竖线间距为1m 左右,横线根据面砖规格尺寸每5~10 块弹一水平控制线。贴标准点以控制面砖表面平整。镶贴前,把挑出同一规格的瓷砖方入净水中浸泡2h 以上,取出晾干表面待用,开始镶贴时,一般由阳角开始,自下而上进行镶贴,尽量使不成整块的面砖留在阴角,门口或阳角出以及长墙,设间隔2m 左右均应先竖向贴一排砖,作为墙面垂直、平整和砖面的标准,然后按此标准向两侧挂线镶贴,镶贴的瓷砖如果亏灰,应及时取下瓷砖添灰重贴。镶贴完毕后自检有无空鼓、不平、不直等现象,发现问题及时返工修补,然后用清水将瓷砖表面冲洗干净,并用棉丝擦净,用白水泥浆涂缝,然后用布将缝子的素浆擦均匀,砖面擦净。
质量标准:
瓷砖镶贴必须牢固,无歪斜、缺楞、掉角和裂缝等缺陷。
表面平整、洁净、颜色一致,无变色、起碱、污痕和显著的光泽受损处,无空鼓现
象。接缝添嵌密实、平直、宽窄一致颜色一致,阴阳角处压向正确,非整砖的使用部位适宜。
2.5 室内墙面刷浆将墙面的浮土等清扫干净,刮腻子之前先刷一道乳胶水,以增强腻子与基层表面的粘结性。刮腻子时要横抹竖起,填实填平,腻子干燥后,打砂纸磨平,并把浮土扫净。
刷浆顺序先顶棚后墙面,先上后下顺序进行,滚子移动速度要平稳,均匀一致,门窗周围采用排笔涂刷,整个墙面刷浆两遍交活。质量标准:
无掉粉、起皮、漏刷和透底。
我公司在近年来对顶棚抹灰工艺进行了改进,取得了良好的效果,具体是主体施工时,顶板模板选用竹胶模,混凝土达清水混凝土的要求,表面平整光滑,取消顶棚抹灰层,对于顶棚边角、接缝等处采取局部修补衬平后,直接刮内檐腻子。
有顶棚要求的房间,吊顶采用石膏板吊顶,施工前,根据楼层+50 线标出顶棚设计标高,在墙上划出龙骨分档位置线。依次安装大龙骨吊杆、大龙骨、中龙骨及小龙骨,最后安装石膏板。
3.楼地面工程本工程楼地面设计为花岗石和防滑地砖楼地面。
(1)花岗石石材和地砖楼地面
将基层清理干净,用钢丝刷清刷一遍,在施工前一天将基层洒水湿润,同时地砖在铺设前一天浸水,阴干备用。先从房间四周找方,取中拉十字线,然后拉控制线,镶铺分段标准块,作为标筋。
铺设时,在基层上刷素水泥浆结合层一道,然后首层抹30 厚,二层以上抹20 厚1∶4 干硬性水泥砂浆结合层,刮大杠、拍实,用抹子找平,撒素水泥面(洒适量清水)后紧跟铺设地砖,对好横纵缝,用木锤轻击地砖,使砂浆挤满,并达到铺设标高。试铺合适后,将地砖取下在垫层上浇水泥浆结合层,再镶铺地砖。镶铺时地砖要同时落下,用木锤轻击,随时用水平尺及直尺找直找平。铺好一块后,依次退着镶铺。
在铺砌后1~2 昼夜进行检查有无空鼓、断裂现象,以便及时修理更换。经检验合格后,用水泥浆进行灌浆擦缝,随即将地面擦干净,覆盖保护。
(2)水泥砂浆楼地面
1) 地面抹灰前,先浇筑60 厚C20 混凝土,振捣密实。上部做法与楼面做法相同。楼面抹灰前,先在楼板上均匀洒水,再一道撒水泥面涂抹形成均匀的水泥浆结合层。根据+50 水平线,在地面四周做灰饼、冲筋,紧跟着铺装30 厚1∶2 水泥砂浆,用木抹子赶铺拍实,木杠按贴灰饼和冲筋标高刮平,木抹子搓平,待返水后略撒1∶1 干水泥砂子面,吸水后用铁抹子溜平,此操作要在水泥砂浆初凝前完成。
在压平头遍之后,人踩上去有脚印但不下陷时,即可用电铁抹子进行第二遍压光,要求不漏压,平而出光。在水泥砂浆终凝前人踩上去稍有脚印,抹子抹上去不再有抹纹时,用电铁抹子进行第三遍压光交活。地面压光交活后24h,铺居末撒水养护并保持湿润,养护时间不少于15d,养护期间不准上压重物和碰撞。2)水泥砂浆地面:
清理基层后,刷素水泥浆结合层,冲筋贴灰饼,铺水泥砂浆压头遍,水泥砂浆凝结,人踩上去有脚印但不下陷时,用铁抹子压第二遍,水泥砂浆终凝前,进行第三遍压光,达到交活的程度。地面压光交活后24h,铺锯末洒水养护并保持湿润,养护时间不少于15d。
质量标准:面层与基层的结合必须牢固,无空鼓、裂纹等缺陷。表面光滑,无磨纹砂眼;石粒密实,显露均匀,图案符合设计,颜色一致,不混色;
分格条牢固,清晰顺直。
防滑地砖地面:将基层清理干净,做灰饼、冲筋,有泛水要求的房间,冲筋应朝地漏方向呈放射状。在清理好的地面上均匀洒水,然后刮一道素水泥浆结合层,紧跟着抹水泥砂浆找平层,干硬后,涂聚氨酯防水层,要求涂刷均匀,厚度符合规范要求,无漏刷,确保无渗漏。1∶3 水泥砂浆保护层,地砖铺设方法与花岗石板块镶贴方法相同。
质量标准:面层与基层的结合必须牢固,无空鼓。表面洁净,图案清晰,色泽一致,接缝均匀,周边顺直,无裂纹、掉角和缺楞现象。地漏坡度符合设计要求,不倒泛水,无积水,与地漏结合处严密牢固,无渗漏。
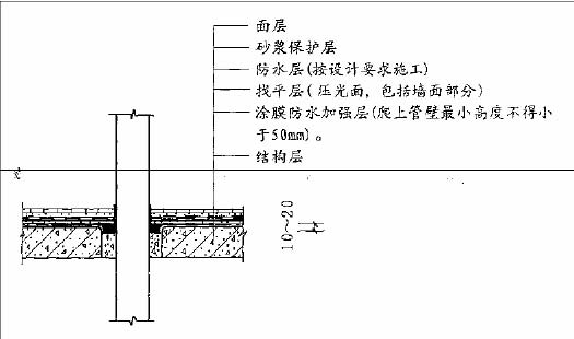
(3)用水房间地面防水施工
1)本工程卫生间防水采用聚合物防水砂浆。卫生间楼面基层必须清理干净,先抹1∶3 水泥砂浆找平,将基层表面的松动物、油脂、涂料、封闭膜及其他污染物清除干净、光滑、表面应凿毛,用水充分润湿新旧界面,但在抹灰前不得留有明水。
2)砂浆搅拌:砂浆采用砂浆机搅拌,搅拌应在乳液及所需大部分水混匀后进行,砂浆乳液与水的比例(重量)为1∶0.0628∶0.08~0.09。施工时可按7 大袋粉料配一桶乳液,一满桶(装乳液的桶)水的比例进行,用水量根据实际图15-1 用水房间地面防水处理施工需要进行调整。

3) 本砂浆可采用抹灰施工,抹灰厚度以15~20mm 为宜,厚度较大时,可分层作业,分层抹灰时底层砂浆必须凿毛以利面层粘结,并应留置分格缝以4~6m 为宜。
4)施工后必须进行养护工作,可以淋水的方式进行,不得使砂浆脱水过快。养护时间宜进行7d,以14d 以上为最好。层,并向地漏找2%的泛水,地面与立墙交接出抹成R=15~ 20mm 的圆角,并做防水加强层。当基层含水率小于8%时,即可涂刷3mm 厚聚氨酯防水涂膜,防水层卷上立墙高度不得小于200mm。面层抹1∶2.5 水泥砂浆铁抹子压实并拉毛,麻面交活。
为解决排水管根部易渗漏问题,可采取排水管根部采用专用堵孔定型模板支设,孔内灌注细石混凝土至板面下10~20mm 处,做防水加强层,用聚氨酯浇至板上皮,并爬上管壁至少50mm,确保无渗漏。
对于地漏外壁堵孔不严易造成渗漏现象,施工时应对孔洞四周砂浆剔除干净露出石子,并用水洗净。灌注细石混凝土至板厚的2/3 处,做聚氨酯防水加强层后,再灌注细石混凝土至板上皮地漏四周要有明显的泛水,地漏顶面高度要高出地面10mm。
4. 屋面工程
本工程屋面分上人屋面和不上人屋面两种。不上人屋面施工流程:基层清理→管道堵洞→弹线→找坡层保温层铺设→找平层抹灰→卷材防水层

(1)保温层:不上人屋面在铺保温层前,将屋面的杂物、落地灰等清理干净。所有出屋面的管道、风道等处图15-2 地漏地面防水处理都应施工完毕,并处理好过楼板的孔洞,用细石混凝土堵好,并用高强度等级砂浆在管道,气道根部抹出一道箍,压实压光,作一道刚性防水,防止保温层内潮气遇管道冷热结露水渗到顶板下造成渗水。出水口保温层保证80mm, 再按设计要求找坡,封闭式保温层作出气天津六建建筑工程有限公司86 道孔,排气道应纵横贯通,应与大气道连通的排气孔相通,排气孔每36m2 设置一个。本工程的排气孔均设为暗管排气,抹找平层时应按规范要求留分格缝6m×6m,从女儿墙根部甩100mm 留一道缝,缝宽20mm。女儿墙防水卷材卷起高度不得小于250mm,出水口处500mm×500mm 要比平面下跨15~20mm,防止做完卷材后高于出水口。在钢筋混凝土基层上找2%的坡,干铺30mm 欧文思科宇保温板,板缝用同材料嵌填密实。
(2)找平层:将PVC 管制成的出气管道埋入予留管线内,基层清理干净、冲筋、根据坡底要求拉线找坡度贴灰饼,按顺排水方向做呈放射状筋,间距为1.5m, 在排水沟和雨水口附近出泛水。并留设分格缝,缝宽为20mm,间距6m 下好分格条。在两筋之间铺设20mm 厚水泥砂浆后,用木杠刮平,木抹子搓平,稍干硬后,上人用木抹子再次搓平,铁抹子溜光,当人踩上去有脚印但不下陷时,用铁抹子进行第二遍压光,把死坑、砂眼压光压实,不得漏压。表面覆盖浇水养护。
(3) 防水层:基底必须干燥,含水率不大于8%, 清理找平层浮土及各种杂物。找平层表面涂刷2mm 厚聚氨酯防水涂膜一道,在女儿墙及高出屋面的构筑物,管道根部,出水口等处先做一布二涂附加层,防水卷材纵横搭接处要大于100mm, 用配套粘结剂满粘密实。对于屋面坡度为2%,所以卷材宜采用平行屋脊铺设。合成高分子防水卷材采用粘结法,短边搭接宽度满足150mm, 长边搭接宽度满足150mm。三元乙丙卷材防水采用平行于屋顶的方向铺贴,弹好基准线将卷材按弹好线的位置对等,按照顺水方向搭接铺好,将粘合剂用滚刷分别涂刷在基层和卷材表面。涂刷粘合剂一定要均匀,不得有露底及凝胶现象。涂后需晾置10~15min 左右基本干燥,不沾手时即可进行卷材的粘贴,卷材每边粘结宽度不应小于150mm。要使卷材在松弛不受拉伸的状态下逐步粘结,并随时用压辊向前及两侧滚压,使卷材与基层粘结牢固,无气泡、褶皱。在铺设完大面积卷材后,应对细部构造如:阴阳角、落水口、管道根、伸出屋面等复杂部位进行再次施工处理,密实交错粘贴,并用密封材料对其部位嵌严,防止卷材末端的剥落或渗水。在女儿墙上卷材收头处除用密封材料封严外还需用水泥砂浆进行压缝封闭。
上人屋面:上人屋面的保温层和找平层与不上人屋面做法相同。找平层表面涂刷2mm 厚聚氨酯涂膜后,铺设350 各的沥青卷材一道,上部浇筑40mm 厚C20 细石混凝土刚性防水层,内配双向φ4 钢筋,间距150mm,并设置纵横小于6m 的分格缝,缝中钢筋断开,缝宽20mm,刚性防水层与女儿墙留设30mm 缝。混凝土浇筑采用平板振捣器振捣密实,表面覆盖浇水养护。
在防水层上部抹20 厚1∶2.5 的水泥砂浆保护层,干硬后,保护层上弹出方正垂直控制线,铺砖前洒水润湿。在基层上刷水泥浆随刷随铺1∶3(体积比)干硬性水泥砂浆,水泥砂浆稠度25~35,厚约25mm, 用抹子拍实,然后试铺地面砖,试铺合适后,将地面砖取下,在地面砖背面满抹水泥浆粘贴,用木锤砸实找平,随时用水平尺及直尺找平,每3m ×6m 留20mm 宽伸缩缝,砖缝为10mm,镶铺24h 后,洒水养护,并检查有无缺陷,擦缝,采用沥青砂镶严伸缩缝,砖缝用1∶1 水泥砂浆勾缝,要求密实,缝内平整光滑。
质量标准:
(1)找平层应牢固、平整、干净、无起砂、松动现象,阴阳角呈圆弧形或钝角。
(2)防水层应粘结严密,接缝封严,不得有损伤、空鼓翘边、滑移、气泡、皱褶等缺陷。
(3)泛水、檐沟、水落口、出屋面管根等部位的附加层与基层封盖严密。
各工序的协调措施
为最大限度地挖掘关键线路的潜力,各分部分项工程和各工序的穿插要紧凑,各工序施工时间尽量压缩。结构施工阶段安装预埋随时插入,不占用主导工序时间,装修阶段各工种之间建立联合验收制度,确保施工间、时间充分利用、同时保证各专业良好的配合,避免互相干扰和破坏,影响施工正常进行,造成工序时间的延长。
建立由土建施工为龙头,各专业工程施工人员参加底联系会制度,定期举行联系会议,做到各专业工程队伍服从总包单位(××公司)的统一安排和管理,并根据土建施工进度安排明确专业工程插入配合时间,具体措施如下:
(1) 根据工程施工项目内容,明确相应的各专业分包单位及项目负责人,联系人综合要求和职责。
(2) 主动与设计单位联系,完善和明确设计未详尽项目,及时办理各专业技术核定签证。
(3) 提出总体形象进度计划和各专业具体详细实施计划,提出相应的质量要求并组织实施。
(4) 定期召开有专业负责人参加的联系会议,提出施工中存在的质量问题和需要协调的问题,并落实解决措施,限期完成,作为总承包单位的土建施工单位,相应具备强有力的综合监控,协调能力,从组织机构,管理制度方面要形成约束和协调机制,能控制全局。
(5) 各专业单位相互协调关系,注意立体交叉配合作业的步骤和配合,提高避免交叉污染的控制措施以及成品保护措施并严格监督执行。
(6) 组织由专业人员组织成的检查组,坚持定期检查制度,督促分项施工项目按期完成,确保工程总体形象进度。
冬、雨期施工措施
1.冬雨期施工部位
根据施工进度计划,本工程施工过程经历个雨期和个冬期,进入雨期施工的主要部位是基础和部分装修工程;进入冬期施工的主要部位是主体结构。
2.雨期施工
2.1.雨期施工准备
(1)雨期施工前认真组织有关人员分析雨期施工生产计划,根据雨期施工项目编制雨期施工措施,所需材料要在雨期施工前准备好。
(2)建立防汛小组,制定防汛计划和紧急预案措施。
(3) 项目经理部夜间设值班人员,同时设置天气预报员,负责收听和发布天气情况。
(4)做好施工人员的雨期施工培训工作,组织相关人员进行一次全面检查,包括施工材料、临时设施、临时用电、机械设备及外脚手架防护等项工作。
(5)检查现场办公及生活区域排水设施,疏通各种排水管渠,保证雨天排水通畅。
(6) 现场道路两旁设排水沟,保证施工道路不滑、不陷、不积水。清理现场障碍物,保持现场道路畅通。
(7)检查塔吊等垂直运输机械基础是否牢固,塔基四周设置排水沟,要求在大雨过后,及时对塔吊等垂直运输机械的垂直和沉降进行观测。脚手架立杆底脚设置垫板,并加设扫地杆,同时保证排水良好。
(8)做好塔吊、脚手架防雷装置,安全部门对避雷装置进行全面检查,确保防雷。
(9)项目及时备好如水泵、抽水软管、塑料布、苫布等材料。
(10)进入现场的设备材料,避免放在低洼处,将其垫高,以防积水损坏设备且防止漏电。设备露天存放加苫布盖好,以防雨淋日晒,材料堆放周围有畅通的排水沟,以防积水。
(11)夏季炎热天气,施工人员在高层作业时要进行体格检查。有关部门做好防暑降温措施。
2.2.雨期施工措施
(1)原材料的存储和堆放
水泥全部存入库房,库房要求不漏、不潮,下面架空,四周设排水沟,避免积水。钢筋堆放场地确保排水畅通,钢筋要有垫木,严防钢筋被泥水污染,一旦污染要及时用水冲洗干净,且钢筋绑扎前用钢丝刷进行除锈,确保钢筋工程质量优良。
(2)结构工程下雨天避免钢筋焊接的施工,以免影响钢筋工程质量。模板拆卸下来后,及时进行清理,涂刷脱模剂,大雨过后再刷一道。模板拼装后尽快浇筑混凝土,防止模板遇雨变形,如果模板拼装后不能及时浇筑混凝
土,又被雨水淋过,则浇筑混凝土前要重新检查、加固模板和支撑。混凝土浇筑尽量避开雨天,若必须在雨天浇筑,要备足遮挡物品,防止混凝土被水冲刷,影响混凝土结构质量。
(3)装修工程雨天严禁外檐抹灰,以免抹灰层被水冲刷。屋面保温层铺设要避开雨天,并及时做好找平层,以免保温层含水过多,影响保温隔
热效果。屋面防水层施工前遇雨,则防水层不得施工,防水层施工前,必须测定基层含水率,当低于9%时方可施工。
(4)水电设备安装工程设备预留孔洞应做好防雨措施,地下层设备在雨期要采取措施防止设备受潮被水淹泡。
3.冬期施工
3.1.施工准备
(1)进入冬期施工前,组织掺外加剂人员、测温保温人员进行技术业务培训,学习本工作范围内的有关知识,经培训合格人员方准上岗工作。
(2)根据实物工程量组织有关机具、化学外加剂和保温材料进场。
(3)组织冬期所用砂浆配合比的试配试验工作,提出施工配合比。
(4)对施工现场的临时供电、供水设备进行检查,防止漏电、跑水事故发生。
(5)现场搅拌棚要做好保温防护措施,搅拌棚内设置锅炉,满足取暖和搅拌用水的需要。
3.2.冬期施工措施
根据工程实际情况,混凝土进入冬期施工后白天的温度与夜间的温差大,应采取以下措施来保证混凝土的质量。
(1)现场热源使用1t 立式锅炉一台,用以提供冬期砂浆搅拌用热水。
(2)保证混凝土入模温度在5℃以上。并适当控制混凝土的水灰比和降低坍落度。
(3)合理安排混凝土的浇筑顺序,采用分层连续浇筑为宜,以减少内外温差。
(4)如遇骤冷,大风气候,需在作业面用苫布或搭棚保温养护。
(5)混凝土采用复合防冻剂。
(6)现浇混凝土楼板采用综合蓄热法,掺加复合防冻剂,使用草帘覆盖保温,使混凝土在温度降到冰点前达到受冻临界强度。
(7).在混凝土浇筑后立即组织测温,做好记录,确定拆模时间。
(8)冬期用混合砂浆采用热砂浆,上墙温度不低于+5℃,并掺氯化钠。
(9)严冬时期每日砌筑的砌体要覆盖保温。
(10) 冬期各管道工程试压时,采取可靠措施把水泄净,以防冻坏管道和设备。
环境温度低于5℃, 不准进行水压试验。必须进行时,应有提高环境温度的措施或采用气压试验。
施工安全保证措施
安全生产是人命关天的大事,能否实现安全生产不仅关系到人民的生命和财产安全,也决定着工程施工能否顺利进行,是牵扯到甲乙双方和国家利益的大事,因此在施工过程中,一定要采取有效措施加强安全管理,确保安全目标的实现和工程施工的顺利进行。我公司已经通过GB/T28001 职业健康安全管理体系认证,因此,施工中要求严格执行我公司职业健康安全管理体系程序文件的有关规定和要求。在工程开工之初必须做好本工程项目所有作业场所的危险源辨识工作,并根据可导致事故的等级,确定重大危险因素后,项目经理部针对危险因素制定相应管理方案和控制措施。
1.管理与组织方针与目标:
(1)方针
施工管理上我们始终如一的坚持“强化安全生产、树立环保典范;遵守法律法规、坚持持续改进”的公司职业健康安全和环境管理方针,以安全促生产,以安全保目标。
(2)管理目标杜绝重大人身伤亡事故和机械事故一般工伤事故频率控制在1‰以下,确保安全生产。
2.安全管理体系安全生产管理体系是企业整个管理体系的一个组成部分,包括制定、实施、审核、保持和改进。
施工安全生产管理体系的建立不仅是为了满足工程项目经理部自身安全生产的要求,同时也是为了满足相关方对施工安全生产管理体系的持续改善和安全生产保证能力的信任。
2.1.现场组织机构
现场组建由项目经理、工长、专职安全员组成的安全管理机构小组,负责监督检查施工现场安全设施,并负责对进入本现场施工人员进行安全教育,做好安全交底记录。
2.2.安全管理制度
(1)安全技术交底制
根据安全措施和现场实际情况施工员要对作业层进行安全书面交底。
(2) 安全例会制
项目经理部每周一要组织全体施工操作人员进行安全教育,对目前存在的问题进行总结,并对一些安全重点部位和注意事项进行必要的交底,使之心中有数,从意识上时刻牢
记施工安全。
(3) 定期检查制图18-1 安全教育
项目经理部每周组织一次安全检查,对检查出来的安全隐患及时登记记录在案,并责成当事人定期整改,定出措施,逐一落实整改情况,做好记录。
(4) 大型工具设备验收制对进入施工现场的大型机械设备安全实行验收制,凡不经验收的,一律不得投入使用。
(5)持证上岗制
特殊工种必须持有上岗操作证,严禁无证操作。
(6)安全生产责任制
1).项目经理全面负责施工现场的安全措施、安全生产等,保证施工现场安全。
2)项目副经理直接对安全生产负责,督促、安排各项安全工作,并按规定组织检查、做好记录。
3)项目工程师制定项目安全技术措施和安全专项方案,督促安全措施落实,解决施工过程中不安全的技术问题。
4)专职安全员督促检查施工全过程的安全生产,纠正违章,排除施工不安全因素,监督劳保用品的发放和使用,负责落实项目经理部的安全教育和学习工作。5)施工工长
负责安排安全技术措施的实施,制定安全专项方案,负责本项目的危险源辨识和重大危险因素的确认工作,制定危险因素控制方案和措施,对操作层进行施工前的安全交底,负责日常的安全巡查工作。
3.设备的管理
(1)现场的各种电器机械架子以及其他电动工具非专业人员不得动用和拆改,各种专业操作人员必须持证上岗。
(2)各种机械和动力机具必须有安全装置,所有电器设备一律采用三级控制两极保护,手持移动电动工具一二类设备必须加装不同毫安的漏电保护器,并要设置移动式电闸箱,闸箱距操作者最远不超过2m 操作者必须穿戴合格的绝缘防护用品。
(3)电焊机必须使用二次电焊钳子线,不准有破头,电焊机应垫高地面30em,要有防雨罩,一二次线端应有防护罩。
(4)卷扬机、搅拌机应搭设防雨棚。
(5) 蛙夯机必须两人操作,操作人员穿带绝缘手套和绝缘胶鞋,操作手柄应有绝缘措施。
(6)乙炔发生器必须使用金属防爆膜,回火防止器应保持一定水量。氧气瓶不得曝晒、倒置、平使,禁止沾油。氧气和乙炔瓶工作间距不小于5m,两瓶同焊距间的距离不小于10m。
安全防护措施
该工程安全防护工作重点是:
基坑周边防护、高空施工坠落、预留孔洞口竖井处防坠落、外檐安全防护等;各种电动工具、施工用电的安全防护等;垂直运输机械安全措施;立体交叉施工作业防物体打击措施等。图18-2 安全防护
(1)基坑周边防护方案
在±0.000 以下施工阶段,采用φ48 钢管搭设1.2m 高的防护栏杆,防护栏杆设置横杆,立杆间距不超过2m,钢管涂刷红白相间的警示标记。在基坑内设置上下坡道,坡道架体采用φ48 钢管搭设,坡道踢蹬间距不超过300mm。
(2)临边防护
施工各楼层临边部位设置防护栏,防护栏高1.2m,底设180mm 高木质踢脚板,护栏立柱间距1.5m,两道横杆,扩栏要与框架柱锁牢。
(3)外檐安全防护根据工程结构特点和实际施工情况,结构施工期间采用双排脚手架,内挂绿色密目安全网。图18-3 临时防护
脚手架采用φ48x3.5 钢管和扣件搭架体宽度1.50m, 脚手架基础要求素土夯实,上面铺设脚手板和立杆底座,将脚手架立杆座于底座之上,内排架立杆距墙500mm,外排架距墙2.0m(见图示):
立杆横距为1.50m, 纵距为1.50m,相临立杆的接头位置应错开布置在不同的步距内,与相近大横杆的距离不宜大于步距的1/3, 立杆与横杆必须用直角扣件扣紧。25m 以下立杆采用双立杆。
大横杆步距为1.40m,上下横杆的接长位置应错开布置在不同的立杆纵距中,与相近立杆的距离不大图18-4 脚手架搭设于纵距的1/3。同一排大横杆的水平偏差不大于该片脚手架总长度的1/300,且不大于500mm。

小横杆应贴近立杆布置,搭于大横杆之上,并用直角扣件扣紧,在相邻立杆之间加设
1 根,在任何情况下,不得拆除小横杆。架体与建筑结构拉结采取预埋管拉结的方法,按水平6m、垂直4m 布设。剪刀撑的设置采用垂直10m,水平10m 的架体为一单元连续布置,斜杆与地面夹角控制在45°或60°沿架体高度连续布置。架体内侧采用中眼和密跟安全网全封闭,在操作层上满铺木脚手板,并设置150mm 挡脚板。
(4)楼梯防护全部采用钢管搭设双道护身杆,休息平台及转角处均采用此方法,并在楼梯拐角处设一组照明。
(5)洞口防护边长为25~50cm 的洞口,用坚实的木板盖严,盖板要能防止挪动、移动,并用标识。边长为50~150cm 的洞口,四周设防护栏杆,具体做法同临边防护。边长大于150cm
的洞口还应铺设安全网。
(6)临时用电安全防护1)临时用电应按有关规定编好施工现场临时用电方案,并建立对现场线路、设施定期检查制度。2)配电线路必须架设整齐,架空线路应采用绝缘导线,不得采用塑胶软线,不得成束架空敷设或沿地明敷设。
3)配电系统必须采取分级配电,各类配电箱、开关箱的安装和内部设置必须符合有关规定,开关电器应标明用途。各类配电箱、开关箱外观应完整、牢固、防雨、防尘,箱体应外涂安全色标,统一编号。停止使用的配电箱应切断电源,箱门上锁。
4)独立的配电系统应按照有关标准规定采用三相五线制的接零保护系统。
5.分包方的安全管理施工现场安全生产的有效实施,同各分包方的参与与密切配合是分不开的。各分包方必须严格执行先签合同,后组织进行施工的原则。合同中明确总包与分包的权利、义务。对违反分包合同要求的制约措施不能与总合同的规定相矛盾。在签订分包合同时,应同时签订有关的附件,如安全生产、治安消防等,并注意责权利一致。分包合同中要包含安全奖罚细则,如果有异议可由双方平等协商制定。分包方进场正式开始施工前,要由项目经理或项目副经理组织有关人员向分包方负责人及有关人员进行安全技术交底,交底内容以总包合同为依据,包括施工技术文件、安全管理体系的有关内容、安全生产规章制度等。在合同履约过程中,项目经理部设专人对分包方施工全过程中的安全生产情况进行指导检查,监督管理,做好必要的记录。
现场文明施工措施
为全面提高施工管理水平和现场文明施工管理水平,以文明施工创信誉为方针,树立我公司形象,提高我公司的知名度,为企业赢得市场,把文明施工管理贯穿于各项管理工作中,特制定如下措施:
1.场容管理
施工现场利用原围墙及新建围墙封闭严密。
(2)在现场入口一侧设置我公司统一制作的标志牌,内容涉及现场布置图以及安全、消防保卫、场容卫生、环保、质量控制、材料管理等各项管理规章制度和简要工程概况。
(3)在施工现场设立指示牌和安全警示牌。
(4)施工区域和生活区域要明确划分,设立责任区,分片包干到人,负责场容整洁,清洁人员要有明显标志。图19-1 安全指示牌
(5) 施工现场道路采用100 厚C15 混凝土硬化路面,在办公区与生活区地适当位置设置花草等绿化植物,美化环境。
2.环境卫生管理
(1)现场保持整洁卫生,现场道路硬化平整坚实畅通,并有排水设施,施工污水要经过沉淀池沉淀后,方可排入市政排水管网。
(2)生活区内外应保持整洁有序,无污物、污水,垃圾集中堆放,及时清理。
(3)食堂设专人主管卫生工作,严格执行食品卫生法有关制度。
(4)现场内的厕所要有完善的上水和排水系统,并设有化粪井。厕所内部墙面、地面镶贴面砖,日常设有专人保洁,定期消毒防治蚊蝇。
3.现场机械管理
(1)现场使用的机械设备,按平面布置图位置存放,遵守机械安全规程,保持机身和周围环境的清洁。机械的铭牌编号明显,安全防护装置可靠。
(2) 钢筋切断机、成型机、对焊机等设备要搭设防护棚,防护棚搭设要牢固、美观。
施工现场环保措施
随着科学技术的发展,施工单位对环境保护的意识不断地加强,这种意识从某一程度上,提高了企业的社会形象和市场竞争力,同时也保障了建筑工地周围居民和施工人员的身体健康。
我公司运行GB/T24001-1996 环保体系标准,并且严格遵守《中华人民共和国环境保护法》的有关法规,相应地制定出施工现场环境保护措施。
1.环境保护管理目标
(1)噪音排放:结构阶段施工,白天<70dB,夜间<55dB
装修阶段施工,白天<65dB,夜间<55dB
(2)大气污染:施工现场扬尘达到国家二级排放规定。
(3)生活及生产污水:污水排放符合《天津市污染物排放标准》。
(4)防止光污染:夜间照明不影响周围居民区。
(5)施工垃圾处理:采取分类袋装处理,集中清运。
2.施工现场防止扬尘措施
(1)施工垃圾使用塑料编制袋,分类处理,严禁随意凌空抛散造成扬尘。施工垃圾集中堆放并及时清运,清运前要洒水湿润,减少扬尘。
(2)施工现场非施工道路场地,采用炉渣铺垫,现场制定洒水降尘制度,配备专用洒水设备,并设专人负责每天淋水,防止扬尘。
(3)现场大门出入口处设冲车台,用于清洗车辆轮胎上的土块,防止污染道路,施工现场相邻道路要设专人每天进行清扫。
(4)现场搅拌站搭设封闭搅拌棚,搅拌机上设置喷淋装置,以减少扬尘。
(5)建筑物外围立面采用密目安全网,以降低楼层内的流速,阻挡灰尘进入施工现场周围环境。
防止水污染措施
(1)砂浆搅拌作业,搅拌机前台处设置沉淀池,污水经过沉淀后,方可排入市政污水管线。未经处理的泥浆水,严禁直接排入市政排水管线。
(2)现场设排水沟和沉淀池,所有污水经沉淀池沉淀后,排入市政污水管线。
(3)施工现场食堂要设置简易隔油池,日常产生的污水要经过隔油池过虑后,再排入市政排水管线中。
4.防止施工噪声污染措施
(1)施工现场应遵照《中华人民共和国建筑施工场界噪声限值》(GB12523-90) 制定降噪的相应制度和措施。
(2) 施工过程中进行强噪作业时,必须严格控制作业时间,一般不超过12h, 必须昼夜连续作业的,要采取封闭降噪措施,并做好周围群众工作,报有关环保单位备案后,方可施工。
(3)施工现场提倡文明施工,杜绝施工人员大声喧哗,降低人为噪声的污染。
(4)现场产生强噪声的机械(搅拌机、电锯、电刨等)要搭设封闭机械棚,以减少强噪声的扩散。
防止光污染措施
探照灯要选用即满足照明要求又不刺眼的新型灯具,使夜间照明只照射施工区域而不影响周围居民区居民的休息。
施工现场维护措施
1.现场消防组织机构
1.1.管理组织
现场成立以项目经理为组长,项目安全员为副组长,各施工员、施工队长及现场保安或经警为组员。见图21-1。

图21-1 管理组织机构图
1.2.职责与任务
经常检查消防器材,以保证消防的可靠性。定期对职工进行消防教育,提高思想认识,一旦发生灾害事故,做到召之即来,团结奋斗。
现场组建义务消防队,由项目经理安全员现场施工操作人员组成。
行调整,以确保计划的可行。
2.防火教育
施工现场要由明显的防火宣传标志,每月对职工进行一次防火教育,定期组织防火检查。
显著标识。
3.消防安全措施
3.1.机电设备
机械和动力机的机座要稳固。转动的危险部位要加设防护装置。
(2)电气设备和线路必须绝缘良好,电线不得与金属物绑在一起,各种电动机必须按规定接零接地,并设置单一开关,现场如遇临时停电或停工休息时,必须拉闸加锁。
(3)施工机械和电器设备不得带病运转和超负荷作业正常情况要立即停机检查,不得在运转中修理。
3.2.焊接工程
电焊机外壳必须接地良好,其电源的装拆要由电工进行。电焊机要设单独开关,并放置在防雨闸箱内。多台电焊机一起集中施焊时,焊接平台或焊件必须接地,并有隔光板。工作结束后要切断电源,并检查操作地点,确认无火灾隐患后,方可离开。
3.3.可燃易爆物品存放管理
施工材料的存放、保管,要符合防火安全要求,库房采用阻燃材料搭设,易燃易爆物品设专库存放保管,库房保持通风,用电符合防火规定,指定防火负责人,配备消防器材,严格防火措施,确保施工安全。
3.4.现场明火作业管理
(1)现场具有火灾危险场所,严禁动用明火,确需明火作业时,必须事先向主管部门办理审批手续,并采取严密的消防措施,切实保证施工安全。
(2) 现场生产、生活用火均要由上级主管部门领导批准,任何人不准擅自动用明火。
(3)现场设吸烟室,场内禁止吸烟。
(4)结构阶段施工时,钢筋焊接量比较大,要加强看火人员。特别是高层施工时,电焊火花一落数层,如果场内易燃物品多,更要多设看火人员。钢筋焊接时,在焊点垂直下方,要将易燃物清理干净,特别是冬期结构施工多用草袋等易燃材料进行保温,电焊时更要对电焊火花的落点进行监控和清理,消灭火种。
施工现场保卫措施
(1)现场建立门卫、巡逻护场制度,设立保卫领导小组,由项目经理任组长,全面负责领导工作,安全负责人任副组长,其他成员由施工员、各施工队队长、安全员组成。
(2)工地设门卫值班室,由经警昼夜轮流值班,白天对外来人员和进出车辆及物资进行登记,夜间值班巡逻护场。
(3)在职工宿舍、办公区等易发生盗窃部位,制定专人管理,重点巡查,防止发生盗窃案件,施工现场严禁赌博、酗酒及传播淫秽物品和打架斗殴。
(4)现场大型机械设备、料具堆放处以及工程关键部位是现场的要害部位,项目加强保卫,确保安全。
(5)加强库房管理,严防被盗、破坏和治安灾害事故的发生。
5.现场标志牌的维护管理
在现场大门口处设置体现本工程特点的标志牌,内容包括工程概况、现场平面布置图、安全生产、消防保卫、环境保护等内容,在主体结构施工期间,施工外脚手架搭设完毕后,在临街一侧张挂我公司承建该工程的横幅,以及安全生产宣传横幅。在现场醒目部位及易出现安全隐患部位张挂安全警示牌。日常项目设专人进行维护保养,确保标志牌和警示牌完好无损。
6.现场交通管理
施工道路保证畅通,装卸货物要卸在道路的两侧,不得随意占用施工道路,进出车辆不得随意停在施工道路上,以免影响施工运输。现场设专人对施工道路进行清扫维护。
工程交验后服务措施
1.工程交付
为保证工程及时投入使用,我公司把工程交付这项工作作为我们工作的重点来实施,在按计划完成竣工验收后十天内完成撤场,及时恢复占用的场地,除留下必要的维修人员和部分材料外其余一律撤场。
2.工程回访在工程保修期内至少回访一次,一般在交工后半年内,每三个月回访一次,以后每隔半年回访一次。工程回访或维修时,由生产部门建立本工程的回访回修记录,根据情况安排回访计划,确定回访日期。
在回访中,对用户提出的任何质量隐患和意见,我方将虚心听取,认真对待,同时做好记录,对凡属于施工方面质量问题,要热心为用户提出解决办法,并责成有关单位、部门认真处理解决,同时要认真分析原因,从中找出教训,制定纠正和预防措施,避免类似质量问题再次发生。
3.工程服务和保修
我公司不仅重视施工过程中的质量控制,而且也同样重视对工程的保修服务。从工程交付之日起,我公司的保修工作随即展开,在保修期间,我公司将依据保修合同,本着“对用户服务,向用户负责,让用户满意”的原则,以有效的制度、措施做保证,以优质、迅速的维修服务来维护用户的利益。
保修范围:
我公司做为工程总承包方,对整个工程的保修负全责。
工程保修期限:
本工程承诺保修年限见表22-1
表22-1 承诺保修年限表
| 序号 | 保修部位 | 规定保修年限(年) | 承诺保修年限(年) | ||
| 基础工程和主体结构工 | |||||
| 1 | 设计合理年限 | 设计合理年限 | |||
| 程 | |||||
| 2 | 屋面防水工程,有防水 | 5 | 5 | ||
| 要求的房间,外墙面的 | |||||
| 渗漏 | |||||
| 两个采暖期、供冷 | 两个采暖期、供冷 | ||||
| 3 | 供热及供冷系统 | ||||
| 期 | 期 | ||||
| 电气管线、给排水管道、 | |||||
| 4 | 2 | 2 | |||
| 设备安装和装修工程 | |||||
当接到用户的投诉和工程回访中发现的缺陷后,我公司自通知之日后两天内,就发现的缺陷进行确认,与用户协议返修内容,将了解的情况填入维修记录表中,分析存在地问题,找出主要原因制定措施,经公司主管部门审核后,提交主管领导审批。
由生产部门指派维修单位,尽快维修,维修人员一般由原项目经理部人员负责,生产部门要对维修人员进行必要的交底,要求维修人员主动配合用户单位,对于用户单位提出的合理要求要尽可能地满足,坚决防止和用户方面发生争吵。
说 明
星欣设计图库资料专卖店拥有最新最全的设计参考图库资料,内容涉及景观园林、建筑、规划、室内装修、建筑结构、暖通空调、给排水、电气设计、施工组织设计等各个领域的设计素材和设计图纸等参考学习资料。是为广大艺术设计工作者优质设计学习参考资料。本站所售的参考资料包括设计方案和施工图案例已达几十万套以上,总量在数千G以上。
雅居云录(https://yajuyun.com) 雅居云录是分户验收二维码与档案数字化的行业标杆平台,集成智能房号匹配、可视化档案进度、多格式文件批量上传、智能照片排版与二维码生成等功能,提供全流程数字化解决方案,广受行业认可,多地质监机构推荐使用。
雅居云录分户验收二维码后台核心功能:智能房号管理: 可视化呈现房号清单,结构清晰,查找便捷。 模板灵活可配: 内置多地验收模板,支持自定义编辑,快速适配。 批量上传支持: PDF文件和现场照片均支持批量上传、即时归档。 照片自动排版: 验收照片自动生成带PDF档案,节省人工排版时间。 二维码一键生成: 项目二维码秒速生成,支持预览与打包下载。进度可视看板: 实时查看任务状态与完成进度,辅助项目管理。
雅居云录分户验收二维码与电子档案平台照片自动排版:验收照片自动生成带PDF档案,节省人工排版时间。
雅居云录:批量上传,自动生成标准报告,让验收工作高效又省心。