目录
第一章 编制依据 2
第二章 工程概况 3
第三章 施工难点 4
第四章 技术准备 5
第五章 施工部署 38
第六章 混凝土浇筑 55
第七章 施工缝处理 60
第八章 安全与环保措施 64
第九章 附图 66
编制依据
1.1 设计图纸:北京建筑设计院提供的世纪财富中心项目施工图。
1.2 现行的国家和省、市的有关规范、规程和标准:
建筑地基基础工程施工质量验收规范(GB 50202-2002)
高层建筑箱型基础与筏型基础技术规范 (JGJ 6-99)
地下工程防水技术规范(GB 50108-2001)
混凝土结构工程施工及验收规范(GB 50204-2002)
混凝土矿物掺和料应用技术规程(DBJ/T 01-64-2002)
高层建筑混凝土结构技术规程(JGJ 3-2002)
混凝土强度检验评定标准(GB 107-87)
混凝土泵送技术规程(JGJ/T 10-95)
混凝土质量控制标准(GB 50164-92)
建筑机械使用安全技术规程(JGJ 33-2001)
建筑施工安全检查标准(JGJ 59-99)
施工现场临时用电安全技术规范(JGJ 46-88)
建设工程施工现场供用电安全规范(GB 50194-93)
北京市建筑工程施工安全操作规程 (DBJ 01-62-2002)
碱集料反应规程
1.3 世纪财富中心项目施工组织设计。
工程概况
本工程位于北京市朝阳区东三环路内北京CBD 中央商务区,东临关东店南街,南临光华路。由二栋写字楼和一座裙房组成。总建筑面积为142268m2,地上部分为103065.6m2,地下共4 层,建筑面积39202.4m2。
工程结构设计为钢骨混凝土框筒结构,基础设计为平板筏基,基础混凝土总量为26445m3。
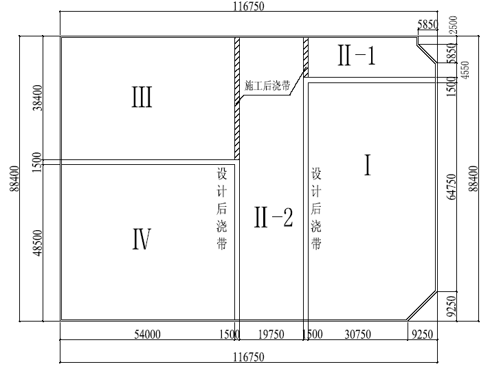
两个主楼下的基础厚3m,裙房和大堂下的基础厚1.5m,设计中从沉降角度考虑,在3m 厚和1.5m 交接处布置了两道宽1500mm 的后浇带。底板外轮廓东西方向长116.25m,南北方向长88.4m;基础底板厚度按厚度分为1500mm 和3000mm 两种,顶面标高分别为-19.10m 和-17.60m。
本工程混凝土全部采用商品混凝土,整个基础划分为7 个浇筑段进行混凝土浇筑。浇筑段划分见图1,各浇筑段基本情况见表1。
浇筑段划分基本情况表 表1
| I 段 | II 段 | III 段 | IV 段 | ||||
| 浇筑段 | 机坑 | 底板 | Ⅱ-1 | Ⅱ-2 | 机坑 | 底板 | |
| 混凝土量 | 1843 | 8519 | 755.4 | 2676.1 | 3139.2 | 1236.2 | 7840.5 |
| 厚度 | 3m | 3m | 1.5m | 1.5m | 1.5m | 3m | 3m |
| 计划浇筑时间 | 2003.8.15 | 2003.9.5 | 2003.8.5 | 2003.8.28 | 2003.9.2 | 2003.9.13 | 2003.10.16 |
由于本工程底板混凝土为厚大体积混凝土,在“ISO9002”中属于 “4.9过程控制”中的特殊过程控制项目,系质量控制重要内容。为确保工程施工质量,特制定本施工方案,以便在施工中遵照执行。
施工难点
3.1 本工程工期短、时间紧,底板混凝土总量大,3m 厚底板不允许分段,最大浇筑量超过10000 m3。必须全盘考虑、精心安排、采取周密的技术措施保证质量。
3.2 底板混凝土浇筑基本安排在夏季,气温高不利于混凝土入模温度的控制。
3.3 底板施工时进出车辆多,多台输送泵同时作业。施工场地狭小、不利于交通和多台输送泵的布置。因此要求业主协助我公司跟有关部门协商解决,借用临近市政道路布置一部分输送泵,解决场地紧张的状况。
3.4 本工程地处CBD 中心地段,交通不畅。而且商品混凝土的运输车辆受到交通管制。施工前必须在认真调查的基础上做好交通组织方案,并提前向有关部门办好通行许可,保证混凝土连续供应。
3.5 本工程底板混凝土的浇筑时间均安排在气温较高的8 月和9 月,此时大气温度高出混凝土的入模温度,长时间的间隔对混凝土的温度和浇筑层之间结合都非常不利。须报请有关部门批准,在混凝土浇筑的特定时间允许夜间施工,使浇筑工作连续进行保证大体积底板的浇筑质量。
技术准备
基础底板的施工,除必须满足国家和地方有关规范、标准的规定要求外,采取必要的预控措施防止大体积混凝土由于温度变化和收缩产生裂缝是施工技术准备的关键。根据大体积混凝土裂缝产生的机理,在抗裂验算的基础上通过控制原材料质量、降低混凝土的温差(入模温度、水化热温升)、减小地基的约束以及控制降温速率、充分利用混凝土的应力松弛特性、延长养护期、表面布设温度筋、加强施工过程控制等几个方面综合安排抗裂技术措施。
4.1 对原材料的要求
拌制混凝土的各种原材料除了必须满足相关国家规范和北京市地标外,还应符合以下规定。
4.1.1 水泥:
1) 采用32.5 级普通硅酸盐水泥。
2) 采用低水化热水泥,水泥的7d 水化热指标不高于275kJ/kg,不得使用带有R 字样的早强水泥。
3) 水泥的碱含量须满足每立方米混凝土中水泥的总碱量不大于2.25kg。
4.1.2 粉煤灰:粉煤灰的级别不低于II 级,不得使用高钙粉煤灰。
4.1.3 粗骨料:宜采用5~31.5mm 级配均匀的机碎石,含泥量不得大于1%,孔隙控制在39%以内。
4.1.4 细骨料:为减小混凝土的后期收缩,宜采用中粗砂,细度模数2.5~3.0,不使用人工砂。砂的含泥量不得大于3%。
4.1.5 外加剂:
4.1.5.1 外加剂应采用低碱、低水化热的外加剂。
4.1.5.2 不得具有早强性能。
4.1.5.3 不添加任何膨胀剂。
4.1.5.4 使用高效减水剂。
4.2 对商品混凝土的要求
除必须满足规范要求外,还应符合以下规定:
4.2.1 混凝土的强度等级要求为C40(P10)R90。
4.2.2 水胶比控制0.45 以下。
4.2.3 砂率控制在40%以内。
4.2.4 为保证混凝土的抗裂能力,兼顾施工要求,混凝土的入泵坍落度宜控制在160mm 之内,误差上限+20mm,下限-40mm。
4.2.5 缓凝时间宜为8~10h。
4.2.6 混凝土到工地的温度:
4.2.6.1 对于Ⅱ-1 段,及Ⅰ、Ⅳ段内的机坑,混凝土到工地的温度不得超过28℃。
4.2.6.2 对于Ⅱ-2 段,III 段底板,混凝土到工地的温度不得超过25℃。
4.2.6.3 对于Ⅰ段底板,混凝土到工地的温度不得超过23℃。
4.2.6.4 对于Ⅳ段底板,混凝土到工地的温度不得超过20℃。
4.2.6.5 混凝土供应单位可参考以下措施,也可在保证上述温度指标的前提下,根据企业特点采用其他措施。
1) 外加剂、砂石须遮盖,避免阳光直射,并保持通风,在拌合前2d将碎石洒水降温;
2) 拌合水应使用地下水,并预先加冰块降温;
3) 散装水泥必须提前进料降温,保证拌合时的温度在35 ℃以下;
4) 混凝土运输罐车外罩保温套。
4.2.7 为保证水化热不超过本方案抗裂计算的要求,试配时须对各试配配合比作混凝土或混合胶凝材料的水化热试验,并及时将试验结果上报本项目部总工办。
4.3 主要技术措施
4.3.1 采用90d 混凝土的强度,同时,经业主、监理和有关专家共同论证,将每立方米混凝土中水泥用量控制在不少于220kg。综合考虑各种因素,本方案确定每立方米混凝土中水泥用量为:32.5 级普通硅酸盐水泥230kg。
4.3.2 采用中低水化热水泥,7d 水化热指标不高于275kJ/kg。
4.3.3 采用三掺法,即在混凝土中同时掺加高炉磨细矿碴粉(S75)和粉煤灰,以保证混凝土强度达到设计要求,同时改善混凝土的和易性。
4.3.4 在满足泵送要求的条件下,降低砂率,防止混凝土因收缩产生裂缝。
4.3.5 不使用膨胀剂。
4.3.6 除设计布置的后浇带外,在1.5m 厚的底板内增加两条施工后浇带,施工后浇带做法与沉降后浇带相同,在相邻板块浇筑90d 后用C45(P10)R28 混凝土浇筑。后浇带的布置如图1 所示。
4.3.7 分层浇筑,两主楼下3m 厚的底板内均设有多个机(集水)坑,坑深3m,且体量较大。综合考虑机坑内降水、总体施工组织、大体积混凝土施工等因素,决定先浇筑机(集水)坑,再浇筑底板。两次浇筑间隔宜控制在15d 之内。
4.3.8 设计后浇带处断面如图2 所示,其中1500mm 厚500mm 宽的板带长度74m 超过抗裂计算的最大裂缝间距54.91m,存在开裂隐患,建议设计将这一条1500mm 厚500mm 宽的板带的纵向配筋率提高到1.2%。

图1 基础底板分段及后浇带位置

图2 后浇带处断面图
4.3.9 遵循抗、放结合的原则,为减小地基的水平阻力对底板的约束作用,在底板卷材防水层上干铺两层油毡作为滑动层,为防止水泥浆进入油毡之间,上层油毡搭接处须用聚氨酯粘结。
特殊情况:B 塔下底板分布有四个机坑,四个坑中间的板块处于四边约束状态,边缘拉应力较大,因此,该板块下不设滑动层,不做级配砂石换填,以较大的地基水平阻力减小边缘位移,进而减小边缘拉应力。
4.3.10 在1.5m 厚底板的上表面3m 厚底板有木模的侧面设置120 @ 4 Φ的钢筋网片,增强表面抗裂能力。
4.3.11 由于底板计划浇筑时间在最炎热的月份,气温远高于混凝土的入模温度,为尽可能减少浇筑时的冷量损失,浇筑时采取斜面分层、一次到顶的方式,使混凝土的暴露面积最小,混凝土输送泵管用一层麻袋包裹并经常洒水保持湿润。
4.3.12 混凝土入槽前,对槽内四壁及槽底洒水降温。
4.3.13 浇筑前一天,用毡布覆盖底板钢筋,混凝土浇筑时随浇筑进度逐步揭开。
4.3.14 混凝土初凝前,表面用平板振捣器做两次振捣,改善混凝土的密实性。两次振捣后,用刮杆刮平,再用木抹子做两遍压实抹平,最后表面扫毛。
4.3.15 加强养护,充分利用混凝土的松弛特性降低混凝土的收缩应力。混凝土的中心温度与表面温度差及表面温度与外界温度差可控制在30℃以内。降温速率宜控制在1.5~2℃。
4.3.15.1 浇筑完成后14d 内,采用蓄水养护,蓄水深度为150mm。因底板面积较大,宜采用分格蓄水,蓄水围堰高度不低于200mm。
4.3.15.2 两次抹面压实后立即盖一层塑料薄膜,同时随浇筑进度分格砌筑蓄水围堰。
4.3.15.3 蓄水养护至少7d,如果7d 后,为下道工序施工方便要求改变养护方式,养护方式可改为采用塑料膜加草袋的方式,即一层湿草袋上盖一层塑料薄膜。变换养护方式时,应先铺草袋再洒水。
4.3.15.4 保温保湿养护至少14d。养护至第15d 时,根据测温情况和当时天气情况决定是否撤销养护。在施工条件许可的情况下,应尽可能将养护期延长到30d。
4.3.15.5 后浇带处的养护:
1)底板后浇带处侧模有木模和快易收口网两种。木模处采用一层阻燃保温草袋外面加盖一层黑色塑料布保温保湿养护。塑料布和草带要绑扎在模板上,与模板密贴。木模的拆模时间,同样在第15d 根据测温情况决定,如当时施工条件许可,则安排在第30d 拆模。
2)快易收口网处采用一层湿草袋外面加盖一层黑色塑料布保温保湿养护。湿草带要绑扎钢筋上与收口网密贴,养护期间草袋必须始终保持浸湿状态。塑料布必须与湿草袋密贴。
3)后浇带处500mm 宽1.5m 厚的板带上表面采用两层草袋两层塑料薄膜养护,即一层湿草袋 + 一层塑料薄膜 + 一层干草袋 + 一层塑料薄膜。
4.3.16 做好浇筑后的测温工作,设专职测温工,及时将测温数据录入预先编制好温度曲线的描绘程序和温度应力的计算程序,实时掌握混凝土内部温度和应力的变化情况,推断下一时段的温度和应力变化趋势,根据计算结果决定是否调整保温层的厚度。
4.4 混凝土的配合比
根据本章第4.1、4.2、4.3 条确定的原则,参考搅拌站统计资料和试配数据,确定混凝土单方主要材料用量(kg)见表2。
混凝土配合比(每立方米混凝土主要材料用量) 表2
| 水泥
(普通硅酸盐32.5 级) |
粉煤灰
(不低于II 级) |
矿渣粉
(不低于S75) |
| 230 | 75 | 80 |
详细试配数据参见试配报告。
4.5 1.5m 厚底板的抗裂验算
根据结构特征,选最不利抗裂的II-2 段进行抗裂验算。
4.5.1 结构特征
外形尺寸: 长×宽×高=88.4mm×18.75mm×1.5mm
纵向平均配筋率:Ag/A=0.71%
最大钢筋直径:25mm
混凝土强度等级: C40(P10)R90
fc(90)=19.1N/m
ft(90)=1.71N/m
Ec(90)=3.15×104N/m
计划浇筑时间: 2003 年8 月25 日。
浇筑时大气温度:按北京专业气象台提供的资料,8 月平均气温为25.7℃,最高气温为35.0℃,最低气温为17.3℃。
4.5.2 混凝土的入模温度Tj
Tj=30℃
4.5.3 各龄期混凝土的中心温度
按照保守状态,在本计算中取1.5m 厚底板的降温系数为0.75。
各龄期混凝土内部中心最高温度估算详见表3。
1.5m厚底板各龄期混凝土内部中心最高温度估算表 表3
| 龄期
(d) |
3 | 6 | 9 | 12 | 15 | 18 | 21 | 24 | 27 | 30 |
| Tmax | 56.9 | 49.8 | 44.1 | 39.6 | 33.2 | 32.6 | 31.9 | 30.6 | 30.3 | 30 |
4.5.4 混凝土的内外温差估计,详见表4。
1.5m厚底板混凝土的内外温差估计值表 表4
大气平均温度 Tq=25.7℃ 大气最低温度 Tqmin=19.2℃
| 龄期 | 3 | 6 | 9 | 12 | 15 | 18 | 21 | 24 | 27 | 30 |
| 中心温度 | 56.9 | 49.8 | 44.1 | 39.6 | 33.2 | 32.6 | 31.9 | 30.6 | 30.3 | 30 |
| 表面温度 | 38.6 | 35.9 | 33.8 | 32.1 | 29.7 | 29.4 | 29.3 | 28.7 | 28.6 | 28 |
| 内表温度差 | 18.3 | 13.9 | 10.3 | 7.5 | 3.5 | 3.2 | 2.7 | 1.9 | 1.7 | 1.6 |
| 外表温度差 | 21.3 | 18.6 | 16.5 | 14.8 | 12.4 | 12.1 | 12 | 11.4 | 11.3 | 10.7 |
4.5.5 最大温度收缩应力计算
为留有充分的安全余量,计算温度收缩应力时,不考虑混凝土升温阶段产生的内部压应力及两端支护结构限位产生的预压应力。
以下分别验算浇筑后第6、9、15、30 和60 的外约束应力
4.5.5.1 采用公式
σ(t)=E(t)×α×△T×[1-1/cosh(βiL/2)]×S(t)
其中,

E(t)——混凝土各龄期的弹性模量;
α——混凝土的线性膨胀系数,取1.0×10-5;
S(t)——考虑徐变影响的应力松弛系数,取S(t)=0.5;
L=88400mm(基础底板长度);
H=1500mm(基础底板厚度)。
Cx 为地基水平阻力系数,查赵志缙主编《高层建筑施工手册》:在设置滑动层后,Cx=0.01~0.03N/mm3,偏于安全,在此取Cx=0.01N/mm3
△T 为最大综合温差,△T=降温差△T'(t)+ 收缩当量温差T'y(t)
4.5.5.2 计算E(t),详见表5
1.5m厚底板混凝土各龄期的弹性模量表 表5
| 龄期 | 6 | 9 | 15 | 30 | 60 |
| E(t) | 1.31×104 | 1.75×104 | 2.33×104 | 2.94×104 | 3.14×104 |
4.5.5.3 计算综合温差ΔT
1)各龄期混凝土的收缩当量温差T'y(t)
按公式 εY(t)=ε0Y(1- e -0.01t)×M1×M2×…Mn,
T'Y(t)=-εY(t)/α
各系数选用详见表6:
1.5m 厚底板各龄期混凝土的收缩当量计算用系数表 表6
| 龄期(d) | 6 | 9 | 12 | 30 | 60 |
| M1 | 1.000 | 1.000 | 1.000 | 1.000 | 1.000 |
| M2 | 1.130 | 1.130 | 1.130 | 1.130 | 1.130 |
| M3 | 1.000 | 1.000 | 1.000 | 1.000 | 1.000 |
| M4 | 1.105 | 1.105 | 1.105 | 1.210 | 1.210 |
| M5 | 1.120 | 1.120 | 1.120 | 1.000 | 1.000 |
| M6 | 1.040 | 0.960 | 0.957 | 0.930 | 0.930 |
| M7 | 1.100 | 1.100 | 1.100 | 1.256 | 1.256 |
| M8 | 0.780 | 0.780 | 0.780 | 1.000 | 1.000 |
| M9 | 1.000 | 1.000 | 1.000 | 1.000 | 1.000 |
| M10 | 1.000 | 1.000 | 1.000 | 1.000 | 1.000 |
| ∑* | 1.248 | 1.152 | 1.148 | 1.597 | 1.597 |
注:M1:水泥种类影响系数;
M2:水泥细度影响系数;
M3:骨料影响系数;
M4:水胶比影响系数;
M5:水泥浆量影响系数;
M6:龄期;
M7:环境湿度系数;
M8:截面影响系数;
M9:振捣方式;
M10:配筋率影响系数。
1.5m 厚底板各龄期混凝土的收缩相对变形计算值详见表7。
1.5m 厚底板各龄期混凝土的收缩相对变形计算值 表7
| 龄期(d) | 6 | 9 | 15 | 30 | 60 |
| εY(t) | 2.35×10-5 | 3.21×10-5 | 5.1810-5 | 1.34×10-4 | 2.33×10-4 |
2)综合温差ΔT 详见表8
1.5m厚底板各龄期混凝土的综合温差计算值 表8
| 龄期 | 6 | 9 | 15 | 30 | 60 |
| △T'(t) | 4.7 | 8.5 | 15.8 | 19.8 | 25.0 |
| T'Y(t) | 2.4 | 3.2 | 5.2 | 13.4 | 23.3 |
| △T(t) | 7.1 | 11.7 | 21.0 | 33.2 | 48.4 |
4.5.5.2 最大外约束应力,详见表9
L=88400mm H=1500mm
Cx=0.01N/mm2 ft(R90)= 1.71N/mm2
1.5m厚底板各龄期混凝土的最大约束应力值 表9
| 龄期 | 6 | 9 | 15 | 30 | 60 |
| βi | 2.3E-05 | 2.0E-05 | 1.7E-05 | 1.5E-05 | 1.5E-05 |
| S(t) | 0.500 | 0.500 | 0.500 | 0.500 | 0.400 |
| σ(t) | 0.163 | 0.291 | 0.554 | 0.913 | 1.073 |
| ft | 0.681 | 0.835 | 1.029 | 1.293 | 1.556 |
| ft/σ(t) | 4.18 | 2.87 | 1.86 | 1.42 | 1.45 |
各龄期的抗裂安全度K 都不小于1.05,满足抗裂要求。
4.5.6 验算裂缝间距
4.5.6.1 应用公式

式中 α——混凝土的线性膨胀系数, α=1.0×10-5;
εp——考虑徐变时钢筋混凝土的极限拉伸;
T——综合温差。
4.5.6.2 基本参数,详见表10。
1.5m厚底板基本参数值 表10
| H=1500mm | ft(R90)=1.71MPa |
| E=3.15×104MPa | μp=0.71% |
| Cx=0.01N/mm3 | d=25mm |
4.5.6.3 混凝土的极限拉伸,详见表11。
1.5m厚底板各龄期混凝土的极限拉伸值 表11
| 龄期 | 6 | 9 | 15 | 30 | 60 |
| εp(t) | 6.56×10-5 | 8.04×10-5 | 9.91×10-5 | 1.24×10-4 | 1.50×10-4 |
4.5.6.4 综合温差T,详见表12。
1.5m厚底板各龄期混凝土的综合温差值 表12
| 龄期 | 6 | 9 | 15 | 30 | 60 |
| △T'(t) | 4.7 | 8.5 | 15.8 | 19.8 | 25.0 |
| T'y(t) | 2.4 | 3.2 | 5.2 | 13.4 | 23.3 |
| T(t) | 7.1 | 11.7 | 21.0 | 33.2 | 48.4 |
4.5.6.5 计算裂缝间距,详见表13。
1.5m厚底板各龄期混凝土的裂缝间距值 表13
| 龄期 | 6 | 9 | 15 | 30 | 60 |
| 各龄期弹模E(t) | 1.31×104 | 1.75×104 | 2.33×104 | 2.94×104 | 3.14×104 |
| β | 4.44×104 | 5.12×104 | 5.92×104 | 6.64×104 | 6.86×104 |
| L | 219 | 140 | 111.29 | 104.2 | 94.16 |
| Lmin | 145.8 | 93.3 | 74.2 | 69.5 | 57.3 |
4.6 3m 厚底板抗裂计算
根据结构特征,选最不利抗裂的I 段进行抗裂验算。
4.6.1 结构特征
外形尺寸: 长×宽×高=74.5mm×30.75mm×3.0mm
纵向平均配筋率:Ag/A=1.71%
最大钢筋直径: 32mm
混凝土强度等级: C40(P10)R90
fc(R90)=19.1N/m
ft(R90)=1.71N/m
Ec(R90)=3.15×104N/m
计划浇筑时间: 2003 年9 月5 日
浇筑时大气温度:按北京专业气象台提供的资料,9 月份平均气温为20.5℃,最高气温为35.0℃,最低气温为10.1℃。
4.6.2 混凝土的入模温度Tj
Tj = 30℃
4.6.3 各龄期混凝土的中心温度
按照保守状态,在本计算中取3m 厚底板的降温系数为0.85。
各龄期混凝土内部中心最高温度估算详见表14。
3m厚底板各龄期混凝土内部中心最高温度估算值 表14
| 龄期(d) | 3 | 6 | 9 | 12 | 15 | 18 | 21 | 24 | 27 | 30 |
| Tmax | 60.1 | 54.6 | 5.03 | 46 | 42.3 | 39.2 | 36.4 | 33.7 | 31.6 | 30 |
4.6.4 混凝土内外温差估计,详见表15。
3m厚底板混凝土内外温差估计表 表15
大气平均温度Tq=20.5℃
大气最低温度
Tqmin=10.1℃
| 龄期 | 3 | 6 | 9 | 12 | 15 | 18 | 21 | 24 | 27 | 30 |
| 中心温度 | 60.1 | 54.6 | 5.03 | 46 | 42.3 | 39.2 | 36.4 | 33.7 | 31.6 | 30 |
| 表面温度 | 35.4 | 33.3 | 31.7 | 30.1 | 28.7 | 27.5 | 26.5 | 25.5 | 24.7 | 24.1 |
| 内表温度差 | 24.7 | 21.3 | 18.6 | 15.9 | 13.6 | 11.7 | 9.9 | 8.2 | 6.9 | 5.9 |
| 外表温度差 | 25.3 | 23.2 | 21.6 | 20 | 18.6 | 17.4 | 16.4 | 15.4 | 14.6 | 14 |
4.6.5 最大温度收缩应力计算
为留有充分的安全余量,计算温度收缩应力时,不考虑混凝土升温阶段产生的内部压应力及两端支护结构限位产生的预压应力。
4.6.5.1 采用公式
σ(t)=E(t)×α×△T×[1-1/cosh(βiL/2)]×S(t)
其中,

E(t)——混凝土各龄期的弹性模量;
α——混凝土的线性膨胀系数,取1.0×10-5;
S(t)——考虑徐变影响的应力松弛系数考虑,取S(t)=0.5;
L=75000mm(底板混凝土长度);
H=3000mm(底板混凝土厚度);
Cx——地基水平阻力系数,考虑滑动层,取Cx =0.03kN/m;
△T——最大综合温差。
4.6.5.2 弹性模量E(t),详见表16。
3m 厚底板混凝土各龄期的弹性模量表 表16
| 龄期(d) | 6 | 9 | 15 | 30 | 60 |
| E(t) | 1.25×104 | 1.67×104 | 2.22×104 | 2.80×104 | 2.99×104 |
4.6.5.3 计算ΔT
1)各龄期混凝土的收缩变形值
按公式εY(t)=ε0Y(1- e -0.01t)×M1×M2×…Mn,
T' Y(t)=-εY(t)/α
各系数选用详见表17 (取ε0
Y =3.24×10-4) 。
3m厚底板各龄期混凝土的收缩当量计算用系数表 表17
| 龄期(d) | 6 | 9 | 15 | 30 | 60 |
| M1 | 1.000 | 1.000 | 1.000 | 1.000 | 1.000 |
| M2 | 1.130 | 1.130 | 1.130 | 1.130 | 1.130 |
| M3 | 1.000 | 1.000 | 1.000 | 1.000 | 1.000 |
| M4 | 1.210 | 1.210 | 1.210 | 1.210 | 1.210 |
| M5 | 1.000 | 1.000 | 1.000 | 1.000 | 1.000 |
| M6 | 10.4 | 0.96 | 0.953 | 0.930 | 0.930 |
| M7 | 1.000 | 1.000 | 1.000 | 1.250 | 1.250 |
| M8 | 1.000 | 1.000 | 1.000 | 1.000 | 1.000 |
| M9 | 1.000 | 1.000 | 1.000 | 1.000 | 1.000 |
| M10 | 0.800 | 0.800 | 0.800 | 0.800 | 0.800 |
| ∑* | 1.138 | 1.050 | 1.042 | 1.272 | 1.272 |
各龄期混凝土的收缩变形值,详见表18。
3m厚底板各龄期混凝土的收缩相对变形计算值 表18
| 龄期(d) | 6 | 9 | 15 | 30 | 60 |
| εY(t) | 2.15×10-5 | 2.93×10-5 | 4.70×10-5 | 1.07×10-4 | 1.86×10-4 |
2)综合温差ΔT,详见表19。
3m厚底板各龄期混凝土的综合温差值 表19
| 龄期 | 6 | 9 | 15 | 30 | 60 |
| △T'(t) | 3.7 | 6.5 | 11.9 | 24.4 | 29.6 |
| T'y(t) | 2.1 | 2.9 | 4.7 | 10.7 | 18.6 |
| △T(t) | 5.8 | 9.5 | 16.6 | 35.0 | 48.1 |
4.6.5.4 最大外约束应力,详见表20
L=75000mm H=3000mm
Cx=0.03N/mm2 ft(R90)= 1.71N/mm2
3m 厚底板各龄期混凝土的最大外约束应力值 表20
| 龄期(d) | 6 | 9 | 15 | 30 | 60 |
| βi | 2.8×10-5 | 2.5 ×10-5 | 2.1 ×10-5 | 1.9 ×10-5 | 1.8 ×10-5 |
| S(t) | 0.500 | 0.500 | 0.500 | 0.500 | 0.500 |
| σ(t) | 0.139 | 0.246 | 0.460 | 1.018 | 1.414 |
| ft | 0.681 | 0.835 | 1.029 | 1.293 | 1.556 |
| ft/σ(t) | 4.91 | 3.40 | 2.24 | 1.27 | 1.10 |
各龄期的抗裂安全度K 都不小于1.05,满足抗裂要求。
4.6.6 验算裂缝间距
4.6.6.1 应用公式
![]()
式中 α——混凝土的线性膨胀系数, 取1.0×10-5
εp——考虑徐变影响时钢筋混凝土的极限拉伸
T——综合温差,
4.6.6.2 基本参数,详见表21。
3m厚底板基本计算参数值 表21
| H=3000mm | ft(R90)=1.71MPa |
| E=3.15×104MPa | μp=1.71% |
| Cx=0.03N/mm3 | d=32mm |
4.6.6.3 混凝土的极限拉伸,详见表22。
3m厚底板各龄期混凝土的极限拉伸值 表22
| 龄期(d) | 6 | 9 | 15 | 30 | 60 | 90 |
| εp(t) | 7.82×10-5 | 9.59×10-5 | 1.18×10-4 | 1.48×10-4 | 1.79×10-4 | 1.96×10-4 |
4.6.6.4 综合温差T,详见表23。
3m厚底板各龄期混凝土的综合温差值 表23
| 龄期(d) | 6 | 9 | 15 | 30 | 60 |
| △T'(t) | 3.7 | 6.5 | 11.9 | 24.4 | 29.6 |
| T'y(t) | 2.1 | 2.9 | 4.7 | 10.7 | 18.6 |
| △T(t) | 5.8 | 9.5 | 16.6 | 35.0 | 48.1 |
4.6.6.5 计算裂缝间距,详见表24。
3m厚底板各龄期混凝土的裂缝间距值 表24
| 龄期(d) | 6 | 9 | 15 | 30 | 60 |
| α×T | 5.81×10-5 | 9.46 ×10-5 | 1.66 ×10-4 | 3.50 ×10-4 | 4.81 ×10-4 |
| 各龄期弹模E(t) | 1.25×104 | 1.67 ×104 | 2.22 ×104 | 2.80 ×104 | 2.99 ×104 |
| β | 3.5 ×104 | 4.08 ×104 | 4.71 ×104 | 5.29 ×104 | 5.46 ×104 |
| L | ∞ | ∞ | 135.86 | 91.12 | 85.17 |
| Lmin | ∞ | ∞ | 90.57 | 60.75 | 56.78 |
4.7 底板混凝土自约束应力计算
按内表温度差30℃计算。
4.7.1 套用公式:
各龄期混凝土的最大自约束应力:

4.7.2 各龄期最大自约束应力,详见表25。
底板各龄期混凝土的最大自约束应力 表25
| 龄期 | 3 | 6 | 9 | 12 | 15 | 18 | 21 | 24 | 27 | 30 |
| Tmax-Tb | 30.0 | 25.0 | 20.0 | 18.0 | 15.0 | 10.0 | 10.0 | 8.0 | 6.0 | 4.0 |
| E(t) | 7.10×104 | 1.25×104 | 1.67×104 | 1.98×104 | 2.22×104 | 2.41×104 | 2.55×104 | 2.65×104 | 2.74×104 | 2.80×104 |
| H(t) | 0.350 | 0.400 | 0.500 | 0.524 | 0.570 | 1.000 | 1.000 | 1.000 | 1.000 | 1.000 |
| σ(t) | 0.329 | 0.552 | 0.735 | 0.824 | 0.838 | 1.062 | 1.124 | 0.937 | 0.724 | 0.494 |
| ft | 0.372 | 0.672 | 0.852 | 0.993 | 1.115 | 1.201 | 1.287 | 1.348 | 1.410 | 1.43 |
| ft/σ(t) | 1.13 | 1.22 | 1.16 | 1.20 | 1.33 | 1.13 | 1.15 | 1.44 | 1.95 | 2.90 |
4.7.3 结论
各阶段的自约束应力均在安全范围之内,不会引起表面开裂。
4.8 测温方案
4.8.1 测温仪器采用JDC-2 建筑电子测温仪。仪表为手持式数字显示仪,具备高低温报警功能。
4.8.2 测温点布置:
4.8.2.1 距混凝土表面1.5m 高度、露天、不易破坏处设三个普通温度计测量大气温度,气温取读数的平均值。
4.8.2.2 在每个混凝土泵口用测温探头、测温线固定在木棍上制成的探杆测量混凝土的入模温度。
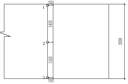
4.8.2.3 各段测温点的布置见图3~图8。
4.8.2.4 混凝土浇筑前在选定的测温点上预埋测温线和测温探头,测温线和探头用胶带固定在φ12 的钢筋上,探头用塑料布包裹,与钢筋之间用绝缘胶布隔离。测温线另一端的插头依据编号贴上标签,插头在浇筑混凝土前要用塑料布包裹好,防止被污染或破坏。
4.8.2.5 测温线引出高度应高于混凝土面1.5m,浇筑机坑布设测温线时,应注意在二次浇筑底板后仍要继续检测机坑内混凝土的温度变化,引线长度应再增加3m。

图3 I 段测温点平面布置图

图4 II、III 段测温点平面布置图

图5 IV 段测温点平面布置图

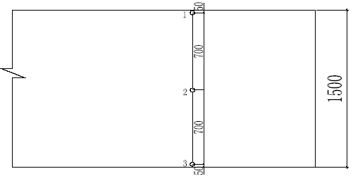
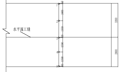
图6 3m 厚底板内测温点垂直方向布置图

图7 1.5m 厚底板内测温点垂直方向布置

图8 机坑内测温点垂直方向布置图
4.8.3 测温时间
1)混凝土浇筑开始起测温,第1~4d 每1h 测温1 次。
2)第5~15d 每2h 测温1 次。
3)第16~30d 每4h 测温1 次。
4)第31~60d 每12h 测温1 次。
5) 原则上,在混凝土中心温度低于入模温度后可停止测温。
6) 如监理或设计方有要求,第61~90d 每24h 测温1 次。
4.8.4 测温数据的管理
利用计算机对测温数据进行信息化实时管理。
预先编制好温度曲线的描绘程序和温度应力的计算程序,及时整理录入测温数据,描绘出温度曲线、计算出累加温度应力,与浇筑前的估计情况进行比较,推断下一时段的温度和应力变化趋势,根据计算结果决定是否调整保温方式和保温层厚度。
4.8.5 设置专人负责测温工作,并在施工前对测温人员进行详细的交底,保证数据采集的准确性。
4.8.6 测温注意事项
4.8.6.1 浇筑混凝土前应检查支撑钢筋是否牢固,测温点标高是否准确,探头、插头是否包严。
4.8.6.2 使用探头测混凝土入模温度时,不得在流动的混凝土中探测。探头插入混凝土约一分钟左右后读数,每次使用完毕应将探头擦试干净。
4.8.6.3 测温仪主机为精密仪表,使用时应小心轻放,严禁摔碰,使用完毕及时关机。
4.8.6.4 严密监测混凝土的温升情况,根据温度记录,增减保温材料厚度或层数。控制大体积混凝土中心温度与表面温度之差,表面温度与环境温度之差小于30℃。当大体积混凝土中心温度与表面温度之差超过30℃时,可增加保温材料厚度或层数;表面温度与环境温度之差超过30℃,可适当减少保温材料厚度或层数,反之亦然。
4.8.6.5 是否停止保温、测温,必须听从本项目技术部门指令,不得擅自停止测温。
施工部署
5.1.1 供应商的确定
通过招标和“业主、监理、施工”三方现场考察的方式选定本工程商品混凝土的供应商。
在签订商品混凝土供应协议时,必须申明使用部位混凝土的性能与数量。原则上框定混凝土强度等级、抗渗等级、坍落度、浇筑时间和工程部位等数据,工程质量在材料保证上首先得以落实。
5.1.2 商品混凝土原材料
商品混凝土原材料及配合比必须符合相关国家规范、北京市地标和本方案第2 章的规定。针对本工程施工的季节、气候、运距以及工程特点等多方面因素,在常规混凝土配合比的基础上,对混凝土的配合比有针对性的试配,根据试验结果确定施工配合比。
原材料及混凝土的检验试验报告必须在施工前报交建设单位、监理单位查验,经建设单位、监理单位、施工单位等共同认可后,方允许投入施工。
外加剂、砂石等必须覆盖,不得露天存放,避免阳光直射,并在拌合前2d 将碎石洒水降温;拌合水应使用地下水,并预先加冰块降温;散装水泥的出场温度较高(可达75oC),因此,散装水泥必须提前进料降温,保证拌合时的温度在35 oC 以下。无论采取何种措施,必须保证混凝土的到工地温度不超过本方案第4 章4.2.6 条的规定。
5.1.3 商品混凝土供货
为了保证混凝土能够及时运送到工地,我部与混凝土供应商对运输线路进行了考察。确定了搅拌站到工地的线路,同时对运输线路上的车流量高峰时间进行了分析,准备应急方案,来确保混凝土及时送到现场。行车路线见附图1~附图6。混凝土浇筑前2d,会同混凝土供应商对选定的路线要再次进行详细考察,根据当时的交通状况和现场条件,调整交通方案和制
定应急方案,完善混凝土供应方案。
为预防底板混凝土在浇筑过程中,出现停、断混凝土的情况,已与两家租赁公司联系好混凝土运输车,作为备用车辆。
混凝土搅拌运输车应加盖保温套,降低运输过程中的冷量损失。
混凝土搅拌运输车装料前需将拌筒中积水排净。运输途中,拌筒以1~3r/min 运行,以防止混凝土离析。混凝土罐车到工地现场卸料前,应使拌筒以8~12r/min 速度转运1~2min,然后再反向转动卸料。
基础底板混凝土浇筑量大,混凝土供应商随供货派出现场调度、技术人员各一名驻场,随时反馈工地混凝土的质量并及时调整。商品混凝土搅拌站的生产机械设备详见表26。
商品混凝土搅拌站的生产机械设备一览表 表26
| 序号 | 设备及机器名称 | 型 | 号 | 产地 | 出厂日期 | 数量台 | 功 | 率 | 备 | 注 |
| 1 | 搅拌机 | HZS-150 | 福建 | 2002.5 | 2 | 234(kW/) | 300m3/h | |||
| 2 | 混凝土运输车 | 五十铃HJC5270GJB 6 | 日本 | 2002.6 | 30 | 250/2300 (km/r/min) | 240m3/趟 | |||
| 3 | 混凝土运输车 | MAN(10m3) | 德国 | 2003.1 | 15 | 250/3500 (km /r/min) | 150 m3/趟 | |||
| 4 | 汽车泵 | 三一(42m) | 湖南 | 2002 | 4 | 165 (kW/台) | 400m3/h | |||
| 5 | 拖式泵 | 三一HBT80C-211 8D | 湖南 | 2002.4 | 1 | 80 (/h/台) | 柴油泵 | |||
| 万士WST90B-20 | 浙江 | 2001.6 | 3 | 80 (/h/台) | 柴油泵 | |||||
| 鸿德利 | 上海 | 2002.6 | 6 | 90 (/h/台) | 柴油泵 | |||||
| 6 | 铲车 | CL50 | 广东 | 2002.6 | 2 | 210 (马力/台) | ||||
| 7 | 砂石分离机 | THF50 | 江苏 | 2002.7 | 1 | 15(kW) | ||||
| 8 | 汽车衡 | SCS-100 | 北京 | 2002.6 | 1 | 100t | ||||
| 9 | 罐装水泥运输车 | 国产 | 10 | 30t/辆 | ||||||
5.1.4 商品混凝土试验
商品混凝土应提供商品混凝土书面资料,即提供:原材料出厂合格证、试验报告、含碱量报告;商品混凝土配合比申请通知单;商品混凝土开盘鉴定书;商品混凝土出厂合格证;商品混凝土抗压试验报告、抗渗试验报告等。
5.1.4.1 混凝土试块的取样方式
现场取样时,以搅拌车卸料1/4 后至3/4 前混凝土为代表。
5.1.4.2 商品混凝土坍落度测试
交货地点的坍落度与出站前坍落度允许偏差≤20mm。
浇筑现场每5 车检查一次坍落度。
5.1.4.3 每车混凝土入场后都必须检测温度。
5.1.5 保证混凝土质量措施
5.1.5.1 严格原材料的进场检验,检测合格后方可使用。
5.1.5.2 严格混凝土的开盘鉴定,保证开盘混凝土的原材料相符,计量符合规定,混凝土的和易性满足要求。
5.1.5.3 要根据混凝土浇筑量大小和施工进度,合理调整搅拌进度,使混凝土的浇筑温度符合要求。
5.1.5.4 出厂的混凝土车严格检查,不符合要求的混凝土不准出厂。
5.2 混凝土浇筑施工安排
本分项工程施工安排指导思想是在《施工组织设计》的要求下,按部就班、有条不紊地按混凝土工程“拌(合)—运(输)—浇(筑)”3 大过程即施工工艺流程进行作业,以期完成质量目标和工期目标。
5.2.1 施工段及施工顺序
按设计后浇带和施工后浇带将整个底板分成I、II-1、II-2、III、IV 五个施工段,施工段划分见图1。
根据+0.000 以下施工进度计划,确定施工顺序如下:
II-1 段→III 段→II-2 段→I 段→IV 段
5.2.2 各段混凝土浇筑机械设备的投入
5.2.2.1 混凝土泵的平均泵送量Q1 的计算
根据Q Q 1 = max αη
式中 Q1——每台混凝土泵的实际平均输出量,/h;
Qmax——每台混凝土泵的最大输出量,/h;
α1——配管条件系数,取0.8~0.9;
η——作业效率:可取0.5~0.7。
本工程采用的混凝土泵的输送能力为80/h。
α1=0.85;η=0.6
1 Q =80×0.85×0.6=40.8/h
5.2.2.2 每台混凝土泵所需配备的混凝土搅拌运输车辆
计算公式

式中 N1——混凝土搅拌运输车台数;
Q1——每台混凝土泵实际输出,m3/h;
V1——每台混凝土搅拌车容量9m3;
S0——混凝土搅拌运输车平均的车速度,km/h;
L1——混凝土车搅拌车往返距离(km), 取定20km;
T1——每台混凝土搅拌车总计停歇时间,min;
则:

5.2.2.3 各段须配备混凝土搅拌车、输送泵数量及浇筑时间详见表27
各段须配备混凝土搅拌车、输送泵数量及浇筑时间 表27
| 浇 | I 段 | II 段 | IV 段 | ||||
| 筑段 | 机坑 | 底板 | Ⅱ-1 | Ⅱ-2 | III 段 | 机坑 | 底板 |
| 混凝土量 | 1843 | 8519 | 755.4 | 2676.1 | 3139.2 | 1236.2 | 7840.5 |
| 混凝土泵 | 4 | 5 | 3 | 4 | 5 | 3 | 6 |
| 混凝土搅拌车 | 23 | 29 | 16 | 23 | 29 | 16 | 29 |
| 浇筑时间 | 18h | 62h | 11h | 26h | 23h | 18h | 46h |
5.2.3 浇筑前的准备
由于本工程处在东三环路边,交通受到限制过多。为保证交通顺畅,应配备专门的人员进行指挥,统一协调部署。为保证浇筑的顺畅,事先需充分做好一切准备。
5.2.3.1 接管:泵管必须牢固架设,输送管线宜直,转弯宜缓,接头加胶圈,以保证其严密,泵出口处要设一定长度的水平管,浇筑前先用混凝土减石砂浆湿润泵管。
垂直方向采用钢管搭设脚手固定泵管,其脚手架搭设成塔式,靠近护坡桩的立杆放在护坡桩与槽钢锚梁之间,水平斜撑用短钢管与护坡桩边的锚梁相连接牢固,垂直方向泵管架设详见图9.

图9 泵管垂直布置示意图
泵管水平方向用φ25 钢筋焊接马凳架设,马凳间距为6m。其马凳的做法详见图10。

图10 水平架设泵管的铁马凳
5.2.3.2 事先与本地区交通主管部门联系,取得他们的支持和帮助,使搅拌车能够在进入工地东侧大门前暂停并排队,并顺利进入工地,施工现场有统一的指挥和调度。施工中配置手持对讲机,为相互联络工具。
5.2.3.3 浇筑前项目部排定各班作业的各岗位人员名单。按照施工方案进行详细的技术交底,使所有参加人员都知晓自己的岗位职责。
5.2.3.4 对模板内的杂物用高压空气吹干净,钢筋上如有油污,则用棉纱蘸稀料擦洗。
5.2.3.5 混凝土浇筑实行“浇筑令”制度,浇筑前对模板及其支架,钢筋和预埋件、预留洞口进行检查,并做好记录,符合设计要求及规范、规定,且经过业主、监理的隐蔽验收签字认可后方可浇筑混凝土。
5.2.3.6 在墙、柱钢筋上必须抄出+1.00m 标高控制线,并用红油漆画上红色三角做标记,现场备有水准仪,对集水坑等标高重点控制,以便随时抄平,控制标高正确性。
5.2.4 各施工段混凝土浇筑的顺序以及混凝土泵车的布置
5.2.4.1 I 段底板
I 段分两次浇筑,第一次为底板下机(集水)坑、第二次为底板。第一次浇筑高度:10-10、11-11、13-13 剖面浇筑标高为-20.30m,3-3、15-15剖面浇筑标高为-20.60m。其余坑周边的浇筑标高为-20.80m,比基底-20.60m 低200mm 便于混凝土表面蓄水养护。详见图11。

图11 I 段地板下的污水(机)坑平面图
I 段基础底板浇筑由南向北的浇筑顺序,配备5 台混凝土拖式泵,浇筑时4 台作业,1 台备用。4 条同时浇筑作业带。东侧由于场内狭小,两台拖式泵和混凝土输送罐车必须临时占用东侧围墙外的便道和停车场,浇筑前由总包配合建设单位向地方有权部门做好协调工作。输送泵的位置及混凝土运输车的场内行走线路见附图1~附图2。
5.2.4.2 II 段底板
II 段基础底板混凝土的浇筑,按照抗裂要求,II 段基础底板增设两道施工缝,分成两个施工段即为II-1、II-2。
II-1 底板混凝土浇筑配备3 台拖式泵, 1 台泵备用,2 台泵作业,由东往西两条作业带同时浇筑。输送泵的位置及混凝土运输车的场内行走线路见附图3。
II-2 底板混凝土浇筑配备4 台拖式泵,1 台泵备用,3 台泵作业,由南往北三条作业带同时浇筑,输送泵的位置及混凝土运输车的场内行走线路37/37见附图4。
5.2.4.3 III 段底板
浇筑III 段底板由西向东的浇筑顺序,配备5 台拖式泵, 1 台泵备用,4台泵作业,在基坑北侧围墙内外道路上共布3 台和西侧其坑外布1 台。浇筑时采取由西向东,4 条同时浇筑作业带,输送泵的位置及混凝土运输车的场内行走线路见附图5。
5.2.4.4 IV 段底板
IV 段分两次浇筑,第一次为污水(机)坑、第二次为A 座核心筒底板.第一次浇筑高度:3-3、15-15 剖面浇筑标高为-20.60m,6-6、14-14 剖面浇筑标高为-20.60m,其余坑周边的浇筑标高为-20.80m,比基底标高-20.60m低200mm 便于混凝土表面蓄水养护。详见图12。

图12 IV 段底板下污水(机)坑浇筑高度示意图
IV 段A 塔筏板平面呈方形,底板浇筑由东北角往西南角浇筑的顺序,配备6 台混凝土拖式泵,5 台工作,1 台备用。北侧围墙内外布置3 台,西侧基坑旁布置2 台。输送管全部沿东西方向平行布置,浇筑时由东向西,5条同时浇筑作业带。输送泵的位置及混凝土运输车的场内行走线路见附图6。
5.2.5 浇筑混凝土的器械准备
基坑底板仓内准备插入式振捣器、铁锹、抹子等工器具。为与混凝土来量相吻合,每一施工段的每条浇筑作业带须配置5 根φ80 插入式振捣器。因底板柱交接局部钢筋密集,尚需准备φ50 插入式振捣器2 根。浇筑过程中要始终保证机具使用状态良好,并配备备用机具。
5.2.6 底板混凝土浇筑各项工作的人员安排
5.2.6.1 管理人员安排,详见表28。
项目经理部对底板大体积混凝土的浇筑、养护等各项工作作出总部署,配备两套人员,管理、监督控制混凝土的施工过程、施工顺序、底板混凝土的施工质量。
底板混凝土施工管理人员安排表 表28
| 序号 | 管理职责 | 值班时间(白班) | 值班时间 |
| 1 | 施工总指挥 | 项目经理 | |
| 2 | 现场协调 | 2 人 | 2 人 |
| 3 | 安全、质量负责 | 1 人 | |
| 4 | 质检员 | 2 人 | 2 人 |
| 5 | 试验员 | 3 人 | 3 人 |
| 6 | 测温记录 | 2 人 | 2 人 |
| 7 | 标高、轴线测量 | 3 人 | 3 人 |
| 8 | 现场临电 | 3 人 | 3 人 |
5.2.6.2 施工人员的安排,详见表29。
施工人员采取四六制作业。每班交接班工作提前半小时完成,人不到岗不准换班,并明确接班注意事项,以免交接班过程带来质量隐患。
各施工段每班施工人员组成表 表29
| 序号 | 工作内容 | I 段 | II 段 | III 段 | IV 段 |
| 1 | 装卸泵管 | 4×4 | 4×3 | 4×4 | 4×5 |
| 2 | 混凝土振捣 | 7×4 | 7×3 | 7×4 | 7×5 |
| 3 | 混凝土出仓 | 1×4 | 1×3 | 1×4 | 1×5 |
| 4 | 平仓抹平压实 | 8 | 8 | 8 | 8 |
| 5 | 现场电工 | 1 | 1 | 1 | 1 |
| 6 | 机械修理工 | 2 | 2 | 2 | 2 |
| 7 | 其他 | 1 | 1 | 1 | 1 |
| 8 | 合计每班人数 | 60 | 48 | 60 | 72 |
底板混凝土浇筑工程系重点作业项目。施工时要求各个工种顾全大局,服从调度,保证项目经理部灵活有效地调度全体施工力量,确保混凝土浇筑保质保量连续施工。
5.2.7 技术交底
混凝土工长在底板混凝土浇筑前向作业班组进行混凝土操作规程和安全施工的技术交底,做好人员安排。
5.3 底板混凝土浇筑施工条件
5.3.1 前期工序通过隐检、预检验收
基础底板、集水坑钢筋及内外墙体、独立柱、暗柱等的插筋安装完毕,外墙上口内模及后浇带模安装、固定完毕,后浇带水平止水缝钢板安装完毕,以上诸分项工程经过隐检、预检报验,由建设单位、设计单位、监理单位、质监单位等会同验收通过。
5.3.2 浇筑高程控制
在内外墙体、柱钢筋上适当部位标出50 水平线和基础底板上皮线,以此控制底板混凝土浇筑高程。并准备φ20 塑料管50cm 长的标尺,随时检测底板混凝土面的标高。
外墙墙体混凝土一次浇至水平止水缝处。在基坑四壁h=3300mm 、防水结构保护墙面上标识水平止水缝高程线(-17.30m),以此控制外墙墙体混凝土首次浇筑高程。
5.3.3 混凝土开盘鉴定与浇筑申请
商品混凝土站及时提供混凝土开盘鉴定书、浇筑申请单等有关资料。
5.4 混凝土试验
5.4.1 准备坍落度桶,以便现场取样测定商品混凝土坍落度。
5.4.2 准备混凝土试模,含标准抗压强度模具(正方体)和抗渗强度模具(圆柱体),以便现场取样,制备混凝土试块,经标准养护、同条件养护后用以测定混凝土实际强度等级、抗渗等级。混凝土试块制备数量均须含有监理单位有见证取样30%。
5.4.3 混凝土试块的留置(见表30)
《混凝土结构工程施工质量验收规范》GB 50204-2002 规定。
抗压强度等级试块,当一次连续浇筑超过1000m3 时,同一配合比的混凝土每200m3 取样不得少于一组(一组3 块)。同条件养护试块的留置组数应根据实际需要确定。
抗渗混凝土试块,连续浇筑混凝土每500m3 应留置一组抗渗试块(一组为6 块),且每项工程不得少于2 组。采用预拌混凝土的抗渗试块留置组数应视结构的规模和要求而定。
每一施工段混凝土试块留置见表30
各施工段混凝土试块留置数量表 表30
| 施工段
混凝土量 () |
标准养护
抗压试块 |
同条件养护
抗压试块 |
标准养护抗
渗试块 |
标准养护
备用试块 |
见证取
样试块 |
|
| Ⅰ段机坑1843 | 10 | 2 | 4 | 1 | 5 | |
| Ⅰ段底板8519 | 43 | 4 | 18 | 2 | 20 | |
| Ⅱ 段 | Ⅱ-1 755.43 | 8 | 1 | 2 | 1 | 3 |
| Ⅱ-2 2676.1 | 19 | 2 | 6 | 3 | 7 | |
| Ⅲ段3139.2 | 16 | 3 | 7 | 1 | 5 | |
| Ⅳ段机坑1236.2 | 7 | 1 | 3 | 1 | 4 | |
| Ⅳ段7840.5 | 40 | 6 | 17 | 2 | 19 | |
| 合计 | 143 | 19 | 57 | 11 | 63 | |
5.4.4 混凝土试块采用人工振捣法制备。
5.5 底板混凝土浇筑施工工艺流程
验筋、验模→清仓→铺浆、灌注→摊平振捣→做外墙水平止水缝→压实抹光→养护
混凝土浇筑
6.1.1 混凝土质量控制:搅拌站派人进驻施工现场,对浇筑过程中的质量进行监控。混凝土到现场后由项目试验室人员与搅拌站共同对混凝土的出罐温度、坍落度进行测试。
测温必须每车都要测量,坍落度按每五车测一次,并且认真做好记录。
6.1.2 施工现场严禁往混凝土内加水和减水。现场人员应收好混凝土小票,并做好记录。
6.2 浇筑方法
I 段和IV 段先浇筑机(集水)坑,间隔15d 左右再浇筑基础底板。
II 段和III 段均一次浇筑完成。全部底板混凝土划分为7 个浇筑段,分7 次浇筑完成。
在各个浇筑段浇筑时采用“分层浇筑、分层振捣、一个斜面、一次到顶”的推移浇筑法(见图13)。分层浇筑宜于混凝土的振捣,且混凝土的暴露面小,冷量损失小,有利于降低基础底板混凝土的最高温升。
IV 段机坑因面积较小,可分层浇筑,分层厚度控制在500mm 以内。
每个浇筑段浇筑混凝土时,各浇筑带齐头并进,互相搭接,确保各浇筑带之间上下混凝土的结合,利用混凝土自然流淌形成的斜面,分层浇筑循序渐进,一次到顶。保证上下混凝土浇筑停歇时间不超过初凝时间,交界面分界处不漏振,这种自然流淌形成的斜面的浇筑方法,能较好的适应泵送工艺,避免混凝土输送管道经常拆除、冲洗、接长,从而提高泵效率,简化混凝土的泌水处理,保证上下层混凝土浇筑不超过初凝时间。

图13 混凝土分层浇筑示意图
每层浇筑厚度要控制在500mm,混凝土自然流淌形成斜面的坡度1:6左右。
每条作业带配备5 台直径80mm 的插入式振捣器,2 台在出料口,其余布置在坡中和坡角。出料后先振捣出料点混凝土,促成流坡,在呈阵列自下而上全面振捣。振捣时严格控制振捣棒的移动距离,特别要注意混凝土的入仓振捣,防止离析和漏振。
6.3 泌水处理
对浇筑过程中出现的大量泌水,采用以下措施:
6.3.1 后浇带两侧的模板采用快易收口网,混凝土浇筑过程中形成的泌水,通过网眼自然流进后浇带。后浇带垫层按3‰的坡度施工,间隔一定的距离设集水井,垫层坡向集水井内,集水井内的水通过潜水泵排水。
6.3.2 施工3m 厚底板时,3000mm 厚筏板和1500mm 底板交接面以上的侧模采用18 mm 厚竹胶板和100mm×100mm 木楞构成模板体系,在模板上口下500mm 处按间距3000mm预留出水口,出水口处设两层800mm厚钢丝网阻止水泥浆流失。
6.3.3 在浇筑最后的阶段,改变浇筑方向,与早些浇筑时的坡面形成积水坑,用潜水泵加软管抽出,潜水泵外罩钢筋笼和钢丝网阻止水泥浆流失。
6.3.4 泵送开始时泵管内的水及稀砂浆泵入吊斗内吊至坑上处理,其余减石砂浆由端部软管均匀分布在浇筑工作面上,防止过厚的砂浆堆积。
6.3.5 由于大体积混凝土底板混凝土连续浇筑,须掌握3d 的天气预报,如有大雨,不得安排混凝土浇筑。为预防天气突然变化,现场应备有足够的覆盖用塑料布,并在基坑四周,设置盲沟和集水井排除雨水。
6.4 混凝土的振捣
6.4.1 下料入仓后,用插入式振捣棒将混凝土摊平并振捣到位,振捣棒必须伸入下层钢筋网下进行振捣。
6.4.2 在浇筑过程中,混凝土振捣是一个重要环节,一定要严格按操作规程操作,做到快插慢拔,快插是为了防止上层混凝土振实后而下层混凝土内气泡无法排出,慢拔是为了能使混凝土能填满棒所造成的空洞。在振捣过程中,振捣棒略上下抽动,使混凝土振捣密实,插点要均匀,插点之间距离控制在50cm,离开模板距离为20cm。采用单一的行列形式,不要与交错式混用,以免漏振,振捣点时间要掌握好,不要过长,也不要过短,一般控制在20~30s 之间,直至混凝土表面泛浆,不出现气泡,混凝土不再下沉为止。
6.4.3 在振捣时振捣器不得碰撞钢筋、模板和预埋件。
6.4.4 在浇筑过程中正确控制间歇时间,上层混凝土应在下层混凝土初凝之前浇筑完毕, 并在振捣上层混凝土时,振捣棒下插5cm,使上下层混凝土之间更好的结合。为保证插入精度,在距振捣棒端部65cm 处捆绑红色皮筋作为深度标记。
6.4.5 为防止30cm 导墙根部出现漏振、烂根现象,导墙处在底板混凝土初凝前要两次补浇混凝土,再用φ30 振捣棒振捣,直到混凝土自下方涌出为止。内模外侧墙根处不得振捣。
6.5 混凝土表面处理
混凝土筑完振捣密实后,表面用铝合金刮杆将混凝土表面的脚印、振捣接槎不平处整体刮平,且使混凝土表面的虚铺高度略高于其实际高度。
待混凝土初凝前,再用平板振捣器振一遍,进行此遍振捣时,应保证振捣后的混凝土面标高比实际标高稍高。在平板振捣器进行振捣时,其移动间距应能保证振捣器的平板覆盖已振捣部分边缘。前后位置搭接3~5cm,在每一个位置上连续振动时间一般保持25~40s,以混凝土表面均匀出现泛浆为准。
平板振捣器振捣完,混凝土初凝时(以可踩出脚印但不会下陷为准),用铝合金刮杆将表面刮平。并用木、铁抹子进行抹压,当混凝土初凝后、终凝前再进行一次抹压,使混凝土面层再次充分达到密实,与底部结合一致,以消除混凝土由初凝到终凝过程中由于收水硬化而产生表面裂缝的最大可能性。整个抹压应控制在混凝土终凝前完成。
6.6 防止钢骨柱移位
I 段、IV 段底板内设计有埋入式钢骨柱,浇筑底板混凝土时应特别注意不得造成钢骨移位。
6.6.1 浇筑到钢骨位置时应在与钢骨连系梁垂直方向上,两侧分别均匀放灰,禁止单向推移。放灰时注意,混凝土不得直接冲击钢骨柱和柱底支架。
6.6.2 振捣第一层混凝土时, 在柱底支架及四周1m 的范围内使用φ50振捣棒细捣,不得使用φ80 振捣棒。
6.6.3 严禁将振捣棒别在下铁钢筋上振捣,同时振捣棒不得振动、冲击钢骨柱和柱底支架。
6.6.4 底板浇筑混凝土时,钢结构分包单位应安排专职人员对钢骨柱进行全过程的监测。
施工缝处理
7.1.1 按抗裂要求,在底板增设两道施工后浇带,第一道设置在7~8轴间,第二道设置在9~10 轴间。施工后浇带做法与沉降后浇带做法相同。
7.1.2 施工后浇带在相邻板块浇筑90d 后用C40(P10)R28 混凝土浇筑。
7.1.3 施工后浇带的钢筋处理与沉降后浇带的钢筋做法相同。
7.1.4 施工后浇带止水做法为:两侧面贴双道缓膨型BW 止水条,见图14。

图14 底板后浇带双道膨胀条止水
7.1.5 浇筑混凝土过程中,有大量的水和水泥通过快易收口网流入后浇带内,而底板钢筋的贯穿给后浇带的后期清理带来困难,处理方法:
1)后浇带内混凝土垫层按3‰找坡。
2)后浇带内设集水井,集水井内防水必须随着底板垫层防水一起施工。
3)赶浆:在浇筑底板混凝土时,用高压水枪在后浇带内往集水井方向冲进行。
7.2 后浇带的模板
本工程后浇带厚度为1500mm,底板配筋比较密,不利于普通模板支模。因此,在后浇带内部两侧面采用永久性模板“快易收口网”。
快易收口网有以下几个特点:力学性能好,受侧压力小;直接观察浇筑过程;自重轻,运输和安装方便;优化工艺,增加抗剪界面;便于穿筋和连续绑扎钢筋;适应分段浇筑混凝土,放工文明;套搪及裁剪操作简便。
在浇筑混凝土后快易收口网一直嵌在混凝土内,模板表面呈波纹状。
使混凝土浆通过模板的每个孔隙渗出,形成一个波纹状的表面。便于两次浇筑混凝土产生最佳粘结效果。
详细做法请参见《模板施工方案》。
7.3 外墙水平施工缝
7.3.1 按《地下工程防水技术规范》GB 50108-2001 规定,本工程外墙
水平施工缝留设在基础底板上皮以上300mm 即h=-17.3m 处。
7.3.2 外墙水平缝和垂直施工缝止水做法:两侧面均采用缓膨型BW 止
水条。
7.3.3 外墙后浇带防水做法详见图15:

图15 外墙后浇带防水做法
7.4 底板后浇带立面卷材防水层保护
为防止降水停止后,底板后浇带立面卷材防水层受水压破坏,底板浇筑混凝土前,在后浇带处立面防水层内侧按防5mm 厚钢板保护,钢板和底板钢筋之间塞混凝土垫块,使钢板紧贴在卷材防水内侧的砂浆保护层上,具体做法见图16:

图16 底板后浇带防水保护钢板
安全与环保措施
8.1.1 塔吊装、拆、顶升必须是有资质单位和有证操作人员。安、顶、拆按照原厂的规定和安全要求进行。
8.1.2 塔吊的“四限位、两保险”必须齐全、可靠。安全部门和信号工经常检查吊具、绳索的磨损程度,安全部门做好检查记录。
8.1.3 当风力达四级以上时不得安、顶和拆卸作业。
8.1.4 夜间施工时塔吊的转臂上装有灯光和指示信号,以保证一定的能见度和促进操作人员的安全警惕性。
8.1.5 塔吊起吊东西时要派责任心强的有证信号工指挥,不得无人指挥或乱指挥。
8.1.6 起重臂下严禁站人。
8.1.7 机械设备防护罩不得随意拆卸。
8.2 混凝土泵送设备的主要安全措施
8.2.1 泵车操作工必须是经培训合格的有证人员,严禁无证操作。
8.2.2 泵管的质量应符合要求,对已经磨损严重及局部穿孔现象的泵管不准使用,以防爆管伤人。
8.2.3 泵管架设的支架要牢固,转弯处必须设置井字式固定架。泵管转弯宜缓,接头密封要严。
8.2.4 泵车料斗内的混凝土保持一定的高度,防止吸入空气造成堵管或管中气锤声和造成管尾甩伤人的现象。
8.2.5 泵车安全阀必须完好,泵送时先试送,注意观察泵的液压表和各部位工作正常后加大行程。在混凝土坍落度较小和开始起动时使用短行程。检修时必须卸压后进行。
8.2.6 当发生堵管现象时,立即将泵机反转把混凝土退回料斗,然后正转小行程泵送,如仍然堵管,则必须经拆管排堵处理后开车,不得强行加压泵送,以防发生炸管等事故。
8.2.7 混凝土浇筑结束前用压力水压泵时,泵管口前面严禁站人。
8.3 环保措施
8.3.1 本项目为国内首家执行美国LEEDTM 绿色建筑认证的写字楼,所用原材料必须符合美国LEEDTM 绿色建筑认证“材料与资源”的要求。
8.3.2 噪声的控制:现场沿基坑四周用红白相间的DN 48 钢管围挡,外侧满挂密目网,浇筑混凝土过程中振捣棒不得振动模板、钢筋等,以降低浇筑基础底板混凝土过程中产生的噪声;现场施工的操作工人在施工时,要有意识地控制说话的音量,以避免人为产生的噪声,减小噪声对周边居民的影响。
8.3.3 混凝土泵、混凝土罐车噪声排放的控制:加强对混凝土泵、混凝土罐车操作人员的培训及责任心教育,保证混凝土泵、混凝土罐车平稳运行、协调一致,禁止高速运行。
8.3.4 水的循环利用:现场设置洗车池和沉淀池、污水井,罐车在出现场前均要用水冲洗,以保证市政交通道路的清洁,减少粉尘的污染。
8.3.5 施工全现场均铺设100mm 厚C15 混凝土硬化,以确保降低施工现场扬尘污染。并且全天候的保持道路湿润无灰尘。
8.3.6 本工程混凝土内所掺的外加剂均不含有氯盐、氨等,避免对钢筋和大气的不利影响。
附图

附图1 Ⅰ段底板混凝土浇筑泵车位置及运输线路

附图2 Ⅰ段底板污水坑混凝土浇筑泵车位置及运输线路

附图3 Ⅱ-1 段底板混凝土浇筑泵车位置及运输线路

附图4 Ⅱ-2 段底板混凝土浇筑泵车位置及运输线路

附图5 Ⅲ段底板混凝土浇筑泵车位置及运输线路

附图6 Ⅳ段底板混凝土浇筑泵车位置及运输线路
星欣设计图库资料专卖店拥有最新最全的设计参考图库资料,内容涉及景观园林、建筑、规划、室内装修、建筑结构、暖通空调、给排水、电气设计、施工组织设计等各个领域的设计素材和设计图纸等参考学习资料。是为广大艺术设计工作者优质设计学习参考资料。本站所售的参考资料包括设计方案和施工图案例已达几十万套以上,总量在数千G以上。
雅居云录(https://yajuyun.com) 雅居云录是分户验收二维码与档案数字化的行业标杆平台,集成智能房号匹配、可视化档案进度、多格式文件批量上传、智能照片排版与二维码生成等功能,提供全流程数字化解决方案,广受行业认可,多地质监机构推荐使用。
雅居云录分户验收二维码后台核心功能:智能房号管理: 可视化呈现房号清单,结构清晰,查找便捷。 模板灵活可配: 内置多地验收模板,支持自定义编辑,快速适配。 批量上传支持: PDF文件和现场照片均支持批量上传、即时归档。 照片自动排版: 验收照片自动生成带PDF档案,节省人工排版时间。 二维码一键生成: 项目二维码秒速生成,支持预览与打包下载。进度可视看板: 实时查看任务状态与完成进度,辅助项目管理。
雅居云录分户验收二维码与电子档案平台二维码一键生成:项目二维码秒速生成,支持预览与打包下载。
雅居云录分户验收:批量上传,自动排版,省时省力,规范标准。