xxxxxx金融培训大厦施工组织设计
目 录
编制总说明
一、简要概况:
本工程为xxxxxx金融培训大厦,座落在xx市xx路与xxx交口处.该工程由xxxxxx投资公司投资,建设单位是xx市xxxxx公司;设计单位为xxxx建筑设计有限公司(中美合作)。
xxxx金融大厦是一座集信贷、财务、培训、娱乐、餐饮、办公为一体的超高层建筑,工程总造价1.7亿元,总建筑面积为40503平方米。由主楼高层与多层裙房两部分组成,主楼地上二十七层,地下两层,建筑物总高度为105.90m。
整个建筑结构新颖,装修高级,造型雄伟。1996年11月中建八局一公司经投标以绝对的优势,总承包了该工程的全部施工项目,并于当年11月 25日按时开工。由于该工程地处繁华市区,地理位置显要,我中建八局一公司决心以该工程为契机,再展我八局雄风,再塑铁军形象,把该工程列为局重点工程、局科技示范工程,选择配备了精良的设备,技术素质好、管理水平高的项目管理人员和施工队伍,使用多项新技术、新方法进行拖工,决心创造一个“鲁班奖”工程,以一流的施工质量矗立在天津。
二、编制的依据:
编制切实可行的施工组织设计,是搞好本工程施工的重要保证之一。为满足工程施工需要,我们先将基础工程(地下)部分编制完成,随后编制整体施工组织设计。在总工程师的领导、组织下,经技术科、项目工程师的共同努力,总施工组织设计已编制完成。
该工程总施工组织设计的编制依据是:
1、甲方提供的全部施工图纸和招标文件等;
2、工程特点、水文地质资料和环境条件等;
3、我公司的技术力量、机械设备情况、多年积累的施工经验、现在在施工程中的新技术、新工艺、新材料等;
4、施工预算、我公司经认证的质量保证体系文件、中建总公司CI战略、甲方对工期、质量的要求等;
5、国家现行的规范、标准及地方有关法令、法规、文件等。
具体施工组织设计编制过程中,所参照的标准、规范及有关资料等如下:
(1) 人防工程GBJ134-90
(2)地基与基础工程GBJ203--83
(4) 混凝土结构工程 GB50204-92
(5)砖石工程GBJ203-83
(6)木结构工程 GBJ206-83
(7)屋面工程技术规范GB50207-94
(8)地下防水工程 GBJ208-83
(9)建筑地面工程 GB50209-95
(10)建筑防腐工程 GB50212-91
(11)钢筋焊接工程 JGJ18-84
(12)装饰工程JGJ73-91
(13)铝合金玻璃幕工程 JGJ102-96
(14)采暧卫生与煤气工程GBJ242-82
(15)通风与空调工程GBJ243-82
(16)电梯安装工程 GBJ310-88
(17)制冷设备安装工程 GBJ66-84
(18)火灾自动报警工程GB50166-92
(19)电器装置安装工程GB50254--59一96
GB50268--69-96
(20)无粘结预应力技术规程 JGJ/T92-93
(21) 预应力混凝土钢绞线GB50224-85
(22)钢结构工程 GB50205-95
(23)钢结构评定标准GB50221-95
(24)钢绞线钢丝束无粘结预应力筋JG3006-93
(25)无粘结预应力筋专用防腐润滑脂JG3007-93
(26)钢管混凝土结构设计与施工规程GEGS28-90
(27)参考文献:高层施工手册、工程师手册、建筑高层防火手册、玻璃幕墙工程技术规范应用手册等。
三、编制原则:
根据该工程的设计要求高、新工艺多、环境位置显要、现场狭窄、工期紧。质量要求高的特点,我们对该工程的施工组织进行了优化设计。我们的编制原则是:用新技术、新工艺、新材料来指导编制,要体现出组织设计的先进性、可行性和施工的指导性作用,用先进的、科学的、管理方法来编制施工组织设计,充分体现出高速、优质、文明、安全施工.同时要使我公司已认证的ISO9002质量保证体系体现在施工组织设计中,使现场文明施工中充分体现中建总公司的CI战略和树立我公司的企业形象。
四、施工组织设计简要概况:
我们在编制施工组织设计中,认真贯彻执行国家对工程建设的各项方针、政策,严格执行工程建设的程序。为保证工期和质量,我们设计组建管理能力强、技术素质高的项目管理班子.对工程全方位的管理,选择了技术素质好.能拼能干的施工队伍.配备了先进的机械设备.以充足的力量投入该工程施工。工程设计使用了多项新技术、新工艺。如基础正、逆作法施工、钢管混凝土柱、无粘结预应力混凝土楼板、模壳楼板、铝合金幕墙、新型地下防水材料等。我们为以上新技术、新工艺的实施,在施工组织设计中进行重点设计,相应地采取了先进的施工工艺和先进的设备;基础(地下室)底板钢筋量多,钢筋直径大,优化选用了钢筋冷挤压连接技术;场地狭窄,无法布置混凝土搅拌站,选用了商品混凝土,外墙选用爬升脚手架;结构阶段选用碗扣式脚手架和快拆体系端头,电梯井施工采用伸缩式电梯井筒模板;激光铅直仪垂直控制技术等.为保证工程的结构质量,我们对钢管混凝土柱的焊接、安装、检验、混凝土浇筑,重点进行了设计,并委托了权威检验单位,对焊接质量进行控制,选择了各专业队伍从事各项新技术施工。我们设计的主导思想是,以雄厚的、先进的机械设备,先进的施工工艺,最快速度,最好的质量完成该工程。
本施工组织设计中还可能存在一些不周全地方,望各单位领导审核,审批时。批评指正,力争完善。
编制单位:xxxxxxxx公司技术科
参编人员:xxx xxx xxx xxx xxx xxx xxx
打印:xxx xxx
校对:xxx
第一章、工程概况
一、工程特点:
本工程为xxxx金融大厦,座落在xx市xx路与xxx交口处。投资单位:xxxxxx投资公司;建设单位是xx市xxxxx公司;设计单位:xxxx建筑设计有限公司(中美合作),施工单位。中建八局一公司,施工单位承包全部的土建、安装及部分装修工程。工程造价为1.7亿元。开工日期:1996年11月25 日,竣工合同日期为1998年12月 28 日历天数:764天。
xxxx金融大厦是一座集信贷、财务、培训、娱乐、餐饮、办公为一体的超高层建筑,总建筑面积为40503平方米,由主楼高层与多层裙房两部分组成,主楼地上二十七层,地下两层,地下室建筑面积为7539平方米,地下一层做车库及变电站用,两处坡道式入口通向地下二层,地上部分首层层高为9.6m(其中有6.1m 夹层),二—五层层高3.5m,七层以上标准层3.4m,建筑物总高度为 105.90m。外墙围护结构全部为铝合金墙板与双层中空外镀膜玻璃带组成、进大门部分和局部为玻璃幕墙。内墙面面层有磨光花岗岩、烧毛花岗岩、高级涂料面、柚木板、铝板等,地面采用花岗岩,地面砖、水磨石、抗静电地板、木地板等。顶棚大部分为轻钢龙骨石膏板吊顶,餐厅、雅间、多功能厅、地下金库、十层以上办公及教学用房为二次装修。
建筑结构为内框架——外筒体钢筋砼体系地震烈度为7度设防。钢管砼柱网矩形排列,基本柱网:8.7m×8.7m ,钢管径直径为Ф630—Ф1120,分别在+23. 57、+57.52、+74.57处变径,砼标号也依次降低,板为无粘结预应力砼,部分为钢筋混凝土密肋梁板。基本跨度8.7m,次梁随建筑使用功能的变化而灵活变化布置。其砼标号见下表:
| 楼层 | 混凝土标号 | ||
| 墙 | 钢管砼柱 | 梁、板 | |
| 地下二层——地上五层 | C50 | C50、C60 | C35 |
| 地上六层 | C40 | C40 | C35 |
| 地上七层——二十层 | C30 | C40 | C35 |
| 二十一层——二十四层 | C30 | C35、C40 | C35 |
| 二十五层——顶层 | C30 | C35、C40 | C30 |
内隔墙以轻钢龙骨为骨架,以纸面石膏板及石膏刨花板为面层材料所组成的非承重墙为主,部分内墙采用加气砼砌块.厚度为 100、150两种,采用M5混合砂浆砌筑。
基础埋深-9.200m~-10.7m,桩基为Ф800灌注桩,现浇钢筋混凝土底板。厚1.5m,钢管混凝土桩、地下连续墙兼作围护,楼板为密肋梁板结构。地下室防水设计为刚柔结合,防排结合,因地制宜,综合防治的方法。地下室混凝土均为S8抗渗混凝土自防水,经界面处理抹刚性硅类防水砂浆,刷硅橡胶涂层,地下二层做卵石排水层。屋面为硅橡胶涂层防水。
安装工程包括冷热源、空调、电力、给排水、弱电系统、消防、电梯等多项系统,其中:①首层、二层采用全空气空调系统,由二台2KW的空调机组分别负担首层及夹层,2—27层采用风机盘管加新风的空调系统;②电力系统包括变配电、动力和照明等,变电所在地下二层设置,双电源埋地电缆经防水套管引入地下一层,由电缆桥架及保护钢管电缆沟支架至高压室进线柜,电源电压 10KV;③给排水系统包括生活用水系统与消火栓系统。生活用水系统三层以下由市政管网直接供水;四至十层由十八层水箱经十八层水箱重力供水,十八层以上由二十七层屋顶水箱供水;消火栓系统:九层以上由十八层中间水箱重力供水,十一层以上由屋顶水箱间内消火栓专用恒压变量泵压力供水。
由于本工程使用功能复杂,建造标准高,而施工场地狭小,工期紧迫,给施工带来很大的困难,设计施工长期处于同步状态,施工过程涉及到建筑、结构、装饰、设备、电气各专业,交叉作业情况极为复杂繁琐,望各施工人员认真熟悉图纸,密切配合,严格按照施工程序及操作规程施工,高标准,严要求,一丝不苟。
二、地点特点:
本工程原址为xxxxxxx中心,位于xx市区xx路与xxx交口处,北邻中环线1.2m,西邻居民住宅6.5m,市距民房0.8m,东侧距在施地xxxx金融中心大厦10.3m。由于地处城市繁华闹区,又邻主要交通干道,现场狭窄,位置显要,土质差,地下水位高,因此在施工时,要做好基坑维护、降水和安全防护工作。
本工程面积大,结构复杂,施工工期较长,气侯对施工有较大的影响。天津市的气象特征为每年的6月下旬至8月下旬为雨季施工期,11月上旬至次年的3月上旬为冬季施工期,极端最低气温为-14℃至-22℃,根据季节的变化,要采取措施做好冬雨季施工。
三、施工条件:
本工程施工现场可以从城市马路进出,施工用电、用水由建设单位负责接入现场,均达到或超过施工高峰期的用电、用水量,现场已经平整完毕,建筑材料、预制构件及施工机械均可以从马路直接进入工地,全部材料均由施工单位自行采购,供货渠道由材料科落实,全部预制构件由分公司预制厂供应,施工机械,运输工具和劳动力由施工单位根据工程进度自行调配平衡,来源由公司保证。
第二章 新技术应用和开发
该工程地处xx市繁华地段,场地狭窄。结构为框筒结构,无粘接予应力楼板,柱为钢管砼柱。从主体结构到装修、装饰、该工程的技术含量高,施工难度较大,根据本工程的特点及地理位置拟在本工程中开发使用四项新技术,推广应用八项新技术。
一、新技术在本工程的开发项目
1、钢管砼施工技术
本工程中的框架柱为Ф630—Ф1120mm的钢管砼柱,它从工程结构到施工,具有很多优点,钢管代替了施工的柱模板和结构中的钢筋;它与钢结构比较,在承载力相等的情况下可节约50%的钢材;它与普通钢筋混凝土框架相比,在用钢量和承载力相同情况下,构件的截面可减少一半,且抗冲击能力得到大大的提高。该技术的应用,在国内尚处领先地位。钢管砼柱的施工,我们还是首次,没有经验可以借鉴,所以我们在该项工程施工时,要严格按照设计要求和规范规定,编制详细的施工方案。并与设计密切结合征得设计的指导,必要时聘请专家指导,关键要作好钢管的制作、安装、在浇筑等工序的施工质量,保证工程的整体结构质量。
2、半逆作法施工
该工程地势狭窄,西南面邻建筑物,在北面临主要交通干道,地下水位高,基础土质差,基础埋深为—9.2至—10.7m,根据以上情况,基坑边坡设计采用永久性地下连续墙围护。主楼地下室部分采用正施法施工,±0.00层所对应的其它地下室部分,即裙房地下室部分采用逆作法施工。利用±0.00层处对应的地下室土体,由该处土体平衡弥补地下连续抗倾覆能力的不足,保证主楼地下正施部分的安全.正逆作法施工的接头处留置后浇带,待±0.00层处的梁板柱浇筑完.强度达到100%后,再进行±0.00以下的逆作法施工,这样既保证了主楼部分的施工安全,又保证了工程的施工工期。逆作法施工技术,我们是第一次接触,所以我们每一位工程技术人员特别是该工程的主要技术负责人和项目经理,在进行逆作法部分施工时,要特别认真细致,多与设计联系,向有经验的单位学习。遇到问题及时向公司请示。按照设计逆施的部位,编制详细的施工方案,画出逆作法施工部位的节点详图,说明施工程序及做法,经讨论后进行实施。项目经理部要根据施工情况总结经验,锻炼一批人才,以利今后类似工程的再施工。
3、钢筋冷挤压连接技术:
九六年我们已购置了设备,操作人员已进行了培训,并取得了操作证,但该项新技术在金融大厦工程中使用还是第一次,根据本工程的现场施工条件及该工程中使用粗钢筋的情况,决定该工程基础、主体结构中的钢筋接头采用冷挤压连接。钢筋的冷挤压连接接头适用性广,适合本工程的特点,操作方便,连接质量容易保证,又降低了成本。钢筋冷挤压连接技术在本工程应用,必须先作试件,试验合格后,方可批量生产。
4、地下新型防水材料:
本工程地下二层是金库、变电站,且本工程地下水位较高,为此地下防水非常重要。设计的原则是:以防为主,刚柔结合,多道设防,防排结合。为确保防水效果,除在结构混凝土中掺UEA膨胀剂,加强自防水能力外,还在施工缝处,埋置德国产罗美克思(ROMEX)膨胀橡胶止水带,在带中加注以复合聚氨脂为基础的双注射树脂;对混凝土施工缝可进行耐火密封,堵塞混凝土中的渗水孔,达到抗渗的要求。另外在本工程地下二层外墙衬墙的内侧、与底板相连的混凝土内墙两侧、零层板下及1.5m厚的基础底板上均做硅橡胶防水涂层,作为本工程的第二道防水。硅橡胶防水涂料,是一种复合防水涂料,具有防水性能好,适用性强,经久耐用,无毒副作用,安全可靠,操作方便.可喷、滚、涂。硅橡胶防水涂料,在本工程的使用,必须由专业队伍施工,以保证该工程的防水质量。
以上四项新技术的使用,经理部人员要在施工中总结经验,整理技术、经济效益成果。
二、推广应用项目
1、外架爬升技术
本工程是创鲁班奖工程,建筑物高,地理位置显要,地处河西区繁华地带,紧邻交通主干道,如用外架,脚手架材料一次投入量大,根据其特点,为保证安全,节约材料,我们决定该工程脚手架采用爬升外架,满足结构施工的需要。该项技术是推广项目,但我们还是第一次使用,爬升外架的设计和使用,要请专家设计,并指导施工。
2、无粘结预应力楼板施工技术
该技术具有不预留孔洞、又不灌浆、工序少、结构性能好,操作方便等优点.本工程3—25层的楼板均为无粘预应力楼板。该工程无粘结预应力楼板,由已登记注册,并取得执照的我公司科研所专业队伍施工,并由项目经理部给予配合。
3、碗扣式多功能脚手架支撑体系
该工程的现浇楼板模板的支撑体系,决定使用碗扣式多功能脚手架体系,与快拆模板体系共用,发挥力学性能好接头构造合理,装拆方便,安全性能好,容易操作,不易丢失,损耗小等优点。在去年使用的基础上,今年在该工程扩大推广使用,加快工程的施工进度。
4、竹胶模板
本工程主体结构中现浇楼板,除地下一、二层,地上二十七、二十八层为密肋楼板外,其余均为无梁板,板的跨度大。现浇楼板的模板,拟采用定型竹胶大模板,保证混凝土外观质量,加快施工进度,但在施工前要提前按实际周转量提出加工计划,提前加工、备用。
5、伸缩式电梯井筒模的应用
本工程主体结构中,电梯井为钢筋混凝土筒体结构,用定型组合钢模板,已不能满足施工进度和质量需要。九六年我们自行设计的可调式电梯井筒模,应用后,效果不太理想。今年我们在本工程中引用北京中建模板厂生产的伸缩式电梯筒模板,保证电梯井的平整度和垂直度。
6、商品混凝土的应用:
施工现场场地狭窄,无法布置混凝土搅拌设备及堆放砂石料,因此选择西斯尔混凝土有限公司的商品混凝土,以保证混凝土统一计量配制和混凝土自身质量,及缓解场地狭窄的矛盾。
7、粗钢筋连接技术的应用:
Ф14以上的水平钢筋接头采用对焊接头,梁中的纵向钢筋接头采用冷挤压连接接头。竖向钢筋采用埋弧焊。
8、微机的应用:
现场配备一台586微机,进行技术质量管理、材料管理及现场施工管理等,以提高管理质量和保证管理资料的准确、完整。
第三章、施工部署
一、施工准备
1、技术准备:
①、认真熟悉图纸及各种技术文件、标准规范等,并做好图纸内审和外审工作,要求对图纸本身存在的错、漏、缺等问题,不论大小,都必须有明确的结论,并重点解决好设计构思不相符的矛盾,在能够保证设计构思,又不影响工程质量的前提下,办理好设计变更工作。
②、组织编制施工组织设计,并作为纲领性文件指导施工,同时以网络计划指导生产,以总平面图加强现场管理,认真组织图纸学习,领会设计意图,结合质量验收规范进行图纸会审,提出合理化建议,利用多项新技术,降低工程成本。
③、编制施工预算,要求按下列程序和要求进行;a.掌握并熟悉施工图纸及设计说明、施工定额、施工组织设计、施工平面布置、标准规范等有关技术业务资料;b.计算工程量;c.作劳动、材料、机械台班需用量的分析;d.编写预算书;e.编写编制说明;f.作出限额耗料总表。
④、推广多项新技术,提高工程质量,降低工程成本,例如:外墙整体爬升脚手架、无粘结预应力现浇楼板、钢筋冷挤压连接技术、碗扣式多功能脚手架等十二项新技术的应用,并做出可行性的施工方案。
⑤、经公司审批的施工组织设计,采取“三级制”进行技术交底,即:项目技术负责人--工长--班组长,项目技术负责人向工长进行交底,要求细致齐全,并要结合具体操作部位,关键部位的质量要求,操作要点及注意事项进行交底。
2、现场准备:
①、根据施工总平面的要求及建设单位的指定的上下水源、电源,架设线路和布置好现场的各种生产、生活临时设施,铺垫好现场施工道路,做好现场排水准备工作。
②、根据建设单位提供的水准点和控制桩,放出控制轴线,并在轴线两端埋
设钢筋桩作为轴线控制桩。引测控制点分设于建筑物周边的围墙上,用红漆标出,以做定位、抄平、放线等工作。
3、劳动力、机械、材料的准备:
①、劳动力组织:根据本工程的特点,由生产部门及项目经理部分期、分批组织劳动力进场,并进行入场教育交底,明确任务及施工质量、安全技术目标。在专业施工队的基础上组建专业班组和混合班组。专业班组是按施工分项工程到单一工种组成。混合班组就是多工种组成的班组,这种组合形式便于统一管理,协调施工,有利于加快工程施工进度,提高工程质量。
②、材料、半成品:材料由材料供应站供应大部分材料,现货源已确定。开工前组织有关人员根据施工图纸、预算等做出分部、分项工料分析表,提出材料、预制构件、成品、半成品加工、订货及供应情况。现场构件、材料存放场地必须推平夯实,并辅100mm厚2:8灰土,高出自然地坪,以防雨季积水。材料、构件进场、存放、检查和使用应有专人管理。材料和构件尽可能按施工进度计划分期、分批、分层供应,减少二次搬运,以减少损耗。
③、施工机械的准备:现场施工机具,由项目经理部提出计划,租赁站供应,并由租赁站派出专人负责操作和保养。
二、施工平面布置:
施工平面布置详见附图1——施工平面布置图(略)
1、现场道路及排水:
根据本工程地理位置显著,场地狭窄等工程特点,为保证施工现场道路畅通,为此将零层结构加强,作为±0.000以上主体结构施工时的临时场地,车辆直接可驶上零层板,使用活荷载为1200Kg/m2,此方案报设计院和建设单位,请设计院对零层结构进行设计变更。地连墙上口焊设临时栏杆,保证基础施工阶段的安全。
地连墙地表外侧作600 × 350集水沟,用砖砌内抹水泥砂浆面,上铺混凝土预制盖板;基坑内集水经水泵抽出,排入集水沟沉淀后,排入市政排水系统。
2、现场临时设施布置:
因施工场地狭窄,现场不设混凝土搅拌站,工程中使用的混凝土全部采用商品混凝土。本工程钢筋用量大,成型不复杂,考虑场外加工。现场设一木工棚及小型修理间,进行细木加工和小型机具的修理。为便于管理,有利消防,现场的氧气、乙炔集中管理。现场料具库房要根据施工平面布置图布置,满足消防需要设置。
3、施工用水:
①、施工用水
本工程全部采用商品混凝土,故施工用水高峰在墙体砌筑、抹灰期间,按施工用水定额用水量如下。抹灰4—6L/m2 ,搅拌砂浆300L/m2 ,浇砌块用水300—350L/m3。每天完成工作量按如下考虑:砌体5万块,抹灰面积700一800m2/d,砂浆用量约为40—50m3/d
②施工现场生活用水
基础施工期间,施工人员多数不在现场,装修阶段人员较集中生活用水处于高峰,装修期间施工人员数450人作为计算人工数。
Q2=P1×N2×K3/8×3600=450×25×1.30/8×3600=0.4L/S
③、消防用水
参考有关定额,消防用水:Qs=10L/S
施工现场总用水量为:
Q=0.5(Q1+Q2)=0.5(3.2+0.4)=1.8L/S(Q3=10L/S 取Q=10L/S )
经计算管径D=0.08m,取管径D=100mm,计算水头高度为107m。施工用水由市政管网引入现场,在现场适当位置,砌容量为10m3 的水地一个,水泵两台,扬程为125m,可以满足高层部分的施工用水,解决市政供水管网水压不足的问题,沿建筑物安装水平干管和立管,每层甩三通阀门,备施工用。
4、施工用电
①、根据本工程的施工进度安排,用电高峰将出现在主体结构完成五层以后至主体结构封顶期间,其主要用电分项有:塔吊、施工电梯、电焊机、对焊机、钢筋成型机、木工机械、振动器及生活照明用电等,其用电总量为512KW。全部用电设备及照明不同时使用,需要系数K 取0.7。
P1=K×ΣQ= 0.7×512=360KW
③、选择变压器
P2=(1.05×P1)/cosφ=1. 4×360= 504KW
变压器按两合考虑,每合不小于 260KW
③、导线选择
I=1000×PI/(1.732×380×cosφ)=364A
选用 BLX型导线,截面为 3×150mm2±95 mm2
根据现场主要施工机械用量测算总用电量为512KW ,故现场设560KVA变压器1合,设两条线路,每路按250—400A布置。
5、测量放线标桩的位置及观测位置的确定:
开工时,根据甲方总平面布置图提供的坐标,测出建筑物轴线,引出轴线控制桩至安全部位,建好永久性测量控制点网,以利基础及主体结构施工阶段的轴线测量及检查(详细布置及方法见分部工程施工方法中)。
6、场地安全及防火设施布置:
在施工现场设消防用品房,备齐消防器材、消防工具等,在木工车间及材料库房的适当位置设置消防用具,并堆放消防砂,防止现场失火。现场狭窄,又临交通主干道,施工现场作封闭砖围墙及人行道罩棚,保证行人和车辆的安全,同时上部施工时,四周用竹笆作全封闭,保证施工现场的整体安全和施工的顺利施工及免受外界干扰。
7、垂直运输机械的布置:
根据本工程的结构特点和现场实际情况,为满足施工要求,方便机具的安装,拆除与固定,决定在建筑物的北面安装一台FQ/23B自升式塔吊,南面安装两台SCD200/200J施工电梯,作为本工程基础、主体阶段的垂直运输工具,保证结构施工和装修阶段材料、机具的垂直运输。

基础定位测量示意图

三、施工段的划分和施工程序:
①、基础工程按工程部位划分施工段,中筒为一个施工段.四周地下室部分一个施工段。
基础的施工程序为:
外包部分(工程桩施工、围护桩、环梁、地连墙)→降水→基坑挖土至3.50m→中筒正作法施工部分挖土至-10.70m (分二次开挖)→破桩头→桩基测试→底板混凝土垫层→底板混凝土施工→地下二层墙体、顶板→地下一层墙、零层板
主楼零层以上主体→装饰装修
逆作法地下一层→地下二层→装饰装修
②、主体结构的施工顺序为:筒体钢筋绑扎→筒体支模→筒体浇筑混凝土→钢管混凝土柱制安→钢管混凝土柱浇筑混凝土→楼板支模→楼板钢筋绑扎、安装预应力筋→浇筑楼板混凝土→筒体钢筋绑扎
四、主要施工方案确定
1、基础工程
该工程基础地连墙作为地下室的外墙,在其内侧浇筑80—120mm厚的抗渗混凝土,内配Ф6@200双向钢筋网片,模板采用定型组合钢模板。基础钢筋场外加工制作,现场安装,接头采用冷挤压连接。内筒混凝土墙用定型组合钢模板组合成大模板,Ф12对拉螺栓连接紧固。密肋楼板采用塑料模壳,碗扣式脚手架支承,商品混凝土浇注,采用混凝土输送泵泵送,钢模板用人工倒运,基槽土方采用机械开挖,自卸汽车运土.逆作法施工部分土方开挖采用人工开挖,机械提升运输。钢筋、模板、混凝土浇注与正作法相同。
2、主体结构工程
主体结构为框筒结构,钢管混凝土柱,无粘结预应力板。钢管混凝土柱混凝土浇筑采用高位抛落与振捣法施工,在高位抛落高度不够时,采用振捣法施工。无粘结预应力楼板的模板,用竹胶大模板,碗扣式脚手架及快拆体系支撑。筒体外模采用竹胶大模板,筒内模板采用伸缩式电梯井模,Ф12对拉螺栓连接固定,混凝土浇筑采用商品混凝土泵送。钢筋采用场外加工,现场安装,垂直运输采用塔吊和施工电梯(辅助)。无粘结预应力楼板预应力筋埋放、张拉由我公司科研所专业队伍施工。
3、装饰装修工程
外墙铝板墙、无框中空玻璃幕墙、电梯安装由专业施工队伍施工。其它安装由我公司安装处负责安装。外脚手架采用自升外爬架,内槽装修采用碗扣式脚手架。
五、施工总进度计划及工期控制
1、施工总进度计划
本工程按甲乙双方合同要求,于1996年11月 25日开工, 1998年12月28日竣工,交付甲方使用,总工期为764天。(详细计划见附图2——施工总进度网络计划)。
2、工期控制点
为保证该工程工期目标的顺利实现,我们设计以下几个主要进度控制点:
第一控制点:1996年11月25日,正式开工;
第二控制点:1997年5月30日.基础部分完成至±0.000
第三控制点:1997年9月10日,1——11层结构完;
第四控制点:1997年11月20日,12—24结构完;
第五控制点:1997年12月20日,25—27结构完;
第六控制点:1998年9月10日,内装修完;
第七控制点:1998年9月30日,外装修完;
第八控制点:1998年11月10日,室外工程完;
第九控制点:1998年12月28日,竣工验收。
六、施工组织
1 、施工管理班子的配备
该工程工作量大,地下工程施工复杂;工期紧,地理位置显要。整个工程的建筑装饰质量要求较高,该工程已列为我公司的重点工程,是我公司创“鲁班奖”项目。我公司按项目法施工,选派施工管理经验丰富,管理能力强的人员组成项目管理班子,承担该工程的施工管理。项目经理部配备项目经理、项目副经理、项目技术总负责人各一名,及土建工长、安装工长、装饰工长(其中设一名主管工长)、质量检查员等,组成强有力的项目管理班子,负责从施工准备、工程施工、质量安全监督、工程预结算、至工程回访维修等工作,对业主实行全过程的负责。项目经理、项目副经理和技术总负责人由施工经验较丰富,管理素质较高,并多次创市优工程的李卫华、袁跃华和杨世泰担任,(项目班子人员名单见表一)
项目班子人员名单表(表一)
| 序号 | 姓名 | 职务 | 职称 | 工作责任 | 备注 |
| 1 | 李卫华 | 项B经理 | 工程师 | 全面管理 | |
| 2 | 袁跃华 | 项目副经理 | 工程师 | 施工全面管理 | |
| 3 | 杨世泰 | 技术负责人 | 工程师 | 主管技术质量 | |
| 4 | 王福山 | 主管工长 | 助理工程师 | 现场施工管理 | |
| 5 | 王志伟 | 土建工长 | 助理工程师 | 现场土建施工管理 | |
| 6 | 杨厚祥 | 电气工长 | 助理工程师 | 现场电气施工管理 | |
| 7 | 刘忠荣 | 水暖工长 | 助理工程师 | 现场水暖施工管理 | |
| 8 | 申生洪 | 质量检查员 | 助理工程师 | 现场质量检查 | |
| 9 | 司崇鲁 | 安全检查员 | 助理工程师 | 现场安全检查 | |
| 10 | 张杰孝 | 主管会计 | 会计师 | 成本管理 | |
| 11 | 刘文君 | 预算员 | 助理经济师 | 工程预算、结算 | |
| 12 | 杨殿举 | 测量试验员 | 技术员 | 现场试验、测量 | |
| 13 | 冯森平 | 主管材料员 | 助理经济师 | 材料全面管理 | |
| 14 | 刘广轩 | 材料员 | 经济员 | 现场材料管理 | |
| 15 | 李德山 | 机械管理员 | 技术员 | 现场机械管理 |
2、劳动力的组织与安排
根据本工程建筑、结构特点和装饰要求,结合工期紧、工作量大的特点及
劳动力配备见表二
| 工种 | 人数 | 工种 | 人数 | 工种 | 人数 |
| 钢筋工 | 60 | 瓦工 | 80 | 油漆工 | 20 |
| 木工 | 70 | 水暖工 | 15 | 电焊工 | 14 |
| 砼工 | 20 | 电工 | 15 | 机械工 | 16 |
| 测量工 | 2 | 试验工 | 2 | 综合工 | 30 |
| 通风工 | 10 | 架子工 | 18 | 装饰工 | 30 |
七、施工质量设计
该工程是我公司在天津河西区施工的第一幢高层建筑,位于天津市河西区中环线与友谊路交口处,地处繁华闹市区,地理位置显要,设计新颖,装饰标准高。搞好该工程的施工质量,可给我公司带来巨大的影响,提高我公司的信誉,因此我们已将该工程列为我中建八局局级科技示范工程,为争创“鲁班奖”工程项目。为保证实现这一目标,我公司决心从工程一开始直到工程竣工,狠抓工程的施工质量,从分项抓起,以分项保分部,分部保单位工程的原则,确保分部和单位工程的整体质量。为此按照ISO9002标准建立该工程质量管理标准化措施及管理目标措施,特设计了《创优目标预控计划》(见附表9),对重要部位按全面质量管理方法.设置了质量控制要点(见附表8),确保质量目标“鲁班奖”的实现。
八、三大材、构件及半成品的计划
1、三大材计划
三大材及其它主要材料计划见表三.
主要材料需用计划(表三)
| 名称 | 规格 | 单位 | 数量 | 名称 | 规格 | 单位 | 数量 |
| 钢筋 | I、Ⅱ级 | t | 4396.4 | 加气砌块 | m3 | 906 | |
| 木材 | m3 | 438 | 标准砖 | MU10 | 万块 | 5.1 | |
| 水泥 | 325 #、425#、525# | t | 15808 | 釉面砖 | m3 | ||
| 砂子 | 中砂、粗砂 | t | 29675 | 防水卷材 | m3 | 17541 | |
| 碎石 | 0.5一4cm | t | 33218 | 沥青 | 10# | t | 0.63 |
2、主要构件及半成品计划见表四
主要构件、半成品加工计划见(表四)
| 名称 | 单位 | 数量 | 加工单位 |
| 木门 | 樘 | 108 | 预加厂 |
| 铝合金门 | 樘 | 105 | 厂家定制 |
| 铝合金窗 | 樘 | 233 | 厂家定制 |
| 钢窗 | 樘 | 4 | 厂家定制 |
| 木制防火门 | 樘 | 53 | 厂家定制 |
第四章、水平、垂直运输机械及主要机具用量计划
一、水平、垂直运输机械的确定
由于该工程为超高层建筑,地下二层.地上二十七层外框内筒结构现浇梁、板、柱、剪力墙,结合现场实际情况,正确选择垂直运输机械是该工程顺利施工的关键。
1、垂直运输机械的选择:
为了满足施工要求.方便塔吊和电梯的安装和拆除及固定.根据实际情况.塔吊采用一台FQ/23B,它具有自升、自卸功能。起吊量在工作半径Rmax=50m时.Pmin=2.3t;当Rmin=4.3m时,pmax=10t;Hmax=200m。作为本工程基础、主体结构施工阶段材料、机具的垂直运输机械。根据现场实际情况.塔吊安装在建筑物的北面。
施工电梯安装在建筑物的南面.采用两台SCD200/200J型.安装高度Hmax=125m,Pmax=2000Kg,它安全可靠。作为结构施工阶段辅助垂直运输机械和装修阶段的垂直运输机械,可以满足本工程的需要。
2、塔吊基础、施工电梯基础
塔吊基础在底板下加四根桩,以底板作为塔吊基础,施工电梯基础在±0.000板上,用±0.00板作为基础,其位置的设置见施工平面布置图.固定详见FQ/23B和SCD200/200J使用说明书,施工时严格按设计要求及使用说明书进行。
3、塔吊的拆除
塔吊依靠本身自卸功能降到23米处后,用QT50汽车吊拆除.施工时要确保吊车的安全距离。
4、水平运输机械
水平运输采用4台1t翻斗车作场内砂浆、砌体及其它材料的运输工具。商品混凝土的运输由混凝土搅拌站采用混凝土搅拌运输主运至施工现场.用混凝土输送泵作为施工现场混凝土的水平、垂直运输机械。
二、主要机具用量计划见下表
根据本工程施工的具体情况及我单位的机械储备情况,充分发挥机械化施工 的优势,满足工程施工需要,选用的主要机具如下表:
| 序号 | 设备名称 | 型号 | 单位 | 数量 | 功率 |
| 1 | 塔吊 | FQ/23B | 台 | 1 | 80KW |
| 2 | 施工电梯 | SCD200/200J | 台 | 2 | 60KW |
| 3 | 搅拌机 | JS—500 | 台 | 2 | 40KW |
| 4 | 砼输送泵 | HBT—80 | 台 | 2 | 150KW |
| 5 | 钢筋调直机 | Ф8 | 台 | 1 | 3.5KW |
| 6 | 电焊机 | BX1—300 | 台 | 6 | 132KW |
| 7 | 埋弧焊机 | MH—36—1 | 台 | 4 | 80KW |
| 8 | 对焊机 | NH—100 | 台 | 2 | 150KW |
| 9 | 钢筋成型机 | CW406—1 | 台 | 2 | 80KW |
| 10 | 钢筋切断机 | QJ40—1 | 台 | 2 | 15KW |
| 11 | 小翻斗车 | JS—1J | 台 | 4 | |
| 12 | 棒式振动器 | Z--50 | 台 | 10 | 15KW |
| 13 | 板式振动器 | 台 | 5 | 10KW | |
| 14 | 电锯 | 55型 | 台 | 2 | 15KW |
| 15 | 电刨 | 50型 | 台 | 1 | 3.5KW |
| 16 | 挖土机 | 0.8m3 | 2 | ||
| 17 | 自卸汽车 | TWA—52L(20T) | 台 | 6 | |
| 18 | 钢筋挤压机 | 套 | 1 | ||
| 19 | 潜水泵 | QY—25型 | 台 | 30 | 66KW |
第五章、主要工程施工方法
一、桩基工程
桩基工程施工由甲方外包,本方案不包括。
二、基坑降水和土方开挖
1、基坑降水
本工程基坑属于深基坑,坑底标高为-10.7m,局部-10.8m、—12.0m;浅基坑部分标高为-9.20m,局部为-10.10m、-10.69m、-11.4m;自然地坪-0.30m。本工程基础采用正、逆施工方法相结合的施工方法。主楼为正施工,裙房为逆施工。
基坑降水采用大口井,在基坑范围设置16m深降水井23个,12m深降水井3个,间距14—16m,直径均为Ф600。其中正施工部分设8个井点,逆施部分设18个降水井点;并在基础的西、南两面相应设置了测试点和观测井各两个,用以观测基坑降水过程中地连墙的位移情况及地连墙外地下水位变化情况,以便于针对变化情况采取相应措施。(详见井位平面布置图)
(1)、管井施工
管井采用潜水钻机成孔,先根据井点平面位置放出井位,由钻机成孔,成孔时严格控制井孔垂直度,成孔后,要彻底清除孔底沉渣和井壁泥皮,然后下无砂混凝土管,在井管周围回填粒径3—15mm砾石作过滤层。地面下0.5m以内用粘土填充夯实。
(2)、降水运行
降水安排在水泥搅拌桩施工后开始进行,至±0.00以上结构施工完为止。在土方开挖前降水时间不少于10天,降水时选用扬程为25m的QY-25型潜水泵,每井设一台,共26台,另备用4台。
沿地下连续墙外轮廓线设600mm宽排水沟,沟壁、沟底用红砖铺设,坡度5‰, 在现场东南角设沉淀池,井内水及时抽出后排入沉淀池内,经沉淀后,再用水泵抽走,排入市政排水系统。
降水正常运行后,要作好水位升降记录,并设专人负责,24小时值班,发现异常情况,立即汇报及时研究处理。

(3)废井处理
降水结束后,拆除水泵,用砂石料将并填实。
(4)注意事项:
a、潜水泵安装严格按出厂说明书进行,并严格按现场用电规定接线,防止漏电伤人。
b、潜水泵入井时应仔细居中下沉,防止碰坏井壁。
c、降水过程中应随时检查泵体工作是否正常,如发现异常情况,应立即停机排除障碍后,方能继续运行。
d.经常检查供电线路是否正常,尤其在大风大雨后,必须全面检查线路后,才能启动水泵。
2、土方开挖:
本工程土方开挖具有基坑深,土方量大,场地小等特点,因此土方开挖本着多快好省原则,合理选择施工机械,精心安排工作面,保证机械连续作业。
(1)机械配备:
选用两台0.8m3日产小松挖掘机,最大挖掘深度可达6m,配备8台15T自卸车(视运在情况可适当调整),配备带风镐头的挖掘机一台,小空压泵四台(带风镐头八个)。
(2)、准备:
按平面图放出基坑开挖边线,注意定位桩的保护,坡道及现场出入口处应安警灯,保证足够可见度;地连墙上口焊设临时围护栏杆,以保证施工安全。
根据平面图,在降水期间挖出原支护环梁,利用带风镐头的挖掘机及空压泵人工配合清除。
(3)、开挖方案:
土方的开挖分三步进行,第一步控制挖到-3.50m,第二步挖土深度为3.0m,第三步开挖至槽底,应留200mm土层由人工清槽,地连墙边缘处土体挖土坡度及深度以设计院提供的数据为准.开挖时间控制:正施土方开挖时间为30天;剩余土体为逆作法时开挖。
(4) 具体施工方法:
①、土方开挖在降水10天左右进行,具体根据降水情况确定,第一步开挖至-3.50m,地连墙处不留设平衡土体。为确保地连这墙体稳定,本工程选择两个部位对地追堵位移情况进行监测:D轴、北地连站处为第1点;④轴与东地连这处为部点。每个部位采用竖向测斜仪进行变形观测,观测点在垂直方向从地面直到地下连续墙的底部共设10个测点,自第一步挖土至逆作法地下二层底板完,应连续观测,并专人负责,认真填写水平位移表,确保围护结构安全。在位移监测的同进也要进行地下水位的观测。
②、土方开挖:土方开挖至-3.50m,对于基槽影响车辆通行的原废工程桩用风镐打掉,用汽车吊吊出,然后二、三步土体同时开挖,见开挖示意图。 基坑边坡采用机械大致挖出轮廓,人工进行修坡,机械倒土、外运。于坑东北角密设坡道,以便于车辆进出。如第二步土体界面合水率较高,可局部铺设厚15mm钢板,确保不陷车,同时应挖设排水沟,确保基坑表面无积水。挖至槽底标高,破除桩头,验槽,打混凝土垫层。
③、挖土至废桩顶标高各桩较密集部位时,桩间土机械无法开挖,人工清除至垫层底标高,废桩及工程桩桩头由风镐打掉,汽车吊配合吊出.
④、土方开挖过程中,道作法处降水井应注意保护,降水应一直进行。直至逆作法处土方开挖完,地下二层结构施工完毕为止。
⑤、逆作法处土方开挖待零层板混凝土强度达到100%时进行,地下一层土方采用10t自卸汽车由自行车车库坡道直接运出, 地下二层土方由零层板和地下一层板上预留洞口处用垂直提升架倒运至零层板上再外运。施工顺序按设计要求的间隔式开挖法进行.详见开挖顺序图。为确保工期,地下二层土方倒运应24小时进行。

三、地下结构工程
1、地下室模板工程
地下室一、二层墙体、楼板模板全部采用定型组合钢模板拼装.Ф12对拉螺栓固定,间距700×700mm(有抗渗要求部位采用止水对拉螺杆)。支撑系统均采用碗扣式脚手架。墙体部位,利用定型组合钢模板组合成大模板施工.整体安装、整体拆卸;模板拼装时,缝隙严密,表面平整,表面刷隔离剂。楼板为密肋楼板,采用非标准塑料模壳和GRC模壳;配以可调节端头支撑,边梁位置根据实际情况以钢模、木模拼装.确保模板接缝严密,有足够的强度和刚度。横楞用Ф48钢管,楞上铺木板,再在木板上放置模壳,模壳的放置按照平面布置进行。支撑要有足够的强度和刚度,支撑牢固,要保证结构施工的安全和结构的尺寸和位置正确。在浇筑混凝土时要设专人看管,保证浇筑后的混凝土表面平整,无漏浆,及跑模等现象。
电梯井模±0.000以下部分采用定型组合钢模板拼装,± 0.000以上采用伸缩式筒模。筒模整体提升具体施工方法见电梯井筒模图,筒模和外模采用Φ14穿墙对拉螺栓加固,混凝土达到30%强度可拆筒模,调整筒模内8个花篮螺杆,模板内缩,板面脱离混凝土面,用塔吊整体提升筒模到预定位置,固定筒模。
为加快模板周转使用,支撑系统采用快拆模板体系,在每一根梁和板中间加设一根支撑,在顶部设一块500×500底模与周围模板分开。等混凝土强度达到50%后,拆除模板,只留中间的支撑不拆,顶住梁和板起加固作用,待砼达到70%强度再拆除此杆。
2、地下室钢筋工程及钢管柱施工
本工程用钢量很大,仅底板正施部分达500多吨,且钢筋型号多为Ф28,Ф32,为确保底板钢筋绑扎质量,除严格按设计、规范要求施工外,应加强以下几个环节控制。
A、底板钢筋制作:
底板钢筋连接均采用冷挤压连接,该工艺不仅确保钢筋连接质量,而且解决了施工场地狭小的难题。
(1)、施工准备;
①、材料:钢套管应为低碳镇静钢,且应具备出厂合格证,所有钢材均应具备出厂合格证及复试报告,并经监理认可,方可进行下道工序施工。
②、挤压连接正式操作前,应做型式检验,检验合格后.方可正式施工。正式施工时,均应按500个接头为一批取一组试样做拉伸试验。
③、冷挤压操作人员均经冶金工业部建筑总院培训72小时;持证上岗,严禁无证操作。
(2)、操淮工艺:
压模、套管与筋应相互配套使用.液压油应严格过滤、密封.防止雨水浸入。挤压前,应清除钢筋端头的铁锈、泥砂、油污等杂物,钢筋与套管应进行试套,对不同直径套管不得相互串用,对于纵肋尺寸过大者,应用砂轮打磨,钢筋连接端划出明显定位标志,以此控制钢筋伸入套管的长度,钢筋端头离套管长度中点应不大于5mm,挤压与钢筋轴线应垂直,挤压时自套管中央开始,并依次向两端挤压。
操作人员在挤压过程中.采用的挤压力.压模宽度、压痕直径均应符合产品供应单位提供的技术参数要求,为保证施工进度.底板钢筋冷挤压连接在加工区先挤压一端.在现场作业区再挤压另一端。
(3)验收标准:
①、钢筋、钢套管进场时应具备相应的原材料材质单、合格证、复试报告及半成品加工出厂合格证;
②、压痕深度应实测实量全数检查,符合有关要求,并作好检查记录;
③、挤压连接的钢筋要进行机械性能检验,每500个接头为一批,切取三个试件进行检查和验收.并有试验报告。
(4)、注意质量问题:
①、挤压过程中工作压力严禁过大;
②、钢筋对接应在同一轴线上;
③、严禁钢筋插入套管深度不符合设计要求;
④、非后浇带位置,接头率应不大于75%。
B、钢管柱制作、安装:
(1)、施工准备:
①、钢管及焊条均应具备出厂合格证,且钢管内不得有油污等杂物。确保钢管内壁与核心混凝土的紧密粘接。
② 焊工应做到持证上岗。
(2)施工工艺:
①、钢管柱制作:
钢管混凝土柱经设计同意,可以在柱的任意位置搭接,考虑底板施工方便,底板处钢管柱,2.3m下料,以上部分钢管长度以12米为准。考虑钢管加工误差。衬管尺寸减小6mm,确保钢管便于连接,同时保持0.5mm的膨胀间隙。
钢管下料尺寸应准确,对于管边毛刺应用手动砂轮打平,焊接过程中控制几何尺寸外,注意焊接变形的影响,焊接宜采用分段反向顺序,分段施焊应保持对称,在对称焊接过程中如发现焊点处的焊缝出现裂痕,则全部铲除重焊。
为确保加工质量,钢管下料加工应坚持进行自检、互检、交接检,并在钢管构件上作明显标记,做到责任到人,钢管构件焊接必须全部进行几何尺寸、外观 缺陷检查,焊缝长度的20%作超声波探伤检查,合格后方可进行下一道工序施工
②、钢管柱安装:
a、定位:根据钢管柱放线位置,用汽车吊吊运到位,在柱中心外以钢管柱半径加大450mm画图控制,以该圆弧线作为外控线,因钢管直径存在误差.故以 轴线四周平均控制。
b 垂直度控制:钢管柱垂直度以经纬仪测打钢管柱外缘线控制,同时在钢管柱外壁加挂线锤,以经纬仪测设双方面控制,垂直误差不大于3%。
c 、钢管连接:根据设计要求,衬管可在任意位置连接。为确保焊接工艺不影响工序进行,钢管接头位置应层间错开。同时确保焊缝焊接质量。
d、吊装:钢管吊装采用塔吊进行,吊装过程严禁碰撞,为防止异物落人管内,在混凝土未浇筑前,应将上口包封,防止杂物掉入,钢管柱吊装就位后应进行校正,采取相应措施保证稳定(见附图),在其下一层板上,预甩锚环,用花篮螺杆三根对应拉紧、稳定,确保允许偏差在规定范围之内。
C、水平钢筋与地连墙的锚固:
CGM是一种流动性好,早强、高强、微胀性灌浆材料,具有较好的抗溶性能,本工程底板主筋与地连墙连接均采用CGM连接,工程量大,为确保不影响基础施工进度,CGM粘接施工小组与基础钢筋施工密切配合,24小时作业。为确保钢筋 粘接质量,应加强以下六个环节控制:
(1)钻孔深度应为钢筋直径的15倍,且钻孔直径为50mm,并保持孔内干净;
(2)、灌浆材料每孔必须按体积计算,确保浆料充满孔体。
(3)、钢筋插入长度必须满足设计要求,在钢筋上画线控制;
(4)、施工后12小时内严禁扰动。
(5)、孔洞定位务必准确;
(6)完工后,请监理人员验收。
工程开始前,应做抗拔试件两组,合格后方可进行大面积施工.同时施工过 程中,应按每1000个孔,再做试件一组,作抗拔试验以便跟踪质量控制。
D、钢筋绑扎:
(1)、准备:核对垫层上所有轴线.准确定出暗梁及钢管柱位置。核对图纸、用料等确保无误。
(2)、施工工艺:底板根据钢筋分档标志,摆放下排钢筋.钢筋绑扎应保证 受力钢筋不位移,底板钢筋接头应错开,接头率应不大于75%,后浇带处接头放 大到100%,上下两钢筋根据刚度情况加设马凳,用Ф28钢筋焊成,间距为1.5m,梅花形布置,同时认真核对剪力墙、楼梯、构造柱插筋,严禁漏放、错放。
(3)墙筋绑扎:底板施工时板墙钢筋务必预留准确,并加以固定.同时认 真核查洞口位置、尺寸,钢筋规格、型号。底板混凝土浇筑完后,应再次核查。 墙筋应逐点绑扎,搭接长度及接头位置应符合设计要求和规范要求,搭接处应绑 扎不少于三道.各节点的抗震构造钢筋及锚固长度均应按设计要求进行绑扎。同时应与水暖电各工种密切配合,确保预埋管、预留洞位置、标高准确无误。本工程基础暗梁较多,钢筋绑扎困难,经与设计协商,同意箍筋分开绑扎,但确保搭接长度大于20d。
3、基础混凝土工程:
本工程地下室板室厚1.5m.平面尺寸为3500m2,采用C40-S8混凝土.仅正施部分混凝土量达3100m3,要求一次浇筑完毕,属大体积混凝土.所用混凝土全部采用商品混凝土;我们对施工方法进行了可行性方案研究和混凝土热工计算制定了控制底板混凝土温升及混凝土收缩裂缝的一整套施工技术措施。
A、混凝土热工计算:
底板厚度为1.5m,上下两层配筋,间有暗梁,施工日期为3月底.室外最低气温为12℃,最高温度为25℃,平均气温为18℃,所用材料:425#矿渣水泥450Kg/m3,粗骨科:1170Kg/m3,水:170Kg/ m3,粉煤灰50Kg/ m3。
混凝土由搅拌站经混凝土搅拌运输车运至现场,控制混凝土入模温度在15℃左右,该项由混凝土供应商确保。根据施工经验,1.5m厚的混凝土在第三天左右中心温度达到高峰。425#矿渣水泥水化热:Q=335J/Kg,混凝土比热:C=0.963;r取2500Kg/ m3。
Tmax= T0+0.6×W×Q/c×r=50.36℃
混凝土采用两层草袋子一层薄膜进行保养,保温层厚度为40mm,在当气温为 15℃情况下,表面温度可达30℃.这样混凝土中心的温度与表面温度之差为19℃。左右,不大于25℃符合大体积混凝土施工的有关规定,不会造成混凝土温度裂缝。
B、通过热工计算、对施工方法进行了可行性研究,着重从控制温升,延缓降温速度,减少混凝土收缩,提高混凝土极限拉伸等方面采取措施,以控制温度裂缝的形成。
(1)、降低水化热:
中低水化热的水泥,要求混凝土供应商采用425#矿渣硅酸盐水泥搅拌混凝土,用量应控制在420Kg/m3.
(2)、粗骨科:
选用5—40mm的石子,含泥量不大子1%,因为增大骨料粒径可以减少水和水泥用量,混凝土的收缩和沙水也随之减少。砂采用中粗砂,细度模数宜大于2.4,合泥量严格控制在2%以内。
(3)、掺加一定数量的粉煤灰,可降低水化热,掺加一定数量的格雷斯缓凝减水剂,进一步改善混凝土坍落度和抗收缩裂缝的能力,同时确保初凝时间为7小时以上。
(4)、加强养护,控制温差:在混凝土浇筑完12小时后铺设塑料薄膜一层加盖草袋两层,确保内外温差不大于20C,且覆盖时间不少于15天。
C、泵送混凝土的浇筑和总体安排:
本工程所用混凝土全部采用商品混凝土,混凝土经混凝土搅拌运输车送至施工现场,经泵车泵送入模,现场设移动、固定泵各一台。固定泵定位于基坑东北角.移动系置于中门处。为此采取由东向西一次浇筑、一个坡度、薄层覆盖、一次到顶的之字形推进。每台泵车正常速度按25 m3/h考虑,混凝土初凝时间为7小时以上,混凝土自然流淌坡度按1:5来计算,坑长度南北为42米.这样7小时内可完成对下一层混凝土的覆盖。确保不形成冷缝。(附浇筑方法示意图)泵车自开始压送时,必须先压纯水泥浆,以确保随后压送混凝土的质量,防止管道堵塞导致形成混凝土冷缝。根据混凝土泵送时自然形成坡度的实际情况,布置两道振动线,每道线设四台振动器。第一道布置在混凝土卸料点,主要解决上部的振实,第二道布置在混凝土坡角处,确保下部混凝土的密实,为防止混凝土集中堆积,先振动出料口处混凝土,形成自然流淌坡度,然后全面振捣,严格控制振捣时间,移动距离和插入深度。
由于大体积混凝土浇筑时,沁水较多,同时为确保施工缝处混凝土接搓质量;施工缝处模板采用拧花网,网眼密度不大于5mm,这样确保混凝土接槎的麻面处理效果.同时确保泌水及时排除。
表面处理:由于泵送混凝土表面水泥浆较厚,在浇筑2一8小时,初步按标高用长尺刮平.然后用木抹反复搓压,至少三道以上,使表面密实,这样可较好地控制混凝土表面龟裂,减少混凝土表面水份的散发,促进混凝土养护。
D、钢管柱混凝土:
钢管柱混凝土如采用塌落度较大混凝土进行浇筑,可能会形成管内混凝土游离水的存在,不能保证质量,采用干硬性混凝土浇筑,并于柱上面采用加长混凝土振动棒振捣,外面用人工持小锤敲打,确保密实,同时清除柱上口浮浆层,确保混凝土强度。
逆作法混凝土浇筑应留设Φ200浇注孔,详细位置:①格构柱;②地下室板墙;③ 衬墙位置。浇筑孔为Φ200×8钢管,在混凝土浇筑时留设而成,每柱为一个,板墙、衬墙处间距不大于1.5m。
E、养护:
为防止温差过大,造成温度应力大于同期混凝土抗拉强度,我们采取保温养护法,待混凝土表面初凝后,覆盖一层薄膜,搭压10cm,在其上再盖草袋子两层,有效地减少内外温差。
F、测温:
(1)、测点布置:采用埋设镀锌铁皮管,测点共20处,相互间距4一6m,埋深为0.5m,另外测薄膜下温度及大气温度,详细测温点布置详见附图。
(2)、测温频率:
混凝土浇筑10小时后开始测温工作,时间为10d.
第1一3d:每2小时一次;
第4一8d;每6小时一次;
第9一10d:每12小时一次;
(3)、资料整理:
对每一测点观测时,分别记录环境温度及对应测点处温度,根据原始记录及时整理日报表,并绘制温度变化曲线,以及了解温度的变化情况,针对现场温差情况采取措施,一旦大子25°C,将采取加强覆盖办法来降低内外温差。
G、施工缝处理:
底板与地连墙处、梁板与地连墙处及后浇带处严格按图纸设计施工,并遵照《混凝土结构工程施工及验收规范》有关章节执行,对于逆作法部分施工缝还应采取以下措施。
(1) 混凝土掺加定量UEA的补偿收缩;
(2)、模板支成喇叭口式,楼板留出浇灌孔;
(3)、在后浇带混凝土表面预留连通孔道,待混凝土终凝后,加压,灌入环氧树脂水泥浆。

4、逆作法施工:
为确保基坑支护部分的稳定,本工程基础中间部分采用正作法施工,裙房部分采用进作法施工。
A、主楼部分基础施工至地下一层柱完,逆作法以桩连柱为支承点,靠近地连墙处采取平地铺设楞木,模壳,框架梁位置挖成沟槽,槽内铺设模板,架空区域应于坡面上斜铺脚手板,加设三角形木楔子,碗扣式脚手架作为内支撑体系.架子木楔之上,确保架子的稳定、安全.于上铺设楞木.安设模壳.绑扎梁、板钢筋.另外在模壳对应剪力墙位置应在模壳上钻孔。顺孔向下插入板墙的钢筋。然后进行零层梁,板砼浇筑,在零层板施工过程中,应在外边缘往内返2m处零层板上留设2.5×3m洞口,以便同设备吊装又将来用作地下二层出土孔.预留洞口处板、肋钢筋应甩筋35d。
B、待零层板砼强度达到100%,可由地下一层车库主道入内,拆除支撑体系。进行-3.50m以上土体清除。采用1吨的自动翻斗车通过坡道倒出由汽车外运。将土体挖至-3.50m标高以后,采取同零层一样的施工工艺:清土→铺楞木→模壳→钢筋绑扎,铺设脚手板搭设脚手架→铺设模壳.进行钢筋绑扎.板墙钢筋的预插,进行砼的浇筑,对应零层板留设出土口。
C、待地下一层砼强度达到设计的100%.方可拆除地下一层脚手架.开始地下二层土作的挖运,二层土体的挖运,以留设出土口为运输通道,通过卷扬机提升至零层地面,再经汽车外运,为确保支护体系的稳定,该处土体应三班作业,尽可能缩短挖土时间,同时应密切观测地连墙的水平位移.土体挖至垫层标高,应尽快清除土体抢打垫层,此时,排水以后浇管处施工缝作为排水沟,确保地下水位在底板标高以下,破桩头.随后.抢绑钢筋,进行底板砼浇筑。
D、关键事项:
①、梁板强度必须达到设计值方可进行下一层土体挖运。
②、挖土期间,密切观察地连墙水平位移变化,确保安全;
③、尽可能减短道作法施工时间,时间越短对于支护越有利;
④、地下水位务必在施工期间控制在底板底标高以下;
⑤、剪力墙及底板、梁、板与连墙混凝土接槎处理。
四、地上主体结构工程:
地上主体结构为内筒外框,内筒主要是电梯井筒及钢筋混凝土板墙组成;外框除部分楼层为框架密肋楼板外.其余均为钢管混凝土柱,240mm厚无粘结预应力无梁板。
1、主要施工工序:
①、密肋梁板楼层
板墙的施工→架子搭设→模壳铺设→钢筋绑扎→混凝土浇筑
②、无粘结预应力楼层:
下一楼层
竹胶模板
满堂碗扣脚手架
非预铺设钢绞线应力钢筋
承压板,螺旋筋
铺设钢绞线
安装定位架
混凝土浇筑
试块
强度100%
张拉
锚固、封端
2、模板、脚手架工程:
A、密肋梁楼板:
采用模壳和满堂脚手架.模壳分为GRC一次性模壳和塑料模壳。
施工工艺:
(1)搭设架子,根据楼层高度、肋梁高度及边梁高度精确控制架子标高;因采用钢、GRC模或塑料模壳,故应考虑模板不同而对应脚手架高度的不同而进行调整脚手架标高。
(2) 模壳安设:在已搭设好的架子上铺设60mm厚木板作为模壳底板,木板应在同一方向上.每720mm放3块,木板应用卡子与架管抱紧.以防滑移.附模板支撑图(见后)。

(3) 肋梁处底模处理:
与脚手架平行位置用1:3水泥砂浆找平,作为肋梁底模, 与木板垂直方向肋梁应在三块木板上钉设250mm厚木条.确保与模壳边缘同高,木条宽度同对应肋梁宽度而随时调整。
(4)、隔离剂:
在木板上、模壳表面及砂浆表面均应刷水性隔离剂.
B、无粘结预应力楼板:
本工程楼板除部分楼层为框架密肋梁板外,240mm厚无粘结预应力无梁板框架梁采用定型组合钢模板拼装,其余部分均采用定型竹胶模板。搭设满堂脚手架标准层为3.16m,采用2.4m+0.6m立管作为立杆.上端加设托撑螺杆,架子搭设灵活,且安全可靠。
将满堂架子搭设完毕,在架管上安设U型可调托撑螺杆,调整标高;在其上铺设50×100mm木方,再铺竹胶模板。因柱子均为圆柱,故模板对应柱四周应加工成定到异型模板.并进行编号对号使用。为提高竹胶模板的周转次数.模板均应刷水性隔离剂。在拆模过程中,应及时清理.码放整齐,无粘结预应力混凝土达到100%时,方可张拉钢绞线.故在采取混凝土早强的基础上.应按标准层配三层架子及对应模板,方可确保主体结构施工顺利进行。
C、外架子及电梯井筒:
外架子采用自爬升架子,架子总高度12m,采用分片爬升,自动抱死系统.确保外架子安全,详见外架子爬升方案。
电梯井筒模采用伸缩式弹性筒模,它由平面模板、弹性角模、方钢龙骨及脱模器组成,入模操作程序如下:

说明:
1、准备爬升脚手架,滑动支座1、2,同时固定在C、B层楼板,用倒链拉住主框架,旋开固定支座。
2、拉动倒链爬升脚手架,使固定支座固定在B层板下,并旋松滑动支座2。
3、提升滑动支座2,并固定C层板下,旋松滑动支座1。
4、提升滑动支座1至d层楼板,固定之后,把滑动支座2倒至该层板上皮并固定。至此完成了一个爬升周期,顺序进行程序①,逐层循环爬升。
注:框架体系亦可参照此图,支座部分有改动。
收缩筒模→起吊入模→就位调整→浇筑混凝土→拆对拉螺栓杆→操纵脱模器脱模→采用铲刀清理~滚筒刷隔离剂一进入下一层循环。
3、钢筋工程
本工程钢筋制作、安装分三部分:钢管柱、钢绞线及普通钢筋绑扎。
A、钢管柱;
钢管能有效约束核心混凝土,其抗压能力和变形能力大大提高,且具有钢管混凝土所不能具有的独特优点。
(1) 钢管柱施工工艺流程:
材料下料加工→钢管柱定位→垂直度调整→钢管拼接→加强环板焊接→焊缝检查→混凝土浇筑。

说明:
- 滑动支座、固定支座分别固定在a B层,C层砼浇筑后,筒模提升至D层
- 滑动支座提升至C层并固定,倒链拉住主框架,松开固定支座
- 用倒链提升爬升脚手架并把固定支座固定B层之后,提升筒模E层进行程序1,逐层循环爬升。
注:外墙体部分亦参照图
(2)加工:
材料均应具备材质证明书,半成品应有出厂合格证,且应外观合格。切割时应清除该部分铁锈、油污,钢管定长为12m,端部椭圆度偏差小于5mm,尽可能整根使用,钢管下料时,为预防切割过程中残余应力导致变形,在钢管下料前,应用3根Φ18钢筋均匀焊在钢管内壁靠近切割处.有效地控制切割变形.钢管下料端口应无毛刺、齐平.钢管、衬管应挑选对应使用,以确保质量。
(3) 定位:
钢管柱直径φ630一φ1120共六种,规程规定椭圆度允许偏差为d/500但不大于5mm,而国产管误差偏大,为确保就位准确,采取以下控制办法。
第一节钢管不宜过长,宜为3—5m,以定位中心线为圆心,以钢管直径加200mm为直径画圆,以该圆弧线内返100mm控制钢管壁外缘线,对钢管进行调整,将钢管自身误差均匀摊销在柱四个方向上,保证钢管柱的位置正确。
(4) 垂直度:
误差不大于1%,且不大于15mm.采用经纬仪控制边缘线来控制,由于钢管自身误差大,垂直度不易控制,采用以下办法:
在钢管柱施工面的下一层楼板上沿柱均分埋设钢筋套环、并加工三副带有花篮螺杆的钢丝绳具.用于调拉钢管柱。在钢管柱四周均匀布设四个自带磁铁线锤吸挂在钢管柱的外壁上,线锤自上而下吊设.量测垂线与钢管壁的距离来调整花篮螺杆.确保四个线锤偏差均在土10mm以内,方可焊牢。
(5)、钢管柱拼接:
施焊人员必须具备焊接合格证.对于对接焊缝应由施焊合格人员进行.焊条经烘烤使用.且应作好烘烤记录,钢管加工,应以定尺寸下料为主.尽可能不进行切割。对于对接钢管直径误差偏大的,焊接焊缝大的,施焊前应加塞直径不等的圆钢,以保证焊透,同时应尽可能减少钢管外壁的高低差,在保证垂直的前提下,将钢管旋转.减少误差.坡口对接焊缝应使上下钢管留出3一4mm空降以保证焊透,同时对于坡口处底层焊.也应采用不大于3.2 焊条打底。若用大直径焊条条底,容易在尖角处起弧.焊缝在收缝过程中抗裂性降低,影响底层焊接质量,施焊完毕.待焊缝冷却.方可拆除临时固定措施。
(6)、焊缝检测:
待焊缝冷却至常温后进行外观检查(全部焊缝).用肉眼观察和专用工具卡量,检查焊缝几何尺寸,外观还需检查焊缝和母材上有无裂缝、未焊透、气孔、夹渣、咬肉、焊坑等缺陷,焊缝是否均匀,有无凹凸不平的现象。如有以上之一缺陷构必须修整,验收合格后方可使用。 无损检测:设计要求钢管柱接头焊缝为二级焊缝,根据规范规定,焊缝要用超声波作无损探伤检测,检测数量为焊缝长度的20%。超声波探伤检测,委托天津船厂实施。混凝土浇筑前,进行焊接检测,每一焊接区域检验位置由监理人员在图上随意指定、对于每个焊缝探伤点都应打检测编号钢印。超声波探伤的每个探测区焊缝长度不小于300mm,且不小于焊缝总长度的20%。如有不允许的缺陷;应在该缺陷两端延伸部位增加探伤长度,增加长度不应小于焊缝总长度的10%.且不应小于200mm,当仍有缺陷时,对该焊缝全部检测。如该焊缝仍不合格,应在附近再选两个点检测如果这两个检测点又发现一处不合格,则该焊缝全部不合格;且对于不合格焊缝、应按规定的方法的返修,返修后焊缝应重新进行探伤检测。

B、预应力钢筋:
(1)材料
预应力钢筋进场后,必须进行检查验收:一是外观检查,二是抽样进行力学性能试验。各项指标应符合《预应力混凝土钢绞线》规定,合格后方可使用,锚具应具备出厂合格证,并应抽样检验。预应力筋下料长度应准确,可按图1:1放大样,确保板内预应力筋的长度。
(2)铺设
本工程中预应力筋为双曲线预应力筋,对双曲线预应力筋,根据设计对每个纵、横交叉点相应的两个矢高进行计算,编排每个区域预应筋的铺设顺序.即一个方向某一筋的各点标高均分别低于其相交的筋的矢高。则此筋可先铺放.矢高较高者次之,避免两个方向的预应力筋相互穿插铺设。由于柱子处预应筋间距较密,该处筋的铺设、各种管线的敷设时严禁将预应筋矢高抬高或降低。为确保矢高准确控制,在板底标注支撑点的位置.设置支架钢铸来保证无粘结预应筋的设计曲线形状。支架筋采用Φ14钢绞.其间距为1m,支架筋制作后应编号,安放时对号入座。对于无粘结预应力筋外包层的局部破损,可用水密性胶带进行缠绕修补.对于破损严重的,应重新更换。
无粘结预应力筋铺放前两端应编号,铺放完毕后.应进行专项检查.质量监理人员验收合格后方可进行下一道工序的施工。
(3)张拉:
预应力钢筋的张拉,按照对称的原则进行.张拉时两套张拉设备对角对称进行,张拉前对每根钢绞线进行编号。
张拉施工顺序:
清理承压板→割皮→穿箍环,安装夹片并打紧→穿千斤顶→张拉至初应力→量测伸长直→张拉至1.03δcon→重测伸长值→顶压锚固→千斤顶回程→卸千斤顶→复该伸长值→专题记录
对于两端张拉的无粘结预应筋.按上述顺序在一端张拉锚固后,再在另一端进行补张,直接拉至1.03δcon,后测量伸长值顶压锚固。
(4)、封堵:
张拉完毕后,应进行封堵。用砂轮切割机切断多余的钢绞线,锚具外留钢绞线长度不小于30mm,然后在锚具及承压板表面涂以防水涂料.槽口内壁涂以环氧树脂类粘结剂,用高标号微膨胀细石混凝土或水泥浆密封。
(5)、无粘结预应力筋施工注意事项:
①、严禁电火花伤及预应筋;
②、预应力场辅设完毕.严禁踩踏,在混凝土浇筑前应派专职人员复核;混凝土浇筑中振动棒不应直接接触钢绞线.混凝土要留两组同条件养护试块。
③、张拉时,在任何情况下,工作人员不得站在千斤顶两端,同时千斤顶后部设防护装置.
4、混凝土工程
本工程全部采用商品混凝土,因本工程为内筒外框结构,外框架柱为钢管混凝土柱,故混凝土施工除钢管混凝土柱部分外,其余均按传统施工工艺施工即可。本工程着重抓好钢管混凝土柱施工,确保柱内混凝土质量。
A、钢管柱混凝土浇筑方法一般分为三种,即:泵送顶升法、立式手工振捣法、高位抛落无振捣法。根据实际情况,决定采用高位抛落法和振捣法相结合的方法。本工程钢管在Φ630一Φ1120共六种,定长为12m,采用人工振捣法,振捣棒长度不够,将振捣棒加长为8m,对于直径大于Φ820以上钢管,加挂内爬梯,振捣人员可由爬梯下至管内 2—3m振捣。对于Φ630、Φ720钢管,下面振动棒作用不到的范围,可采用高位抛落无振捣法。
混凝土采用粒径为5—30mm骨料,水灰比不大于0.45,塌落度为140mm。为满足塌落度要求,应掺加适量的减水剂;为减少收缩量,应掺加微膨胀剂。外加剂掺量由试验室确定。
B、混凝土采用塔吊运输,接料斗自钢管上口浇入,第一次混凝土浇筑前,应先浇筑一层厚度为5一l0Cm的与混凝土配比相同的水泥砂浆,避免混凝土下落是发生离析。抛落混凝土量一次不大于0.7m3,料斗的下口应比钢管直径小10一20cm,以便混凝土下落时管内空气能够排出。对于手工振捣区域,一次下料不大于2m3,即不大于2—3m柱长,振捣时间不应大于60s,混凝土浇筑工作应连续进行,必须间歇时,间歇时间不应大于210—180分钟(按气温而定)。混凝土浇筑应比设计标高高出10一15cm。,在混凝土初凝左右,将上口10一15cm。混凝土浮浆清除。
C、钢管柱混凝土施工注意事项:
(1)、钢管混凝土未浇筑前应封闭,以防杂物、雨水进入;
( 2)、商品混凝土浇筑前,由应混凝土搅拌站提供与混凝土相同配比的水泥砂浆,存于现场,确保接浆效果;
(3)、钢管焊缝验收后,方可进行该部位混凝土浇筑;严禁在已浇筑混凝土的钢管柱上施焊。
(4)、钢管柱接头处混凝土浇筑预留出套接长度。
5、无粘结预应力楼板工程
A、工程概况
该工程二---二十三层为无粘结预应力砼板,过梁结构2-4层为同一结构平面型式,5-18层、19-23层同一结构平面型式,外挑板预应力张拉板端设置砼圈梁。无粘结预应力筋采用fptk=1570MPa,Φ15无粘结钢绞线。锚具张拉端为XM15-1夹片式锚具,固定端为挤压式锚具。由于无粘结预应力在技术为国家推广应用的新技术,施工工艺较复杂,技术含量较高,操作精度要求严格,因此专业施工人员及参与施工的人员必须认真熟悉和掌握设计要求,严格按照《无粘结预应力技术规程》JGJ/T92-93及GB50204--92和设计要求进行施工,确保工程质量。
B、施工顺序
根据设计要求,当砼强度达到设计强度等级的100%以上时方可进行预应力筋的张拉。为保证施工进度,张拉施工尽量不占工期,张拉施工顺序采取逐层浇筑,须向张拉的施工顺序,如图1示。由于预应力张拉后张拉层板的反起拱,因此要求该张拉层的上一层板的砼强度达到C15以上。
C、施工顺序对板支撑的要求
采用逐层浇筑须向张拉施工顺序,要求张拉层需承受上两层传来的荷载,因此要确定张拉后楼板是否能承受自重和上部传递荷载,为了现场三大工具及时周转和减少支撑用量,保证施工进度的需要。拟张拉层张拉完毕后应留设垂直支撑,待第二层预应力筋张拉完毕后方可拆除第一层的垂直支撑,以此类推。这就要求施工现场奋有三层楼板和四层支撑的用量。
D、施工工艺要求
(1) 原材料及施工机具的要求
①、无粘结预应力筋采用天津钢丝一厂生产的FPtk=1570MPa无粘结钢绞线。 其技术参数:
| 名称 | 项目 | 单位 | 无粘结钢绞线 |
| 钢 绞 线 | 直径 | mm | 15 |
| 抗拉强度 | Mpa | 1570 | |
| 延伸率 | % | 3.5 | |
| 截面积 | mm2 | 139.98 | |
| 理论重量 | Kg/m | 1.091 | |
| 弹性模量 | Mpa | 1.8×105 | |
| 油脂 | 建筑1# | Kg/10m | 0.35—0.60 |
| 塑料 | 高压聚乙烯 | Kg/10m | 0.30—0.55 |
| 摩阻损失系数 | K | 0.004 | |
| U | 0.12 |
无粘结预应力筋进场后必须进行检查验收,一是外观检查,二是抽样进行力学性能试验。性能各项指标应符合国家标准《预应力混凝土用钢绞线》GB5224-85及GB50204-92〈钢筋砼施工及验收规范》JG3006-93, JG3007-93的规定。合格后方可使用。
2预应力筋用锚具进场后,按照锚具出厂合格证核对其品种规格及数量,并抽样检验。其试验结果应符合GB50204-92及GB/T14370-92、及JGJ/T92-93规定的要求。
3、张拉设备采用 QYC-230前卡内置式千斤顶,配套油泵选用 STDB0.63×63超高压小型电动油泵。张拉前应进行系统标定,标定应符合GB50204-92及JGJ92-93的规定要求。
| 名称 | 型号 | 单位 | 数量 | 功率(KW) |
| 张拉千斤顶 | YCN—230 | 台 | 4 | |
| 电动油泵 | STDB0.63X63 | 台 | 2 | |
| 电动油泵 | ZB2X2—50 | 台 | 1 | |
| 砂轮切割机 | 台 | 2 | ||
| 手提切割机 | 台 | 1 | ||
| 力值传感器 | 台 | 1 | ||
| 变脚张拉器 | 台 | 1 | ||
| 割皮器 | 台 | 3 | ||
| 挤压机 | YCG--60 | 台 | 1 |
(2)主要施工工艺流程
支模板,侧模钻孔→绑扎板下排非预应力筋→安装承压板及穴模→铺放无粘结预应力筋→绑扎板下排非预应力筋→隐蔽检查→浇筑砼并养护→拆除侧模和穴模,清理承压板→割皮,安装锚具→张拉准备就位→张拉无粘结预应力筋→封端→拆底摸,支撑。
预应力施工工艺流程图(见下页)
(3)、预应力筋的制作
①、无粘结钢绞线的下料长度
一端张拉时:
L=L1+L2+H1+H2
两端张拉时:
L= L1+2L1+2H1
L—一钢绞线的下料长度
L1一钢绞线在板内的长度
L2 一千斤顶工作所需长度(取400mm)
H1 、H2 一分别为张拉端和固定端锚具厚度(取50和100mm)
为保证无粘结仍下料长度准确,符合施工要求,下料前按照设计图纸进行1:1放大样,确定板内预应力筋的长度,并编制各尺寸型号的钢绞线下料尺寸表格,按表格编号进行下料。
②、无粘结钢绞线下料
钢绞线、锚具、及组装件试验验收
预应力筋制作、定长下料、编号、编束
现场铺设无粘结预应力筋
固定安装承压板及螺旋筋
绑扎非预应力筋
安装定位支架
制作定位支架
隐蔽工程验收、检查
浇 筑 混 凝 土
安 装 锚 具
张 拉
切断外露钢绞线,封闭
张拉设备标定
砼试块强度达100%
制作试块
根据下料表,按下料表尺寸逐层下料。
无粘结预应力筋下料时,采用无齿锯或砂轮切割机切断,切断时要快速准确,避免钢绞线局部过热导致钢绞线端部强度降低。
为保证下料长度符合要求,下料时应选择较平整的场地,在场地上铺设宽度30cm木板并固定牢固。木板表面要求平滑,在板中间弹线,直线两侧每隔1米左右固定木条,然后确定切割机位置,从刀口处量出下料长度切割,如图2示。下料时对无粘结预应力筋材料。一检查是否有破损处,对有破损的应进行修补;二是严禁直接在地面上拖动以防破损。
③、无粘结钢绞线固定端挤压制作
a挤压场地应平整清洁,挤压套及挤压弹簧不得沾有污物和水迹。
b.钢绞线切割后,从端部量取100mm割皮,清理干净,用钢丝钳按其扭捻方向捻紧,其截面的毛刺用磨光机磨成圆形。
c、挤压前,将固定端的螺旋筋及承压板穿上。
d、挤压工艺是:套挤压弹簧,穿过挤压模,挤压套放入挤压凹槽内,挤压。
套挤压弹簧时,首先把挤压弹簧慢慢的旋入钢绞线端部,用双手将其旋紧,使挤压弹簧紧紧的裹在钢绞线上。挤压套放人挤压模后,应使挤压套同挤压模在同一轴线上,不得出现偏斜。开动油泵时,给油要均匀,一次顶过,中间不得停顿,并观察压力表最大值。挤压力正常为35-50MPa,超大或偏小应查明原因,重新挤压。
e、挤压时留设过渡段,即将钢绞线塑料外皮挤入锚具内,使钢绞线形成全长密封,保证每束为全无粘结束。
f、每次挤压时,挤压套表面及模孔均应保持清洁并涂油润滑,顶杆凹槽内的残留钢丝应清除干净。
g、为确保挤压锚具符合要求,在正式挤压前,制作3个试件进行静载锚固头试验,确定合格后,方可成批挤压制作。
h、挤压头挤压完毕后,将固定端的承压板同锚具用丝杆顶紧。
④、制作完后,按照不同型号,分类挂牌堆放。
(4)预应力筋的铺设
①、承压板的固定。按照设计预应力筋的位置及间距,首先在外设圈梁的非预应力筋上划线标注其位置,然后按标注的位置安放承压板。将承压板上的锚固筋同非预应力筋绑扎牢固,调整承压板的垂直度和平整度。为保证承压板位置准确,在承压板上下焊接两根Φ14筋用短钢筋同圈梁非预应力筋点焊牢固。见图3示。
②、在铺设板非预应力底筋后,按设计图纸反弯点位置要求,在板底标注支撑点的位置,设置马凳支撑钢筋来保证无粘结预应力筋的设计曲线形状,曲线筋中间点采用同非预应力筋的绑扎控制。马凳支架的高度按计算的该位置的预应力筋的曲线矢高来控制,支架筋采用Φ14钢筋,其间距为1.0米。马凳筋的长度一般控制在6米左右。马凳筋制作后应编号,安放时根据编号对号入座,然后铺设预应力筋。预应力筋同马凳支架相接处用绑丝绑牢。无粘结筋的矢高控制在±10mm内,水平偏差±20mm内、铺放完后在筋两端按照承压板标注位置拉直线来调整,使其平顺。板预留洞处预应力筋的布置严格按设计要求进行施工、轴线处必须安放马凳筋。
③、该工程中为双向曲线预应力筋,对双向曲线预应力筋,根据设计对每个纵横预应力用交叉点相应的两个矢高进行计算,编排每个纵横区域的预应力筋的铺设顺序,即一个方向某一筋的各点标高均分别低于其相交的筋相应点的矢高,则此筋可先铺放,矢高较高者次之,避免两个方向的预应力筋相互穿插铺设。由于靠近柱子处预应力筋间距较密,它起到板中暗梁的作用,因此铺设时应先考虑该筋的铺设。各种管线敷设严禁将预应力筋矢高抬高和降低。

④、铺放无粘结预应力筋时外包层的局部破损,可用水密性胶带进行缠绕修补。胶带搭接宽度不小于胶带宽度的1/2,缠绕长度应超过破损长度50mm,严重破损的无粘结须应力筋予以报废,重新更换。
⑤、无粘结预应力筋铺放完毕后,应进行自检与专项检查,合格后方可进行下一道工序的施工。在铺设上层非预应力筋时应搭设人行成材料堆放马凳,避免行人和材料造成对预应力筋线形的损坏。
⑥ 、本工程采用了钢管混凝土柱,在板柱结点处预应力筋同钢管柱的加强环之间的构造处理要特别注意。按照原设计方案预应力筋在此处要穿过加强环的肋板,这就要求在肋板上开洞,给施工带来一些不便之处。经设计上调整后,加强环整体下移出了板带,因此不会再和预应力筋及非预应力筋的铺设造成冲突。
⑦、考虑到防火要求和对预应力筋的保护,最靠近钢管柱铺设的预应力筋离开柱5cm放置。
(5)、无粘结预应力筋的张拉施工
①、张拉控制应力
δcon=1099MPa Np= 153.84KN
②、理论计算伸长值
③、张拉程序
0→20%δcon→103%δcon→顶压锚固
0→20%Np→103%Np→顶压锚固
1.03Np=158.45KN
④、张拉顺序
预应力筋的张拉按照对称张拉的原则进行,张拉时两套张拉设备对角对称同时进行张拉。张拉前对每根钢绞线进行编号,其张拉项序如图示。
⑤、每根钢绞线的张拉施工顺序
清理承压板→割皮→穿锚环,安装夹片并打紧穿千斤顶→张拉至初应力→量测伸长值→张拉至1.03δcon→量测伸长值→顶压锚固→千斤顶回程→卸千斤顶→复核伸长值→专项记录
对于两端张拉的无粘结筋,按上述顺序在一端张拉锚固后再在另一端进行补张,直接拉至1.03δcon后测量伸长值顶压锚固。
⑥、由于该工程预应力筋为多跨连续曲线,摩阻系数套用规范建议值时对其张拉伸长值有影响,因此在正式张拉前应对其尽阻系数进行测试.
⑦、预应力筋张拉、校核
预应力筋张拉主要采用控制应力,同时校核伸长值。如实际伸长值大于理论计算伸长值的10%或小于5%时,应暂停张拉,查明原因并采取措施调整后方可继续张拉。
⑧、预应力筋张拉时应做到孔道,锚环与千斤顶三对中,以减少孔道磨擦损失。当有个别钢丝发生滑丝或断丝可相应降低张拉力,但滑丝或断丝的数量不应超过结构同一截面总量的2%,且每束钢丝只允许一根。预应力筋张拉时,按顺序编号填写张拉记录表。
⑨、预应力法张拉前的准备工作
a、张拉设备及仪表应进行系统校验和标定。了解和掌握现场的施工条件是否具备。
b、张拉层混凝土强度达到100%以上设计要求强度的试块强度报告。拟张拉层上一层板的混凝土强度应达到C15以上。
c、进行安全交底及张拉操作技术交底。
(6)、张拉端部封堵
无粘结预应力筋张拉完毕后,应进行封端处理,以防止锚具锈蚀结构质量带来隐患。首先用砂轮切割机或氧乙炔焰切断多余的钢绞线,严禁用电弧切割。用氧乙炔焰切断时,火焰不得接触锚具,降低其热影响。锚具外留钢绞线长度不小于30mm,然后在锚具及承压板表面涂以防水涂料,槽口内壁涂以环氧树脂类粘结剂,用高标号做膨胀细石混凝土或水泥砂浆密封。
(7)、无粘结预应力筋施工注意事项
①、预应力材料进场后,做好防腐防潮.
②、预应力筋装卸及搬运时,应保持成盘或项直状态下起吊搬运,不得掉砸踩踏。严禁用钢丝绳或其他坚硬吊具与无粘结筋直接接触。
③、下料制作完成后,加强保护,应按照不同尺寸挂牌堆放并加以覆盖。
④、严禁电火花伤及预应力筋,在靠近预应为筋进行电焊作业时,应隔离保护预应力筋。
③、预应力筋铺设完毕后,严禁踩踏。进行其他工序施工时,可搭设脚手板供行人用。
6 、在浇筑砼板前,要配专职人员负责检查无粘结筋束的束型,是否符合要求,张拉端和固定端的安装是否符合要求;若不符应及时进行调整和绑扎牢固,当确定合格后方可进行混凝土浇筑。预应力筋铺设经全面检查验收后,做好隐蔽记录。
7 、浇筑混凝土时,严禁随意碰撞预应力筋及马凳支架。振捣时,振动棒应直插直抽;进免同无粘结预应力筋碰撞;采用泵送混凝土工艺时,应设溜槽送料、避免冲击力过大影响预应力筋线型。浇筑混凝土前应对施工人员进行交底,引起重视.为及时掌握混凝土强度情况便于施工张拉,混凝土试块留设比常规多两组,采用同条件养护。
8 、确保混凝土施工质量,尤其张拉端和固定端处混凝土必须振捣密实。混凝土成型后若发现有裂缝、空鼓现象,必须在无粘结筋张拉之前进行修补。
9 、张拉时,在任何情况下工作人员不得站在千斤顶两端,同时千斤顶后部设防护装置,操作千斤顶和测量伸长值时的人员应站在侧面。严守操作规程,各操作人员不得擅自离岗。
E、各项技术保证措施:
(1)、进度保证措施
①、组织措施
组建强有力的项目管理班子及技术素质精良的施工队伍承担本工程的施工。把本工程列为重点工程,本公司所各单位将作为一线生产的强大后盾,届时人、财、物各方面将全力以赴,确保本工程实现优良目标,按期竣工。
②、做好各项施工准备工作:
a.组织好施工人员、机械、材料及时进场,为顺利施工创造良好的物质条件。
b认真进行图纸会审,并及时编制施工组织设计和分项施工方案,为施工提供必要的技术保证。
③、严格计划管理
a、及时准确的编制月旬材料、劳动力、机械及周转工具使用计划,确保生产的连续性。
b.积极同施工总承包单位配合,实施动态计划管理,按施工总承包单位的网络控制计划和主要进度控制点,进行月平衡,周调度,保证计划的实施。
④、交叉作业、工种配合协调措施
a、技术管理上优化施工程序,合理安排交叉组织均衡流水作业。
b、施工管理上同工程总承包单位密切配合,抓好诸工种的协调配合,充分利用平面、空间和机具,保证施工进度。
(2)质量保证措施
①、健全以经理为首,总工程师挂帅,纵到底横到边的质量保证体系。坚持“抓质量求效益,以质量创信誉”的经营方针,运用全面质量管理的原理、思想和方法,开展全面质量管理的宣传教育,强化全员质量意识,形成全员、全方位,全过程的质量管理网络。
②、认真贯彻落实各种质量管理制度
a、落实技术质量责任制。工程质量的好坏,是各项管理工作的综合反应。项目经理和项目工程师对工程质量全面负责,班组要保证分部分项工程质量,个人要保证操作面和工序质量。
b、施工现场建立严格的原材料、构配件的试验和检测制度,凡进入工地的原材料和构配件,必须先检查合格证,再按有关要求取样复验,合格者方可使用.严禁不合格的原材料和构配件进场。
c、实行质量岗位制,严格执行“三检制度”,即自检,互检和专职检查。班组在分项工程施工完毕后,必须进行自检和互检,并评定分项工程质量等级。没有自检,互检或自检互检不合格者,专职质量检查员不予核验质量等级,不准进行下道工序施工。
d、实施质量跟踪检查制。施工现场设专业质量检查员,发现问题,及时指导操作工人分析原因,找出薄弱环节,制定对策,达到以预防为主的目的。
e.全面开展QC小组活动,对技术复杂,施工难度大,容易发生问题的预应力工程,要经常组织技术人员和有经验的工人进行攻关,减少和消灭质量问题。
f .强化责任管理,从施工每一道工序,一定严格把关,以严格工作纪律和处罚措施来保证质量,每道工序严格按程序进行。预应力张拉操作人员要做到相对稳定,不得随意调换。
g.建立信息传递网络及时互通情况,发现问题停止施工,及时汇报,采取措施。各工序之间应协调一致。
③、开展质量预控活动,达到降低质量成本的目的
a、认真进行图纸会审,提前发现和纠正图纸中的问题。及时编制切实可行并具有指导性的施工组织设计和专题方案。
b、按分部分项工程制定工艺标准,搞好技术交底工作,做到施工按规范,操作按规程,验收按标准。
c、做好隐蔽工程的验收和各技术资料的整理,保证资料与工程进度同步。
d、做好技术复核工作.
五、防水工程及屋面工程:
本工程地下室二层为金库及贵重物品保管库,防水要求特别高,为确保本工程防水万无一失,设计采用刚柔结合、多道设防、防排结合的原则,防水做法主要有以下三类:①混凝土自防水;②柔性防水;③刚性防水。排水采用底板上卵石层滤水外排。
基坑挖至设计标高后,打抗渗混凝土垫层及抗渗混凝土底板,底板与地连墙相接的施工缝,在浇筑混凝土前认真清洗。贴德国罗美克思(ROMEX)膨胀橡胶止水条,喷刷YJ-302界面处理剂二道,按质量保证措施浇管S8抗渗混凝土,12小时后养护14d,然后停止抽水一星期,观察有无渗漏之处,如有应及时进行处理。在地下二层的地连墙衬墙内侧、与底板相连的混凝土内墙两侧、零层板下及1.5m厚的底板上,均做硅橡胶防水涂层。地下一层混凝土墙面抹澳克——D型刚性防水砂浆;地下二层变电室-7.5m地面下为架空层,兼做变电室的送风夹层,内墙填充墙为加气混凝土砌块,刷BC-1表面处理剂一道,挂网抹l:1:6混合灰;地下室-3.5m处楼板为掺UEA的抗渗混凝土楼板;停车库及汽车坡道做德国罗美克思的耐磨防滑涂层。零层板上有道路、停车场、绿化地。故零层板为S8抗渗混凝土,掺UEA 做为一道防水,在零层模壳内填充GRC成型保温模块,与混凝土一块浇筑。
1、混凝土自防水。
混凝土自防水为本工程的第一道防水底板混凝土、地连墙混凝土、零层板、地下一层板及屋面板,均为S8抗渗混凝土。为确保自防水效果,除制定合理的配比,严格混凝土施工工艺控制外,还应加强混凝土施工缝的处理。后浇带处、地连墙与底板、帽梁处,所有施工缝均做YJ-302界面处理剂两道。地连墙表面做界面处理剂三道。界面处理剂采用由设计选用的治金工业部建筑研究总院提供的产品.该产品可在基层高含水率的情况下采取低水灰比施工,满足防水要求,在做界面处理剂之前。对施工缝应用钢丝刷认真反复冲刷;将表面清理干净,把第一道浆均匀喷刷在内墙拐角部位上,5—6h后,将汽泡针眼压平,停歇一段时间,等表面不粘乎时,涂抹第二道浆,第二道初凝后进行抹压,等第二道浆不粘乎时,可抹水泥石英砂浆,抹灰每道厚度不大于10mm,整个界面处理剂施工过程中,由治金部建筑研究总院专家现场指导,严格把关。
为确保施工缝处不洇不漏,在相应位置加设德国罗美克思止水条,地连墙与底板相连处自底板下返300mm,加设止水带一道,后浇带位置加设止水条两道,止水条位置严格按图施工:该止水条施工较简单,只待混凝土达到设计强度后,根 据结构形式截取软管,每段长度不宜大于 25米,注射软管每隔 20--3Ocm,采用管卡与混凝土固定,软管末端接插头, 接头加注射器堵头,以防施工中堵塞注射软管。混凝土达到强度后,在外界温度大于5度的情况下,采用20MPa压力注射树脂,加压速度要快,以便树脂进入微小缝隙,加强封闭效果,树脂每延长米用量不少于3Kg,钢管柱埋于底板位置及地下室外墙套管均加设罗美克思膨胀止水条。要求贴上水条处应干燥,金属无锈蚀.采用专用胶将胶条粘到基层上,该止水条在浇筑混凝土时具有延时膨胀功能,在遇水8h后才开始作用;在PH值中性的水中,该止水条膨胀率为60%,止水条、止水带均由专业人员进行施工。
2、柔性防水。地下二层墙面、地面及地下一层板底、零层板、卫生间、屋面板均做1.5mm厚二布多涂硅橡胶防水涂料.该涂料可在潮湿基层施工,对基层含水率无要求.可直接在涂料的涂膜上抹水泥砂浆。为确保粘结效果,应对结构表面打磨处理,也可用硅类防水剂处理(硅类防水剂:水=1:1)、掺入普通硅酸盐425#水泥拌成腻子,随后用排笔涂刷硅胶涂料,涂刷方向和长短应一致,与刷油漆一样,要求横刷一道,竖刷一道为一遍,严禁漏刷。玻璃纤维布应放在第一道1#与2#材料之间,当最后一道涂料表面发粘时,抹一道20mm厚掺加混凝土防水剂1:2:2厚水泥砂浆保护层,再抹8——12mm厚砂浆,并将表面抹压平光。
涂刷防水涂料时。操作人员必须穿干净软底鞋.避免砂石杂物带入,涂膜未做保护层前,严禁踩踏.堆放物品。
在底板涂膜上运输砂浆,应铺垫油毡,再用脚手板铺路,操作人员应边抹砂浆边后退,绝不允许站在新抹砂浆上操作;涂膜未干,严禁雨水浇淋,已完硅胶层严禁剔凿和加焊埋件。
3、刚性防水:
采用澳克型刚性防水砂浆,主要用于地下一层混凝土墙面防水层.防水砂浆将由天津建筑修补材料公司进行技术指导,确保施工质量。
排水:地下基础底板上在柔性防水保护层上做细石混凝土找坡层,找坡层下设卵石层。施工中应严格按排水方向找坡,并注重排水管的预埋标高。

六、室内外装修:
本工程内外装修较为高级,外围护结构全部为铝合金墙板及外镀膜双层中空玻璃窗带;内隔墙为轻钢龙骨纸面石膏板及石膏刨花隔板;楼地面装修较为复杂;做法众多:磨光花岗岩、水磨石、烧毛花岗岩、防滑地砖、木地板、水泥砂浆地面等;顶棚除个别房间为高
级涂料外,均为轻钢龙骨纸面石膏板吊顶.
1、抹灰工程:
抹灰前由质检员、工长组织对抹灰基层进行一次全面检查,如发现露筋、孔洞等现象,要进行修补。混凝土表面的凸出部分进行剔平,而后洒水湿润,在混凝土表面用107胶水泥素浆进行麻面处理。12小时后,浇水养护七天,等处理层硬化后,即开始抹5一8mm厚的1:3水泥麻刀砂浆搓毛,隔数日即抹5—10mm厚的1:2.5水泥砂浆罩面压光。抹灰前应先做样板,验收合格后,再开始大面积抹灰.抹灰时,按规范要求要提前冲筋、贴饼,严格控制抹灰厚度和垂直度、平整度,垂直度偏差不得大于2mm,平整度不得大于4mm。
2、楼地面工程:
楼地面工程装修较为复杂,在主体施工中应注意对应不同地面标高的预留,地面施工前,基层务必治理干净,经质检员、工长验收后方准施工。为保证花岗岩地面的铺贴质量,应采取干硬性水泥砂浆铺贴,不允许采用找平再镶贴的传统做法,同时为保证与基层的粘结,应采用425#普通硅酸盐水泥。 地面砖铺贴:当结合层较厚时,可先1:3水泥砂浆打底,而后再贴砖的方法施工。地面工程的质量按规范标准的要求进行检查验收。
3、大理石、花岗石工程:
本工程天然饰面板材用量大,且种类繁多,为确保天然板材饰面效果,应抓住以下几个关键环节。
A、材料:
材料加工计划应准确无误,板材排列应均匀,尺寸应合理。如外委加工,石料的石质、颜色必须由甲方确定,材料进场时,要严格验收,尺寸误差应在允许范围内,颜色应均匀一致。
B、铺贴工艺;
(1)、墙面镶贴:
按照大样图对板块进行预拼,是保证墙面色泽均匀,纹理清晰的重要环节,预拼时,按大样图要求,对尺寸、色彩、纹理进行合理的调配,并编号备用。铺贴时,应自上而下、从中间向两边进行.对照编号逐块镶贴。其顺序是:清理大理石板材。刮1:2水泥砂浆约10mm,将大理石板块对号贴在砂浆层上,用水平校尺校正平直,使其与基层定位线吻合,用木锤隔着木垫块校平板面,用线锤检查垂直缝,用托尺板检查垂直度和水平度,最后与墙固定。
(2)、地面大理石铺贴:基层清理,根据加工图选择铺贴方案弹线定位,根据定位图先自房间一侧铺贴十字交叉的两排板材,此两排是整个地坪水平标准和纵横拼缝的标准,注意用水平尺和小白线仔细校正,然后分别向两侧和后退方向铺贴,随时用水平尺和靠尺找准。拼缝处必须拉通线防止错缝。
如个别板面不平、翘边、翘角,应调整至四个边角去,板块铺贴用1:2.5水泥砂浆做法分层,铺砂浆沿已铺好的板边缘放一根10mm左右的木条,铺完砂浆后应将木条取出,这样确保:①避免铺砂浆污染板边;②便于板块铺平校正。
板块铺平贴实定位后,清除多余砂浆,同时刮掉余浆.用棉纱将板面擦干净,继续辅板。
(3)、铺贴时应注意质量问题:
①、铺设前要严格挑选板材,板材尺寸、颜色必须严格一致;
②、应严格按标准要求的允许偏差进行自检,发现超过标准允许偏差时.及时返修。否则,事后发现返修困难;
③、铺贴时,必须注意颜色的协调性,以保证墙面、地面美观;
④、铺贴时,灌浆要饱满,基层要清理好,砂浆不宜过稀,以免出现空鼓; 铺贴好的地面严禁过早上人,否则会造成空鼓;
⑤、板材在运输、存放过程中要防止被污染,以免影响地面、墙面的美观;施工时,砂浆要及时清除;要采取必要的措施防止镶贴后的地面、墙面被污染。
4、吊顶工程:
本工程吊顶工作量大,且特别复杂,首层和二层营业厅,电梯厅等由不同曲率的弧形板块,成组交叠布置,板块采用轻钢龙骨石膏板、由于吊顶弧线大多,施工前应仔细阅读图纸,根据详图进行吊顶装修,确保设计效果。吊顶应在内墙面、地面等其它湿作业完成,设备、通风管道、电器线路、灯具、风口、感烟探头等设施安装完毕后再进行施工。根据吊顶高度在墙面上放线进行龙骨的安装。基本定位后,调节吊杆找平下皮,并考虑必需的起拱量。U型龙骨纸面石膏板采用镀锌自攻螺丝固定;间距不大于20cm.对于T型龙骨石膏板在安装过程中,应计划风口、分格、灯具位置,协调美观、均衡。
七、铝合金及玻璃幕工程
(一)设计依据及技术标准:
1、技术说明
(1)总说明:
目前国家建筑行业蓬勃兴旺,装饰行业成为新兴勃起的热门行业,但国家对建筑装饰行业的管理,特别是对外装饰工程的严格管理才刚开始。在此过程中装饰行业成为一个既热火朝天,又无章可循的行业,建筑市场尤其是玻璃幕墙出现处处挂红牌、时时报警钟的局面。为规范行业行为,国家建设部94年专门针对此情发出776号文件,并对玻璃幕墙工程作了明确的技术规定,1995年国家建设部又组织中国建筑科学院编写了《玻璃幕墙工程技术规范》,并经几次修改、送审。此规范业经审查,现批准为强制性行业标准,编号为GJ102-96,自1996年12月 30日起施行,无疑对规范外装饰行业起到重大作用。
我公司是建筑行业一支主力军。公司从事装饰行业有十多年的历史.在规范行业行为方面责无旁贷应起到带头的作用、本公司作为一级施工企业,也成为《玻璃幕墙工程技术规范》和《建筑幕墙》的试行单位之一,因此,对天津“天信国际金融培训大厦”幕墙工程的方案设计就是以建设部1994年776号文件为准,以《玻璃幕墙工程技术规范》为依据进行的。
(2) 工程概况:
“天信国际金融培训大厦”天津市友谊路与中环线交口处。主楼105.9米,最大楼层间高3.5米。
“xxxx金融大厦”建筑个性特征十分突出.它突破了“方匣子”的传统格局,运用了大面积的,半径不等的,布置错落有致的弧面、线来构成建筑的外立面。这种弧面不仅是建筑中的“画龙点睛”,而且是总体风格和总体效果。抓住了“弧面”,就抓住了主楼幕墙的总体脉络。横向带形坡幕和带形铝幕相间,水平与竖直线条相互呼应,丰富了建筑的韵律和节奏。
(3)、方案说明
为实现大楼建筑设计效果,满足建筑功能要求,我们提出本方案。
①、主楼部分完全保持原弧面设计和平面设计,在应有圆弧面的部位;铝板、玻璃及型材均作折线处理.为便于业主进行效果价格综合比较分析,我们还提出 了板块幕墙和“工”宇结构幕墙两种价格方案,供业主选择。
②、幕墙全部采用悬挂单元板块结构形式。板块式幕墙是第三代幕墙,是普 通幕墙
基础上带有革命性质的技术飞跃,其特点详见附录一《单元式板块幕墙优点》.针对本建筑的具体结构,我们将每层楼同一个水平分格一个板块变为玻幕、铝幕两个板块。节点详见图纸。
③、悬挂玻璃幕墙为竖隐横明结构形式。
2、技术标准:
(1)技术方案的设计依据:
a.设计院的工程施工图纸
b.《建筑幕墙》产品标准
c.《玻璃幕墙工程技术规范》
d.GBJ9—87建筑结构荷载规范
e.GBJ11—89建筑抗震设计规范
f.GBJ16—87建筑设计防火规范
g.GBJ45—94高层民用建筑防火规范
h.GBJ57—94建筑防雷设计规范
i.GBJll8—88民用建筑隔声设计规范
j.GB5237--93铝合金建筑型材
k.GBJ1048—84公差与配合,未注尺寸极限偏差
1. GBJ19--87采暖通风与空气调节设计规范
m.GBJ50176-93民用建筑热工设计规范
n.CJC3—91钢筋混凝土高层建筑与施工规范
o.GBll976—89建筑外窗采光性能及其检测方法
P.GB/T5225—94建筑幕墙物理性能分级
q.建筑结构静力学计算手册
(2)、幕墙技术标准:
a、幕墙抗风压性能: Ⅲ级风载荷标准值2.72Pa
b、空气渗透性能:Ⅲ级固定部分10Pa0.1m3/m.h
开启部分2.5m3/m.h
c、雨水渗漏性能: Ⅲ级固定部分1000Pa
开启部分250Pa
d、隔声性能:综合性能Ⅲ级空气声记权隔音量大于34dB
e、幕墙平面方向变形性能: Ⅲ级平面方向变形r>1/200
f、防火性能:层间和窗间防火,防火时限为2小时
g、保温性能:综合性能Ⅱ级传热系数加权平均值=1.05W/m2
h、耐冲击性能: Ⅲ级撞击物体的运动量F<21
i. 防雷网带:按《建筑结构防雷设计规范》, 30M高度以上每三层以上设置一个防雷网带。
j.防噪声:外装饰结构活动连接部位均作防金属摩擦噪声处理。
k.热胀冷缩及变形:各幕墙板块间的插接留有充分的余地。
l.防结露水:外装修因室内外温差引起结露现象,结构设计中均采取排结露水措施。
j.建筑误差:按《建筑结构施工及验收规范》要求,外墙装修允许的土建结构误差不超过±30mm。
n.安装误差:外装修工程安装中应考虑水平、垂直、横向等三个方向在一定范围内可调节,可调节范围按《玻璃幕墙工程规范》执行。
3、结构位移的计算及处理:
幕墙的平面方向的位移主要来自三个方面:一是风荷载引起的结构变形;二是温度引起的热胀冷缩,三是地震引起的层同位移,它表现为垂直和水平方向上的位移。
按用本文前述“幕墙技术标准”中“幕墙平面变形性能”的指标要求,平面变形率r≥l/200。此时幕墙不仅不能产生结构性破坏,而且也不能产生密封性破坏,对于该工程而言尤其如此。因为原建筑设计的窗间墙为钢结构,玻璃幕墙固定于每层的钢结构上。窗间墙是随本层的结构移动的,层间位移全部要靠玻璃幕墙吸收;而每层玻璃幕墙高度只有1.85m,因此此时的绝对位移量为9.25mm。这种位移量仅仅依靠普通的玻璃镶嵌,是绝对不可能满足上述两个“破坏”的。
本方案采用的“单元板块幕墙”结构完全可以满足要求,方案通过板块与板块之间的话接间隙来吸收层间位移量,玻璃与铝框之间从理论上可以没有任何位移。对于垂直和水平方向上的位移均如此处理所有的间隙余量均经过计算预留。
4、几点说明:
(1)、幕墙的防雷设计:
根据建筑结构设计规范要求,方案设计幕墙的防雷系统。其方法:大楼高在30m以上幕墙。每三层铝合金框架与大楼的防雷均压环通过钢结构连接,构成可靠的电气通路,以防止侧向雷击。
(2)幕墙的防火设计:
按照工程要求和高层建筑设计防火设计规范,在楼层板、横梁、屋顶边缘与幕墙之间的空隙和窗洞四周要用防燃绝缘材料进行填充(填充材料为玻璃纤维或岩棉),形成一个不间断的完全封闭的防火隔离层。防火时限为2小时。
(3)、幕墙的防噪音设计:
金属件直接接触或连接时,若温度变化时热胀冷缩可产生相对位移,以及幕墙构件受力变形也会产生相对位移。两金属件接触表面由于相对位移。产生金属摩擦嗓音。为消除其嗓音,在金属件接触面之间加装润滑性能好的隔离垫.可有效地防止金属噪音。
(4)、防腐措施;
五金件、附件的材质为不锈钢或经过镀锌处理,有良好的抗腐蚀性能。两种不同材质的金属件(如钢质零件与铝材)接触部分;加装绝缘隔离片(如肽氟龙等);防止两种不同材料接触面产生的电化学腐蚀。对铝转接件与水泥墙体表面接触部分,在铝合金属表面涂抗碱性沥青防腐。
(5)、3mm铝板作为大板幅的外墙装修,首先应解决板块强度和挠度问题,本设计中应用加衬、加筋技术。
(6)、幕墙采用“等压原理”进行水密性设计。横竖型材均设有等压腔,并设有流畅的泄水通道。
(7)、幕墙的保温设计:在铝幕内的钢立柱上加装100mm厚的石棉板(δ8-10)和保温棉(岩棉)形成保温层。
5、附录一:单元式板块幕墙的优点:
(1)、单元式板块幕墙:
单元式板块幕墙是将每层间每个水平分格(或几个水平分格)所需要的受力铝型材、玻璃(或铝板、石材等外覆材料)、五金附件、开启窗、密封材料等在工厂内组合为一体,运往安装现场后,通过挂钩直接安装到设在建筑结构上的挂轴上的一种幕墙型式。它将原来在现场预先高空施工中的几乎全部工作移到工厂里进行,从而大大提高了幕墙的质量.使得整个工作质量非常便于控制。
(2)、它可以大大缩短大厦的整个建筑单位周期,从而为业主和发展商带来巨额的效益.
在单元式幕墙系统的工艺条件下,整个幕墙工程作业的工作量的90—95%可以在工厂里完成。也就是就在主体工程仍在进行或进行之前,就可以在工厂里预先制造、组装那些将构成整个幕墙的“单位”预制件。并且这些被设计和制造得非常容易安装。与支柱式幕墙系统相比,它的速度可以快若干倍,并且在工地安装作业时不需要很多脚手架和任何打密封胶作业。
(3)它具有非常良好的全方位功能,主要表现在:
①、优良的防水性能
以“空气压力平衡原理”为设计原则,使幕墙本身就有自动收集和排放雨水的功能,保证了幕墙均无漏、渗水之忧。
②、多维柔性系统
整个幕墙系统设计得可容纳由于建筑误差、热胀冷缩、自重负荷、风力等原因引起的各向位移,包括水平、垂直和角度位移。
③、卓越的防震性能
由于该系统技设计得上、下两层的单位之间可以实际在水平方向的自由滑动,故可以满足任何等级的防震性能的要求。
④、无维修的系统
在该系统的条件下,单元内部的各个零件或组件之间永远处于相对静止状态。故可在恶劣的自然环境条件下长期地保持正常运行而无需作维修工作。因此,我们可以充满信心地为我们的系统提供为期十年的长期担保。
(二)幕墙的结构计算书
l. 荷载计算:
1.1风荷载计算:
计算式:
Wk=ξ×βD×μs×μz× Wo(KN/m2)
式中:
Wk——作用于幕墙的风荷载标准值(KN/m2)
ξ——放大系数。
ξ=1.0
βD—一阵风系数
βD=2.25
μs—风荷载荷的体型系数
μs=±1.5
μz——风荷载荷的高度系数。
Μz=1.83
Wo——基本风压值。
Wo=0.44 KN/m2
计算结果:
Wk=2.72 KN/m2
1.2自重荷载计算:
幕墙单元构件自重包括:铝合金型材、玻璃(铝板)及连接件的重量:
计算式:
G=η1×A1+η2×A2+η3×A3(KN/m2)
式中:G—单元构件的重量(KN)
η1---玻璃单位面积重量(KN/m2)
η1=0.324KN/m2
A1----单元板玻璃安装面积m2
η2---型材及连接件单位面积安装重量(KN/m2)
η2=0.147KN/m2
A2-----单元板块的面积m2
A2=3.3 m2
计算结果:
G=1.544KN
1.3幕墙立柱型材断面的几何特性:Jy=699.98cm4
Wy=89.14 cm3
A=27.54 cm2
Wk=2.72 KN/m2
水平分格=1.8m 支点间距=1.85m
计算弯矩=3KN.m E=0.7×105 MPa(铝型材)
塑性发展系数取1.05
1.3.1幕墙立柱的挠度计算
计算式:fmax=
计算结果:
fmax =1.562mm
校核:fmax <f=1850/180=10.287mm
结论:挠度满足要求。
1.3.2幕墙立柱的强度计算:
计算式:
计算结果:бmax =32.05MPa
校核:бmax<б=84.2MPa
结论:强度满足要求
1.4横框的挠度、强度计算:
横框的挠度计算:
1.4.1横框受二个方向荷载作用,产生两个方向挠度fx和fy
计算式:
总挠度: f=(mm)
Wk=2.72 KN/m2 水平分格=1.8m
垂直分格=1.85m,玻璃厚度=2×6=12mm
地震作用=0.1127KN/m2 玻璃自重=1.02KN
风载弯矩=1.893kN.m 自重弯矩=0.2762m3
Jx=135.878cm4 Wx=24.429m3
Jv=166.453cm4 Wy=24.339 m3
计算结果:fmax=4.698mm
校核: fmax <f=1800/180=10mm (fx=4.615mm fy=0.879mm)
结论:挠度满足要求
1.4.2横框的强度计算:
横框截面承载力的计算式:
截面承载力:
计算结果:бmax =73.817MPa
бmax <б=84.2MPa结论:强度满足要求
1.5 幕墙转接件
1.5.1连接件与幕墙立柱连接螺栓抗剪强度计算:
Wk=2.72 KN/m2 地震作用=0.113KN/m2
板块自重=1.554 水平分格=1.8m
立柱支点间距=1.8m A2-70不锈钢螺栓安装数量=6颗
螺栓孔数=6个 螺栓直径=0.010m
螺栓孔总壁厚=0.006m 承压面积=0.00036 m2
抗剪面积=0.002827 m2
计算结果: τ=4.636MPa
核核: τ<fs=89MPa(不锈钢材料)
计算结果:螺栓抗剪强度满足要求。
1.5.2铝立柱抗挤压能力计算:
计算式:
计算结果:б压=18.352MPa
复核:б压<f=120Mpa(LD31--RCS)
计算结果:铝立柱抗压强度满足要求
l.6连接件与预埋件焊接强度计算:
计算式:f=(MPa)
板块自重=l.55KN 风荷载=2.72KN/ m2
地震作用=0.113KN/m2 板块面积=3.3 m2
焊缝高度=6mm、焊缝长度=200mm
水平分格=1.8m 支点间距=10.85m
计算结果:f=16.281MPa (垂直应力=16.112 Mpa, 平行应力=2.337 Mpa)
结论:焊缝强度满足要求。
1.7接缝间隙计算:
1.7.1层间位移计算,确定玻璃板块之间间隙。
计算式:Δ1=H1×ηmm
式中:
Δ1——楼层间的位移量(mm)
H1 一楼层间高度(mm)。
H1=1850mm
η——幕墙的平面变形件能。
η=l/200
计算结果:
△1=9.25mm
取△1=10mm
1.7.2温度变化引起的框料热涨冷缩量(△2 )计算以确定竖框接缝之间隙。
计算式:
△2 =K1×L×α×△T(mrn)
式中:
△2 ——框料热胀冷缩的需要间隙(mm)。
K1——增大系数,一般取K1=2-3。
α——材料的线膨胀系数。
α=2.35×10-5
ΔT一年温度差.
ΔT=80°C
L——框料长度。
L=1850mm
计算结果:
Δ2=10.43mm
取Δ2=11 mm
比较1.7.1、l.7.2的Δ1、Δ2值后取最大值,不取接缝间隙为11 mm
1.8幕墙玻璃计算:
1.8.1中空玻璃的最大面积计算:
计算式:
A允许=
式中:A允许——玻璃允许最大面积(m2)
Wk——风荷载标准值(KPa)
t1——中空玻璃中较薄的玻璃厚度(mm)
t2——中空玻璃中较厚的玻璃厚度(mm)
a2——玻璃品质系数(钢化中空玻璃为0.66)
玻璃宽度——1.8 m
玻璃高度——1.85m
Wk——风荷载标准值(Kpa)
Wk=2.72KN/m2
计算结果:A允许=7.279 m2
校核:A允体›A实际=3.3 m2
结论:玻璃面积满足计算要求。
1.8.2幕墙玻璃在垂直于玻璃平面的风荷载作用下的最大应力:
计算式:
бw =(N/mm)
式中:
бw ——风荷载作用下玻璃最大应力(N/mm3)
a——玻璃短边边长。
a=1.8m
t——玻璃的厚度中空玻璃的厚度取单片外侧玻璃厚度的1.2倍
t=9.6 mm(玻璃实厚mm)
W——风荷载设计值。
W=l.4Wk KPa=3.808KPa
Φ1——跨中弯矩系数可按边长比a/b查表。
Φ1=0.0455
b——为玻璃长边边长(m)
b=185m
fg——玻璃强度设计值。
Fg=84 Mpa——钢化玻璃强度设计值。
计算结果:σw=78.215MPa
校核:σw ≤fg
结论:玻璃强度满足要求。
1.8.3玻璃边缘与边框之间挤压温度应力计算:
计算式;
式中:
σ11-由于温度变化在玻璃中产生的挤压应力(N/mm2)
C——玻璃边缘至边框之间的距离(mm) C=6mm
b——玻璃长边尺寸(mm) b=1.85m
△T一年温度差(℃) △T=80℃
d——施工偏差,取d=3mm
fg——玻璃边缘强度设计值(58.8N/mm)
计算结果:σ11=0
校核:σ11<fg
结论:满足技术要求
1.9结构胶缝厚度和宽度计算
1.9.1结构胶粘结厚度(ts)按下式计算,且要求6mm≤ts≤12mm
计算式:
式中:
ts ——结构硅酮胶的粘结厚度(mm)
δ——结构硅酮胶的延伸率。
us——幕墙玻璃的相对位移量(mm)。
△1——层间相对位移
抗震按7度设防
l.9.2温度作用效应的相对位移量
计算结果: ts1≥ usl=3.877mm
1.9.3按地震作用效应计算:
计算结果:ts2≥ us2=8.81
结论:取结构胶粘接厚度为10mm
l.10半陷框、幕墙的结构胶宽度计算(CS):
1.10.1按风荷载标准值计算:
计算式:
CS =
式中:
Cs——粘结宽度(mm)。
W k=2.72KN/m2——风荷载标准值。
a=1800——玻璃短边长度(mm)
f1=0.14N/mm2——结构硅酮胶短期强度允许值
计算结果:CS=17.486mm
1.10.2 按静荷载计算:
计算式:CS =
式中:
CS——粘结宽度(mm)。
g =1.02KN/m2——自重(玻璃板块单位面积重量)。
a=1800mm——玻璃最大板块短边长。
b=1850mm——玻璃最大板块长边长
f2=0.07 N/mm2一结构硅酮胶长期强度允许值。
计算结果:
CS =2.0mm
比较1.10.1、1.10.2的CS值后取大值,则粘结宽度为18mm。
1.11铝合金板块幕墙计算:
铝单层板幕墙强度、挠度计算(按均布荷载,四边简支考虑):
1.11.1金属板的强度计算:
计算式:
бmax =
式中:
W=1.4Wk=3.808KN/m2——风荷载设计值
a =0.55m——金属板的短边边长(b=0.6m)。
t=0.003 m——金属板的厚度
a=0.06955——支撑条件系数(查表)。
fa=81.6N/mm2 (铝板材料:LF21Y2)金属板的允许强度
计算结果:
бmax =74.775(MPa)
校核:
бmax ≤fa
结论:
铝板的强度满足要求。
1.11.2金属板的挠度计算:
计算式:
式中:
μmax ——金属板的挠度(mm)。
E=0.7×105——铝合金板的弹性模量N/mm2
β=0.05212——支撑条件系数(查表)。
Wk=2.72Kpa——风荷载标准值。
计算结果:
μmax =6.864mm
校核:
μmax ≤20mm
结论:
单板的挠度满足要求。
(三)板块幕墙试验技术指标
1、技术指标.
1).抗风压性能:2.72KN/m2.
2).空气渗透性能:
固定部分:10Pa≤0.1m3/mh.
开启部分:10Pa≤2.5m3/mh.
3).雨水渗透性能:
开启部分:250Pa 15分钟不渗水.
固定部分:1000Pa 15分钟不渗水
4).抗震:烈度7°,平面内位移±10mm.±15mm.
2、试验程序.
1).n次开启窗循环测试.
要求:不允许窗框附件和小五金件有缺陷或损毁;
如有损坏需更换并重新测试.
2).按50%的设计压力即1360Pa预加荷载.
3).空气渗透性能测试:
固定部分:50pa≤0.1m3/mh.
开启部分:10pa≤2.5m3/mh.
4).雨水渗透性能测试:
①开启部分:100Pa 200Pa 312Pa
持续15分钟不渗水.
①固定部分:250Pa 500Pa 750Pa
1000Pa 1250Pa
5).循环压力下的雨水渗透性能测试.
交变压力±720Pa 15分钟不渗水.
6).风压试验.
P=2720Pa 最大变形<10.3mm
①1200Pa ②2000Pa ③2720Pa
④-1200Pa ⑤-2000Pa ⑥-2720Pa
7).重复静止内向压力下的雨水渗透性能测试.
8).125%设计风压的安全检测:P=3400Pa.
9).抗震实验:①移动±10mm.
②移动±150mm.
(四)制作与安装工艺
1.制作及配料
(1)幕墙的框料,应按工程设计图纸、料单及公司的有关标准进行制作,单件框料的加工偏差见下表:
| 项目 | 允许偏差 | 测量工具 | 备注 |
| 长度 | ±1.0 | 卷尺和钢直尺 | |
| 端面角 | ±15′ | 万能角尺 | |
| 材料扭曲 | 1.0‰ | 平台、塞尺 | |
| 材料弯曲 | 1.0‰ | 平台、塞尺 |
(2)玻璃划切
a.玻璃划切接工程设计图纸和料单进行,要求集中划切。
玻璃划切尺寸允许偏差见下表(单位:mm )
| 项目 | 允许偏差 | 测量工具 |
| 边长 | 0 | 钢卷尺 |
| 边长 | -1.5 | 钢卷尺 |
| 对角长度<2000 | 2.5 | 钢卷尺 |
| 对角长度>2000 | 3.0 | 钢卷尺 |
b幕墙玻璃应进行磨边,当图纸未说明时,按0.8×45。
c玻璃划切在平台上进行,为防止镀膜面被划伤,玻璃划切时膜面应朝上。
(3)幕墙玻璃板块按工程设计图纸及公司制作工艺进行制作。
(4) 所有内部制作的成品件、半成品件应有检验合格证。外购的附件、五金件,应有生产厂家的合格证。入库时,严格检查,防止不合格品到现场。
(5)幕墙的所有材料和半成品件,按照建筑装饰工程施工和验收规范的规定和公司有关要求进行运输和现场存入。
2、幕墙的施工
(1)幕墙的施工应具备的条件
a幕墙的施工按本工程编制的施工组织设计程序进行。
b. 幕墙的建工应在主体结构及其它所有前期工作完成,并与土建等进行协调方可进行施工。因工期需要提前进行施工,应在保证质量和安全的前提下,可按施工组织设计沿高度分段进行施工、幕墙施工时,如与主体结构形成交叉作业。应采取可靠的安全保护措施。
c.为了使施工顺利进行,物资的存贮、施工场地、型材和玻璃板块的吊运、施工脚手架、水、电供应等问题,应与土建协调配合,以得到协助和支持。
d.安装前,检查作业面及预埋件埋设是否复合图纸要求。若与图纸要求的尺寸偏差不符时,应按现场工程师之要求进行修正。
e幕墙的露天施工作业,不应在风雨中进行,特别不应在雨天进行密封胶之施工。
(2)幕墙的施工安装
a. 幕墙的安装接现行规范、规程进行;
b.采用激光测量仪,在主体结构上逐层测量竖框与主体结构安装中心点的位置。
c、进行转接件的安装,并调整转接件的位置。
d安装竖框、横模、并进行调整;
d1安装竖料、并进行调整。竖料的垂直度偏差1/1000。竖框的水平分格按工程设计图纸进行,其间距偏差不大于1mm。纵向两相临竖框接缝间隙为16mm。
d2安装横框,并进行调整。
横框的水平度不大于1/1000,横框的竖向分格尺寸按设计图纸进行,其间距偏差不大于±1mm。横框和竖柜之间应留有缝隙,间隙为16mm。
d3 每个立面的位置差不小于9.5mm。但任何方向测量不大于1/1000。
e 按幕墙的避雷、隔热层、防火层的节点进行安装施工。
f、安装玻璃
玻璃安装槽应保持清洁。
玻璃与金属件(框)的间隙不小于7mm。
相邻两板块的高低差不大于0.80mm。相邻两板块的间隙值为16±1mm。
g 幕墙边缘封口、女儿墙、窗台板的安装;按设计图纸进行。
h.凡需注硅酮胶的接缝,注胶前应进行清理,保持注胶缝的干净干燥,并注意型材和玻璃的保护,以防被胶污染。
i需要焊接的地方,焊接后应去除焊渣疤,涂锌铬酸盐底漆,厚度应不小于0.25mm。
j幕墙施工过程中,对玻璃板块制作注胶,应作好检查记录,对隐藏部分应及时进行检查,并作好检查记录。
k 幕墙安装完工后,工地质检人员和公司质检部门组织检查,不符合图纸和标准的及时返工,直到达到要求。
L幕墙的验收标准
凡本工程列出的项目或高于国内幕墙标准的项目,按工程提出的要求进行检查。
未列出项目,按国内幕墙标准(行业标准)进行。
(五)、质量保证措施
在大厦装修工程实施过程中,我公司以工程质量为核心,把专业技术和科学方法相结合,建立科学的、严密的技术保证体系;严格控制从设计、标准、选材、设备到生产、施工全过程中影响质量的各项因素,以优质的工作、最经济办法,完成工程任务。
1、施工质量管理
(1)、装饰工程的施工质量是企业赖以生存的根本。施工质量的好坏,直接关系到材料、工时的消耗,工期的长短,为工程成本有着重要的作用、因此,施工质量管理工作是装饰工程施工管理的一个重要部分。
(2)装饰工程施工质量管理的主要任务,是在装饰施工全过程中通过对采用的材料、设备以及操作方法进行及时严格的监督检查,纠正错误,剔除劣质材料,保证其成品符合国家有关规定及设计要求。具体就是要认真贯彻国际或国家的有关标准和(材料、设备和操作工艺规程、质量检验标准)。加强施工质量管理、要认真作好监督、检查工作,严格标准,做到一次成优,避免返工现象。
(3)在大厦外装工程执行过程中,我公司将制定一个严密的质量保证计划,以保证严格执行标准。公司从上层到各级管理部门,以及具体施工人员,人人都应为提高质量、为加强质量管理尽职尽责。全体职工树立上道工序保下道工序,道道工序保工程质量的指导思想。
(4)坚持预防为主、检验结合的方针。从设计、材料供应、制作、安装、竣工后服务等各环节,实行全过程的质量管理。工程质量是设计制作安装出来的。在这个过程中如发现质量异常要及时分析并排除,同时检验人员严格把关,不能丝毫放松,在整个制作安装过程中,采用先进和幕墙技术、工艺、严格执行技术工艺规程,并使各项工序都达到标准化,同时使用先进的制作安装设备。以保证工程质量,严格使用老化、淘汰及不合格设备和工具。
(5)对供应材料的质量进行严格管理。
在选择供应厂商时,应首先选择有一定知名度的,同时被选择厂商要有供应能力、质量保证能力,并指派专人严格检验供应商提供的材料品种、规格、质量。拒收不符和标准质量和设计要求的材料。
向业主提供材料样品,并全面提供各种试验报告、材料质量证明、合格证书等有关资料。
(6)我公司采用全方位进行质量跟踪的形式,定期反馈各部位、各道工序的质量信息,保证能及时制定有关纠正措施,同时通过质量跟踪保证已经采取的通过表量跟踪保证已经采取的措施得到落实和取得成效。
在施工过程中,专职检验人员进行质量监督,并在每道工序施工完毕后,负责进行全面检验,合格时方可进入下道工序施工。
隐蔽部位安装完毕,我公司派专职检验人员进行检查,并提前通知监理进行检验,监理检验验收合格后方可封闭。
(7)建立完整的工程质量档案,并充分发挥工程质量档案特有作用。即把设计、试验、材料供应、制作、安装直至完工交付等各环节的全部质量记录、各种验收报告、原材料合格证、材质证明、验收情况等完整资料归档,同时根据质量档案,为及时发现并迅速解决工程中的质量问题提供保证。
工程总体完工,由业主组织人员按工程质量验收标准和设计图纸要在进行验收。
工程交付后,我公司除负责保修期内的工作外,并且长期负责咨询、承担终身有偿服务。
2技术质量管理:
(1)根据大厦幕墙工程的需要,设立铝合金及玻璃幕墙工程专职项目工程师1人,
它在项目总工程师的指导下独立工作,专职负责铝合金及玻璃幕墙工程的全部技术工作。
(2)所有工程技术人员的岗位责任制,责任到人、实行质量一票否决权制度。
(3)所有工程技术人员必须认真消化业主提供的设计蓝图,进行细部设计,编写工艺规程。工程技术人员的设计方案,必须通过工程师办公会议评审合格,提交业主汇签认可方可执行。
(4)每周召开一次技术协调会、处理每个部位交接口、协调、配合事宜。解决工程实施过程中出现的问题,必要时请业主、设计师和配合单位参加技术协调会。
(5)建立图纸管理制度。技术档案、施工记录、预检记录、各项技术资料记录要求真实、准确、完整、齐全、清楚、规格化、系统化。
(6)设计变更咨询记录是设计施工图纸的补充和修改,内容要求明确、具体,应及时办理文字记录,不得任意涂改和后补,必须时附图,如图纸修改过多,应另行出图。
(7)设计变更和咨询记录由业主、设计师和施工单位三方代表签证。签证日期按先后顺序编号,编号应认真、齐全。(8)、在施工中贯彻执行监督和检查技术措施的落实、并在施工后进行验收和总结。
(9)、在施工中检查、验证设计方案的可靠性、适应性、先进性与经济性。
根据工程现场情况,不断完善技术方案、工艺规范。
(10)工程竣工,整理全套有关技术资料、统计资料记录文件,备交检、验收。
3、监督质量管理
(1)专职质量检验员必须全面地消化、理解图纸、工艺规程、技术标准、认真负责,搞好本职工作。
专职质量检验员必须对本工序使用的材料品种、规格、质量等工艺文件进行核实,检查上工序的工作质量。确保本工序的工作质量,并检查外购半成品和成品的质量是否具备有效的质量证明。
专职质量检验员使用的工具量具,必须有效、准确,必须符合有关标准和规定(2)产品首先必须实行“三检”。即实行自检、互检、专检,以保证产品的质量,防止成批性质量问题。
没有经过首先“三检”的产品,质量检验员具有权拒绝验收。
(3)现场质量检验员必须建立完备卡片或记录,发现质量问题及时反馈,并令其停止施工、由有关技术人员解决问题后,方可继续进行施工工作。各种现场有关质量检查、修正的文件、卡片、记录、资料,完整、清晰。
(4)本工程所有人员必须配合业主或监理人员、作好质量监督工作、确保各种工艺规范与标准的全面执行。认真清理、归口各种工程质量文件、卡片、记录、资料、以完整详细的质量资料,提交工程交付验收使用。
4、观感质量管理
我们坚持首件制作成品、首批安装成品的全面质量检查(采取联合检查形式),并进行性能试验和单元体试验,通过后全面开工、把质量监督工作贯穿到每道工序操作的全过程。每一道工序施工完毕,立即进行质量检验,作出质量评定,并通过操作者及时纠正评定的质量问题,不能等全部工程完工后再检查,这样才能避免牵连别的工序质量。加强各种材料的质量检查,杜绝不合格品质工程。材料质量检验要在出具各种材料出厂检验单的前提下把好“三关”。即:(A)进场验收关,施工现场的材料部门对各材料(包括半成品、成品),不管出厂时是否验收过,都要进行进场验收。(B)运后检验关。装饰材料是昂贵的、易碎、怕碰撞、划伤的物品。因此,从仓库运到工地一定要验收。(C)装前检验关,这种检验更为重要,是把不合格的材料彻底、杜绝上工程的最后一关。因此,这是决定性的一关,必须认真检验。
5、成品及半成员的质量管理。
施工好不一定竣工好,这在装饰施工中是常有现象,这就要求必须做好成品的保护。
(1)工序间的保护
这类保护必须甲、乙双方共同协商解决,即采取自保或互保,并且展好“三工序”活动。
(2)成品及半成品的保护。本工序施工完毕,应采取表面保护措施。
(3)成品的顺序保护。前道工序施工完毕,后道工序施工时,不能将前道工序的保护物损坏。总之,作好成品的保护,是确保工程质量的重要环节。
八、放线防线:
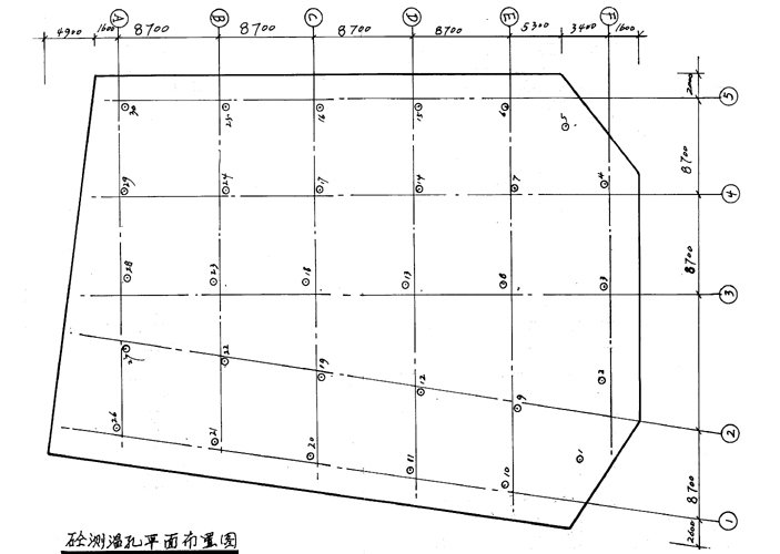
1、本工程施工至±0.000后,将首层轴线逐层向上投测,用以作为各层放线和结构不应大于20mm.因场地狭小,无法在建筑物之外的轴线上进行测设,我们用内控法施工、在首层设室内控制网,采用竖向激光铅直仪进行控制。
激光铅直仪是一种铅垂定位的专用仪器、该仪器可以在两个方向向上或向下发光激光光束.用它作垂直基准线,在首层(B)轴、⑤.轴处选择第1点、⑤轴与(E)轴处选第2点,于(B)轴与①轴处选第3点,以该三点作为相应控制点,在浇筑以上各楼层时.必须在相应位置留设150×150mm于首昙的三个控制点相对应的小防孔,保证能使激光束垂直向上穿过预留孔、在首层控制点上架设激光铅直仪。
调整仪器,对中整平后开启电源,使激光仪发射的红色光束投射到上层的预留孔接收靶上,此点为上层的一个控制点、其余的控制点以此类推,待1 、2、3点都引测完后,以该点作为基准点进行放线。
2、沉降观测;
A、观测点的布置:
沿地连墙一周埋设8个沉降观测点,位置见附图。沿主楼也布置8个观测点。位置见附图。水准点以围堤道规划提供水准点为准,地连墙上采用理件做观测点而混凝土墙或钢管上采用焊设角钢办法埋设。
B、观测方法:
(1)观测时间为±0.000施工至竣工后一年。主体施工期间应每两层观测一次,装饰阶段应每一月观察一次;
(2)、固定使用水准仪及水准尺,由专门人员进行观潮;
(3)确定观测路线,每次测量都要按固定路线观测。
(4)、沉降观测时,首层各程测定务必要精确,应进行观测两天后确定。
(5)、对于观测沉降值应认真记录整理.并绘制沉降位移曲线图。

九、安装工程
由于该单位工程的安装部分分部、分项工程较多,工程量大,技术和施工难度较为复杂,特别是人防通风与火灾自动报警联动系统,在国内较先进,给施工中调试工作增加了一定的难度。因此在安装和试运转时,要认真学习生产厂家随同设备带来的安装、调试说明书和制造图纸及工作原理图,领会原理和构造,一个一个程序的进行安装、调试,并要认真对照有关规范中的有关规定执行,做到熟练、准确、认真仔细、精益求精,严把每个程序的质量关。组织好施工人员、配备一名工程师把好技术关。配一名专职质检员把好质量关,配备一名专职材料员把好材料关,把技术、质量、材料及施工等任务,责任落实到人,防止错埋及管路不通等事故发生。施工考虑其程序和步骤及施工技术质量措施如下:
1.施工阶段的划分
(1)、配合土建基础,主体结构和隔断墙体的预埋、预留阶段;
(2)在摸灰的同时穿插主管安装,穿线、支吊架、过墙套管、拉线开关、插座盒安装阶段。
(3)卫生器具的固定及水暖、照明、动力、空调、电视、电话设备的全面安装阶段。
(4)全部设备安装完后、系统的初试、调整、复试、运行直到符合交工验收。
2.施工阶段
(1)水暖电空调预留、预埋及防雷接地、保护接地,隐蔽项目随土建主体同步进行,同时办理同步资料自下而上。
(2)水暖空调专业:
进户→地下室→主立干管(竖井)→主楼→设备调试→交工验收。也就是按系统在主体上到三层后进行进户配管、隐蔽、试压,然后由下而上配备竖干管,设备固定,支管安装,分系统试验运行,调整复试,交工验收。
(3)电气专业:
地下室→电管竖井→主楼→安装设备→试验→调整→交工验收。也就是从地下室开始配管、预留、预埋,地下室设备固定,管槽架固定敷设,配电柜箱安装,穿线放缆,受电器具安装,绝缘测试,通电调试修整,复试交工验收。
(4)电梯、闭路电视、电话、消防联控专业:
预留预理→设备进场开箱验收→主机安装→附件安装→配线安装管电设备→测试调整→通电试运转→调整维修→空载运行→政府主管部门验收→复试调整→交工验收。也就是开始进行预留预埋,在预留预埋进行到一定程度时,设备进场进行开箱验收,然后分别将设备按图各就各位固定,连接设备线路敷设受电器具线路,最后进行测试,通电调整,空车运转复调资料上报政府有关部门请求交工验收。
3、安装工程技术措施
a、给水工程
(1)给水工程所用的主要材料(管材、管件、阀门、水嘴、水表等)和设备及制品必须符合国家有关规定及技术质量鉴定文件,并应有产品合格证原件,材质合格证原件及有效的材质复试报告,材料的采购要事先经过鉴定,同时材料的进场必须经过工长、质量技术部门的验收方可进入工程使用,否则追查原因及后果。
(2) 生活饮用水管道及热水供应管道.必须使用热镀锌管及热镀锌配套管件,严禁使用非热镀锌管及管件,当管径大于Dg80mm时,可使用给水铸铁管及给水铸铁配套管件,消防和生活共用的给水管道视生活饮用水管道安装,当使用的热镀锌管管径小于125mm时,必须要丝扣连接,管径大于或等于125mm时可采用焊接, 但焊接必须做防腐处理。
(3)、给水管道穿越基础墙、砼梁、柱时、必须配合土建预留孔洞,其尺寸详见施工规范所规定,严禁随意剔凿及切断砼中的钢筋,同时,必须在做管道前埋设钢或硬塑套管,套管尺寸要比管道尺寸大2号,严禁用铁皮件套管,穿楼板的套管低部与顶棚表面相平,上部高出地面30mm,并用砂浆做成圆锥堆、穿墙套管两端与墙表面相平,管道必须与套管同一中心轴线,套管周围用油麻填充密实后,在套管处用油灰或热沥青封平并光滑。
(4)给水管道离墙距离,立管出底层地面后,管外皮与墙表面净距为30mm(不是与墙裙表面),但最高层外友与墙面净距不得超过30mm,所有支管外皮与墙表面净距为30mm,管道连接的外露丝扣一律为2一3扣,并无油麻,生科带等外露在接头处,分户水表表面距墙净距为10--30mm,分户表的进水口中心高度一律为1000mm,立管出地后的总阀门一律安装在阀门中心距地面500mm处,阀门手柄必须与墙面平行,并且小于Dg50mm的阀门不允许用闸板网,必须用截止阀。
(5)洗脸盆、家具盒的水嘴高度必须为1000mm,拖布池的水咀高度为800mm,其他集中用水的水咀高度均为l000mm,立管支架埋设高度一律为1650mm,并支架的材料必须用小角钢做,安装支架前必须刷两道防锈漆,支管托架,在支管长度大于1000mm的设两个托架,支管长度小于1000mm的设置一个,拖架的材料必须用Φ16的圆钢将一头牙为鱼尾,另一头打扁钻两Ф10小孔,然后用Ф8圆钢做U型卡卡住管道,拖架在安装前也需作防腐处理,具体作法同支架一样。
(6)、消防管道的安装同给水管道安装规定相同,但消防管道的吊卡安装必须要与管道垂直,且材料必须用扁钢制作,间距视管径大小按规范规定设置,室内各式消火栓的安装时,栓口必须朝外,消火栓阀门中心距箱底边沿距离不得小于120mm,距地面高度为1200mm,后边距箱壁不得小于100mm,侧面距箱表面不得小于140mm,水龙带必须用麻质水龙带,其长度不得小于20m,以保使用功能,在消防管道安装过程中,严禁在立干管上任何部位加装各式阀门。
(7)室内给水管道严禁穿越和安装在风道、烟道、沉降缝、壁柜、吊柜等内,安装在走廊、方厅、厨房,厕所等过人处的水平管道必须用保温材料进行绝热。以防结露滴水,影响住房使用。
(8)凡隐蔽的给水管道(包括吊顶、顶棚、地沟等)在隐蔽前必须做好水试验,待水压试验合格,甲、乙双方均签完隐蔽试压记录后才可作隐蔽,同时每个系统安装完后,必须进行系统水压试验,试验压力一般不得低于80×104 pa,给水管道还得作清洗、消毒通水试验、试压、清洗、消毒通水试验记录必须经甲、乙双方签字盖章为有效,有效资料方可进入竣工资料内进行存档,同时给水进户立管处必须砌砖支座或钢支座,其支座尺寸不得小于250×250mm,地下或±0.00以下给水管道必须作防腐,如图中无防腐要求,在图纸会审中提出,一律按两布三油做法施工。
B排水工程
(1)、排水工程所用的主材(管材、管件、工生洁具、洁具配件等)和排水设备及
制品必须符合国家有关规定及技术质量签定文件,并应有产品合格证原件,材质合格证原件及有效的材质复试报告,材料的采购要先送样品进行签定,特别是管材、管件及卫生洁俱配套设备,管材、管件要求外观必须光滑,无毛刺、厚薄均匀,管口必须平整光滑,卫生洁俱及配件要求方正,无几何变形,外观上光滑平整,功能上实用经济,所有的主材进场时,必须经过工长、质量技术部门检验后,方可应用于工程,否则后果自负。
(2)排水管道的安装,铸铁承插接口时,必须用425#水泥或石棉水泥捻口,不得作纯水泥捻口和水泥砂浆抹口,并捻口要密实,饱满、光滑,环缝均匀,填料凹入承口上边缘往下2--3mm, 塑料承插接口时,必须将插口锉成45度的坡口,其坡口长度不得小于2mm,并且粘结面要打毛,而且必须清洁,不得有沙土、油污、水分及灰尘、同时在立管上每层必须安装伸缩节和固定卡。
(3)排水管道的立管与排出管端部的连接必须使用两个45度弯头或弯曲半径大于4倍管径的90度弯头,并在±0.O0以下的架空管安装中必须设置370×370mm的砖朵支座,排水立管与横管的连接、横管与模管的连接必须使用TY三通或45度型斜四通,严禁使用T型三通及正型四通,排水立管必须每层设一角钢支架,层高大于4000mm者必须设两个角钢支架,支架的高度一律为1650mm,排水横管与支管,横管与立管之间水平长度等于或大于600mm时,必须设置角钢托架或20×2mm扁钢的吊架。其卡间间距不得大于2000mm,严禁用墙体作固定支撑。
(4)排水管在立管出地面时,立管距墙体净距必须为:当管径为100mm时,管道中心距为130mm,当管径为125--150mm时,管道中心距墙表面为150mm,当管径为75mm
以下时,管道中心距墙表面为100mm,支管、横管必须与墙面平行,并不得有倒坡或局部倒坡,而且还必须满足管道中心距顶棚的距离为:a一般民用公共建筑应在250--300mm
b住宅工程应不大于200mm或便台与存水弯底部净距不得小于1850mm.
(5)排水管道的通风管安装必须符合:
a通风管严禁与风道或烟道连接。
b通风管高出屋面不得小于700mm。
c上人屋面的通风管高度必须高出屋面2000mm。
d对有女儿墙屋顶的排气管其出屋面的高度必须高出女儿墙及临近的建筑物或相邻的烟道。
e.排气管出屋面的顶部必须用统一形式的铸铁排气罩。
(6)大便器冲洗管与大便器连接的胶皮碗及大便器胶皮碗与大便器的连接必须用14#铜丝〔直径为2.2mm相当于4mm铜线)将端部两道绑花错开绑扎牢固,不得用铁丝代用,另外大便器与管道连接用伸缩性的塑料弹性蛇皮管的必须用卡箍固定,不得用别的材料代用。
(7)排水立管上的检查口设置必须符合地层、顶层必须设,然后隔层设置的规定,并且设置高度一律为检查口中心距地面或台阶面1000mm,洗脸盆、家俱盆的边沿距地面高度一律为800mm,并要平整牢固,溢流孔必须有效,大便器高水箱底距地面一律为1800mm(台阶面)并在800mm处安装固定卡子,坐式大便器的低水箱距地面一律为510mm,如果是虹吸式的则一律为470mm。
(8)所有管道穿越楼板的孔洞,必须用模板式卡具作支承,用200#细石砼分两次补洞,严禁用砂浆或其它东西补填孔洞。同时埋地或±0.00以下的必须作防腐处理。防腐方法为刷热沥青两道,并且所有隐蔽的管道均得做闭水试验。系统完成后,必须作通球试验和试水试验,各种试验要记录签字、盖章,归入档案资料内。
c、采暖部分
(1)采暖工程的主要材料(管材、管件、阀门、散热器、排气阀等)和设备及制品必须符合国家有关规定及技术质量鉴定文件,并有产品合格证原件,材质合格证原件及有效的材质复试报告。材料的采购要事先送样品进行检验和鉴定,同时材料的进场必须经过工长、质量技术部的验收,严禁使用原材料不合格品,否则追查其责任和承担其后果。
(2)采暖管道的安装,干管外皮距墙表面的距离,一律为10mm,立支管管外皮距墙表面的距离一律为30mm,水平管支管、立支管与干管的连接必须从下方连接,并在连接始端设置可拆卸件(活接头)同对立营上如设计有阀门,其阀门必须安装在干管外皮下方300mm处,支管上的阀门必须设置在散热器活接头处,且有阀门安装时必须与墙面平行,在采暖系统的管道安装时,当管径≤32mm以上所有管道都必须丝接, 32mm的管道可采用焊接、但镀锌不得焊接、32mm以上干管分支为32mm以下的立支管,干管处的起点必须焊一短丝(或短管),然后上活接头变为丝接,丝扣连接要求同给水工程要求。
(3)管卡安装高度一律1650mm,水平支管长度大于1000mm 的必须设中间管卡,双立管平行时中心间距为80mm,水平支管必须用角钢加U型抱箍做支架,套管设置和安装同给水要求一样,采暖系统管径≤70mm管道拐弯必须用弯曲半径不小于管外径的3.5倍而煨制,不得用冲压弯头代用,管径≥80mm的采用冲压弯头时必须要设计或甲方鉴证注期,并且必须同径,伸缩器一律煨制、不得用焊接弯头焊焊制,并要伸拉出伸缩量。
(4)干管变径时必须采用偏心变径,蒸汽为有底平,热水为管径平,变径长度为DG≥70mm时为300mm,DG 70mm为200mm,采暖主管与支管交叉时,主管必须煨弯绕过支管,管道的对口焊缝处风机必须在安装前作单体试验和外观检查。保证其完好无损,美观整洁,散热器内表面距墙的距离必须符合GBj302--82表6.8.9条之规定,如为新型的而设计无要求的内表面距墙的距离一律为50mm,其它未尽之事按规范执行。
D、通风空调部分
(1)制冷设备
a、开箱检查应根据设备装箱清单说明书,合格证、检验证记录和必要的装配图和其它技术文件、核对型号、规格以及全部零件、部件、附属材料和专用工具等是否齐全和缺损。
b 检查设备充填的保护气体有无泄漏,油封是否完好, 设备外观是否有无损伤等。
c、设备的搬运和吊装应在吊运前了解其重量的设备重心,以防起重量不够的倾斜,同时,放置设备时,应用衬垫将设备垫妥,防止设备变形及受潮。
d设备的安装在安装前要划线,然后接线就位、找平、固定地脚螺栓、灌浆,其要求必须符合《机械设备安装工程施工及验收规范》对于整体安装的活塞式制冷机及压缩机组其机身纵、横方向的水平度偏差不应大于2/1000,其测量部位应在主轴外露部分或其它基准面上,对于离心式制冷机组的安装,安装前,机组内的内压应符合设备技术文件规定的出厂压力,机组安装时应在与压缩机底面平行的其它加工平面上找正水平,其纵、横向水平度偏差均为不大于0.1/1000,,同时基础底板应平整,底座安装应设减振器并减振的压缩量应均匀一致,对于溴化锂吸收式制冷机的安装,在安装前,应对机组真空系统进行气密性检查,设备内的内压是符合与设备技术文件规定相符,机组就位后应我平,其纵、横向水平偏差不大于0.5/1000,对于螺杆式制冷机的安装,安装时,应对机座进行找平,其纵、横向水平度偏差也为0.1/1000、但机组接管前,应先清洗吸、排气管,并管道应作必要的支承,连接时,峭要影响电机和压缩机的对中,对于模块式水机组的安装,应对机座进行找平,其纵、横向水平度偏差也为0.1/1000,如多台模块式冷水机组单元并联组合时,应牢固固定在两根型钢上,模块外壳应保持完好无损,表面平整、接口牢固,并进、出水管连接位置应正确,严密不漏,对于热泵式制冷机组的安装应参照同类制冷机组的安装便可。
(2)辅助设备的安装
a冷凝器的安装,其水平和垂直度的偏差均为不大于1/1000,卧式冷凝器,管壳式蒸发器和贮液器,其坡度应坡向集油的一端,其坡度值为1/1000--2/1000,贮液器及洗涤式油氨分离器的过渡口均应低于冷凝器的出渡口,直接蒸发表面式冷却器,表面应保持清洁、完整,安装时空气与制冷剂应呈逆向没流动冷却器四周的缝隙应堵严,凝结冰水的排除必须畅通。
b、冷却塔的安装应平稳牢固,冷却塔的出水管口及喷嘴的方向和位置正确,有水均匀,在转动布水器的冷却塔,其转动部分必须灵活,喷水出口宜水平,方向一致、不应垂直南下。
(3)通风机及空气处理设备的安装
a、设备的开箱必须按装箱的清单、随机文件、图纸说明、合格证书等进行型号、规格的核对,并对设备的外观进行检查,设备外形应规正、平直,园弧型表面应平整无明显偏差,结构完整、焊缝饱满、无缺损和孔油洞、划伤、锈蚀、掉漆等现象,同时还必须检查其管口的位置,封堵是否正确等。
b、设备的搬运和吊装的绳索不得捆在转子和机壳或轴承盖的吊环上,严禁损坏机件表面,转子、轴颈和油封等;吊运应严格按设备吊运操作规程执行。
c、通风机的安装应在平整的基础上进行,减振器受力要均匀,地脚螺栓应带有垫圈外,并应有防松装置,中心线的平面位移偏差不大于10mm,传动轴水平度偏差不大于0.2/1000,联轴器径向位移不大于0.05mm, 轴向倾斜不大于0.2/1000。
d 组合式空调器的安装,机组内应清理干净,箱体内应无杂物,机组应放置在平整和基础上,基础应高于机房地平面,机组下部的冷凝水排放管,应有水封,并组装的顺序应正确,表面平整,整体平直,检视门开户灵活,水路畅通。
e风机盘管的安装,卧式风机盘管,应用支吊架固定,并带双螺母互相锁紧,冷冻水管与风机盘管的连接应用弹性连接,坡度应正确,安装前要进行单机三速试运转及水压试验,其试验压力Ps=1.5pg。
(4)风管制作与安装部分
a风管的材质应有合格证,并符合设计和规范要求,风管的弯曲半径应不小于1.5A
三通、四通的夹角不小于15度,但不能大于20度,咬口形式为矩形,风管采用转角、
联合角或按扣式咬口,圆形风管采用立咬口。
b 风管的管度一般为1.8—4m,风管与法兰连接的翻边应为6—9mm,并要平整,不得有孔洞,风管的制作应按相应的等级作密封,并按规范按低压、中压、高压系统相应长度上作咬口或作加强框,增加其强度。
c、风管的安装要做到水平、法兰垫料的厚度采用3—5mm,并不要凹入管内和凸出管外,两口之间不得有错位现象。支、吊架要架设牢固,并与管道要固定紧密,风管安装其水平偏差为每米不大干3mm, 垂直安装其垂直度为每米不大于2mm,总偏差均为不大于20mm为合格。
f电气工程
(1)配电线路所使用的器材必须符合国家或部颁现行的技术标准,并具有合格证件。
配电线路厚壁钢管必须符合GB2102—88规定;
配电线路用薄壁钢管必须符合GB2102--88规定;
配电线路用硬塑料管必须符合SG78--74规定;
配电线路用半硬塑料管必须符合SG80--75,ZBG33008--89规定;
配电线路用导线应符合GBGO23-85规定。
(2)埋入土层内的钢管必须刷两度沥青或使用镀锌钢管;埋入墙内或顶棚内的非镀锌钢管必须刷防锈漆。
钢管暗配时,必须用套管连接,套管长度必须为管径的2倍,连接管的对口处必须在套管的中心,焊口必须焊接牢固、严密。
配电钢管严禁使用割刀或电气焊断管,必须使用钠锯或无齿距断管,管切口必须平齐,管口必须刮光。
薄壁铜管的连接必须用丝扣连接,严禁采用对接焊。
厚壁钢管在进金属配电箱或接线盒处,必须与箱、盒焊接可靠。利用配线的厚壁钢管作为接地线,中间有金属配电箱或接线盒时,必须在其串接部位焊接金属跨接线。
顶棚内管路敷设必须按明配管路工艺施工,严禁将顶棚内的配电钢管焊在顶棚吊杆、通风管道、及水暖管道上,顶棚内配电钢管必须有单独的托(吊)支架,导线严禁外露,灯头盒、分线盒必须有盒封闭。
配电管路敷设严禁穿越垃圾道、烟道、风道、吊柜等,穿越伸缩缝、沉降缝时必须有补偿装置。
(3)配电管路内穿塑料导线必须分色:
a、相线及相线至开关的导线必须使用红色。
b保护地线必须使用黑色。〔或黄绿双色线)
c、工作零线及由开关至灯具的接线必须按单位工程统一使用颜色的导线,严禁使用红、黑色导线。埋入地面的硬塑料管(包括PVC阻燃管)露出地面易受机械损伤的一段,必须有保护措施。半硬塑料使用于一般民用建筑的照明工程暗配敷设,严禁在高温场所和顶棚粘结法连接,套管长度严禁小于连接管外径的2倍,接口处必须用胶合剂粘结牢固。硬塑料管必须采用套管或插入法粘接,接口处必须用胶合剂粘结牢固。
(4)硬塑料管必须采用套管或插入法粘接口必须牢固、密封、套管长度及插入深度必须符合GBJ232--82中的规定。暗配在空心楼板孔内的导线,必须用塑料护套线或加塑料护层的绝缘导线(接地保护线可用不加塑料护层的绝缘导线),并必须符合下列要求:
a、穿入导线时,严禁损伤导线的护套层,并能便于更换导线。
b 导线在板孔内严禁有接头(包括灯头部位),分支接头必须放在接线盒内连接,严禁在板孔内内装设接盒。
c、在空心楼板孔上打眼时、必须由下往上操作,严禁由上往下操作。
导线穿入钢管后,在导线出口处,必须装护套保护导线,在不进人盒(箱)内的垂直管口,穿人导线后,必须将管口作密封处理。
钢管与设备连接时,必须将钢管敷设到设备内如不能直接进入时,必须符合下列要求:
a、在干燥房屋内,必须在钢管出口处加保护软管引入设备,管口包扎严密。
b 在室外或潮湿房屋内,必须在管口处装设防水弯头,由防水弯头引出的导线必须套绝缘保护软管,经弯成防水弧度后再引入设备。
c、管口距地面,高度严禁地于200mm。
(5)、管路敷设进入灯头盒、开关盒、拉线盒、接线盒及配电箱时,管口露出盒(箱)必须小于5mm,接线盒距顶高度必须一致,一般应为200mm。
配电线路中的管材及电气安装接线盒的材料必须一致,严禁在塑料管路中使用金属接线盒。
顶棚内电气管线须设单独的托(吊)架。
由建筑引出的架空进户电源须使用钢管并稳装防水弯、出墙预留导线不得小于l米,进产板凳与出线管口相距400mm水平垂直安装。
电线管路通过建筑物或设备基础时须设保护套管,保护套管内必须大于电线管外径的2倍。
进入消防箱的控制管线应在按钮旁侧,不得在消防箱上下端进管线,更不得利用箱体作为分线盒,金属箱体要做统一接地。
所有管穿线工程须在抹灰后进行。
(6)、灯头盒、开关盒、拉线盒、接线盒、分线盒内导线连接,必须用绕线方法,连接处导线须缠绕5--7圈,连接应紧密、缠绕整齐。10mm2及以上绝缘导线须用焊接或用同规格材质的套管压接,导线连接处须用橡皮绝缘带及电工黑胶布各半幅重叠包扎一层,多股铝线或超过25mm2的多股铜线的终端须焊接,或压接端子后,再与用电器具的端子连接。
插座接线必须符合下列要求:
a 单相二孔插座,面对插座、右线接相线,左极线零线。
b、单相三孔及三相四孔的接地或接零线必须在上方。
c、插座内接线严禁用软线或裸铝线、裸铜线。
铁制暗配电箱、开关箱、插座箱等板面安装必须使用机制螺丝,严禁使用木螺丝固定。
开关箱体、接线盒、开关等电器预埋箱盒的深度,须与墙面平齐,开关搬手外露,金属箱盒必须有良好的接地或接零。
铁制配电箱、插座箱、开关箱等的“敲落孔” 除对实装管孔必须敲落外,其它供备用的“敲落孔”一律禁止敲落。
木制闸箱必须设箱底与二层底闸板,须按细木作法制作,二底安装应使用木螺丝,安装后必须平整牢固,板面光滑平直,接缝严密,紧贴墙面,严禁劈裂、露钉帽、油漆污染等现象;导线引出板面,必须套绝缘管。
塑料表板安装亮度,底边距地面严禁低于1.8m,位置必须正确, 标高一致,平整牢固,木螺丝须加垫圈、器件不得松动严禁污染。
(7)住宅楼板制层间各单元支路的相线、零线、保护接地必须按顺序分别引入相应的板连接,严禁将支路相线、零线、地线分别并接后甩头接入端子板。严禁每一接线端子线超过2根。
软线吊线,软线的两端必须作保险扣、多股铜芯线的线芯必须先拧紧,搪锡后再连接,且零线、相线必须严格标记区分(花线为相线,素线为零线)。
螺口灯头的接线,相线必须接在中心触点的端子上,严禁吊灯后灯头的绝缘外壳有损伤和漏电,严禁软线依顺敷于灯链,元木、吊盒严禁污染。日光灯的吊钩严禁使用铅线或木丁。
门口外开并必须距门框0.20--0.30米,同一场所的开关位置必须一致,开关必须控制电器或灯具的相线,开关切断方向应为“上合下闭”成排安装的开关,插高度必须一致,高低差不大于2mm。
暗插、开关安装必须平正、牢固、紧贴墙面盒内插座电门标高差严禁超过5mm.大型吸顶灯或嵌入式灯带不得直接固定在轻型吊顶龙骨上,应专设支架固定灯具,并保证灯具与顶棚相贴平整。
灯具、插销、电门及照明配电箱(盘)应在浆活刷完竣后进行。
(8)居室内灯具与插座应在一条线。灯具均在房间中心。所有灯具,开关必须在圆木台或板中心。所有灯具必须有绝缘垫层(或木台)。16W以上日光灯用双吊链与灯具垂直40W双管日光灯不得用普通吊线盒。灯线应编在吊链内,花线不得受力。各种灯具、开关、插座、配电箱、配电板、配电柜、接线盒(箱)外必须洁净,油漆完整,配件齐全完整。四周不应损坏,应紧贴墙面箱(盒)与建筑物接触的部分应防腐漆。
(9)、箱(盒)安装垂直偏差不应大于3mm、各类木制配电箱、盘、木盒,元木、分线盒,均不应有疵裂、油漆、毛刺出现,安装前应刷油漆。安装木制配电箱盒靠墙做沥青防腐,箱内和门(盖板)刷油漆座灯头代拉线开关的应加羊眼圈,所有暗配管进入箱合内,要加以固定。进人箱(盒)内管头不大于5mm,不小于2mm,导线穿入钢管后, 在导线出入口处及配电箱、合、柜出入口处必须装护线套、保护导线。多股铜芯的线芯应先拧紧,搪锡后再连接。
(10)暗配线必较有保护(不得用软管)楼板孔内必须穿管。塑料管在砖墙内剔槽敷设时必须用强度不少于100#水泥砂浆抹面保护。厚度不应少于15mm。钢管连接:a薄钢管必须丝接。b厚钢管DG32mm发下应为丝接。丝接长度不应少于管箍长度的1/2。在接头两端应焊跨接线。c套管连接宜用于暗配管。套管长度为连接管外径的1.53倍。连接口处应在套管中心。焊口应焊牢固严密。钢管内外均应刷防腐漆,埋入混凝土内的管外壁除外。埋入土层内的钢管,应刷两边沥青漆。使用镀锌钢时,在锌层剥落处也刷防腐漆,钢管煨弯:a.明配管时弯曲半径不得小于管外径的6倍。如一个弯时可小于管外径的4倍。b、暗配管时弯曲半径不得小于管径的10倍。弯曲处均不得有折皱,凹穴和裂缝等现象。
(11)钢管进入铁箱(合)。暗管可用焊接固定。管口露出箱(合)应不小于10mm。明配管应用锁母或护圈帽固定。露出锁母丝扣2至4扣。管口光滑。箱合不得用电焊气开孔、埋地进户管管口两端的喇叭口,穿完电缆后要用油麻和沥青填100mm深。架空进户管要作防水弯头。其它同配管要求。动力配管,露出 地面的管口不应小于200mm均应焊接地螺栓。进人配电箱、柜的电线管排列整起齐,管口应高出基础面不少于50mm、屋顶节日彩灯的配管应焊接地线,焊接处应做好处理。各种暗装、明装单相二孔插座;均应上火下零。左零右火。单相三孔的接地线为正上方,插座的接地线单独敷设,不能与工作零线混同。闸为左零右火。上端为电源,下端为负荷。所有开关必须控制火线、接线合距顶板不少于100mm,但不大于250mm, 但每个工程应统一高度。
(12) 塑料护套线不得直接埋入抹灰层内暗敷设及不得在室外露天的场所明配敷设,过墙套管露出墙面不大于5mm。螺口灯头相线必须接在中心点。零线接在螺纹端子上。灯头的绝缘外壳不应有损伤和漏电。灯头开关的手柄不应有裸露的金属部分。吊链灯具的灯线不应受拉力,灯线宜与链编叉在一起。软线吊灯线的两端兼作保险扣。同一室内成排灯具,其中心偏差不大于5mm。固定灯具用螺钉或螺栓不少于两个,木台直径在75mm以下时,可用一个螺钉可螺栓固定。
(13)吊灯灯具的重量超过3KG时应预埋吊钩和螺栓,软线吊灯只限于1KG以下,超过者加吊链。矩形灯具的边缘应与顶棚的装修直线平行、如果灯具对称安装时,其纵横中心轴线应在一条线上,偏斜不应大于5mm。同一室内安装的插座高低差不应大于5mm, 成排安装的插座不应大于2mm,交、直流或不同电压的插座安装同一场所时应有明显的区别。但其插头不能互相插入。所有暗开关场为上开下关。且操作灵活接触点可靠。拉线开关距顶板100至250mm。所有拉线开关、跷板暗开关等距门150至200mm,成排安装高差不大于2mm。拉线开关相邻间距一般不少于20mm、接线正确,运转不应有显著颤动. 导线引出板面均应有套管保护。
(14)三相四线制供电的照明工程。其各项负荷应平均分配。配电器内装设的螺旋式熔断器,其电源线应接在中心触点的端子上。负荷线接地螺纹端子上。配电箱(板)应标明用电名称。所有隐藏工程必须做好各种记录、并及时报甲乙双方签字盖章。整理入档,单位工程完工后,交工验收前,必须做通电试验,检查各电器相别及运转是否正常。照明通电不少于24小时,绝缘电阻值不少于规范要求。单独配电柜每米垂直度充许偏差1.5mm,成排盘面不平度和顶部平直度允许偏差5mm,柜、盘线相序排列应一致,色标正确。总计量盘箱,根据塘沽供电局要求均采用木制,闸前用瓷夹板明配。进户线采用麻皮铜芯线。特殊要求者除外。柜、盘的油漆应完整无损伤。固定器具的支架,应刷漆,颜色一致,器具部件应齐全,接地应牢固可靠。
(15)避雷针(带)及其引下线以及接地装置的紧固件,除地脚螺栓外,必须用镀锌制品、所有电气装置中,由于绝缘损坏而可能带电的电气装置,其金属部分均应作保护接地。接地线不宜作其他用途。接地体顶面埋设深度不应小于0.6米。角钢及钢管接地体应垂直配置。焊接部分必须补刷防腐处理。为减少相邻接地体的屏蔽作用,垂直接地体的间距不宜小于其长度的两倍。水平接地体的间距应根据设计规定,不宜小于5米,接地体与建筑物不宜小于1.5米,避雷网线及避雷针的固定支架在塘沽地区统一采用焊接。焊接牢固,焊接处做防腐沥青处理。在沥青外刷银粉漆。屋顶上装设的防雷金属网和建筑顶部的避雷针及金属物体应焊接成一个整体。接地体(线)的连接应采用搭接焊,其焊接长度为:a. 元钢直径的六倍(双面焊)。b扁钢宽度的二倍至少三个棱边焊接)。C,元钢与扁钢焊接时其长度为元钢直径的六倍。d. 扁钢与铜管(或角钢)连接时,应将扁钢带变成园弧型(可直角型〕卡子焊接。在同一建筑上的避雷引下线。应统一明装或暗装,不能出现有明有暗。建筑物的线下线,宜在引下线距地1.5至1.8米处断接接卡子。卡子机加工,不许电气焊开孔。避雷所用材料全部用镀锌制品。不应有锈。焊接处必须防腐处理。
采用构造柱内钢筋作避雷引下线时,须用2根主筋,钢筋直径应不小于12mm。须用搭接焊接,其长度不应小于100mm,并须在首层及顶层用不小于12mm的钢筋将两筋进行连接。
引下线在室外地墙上500mm处及屋顶上沿是内侧安装镀锌扁钢的引出连接板作为与接地体或避雷网的连接或焊接点,并应刷黑色油漆接地标记。
柱内引下线与基础钢筋作为接地体的钢筋连接时,须将引下线用不小于12mm的钢筋与相邻各梁内及柱基的钢筋进行不小于100mm的搭接焊接,并应在距室外地坪上(0.06、1.8〕设测试点,并涂黑色油漆接地标记。
采用架空进户时,必须在表箱下设置接地干线检测箱,引入建筑物的镀锌扁钢接地干线在接地地平线检测箱内同接地干线用螺栓连接。
(16)电气工程的焊接应由正式焊工或经本单位考核发证的其它工种担任。明配避雷引下线,距地面2米必须加绝缘保护。保护管应不少于2个卡子固定。避雷网应随建筑物敷设、转弯处,不得直角对焊或死弯,要有一定的弧度,铜管作避雷网时也同样有弧度。支持件间距在水平直线部分一般为1至5米。垂直部分为1.5至2米,转角部分为0.5米。水平部分距建筑物距离250至300mm,接地线与建筑物墙壁间有10至15mm的间距。在跨过伸缩缝、沉降缝时,应加补偿器。
(17)凡所使用的成套配电柜(盘)及动力开关柜,必须符合国家或部颁的现行技术标准。必须有制造提供的产品说明书、试验记录、合格证件及安装图纸等技术文件。
成套配电柜(盘)及动力开关柜安装工程严禁在土建工作不具备安装条件下施工。
高压瓷件表面严禁有裂纹。缺损和瓷釉损坏等缺陷,低压绝缘部件必须完整。
铁制配电箱〔盒)应用专用开孔,不准用电(气)割开孔,如:无专用开孔机可用电钻一圈开孔,然后用钢凿穿,用锉刀消除毛刺。
(18)柜(盒)内设备的导电触面;与外部母线连接处必须接触紧密,用0.05mm×10mm塞尺检查;线接触的塞不进去;面接触面宽50mm及其以下时,塞入深度不大于4mm;接触面宽60mm及其以上时,塞入深度不大于6mm。
柜(盘〕与基础型钢连接必须紧密,固定牢固,接地可靠,柜(盘)间接缝必须平整。
(19)盘、柜的接地必须牢固良好。装有电器的可开户的盘柜门,必须以软导线与接地的金属构架可靠地连接。
小车、抽屉式柜推拉必须灵活。无卡阻碰撞现象;接地触头必须接触紧密,调整正确,投入时必须接地触头出主触头先接触,退出时必须接地触头比主触头后脱开。柜(盘)内的设备及接线必须符合以下规定:
a.必须完整齐全、固定可靠、操动部分动作必须灵活、准确;相对排列的柜(盘),母线的相序排列必须对称。母线色标必须为A相黄色,B相绿色,C相红色。
b、二次接线必须准确、固定牢固,导线与电器或端子排的连接必须紧密,标志齐全、清晰。
C、柜(盘)及其支架接地(接零)支线敷设必须连接紧密、牢固,接地(接零)线截面选用必须正确,需防锈的部分涂漆必须均匀无遗漏。
(20)器身各附件间连接的导线必须有保护管,保护管、接线盒必须固定牢靠,盒盖齐全。
变压器高低瓷件表面,严禁有裂纹缺损和瓷釉损坏等缺陷。送电前须将瓷件表面擦拭清洁。
变压器试运行带电后,检查变压器及冷却装置所有焊缝和连接面,严禁有渗油现象。
保护装置必须符合运行要求,有载调压切换装置运方操作必须动作可靠。指示位置必须正确。
变压器本体安装位置必须正确。注油量、油号必须准确,油位必须清晰,器身无渗油现象,就位后,轮子必须固定可靠。
电力变压器油坑必须清理干净、排油管必须畅通,消防设施必须齐全。
(21)、凡所使用的电缆及附件必须符合国家或部颁的现行技术标准,必须有制造厂提供的产品说明书、试验记录、合格证件。
电缆敷设必须符合以下规定:电线严禁有绞拧,铠装压扁,护层断裂和表面严重划伤等缺陷;直埋敷设时,严禁有管道的上面或下面平行敷设。
(22)电缆终端头和电缆接头的制作,安装必须符合下列规定:
a剥落终端头与电缆接头,从开始剥切到制作完毕必须连续进行,一次完成严禁受潮。
b剥切电缆时严禁伤及线芯绝缘。包缠绝缘时必须注意清洁,防止污物与潮气侵入绝缘层。
c高压电缆在包电缆时,与电缆屏蔽必须有不小于5mm的间隙,绕包屏蔽必须须有不小于5mm的重叠,绝缘纸的(带)的搭盖必须均匀紧密,层间无空隙及折皱。
d.电缆头安装必须固定牢靠、相序必须正确。室内电缆接头必须加塑料接线盒保护,直埋地下的电缆接头必须加水泥盒保护。
e.在电缆头和电缆接头上的标志必须正确清晰,必须注明起点、终点、规格、型号、日期等。
f 电缆芯线连接时,其连接管和线鼻子的规格必须与线芯相符;采用压接时,压模的尺寸必须与导线的规格相符。采用焊锡焊接铜芯时,严禁使用酸性焊膏。
(23)电缆支、托架安装必须符合以下规定:
a位置必须正确、连接可行
b. 间距必须均匀,排列整齐、横平竖直,油漆色泽均匀完整,在转弯处能托住电缆平滑均匀的过渡,托架加盖部分盖板必须齐全。
电缆保护管安装必须符合以下规定:
管口必须光滑、无毛刺、固定可靠,埋入地下的保护管必须涂以二度沥青防锈,严禁弯曲处有弯扁现象,其弯曲半径不小于电缆的最小允许弯曲半径;出入地沟隧道和建筑物的保护管口两端必须塞入50mm以上麻丝,然后浇灌沥青或环氧树脂密封。
(24)电缆敷设必须符合以下规定:
a坐标及标高必须正确,排列必须整齐、标志桩、标志牌必须设置准确,在转角、起点、终点、接头处必须设置醒目标志桩和标牌,在直线段每隔50米处必须设一根标志桩。
b有防热、隔热和防腐蚀要求的电线保护措施必须完整。
c.在支架上敷设对必须固定可靠,同一侧支架上的电线排列顺序必须正确、控制电缆应放在电力电缆的下面,1KV及以下的电力电缆放在1KV以上电力电缆的下面、直埋电缆的埋设深度,1KV电压以下的电缆表面距地面的深度不应小于0.7m。
d直埋电缆回填土:电缆敷设完后须敷以不小于100mm后软土或沙层。并盖以水泥板,其覆盖宽度应超过电缆两侧各50mm,也可用砖代用。软土或沙层中不应夹有石块或其它硬质杂物。
e电缆之间和电缆与地下管网间平行或交叉的最小距离为应符合GBJ32--82中表5.4.3的规定。
f.直埋电缆的隐蔽工程记录及简图必须齐全准确。
第六章 主要施工技术组织措施
一、质量保证措施
我公司自一九九四年一月开始GB/T19000--ISO9000国际质量管理标准培训、惯标,并由中国质量协会认证中心的指导,通过近两年来的惯标及质量体系的试运行,于一九九六年四月一次性通过了北京9000质量认证中心的认证,并颁发了《质量体系认证书》。我们应用ISO9002标准在抓好工程技术质量管理方面、收到了很大成效,特别是在重点工程的施工管理中更出它的重要性、先进性和科学性。
按照ISO9002标准程序选择强有力的项目班子,选择素质高、管理好的施工队伍。
按照ISO9002标准程序做好技术质量管理工作,抓住工程关键部位、关键工序制定相应的技术质量措施,对影响工程质量的各个因素进行控制,确保基础、主体结构、地面、门窗、装饰、屋面、水暖、电气各分部工程及分项工程的优良率要达到85%以上,全部工程质量达到优良。
A 土建工程
(l)钢管混凝土柱及无粘结预应力钢筋混凝土施工,专门成立由项目技术负责人为首的专项施工管理班子,组织有关人员进行施工前的技术、施工规范、操作规程和质量检验标准的学习,使所有管理、施工人员掌握施工技术,熟悉规范,规程、标准。
(2)施工人员必须充分熟悉图纸及规范标准要求,施工前做好分工种、专业的书面技术交底,施工中认真检查执行情况,及时做好各工序的隐蔽预检、自检工作,杜绝质量事故的发生,保证工程质量的一次成优。
(3)、推广样板制和主要工种挂牌制,认真贯彻自检,互检、交接检查制度,分层分段进行验收评定,按程序、按规范标准要求施工。
(4)砂浆及砼要按配合比配料,计量准确,认真做到每车过磅,以保证砼、砂浆强度符合设计要求,砼、砂浆配合比,必须由试验室提供,分部位使用,施工人员不得套用。
(5)各种构件、半成品、原材料,均应有合格证。现场使用的各种材料,要及时做好复试,保证工程使用合格材料。特别是砼工程和砌筑砂浆使用的水泥、钢材进场时,必须有材料质量证明书和复试报告。进场水泥、钢材应进行外观检查,看是否与材料单相符,及时取样复试,合格后方可使用。
(6)基础土方的开挖标高、几何尺寸及土质要符合设计要求,桩基时,要检查桩位、标高、桩数量是否符合设计要求,经自检合格,请建设单位、设计单位、质量监督站、地质勘测部门验槽,验收合格后,方可进行下道工序施工。
(7)施工人员要认真熟悉图纸,做好钢筋的翻样、下料、制作、绑扎、焊接工作。作到品种、规格、数量、接头位置、搭接长度、锚固长度、构造作法符合设计要求。钢筋工程经自检合格后,再请建设单位、质监部门进行隐蔽验收,合格后进行砼浇筑工作。对钢筋进行焊接的焊工,必须持有焊工合格证,施焊前,必须做好试焊取样,试验合格后方可进行批量焊接。
(8)房心、边槽土的回填,必须按设计和规范要求进行,30cm一步,分步夯实,并绘制平面图、编号取样作干容重试验,合格后方可回填下一层。
(9)充分发挥质量保证体系的作用,项目负责人、专职质量检查员对工程质量全面负责,技术负责人对技术质量工作具体负责,模范执行规范标准,保证工程的一次成优。
(10)泵送混凝土:泵送时必须选择合理的位置,安装牢固,确定最佳的混凝土浇注方向,减少泵的移动次数。每次混凝土浇筑前要试运行,浇筑后,要清洗干净,严格检查模板的刚度和严密性。施工中注意混凝土的接槎及预应力筋的位置,混凝土输送泵操作人员要经培训合格后,才可上岗。
(11)钢筋的挤压连接:操作人员必须获专业认证单位培训合格并持有操作上岗证。用于钢筋连接的钢套管,进场时,必须有原材料质量证明书和半成品加工出厂合格证。原材料的力学和化学性能应符合优质碳素结构镇静钢的要求。连接时,钢筋伸入套管的长度必须在规定的范围之内,接头处的弯折度不得大于4度。
接头处不得有凹坑、劈裂、裂缝等缺陷;压模的分布应符合钢套管同压痕位置标记的规定。中间无压痕的长度应≤5mm.挤压连接的苦头应全数实测实量检查.压痕深度按有关标准进行检查,压接接头以500个接头为一批,每批中随机抽取3个试件进行机械性能检验.合格后方可进行下道工序施工。
(12)钢管柱、钢牛腿制作安装:钢管柱半成品进场应有材料质量证明书和出厂合格证。钢构件焊接必须由经过专业培训,考试合格的人员进行焊接,并持证上岗。开焊前应进行试焊,取样试验,进行焊接工艺评定,合格后,方可开始批量焊接。焊接构件必须按设计、规范、标准的要求进行外观检验和超声波探伤检验.合格后方可进行下道工序施工。钢管柱、钢牛腿为本工程的主要承重构件,焊接质量的检验要由专业单位、专业人员进行,并严格要求。钢管柱的安装,严格按施工方案进行,垂直度的误差不得大于3H‰。
(13)钢管柱混凝土的浇注:要严格控制原材料的质量,选择最佳混凝土配比,严格配比计量,确定最佳的浇筑方法及浇筑高度,振捣方法和养护方法。严禁在已浇混凝土的钢管上施焊。(施焊长度应预留)。
(14)逆作法施工:本工程零层结构以下有部分逆作法施工。施工时严格按设计要求及施工组织设计确定的方案进行挖土、模板支设、钢筋绑扎、混凝土浇筑等施工。从挖土开始到混凝土支撑拆除,要进行沉降观测,注意上层结构的沉降变化,如发现异常情况,立即采取措施。逆作法施工必须待混凝土强度达到100%以后进行,上层模严禁堆载过大、地下室浇带施工缝应按设计严格处理,防止渗水。逆作法施工部分结构的钢筋与地连墙的连接;必须严格认真处理,保证其结构质量。
(15)用于地下防水的材料进场时,必须有材料质量证明书,并进行试验,新型防水材料必须附有使用说用书。地下防水要由持有上岗证的专业人员签工。施工中,严格质量监督,施工后严格按规范标准验收,并注意成品保护。与地下防水有关的各种预留管道、孔洞必须在结构施工时同时完成,不允许有任何剔凿打洞现象发生。
(16)无粘结预应力楼板和玻璃幕墙的质量保证措施见专项施工方法。
B、安装工程
①、在编制单位工程施工进度计划时,必须包括切实可行的安装工程施工进度计划,与土建施工密相结合,保证土建、安装的紧密配合。在编制单位工程施工组织设计时,把安装工程的施工方案、质量措施包括在内,做到土建、安装在计划、质量保证上同步,配合密切。
②安装工程应严格按设计图纸施工。变更或修改设计,必须具有设计单位的变更文件,建设单位及施工单位无权变更或修改设汁图纸。
③、安装工程所用的主要材料、设备及制品,应符合国家标准的有关规定及技术质量鉴定文件,并且具有产品合格证,材质合格证及试验报告。无材质证明或试验不合格的材料不允许使用于工程上,材质合格证必须合格。
④、安装工程中,需隐蔽的部位,在隐蔽前,现场施工人员必须事前通知建设单位有关人员验收,合格后方可隐蔽,并办理验收手续。
⑤施工人员熟悉图纸,土建与安装在施工中;必须密切配合,做好各种预留预埋,杜绝事后乱打乱凿,损伤结构和装饰效果的行为。
二、安全保证措施
(1)建立安全生产保证体系,工程项目负责人对安全工作进行全面领导,项目经理部设专职的安全员,负责对现场安全进行全面管理,班组设兼职安全员,认真贯彻安全生产责任制,切实保证多项安全生产责任制度及措施的落实和监督(2)、牢固树立“安全第一;预防为主”的思想,加强施工前的安全教育,现场各级领导要把安全生产当作头等大事来抓,认真贯彻执行国家有关劳动保护和安全生产的各项政策、法令,严格贯彻安全作业规章制度以及有关工种的安全操作规程。
(3)在安排任务的同时,必须进行安全交底,所有安全交底,均应有书面资料和交接人签字。
(4)施工用电必须符合《施工现场临时用电安全技术规程》的规定。所有施工电器,必须装置漏电保护器,现场电气设备,执行三级控制,二级保护,闸箱分设配电箱、开关箱,高塔要有可靠的防雷接地装置和力矩限位器,卷扬机、龙门架上也要设限位保护器。
(5)凡施工的楼梯口、电梯口、预留口及门窗洞口等,应采取相应的安全防护措施,防止坠落事故发生,危险作业区设安全标志牌。
(6)临主要街道要用竹笆进行全封闭,确保过路行人的安全,保证现场文明施工。
(7)设有固定的安全出入口,供施工人员进出楼内施工使用,凡出入口均搭设护头棚。
(8)塔吊工作时,坚持“十不吊”,严格按操作规程施工作业。
(9)进入施工现场必须戴安全帽,不准酒后作业;不准穿拖鞋进入施工现场,木工棚及仓库内严禁吸烟,高空作业时,系好安全带,挂好安全网。
(10)夜间施工要配置足够亮度的照明设施,并设电工值班检查,维护电路完好。
(11)机械操作人员,必须持证上岗,严禁无证操作。
(12)塔吊吊起重物时,严禁在场外上空旋转。
(13)坚持班安全前交底制,对不遵守安全生产规程的现象必须严肃对待,及时处理,将事故隐患及早清除。
三、工期保证措施
本工程从开工到竣工,总工期为406天,为保证在规定的时间内完成所有工程项目,我们将采取以下相应的工期保证措施。
①、现场管理班子,要有较强的管理能力和较高的业务水平,能够及时解决现场的一切问题。
②、制定切实有效的管理措施,使各工种、各工序合理穿插施工,提高工效。
③现场配一台发电机、一台塔吊、一台输送泵备用,以防因停电或塔吊、砼输送泵发生故障,影响施工正常运行。
④制定可行的冬雨季施工措施,使工程施工连续顺利进行。
⑤、采用快拆模板支撑体系,提高模板周转率;加快施工进度。
四、冬雨季施工措施
(1)冬季施工措施
进入冬季的施工项目,应根据气温条件;做出详细的冬季施工方案,保证冬施的工程质量。首先,进入冬季前应做好冬施的一切准备工作,冬期施工所需材料、设备、能源、外加剂等必须提前就位。
A、砼工程:
①砼冬施采用蓄热法和掺外加剂相结合的施工方法,砼出机温度不宜低于10℃,入摸温度不得低于5℃,砼浇筑后加盖保温材料进行保温。
②、所用原材料要进行严格控制,水泥优先选用硅酸盐水泥、普通硅酸盐水泥,应注意其中掺合材料对砼抗冻、抗渗等性能的影响,水泥标号不应低于425#,砼的水泥最小用量不应少于300/m2;水灰比不应大于0.6。掺用防冻剂的砼,严禁使用高铅水泥。
③砼所用骨料必须清洁;不得含有冰雪等冻结物及易冻裂的矿物质,在掺用含有钾、钠离子防冻剂的砼中,骨科中不得混有活性材料,以免发生碱---骨料反应。
④、冬期砼的搅拌,其投料顺序一般先投入骨科和粉状外加剂干拌均匀再投入加热的水。等搅拌一定时间后,水温降至40℃左右时投入水泥拌合均匀。注意搅拌时要绝对避免水泥遇到过热出现假凝现象,搅拌时间比常温延长50%,并符合有关规定。
⑤、加强冬施管理,定时测定天气温度、入模温度和砼浇筑后的温度变化情况。
B、砌筑工程
①砌筑砂浆标号一般不应低于M2.5,重要部位和结构不应低于M5,宜采用普通硅酸盐水泥拌制,砂浆掺用的外加剂使用前必须了解其化学成份、性能,使用掺量必须准确。
②如果施工时采用热拌砂浆,水的加热温度不得超过30℃,砂子的加热温度不得超过40℃,使用时砂浆的温度不应低于5℃,砂浆与砌块的温差可控制在20℃左右。
③、冬季施工砌块不得浇水,可增加砂浆稠度,砂浆稠度可控制在9--12cm之间。
C、钢筋工程
①、钢筋冷拉可在负温下进行,温度不宜低于-20℃,冷拉控制应力应较常温提高30N/mm 。张拉预应力钢筋,其温度不宜低于-15℃。
②、冬期钢筋的焊接,宜在室内进行,当必须在室外焊接时,其最低气温不得低于-20℃,且应有防雪挡风措施,焊后的接头应放在石棉粉或碳灰中缓慢冷却。焊后未经冷却的接头严禁直接接触冰雪。
D、冬施管理
①冬施试块至少比常温要多做二组备用试块,与施工部位同条件养护。
②、所用外加剂要有专人负责,使用时计量必须准确。
③、在已浇筑砼和已砌好的墙体上预留测温孔,每天测温昼夜不少于4次。
(2)雨季施工措施
①、施工现场应按地势情况和排水流向要求进行有组织排水,雨水排泄应畅通无阻,不得有积水现象。
②、砂、石料场,不得混入泥浆,否则要认真冲洗。
③、机电设备必须搭设防雨棚,水泥库等材料库在雨季前要进行检查以防雨水渗入。
④、绑好的钢筋已受泥水污染的要予以冲洗。
⑤、外门窗、入孔口要予以防护,避免飘入雨水浸湿内装饰。
⑥、木制品要有防水防潮措施,半成品要及时抄底油,堆码要垫木,室外要覆盖。
⑦室外装饰,每天的工作面不宜过大,下雨时及时防护,雨后要检查当天的活是否冲坏。
⑧、带电、大雨或六级以上大风时,不得高空作业。
⑨、脚手架、龙门架雨后加强检查,发现问题及时采取措施,消除隐患,而且在雨后检测砂、石含水率及时调整配合比。
五、降低成本的措施
(1) 节约材料方面
①工地采用限额领料,合理使用各种材料、工具,不得长材短用,优材劣用。
②、各种材料、构件,做好验收、保管,防止损坏、亏方、亏吨。
③建立班级节约责任制度,边角余料、落地灰及时回收重复利用。
④、棋板采用小型组合钢模板,代替木模,减少损耗,提高模板使用周转率;节约木材。
⑤、钢筋冷拉,集中配料,采用压力埋弧焊、以此节约钢材。
⑥、砌筑砂浆中掺外加剂,减少水泥用量。
(2)施工机械方面
注意机械的合理使用、保养、维修,提高机械利用率;不用的机械及时返还;减少台班费、停滞费的支出。
(3)文明施工方面
①、大型工具、模板、脚手架不准高空抛掷,减少损耗,及时回修,堆放整齐。
②、严格进行成品保护,对进场的成品、半成品,构件等及已完工程项目进行有效的保护;杜绝剔凿、磕碰、污染。
(4)提高工效,节约人工费方面
①场地布置要合理,减少二次搬运。
②缩短工期,尽可能提前竣工,以减少管理费和人工费的开支。
(5) 在施工中采用新技术、新工艺。
(6)保证工程质量,杜绝返工现象,力争一次成优,以减少维修费用。
六、提高劳动生产率措施
(1)提高机械化施工程度
(2)提高机械使用率 。
(3)采用新技术、新工艺,改进生产工艺,降低劳动强度,提高生产率。
(4)必要时,自觉加班加点、以保证重要部位的施工。
(5)杜绝返工现象,减少劳动力的损失。
七、节约三大材措施
(1)砌筑砂浆掺粉煤灰和塑化剂,节约白灰和水泥。砼中掺减水剂等外加剂节约水泥。
(2)广泛使用钢模板、钢夹具、钢支撑等工具式模板,加强模板使用过程中保管和保养,减少损耗,提高模板周转率,节约木材。
(3) 钢筋在加工厂进行集中下料、成型,钢筋连接采用压力埋弧焊及对焊。
第七章、主要技术经济指标
1、工期指标:
该工程经查天津定额其工期为1482天,实际进度工期安排为764天,定额工期与实际安排工期相比较,比定额工期提前了 718天。
2、安全指标:
根据公司有关安全的规定,该工程在整个施工过程中,死亡率必须为零,工伤事效率不得超过3‰无安全事故发生为最佳。
3.质量指标:
该工程根据公司有关规定及经公司研究决定其分项合格为 %,优良率为90.9% ,整体工程验收为一次性优质,争创鲁班奖工程。
4.劳动生产率指标:
根据本工程情况,安排60m2/人年或4.2日/m2。
5.降低成本率:
根据公司有关文件规定及该工程的实际情况,本工程的成本降低率必须达到10%以上,如若加强管理,勤俭施工,减少浪费,降低成本率达到12%。
第八章、文明施工
一、现场文明管理
文明施工的要求,推行现代管理办法,科学组织施工,做好施工现场的各项管理工作。
(1)按照施工总平面布置图设置各项临时设施,堆放大宗材料、成品、半成品和机具设备不得侵占场内道路及安全防护等设施。
(2) 现场占地用砖墙围护,设一个主出入大门和一个辅助大门,由保安人员管理。大门两侧设标语牌,和施工单位名称及建筑标志入口处立一个8米高12米宽的工程立面效果图。
施工现场必须设置明显的标牌,标明工程项目名称、建设单位、设计单位、施工单位、项目经理和施工现场总代表人的姓名,开竣工日期,施工许可证批号等,施工单位负责施工现场标牌的保护工作。施工现场的主要管理人员在施工现场应当佩戴证明其身份证卡。
(3)施工现场用电线路,用电设施的安装和使用必须符合安装规范和安全操作规程。按照施工组织设计进行架设,严禁任意拉线接电。施工现场的夜间照明,危险潮湿场所的照明以及手持照明灯具,必须采用符合安全要求的电压。
(4)施工机械应当按照施工总平面布置图规定的位置和线路设置,不得任意侵占场内道路。施工机械进场须经过安全检查,经检查合格的方能使用、施工机械操作人员必须建立机组责任制。并依照有关规定持证上岗;禁上无证人员操作。
(5)施工单位应保证施工现场道路畅通,无积水无污染,无长明灯,无长流水,料具分类堆放整齐。排水系统处于良好的使用状态,保持场容整洁。随时清理建筑垃圾,在车辆、行人通行的地方施工,应当设置沟井坎穴覆盖物和施工标志。
(6)必须执行国家有关安全生产和劳动保护的法规建立安全生产责任制,如加强规范化管理,进行安全交底,安全教育和安全宣传,严格执行安全技术方案。
施工现场的各种安全设施和劳动保护器具,必须定期进行检查和维护,及时清除
隐患,保证其安全有效。
(7)施工现场要设置各类必要的职工生活设施,并符合卫生、通风、照明等
要求。职工的膳食,饮水供应等应当符合卫生要求。
二、成品保护
(1)成品、半成品进入现场后要按指定位置堆放整齐,并加以保护。
(2)施工中对已完成的门窗,楼梯踏步,卫生器具,室内墙面,地面,阴阳角等部位要采取相应的保护措施。
(3)建立工序交接手续责任制。工程完工后定期组织有关人员进行回访,解除用户后顾之忧。
三、现场环境管理
(1)遵守国家有关环境保护法规的规定;采取措施控制施工现场的各种粉尘、废气、废水、固体废物以及噪声、振动对环境的污染和危害。
(2)妥善处理泥浆水,未经处理不得直接排入城市排水设施和河流。
(3)不得在施工现场溶融沥青或者焚烧油毡,油漆以及其他会生产有毒有害烟尘和恶臭气体的物质。
(4)高空废弃物采取有效措施落地,振动的施工机具,应采取有效的控制措施减轻噪声扰民。
雅居云录是分户验收二维码与档案数字化的行业标杆平台,集成智能房号匹配、可视化档案进度、多格式文件批量上传、智能照片排版与二维码生成等功能,提供全流程数字化解决方案,广受行业认可,多地质监机构推荐使用。