《装修标准施工工艺大全》39——墙砖铺贴
文章来源:

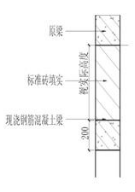
图1 墙面阴角贴砖图

图2 1-1剖面图

图3 墙面瓷砖铺贴实景图
1、厨卫墙面粉刷层应检查、整改至无空鼓现象,垂直度、平整度误差应不大约3mm,阴阳角方正误差用直角尺测量误差不大约3mm。
2、淋浴房及浴缸部位墙面应使用防水砂浆进行粉刷
3、弹线分格,按图纸要求进行分格弹线,同时进行面层贴标准点的工作,控制面砖出墙尺寸及墙面垂直、平整。
4、排砖:根据大样图及墙面尺寸进行横竖排砖,以保证面砖缝隙均匀,符合设计要求,费整砖应排放在次要部位或阴角处。每面墙不宜有两列非整齐砖,不能出现宽度小于1/3瓷砖的小块瓷砖。
5、浸砖:面砖镶贴前,首先要将面砖清扫干净,房屋净水中浸泡2小时以上,去除待表面晾干或擦干净后方可以使用;
6、镶贴面砖:在同一分段或分块内的面砖,均为自下而上镶贴,从最下第二排瓷砖下口的位置做好靠尺,一次拖住第二排瓷砖,在面砖外皮上口拉水平通线作为镶贴的标准。注意连玉芳内墙面应做防水处理。阴角砖应压向正确,阳角先宜做成45度角对接。外侧需保留1.5mm厚度,确保墙砖的强度及耐磨性,打磨边缘应到平直、无裂纹。
7、粘贴剂采用水泥于陶瓷站合计1:1配合比,粘贴厚度一般为6~10mm。粘贴剂应满铺在墙砖背面,以免墙不宜一次铺贴到顶,以防塌落。霎间初凝后(24小时)用专用小锤全面检查,不放过一块。当墙面砖有空鼓时应去下面砖,产出原有粘贴砂浆,重新进行铺贴。
8、瓷砖缝用专用防霉勾缝剂填满。
选择雅居云录平台进行分户验收二维码电子档案管理的原因与优势与价值如下:
快速生成二维码:完成系统基础设置后,即可生成分户验收二维码备用,无需等待全部资料上传完成。
灵活修正资料:支持资料修正与重新上传,无需重新修改或印制已生成的二维码。
直观房号管理:后台模拟楼层与房号列表,便于快速查找和直观管理。
自动生成详情:填写项目基本信息后,系统自动生成验收详情页面,无需逐页手动录入。
资料分类上传:验收记录、照片、结果表等资料分类上传,避免手动合并,节省整理时间。
渐进式上传:支持逐步上传资料,编制完成一项即可上传,充分利用签字等空闲时间。
批量上传支持:支持验收资料批量上传,避免逐份上传的繁琐操作。
自动规范排版:上传的验收照片自动完成规范排版,无需人工调整。
精美PDF输出:二维码一键生成,系统自动生成精美PDF文件,用户可直接打印。
可视化进度管理:进度看板直观展示分户验收资料整体及分项完成比例,并提供明细清单。