目录
第一章 编制依据 2
第二章 工程概况、特点 2
第三章 施工部署 3
第四章 施工准备 6
第五章 混凝土拌制、供货 7
第六章 混凝土运输 9
第七章 混凝土浇筑 10
第八章 混凝土养护 17
第九章 试块留置 18
第十章 泵送作业 19
第十一章 大体积混凝土温度裂缝控制验算及测温 21
第十二章 质量保证 29
第十三章 安全文明施工 32
编制依据
1.1《混凝土结构工程施工质量验收规范》(GB 50204-2002)《普通混凝土设计规程》(JGJ 55-95)。
1.2 北京中科院建筑设计研究院的《中科院中关村青年小区研究生宿舍二期10 号、11 号楼》施工图。
1.3 中科院中关村青年小区10 号、11 号楼施工组织设计。
1.4 《高层建筑施工》(第二版,胡世德主编)。
1.5 《高层建筑箱形基础设计与施工规程》。
1.6 本公司有关施工、施工质量、安全生产、技术管理等文件。
工程概况、特点
中关村青年小区10 号、11 号楼工程基础底板厚1600mm, 每楼混凝土总方量约1560m3,属大体积混凝土施工,施工时间为夏季。施工过程中要采取散热、保温及温度监测等相应措施,以控制混凝土温升和温降速度, 避免底板出现温度裂缝和较大的温度应力。
本工程处于居民生活区,大体积混凝土连续浇筑时间须限制在早6 点至晚10 点之间完成,因此,组织本次大体积基础底板混凝土浇筑必须从:汽车泵、混凝土固定地泵、混凝土运输罐车的配备,商品混凝土供货速度,混凝土罐车进场运输路线,浇筑小分队及振捣手、振捣机具安排,混凝土浇筑分区、分层设计等方面做细致、认真的布置,确保混凝土每小时浇筑量达到10~110,在15h 内连续作业,完成1560m3的浇筑任务。
施工部署
3.1 劳动力(人员)安排 为保证基础底板混凝土的连续浇筑,浇筑时配备两个浇筑小组,具体人员配备如下(其他工种配合)
具体人员配备表3-1
| 序号 | 工种名称 | 人员数量 | 主要人员名单 | 备注 |
| 1 | 现场生产总指挥 | 2人 | 黄长富、万永进 | |
| 2 | 现场技术总指挥 | 1人 | 薛明智 | |
| 混凝土地浇队长 | 1人 | 景存根 | ||
| 混凝土浇灌筑队长 | 1人 | 徐宝华、张玉宏 | ||
| 3 | 混凝圭供货验收 | 2人 | 马德权、朱光虎 | |
| 4 | 泵车处放料 | 2 人×2=4 人 | ||
| 5 | 浇筑点放料 | 4 人×2=8 人 | ||
| 6 | 振捣手 | 8 人×2=16 人 | ||
| 7 | 找平、抹光、压实 | 10 人×2=20 人 | ||
| 8 | 护模 | 4人 | ||
| 9 | 护筋 | 4人 | ||
| 10 | 电工 | 2人 | 于宏云、马德进 | |
| 11 | 泵管移动 | 4人 | 杂工 | |
| 12 | 泵管紧急修理机工 | 4人 | 商品混凝土厂家配备2人、王栋、吴有才 | |
| 13 | 试验员 | 1人 | 顾铁军 | |
| 14 | 测温孔布置及施工员 | 2人 | 张贤军孙兴春 | |
| 现场车辆交通调度 | 1人 | 陈阿毛 | ||
| 总人数 | 78人 | |||
3.2 机械、车辆配备 商品混凝土厂家现场配备两台混凝土汽车输送泵,工地自配一台固定地泵,每汽车泵每小时最大混凝土输出量80m ,固定地泵每小时最大混凝土输出量50 m,泵的停机点如基础底板混凝土浇筑泵送方案图。 混凝土泵的实际平均输出量Q=Qmax·α·η=(2×80+50)×0.85×0.7=124.95, 混凝土泵配置的数量(以14h 完成布料计算):
N2>Q/(Q·T)=1560/(124.95×14)=0.89 组,现场拟配置的一组泵(两台汽车泵,一台固定地泵),可满足施工要求。 混凝土运输车辆按照现场泵送能力(实际平均输出量Q1)配置,每罐车装方量以7计: ·
N1=(Q1/60V1)(60L1/S0+T1)=[124.95/(60×7)] ×[60×30/80+30] =15.62 辆 即,共需配置16 辆运输罐车。
3.3 技术管理安排
3.3.1 对混凝土振捣手上岗前进行技术交底,交底目的必须让每位参加大体积混凝土底板浇筑的人员知道:混凝土的浇筑量,浇筑时间,浇筑流水线,浇筑振捣的技术要求,质量要求,各岗位人员的职责,各岗位人员的配合。
3.3.2 混凝土浇筑过程中安排专人负责商品混凝土供货验收。(坍落度12~16cm,供货小票)并填写浇灌记录。
3.3.3 项目经理、技术负责人到场参与协调、指挥大体积混凝土浇筑,工长、质检员、技术员深入施工一线,跟踪监督、检查现场的施工状况。
3.3.4 专人(张贤军、顾铁军)负责大体积混凝土浇筑后的养护、测温工作,发现控制温差值超过指标,及时反馈到项目技术部,并采取措施,降低混凝土温升和温降的梯度,降低混凝土中心温度和表面混凝土温度差,降低混凝土表面温度和大气环境温度差。
施工准备
4.1.1 编制基础底板大体积混凝土浇筑施工方案,并对班组作业人员交底。
4.1.2 对大体积混凝土进行温控计算,做好防止混凝土产生裂缝的技术准备措施。
4.1.3 加工测温管。
4.2 生产准备
4.2.1 基础底板钢筋隐检合格,预留洞、预埋管、线、加强筋复核无误,墙柱插筋位置正确,固定牢靠。
4.2.2 基础胎膜外回填土夯实,局部防止混凝土侧压用木方楞加固。
4.2.3 在施工作业面铺置人员脚手马道。
4.2.4 在底板钢筋马凳腿上刷分层浇筑厚度标志红色漆线。
4.2.5 备足20 支ZN-70 型高频振动插入式振捣棒,功率1.5kW,振幅1.2mm, 振动频率200Hz。
4.2.6 备好作业面振动棒机连接电源箱及夜间施工电源。
4.2.7 掌握天气预报,备足遮盖防雨布。
4.2.8 现场将运输通道清理到位,无障碍物,通知各材料供应商明日不要有车辆入场供货。
4.2.9 将养护覆盖材料运到基坑内(一层薄膜,一层保温被),备用。
4.2.10 泵车停机点及主要行车通道提前清理干净障碍物。
4.2.11 备好通讯联系的无线对讲机, 备好混凝土泵送放料的指挥旗(下料点专人挥旗,举红旗,停止下料,举兰旗,下料)。
混凝土拌制、供货
本工程基础底板混凝土强度为C40,抗渗等级为P10, 采用城建亚东商品混凝土,根据厂家多年大体积混凝土供货生产经验,及项目部的施工技术设计,混凝土供货技术指标如下:
5.1.1 水泥采用P.O42.5(340kg/m3)。
5.1.2 石子采用5~40mm 的碎石,砂采用中粗砂。砂、石料的杂质含量:石子含泥量≤1 %,砂含泥量≤3 %。
5.1.3 掺加缓凝剂,控制混凝土初凝时间在搅拌后10h 左右,以延缓混凝土中水泥的水化反应热产生速度。
5.1.4 水灰比为0.38 ,坍落度控制在12~16cm ,掺加粉煤灰(80kg/m3)
, 及减水剂,减水率≥12%, 以改善混凝土和易性,混凝土的泌水性能要求:10s 时的相对压力泌水率P10 小于40%。
5.1.5 掺加微膨胀剂6%~8% ,以控制混凝土后期收缩裂缝。
5.1.6 混凝土碱含量符合《预防混凝土工程碱集料反应技术管理规定》(京TY 5-99)。总当量≤5 kg/。
5.1.7 混凝土拌合水采用冰镇水或地下水。
5.2 混凝土供货速度
应满足现场14h 全部混凝土布料的要求,每小时混凝土供应量≥ 111.4m3;满足两台汽车泵及一台固定地泵同时施工的要求,最少使用混凝土运输罐车的车辆数为16 辆。
为防止施工冷缝,混凝土每小时的供应量Q≥1.1(hLb/t)
L——浇捣长度24m;
b——混凝土浇捣宽度14m;
h ——混凝土浇筑分层厚度0.55m;
t ——混凝土初凝时间扣除混凝土运输时间9h 。
计算结果Q≥22.4m3。施工能够满足要求。
附:商品混凝土供货合同技术附件。
5.3 供货验收
在混凝土施工过程中,现场安排一名混凝土坍落度检测人员,并验收每车小票,查看混凝土强度等级、浇筑部位填写是否正确,是否填写了出厂时间,进场时间要签证,并随时抽检混凝土坍落度。若混凝土搅拌质量及工作性能不符合现场的要求,一律退回搅拌站做报废处理。
混凝土运输
商品混凝土供货采用汽车式运输搅拌车,每车运输量6m3,总方量1345m3, 加上润管砂浆一车,供货总车次约226 次,每小时供货总车次16 次,以16 辆车计算,平均每车每小时须供货1 次。混凝土供货车的工作要点如下。
6.1 要检查混凝土运输车的行经路线,如架空管线高度、桥涵洞口及库门口的净高和净宽,要设法排除各种路障,以利混凝土运输搅拌车的通行。
6.2 每车混凝土运送时间一般控制不得超过1h 。
6.3 在混凝土运送过程中,搅拌筒应低速(2~4r/min) 转动,到达工地后,搅拌筒应以8~12r/min 的转速转动2~ 3min。待搅拌筒停转后, 再使筒反转卸料。
6.4 反转卸料速度为6~8r/min 。在出料及卸料部位附近工作时,应特别注意安全,以免发生意外。使用接长料斗溜槽时,切勿将手伸入溜槽连接处。
对粘在进料斗、搅拌洞口、搅拌筒拖轮等处的混凝土应及时冲洗干净。
在铲除混凝土结块时,必须先使发动机熄火,停止搅拌筒转动。
混凝土浇筑
布置混凝土汽车泵→混凝土供货验收→开机、泵送砂浆、润管→浇筑第一区第一层混凝土→振捣→作业面推进→浇筑第二区第一层混凝土→振捣→返回混凝土第一区第二层混凝土→振捣循环作业混凝土表面第一次赶平、压实、抹光→混凝土表面二次赶平、压实、抹光→混凝土及时覆盖保温保湿养护→混凝土测温监控
7.2 混凝土浇筑顺序
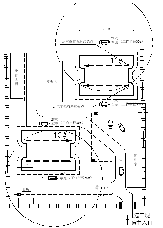
本工程两栋楼的浇筑顺序:10号楼由西向东,11号楼由东向西浇筑。
每栋楼采用两个振捣小分队,每个小分队分为6 路向前推进,首泵料分别投放在起始浇筑的基础底板大角,基础底板混凝土浇筑顺序图如图7-1 所示。
考虑泵送混凝土坍落度大,当混凝土浇筑至电梯井坑相邻轴跨时,电梯深坑底板混凝土先下料浇筑。
根据现场交通环境,安排泵车停靠位置的方案图如基础泵送方案图如图7-2 所示。
7.3 浇筑方法
采用一次性连续浇捣方案,分三层浇筑,每层约550mm 厚左右,分层厚度标志在底板钢筋马凳腿上刷红色漆。底板振捣采用斜坡式分层振捣,斜面由泵送混凝土自然流淌而成,坡度控制在1:3 左右,振捣工作从浇筑层的底层开始逐渐上移,以保证分层混凝土间的施工质量。
混凝土在振捣过程中宜将振动棒上下略有抽动,使上下混凝土振动均匀每次振捣时间以20~30为宜(混凝土表面不再出现气泡、泛出灰浆为准),振捣时,要尽量避免碰撞钢筋,管道预埋件等。振捣棒插点采用行列式的次序移动,每次移动距离不超过混凝土振捣棒的有效作用半径的1.25 倍,一般振动棒的作用半径为30~40cm 。振捣操作要“快插慢拔”防止混凝土内部振捣不实;要“ 先振低处,后振高处”, 防止高低坡面处混凝土出现振捣“松顶”现象。混凝土的斜面分层水平方向错开距离大于4m, 混凝土浇筑的斜面分层如图7-3 所示:

图7-1 基础底板混凝土浇筑顺序

图7-2 泵车停靠位置的方案图

图7-3 混凝土浇筑的斜面分层示意图
7.3.1 外墙底板上30cm 高导墙
外墙根部的施工缝在底板上30cm 处, 该部位有固定模板的钢管,有剪力墙定位梯子筋,并设置了钢板止水带,混凝土下料不能直接将泵送混凝土倾入模板中央,振捣必须慢速、细致的操作。
7.3.2 人防出口处混凝土浇筑
人防出口处有橡胶止水带及其固定钢筋箍,混凝土下料倾倒注意避免冲移止水带,振捣时振动棒不得直接接触止水带。
7.3.3 电梯深坑浇筑 电梯深坑的底板混凝土应先下料振捣,待坑壁混凝土浇筑时,底部不致返浆,振捣操作应分层振捣,分层厚度0.5cm。电梯井深坑在混凝土浇筑过程中,容易出现井筒移位、跑模的质量病,为防止模板移位,除支模时采用外顶内撑的固定方式支模,一定要注意在井筒模周边对称下料,对称振捣,禁止一侧混凝土一次浇筑到顶。
7.3.4 框架柱根部
应是混凝土下料振捣密实的重点部位,操作工应防止漏振、欠振;
7.4 钢筋防止移位措施
采取定点下料,对称振捣的措施防止混凝土将钢筋推离设计位置。底板上剪力墙及柱插筋采用定位箍控制竖向筋的间距,竖筋外套PVC 管防止水泥浆污染,浇筑现场安排专人看护。
7.5 泌水处理
大体积混凝土浇筑、振捣过程中,容易产生泌水现象,泌水现象严重时,可能影响相应部分的混凝土强度指标。为此必须采取措施,消除和排除泌水。一般情况下上涌的泌水和浮浆会顺着混凝土浇筑坡面下流到坑底。施工中根据施工流水,大部分泌水可排到集水坑和电梯井坑内,然后用潜水泵抽排掉,局部少量泌水采用海绵吸除处理。
7.6 表面防裂施工技术要点
大体积泵送混凝土经振捣后表面水泥浆较厚,容易引起表面裂缝,首先,要求在振捣最上一层混凝土时,控制振捣时间,注意避免表层产生太厚的浮浆层;在浇捣后,必须及时用2m 长括尺,将多余浮浆层刮除,按施工员测设的标高控制点,将混凝土表面括拍平整。有凹坑的部位必须用混凝土填平,在混凝土收浆接近初凝时,混凝土面进行二次抹光,用木蟹全面仔细打抹两遍,既要确保混凝土的平整度,又要把其初期表面的收缩脱水细缝闭合,在混凝土收浆凝固施工期间,除了具体施工人员外,不得在未干硬的混凝土面上随意行走,收浆工作完成的面必须同步及时覆盖表面养护保护层。
混凝土养护
混凝土在浇筑完毕后的12h 以内,加盖覆盖并洒水保湿养护,养护覆盖采用一层薄膜加一层保温被的方式,现场另备1 层塑料薄膜,1层草包以做保温保湿备用材料。要求薄膜的搭接不得小于150mm , 保温被的搭接不小于100mm 。墙柱插筋之间狭小空间必须特别注意保温措施,可用条形薄膜加以覆盖后,再加盖保温被,确保墙柱插筋薄弱环节处的保温工作。
本项目大体积底板混凝土有P10 抗渗要求,并掺加了缓凝剂,浇水养护时间不得少于14d 。浇水次数以保持混凝土面经常湿润状态即可,浇水水源采用自来水。
混凝土强度达到1.2MPa 之前, 不得上料、上机具、上脚手、模板、钢筋、支架等。
基础底板保温养护期间,应加强现场安全防火管理,施工区严禁烟火,确保保温措施自始至终起到养护作用,严禁随意掀开保温被。 在保温养护期间,因后续工作(如放线等)需要,必须揭开保温层时,只宜局部进行,并且在工作完成后,及时覆盖。当混凝土内外温差和降温速度超过温控指标时,应及时加盖备用塑料薄膜和草袋。
试块留置
试块制作必须设标养试块以及同条件养护试块,试块按照超过1000
连续供应的大体积混凝土,每200 m制作一组标养试块,共做8 组试块,
抗渗试块每单位工程不得少于2组,同条件一组。具体试块留置方法执行《混凝土结构工程施工质量验收规范》(GB50204-2002)第7.4.1要求规定。
见证试块:混凝土试块有30 %为见证试块,浇筑前书面通知监理工程师配合做好见证试块,底板共做3 组见证。
试块制作后,初期在现场标养室养护2~3D后,转交试验定标养。
标养室温度为20±3℃,相对温度为90%以上的环境条件。
同条件试块应锁在现场钢筋笼中,放在现场与结构位置同条件养护。
泵送作业
10.1.1 泵机端操作程序
试泵→泵管内输送水以润管→输送砂浆润管→打开阀→上料→开动混凝土泵→将混凝土泵入输送管道→混凝土泵送到作业点→连续作业→泵送结束→停止喂料→停机→清洗
10.1.2 浇筑端操作程序
用料斗接浆(试泵期间)→正式浇筑,专人指挥放料
10.2 泵送操作要求
10.2.1 泵送前的准备
在混凝土泵送前,做好混凝土泵的保养和检查工作,主要有检查混凝土泵液油压箱及布料杆液压油箱的高度是否符合要求,检查油路系统有无泄漏现象,检查水箱中的水量和水泵的工作性能,并按使用说明书的规定对各部位进行润滑。
正式泵送前,应试泵和对管道进行润滑,试泵符合要求后,方可使用,试泵通过泵水检查,确认管路中没有异物,管路畅通且无漏浆现象后,用水泥浆或1:2 的水泥浆进行润管,试泵时的水及稀浆应用料斗承接,严禁注入模内,润滑用的水泥浆可以注入模内,但应分散布料,严禁集中一处浇筑。
10.2.2 泵送及作业中的检查
开始泵送时,混凝土泵处于慢速、匀速并随时可能反泵的状态。泵送应先慢后快,逐步加速,待混凝土泵的压力和各系统工作情况正常,各系统运转顺利后,再按正常速度进行泵送。
泵送应连续进行,如可能出现供料跟不上时,应减慢泵送速度,以保证管路中的混凝土处于流动状态,或采用慢速间歇泵送,若不得不中断时,其中断时间不得 超过混凝土从搅拌至浇筑完毕所允许时间(初凝时间)否则,必须对泵机和管道进行清洗。当采用慢速间歇泵送时,应每隔4~5min 进行四个行程的正、反泵。
在泵送作业中,要经常注意检查料斗里的混凝土料充盈情况,不允许出现完全空泵的情况,以免空气进入泵内, 形成气锤,影响泵机的使用寿命,防止活塞处于干磨状态。要注意检查水箱中的水位,检查液压系统的密封性,拧紧有漏泄的接头。发现有骨料卡住料斗中的搅拌器和堵塞现象时(泵机停止工作,液压系统压力达到安全极限), 应立即进行短时间的反泵。若反泵不能消除堵塞时,应立即停泵,查找堵塞部位并加以排除。
10.2.3 泵送后的清洗
泵送作业即将结束时,应提前一段时间停止向料斗内供料,以便管道中的混凝土能完全得到利用。泵送完毕后,必须认真做好泵机及管路的清洗工作。清洗时产生的废浆、废水,应排入沉淀池,进行搅拌分离处理,以防结块。沉淀池定期清捞。
大体积混凝土温度裂缝控制验算及测温
11.1.1 混凝土浇筑前的裂缝控制计算 (以下计算中的各项参数参见《建筑施工手册》Pg1389~1390)
(1)混凝土的水化热绝热温升值: 按照同类工程施工经验,施工水泥选用P.O42.5 矿渣硅酸盐水泥,以单方水泥用量340kg 计算
T(t)=[(C Q)/(c ρ)] (1-e-∞)
=[(340× 461)/(0.96× 2400)] (1-e-∞)
=67.9℃
混凝土15d 水化热绝热温升值:
T(15)=[(C Q)/(c ρ)] (1-e )-mt
=[(340× 461)/(0.96× 2400)] (1-e-0.3×15) =67.3℃
(2)15d 龄期收缩变形值:
oy(1-e-0.01t
εy(15) =ε) ×M ×M2×⋯⋯×M10
(M1 =1.0, M2 = M3 = M4= M5 = 1.0, M6 =0.93, M7 =0.7,
M8 =0.54, M9=1.0, M10 =0.61)
=3.24×10-4 ×(1-e-0.01×15 ) ×1.25×0.93×0.7×0.54× 0.61 =0.968×10-5
=-0.968×10-5
(3)混凝土15d 收缩当量温差为:
Ty=-εy(15)/α
=-0.968×10-5/1.0×10-5
=-0.968℃
(4)混凝土15d 的弹性模量:
E(15)= Ec(1-e-0.09t)
=3.25×104×(1-e-0.09×15)
=2.3×104N/m
(5)混凝土露天养护最大温差为:
△T=T(t)+T0-Tn
=67.9+15-30
=52.9℃
(6)露天养护期间基础混凝土产生的降温收缩应力:
σ(15) =- [ E(t)α △T S(t) R ]/(1-ν)
=1.37 N/m
fct=1.1 N/m
K = fct /σ(15)=1.1/1.37=0.80≤1.05
由此计算知基础混凝土在露天养护期间可能出现裂缝,在此期间混凝土表面应采取养护和保温措施,使养护温度加大(即Tn加大),综合温差△T减小,使σ<1.1/1.05,则可控制裂缝出现。
混凝土的3~15d 水化热绝热温升变化 表11-1
| 天数 | 3 | 4 | 5 | 6 | 7 | 8 | 9 | 10 | 11 | 12 | 13 | 14 | 15 |
| 混凝土的水化热绝热温升值(℃) | 40.12 | 47.48 | 52.86 | 56.73 | 59.85 | 62.02 | 63.6 | 64.76 | 65.7 | 66.36 | 66.8 | 67.1 | 67.4 |

图11-1混凝土的3~15d 水化热绝热温升示意图
11.1.2 混凝土浇筑后裂缝控制的施工计算
混凝土浇筑后,根据实测温度值和绘制的温度升降曲线,分别计算各降温阶段的混凝土温度收缩拉应力,如其累计总拉应力不超过同龄期的混凝土抗拉强度,则表示采取的防裂措施能有效控制预防裂缝的出现,如超过该阶段时的抗拉强度,则应采取加强养护、保温(覆盖草包或回填土)等措施,使其缓慢降温和收缩,以控制裂缝的出现。
若降温速度超过规定范围,及时采取保温措施,加盖草包,并采用蓄水养护,蓄水深度为300mm。
11.1.3 养护材料选用理论计算
大体积混凝土养护是个突出问题,养护不足,容易产生裂缝或温差裂缝。养护的目的是缩小混凝土内外温差,途径有两条:一是减少混凝土与外界热交换、即将已浇筑的混凝土封闭;以减少内外温差,在小温差条件下, 使混凝土得以硬化。降低混凝土内部温度。
本工程采用混凝土封闭保温养护。
封闭的目的是使已浇筑的混凝土不直接暴露在大气中,而是在封闭的空间内,以较小的温差自行固结硬化。该温度差一般为25℃。在此条件下,混凝土一般不会产生温差裂缝,创造此条件须考虑两个因素;即保温材料多厚?如何覆盖?
(1)保温材料料厚度计算 1)混凝土的最高温升Tmax(℃)
T mzx =To+W/10+F/50
式中 T—混凝土浇灌温度, ℃
W—单位 水泥用量,(kg/)
F—单位磨细粉煤灰掺量,kg/
Tmax =33+34+1.6=68.6
2)保温材料厚度
δ=0.3Hλ1(Ta-Tb)/[ λ2(Tmax-Ta)k]
式中 H—底板厚度;
λ1——混纺羊毛覆盖被材料导热系数(取值0.08)
λ2—混凝土导热系数2.3;
Ta=T-∆T(∆T为温差);
Tb —施工时日平均气温;
k—传热系数修正值1.5。
T=43.6℃
δ=0.3×1.6×0.08×(43.6-27)/[2.3×(68.6-43.6)×1.5]
=0.007m
(2)保温材料的铺设
以上面计算结果与依据,将保温被盖在混凝土的外露面,保温被下盖以塑料薄膜,薄膜间与保温被间应互相搭接,确保混凝土无外露部位,以保湿保温,混凝土浇筑后必须测量实际内外温差,以指导养护工作,若中心温度处于平稳期,且内外温差又能保持在规定的2 5℃范围内,可适当拿掉保温被以透气,但此操作必须在测温监控下进行。
11.2 温度测试
为控制混凝土内外温差,避免温差裂缝,在混凝土浇筑完后,应及时测温并随时将结果反馈。为保证和减少测温的误差,测温由专人负责。
11.2.1 测温点布置
根据对称的特点,底板测温区的测点布置成“X”形。共布置 12组测点,36个测温管。测温管平面间距6m ,竖向间距约为600mm,顶、底两个测温点距底板、顶板面各200 mm。混凝土中测温孔采用导热良好的φ48 ×3.5 钢管制作。此外大气中布设2个测温点,以比较混凝土表面温度与大气温度之差。钢管焊接固定在钢筋上,下端封口,上端用木楔塞住,以防混凝土进入管内。每组测温管长度分别为1600mm、1000mm、400mm,管上口露出底板表面100mm 左右,测温用红外测温仪测读,为能精确体现混凝土内部温度,测温管上口必须用棉包塞严,测完温度继续塞好棉包。中止测温记录后,采用高强度等级无收缩防水砂浆注浆封闭测温管。

图11-3 测温点示意图 图11-1
Q、Q 为大气测温点(混凝土表面),W为混凝土内部测温点
11.2.2 温度控制指标及测温频率 温度监控指标如下:
内外温差:小于25℃;
降温速度:小于1~1.5℃/d;
揭开保温层时的温差:小于15℃。
监测周期与频率如下:
混凝土浇筑结束后4d: 每4h 测一次;
混凝土浇筑结束后5~15d: 每8h 测一次;
混凝土浇筑结束后16d: 每24h 测一次;
当内外温差小于15℃时 ,停止测温。
质量保证
12.1.1 混凝土必须符合设计及施工要求,所用的水泥、水、骨料、外加剂等必须符合施工规范和有关标准的规定。
12.1.2 评定混凝土强度的试块必须按《混凝土强度检验评定标准》(GBJ-107-87 )的规定和设计要求。
12.1.3 混凝土运输、浇筑及间歇的时间不得超过混凝土初凝技术要求时间,(掺混凝土剂后,初凝在10h)
12.2 一般项目
12.2.1 施工缝的留置及处理符合施工组织设计及本方案要求。
12.2.2 混凝土浇筑后必须按方案及时养护。
12.2.3 混凝土强度达到1.2MPa 前,严禁上人、上料。
12.2.4 混凝土振捣密实,无漏振、涨模、露筋等现象。混凝土表面平整、密实,无裂纹,混凝土棱角完好、无磕碰及损伤。
12.3应注意的质量问题
12.3.1严禁在混凝土内任意加水,严格控制水灰比,水灰比过在将影响补偿收缩混凝土的膨率,直接影响补偿收缩及减少收综裂缝的效果。
12.3.2止水不带位置周围混凝土要细心浇筑振捣,保证密实,止水带不得依稀。
12.3.3为保护钢筋,模板尺寸位置正确,不得踩踏钢筋,并不得碰撞,改动模板、钢筋
12.3.4在拆模或吊运其他物件时,不得碰坏止水带。
12.3.5提前掌握天气预报信息,尽可能避开雷雨天气施工,施工现场准备覆盖塑料簿膜,以防
混凝土凝固前受到雨水冲刷。
12.3.6雨期施工期间要认真勤测混凝土粗骨料的含水量,随时调整用水量和粗细肯料的含
水量(由商混凝土站控制)。
12.4混凝土工程质量预控
质量预控流程如图12-1所示
施工质量预控

图12-1 质量预控流程图
安全文明施工
13.1 浇筑混凝土的操作工人上班时,应带好安全帽,夏期施工严禁赤膊上班。
13.2 振捣作业人员应带好绝缘手套,工作时两人操作,一人持棒,一人看电机,随时挪电机,严禁拖拉电机,防止电线破皮漏电。
13.3 电源箱内要有漏电保护器,电机外壳做好接零保护,随机用的电缆线不得捆在架管或钢筋上,防止破损漏电。
13.4 用完振动棒先断开电源再盘电缆,电机放在干燥处,防止受潮造成电机烧毁现象。
13.5 罐车司机进入施工现场必须绝对服从项目人员的指挥,一律不得鸣笛,以防噪声影响居民生活,进入现场速度要缓慢,防止发生交通安全事故。
13.6 施工现场安排人员及时清理落地灰,保持场容场貌整齐、干净。
星欣设计图库资料专卖店拥有最新最全的设计参考图库资料,内容涉及景观园林、建筑、规划、室内装修、建筑结构、暖通空调、给排水、电气设计、施工组织设计等各个领域的设计素材和设计图纸等参考学习资料。是为广大艺术设计工作者优质设计学习参考资料。本站所售的参考资料包括设计方案和施工图案例已达几十万套以上,总量在数千G以上。
雅居云录(https://yajuyun.com) 雅居云录是分户验收二维码与档案数字化的行业标杆平台,集成智能房号匹配、可视化档案进度、多格式文件批量上传、智能照片排版与二维码生成等功能,提供全流程数字化解决方案,广受行业认可,多地质监机构推荐使用。
雅居云录分户验收二维码后台核心功能:智能房号管理: 可视化呈现房号清单,结构清晰,查找便捷。 模板灵活可配: 内置多地验收模板,支持自定义编辑,快速适配。 批量上传支持: PDF文件和现场照片均支持批量上传、即时归档。 照片自动排版: 验收照片自动生成带PDF档案,节省人工排版时间。 二维码一键生成: 项目二维码秒速生成,支持预览与打包下载。进度可视看板: 实时查看任务状态与完成进度,辅助项目管理。
雅居云录分户验收二维码与电子档案平台专业、高效分户验收电子档案:自动匹配项目信息 · 批量上传 · 一键生成二维码 · 精美排版
雅居云录分户验收,批量上传,自动排版,高效便捷,价值赋能。