目录
第一章 本方案遵循下列技术标准 2
第二章 工程概况 2
第三章 施工部署 4
第四章 分项工程施工方案 7
第五章 质量目标及保证质量的技术措施 30
第六章 安全技术交底 35
第七章 文明施工 38
第八章 雨期施工技术措施 38
本方案遵循下列技术标准
| 序号 | 类别 | 技术规范名称 | 编号 |
| 1 | 国
家 |
地下工程防水技术规范 | (GBJ 108-87) |
| 2 | 地下防水工程施工及验收规范 | (GBJ 208-83) | |
| 3 | 混凝土结构工程施工及验收规范 | (GB 50204-92) | |
| 4 | 钢筋焊接及验收规程 | (JGJ 18-84) | |
| 5 | 组合钢模板技术规范 | (GBJ 214-89) | |
| 6 | 北京市 | 建筑安装分项工程施工工艺规程 | (DBJ 01-26-96) |
工程概况
表演池是整个海洋馆工程中最重要的项目之一,也是施工难度最大的项目之一,该水池的外形水平投影为“腰果形”。它由多种不同曲率的曲线相切连接,水池周边长度为180.713m; 整个表演池为全现浇钢筋混凝土结构,壁厚500mm,底板厚350mm,底板上皮结构标高为-6.5m 。底板以下为承台及承重连系梁,承台下为挖孔灌注桩,池壁顶面标高为+0.5m。环绕表演池的地下工作间为10 号工作间,工作间地面与表演池底面同标高,该工作间环绕水池布置,现浇钢筋混凝土外墙壁,周长为216.667m,墙厚400mm,底板厚150mm,底板下结构与表演池相同,顶板为现浇钢筋混凝土梁板,顶板上皮标高为+0.3m。表演池及10 号工作间均为各自封闭的混凝土墙,其中10 号工作间周长为216.67m,表演池周长为180.71m,按国家规范规定,上述长度已远远超出规范中有变形缝间的最大距离的上限。这就是说,从施工角度来讲,也无法保证一次连续浇筑混凝土后不出现变形裂缝,在几次设计交底中,我们均就此问题同香港设计方交涉,希望能说明设计意图并提出不设变形缝又能不出裂缝的技术措施,香港设计方只坚持由于使用功能的需要不许留缝且不得出现裂缝,不得渗漏等,但并未就实现这一要求提出特别的技术措施,当我们提出应做后浇带(变形缝)时,设计方坚持不接受我们的建议。在制定本方案之后,我们同海洋馆工程部(建设单位)及监理公司技术人员就此问题几经探讨,决定向中国建筑材料科学研究院技术开发公司(以下简称建材院技术开发公司)进行技术咨询,遵照建材院技术开发公司的建议,本工程混凝土应采用补偿收缩混凝土(即在混凝土中添加UEA-M 混凝土补偿收缩膨胀剂), 并由建材院技术开发公司在施工过程中作技术指导,在施工布局上,考虑到10 号工作间只要满足防止地下水浸入的性能就可以了,故决定设4 处变形缝(后浇带), 使每段施工长度控制在限定的长度之内。对于表演池,考虑到添加了UEA-M,新版结构图留了一道后浇带,其长度虽然超过了规范规定,但从理论计算上可不出裂缝,然而由于混凝土收缩变形的原因很多,难以保证一定不出裂缝,对此,咨询单位保证做技术处理后达到不渗不漏。
表演池及10 号工作间均要求结构自防水,混凝土强度等级为C35, 抗渗等级为P10。
本工程1994 年9 月下旬开始土方工程及灌注桩工程施工,现土方已全部挖至设计标高,灌注桩施工已经完成。
施工部署
根据本工程现有图纸统计,混凝土工程量为5828, 钢筋工程量达775t,模板工程量达7500 ,回填土方9000 ,
(其中池底填土3500)。由于工程量很大,结构又较特殊,施工难度大,因而必须采取合理的施工部署,力争不出或少出裂缝。根据工程特点,经咨询建材院科隆技术开发公司并与各方面技术人员磋商,遵循国家施工规范要求,本工程拟采取分层分段的施工方法,现分别说明如下:
在垂直高度方向,表演池拟分4 次施工,如图1 所示:

第一施工段在底板下皮以下,包括承台及连系梁;第二次施工段包括全部底板且及300mm 高池(墙)壁;第三施工段至10 号工作间顶板下皮,由于配套专业图纸目前尚未供图,故第二次,第三次施工现在只做施工准备,等待建设单位指令。
水平分段如图2 所示:

图中虚线表示后浇带位置,其中一段与二段间后浇带在第二、三次施工时留置(包括底板); 渡槽处后浇带仅在第三次施工时留置;三段与四段,四段与五段及五段与六段,六段与三段间后浇带在二、三、四次施工时均应留置(即包括10 号工作间顶板)。10 号工作间底板与表演池外壁交接处施工缝留在表演池壁外侧的承台上,其位置及做法后面再作评述。
施工机械配置(大型机械):
混凝土搅拌机:现场搅拌站配4 台500L 强制式混凝土搅拌机(两台备用),可满足现场的混凝土需求量。
混凝土泵:配两台混凝土输送泵(一台备用), 输送能力为60/h, 即可满足按现场混凝土搅拌站的生产能力。
塔吊:QT125 型60m 塔吊(固定式,作业半径55m)1 台,配合混凝土泵管的转移,当混凝土泵出现故障,临时用混凝土料斗输送混凝土时,以防止出现施工冷缝。
装载机:配合砂石上料两台。
备用机械:防止停电,机械故障时应急。
发电机:15kVA,3 台;50kVA,1 台。
混凝土搅拌机:400L,2 台
装载机:ZL50 型1 台。
混凝土泵:HBT60A 型1 台,生产能力60m3/h。
1t 翻斗车4 辆。
分项工程施工方案
由于本工程轴线采用极坐标定位,且池壁、墙壁由多段不同曲率的曲线构成,如出现较大的测量误差,将导致工程事故。因基槽已经开挖, 基槽标高变化大,而且桩头钢筋给放线造成很大障碍,难以直接用钢尺画曲线,故测量放线可用不同的方法分两步实施。
4.1.1 确定曲率圆心
曲率圆心的确定依建-85A 所给相关数据进行施测,即测出每一圆心与给定基准线夹角,并量取该圆心的距离,为防止使用中引起误解,现将有关数据列表见表2:
曲率圆心统计表
表2
| 曲率半径(mm) | 基准轴 | 与基准轴夹角 | 夹角方向 | 距主圆心距离(mm) |
| 11459 | 14 | 10°06'44''282 | 顺时针 | 58383 |
| 4985 | 14 | 0°15'16''232 | 顺时针 | 71187 |
| 10160 | 14 | 1°28'39''426 | 顺时针 | 76130 |
| 20836 | 14 | 1°28'54''174 | 顺时针 | 76088 |
| 34227 | 14 | 10°00'00''00 | 顺时针 | 67949 |
| 23620 | 15 | 9°54'18''999 | 逆时针 | 68124 |
| 10161 | 15 | 1°18'37''628 | 逆时针 | 76163 |
| 5226 | 15 | 0°02'21''588 | 逆时针 | 71507 |
| 3900 | 15 | 9°48'47''798 | 逆时针 | 66812 |
测量夹角时必须进行盘左、盘右两个方向测读,取二者平均位置定位,以消除仪器偏心差引起的测误差。为便于校核,现计算出各圆心至
相邻曲线圆心距离,供测量自查使用,圆心至相邻曲线圆心距离见表3。圆心至相邻曲线圆心距离
表3
| 圆相应半径R(mm) | 11459 | 4975 | 10160 | 23620 | 10161 | 5226 | 20736 | 34227 |
| 相邻弧线r(mm) | 4975 | 11459 | 23620 | 10160 | 5226 | 10161 | 34227 | 20736 |
| 圆心距(mm) | 16931 | 16931 | 13460 | 13460 | 4970 | 4970 | 13493 | 13493 |
| 相邻弧线r(mm) | 5226 | 10160 | 4975 | 10161 | 23620 | 11459 | ||
| 圆心距(mm) | 17184 | 5187 | 5187 | 13459 | 13459 | 17184 |
4.2.2 确定相邻曲线切点
依据“两条曲线相切,其切点必然位于两圆心连心线(外切)上,或位于两圆心连线延长线上(内切)”的定理,确定切点时,可依圆连线为起始边,测出该曲线所包含圆心角,并按相邻半径量距离,则切点即可确定,各曲线所含圆心角见表4:
曲线所对应圆心角统计表
表4
| 半径(mm) | 圆心角 | 半径(mm) | 圆心角 |
| 11459 | 88°4'4.185'' | 10161 | 111°2'28'' |
| 4975 | 54°26'479.37'' | 5226 | 111°2'32.33'' |
| 10160 | 113°38'40.95'' | 20736 | 24°4'51.90'' |
| 23620 | 114°55'59'' | 3422 | 119°35'03''8 |
4.3.3 曲线的确定
由于现场不可能直接用钢尺画圆,故可采用圆周上坐标特征点连线法确定圆周曲线,即首先确定圆周上的特征点,然后再用曲线样板将这些特征点连成曲线;上述所需数据由技术员计算后向测量人员进行交底。所需样板用木板制成1:1 样板,每种曲率的曲线最少制作一块样板。
4.4.4 本工程测量放线工程由测量工程师负责。
表演池轴线连接如图3 所示:

图3 表演池轴线连接
4.2 钢筋工程
钢筋工程拟采用现场加工场集中加工成型,作业面绑扎的方法。
4.2.1 钢筋加工
放样:对于墙壁(池壁)上每一段不同曲线来说,其中所配置的钢筋实际上每一根都有不同的曲率半径,为保证绑扎筋时,每根钢筋位置的准确,便于支模,每一根钢筋都应放出1:1 大样,严格按大样揻成不同曲率的弧形,当机械弯曲有困难时,则采用人工揻制,必要时,在扎筋作业面校准。
焊接:水平钢筋长度在20m 以内者,采用闪光对焊方法接长,大于20m 者,采用平面搭接焊,竖向接长原则上采用电渣压力焊接头,必要时辅以锥螺纹接头,所有接头必须进行模拟试验并按规定截取随机试件, 提供检验报告。
几个需特别说明的问题:
本工程结构抗震按烈度8 度设防,抗震等级为二级,结构构造措施必须严格按图纸中说明及规范中有关规定执行(如锚固长度、搭接长度、弯钩角度等)。
设计要求灌注桩嵌入承台75mm ,故承台钢筋扎筋成型高度为H-75-40(上部保护层)下料时务必注意。
当主梁、次梁及底板上部钢筋为同一设计高度时,其关系是:保证主梁断面高度、次梁钢筋置于主梁上排钢筋下面,底板上排钢筋置于次梁钢筋上面,因而在放样时,次梁的有效高度在靠近支座处500mm 范围内为H-D (主梁钢筋直径)-40×2,该区段钢筋可按上述尺寸加工。
原材质量控制:钢筋下料前,必须有原材出厂合格证及公司复验报告,合格证必须报监理公司核准,否则不许下料加工,当监理公司需进行随机取样检查时,施工人员应积极配合不得发难。
4.2.2 钢筋绑扎垂直运输:用塔吊配以用吊具(铁扁担、钢筋架子等)严禁用索具
直接吊起钢筋。
水平运输:用专用运输车。
绑扎成型:所有曲线钢筋应对照所在水平面的位置进行绑扎,同一水平面不同曲率的钢筋应对照加工时的编号位置排放,当曲率不合适时, 可在现场用专用搬手调校,为避免引起大量返工,每次成型进可作一段试排,由技术人员认定后再绑扎成型。
质量检查:坚持班组自检,专职质检员复查制度,质量等级按优良控制,当专职质检员确认达到优良标准后,再报请监理公司核验,否则不许支侧模,监理公司核验后,应及时办理钢筋隐检手续存档。
本工程钢筋放样由主管工程师负责技术交底,技术指导并负责复核。
4.3 模板工程
4.3.1 矩形及边线为直线条形承台
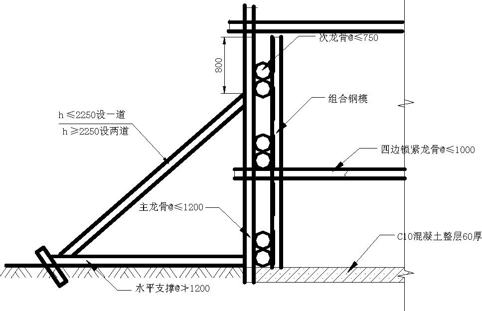
以组合钢模为主,木模板为辅,用于接头处的木模板,板厚为δ=50mm。模板加固用钢管龙骨D=48mm 。沿纵向及水平方向分两层加固,次龙骨间距A≤750mm, 主龙骨间距A≤1200mm。凡水平龙骨四周能交圈布置的,应连为整体。为防止模板侧向弯曲和位移,必须设水平支撑及斜支撑。水平支撑置于模板下部,与扫地杆相连。斜支撑的设置:当模板有效高度≤2000mm 时,在800mm 高度增设一道,1600mm 高度增设一道,当模板设计为2500mm 时,在2400mm 高度增设一道。水平支撑及斜支撑间距与主龙骨间距相同,均≤2000mm 。
经计算,当承台高度≤2500mm 时,新筑混凝土对模板的侧压力为46kN/m,为防止振捣混凝土时跑模,在相对的两片模板间应设拉结板,拉结板用-50×5 扁钢制成,其间距为600mm,边线为直线的条形承台。模板支撑加固如图4 所示:

图4 模板支撑加固详图
独立承台模板加固与图4 基本相同,但须设散热钢管,该钢管兼具
加固模板作用,散热管在水平高度布置两排,第一排距垫层500mm,第二排距垫层900mm ,同排管间距2000mm ,沿纵横方向布置。
4.3.2 边线为曲线的条形承台
模板以钢模板为主,木模板拼缝为辅,由于模板拼成多边形与平滑线有一定误差。为保证其拼接效果尽可能接近曲线,故必须根据不同曲率半径选用不同的模板,模板面(即曲线弦长)宽造成的误差见表5。
曲面承台模板拼缝误差表
表5
| 曲线半径(mm) | 4975 | 10160 | 5226 | 11459 | 20736 | 23620 | 34277 | 39635 | 3900 |
| 应选模板宽(mm) | 100 | 200 | 150/ 200 | 200/300 | 300 | 300 | 300 | 300 | 100 |
| 误差 | 0.025 | 0.492 | 532/0.957 | 434/0.982 | 0.543 | 0.476 | 0.328 | 0.219 | 0.032 |
表5 中同一曲率半径有两种模板可供选择时,在模板供应可以满足的前提下,就优先选用较小型号的模板。必须强调指出,这类模板必须全部竖向拼接,模板支撑加固与前节基本相同,所不同的是,水平龙骨应根据不同曲率将管子先揻成需要的弧形,且外模与内模龙骨曲率各不相同。在承台施工阶段多种龙骨需要量见表6:
承台施工阶段龙骨需用量
表6
| 设计曲率半径(mm) | 4985 | 10160 | 10161 | 5226 | 11459 | 20736 | 23260 | 34277 | 59635 | |
| 内模龙骨 | 半径(mm) | 3920 | 9105 | 9106 | 4171 | 10404 | 19881 | 22565 | 33372 | 58530 |
| 数量(块) | 28 | 160 | 160 | 32 | 32 | 80 | 380 | 600 | 210 | |
| 外模龙 | 半径(mm) | 6530 | 11715 | 11716 | 6781 | 13014 | 21991 | 25175 | 35482 | 61140 |
| 骨 | 数量(块) | 42 | 240 | 240 | 54 | 168 | 8/8 | 440 | 616 | 216 |
由于承台混凝土不涉及防水问题,相对两片模板拉结亦可用-50×2 拉结板,按间距@=600mm 布置,拉板加工图如图5 所示:

图5 拉板加工示意图
4.3.3 池壁及10 号工作间墙壁模板
表演池池壁及10 号工作间墙壁支模难度最大的是第二次施工阶段(即施工底板间同时施工的高池壁、墙壁)。其内外池(墙)壁均为悬吊模板,如何保证模板的整体性、稳定性成为确保质量的关键。支模图如图6 所示。

图6 墙模支撑示意图
图6中,M1处用-100mm×100mm×10mm,钢板焊于基础连系梁的纵向钢筋上,长方向与纵向钢筋垂直,立钢管直接立在M2处,立管埋入板下约30mm,拆钢管后用膨胀混凝土填补,为便于操作所有立管均控制在1000mm高度以内,上端水平管系将支撑系连为整体,以增强整体刚度,由于池(墙)壁不高,模板内可不设拉板,但模板上口需足设卡口定杆。
第三次施工时,因池壁已浇筑混凝土300mm高,底板混凝土已完成。池(墙)壁模板及支撑系统均可以落地,故可以借助满堂红脚手架,加固模板现在问题的关键是:如何防止浇筑混凝土时产生的侧压力造成的跑模。在承台施工阶段,我们使用了拉结板。对于池(墙)壁施工预计混凝土浇筑速度为6.3m/h,即1h可浇筑到第三次施工缝(约+6.3m)新筑混凝土对模板侧压力可按下式计算:
P=0.22×c×t0×1×2×V1/2
式中
rc =24kN/m3
t0=200/(T+15)
T=15℃
β1=1.2
β2=1.15 V=2 m3/h P=0.22×24×200/(15+15)×1.2×1.15×
![]()
如果少设拉结板,将模板龙骨纵横两个方向间距均定为@﹦600mm, 且在每个龙骨交叉点上均设水平支撑,则每根水平支撑抵抗的侧压力为8.05kN,而如果用钢管作水平支撑,其承载力靠扣件支撑,每个扣件的安全荷载为102kN,这显然是可以满足的。当主龙骨间距为600mm 时,2 根次龙骨可视为承受均布荷载的梁(简化为简支梁),梁跨L=60cm,均布荷载Q=24.15kg/cm,其最大变形为:
fmax=5× Q× L4/(384× E× I)
=5×24.15×604/(384×2.1×106×2×12.19)=0.08cm
这显然是满足规范允许偏差的。
根据以上计算,池(墙)壁支撑的水平龙骨(次龙骨)在下部3m 可取间距@=600mm,3m 以上部分取@=800mm,竖向龙骨(主龙骨)间距取@=600mm,为保证每根龙骨交叉点处都有支承点承受水平侧压力,必须在水池内及工作间内搭设满堂红脚手架,满堂红脚手架的水平杆在水平方向间距为@=600mm, 在竖向间距3m 以下为@=600mm,3m 以上为@=750mm ,为保证架子的稳定性,可设一定数量的斜支撑。
池(墙)壁施工阶段需要的模板及钢管龙骨见表7:
池(墙)壁施工段模板及钢管龙骨需用量
表7
| 池(墙)壁设 | 4975 | 10160 | 10161 | 5226 | 11459 | 20736 | 23620 | 34227 | 59635 | |
| 计半径 | ||||||||||
| (mm) | ||||||||||
| 内
模龙骨 |
半径
(mm) |
5920 | 10105 | 10106 | 5171 | 12014 | 20681 | 23553 | 34172 | 59580 |
| 数量(块) | 96 | 408 | 408 | 104 | 240 | 192 | 960 | 1440 | 1248 | |
| 内模板 | B× L(mm) | 100 × 1500 | 200 × 1500 | 200 × 1500 | 100 × 1500 | 200 × 1500 | 300 × 1500 | 300 × 1500 | 300 × 1500 | 300 × 1500 |
| 数量(块) | 200 | 400 | 400 | 204 | 236 | 124 | 636 | 960 | 532 | |
| 外
模龙骨 |
半径
(mm) |
5530 | 10715 | 10716 | 5781 | 11404 | 21191 | 24175 | 34682 | 60090 |
| 数量(块) | 104 | 428 | 428 | 120 | 232 | 188 | 976 | 1464 | 1264 | |
| 外模板 | B× L(mm) | 100 × 1500 | 200 × 1500 | 200 × 1500 | 100 × 1500 | 200 × 1500 | 300 × 1500 | 300 × 1500 | 300 × 1500 | 300 × 1500 |
| 数量(块) | 210 | 424 | 424 | 228 | 224 | 128 | 652 | 972 | 840 | |
如前所述,将支撑系统加密后,再配以适当数量的对拉螺栓,则对抵抗混凝土对模板的侧压力、振捣压力、倾倒压力(三者之组合为57kN/m2),就更加安全了,对拉螺栓取直径为φ10 圆钢,布置在-3.5m 标高,沿长方向@﹦1800mm 。双向作用顶拉杆可按图7 所示加工:

1 、40*2 钢制拉结板3 、-7 0*70*2 限位板。2 、-2 00*200 *3止水板。4 、50* 50*25 (厚)木垫板。
图7 双向作用顶拉杆示意图
其余拉板间距@﹦600mm, 做法与上图基本相同,仅将φ18 换成-50× 2 扁钢即可,为便于固定模板,必须在池壁上口处设50mm×70mm 方木卡口顶杆,A≤1200mm 。
为防止墙(池)在浇筑混凝土时跑浆而影响抗渗性能,墙(池)壁模板加固校正后对所有>1.5mm 板缝均用牛皮纸或簿三合板自模板外侧将模板与模板之间的缝隙塞严。
4.4 混凝土工程
4.4.1 混凝土拌合
采用现场自备混凝土搅拌站,配置500L 混凝土搅拌机2 台,带自动计量系统,砂、石用装载机上料,另配置400L 搅拌机2 台应急使用。
4.4.2 配合比
水池及工作间底板以上,结构设计要求混凝土强度为C35,抗渗等级为S10,为改善混凝土抗渗防裂性能,经与业主、监理公司、设计代表共同咨询,根据国家建材院科隆公司建议,征得结构设计方同意,决定使用UEA-M 混凝土补偿收缩膨胀剂,添加率为水泥用量的12%,配合比已试配完成,将根据建材院技术开发公司指导意见进行修正。
由于J7-4、J7-5 及24-24 剖面承台单体混凝土数量较大,最大的达274m3, 而表面系数为0.39, 条形承台表面系数也仅为1.5, 均属大体积混凝土,经热工计算,必须分两层浇筑,在配合比设计方面本工程现阶段所需配合比如下:
C10:用于混凝土垫层;
C35、S10 加UEA-M,用于底板及底板以上池(墙)壁,梁、板、柱;
C35:掺粉煤灰及高效减水剂,经设计代表、建设单位、监理公司及我方技术人员共同调研,经公司试验室试配,认为YJ-2 型减水剂可满足大体积混凝土施工性能,决定使用YJ-2 型减水剂试浇筑混凝土。
4.4.3 混凝土浇筑
4.4.3.1 底板以下部分(即第一次施工)。这部分工程结构具有下列特点:
J7-4、J7-5 及隔离鱼池基础(见图8) 均为大体积混凝土,表面系数最小为0.39/m,混凝土量最大的达274。
条形承台表面系数仅1.3/m 亦属大体积混凝土,且为曲线型,表演池条形基础长181m,10 号工作间条形基础长215m, 均超过规范限定的施工长度。
承台间和主次连系梁与承台整体连接,直接承受承台因温度变形而引起应力作用,容易出现裂缝。

考虑到上述特点,除在混凝土配合以设计时考虑改善自身性能外,在混凝土浇筑方面必须采取有效的防止温度变形的措施,这些措施包括:分层浇筑、留后浇带、有组织的留施工缝。
这部分结构的混凝土总量近4000,配合比设定的混凝土初凝时间
为10h, 拟进行6×2 次浇筑(即划分为12 个浇筑区段),除第8 次混凝土量为550m3 外,其余每次混凝土浇筑量均不超过350m3,按5 层布料计算,每层浇筑时间均在9h 左右,不超过设定的混凝土初凝时间,浇筑区段划分见图9。

图9 混凝土浇筑区段划分示意图
这部分混凝土浇筑均应水平分层流水,每层的浇筑厚度控制在500mm 左右,根据工程量和初凝时间控制,1~2 区段均可保证不形成水平施工冷缝。
4.4.3.2 底板混凝土浇筑(含300~500mm 高池、墙壁);这部分混凝土结构具有下列特点:
混凝土为自防水混凝土,强度C35,抗渗等级S10。 表演池长181m,10号工作间挡土墙壁长213m,其长度均超出了规范限定的浇筑长度,尽管混凝土中添加了改善收缩性能的微膨胀剂,但仍满足不了由于温度变形引起的收缩量。 基于上述特点,拟在表演池池壁及池底上留一条贯通后浇带,将表演池分成两个区段,在工作间墙壁及底板上留条后浇带,从而将表演池及工作间分成6个施工区段,见图10。

图10 混凝土浇筑区段划分示意图
工作间底板与表演池池壁外侧相接处可留竖向施工缝,该缝以下正是6个施工区段的分
界面,将施工缝选在达个位置的理由是:工作间底
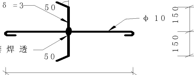
板支承于表演池承台上,支承宽度达1000mm 宽;工作间顶板距承台上表面为200mm,而工作间板厚150mm,这就是说,浇筑混凝土后,这部分1000mm 宽范围内底板实际厚度为200mm 。从混凝土工作量来看,除表演池部分1、2 区段混凝土近400m3 外,其余4 个区段的混凝土量均在100m3 左右,均可控制不出现施工缝,浇筑混凝土时应先浇筑底板,后浇筑池(墙)壁,一般先浇筑400mm 宽底板,再返回浇筑池(墙)壁,依次交叉推进。在浇筑1、2 区段混凝土时,表演池壁上应设置钢板止水带,止水带用δ=3mm 钢板预制,现场安装拼焊沿池壁长方向轴线焊成封闭型,止水带按图11 加工。
此处严禁焊透

墙厚-5 0
图11 止水板制作图
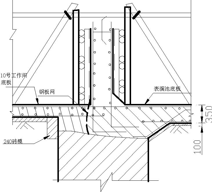
在浇筑3、4、5、6 区段混凝土时,墙壁顶面水平施工缝处应留凹槽,凹槽为50mm×50mm ,可先埋入方木,混凝土初凝后拆除方木。表演池与工作间分界处的施工做法如图12 所示:

图12 表演池与工作间分界处的施工做法
4.4.3.3 池(墙)壁混凝土的浇筑(即竖向第三层)
该施工区段划分与第二次施工基本相同,即在10 号工作间墙壁上留4 处后浇带,在表演池池壁上留2 处后浇带,所不同的是,在表演池与鲸鱼池相通的水槽中部增加一次后浇带(位于门洞上方)。
由于表演池与鲸鱼池相接处现无施工图,故变形缝处的做法待接到施工图后另补充施工措施。至于工作间顶板与工作间墙壁是否同时浇筑混凝土,等接到施工图后决定,这部分混凝土浇筑应水平分层施工,每层浇筑厚度≤500mm。由于目前尚未看到表演池池壁上的工艺埋件图,表演池池壁究竟浇筑300mm 高还是500mm 高,需等待业主指令。
4.4.4 混凝土的养护
4.4.4.1 承台及连系梁:这部分混凝土结构因施工后不久即要回填土,浇水养护会影响作业面操作,故拆除模后应立即用塑料薄膜覆盖,以防混凝土内水分散失过快,在水平施工缝面上,应覆盖草帘,适度浇水湿润,当需要回填土时,填到什么部位,就撤除什么部位的薄膜,对于几个大体积承台,养护层的撤除应根据测结果而定,限制条件是:混凝土的温度与环境温度之差≤20℃。
4.4.4.2 底板养护:混凝土浇筑24h 后即应拆模,并应立即派人浇水养护,每天应浇水6 次,连续养护14d,对于300mm 高池(墙)壁,应覆盖草帘以保水,预计施工期正值北京多风季节,故应派责任心强的人交替倒班,昼夜养护。
4.4.4.3 池(墙)壁养护:这部分结构沿垂面表面积很大,浸水养护效果不好,故应全部覆盖塑料薄膜,塑料薄膜可穿透拉结板固定,墙顶面覆盖草帘,浇水养护14d。
4.4.5 混凝土的质量检查
4.4.5.1 承台连系梁混凝土:每班施工量在100 内者,按台班留一组标养试块及一组现场同条件试块,班浇筑量超过100 者,每100留一组试块。
4.4.5.2 底板及池(墙)混凝土:试块按区段留量,每区段各留两组标养试块及两组抗渗试块,以28d 标养试块作为评价混凝土强度的依据。
质量目标及保证质量的技术措施
混凝土垫层及回填土:合格
钢筋及混凝土结构:优良
5.2 保证质量的技术措施
5.2.1 弧形结构工程 弧形曲线钢筋应分别按不同曲率制作样板筋,经主管技术人员(主管工程师)核准,方可下料,应当特别指出的是,对同一曲率的条形承台,连系梁及墙壁(池壁)来说,其多排水平筋的曲率亦不相同,放样时尤其应注意,这些钢筋均应在曲线钢筋成形机揻制,当需要对焊接接长时,应先对焊再弯曲。 钢筋接头类型因不同直径,不同部位钢筋分别选用闪光对焊或电渣压力焊。凡在加工场集中焊接的Φ16以上均用闪光对焊;在现场接长的Φ16 以上水平筋用单面搭接焊。Φ16 以上竖向钢筋用电渣压力焊接头,对于闪光对焊以每200 个接头为一批,对于电渣压力焊,以每300 个接头为一批,每批取3 个接头做拉力试验,试验合格方可进行下道工序施工,否则应加倍取样试验。复试仍不合格者,则该批接头全部报废,不准用于工程,焊接头的外观检查以自检为主,外观不合格者不许绑扎成型。
5.2.2 隐蔽验收 当内部自检达到优良等级后,应书面报告监理公司进行隐检,并根据监理公司所提意见进行修改,然后办理隐蔽验收手续,否则不许浇筑混凝土。分段分层浇筑过程中,凡暴露的钢筋表面素水泥浆过多者,应在下次浇筑混凝土之前认真清除,以确保钢筋与混凝土结合紧密。存放期过长钢筋表面有锈者,均应认真除锈,否则不许使用。
5.2.3 模板工程
模板组拼前,均应涂刷脱模剂,对于旧模板应逐块检查,凡发现表面不平,扭曲,有过大孔洞,连接销孔损坏者,均应修理后再用,否则不许使用,对于表演池池壁一律使用新模板组拼。
止水板安装时,其上下折边须朝向表演池内侧,止水板现场拼焊时要求满焊,不得漏焊,但不得伤止水板。焊接时可用Φ2.8 焊条,并严格控制焊接电流,支承止水板的Φ10 钢筋应与池壁水平钢筋绑扎牢固,且不得导通混凝土,止水板在高度方向应控制在施工缝上下各100mm 。
为保证表演池内壁表面平滑,在施工底板后,其300~500mm 高池壁内模不得拆除,待施工池壁阶段,将模板继续支到池顶。
浇筑混凝土时,每个工作面上至少配2 名木工跟班作业,随时调换模板,在浇筑工作间底板时,木工应及时配合留好墙壁水平缝上的止水槽。
在所有竖向施工缝处,应预先绑扎2 层钢板网,并用Φ28~Φ30 钢筋对钢板网进行加固,对于施工缝处漏出的水泥浆,待混凝土初凝后即应派人及时清除。
后浇带处模板做法与施工缝处要求相同,所不同的是要增加一条100mm×100mm 剪力槽( 止水槽), 浇筑混凝土前可将100mm×100mm 方木与端模板钉牢,端模板可用木模,内钉板网以达到接缝处粗糙,后浇带做法如图13 所示:

图13 后浇带做法示意图
5.2.3 混凝土工程 严格执行配合比,混凝土计量配料机应在每次开盘前标定一次,计量精度满足≤3%方可使用,任何操作人员不许擅自调整修改配合比。混凝土浇筑顺序及施工缝留量必须按本方案严格执行,如确需变更时必须经项目技术负责人核准后方可变更。混凝土的浇筑和振捣应分层进行,每层布料浓度一般控制在400~ 500mm,个别施工区段按350mm 控制,插入式振捣器的振捣间距不大
于500mm,插入下层浓度不小于300mm,振捣点在池(墙)壁内应按梅花点布置。如图14 所示:
100

500 500
![]()
图14 振捣点布置示意图
在池壁(墙)与底板交接处,必须先浇筑底板混凝土且振实后再浇筑池(墙)壁混凝土,顺序严禁颠倒,在浇筑池(墙)壁时,木工应仔细检查八字模稳固程度,发现问题及时加固以防出现跑模烂根。
浇筑表演池混凝土时,工长应认真记录持棒手的作业层面,严格做到责任到人,交接班时由工长主持,对口操作人员在作业面交接,并由交接人员签名。
施工缝处理:进行下次浇筑混凝土时,应对上次施工缝进行认真处理,除前面讲到的要及时清除渗出的混凝土浆外,对于钢板网上的浮灰,钢筋上的素浆均应认真剔凿并将工作面浇水湿润,浇筑混凝土前在工作面先铺一层同径度等级的素水泥浆,再浇筑混凝土。
对于节点核心区钢筋较密处,应配Φ30振捣棒作补充振捣,以防漏振,对于表演池及地下工作间底板,除用插入式振捣棒外,尚须用平板振捣器作辅助振捣。
在浇筑池(墙)壁时,混凝土下料必须配以串筒,以确保混凝土自由下落高度控制在2m 以上。
对于已施工到结构标高的水平面(如墙外承台顶面,底板面)必须用木抹子两次搓面,因泵送混凝土坍落度很大,个别部位灰浆较多时,可撒石屑搓平,以防止出现裂纹。
对于施工缝应及时进行表面处理和清理,竖向施工缝(包括后浇带处)混凝土达到终凝后,应立即派专人将钢板网外侧流出的砂浆全部凿除并清理出去,钢板网外观的浮浆亦应及时清除,加固钢板网的钢筋(钢管)应尽早拆除,水平缝表面(如大体积承台水平缝,连系梁水平缝)应在搓面时撒一层粒径40mm 的碎石,用木抹子将碎石拍入混凝土20mm, 外露20mm, 以形成粗糙面,所撒碎石要均匀分布,不得过稀,更不得挤成一片,待混凝土初凝后,应派人将没有石子处的浆面划毛。
在底板以下施工阶段,由于同表演池相连的梁在工作间一侧断面高度仅为750mm, 故浇筑该梁混凝土时,其混凝土应浇筑至梁顶面以下150mm 处(即可留出底板厚度),这时混凝土必然流入相接的表演池承台对于表演池条形承台及J7-4、J7-5, 隔离池承台应布设测温孔,进行混凝土内部温度观测,对于条形承台,间距10m 布一点,对于大体积承台每个承台上布三点,测温孔可埋设直径20mm 的聚乙烯管,深度达到结构高度中部即可。混凝土浇筑后即应派专人连续2h 进行测温,每6h 测一次,直至混凝土内部温度与环境温度之差小于20℃为止,经计算混凝土表面可不采取保温措施。
在底板以下施工阶段连系梁拆模时间必须待现场同条件养护试块混凝土强度达到C20 后进行。未经技术人员通知,任何人不得擅自拆模(因连系梁施工阶段的承载力验算按混凝土强度为C20 验算的)。
由于梁上留置水平缝后,在施工阶段梁顶实际上是没有配置水平纵向筋的,为防止梁在施工阶段因温度变形而被拉裂,需在纵向施工缝处置一定数量拉结筋,如图15 所示:

a aa
图15 梁施工缝处水平拉结筋布置图 备用机械如不到位,机修工未到岗,则表演池底板及池壁混凝土浇筑不得开盘。
安全技术交底
6.1 施工现场必须配设专职安全员,负责检查督促施工现场安全施工状况,负责督促施工班组安全活动情况并汇集相应的记录提交主管工程师汇总安全资料。
6.2 设立安全资料员,由主管工程师负责,凡施工组织设计中的安全技术措施,分部、分项施工的安全技术交底,周六、周日安全教育资料及其他安全教育资料均由主管工程师负责汇集整理。
6.3 认真执行周一教育、周六检查制度,这一工作由施工员负责。对于新入场的职工进行一次入场安全教育,这一工作由经理负责。
6.4 严禁执行三包利用制度,凡拒不执行者除不得作业外,每次尚须处以10 元罚款。
6.5 现场安全员要定期组织施工员,技术员及特殊工种(如机械、电气等),对施工现场安全状况进行检查并出具检查通报。时间安排每月一次,发现安全隐患要限期整改。
6.6 在现场材料库及活动板房区(职工宿舍处)各增设一组消防栓。所有消防栓均应配正式的消防箱并配齐必须的消防器材。
6.7 坚持安全交底制度。每个分项工程施工前均由技术员进行安全技术文字交底。交底必须有针对性,且由被交底人(工长、班组长)签名归档。
6.8 对于特殊工种,如电工、电焊工、架工、机械工等,必须坚持持证上岗,杜绝无证上岗现象。
6.9 现场临时照明线路必须保证使用36V 以下安全电压。为此须配置36V 变压器两台。
6.10 所有手持电动工具(如手电钻、电锤、手砂轮、打夯机、振捣器等), 均须配置漏电保护器,真正做到一机、一闸、一保护。否则不得使用。
6.11 每次模板支好后,在浇筑混凝土前,必须对模板支撑系统及操作架子进行安全性检查。此项工作由施工员会同安全员、木工、架工组长进行,并做好检查记录。发现问题及时纠正。属于技术方案不周的,由技术人员补充技术方案。
6.12 遇到雷暴雨及风力超过6 级的恶劣天气,两台塔吊均应停止。对于固定式塔吊,在回填土前应砌筑保护井。保护井砌在塔基顶面,下部3m 高砌500mm 砖墙,上部砌370mm 砖墙,为保证填土时护井稳定,其转角处应配3Ф8@500mm 高拉结筋,且在相对护墙这间每两料设2 根<50×4 顶杆。对于行走式塔吊,路基下须做500mm 厚3:7 灰土地基,碎石铺至与轨枕平。为防止塔吊荷载直接作用在地基上,枕木上表面最少要高出连系梁顶面100mm 高,距基的其他安全技术指标(如表面平整、坡度、两轨高差、石之饱满度、轨道设置、接地电阻等)均应达到安装要求。
文明施工
做好宣传鼓舞工作,应在现场大门,塔吊等位置挂设安全质量标牌。在其他醒目位置部位挂设安全及防火标牌。设吸烟室(拟定在现场会议室),其他部位严禁吸烟。
加强现场平面管理,现场施工料具码放必须按阶段性指定位置,码放整齐,该成方的成方,该码垛的码垛。
加强现场用火管理,未经项目经理批准,任何人不得擅自动火。
按“三清”、“六好”要求定期进行文明施工检查。此项工作由项目经理负责组织,一般每月一次。派专人清扫厕所,经常扫除,定期扫除,定期洒专用药物,宿舍区由组长负责各自卫生区的清扫,以保证职工有一个良好的居住环境。食堂要坚持卫生责任制,确保饮食卫生。对食堂外的垃圾进行一次清除,以后要定期清除。
雨期施工技术措施
表演池、鲸鱼池、2 号工作间及地下通道施工均可赶上雨期,因而必须采取必要的雨期施工措施。
每次搅拌混凝土前,对砂、石含水率进行现场测定,并相应调整用水量,确保配合比的准确。
浇筑混凝土时(尤其是表演池池壁),因配备塑料薄膜以防临时降雨,以尽可能保证浇筑混凝土连续施工。如确因突然大雨无法继续施工时,则因留置后浇带(不是施工缝),然后按后浇带做法处理。表演池底板、池壁的混凝土浇筑时间应根据阶段性天气预报安排,避开降雨天气。
对于尚未进行基础施工的坑壁,进入六月份后要用塑料薄膜覆盖,以防因雨水冲刷造成塌方。对于表演池观众厅基础处(最南面的三个)已出现边坡裂处安排人尽早清除,以防降雨,引起塌方。
备潜水泵、离心泵各两台,降雨后及时抽走基抗内积水。
鲸鱼池北边基抗边缘进入六月份后须培土挡水,以防外面积水流入基坑。
六月上旬进行一次现场用电线路及机械设备全面检查以确保雨期施工安全。
如需在水泥库外面码垛放水泥时,垛底面必须高出地面300mm,且排水通畅,垛子顶面必须铺塑料薄膜一层,且备足苫布,以防水泥受淋变质,露天码存放的水泥最长时间不得超过7d, 局部受潮结块水泥,不得用于结构工程。
星欣设计图库资料专卖店拥有最新最全的设计参考图库资料,内容涉及景观园林、建筑、规划、室内装修、建筑结构、暖通空调、给排水、电气设计、施工组织设计等各个领域的设计素材和设计图纸等参考学习资料。是为广大艺术设计工作者优质设计学习参考资料。本站所售的参考资料包括设计方案和施工图案例已达几十万套以上,总量在数千G以上。
雅居云录(https://yajuyun.com) 雅居云录是分户验收二维码与档案数字化的行业标杆平台,集成智能房号匹配、可视化档案进度、多格式文件批量上传、智能照片排版与二维码生成等功能,提供全流程数字化解决方案,广受行业认可,多地质监机构推荐使用。
雅居云录分户验收二维码后台核心功能:智能房号管理: 可视化呈现房号清单,结构清晰,查找便捷。 模板灵活可配: 内置多地验收模板,支持自定义编辑,快速适配。 批量上传支持: PDF文件和现场照片均支持批量上传、即时归档。 照片自动排版: 验收照片自动生成带PDF档案,节省人工排版时间。 二维码一键生成: 项目二维码秒速生成,支持预览与打包下载。进度可视看板: 实时查看任务状态与完成进度,辅助项目管理。
雅居云录分户验收二维码与电子档案平台支持分门别类上传不同类别的验收资料,如《分户验收记录表(户内)》《室内净距净高检验记录表》《分户验收表(公共部位)》等,无需事先合并整理扫描,显著简化资料整理流程,减少操作步骤,提高归档效率。
雅居云录分户验收:批量上传,自动排版,省时省力,规范标准。