目录
第一章 编制依据 10
第1节 标准与规范 10
第2节 与之相关的文件 14
第二章 工程概况 14
第三章 主要工程量 17
第四章 施工部署及施工进度计划 19
第1节 施工组织 19
第2节 施工作业区及施工段划分 20
第3节 施工安排 20
第4节 施工顺序 21
第5节 工期安排 22
第6节 工程质量目标 23
第五章 施工组织机构 24
第六章 施工准备 25
第1节 技术准备 26
第2节 施工组织准备 27
第3节 施工用水 28
第4节 施工用电 30
第5节 现场临时用房 31
第七章 主要工程项目施工方法 31
第1节 测量抄平放线 31
第2节 土方开挖 32
第3节 柱基础混凝土垫层 34
第4节 独立混凝土基础 35
第5节 素混凝土基础 37
第6节 毛石基础 39
第7节 混凝土地梁 40
第8节 砖基础 42
第9节 土方回填 44
第10节 暖气沟 45
第11节 墙体砌筑 46
第12节 模板工程 50
第13节 钢筋工程 56
第14节 混凝土浇筑工程 58
第15节 预应力混凝土工程 61
第16节 脚手架工程 63
第17节 垂直运输 63
第18节 塑钢窗安装 63
第19节 白钢玻璃门安装 65
第20节 木门安装 66
第21节 外墙贴面砖 68
第22节 玻璃幕安装 70
第23节 室内顶棚墙面抹灰 72
第24节 地面贴面砖 73
第25节 地面贴花岗岩 75
第26节 卫生间防水工程 77
第27节 屋面卷材隔汽与防水 78
第28节 混凝土刚性屋面 80
第29节 网架工程 82
第30节 模板工程 83
第八章 主要材料计划(见表7-1) 99
第九章 拟投入本工程的主要施工机械设备表(见表8-1) 101
第十章 主要劳动力计划(见表9-1) 104
第十一章 质量保证措施 106
第1节 建立质量保证体系 106
第2节 搞好施工前的准备 108
第3节 本工程采用的具体措施 111
第4节 成品保护 117
第5节 内业档案管理 117
第十二章 安全生产、防火保证措施 117
第1节 做好施工准备工作 118
第2节 加强施工过程管理工作 119
第3节 本工程具体安全防火措施 121
第十三章 文明施工,减少扰民,降低环境污染措施 124
第1节 做好施工准备 125
第2节 做好施工过程中的管理 126
第3节 本工程特殊的技术措施 127
第十四章 保证工期措施 128
第1节 搞好施工前的准备工作 128
第2节 加强施工过程中的管理 129
第3节 本工程采取的具体措施 130
第十五章 雨期施工技术措施 132
第1节 搞好施工前的准备 133
第2节 加强施工过程中的管理 134
第3节 本工程采取的具体措施 136
第十六章 冬期施工及越冬维护技术措施 137
第1节 冬期施工准备 138
第2节 施工过程中的管理 139
第3节 本工程采取特殊的技术措施 139
第4节 越冬维护措施 141
第十七章 降低工程成本措施 142
第1节 加强材料管理 143
第2节 做好机械设备的管理工作 144
第3节 加强施工管理 144
第4节 合理选择施工方法 145
第5节 施工中应用新材料、新技术 146
第6节 控制好成品保护 147
第7节 经济活动分析 148
第8节 各项技术经济指标 148
第十八章 新技术、新工艺、新材料应用 150
第1节 新技术、新工艺 150
第2节 新材料 150
第十九章 保证创优质工程硬性管理措施 151
第二十章 关键部位与复杂环节重点控制措施 153
第1节 混凝土屋檐施工控制措施 153
第2节 曲线墙体轴线及曲率控制措施 154
第3节 无粘结预应力梁的施工控制措施 155
第4节 网架安装的施工控制措施 159
第5节 刚性防水屋面防裂控制措施 159
第6节 卫生间防水质量控制措施 162
第7节 保温墙体防裂控制措施 163
第8节 塑料窗的安装 163
第9节 玻璃幕墙 166
第二十一章 工程质量通病防治措施 167
第1节 水泥砂浆地面裂缝的防治措施 168
第2节 保证楼梯踏步等高等宽措施 168
第3节 厨房、卫生间、盥洗室防渗漏措施 169
第4节 墙体、门窗膀防潮、防霉变措施 170
第二十二章 地下管线及其他地下、地上设施保护加固措施 170
第二十三章 与监理部门协调配合措施 171
第1节 质量控制配合 171
第2节 进度控制配合 172
第3节 投资控制配合 172
第二十四章 分包单位组织管理措施 173
第1节 对分包单位组织原则:管理与服务。 173
第2节 组织分包单位参加验收 174
第二十五章 预防传染性非典型肺炎措施 175
第1节 加强领导,提高对预防“非典”工作重要性的认识 175
第2节 加大预防“非典”知识的宣传工作力度,提高施工人员爱清洁,讲卫生好习惯。 175
第3节 加强预防“非典”工作制度建设 176
第4节 建设标准化临时设施,创优美生产、生活环境 177
第5节 依靠群众,群防群治 178
第二十六章 水暖、电气施工方案 187
第1节 工程概况 188
第2节 施工组织机构(见图26-1) 189
第3节 施工准备 189
第4节 施工方案及施工方法 190
第5节 各项技术组织措施 193
第6节 劳动力需用计划(见表26-1) 195
第7节 工程量一览表(见表26-2) 197
第8节 主要机具设备计划(见表26-3) 198
第9节 主要材料计划(见表26-5,表26-6) 200
编制依据
标准与规范
1. 工程测量规范(GBJ50026-93)
2. 工程测量基本术语标准(GB/T50123-99)
3. 建筑地基基础施工质量验收规范(GB50202-2002)
4. 混凝土结构工程施工质量验收规范(GB50203-2002)
5. 砌体工程施工质量验收规范(GB50203-2002)
6. 混凝土小型空心砌块建筑技术规范(JGJ/TL4-95)
7. 中型砌块建筑设计与施工规程(JGJ5-80)
8. 设置钢筋混凝土构造柱多层砖房抗震技术规程(JGJ/T13 -94)
9. 屋面工程质量验收规范(GB50207-2002)
10. 建筑地面工程施工质量验收规范(GB50209-2002)
11. 建筑装饰装修工程质量规范(GB50210-2001)
12. 组合钢模板技术规范(GB50214-2001)
13. 钢筋焊接及验收规程(JGJ18-96)
14. 钢筋焊接接头试验方法(JGJ27-86)
15. 建筑工程施工质量验收统一标准(GB50300-2001)
16. 建筑工程质量检验评定标准(GBJ301-88)
17. 混凝土质量控制标准(GB50164-92)
18. 混凝土强度检验评定标准(GBJ107-87)
19. 回弹法检测混凝土抗压强度技术规程(JGJ/T23-2001)
20. 建筑施工安全检查评分办法(JGJ59-88)
21. 建筑施工高处作业安全技术规程(JGJ80-91)
22. 建筑机械使用安全技术规程(JGJ33-200L)
23. 施工现场临时用电安全技术规程(JGJ46-88)
24. 建设工程施工现场供用电安全规范(GB50194-93)
25. 建筑给排水及采暖工程施工质量验收规范(GB50242-2002)
26. 建筑电气安装工程施工质量验收规范(GB50303-2002)
27. 建筑采暖卫生与煤气工程质量检验评定标准(GBJ302-88)
28. 建筑电气安装工程质量检验评定标准(GBJ303-88)
29. 混凝土外加剂应用技术规范(GBJ119-88)
30. 普通混凝土配合比设计规程(JGJ55-2000)
31. 砌筑砂浆配合比设计规程(JGJ/T98-2000)
32. 塑料门窗安装及验收规程(JGJ103-96)
33. 土方工程施工及验收规范(GBJ201-83)
34. 钢筋混凝土高层建筑结构设计与施工规程(JGJ3-91)
35. 建筑地基处理技术规范(JGJ79-91)
36. 普通混凝土用砂质量标准及试验方法(JGJ52-79)
37. 普通混凝土用碎石和卵石质量标准及检验方法(JFJ53-79)
38. 混凝土拌合用水标准(JGJ63-89)
39. 碳结构钢(GB700-88)
40、钢筋混凝土用钢筋(GB1499-91)
41. 硅酸盐水泥、普通硅酸盐水泥(GB175-92)
42. 水泥砂浆强度检验方法(GBL77-85)
43. 普通混凝土力学性能试验方法(GBJ81-85)
44. 低碳热扎圆盘条(GB701-92)
45. 住宅装饰装修工程施工规范(GB50327-2001)
46. 砌体工程现场检测技术标准(GB50315-2000)
47. 建设工程文件归档整理规范(GB/T50328-2001)
48. 多孔砖砌体结构技术规范
49. 建筑工程项目管理规范(GB/T50326)
50. 外墙饰面砖工程施工及验收规程(JGJ126-2002)
51. 建筑施工门式钢管脚手架安全技术规范(JGJ128-2000)
52. 建筑施工扣件式钢管脚手架安全技术规范(JGJ130-2001)
53. 民用建筑工程室内外环境污染控制规范(GB50325 2001)
54. 民用建筑节能设计标准实施细则(DB23T/120-2000)
55. 电气装置安装工程接地装置施工及验收规范(GB50169 -92)
56. 电气装置安装工程盘、柜及二次回路线施工及验收规范(GB50171-92)
57. 电气装置安装1kV 以下配线工程施工及验收规范(GB50528-96)
58. 强制性标准(房屋建筑部分)
与之相关的文件
2. 施工蓝图
3. 本施工组织设计中的所有技术参数出自土建工程工具书
工程概况
1.1 某中学综合教学楼位于黑龙江省革市某中学院内,东临某路,南与某公司毗邻,该工程为U 型建筑,东西长85.93m, 南北长 71.04m,总建筑面积为13320.5m2,建筑高度分别为
26.40m(框架)、17.70m(砌体)。
1.2 教学主体部分为四层,办公部分为六层,图书馆部分为三层,教学部分东侧一至四层为阶梯教室,其余为20 个教室,5 个试验室,7 个专用教室,2 个微机室,1 个语音室,5 个准备室,3 个仪器室;办公部分包括9 个大办公室,25 个小办公室,3 个中会议室,1 个大会议室,6 个更衣室,1 个电子备课室,6 个备品库,1 个配电室;图书馆部分包括6 个书库,4 个办公室,2 个开架阅览厅,1 个大弧形报告厅,1 个控制室,1 个备品库。
1.3 结构形式:混合结构及部分框架结构两种形式,其中基础结构由独立柱基础、毛石条形基础以及混凝土条形基础组成。基础底标高为-2.9m。
主体结构:教学楼主体部分为砖混结构,阶梯形教室楼盖部分为预应力混凝土梁板结构;办公部分为框架结构;砖混部分±
0.00 以下采用MU10 普通烧结砖,M10 水泥砂浆砌筑;±0.00 以上采用MU10 普通烧结砖,M10 混合砂浆砌筑;框架结构部分±
0.00 以上采用黏土空心砖,M5 混合砂浆砌筑,±0.00 以下采用MU10 普通烧结砖,M7.5 水泥砂浆砌筑。
1.4 屋面苯板保温,水泥珍珠岩找坡,三元乙丙防水卷材与
刚性防水相结合组成双道防水层。
1.5 门窗:一层外门为不锈钢框玻璃门,内门均采用实木门,窗采用内开单框双玻塑钢窗,室内窗采用单框单玻塑钢窗。
1.6 室内顶棚、墙面抹灰大多数为混合砂浆抹面,卫生间墙贴面砖。
1.7 地面:走廊、楼梯间为花岗岩地面,办公室为复合地板,教室、阶梯教室、会议室、报告厅、书库、卫生间等为永久性防滑耐磨瓷砖地面。
1.8 室内装饰:除底层勒角采用驼色仿蘑菇石外墙砖外,办公楼外墙采用浅米黄色外墙砖,其他大部分墙面刷白色外墙漆,局部墙体采用灰蓝色镜面玻璃幕。
1.9 工程特点
1.9.1 由于基础断面及埋置深度均比较大、深,所以土方开挖工程量与回填土方量大,须采用机械开挖,机械回填,并适当的采取排水措施,防止由于地表水和雨水浸泡地基。
1.9.2 主体结构部分,现浇混凝土量大,并且层层设圈梁,过梁导致模板投入量,钢筋加工量增大,为此要求现场要做好施工计划,确保资金、材料、人员的投入。
1.9.3 工程构造繁杂,墙与楼板中埋设多种管线,施工中必须严格控制。
1.9.4 阶梯教室承重大梁为无粘结钢绞线预应力混凝土梁,长度为12.96m,施工时应制定详细的施工方案以及技术质量保证措施。
1.9.5 弧形报告厅的网架以及弧形墙的轴线控制,曲率控制应做为施工时的重点。
1.9.6 工程位于校园内,工程施工对教学、生活、环境卫生可能会带来一些影响,施工中注意采取措施加以解决。
主要工程量
| 名称 | 单位 | 数量 | 备注 |
| 挖土 | m3 | 6627 | |
| 基础混凝土 | m3 | 1472 | |
| 毛石条形基础 | m3 | 862 | |
| 基础梁 | m3 | 146 | |
| 砖基础 | m3 | 389 | |
| 柱子混凝土 | m3 | 418 | |
| 构造柱混凝土 | m3 | 129 | |
| 预应力梁混凝土 | m3 | 42.91 | |
| 梁板混凝土 | m3 | 1977 | |
| 圈过梁 | m3 | 367 | |
| 楼梯混凝土 | m2 | 497 | |
| 外墙砖 | m2 | 8046 | |
| 内墙砖 | m2 | 2249 | |
| 空心砖 | m3 | 673 | |
| 屋面防水 | m2 | 2210 | |
| 地面面层 | m2 | 9053 | |
| 顶棚抹灰 | m2 | 9053 | |
| 内墙抹灰 | m2 | 22140 | |
施工部署及施工进度计划
施工组织
3.1.1 本工程招标文件要求工期2003 年8 月5 日开工至2004 年7 月15 日竣工,不搞冬期施工。
3.1.2 组建一个由国家一级项目经理为首的项目经理部,配备精干的施工管理人员。施工中做到责任分工明确,关键部位以及复杂的施工环节做到跟班作业。
3.1.3 根据该工程的体量较大,工期较紧的实际情况,将该工程分为2 个施工作业区,配备了2 套施工队伍,实行二班作业。
3.1.4 依据现场的实际情况以及不搞冬期施工的原则,故决定2003 年8 月5 日开工,施工到2003 年10 月15 日停工,2004 年4 月1 日复工至2004 年7 月15 日竣工交付使用,历时176d。
施工作业区及施工段划分
将该工程分为2 个施工作业区,5 个施工段。从1-1~1-15 轴为第一施工区,在第一施工区划分二个施工段,即1-6~1-15 轴为第一施工段;1-1~1-15 轴为第二施工段;1-P~1-N~2-1~1-12 轴为第二施工作业区,将该区划分三个施工段,即2-1~2-8 为第一施工段,1-E~1-A 和1/1-9~1-15 为第二施工段;1-P~1-F 为第三施工段。
施工安排
3.3.1 基础工程:配备2 台CAT—330 型反铲挖掘机,8 台卡玛斯自卸翻斗车分区分段进行大面积开挖,回填部分,土方运至西侧集中堆放,多余的土方外运到指定地点。回填土方时用2 台红旗100 型推土机分区分段,分层回填。
3.3.2 主体工程:选用QTZ40 型塔式起重机4 台,JG350 型混凝土搅拌机6 台,钢筋切断机、弯曲机、元锯各2 台,自动电渣压力焊设备6 套。主体施工区段的划分:一~三层分2 个区,5 个施工段;四~六层分2 个区,2 个施工段。
3.3.3 装饰工程:施工原则:根据2004 年4 月份的天气温度情况,故决定先搞外墙装饰工程的施工,然后再搞室内。室内装饰的施工顺序为顶棚——墙面——地面。
施工顺序
定位放线→机械挖运土方→基底验槽→独立柱基础→毛石基础→地梁→回填土→地沟
3.4.2 框架部分
屋面保温防水柱→肋形梁板→
砌填充墙混合结构部分:砌承重墙→梁板→屋面保温防水
3.4.3 装饰工程
门窗安装→室外装饰→室内顶棚、墙面装饰→室内地面
工期安排
3.5.1 基础工程:2003 年8 月5 日~2003 年9 月18 日,45d。
3.5.2 主体工程:2003 年9 月1 日~2003 年10 月10 日,40d。
3.5.3 屋面工程:2004 年4 月1 日~2004 年4 月20 日,20d。
3.5.4 装饰工程
(1)室外:2004 年4 月15 日~2004 年5 月30 日,45d。
(2)室内:2004 年4 月20 日~2004 年6 月30 日,70d。
3.5.5 水暖、电卫工程与土建工程配合穿叉进行,安装施工从2004 年6 月1 日~2004 年7 月10 日。
3.5.6 工程收尾:2004 年7 月1 日~2004 年7 月15 日。
工程质量目标

图3-1 教学楼网络计划

图3-2 办公楼、图书馆网络计划
施工组织机构

图4-1 施工组织机构
施工准备
本工程项目使用功能复杂,需组织强有力的项目经理班子,健全各项施工管理质量保证体系,落实各项岗位责任制,严格按ISO9001 标准和公司《质量手册》、《程序文件》要求制定技术、质量、安全生产及文明施工等各项保证措施
技术准备
5.1.2 给定规划红线。
5.1.3 组织施工管理人员熟悉审查图纸,编制图纸会审记录。
5.1.4 编制施工图预算,为签发施工合同和编制施工组织设计做好准备。
5.1.5 编制工程质量计划、施工组织设计。
5.1.6 组建测量放线小组,配备专业工程师一人,负责整个工程抄测放线及沉降观测工作,并做好记录。
5.1.7 施工用的测量仪器、工具、计量设备等均应送检测部门检定合格后方可使用。
5.1.8 编制机械设备进场计划。
5.1.9 策划确定施工平面布置。
5.1.10 进行劳务材料合格供方调查评价,办理审批手续。
5.1.11 编制主要材料需用计划。
5.1.12 确定本工程特殊施工过程。
5.1.13 拟定在施工中采用的新技术、新工艺,组织学习交底,并做好施工准备,提出各项技术数据。
5.1.14 确定本工程各分项工程检验批。
施工组织准备
5.2.1.1 根据机械设备计划,组织施工机械设备、周转工具进场,按施工平面布置就位、安装、调试、运行。
5.2.1.2 根据施工图预算材料分析和施工进度计划、材料需用计划,确定供货渠道,按计划组织进场。及时进行二次检验和各种拌合物的配合比试验。
5.2.1.3 根据施工要求,现场配备电子秤六台,经纬仪一台,水准仪二台,50m钢尺二把,5m卷尺八把,混凝土坍落筒一个,混凝土试模六组,砂浆试模四组,检测尺一套。
5.2.2 劳动组织准备
5.2.2.1 根据工程规模,结构特点和施工工期等情况,确定项目经理部人员和劳动力数量,遵循合理分工与密切协作的原则,因事设职和因职选人。按时组织工人进场,并进行安全技术、防火、文明施工教育。
5.2.2.2 确定各级人员岗位职责、权限。
5.2.2.3 定期对各级人员工作业绩进行考核。
5.2.3 施工现场准备
5.2.3.1 根据规划红线,组织工程测量人员对给定的原始基准点,基准线标高等测量控制点进行复核。进行场地平整,建立施工测量控制网,设置场区永久控制标桩,进行工程定位测量。
5.2.3.2 做好四通工作,确保施工前现场路通、水通、电通、通讯网络通。
5.2.3.3 根据平面布置搭设暂设用房,保证施工需要。
施工用水
5.3.1 现场施工用水日浇筑混凝土150m3 Q1N1=150×250=37500L 日养护混凝土300m3 Q1N1=300×300=90000L 日浇砖300m3 Q1N1=300×200=60000L 合计:ΣQ1N1=37500+90000+60000=187500L q1=k1ΣQ1k2/T×t×8×3600
=1.05×187500×1.5/1×2×8×3600=5.13L/s
5.3.2 施工机械用水2 台挖掘机用水按2 个台班计算:Q2N2=2×2×250=1000L 2 台推土机用水按2 个台班计算:Q2N2=2×2×250=1000L 6 台搅拌机清洗按2 个台班计算:Q2N2=2×6×600=7200L
ΣQ2N2=1000+1000+7200=9200L
q2=k1ΣQ2N2(k3/8×3600) =1.15×9200×2/8×3600 =0.95L/s
5.3.3 施工现场生活用水量按施工现场劳动力高峰期400 人计算,q3= k1N1k4/t×8×3600 q3=400×40×1.5/2×8×3600=0.35L/s
5.3.4 消防用水q4=10L/s
5.3.5 总用水量
q1+q2+q3=5.13+0.95+0.35=6.43L/s< q4=10L/s
Q=q4=10L/s
5.3.6 干管直径D= 4Q /πv × 1000= 4 × 10 / 14.3 × 5.2 ×1000=0.07m 采用D=75mm 塑料管。
![]()
施工用电
5.4.1 施工用电4 台塔式起重机6 台混凝土搅拌机6 台棒式振捣器4 台平板振捣器钢筋弯曲机钢筋切断机钢筋调直机蛙式打夯机元锯合计电焊机
25.9×4=103.6kW 6.05×6=36.3kW 1.1×6=6.6kW 1.1×4=4.4kW 2.8×2=5.6kW 7×2=14kW 5.5×2=11kW 2.2×2=4.4kW 3×2=6kW Σp1= 191.4kW 23.4×1=23.4kVA 14.5×1=14.5kVA ΣP2=37.9kVA
5.4.2 室内外照明:P3=229.3×10%=22.9kW
5.4.3 总用电量
P=1.05(k1ΣP1/cosφ+k2ΣP2+k3ΣP3+k4ΣP4) =1.05(0.7×191.4 /0.7+0.6×37.9+1×22.9)
=248.9 kVA 采用SL7-250/10 型变压器
现场临时用房
5.5.1 管理层用房:办公室:15m2×5=75m2 仓库:300 m2×0.7=210m2 食堂:20×1=20m2 厕所:2 m2×5=10 m2 合计 305 m2
5.5.2 操作层用房:工人宿舍:1.5 m2×400=600m2 食堂:0.5 m2×400=200 m2 厕所:0.04m2×400=16m2 合计 816m2 总计 1121m2
主要工程项目施工方法
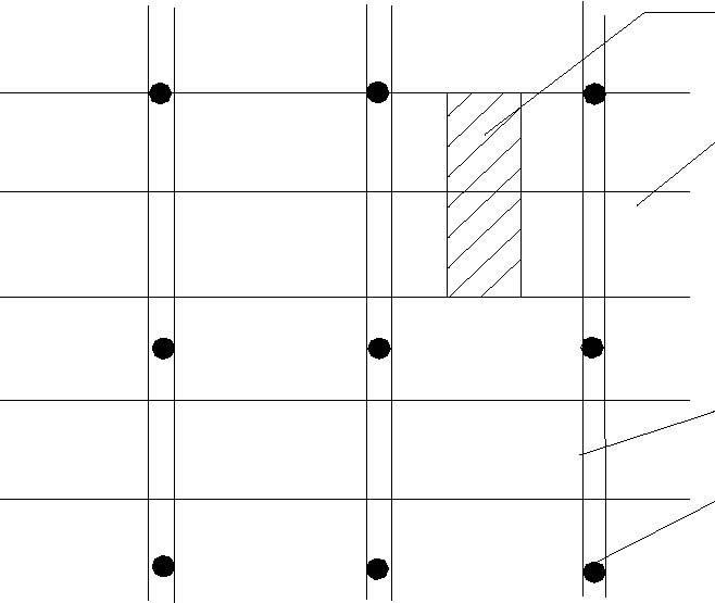
测量抄平放线
物的轴线位置。由建设单位定出零米标高。埋设轴线控制桩与标高控制点。轴线控制点与标高控制点位置如下图:

说明:X:轴线控制桩;Y:标高控制桩
图6-1 轴线控制点与标高控制点位置做法: 轴线控制桩:用钢筋桩φ25,L2000,打入地下,漏出地面
20mm 。测准后,用铁锯割成十字槽,周边搭设木三角架,涂红油漆做标识和保护。标高控制桩:用钢筋桩φ25,L2000,桩位设在轴线外4-5m
处。桩顶磨成球形,打入地下,漏出地面20-100mm, 周边搭设木三角架,涂红油漆做标识和保护。测设后,请建设单位、监理单位复查验收,做好记录。
土方开挖
6.2.1 基础形式:独立混凝土柱基础和条形混凝土、毛石基础各占一半。基础底板几乎布满整个建筑物地面。室外设计地面标高-1.20m, 独立混凝土柱垫层基底标高-3.00m ,条形基础基底标高-2.90m。基础埋深1.8m. 1.7m。
6.2.2 地质情况:场地平整,基础埋深范围内无地下水。土层分布均匀。由上到下:
①层:杂填土,杂色,为新近人工填土,由砖块、炉灰、碎石及黏土等组成,厚度0.3~1.5m。
②层:粉质黏土,黄褐色,稍湿,可塑,具有铁染特征,无摇振反应,干强度中等。承载力特征值fak=140kPa,厚度0.5~3.0m。
②1 层:粉质黏土,褐黄,黄色,稍湿,可塑,硬塑,具较强烈的铁染特征,含铁锰质结构。承载力特征值fak=180kPa,厚度
1.3~5.0m。基础一半座落在②层上,一半座落在②1 层上。
6.2.3 流水段划分,工艺流程
(1)流水段划分:以轴1-M 以北为Ⅰ区。以轴1-5 东西分成两个流水段。以轴1-M 以南为Ⅱ区。以轴1-F,2-8 东西分成三个流水段。工艺流程:Ⅰ区:1-15~1-5→1-16~1-1
Ⅱ区:1-N~1-F→1-E~2-9→2-8~2-1
6.2.4 施工方法:采用分区分段机械大开挖的方法施工。
每区设反向铲挖土机CAT-330 台进行土方开挖。放坡30%, 挖深-2.75m,底部留15~20cm 厚人工清底,修边。每段挖出的土方选用4 台自卸汽车运至场外,用于回填的土方堆在场区西侧空地。
土方分段开挖,分段清底,分段进行基础施工,防止长时间晾槽,雨水浸泡,影响地基的承载力。
6.2.5 质量要求:开挖平面尺寸、标高、放坡符合基础施工要求。基底土质达到设计要求。
柱基础混凝土垫层
(1)地基经检查合格。
(2)水泥:采用普通硅酸盐水泥PO32.5,砂子采用中砂无杂质,含泥量不大于5%,卵石粒径5-32mm,含泥量不大于2%。
6.3.2 流水分段,工艺流程
(1)流水分段同土方开挖的划分。
(2)工艺流程:检查地基→找标高和水平控制线→混凝土搅拌→铺设混凝土
→振捣→找平→养护
6.3.3 施工方法
(1)排净地坑积水,检查地坑土质与空隙比,合格后方可进行下一步施工。
(2)模板用木方100×100mm 做侧模,外侧钉木桩90×60@500 固定。
(3)用混凝土搅拌机拌制混凝土,用塔式起重机做运输。逐个浇筑,用铁锹拍实,木抹子槎平,完成后盖草袋浇水养护。
(4)试块留置:每个流水段只少留一组,做标准养护28d 按时试压。
6.3.4 质量要求:混凝土垫层尺寸标高准确,混凝土密实,表面平整。
独立混凝土基础
(1)垫层尺寸、标高检查合格。
(2)水泥:采用普通硅酸盐水泥PO32.5,砂子采用中砂或粗砂,含泥量不大于5%,卵石粒径5-32mm,含泥量不大于2%且无杂物。钢筋:进场有产品出厂合格证,试验单,二次试验必须合格。
6.4.2 流水段划分,工艺流程
(1)流水段划分同土方开挖的划分。
(2)工艺流程:
垫层放线→支大脚侧模→绑底筋→绑柱跟筋→大角混凝土浇筑→支柱跟侧模→浇筑柱跟混凝土→拆模→养护
6.4.3 施工方法
(1)模板:采用组合钢模。用前清净上面的灰渣,刷隔离剂一道,分规格堆好。
(2)垫层经检查验收,尺寸标高均符合设计要求。
(3)垫层上找出基础轴线,柱、基础大脚边线。在基坑上做出标记。
(4) 基础大脚,用组合钢模横向放置,外加横方90 × 60@300-500,外加斜向支撑方90×60@250~370,固定在地面上。柱跟用木胶合板-18,立方90×60@250~370,横箍[80×43× 8@500, 下部固定在大脚混凝土预埋的短筋上,上部支斜木方4~ 90×60,固定在地面上。
(5)钢筋:先绑底板筋,后绑立筋。底板筋用砂浆垫块垫起35 ×600×600@500, 立筋下部用短筋与底筋焊牢,上部用木方4-90 ×60 夹紧,固定在侧模上,大脚顶层钢筋用门形铁马φ16@500 固定。
(6)混凝土浇筑:先大脚,后柱根。大脚分层对称浇筑,防止模板移位。柱跟混凝土浇筑完,再核对一下轴线与垂直度,确保柱的位置准确。浇筑完后,浇水养护不少于7d。每个流水段至少留试块两组,做标准养护与同条件养护。
6.4.4 质量要求:混凝土基础轴线、断面、尺寸准确,混凝土密实,表面平整,混凝土强度等级达到设计要求。
素混凝土基础
(1)地基经过检查合格。
(2)水泥:采用普通硅酸盐水泥PO32.5,砂子采用中砂或粗砂,
含泥量不大于5%,卵石粒径5-32m,含泥量不大于2%且无杂物。
6.5.2 流水段划分,工艺流程
(1)流水段划分同土方开挖的划分。
(2)工艺流程:
地基检查验收→放线→支模→混凝土浇筑→养护
6.5.3 施工方法
(1)模板:采用组合钢模,用前除去表面灰渣,刷隔离剂一道,按规格堆好。
(2)地基检查合格后,放线找出基础的位置与标高,立侧模。
(3)钢模横放,立方90×60@500,横方2~90×60, 外部下部钉木桩90×60@500, 上部加斜撑90×60@500 固定,上口再加门形铁马凳φ16@500 控制基础的宽度。
(4) 混凝土浇筑:由一端依次分两层进行,每次浇筑厚度250mm,用插入式振捣器振实,用铁锹拍平。完成后盖草袋,浇水养护。
(5)每个流水段至少留混凝土试块两组,同条件和标准养护28d,按时试压。
6.5.4 质量要求:基础轴线、断面标高准确,表面平整,混凝土密实,混凝土强度等级达到设计要求。
毛石基础
(1)毛石坚实,无风化,脱落裂纹,表面无泥垢、水锈,施工前应清理干净。
(2)砂子:采用中砂,用筛孔5mm 筛过筛,不含杂质。
(3)水泥:用普通硅酸盐水泥PO32.5,有出厂合格证与试验单。地槽拉线,抄平检查,地基土质检查合格。
6.6.2 流水段划分,工艺流程
(1)流水段划分同土方开挖的划分。
(2)工艺流程:
地基检查验收→放线→搅拌灰浆→砌毛石→质验
6.6.3 施工方法:砌筑时,里外挂线,毛石上下错缝,里外搭砌,毛石第一皮要丁砌,座浆砌筑。基础错台,上层毛石至少要压下层毛石三分之一。灰缝不大于2 cm,每日砌筑高度不超过
1.2m。雨天施工,应防止雨水冲刷,下班收工时,应覆盖砌体表面。基础砌完,经检查合格后,方可进行土的回填。
6.6.4 质量要求:基础组砌合理,灰浆饱满,粘结牢固,几何尺寸准确,表面平整、垂直。
混凝土地梁
(1)抄测检查基底标高与尺寸,符合设计要求。
(2)水泥:采用普通硅酸盐水泥PO32.5, 有出厂合格证与试验单。
(3)砂子:采用中砂或粗砂,含泥量不大于5%。
(4)卵石:粒径5~32mm 含泥量不大于2%,且无杂质。
(5)钢筋有出厂合格证,试验单。二次试验合格。
6.7.2 流水段划分,工艺流程
(1)流水段划分同土方开挖的划分。
(2)工艺流程
基底检验→绑筋→支模→浇筑混凝土→养护
6.7.3 施工方法
(1)模板:采用组合钢模。用前清除表面上的灰渣,刷隔离剂一道。
(2)组合钢模横放,横方2-90×60 上部用门形钢筋卡子φ16 扣紧,侧边用木方90×60@500 顶在土壁上。
(3)钢筋绑扎:现场集中加工,作业面上绑扎,接头要错开,同一断面的钢筋接头不大于50%,注意构造柱钢筋的放置,要做到准确。
(4)混凝土浇筑:由一端依次浇筑,用插入式振捣器振实,用铁锹拍平。
(5)施工完成后,盖草袋浇水养护不少于7d。每流水段,留混凝土试块不少于两组,同条件养护与标准养护 28d 再按时试压。
6.7.4 质量要求:轴线、标高、几何尺寸准确,表面顺直平整,混凝土密实。
砖基础
(1)烧结普通砖:有出厂合格证、试验单。二次化验合格。
(2)水泥:采用普通硅酸盐水泥PO32.5, 有出厂合格证与试验单。
(3)砂子:中砂,用筛孔5mm 筛过,含泥量不大于5%。
(4)常温下,烧结普通砖用前浇水湿润,砖浸水1.5cm 为宜。
(5)基层轴线、标高、尺寸检查均符合设计要求。
6.8.2 流水段划分,工艺流程
(1)流水段划分同土方开挖的划分。
(2)工艺流程:
基底检验→挂线立皮数杆→座浆砌筑→抹防潮层→养护→质验
6.8.3 施工方法
(1)组砌方法:采用一顺一丁,里外咬槎,上下错缝,“三一砌砖法”进行操作。
(2)砌筑前,基层扫净,洒水湿润。一砖挂外线,一砖半以上墙双面挂线。
(3)暖气沟挑檐及上层压砖,要用丁砖砌。
(4)伸缩缝处,缝中加苯板控制缝的宽度。
(5)予溜管道口尺寸须准确,过梁安装平整。
(6)抹防潮层:将砌体表面清净,洒水润湿,抹防水砂浆,厚度15~20mm,防水粉掺量3~5%。
(7)每个流水段留砂浆试块不少于1 组,做标准养护28d 按时试压。
6.8.4 质量要求:砖品种、强度、砂浆的强度都必须符合设计要求。砌体表面平整、垂直,灰浆饱满。
土方回填
(1)基础检查各项指标均符合设计要求。回填部分坑槽内的积水已清净。
(2)雨期用于建筑物回填的土方,必须用防雨布盖好,防止填土过湿,难以夯实。
6.9.2 流水段划分,工艺流程
(1)流水段划分同土方开挖。
(2)工艺流程:
地槽回填→房心土回填
6.9.3 施工方法:每个施工区采用推土机红旗100 一台为主推土,塔式起重机、手推车为辅,依次分层夯填。用蛙式打夯机和铸铁夯夯实。
| 6.9.4 | 质量要求:回填土,密实度达到设计要求,表面平整 |
| 不积水。 | |
暖气沟
(1)暖气沟地基经处理达到设计要求。
(2)材料:水泥用普通硅酸盐水泥PO32.5, 砂子采用中砂,含泥量不大于5%,砌筑用砂要用孔径5mm 筛筛过。卵石粒径5~ 32m,含泥量不大于2%,地沟盖提前外委加工,按计划入场。
6.10.2 流水段划分,工艺流程
(1)流水段划分:同土方开挖的划分。
(2)工艺流程
地基土检查处理→垫层浇筑→沟墙砌筑→地沟盖安装
6.10.3 施工方法
(1)垫层浇筑:支模用木方100mm×100mm 做侧模,外边钉木桩90×60@500 固定。
(2)混凝土搅拌机拌合混凝土,用塔式起重机做运输,由一端开始依次铺设混凝土,用铁锹拍实拍平。
(3)砖墙砌筑:按设计图纸要求,挂线砌筑。
(4)地沟盖安装:用塔式起重机做垂直与水平运输,人工铺砂浆找平,座灰找平安装。
6.10.4 质量要求:混凝土垫层表面平整,混凝土密实。砖墙位置、标高准确,墙面顺直,灰浆饱满。预埋铁件固定牢固,位置准确。地沟盖安装位置标高准确,安装平稳。
墙体砌筑
(1)空心砖、烧结普通砖要有出厂合格证、试验单。规格尺寸、二次试验、容量、强度必须符合设计要求。
(2)水泥:采用普通硅酸盐水泥PO32.5, 由出厂合格证与实验单。
(3)砂子:采用中砂经过5mm 筛孔筛过,含泥量不大于5%。
(4)生石灰:熟化时间不少于7d。
(5)粉煤灰:试验标准不低于Ⅲ级。
(6)拉结筋、预埋件,木砖已备齐。
(7)室内回填土已经完成地沟盖已安装好,防潮层已抹完。基
础隐蔽检查业已完成。
(8)_基础上已找好墙的轴线,弹出砌体边线,画出门窗口位置,抄平立皮数杆,间距15~20m。
(9)曲线墙:找出桩轴线砌体的外线位置,做曲线模板,在墙上画弧线。
6.11.2 流水段划分,工艺流程
(1)以轴线1-M 以北为Ⅰ区。以轴线1-5 东西分成两个流水段。以轴线1-M 以南为Ⅱ区。以轴线2-8 东西分成三个流水段。四层以上分两段流水段。
Ⅰ
Ⅰ

Ⅱ
Ⅱ
Ⅱ

图6-2 流水段划分示意图
(2)工艺流程:作业准备→砖浇水→拌制砂浆→砌砖墙→验评
6.11.3 施工方法
(1)空心砖、烧结普通砖、砌筑前一天浇水润湿,浸水深度1.5cm
为宜,常温下不得干砖上墙。
(2)组砌方法:采用一顺一丁,“三一”砌砖法操作。
(3)直墙:一砖墙挂外线,一砖半以上的墙双面挂线。
(4)曲线墙: 按柱轴线墙外皮点用曲线模板控制墙体位置。拉水平短线控制标高进行砌筑, 用厚度杆控制墙厚,每半步加吊一次垂直,量一下弧线,检查墙面垂直与曲线尺寸。空心砖墙的灰缝控制在1.5cm。烧结普通砖墙的灰缝控制在1cm。砌筑时,随时打扫墙面,清除落地灰。
(5)留槎:外墙转角要同时砌筑,内外墙交接处必须留斜槎,长度大于墙高的2/3, 分段位置应在伸缩缝或窗洞口处。隔墙与墙不能同时砌筑时,留阳槎,设拉结筋2φ@500 ,外伸长1000mm。空心砖墙,门窗洞口两侧,柱两侧,用实心砖砌筑, 每边不少于240mm。
(6)空心砖墙在地面或楼板上,先砌实心砖三皮,再砌空心砖。空心砖砌至梁底或板底,用实心砖斜砌,挤紧,并用砂浆填实。
(7)木砖预留:木砖小头在外,大头在里,洞口高1.2m,每边放两块,洞口高1.2~2m,每边放3 块,洞口高2~3m,每边放4 块。过梁、圈梁预留位置必须准确。
(8)构造柱:按图纸设计位置,砌马牙槎,向两边横向突出60mm 每层马牙高度240mm,并埋设拉结筋2φ6@480 伸进墙面1000mm。
6.11.4 质量要求:组砌合理,灰浆饱满,墙面平整顺直。
模板工程
(1)柱模板投入量为半层。梁板模板投入量为三层。圈梁、过梁模板投入量为梁模数量的一层半。
(2)组合模板进场前做好质量检查,进场的必须是合格品,用前清除表面的浮渣,刷隔离剂一道,配齐连接卡具。
(3)木胶合板,按设计图纸要求制成定型模板,编号周转使用,用前刷隔离剂一道。
(4)木立柱、木拉杆进场后拨掉上面的钉子,拆除铁件,分类堆放整齐。
6.12.2 流水段划分,工艺流程
(1)流水分段同墙体砌筑的划分。
(2)工艺流程:
1)柱模板:
弹出柱轴、尺寸线→抹找平定位墩→绑筋→安装柱模板→安
装拉杆与支撑→办理预检梁模板:拉线找出轴线与标高→地面夯实→支立柱→调整标高→安装
梁模板→绑筋→安装侧模→加水平拉杆→办预检3) 楼板模板:抄平找出轴线及标高→地面夯实→支立柱→安装楞木→铺面
板→校正标高→加水平拉杆→办预检4)圈梁支模:支立柱→安装楞木→铺底模→绑筋→安装侧模→水平支顶→
办预检构造柱模板:绑筋→砌砖→支模→预检→浇筋混凝土混凝土屋檐支模:校正圈梁立筋→支外模→绑斜板筋→支里
模→与墙拉结好→支顶板模
6.12.3 模板构造:依据构件尺寸,厚度进行模板设计,在保证使用质量的前提下,尽可能节约木材。
(1)柱模:
1)方柱:面板采用木胶合板,厚18mm,立方90×60@250-375, 横箍用L 形槽钢[80@500,上边用木方4-90×60 支顶。下边用木方90×60,用木楔支在混凝土基础大脚预埋的短钢筋上。
圆柱:面板用木板厚20mm,横肋用木板厚25mm @500 分4 块做成弧形。相互用钉子钉在一起,用8 号线捆绑@500,外加立方4-100×100,上边用木方4090×60 支顶。下边用木方90×60, 用木楔支在混凝土基础大脚预埋的短钢筋上。
肋板

图6-3 柱模示意图
(2)梁模板:
面板采用木胶合板,厚18mm,小方90×60@450,大方90 ×60@250-300,立柱φ70@1000-1200 中间加水平支撑一道。
(3)楼板模板:
面板采用采木胶合板,厚18mm,小方90×60@450,大方100 ×100@1000,立柱φ70@1500。
(4)圈梁模板:1)直梁:面板采用组合钢模,顺方2-90×60,斜撑90×60@600, 上部加门形钢卡子φ12@600 固定。立柱φ60@800-1200。
2) 曲梁:面板采用木板厚20 ,水平肋板用木板厚25mm@180-300 ,立方90×60@500,斜撑90×60@500。上部加门形钢卡子φ12@500 固定。立柱φ60@800-1200。
(5)构造柱模板:
面板采用木板厚20,横方90×60@500,两头用钢丝8 号@500 固定在砖墙上。
预埋 号铁线@

图6-4 混凝土屋檐模板
6.12.4 施工方法
(1)柱模板:底面找好位置,底面弹线,做好定位墩,分段支模,上下要支顶好。支完后做一次柱模垂直度的复查与校正。
(2)梁模板:找出轴线位置与标高。基层土要夯实,用大方或厚木板垫好。立柱找好标高,加水平拉杆拉好。放大小楞木铺底板,安装侧板,梁起拱0.2%横向拉结好。斜梁支模立柱之间除水平支撑外,尚须斜向垂直支撑拉紧,防止
支架倾倒移位。
(3)楼板模板:找出轴线位置与标高,基土要夯实,立柱加水平拉杆。放大小木楞,找好标高,铺面板。
(4)圈梁模板:找好轴线位置,放立柱、楞木、铺底板。侧板要支顶好与墙面对齐,防止漏浆。曲线形圈梁,底模上依照柱轴的墙外点,用弧形模板画水平梁的外围线。支完后,再用弧板校正一次,防止错位。
(5)混凝土屋檐模板:下层墙留洞。圈梁下留洞放水平木方,绑斜撑,铺反做平台,先支外模,后支里模。立柱与砖墙预埋钢筋拉结好。
6.12.5 质量要求:模板轴线、标高、断面尺寸准确,柱垂直,梁板起拱适度,支撑牢固稳定,板缝严密。
钢筋工程
(1)进场钢材必须有出厂合格证,试验单,二次试验必须合格。钢筋代用必须经过设计院同意,出核定单,方可代换。
(2)电焊条,焊药进场要有出厂合格证,试验单。
(3)焊工要有培训合格证,并做焊件试验,合格后方可从事焊接工作。
(4)钢材上的铁锈、污泥、油污用前必须清理干净。
6.13.2 流水段划分,工艺流程
(1)流水段划分:同墙体砌筑的划分。
(2)工艺流程
1)柱钢筋:调整底筋→立筋→绑箍筋→设与墙拉结筋→放预埋
件2)梁钢筋:放横木、串纵筋→绑钢箍→钢筋绑扎→钢筋入模3)楼板钢筋:模板分格画线→铺主筋→绑分布筋→绑上部钢筋4)圈梁钢筋:放纵筋→绑箍筋5)构造柱钢筋:绑立筋→绑箍筋6)混凝土屋檐钢筋:调直斜板立筋→绑斜板分布筋→绑墙压顶
筋→绑顶板筋
6.13.3 施工方法:钢筋现场集中下料加工,用塔式起重机运至作业面上绑扎。
(1)柱钢筋:柱底立筋要校正好,吊进活动操作平台,绑扎立筋与钢箍。安装墙拉结筋与预埋件。拉结筋与埋件要找准位置,点焊在立筋上。弯折下来的立筋要顶在模板上。柱立筋同一断面接头不超过50%,立筋竖向连接采用电渣压力焊。
(2)梁钢筋:梁位上放木方,绑扎后落入模板内。纵筋下部或两层纵筋之间,用φ25 短钢筋垫好。梁纵筋接头,采用直螺纹连接。受拉筋同一断面接头不超过
25% 。曲梁纵向钢筋要放好样,用煨弧机进行加工。楼板钢筋:模板上分格画线,铺主筋,放分布筋,绑扎好后,
放上部主筋与分布筋,绑扎牢固。主筋下部用予制砂浆块垫起,15×50×50mm3。钢筋接头要错开。安放预埋件,用绑线和钉子固定在模板上。
征得设计院的同意,将楼板钢筋错开,用冷轧带肋钢筋代替Ⅰ级园钢。
(4)圈梁钢筋:放纵钢筋,接头要错开,同一断面接头不超过50%,搭接长度不小于35d。
(5)构造柱钢筋绑扎:校正底部纵筋位置,再绑立筋与钢箍。
(6)混凝土屋檐钢筋:校正圈梁上预埋插筋,绑斜板筋,再绑压顶与顶板钢筋。
6.13.4 质量要求:钢材强度,钢筋规格,绑扎方式,拉结筋预埋件位置必须符合设计要求。钢筋绑扎牢固,位置准确,接头、锚固长度符合规范要求。
混凝土浇筑工程
(1) 每个施工区选用混凝土搅拌机JZG-350 三台,塔式起重机QTZ40 两台,从事混凝土的拌制与运输。
(2)混凝土投料采用电子称进行计量。
(3)水泥:采用普通水泥PO32.5 或PO42.5。要有出厂证与试验单。
(4)砂子:采用中砂。砂子的含泥量、混凝土强度等级等于大于C30, 含泥量不超过3%; 混凝土强度等级小于C30, 含泥量不超过5%,泥块含量前者不超过1%,后者不超过2%。
(5)石子:采用碎石。针片状颗粒:混凝土强度等级等于大于
C30 含量不超过15%,混凝土强度等级C25 以下,含量不超过25%。石子含泥量:C30 以上混凝土不超过1%,
C30 以下不超过2%。泥块含量,前者不超过0.5%,后者不超过0.7%。
(6)外加剂:采用早强减水剂或防冻剂,要经过省认定,有出厂试验单与使用说明书。
6.14.2 流水段划分、工艺流程
(1)流水段划分:同墙体砌筑的划分。
(2)工艺流程:
材料过称计量→搅拌→出料→混凝土质量检查(和易性、坍落度、试块制作)→运输→浇筑振捣→找平、吊直。
6.14.3 施工方法
(1)柱混凝土浇筑:搭脚手架或安放活动操作平台,浇水润湿模板,柱底浇筑与混凝土同强度等级的水泥砂浆厚50-100mm。然后分层浇筑混凝土。每次浇筑厚度500mm。用插入式振捣器分层振实。柱模外用木锤敲打振实。混凝土浇筑完后,复查一次柱子的垂直度,作一次调整。拆模后浇水包塑料薄膜养护。
(2)梁板混凝土浇筑:浇水润湿模板,由一端开始依次浇筑混凝土。用插入式振捣器或平板式振捣器振实。用铁锹拍平。斜梁板部分混凝土的浇筑, 由低处向高处依次进行施工。阶梯教室的台阶部分,斜坡完成后,二次支模浇筑。
梁、板混凝土强度等级不同,上料时,料斗做好标识,防止弄错,浇筑时,先梁后板进行施工。
(3)施工缝的留置:设在梁或板跨的1/3 处。在浇筑混凝土前,清净表面浮渣,浇水湿润,铺与混凝土同强度等级的水泥砂浆厚50~100mm,再浇筑混凝土。
(4)常温下,梁、板掺早强减水剂,增强混凝土早期强度,加快模板周转。冬期来临,梁板、柱混凝土中掺防冻剂,确保冬期施工混凝土的质量。
(5)混凝土试块留置:每层每个流水段每班至少留试块两组,
做同条件与标准养护28d ,按时试压。混凝土浇筑完成后,盖草袋浇水养护不少于7d。
(6)混凝土浇筑后,两天之内不准上人。上部堆放砖、砂浆时,要轻放、轻卸,防止结构受冲击发生裂纹。
6.14.4 质量要求:混凝土结构的轴线、标高、断面尺寸和强度必须符合设计要求。混凝土密实,表面平整、顺直。
预应力混凝土工程
6.15.1 结构形式:梁断面400mm×650mm,跨度12.9m,混凝土C40,预应力钢铰线U-TS-1860-15.24。锚具用BUPC 系列。网片4φ8@80 方格。张拉控制应力1302MPa,张拉控制力182kN。
6.15.2 施工准备
(1)钢筋、钢铰线、锚具要有出厂合格证与试验单。二次试验合格、张拉千斤顶、压力表经过计量部门鉴定检查合格。
(2)水泥:采用普通硅酸盐水泥PO42.5, 有出厂合格证及试验单。
(3)砂子:采用中砂,含泥量不大于5%。
(4)石子:用碎石,级配合理,针片状颗粒不大于15%,含泥量不大于1%。
(5)水泥有出厂合格证、试验单、砂、石试验合格。
(6)高效早强减水剂:经过省认定,有出厂合格证与试验单。
6.15.3 工艺流程
基底处理→立柱→铺楞木→铺底板→校正标高→放排预应力、预应力钢筋→安装侧模→混凝土浇筑→浇水养护→混凝土试块试压→预应力张拉→封头
6.15.4 施工方法
(1)模板:支法同其他混凝土梁。
(2)钢筋:非预应力钢筋绑扎同其他混凝土梁。预应力钢筋按图纸设计要求,做钢筋支架,点焊在非予应筋上,放预应力钢筋,端部套上钢筋网片,固定好预埋垫板。
(3)混凝土浇筑: 混凝土中掺高效早强减水剂,分层浇筑与振捣不留施工缝。完成后浇水养护7d 以上。
(4)试块留置,每层不少于4 组,三组同条件养护,一组标准养护。其中同条件养护的两组用于混凝土预应力张拉前试验用。混凝土强度达到100%时,进行张拉。
6.15.5 质量要求:混凝土梁轴线尺寸、标高、断面大小以及所用材料的性能都必须符合设计要求。张拉应力控制准确,锚固牢固。混凝土密实,表面平整顺直。
脚手架工程
(1)主体框架、砌墙与室外装修工程,采用双排钢脚手架。内墙砌砖、抹灰采用钢制里脚手架。
(2)安全网的设置:外架子外侧垂直挂密目安全网。一、三、五层挂水平安全网。
垂直运输
(1)塔式起重机安装,必须按施工总平面图的位置安装,防止大臂与塔身相碰。相邻两台塔机起重臂高差不得小于2m,避免工作时相碰。
(2)施工中设专人指挥,防止碰车,发生安全事故。
塑钢窗安装
(1)塑钢窗进场要有出厂合格证,产品包装、配件齐全,均符合设计要求。
(2)密封膏、发泡剂有出厂合格证,性能符合设计要求。
(3)窗洞口位置,弹好+0.5m 水平线。找出窗安装位置。
6.18.2 流水分段、工艺流程
(1)流水分段:同墙体砌筑分段,分段分层由下至上安装。
(2)工艺流程:
弹线找规距→窗洞口处理→塑钢窗及配件检查→运输→就位安装→窗四周嵌缝→安装小五金→表面清理
6.18.3 施工方法
(1)检查洞口尺寸,每边至少比窗框尺寸大30mm,否则应先剔凿处理。
(2)按图纸要求安装塑钢窗。安装窗框铁脚。位置垂直度找好后,用木楔临时固定,检查正侧面及对角线合格后,用膨胀螺栓将铁脚与结构固定好。嵌缝:窗框与墙体的缝隙,发泡填塞严实。表面留5~8mm 缝隙,用密封胶封闭。
(3)安装窗附件,用电钻钻孔,用自攻螺丝拧入。
6.18.4 质量要求
(1)塑钢窗、附件和玻璃质量必须符合设计要求和施工有关规定。塑钢窗关闭紧密,开启灵活,无变形和翘曲。
(2)窗、附件安装齐全牢固,位置准确,美观,窗框与墙体缝隙填嵌饱满密实、平整。窗表面洁净。
白钢玻璃门安装
(1)门进场要有出厂合格证,产品包装、配件齐全,均符合设计要求。
(2)嵌缝材料,密封胶要有出厂合格证,品种性能要符合设计要求。
6.19.2 流水分段与工艺流程
(1)流水分段:同墙体砌筑分段的划分,分段由下至上施工。
(2)工艺流程:
弹线找规矩→门洞口处理→门洞预埋件检查→拆包检查门的质量→运输至安装地点→门安装→门窗四周嵌缝,填保温材料→清理→质检
6.19.3 施工方法
(1)弹线找规矩:按图纸设计找出门的位置,依照墙上0.5m 水平线找出门的标高。
(2)按图纸设计要求安装钢门。安装门铁脚。位置、垂直度找好后,用木楔临时固定。检查正侧面、对角线合格后,门铁脚焊
在预埋件上。外门周边发泡剂填缝镶门密闭胶条,做好成品保护。
6.19.4 质量要求:白钢玻璃门的材质、附件、玻璃质量必须符合设计要求。门安装位置、标高准确,表面平整、垂直。门固定牢固,开启灵活,表面清洁、美观。
木门安装
(1) 木门加工制作的型号、数量、加工质量必须符合设计要求,有出厂合格证。
(2) 木材防腐剂有出厂合格证与试验单。
(3) 墙体预埋件数量符合设计要求。
(4) 小五金及配件种类、规格、型号必须符合设计要求。
(5) 门洞口水平位置与标高已找好。
6.20.2 流水分段、工艺流程
(1) 流水分段:同墙体砌筑的划分,分段分层由下至上进行施工。
(2) 工艺流程:
弹线找规矩→洞口修整→运输至安装地点→门框安装→门扇安装→清理→质检
6.20.3 施工方法
(1) 按图纸设计找出木门的水平位置,按墙上的0.5m 标高线找出门的标高。
(2) 检查门框规格、质量、框外刷防腐油。将门运至指定位置进行安装,找正吊直,用钉子将门框钉在预埋木砖上。门框两则
钉木板进行保护。
(3) 室内装修完成后进行门窗安装,镶小五金,清理面层。
6.20.4 质量要求:木门品种、规格质量必须符合设计要求。门固定牢固,开启灵活,表面整洁,无破损。
外墙贴面砖
(1) 面砖、种类、规格、色泽必须符合设计要求。包装良好,不得有缺楞,掉角、裂纹等缺陷,吸水率大于10%。
(2) 水泥:采用普通硅酸盐水泥PO32.5,要有出厂合格证与试验单。
(3) 砂子:采用中砂,用前过筛,孔径5mm。
6.21.2 流水分段、工艺流程
(1) 流水分段:同墙体砌筑的划分。由下至上进行施工。
(2)工艺流程:
基层处理→吊直找规矩→贴灰饼→做找平层→弹线分格→排砖→浸砖→镶贴面砖→面砖擦缝与处理
6.21.3 施工方法
(1) 基层处理:将突出墙面的突出部分剔平。光滑的混凝土结构表面,浇水湿润,用1:1 水泥砂浆掺108 胶20%。甩在墙上,使表面粗糙。
(2) 吊直、套方、找规矩,由上到下挂通线吊直,找正大角门
窗洞口,柱子边线位置。安垂直线,贴饼充筋做找平层:洒水湿润墙面,刮素水泥浆一道掺108 胶10%,分层抹1:3 水泥砂浆,每次抹厚度5~10mm 隔日浇水养护。
(3) 弹线分格:按图纸设计要求弹线分格排砖。排砖原则,大墙面、壁柱要排整砖,次要部位排非整砖,非整砖要对称排列。
(4) 浸砖:面砖用前,放入水中浸泡2h 以上,取出晾干,擦干净后方可使用。
(5) 镶贴面砖,由上至下进行,每段每层均要自下而上挂水平线镶贴。
(6) 砖背面抹1:2 水泥砂浆,厚6-10mm,贴上后用灰铲柄轻轻敲打,使之附线,再用钢片开刀调整竖缝及垂直度。
(7) 女儿墙压顶,窗台、腰线、贴面砖流水坡度必须找好。用1:1 水泥砂浆擦缝。用棉丝加稀盐酸清净面砖上的灰渣。
6.21.4 质量要求:表面平整,洁净,颜色一致,排砖合理,美观。基层连接牢固,不空鼓。
玻璃幕安装
(1) 玻璃幕墙所用的玻璃、钢骨架、连接配件、密封胶必须符合设计要求及国家现行产品标准和工程技术规范的规定。有出厂合格证与试验单。
(2) 幕墙玻璃应采用安全玻璃,厚度不小于6mm。幕墙中的中空玻璃应采用双道密封。采用硅酮结构密封胶及丁基密封胶。墙面已找正,基层找平层抹灰已经做完,检查合格。
6.22.2 工艺流程
结构清理→吊直弹线找规矩→装钢骨架→检查调整→钢骨架焊接固定→安装玻璃→填缝灌胶→清理→淋水检查
6.22.3 施工方法
(1) 清理主体结构上预埋件的灰渣,依据设计图纸弹出水平与垂直方向的基准控制线。
(2) 把连结件按正确位置点焊在主体结构的预埋件上。安装幕墙立柱,以基准线为准立柱位置,然后与连结件临时固定。安装幕墙横梁,将横梁两端的连结件及弹性橡胶垫安放在立柱的预定位置上,并做临时固定。
(3) 立柱、横梁安装完后,做一次全面检查,做一次调整。最后将临时焊接件进行正式焊接,紧固连接螺栓。
(4) 按设计要求在每方格块玻璃下,设铝合金或不锈钢托条,长100mm,厚2mm 垂直于玻璃幕墙平面宽度,不应露出。将玻璃轻轻压在框内,使其粘结牢固。
(5) 玻璃安装后,缝隙用防火保温材料填塞,内外用密封胶封闭。幕墙的伸缩缝也用密封胶填塞。
(6) 清净幕墙面上的杂物,淋水检查幕墙有无渗漏。
6.22.4 质量要求:幕墙所用的材料、配件、密封材料必须符合设计要求。幕墙固定牢固,封闭严密,表面平整,线条顺填,不漏水。
室内顶棚墙面抹灰
(1) 水泥:采用普通硅酸盐水泥PO32.5,要有试验单。
(2) 石灰膏:用袋装生石灰粉,用前应用水浸泡,使期充分熟化。其熟化时间为3d 以上。
(3) 砂子:采用中砂,平均粒径0.35-0.5mm,过筛,孔径5mm。且不含有杂质。
(4) 顶棚墙面结构经检查验收合格,门窗安装位置准确。顶棚墙面给水、采暖管线套管已按要求安装,位置准确、牢固。
(5) 门窗散热器、窗台板做了必要的防护。
6.23.2 流水分段、工艺流程
(1) 流水分段:同墙体砌筑顺序,每段由下至上进行施工。
(2) 工艺流程:1) 顶棚抹灰:顶棚洒水→抄平找规矩→刮素浆做找平层→罩面→质检
2) 墙面抹灰:墙面洒水→吊垂直、贴饼充筋→抹找平层→做护角→罩面→质检
6.23.3 施工方法
(1) 顶棚抹灰:顶棚洒水润湿基层。按室内+0.5m 标高线找出顶棚水平线。刮素水泥浆掺108 胶10%一道。抹找平层,用刮板刮平,用木抹子压实抹光。底层六七成干后抹面层,用刮板刮平,用铁抹子压实压光。
(2) 墙面抹灰:墙面洒水湿润。吊垂直,贴饼充筋,抹找平层,用刮板刮平,木抹子压实抹平。按要求做门窗的水泥砂浆护角。待底层砂浆六七成干后,做罩面。用刮板刮平,用铁抹子压实压光。
6.23.4 质量要求
(1) 材料品种、质量必须符合设计要求。抹灰面、基层结合牢固,墙面不空鼓、裂纹、起砂。
(2) 顶棚平整,线角水平顺直。墙面垂直,表面平整,线角顺直。
地面贴面砖
(1) 面砖进场后,开箱检查颜色、规格、粘贴质量必须符合设计要求。
(2) 水泥:采用普通硅酸盐水泥PO32.5。应有出厂试验单。
(3)砂子:采用中砂,用筛孔5mm 过筛。
(4) 墙面抹灰做完,并已弹好+0.5m 水平线。穿过地面的套管已经做完,管洞已用细石混凝土堵严。设计有防水层时,完成蓄水试验,办完验收。
6.24.2 流水分段、工艺流程
(1) 流水分段:同墙体砌筑的划分。分段由下至上进行施工。
(2) 工艺流程:清理基层弹线→刷素水泥浆,做找平层→刮素水泥浆结合层贴面砖→擦缝→清理
6.24.3 施工方法
(1) 清理基层落地灰、杂物。将水平线弹在墙上。地面均匀洒水,挂线贴饼充筋,刷水泥素浆,抹水泥砂浆找平层,用木杠刮平,用木抹子拍实抹平。地漏处按要求做出泛水。
(2) 找平层抹好24h 后或抗压强度达到1.2MPa 后,挂线用1:1
水泥砂浆贴面砖。
(3) 贴完后,用干水泥粉擦缝,用抹布清净表面污物。完成后铺据沫洒水养护不少于7d,不准上人。
6.24.4 质量要求:基层、面层粘贴牢固,不空鼓,表面平整,线条顺直,坡度满足设计要求。
地面贴花岗岩
(1) 花岗岩进场后侧立放在室内,光面相对,背面垫松木条,板下垫木方。拆箱核对板材的品种、规格、数量必须符合设计要求,有裂纹、缺棱、掉角、翘曲或表面有缺陷的,应予以剔除。
(2) 水泥:采用普通硅酸盐水泥PO32.5,有出厂试验单。
(3) 砂子:采用中砂,用孔径5mm 筛过筛。墙面弹出+0.5m 水平线。室内抹灰,地面垫层,预埋在垫层内的管路均已完成。
6.25.2 流水分段,工艺流程
(1) 流水分段:同墙体砌筑的划分。
(2) 工艺流程:
基层处理→抄平→石板浸水→基层洒水,刷素水泥浆→做找平层→贴石板→灌缝→清理
6.25.3 施工方法
(1) 清净基层,挂平线,洒水润湿基层,贴饼充筋,刮素水泥浆,掺108 胶10%,做水泥砂浆找平层。
(2) 挂线铺1: 2 干硬性水泥砂浆结合层。放石板敲平检查,铺平砂浆结合空虚处,石板刮素水泥浆,再将石板用橡皮锤敲实,铺平。
(3) 铺完24h 后用素水泥浆擦缝,用棉纱团清净石板表面,盖锯沫洒水养护不少于7d。
(4) 踢脚板粘贴:用1:3 水泥砂浆找平,拉踢脚板上皮线刮2-3mm 厚加108 胶10%的素水泥浆粘贴。完成24h 用素水泥浆擦缝,用棉纱团擦净石板表面。
6.25.4 质量要求:基层、石板粘结牢固,不空鼓,平面平整,线条顺直。
卫生间防水工程
(1) 卷材、防水剂进场要有出厂合格证与试验单。卷材二次试验必须合格。
(2) 地面给排水、采暖管已经安装完毕,该有套管的已经装完。依据墙面+0.5m 标高线,找出地面水平线。
6.26.2 流水段划分、工艺流程
(1 )流水段划分:同墙体砌筑的划分。
(2) 工艺流程:
基层处理→挂线找规矩→刮素浆做找平层→铺贴卷材→灌水试验→质检
6.26.3 施工方法
(1) 清净地面灰渣,洒水润湿基层表面,挂线抄出水平线与流水坡度线,贴饼充筋,刮素水泥浆掺108 胶10%。铺掺硅质密实
剂3%的水泥砂浆找平层。用木杠刮平,用木抹子压实抹平。墙边、管边做成园角。
(2) 喷冷底子油一道,用乙炔气火焰喷烤卷材SBS,先做边角、管边,地漏处附加层的铺贴,再做面层大面积铺贴。卷材搭接长边不小于70mm,短边不少于100mm 压实粘牢。
(3) 贴完后,认真检查一次铺贴质量。合格后,再做蓄水试验48h,检查无渗漏,修补直到合格为止。
6.26.4 质量要求:垫层、卷材结合牢固,坡度符合设计要求,不渗漏。
屋面卷材隔汽与防水
(1) 三元乙丙防水卷材、粘结密封材料,必须有出厂合格证与试验单。
(2) 水泥砂浆找平层已经做完,经检查复合设计要求。
6.27.2 流水分段,工艺流程
(1) 流水分段:每区段由低到高分段进行施工。
(2) 工艺流程:
基层清理→涂刷基层处理剂→附加层施工→基层、卷材表面涂胶→晾胶→卷材铺贴→卷材收头粘结→卷材接头密封→蓄水试验→做保护层
6.27.3 施工方法
(1) 清理基层杂物,打扫干净。
(2) 配制聚胺脂底胶,甲、乙两种材料1:3 配合搅拌均,做冷
底子油涂刷一道,做到涂刷均匀,不漏刷。
(3) 附加层施工:阴阳角、管跟、水落管口等部位用自粘性密封胶或聚氨脂涂膜铺贴。
(4) 卷材涂胶:将卷材放在干净的基层上刷CX-404 胶,涂刷均匀,静置干燥10~20min。当指触不粘手后,用卷材筒胶朝外卷起。
(5) 基层表面涂胶:已涂的底胶干燥后,在其表面刷CX-404 胶,静置晾干后即铺贴卷材。
(6) 卷材铺贴:卷材平行屋脊,从屋檐向上铺,采用满粘法,搭接宽度80mm,端头接槎要错开250mm。卷材铺贴平整,不得出现皱折与空鼓。
(7) 排汽:每铺完一卷,用长把滚刷从一端横向用力滚压一次,排出卷材粘结的空气。
(8) 压实:排除空气后,用外包橡皮的300mm 长50kg 铁辊滚压一次。
(9) 卷材末端收头及封边嵌固用聚胺脂嵌缝膏封闭。密封材料固化后,刷聚胺脂涂料一道,再抹水泥砂浆压缝。卷材铺贴完后,经隐蔽检查,验收合格做蓄水试验48h,检查修补,直到不漏水为止。
6.27.4 质量要求:卷材铺贴平整,牢固,不漏水。
混凝土刚性屋面
(1) 水泥:采用普通硅酸盐水泥PO32.5,有出厂合格证与试验单。
(2) 钢材:有出厂合格证、试验单、二次试验合格。
(3) 密封胶:有出厂合格证与试验单。
(4) 砂子:采用中、粗砂,含泥量不大于5%,试验合格。
(5) 石子:采用卵石,粒径5~15mm。试验合格。
(6) 室内墙面已弹好+0.5m 水平线。
6.28.2 流水分段,工艺流程
(1) 流水分段:各区段由低到高分段进行施工。
(2) 工艺流程:
基层处理→洒水湿润→刷素水泥浆→放分格条→铺钢筋网→浇筑混凝土→压光→养护
6.28.3 施工方法
(1) 分格条及边模使用前用水浸泡,刷废机油或脱模剂一道。钢筋网分格点焊。
(2) 清净基层杂物,洒水湿润,刷素水泥浆一道,拉线找坡,放分格条与外模,要固定好。分格条的厚度,端缝宽度按施工验收规定执行。
(3) 放钢筋网,下部用砂浆块垫起。
(4) 分格浇筑混凝土,用平板式振捣器振实,用40-50kg 长600mm 滚筒碾压。
(5) 混凝土收水初凝后,取出分格条,用铁抹子第一次压光,并修补分格边缘缺损部分。
(6) 混凝土终凝后第二次压光。盖草袋洒水养护不少于14d。留试块标养和同条件养护,每段每层不少于两组。
(7) 混凝土达到强度后进行密封胶灌缝。
6.28.4 质量要求:混凝土强度达到设计要求,表面平整,分格顺直,混凝土密实。
网架工程
6.29.1 图纸设计:仅注明:网架应涂防火漆,达到耐水极限。屋面材料及防火保温应由厂家按实际情况进行设计施工,由建设单位确定。
6.29.2 施工准备:
(1) 设计一旦确定,网架进货材质配件必须有出厂合格证、试验单,并符合厂家设计要求。
(2) 网架支座的柱、墙面按设计要求预埋件。位置与标高必须准确,符合设计要求。
(3) 防火漆要有出厂合格证与试验单。
(4) 场内排设满堂红架子和平台,为网架施工提供方便。
6.29.3 施工方法:按设计图纸要求及专业施工操作规程进行组装。
6.29.4 质量要求:
(1)网架与附件材质必须符合要求。
(2)网架安装平整,连接牢固、平整。
模板工程
(1)结构形式:混凝土板厚120mm,木模板,木支柱
(2)板
1.)荷载
模板自重0.3×1.2=0.36kN/m2
混凝土板自重0.12×24×1.2=3.456 kN/m2
钢筋自重0.12×1.1×1.2=0.158 kN/m2
q2=5.4 kN/m2
施工荷载2.5×1.4=3.5kN/m2
q1=5.4+3.5=8.9 kN/m2
集中荷载p=2.5 ×1.4=3.5kN
2) 内力按两跨连梁计算
情况1 M1=0.125q1l2
=0.125×8.9×0.452=0.225 kN/m Q1=0.625q1L = 0.625×8.9×0.45=2.503 kN
情况2 M2=0.125 q1l2+0.188pl
=0.125×5.4×0.452+0.188×3.5×0.45
=0.433 kN/m
Q2=0.625 q2l+0.688P =0.625×5.4×0.45+0.688×3.5 =3.927 kN
取M=0.433 kN/m Q=3.927 kN
3) 断面胶合板 -15×1000
断面系数W=bh2/6=1000×152 /6=37.5×103 mm3
惯性距J= bh3/12=1000×153 /12=28.1×104 mm4
木材:红皮云杉TCB2
fw=13×1.3×0.9=15.21N/mm2
fc=10×1.3×0.9×1.15=13.46 N/mm2
fv=1.4×1.3×0.9=1.64 N/mm2
E=9000×0.85=7650 N/mm2
抗弯σ=M/W=0.433×106/37.5×103=11.55 < [15.21] 抗剪τ=3Q/2bh=3×3927/2×1000×15=0.39 <[1.64] 挠度q`=0.3+0.1×24+0.12×1.1=3.312 kN/m2
f =0.521q`l4/100EJ =0.521×3.312×4504/100×7650×28.1×104 =0.33<[f] =450/250 =1.8mm 可以
(3) 小方 90×60@450 L=1000
1. 荷载模板自重 0.3×1.2=0.36kN/m2 混凝土板自重 0.12×24×1.2=3.456 kN/m2 钢筋自重 0.12×1.1×1.2=0.158kN/m2
q2=0.45×5.4=2.43 kN/m2 施工荷载 p1=1.5×1.4×0.45=0.945 kN/m q1=2.43+0.945=3.375 kN/m 集中荷载 p=2.5×1.4×0.45=1.575 kN 2) 内力按两跨连梁计算情况1 M1=0.125 q1l2=0.125×3.375×12=0.422kN/m
Q1=0.625 q1l= 0.625×3.375×1=2.109 kN 情况2 M2=0.125 q2l2+0.188pl =0.125×2.43×12+0.188×1.575×1=0.600 kN/m Q2=0.625 q2l+0.688P
=0.625×2.43×1+0.688×1.575=2.602 kN
取M=0.600kN/m Q=2.602 kN
3) 断面 90×60@450 L=1000
3
W=bh2/6=60×902 /6=81×103 mm
4
J= bh3/12=60×903 /12=36.45×105 mm抗弯σ=M/W=0.6×106/81×103=7.41 < [15.21] 抗剪τ=3Q/2bh=3×2602/2×60×90=0.72 <[1.64] 挠度q`=(0.3+0.12×24+0.12×1.1)×0.45=1.490 kN/m
f =0.521q`l4/100EJ =0.521×1.49×10004/100×7650×36.45×105 =0.28<[f] =1000/250 =4mm 可以
(4) 大方 100×100@1000 L=1500mm 1) 荷载模板自重 0.3×1.2=0.36kN/m 混凝土板自重 0.12×24×1.2=3.456 kN/m 钢筋自重 0.12×1.1×1.2=1.584 kN/m
q=5.4 kN/m
施工荷载 p=1×1.4=1.4 kN/m
q=5.4+1.4=6.8 kN/m
2) 内力按三跨连梁计算M=0.1 ql2=0.1×6.8×1.52=1.53 kN/m Q=0.6ql= 0.6×6.8×1.5=6.12 kN 3) 断面 100×100 W=bh2/6=100×1002 /6=16.7×104 mm3 J= bh3/12=100×1003 /12=83.3×105 mm4 抗弯σ=M/W=1.53×106/16.7×104=9.16 < [15.21] 抗剪τ=3Q/2bh=3×6120/2×100×100=0.92 <[1.64] 挠度q`=0.3+0.12×24+0.12×1.1=3.312 kN/m
f=0.677q`l4/100EJ =0.677×3.312×15004/100×7650×83.3×105 =1.78<[f] =1500/250 =6mm 可以
(5)立柱1) 荷载N=6.8×1.5=10.2kN 2) 断面φ70 中间加水平支撑一道H=3.6m L=1.8m
i=0.25d=0.25×70=17.5 λ=l/i=1800/17.5=103 φ=0.264 A=0.785d2=0.785×702=38.47×102 抗压σ=N/ψA=10.2×103/0.264×38.47×102 =10.04[13.46] 可以
(6)附图
胶合板-15
![]()
立柱D70@1500
水平支撑一道
图6-6 模板平面图
6.30.2 混凝土柱
(1)结构形式 500×500 立柱H=2.56m
(2)板胶合板 -18 1) 荷载
新浇混凝土侧压力t=20℃, v=2m/h
t0=200/t+15=200/20+15=5.71
F=0.22rct0β1β2v0.5
=0.22×24×5.71×1×1×2×0.5 =42.64
F=γCH=24×2.56=61.44
取F=42.64kN/m2
倾到混凝土侧压力 2kN/m2
计算荷载
q=1.2×42.64+1.4×2×0.2=53.97kN/m q`=42.64kN/m
2) 内力:按简支模板计算L=310mm 弯矩M=0.125ql2=0.125×53.97×0.312=0.648kN/m 剪力Q=0.5ql=0.5×53.97×0.31=8.365kN 3) 断面 20×1000
W=bh2/6=1000×202/6=66.67×103
J=bh3/12=1000×203/12=66.67×104 抗弯σ=M/W=0.648×106/66.67×103=9.71<[15.21] 抗剪τ=3Q/2bh
=3×8365/(2×1000×20)=0.63 <[1.64]
挠度f=5q`l4/384EJ =5×42.64×3104/(384×7650×66.67×104) =1.00mm<[f]=310/250=1.24
(3) 立方 90×60 @ 250,L=0.50m 1) 荷载q=53.97×0.25=13.493kN/m
q`=42.64×0.25=10.66kN/m 2) 内力:按四跨连梁计算。M=0.107ql2=0.107×13.493×0.52=0.361kN/m Q=0.607ql=0.607×13.493×0.5=4.095kN 3) 断面 90×60 W=81×103 J=36.45×105 抗弯σ=M/W=0.361×106/(81×103)=4.46<[15.21] 抗剪τ=3Q/2bh=3×4095/(2×60×90)=1.14 <[1.64] 挠度f=0.632q`l4/(100EJ)
=0.632×10.66×5004/(100×7650×36.45×105) =0.15mm<[f]=500/250=2.0mm 可以
(4)横箍 [ 83×43×5 @600 L=750mm
1) 荷载
均布荷载q =53.97 ×0.5/0.7=18.89kN/m
q`=42.64×0.5/0.7=14.924kN/m
拉力N=53.97×0.25×0.65=8.770kN/m
2) 内力:按简支梁计算L=700mm
M=0.125ql2=0.125×18.890×0.72=1.157kN/m
Q=0.5qL=0.5×18.890×0.7=6.612kN
3) 断面 [83×43×5
A=1024 J=101.3×104 W=25.3×103
拉弯σ=N/A+M/W
=8.770×103/1024+1.157×106/(25.3×103)
=54.30<[125]
抗剪b=5 S=43×8×36+5×32×16=14.9×103 τ=QS/Jb=6.612×103×14.9×103/(101.3×104×5) =17.77<[125]
挠度 f=5q`l4/(384EJ) =5×14.924×7004/(384×206×103×101.3×104) =0.22<700/500=1.4mm 可以
(5)附图6-7

图6-7 柱模
6.30.3 混凝土梁
(1)结构断面350×800 胶合板,木支撑
(2)底板1) 荷载模板自重 0.5×0.35×1.2=0.21kN/m 混凝土梁自重 0.35×0.80×24×1.2=8.06kN/m 钢筋自重 0.35×0.80×1.5×1.2=0.50kN/m
q=8.77 kN/m 振捣混凝土产生的荷载 2×0.35×1.4=0.98kN/m 计算荷载q=8.77+0.98=9.75kN/m 2) 内力: 按两跨连梁计算L=450mm M=0.125ql2=0.125×9.75×0.452=0.247kN/m Q=0.625ql=0.625×9.75×0.45=2.742kN3) 断面: -18×450 W=bh2/6=450×182/6=24.3×103 J=bh2/12=450×183/12=21.87×104
抗弯σ=M/W=0.247×106/(24.3×103)=10.17<[15.21]
抗剪τ=QS/2bh=3×2742/(2×450×18)=0.51<[1.64]
q`=0.5×0.35+0.35×0.8×24+0.35×0.8×1.5
=7.315kN/m
挠度f=0.521q`l4/(100EJ)
=0.521×7.315×4504/(100×7650×21.87×104)
=0.94mm<[f]=450/250=1.8mm 可
(3)横方 90×60 @450 L=450mm 1) 荷载q =9.75×0.45/0.35=12.54kN/m q`=7.315×0.45/0.35 =9.41kN/m 2) 内力按简支梁计算 M=0.125ql2=0.125×12.54×0.452=0.317kN/m Q=0.5ql=0.5×12.54×0.45=2.812kN3) 断面 90×60 W=81×103 J=36.45×105 抗弯σ= M/W=0.317×106/81×103=3.91<[15.21] 抗剪τ=3Q/Jb=3×2812/2×60×90=0.78<[1.64] 挠度f=5q`l4/(384EJ)
=5×7.315×4504/384×7650×36.45×105 =0.14<[f]=450/250=1.8mm 可
(4)底顺方 2-90×60 L=1200mm
1) 荷载
67
模板自重 0.5×1.95×1.2=1.17kN/m 混凝土梁自重 0.35×0.80×24×1.2=8.06 kN/m 钢筋自重 0.35×0.80×1.5×1.2=0.5 kN/m
q=9.73kN/m 振捣混凝土产生的荷载 2×0.35×1.4=0.98kN/m 计算荷载q=9.73+0.98=10.71kN/m 2) 内力:按三跨连梁计算M=0.1ql2=0.1×10.71×1.22=1.54kN/m Q=0.6ql=0.6×10.71×1.2=7.711kN 3) 断面 2-90×60 W=bh2/6=120×902/6=16.2×104 J=bh3/12=120×903/12=72.9×105 抗弯σ=M/W=1.542×106/(16.2×104)=9.52<[15.21] 抗剪τ=3Q/2bh=3×7711/(2×120×90)=1.07< [1.64] 挠度q`=0.5×1.95+0.35×0.8×24+0.35×0.8×1.5
=8.115kN/m f=0.677q`l4/100EJ =0.677×8.815×12004/100×7650×72.9×105 =2.2<[f] =1200/250=4.8mm 可以
(5)三角架顶梁1) 荷载N=10.71×1.2=12.852kN 2) 内力按简支梁计算L=450mm M=0.25pl=0.25×12.852×0.45=1.446kN/m
Q=0.5P=0.5×12.852=6.426kN 3) 断面: 100×100 W=bh2/6=100×1002/6=16.7×104 J=bh3/12=100×1003/12=83.33×105 抗弯σ=M/W=1.446×106/16.7×104=8.66<[15.21] 抗剪τ=3Q/2bh=3×6426/2×100×100=0.97< [1.64] 挠度N`=9.73×1.2=11.68kN
f=N`l3/48EJ
=11.68×103×4503/48×7650×83.33×105
=0.35<[f]=450/250=1.8mm 可以
(6)柱1) 荷载N=12.852kN 2) 断面木立柱φ75 A = 0.785d2=0.785×752=44.16×102 i=0.25d=0.25×75=18.75 H=3.6m 中间加水平支撑一道L=1.8m λ=l/i=1800/18.75=96 ψ=0.304 抗压σ=N/ψA=12.852×103/(0.304×44.16×102)
=9.57<[13.46] 可以
(7)侧板胶合板厚18 mm L=450mm 1) 荷载新浇混凝土侧压力:
t=20℃ V=1m/h
69
tO=200/t+15=200/20+15=5.71 F=0.22γO tOβ1β2v0.5
=0.22×24×5.71×1×1×1×0.5=15.704 F=γO H=24×0.75=18 取F=18kN/m2 h=F/γO =18/24=0.75m 振捣混凝土产生的荷载 4kN/m2 计算荷载q = (18×1.2/2+4×1.4) ×0.8=13.12kN/m q`=18/2 =9kN/m 2) 内力按两跨板计算L=0.45m M=0.125ql2=0.125×13.12×0.452=0.332kN/m Q=0.625ql=0.625×13.12×0.45=3.69kN3) 断面 -18×800 W=bh2/6=800×182/6=43.2×103
J=bh3/12=800×183/12=38.88×104 抗弯σ=M/W=0.332×106/43.2×103=7.69<[15.21] 抗剪τ=3Q/2bh=3×3690/2×800×18=0.38< [1.64] 挠度f=0.521q`l4/100EJ
=0.521×9×4504/100×7650×36.46×104 =0.69<[f] =450/250=1.8mm 可以
(8)立方 60×40 @450 L=400m 1) 荷载q =13.12×0.45/0.8=6.82kN/m
q`=9×0.45/0.8=5.06kN/m 2) 内力按两跨连梁计算L=400 M=0.125ql2=0.125×6.82×0.42=0.136kN/m Q=0.625ql=0.625×6.82×0.4=1.705kN3) 断面 60×40 W=24×103 J=72×105 抗弯σ=M/W=0.136×106/24×103=5.57<[15.21] 抗剪τ=3Q/2bh=3×1705/2×40×60=1.07< [1.64] 挠度f=0.521q`l4/100EJ
=0.521×5.06×4004/384×7650×72×105 =0.01<[f] =400/250=1.60mm 可
(9)顺方 3-90×60 L=1000 1) 荷载q=16.4kN/m q`=9kN/m 2) 内力按三跨连梁计算M=0.1ql2=0.1×13.12×12=1.312 kN/m Q=0.6ql=0.6×16.4×1=9.84kN 3) 断面 3-90×60 W=bh2/6=180×902/6=24.3×104
J=bh3/12=180×903/12=10.94×106 抗弯σ=M/W=1.312×106/24.3×104=5.4<[15.21] 抗剪τ=3Q/2bh=3×9840/2×180×90=0.91< [1.64] 挠度f =0.521q`l4/100EJ
=0.521×9×10004/100×7650×10.94×106
=0.56<[f]=1000/250=4mm 可拉结螺栓N=13.12/2=6.56kNF=N/F=6.56×103/170=38.59mm2 选用螺栓φ10@1000
(10)附图6-8
立方胶合板-18螺栓ф10
顺方3-90X60
横方胶合板-18
顺方
立柱D70
水平支撑一道
图6-8 梁模示意图
主要材料计划(见表7-1)
主要材料计划表表7-1
| 材料名称 | 规格 | 单位 | 数量 |
| 水泥 | PO32.5 PO42.5 | t | |
| 红砖 | 240×115×53 | 千块 | |
| 空心砖 | 240×240×115 | 千块 | |
| 生石灰 | t | ||
| 砾石 | 10mm | m3 | |
| 砾石 | 20mm | m3 | |
| 砾石 | 40 | m3 | |
| 毛石 | m3 | ||
| 碎石 | 15mm | m3 | |
| 碎石 | 20mm | m3 | |
| 砂子 | 中砂 | m3 | |
| 铁线 | 8 号 | t | |
| 铁线 | 22 号 | t | |
| 电焊条 | t | ||
| 涂料 | 106 | t | |
| 泡沫苯板 | m3 | ||
| 模板、支撑材料 | m3 | ||
| 钢筋 | Ⅰ级 | t | |
| 钢筋 | Ⅱ级 | t | |
| 玻璃 | 4mm | m2 | |
| 地砖 | m2 | ||
| 外墙面砖 | 150×75 | 千块 | |
| 花岗岩面砖 | m2 | ||
| 内墙面砖 | m2 | ||
| 仿蘑菇石外墙砖 | |||
| 复合地板 | |||
| 外墙漆 | |||
拟投入本工程的主要施工机械设备表(见表8-1)
拟投入本工程的主要施工机械设备表 表8-1
| 序 号 | 机械或设备 名称 | 规格 型号 | 数 量 | 国别 产地 | 制造 年份 | 额定功 率(kW) | 生产能力 | 用于施 工部位 | 备 注 |
| 1 | 塔式起重机 | QTZ40 | 4 | 安徽 | 2000年 | 25.9 | 0.9t/40m | 基础、主体、装饰 | |
| 2 | 搅拌机 | JZG350 | 6 | 扬州 | 2002年 | 6.05 | 60m3/h | 基础、主体、装饰 | |
| 3 | 挖掘机 | CAT-330 | 2 | 美国 | 2001年 | 342 | 1.2m3/min | 基础 | |
| 4 | 推土机 | 红旗-100 | 2 | 四川 | 1998年 | 118 | 基础 | ||
| 5 | 卡玛斯 | kmS-10 | 8 | 苏联 | 2002年 | 474 | 10t | 基础 | |
| 6 | 钢筋切断机 | GJ-40-B | 2 | 山东 | 2000年 | 7 | 32次/min | 基础 主体 | |
| 7 | 钢筋调直机 | GJB-8/4 | 2 | 山东 | 1998年 | 5.5 | 30-40m/min | 基础 主体 | |
| 8 | 钢筋弯曲机 | WG-40 | 2 | 山东 | 2000年 | 2.8 | 3.7-14r/min | 基础 主体 | |
| 9 | 元 锯 | D500 | 2 | 牡丹江 | 1999年 | 3 | 基础 主体 | ||
| 10 | 潜水泵 | QY-7 | 6 | 南京 | 2001年 | 2.2 | 基础 | ||
| 11 | 插入式振捣棒 | HZ6-30 | 6 | 南京 | 2002年 | 1.1 | 基础 主体 | ||
| 12 | 平板式振捣器 | DZ-50 | 4 | 临汾 | 2002年 | 1.1 | 基础 主体 | ||
| 13 | 水泥罐 | 15t | 4 | 山东 | 2001年 | 基础、主体、装饰 | |||
| 14 | 蛙式打夯机 | HW-60 | 2 | 河南 | 1999年 | 2.2 | 160次/min | 基础 | |
| 15 | 电焊机 | BX3-300-2 | 1 | 牡丹江 | 1999年 | 23.4 | 基础、主体、装饰 | ||
| 16 | 电焊机 | BX3-120-2 | 1 | 牡丹江 | 1999年 | 14.5 | 基础、主体、装饰 | ||
| 17 | 自动电渣压力焊 | UN1-100 | 6 | 牡丹江 | 2002年 | 50 | 1000mm2 | 主体 | |
| 18 | 大水箱 | 3m3 | 4 | 自制 | 2001年 | 基础、主体、装饰 | |||
| 19 | 脚手板 | 70 0 | 牡丹江 | 2002年 | 主体 装饰 | ||||
| 20 | 单轮手推车 | 20 | 牡丹江 | 2002年 | 基础、主体、装饰 | ||||
| 21 | 双轮手推车 | 15 | 牡丹江 | 2002年 | 基础、主体、装饰 | ||||
| 22 | 电子秤 | 2t | 6 | 牡丹江 | 2002年 | 基础、主体、装饰 |
主要劳动力计划(见表9-1)
主要劳动力计划表表9-1
| 工种 | 日期 | ||||||
| 2003.8 | 2003.9 | 2003.10 | 2004.4 | 2004.5 | 2004.6 | 2004.7 | |
| 木工 | 60 | 80 | 80 | 40 | 30 | 40 | 20 |
| 钢筋工 | 40 | 80 | 80 | 10 | 5 | ||
| 混凝土工 | 40 | 50 | 50 | ||||
| 瓦工 | 60 | 60 | 10 | 10 | 10 | 10 | |
| 架子工 | 10 | 20 | 20 | 10 | |||
| 抹灰工 | 120 | 120 | 120 | 40 | |||
| 油工 | 10 | 40 | 10 | ||||
| 机械工 | 20 | 20 | 20 | 10 | 10 | 10 | 6 |
| 电焊工 | 8 | 16 | 16 | 10 | 10 | 10 | 5 |
| 电工 | 4 | 8 | 8 | 20 | 40 | 40 | 40 |
| 水暖工 | 10 | 10 | 10 | 10 | 40 | 40 | 40 |
| 力工 | 100 | 80 | 80 | 50 | 50 | 50 | 50 |
质量保证措施
建筑施工中搞好工程质量是企业生存与发展的重要工作之一。要求做好施工准备,强化施工过程的管理,严格质量检查,确保各项工程质量达到合格,做到用户满意。
建立质量保证体系

图11-1 质量保证体系
一检:公司对单位工程进行评定二检:项目经理部进行质量检查评定验收三检:施工班组对分项工程检查验收
搞好施工前的准备
11.2.1 认真组织各专业管理人员学习施工图纸,地质资料,搞清设计意图,解决图纸错漏、各专业图纸设计交叉的矛盾,设计不合理及材料代用等问题,做好记录,提交监理、设计单位审定,由设计单位提出书面变更通知单。
11.2.2 编制工程施工预算,施工组织设计,确定各项工程的施工工艺流程与施工方法、人员、设备安排。
11.2.3 对进场材料、构件都要按规定取得出厂合格证、试验单,需做二次试验的,及时取样送检,试验合格后方可用于工程上。
11.2.4 钢筋、钢构件的焊接,操作人员要有焊工培训合格证,操作前,做焊件试验,试验合格后,才能参加施工操作。
11.2.5 建立测量小组,配齐工作人员。组长由工程师任职,建筑物的轴线位置与标高测量完成后,测量组长要亲自参加复查,书面交给监理部门检查验收,不得草率一次成活。
11.2.6 严格控制设计变更,材料代用。凡工程需做变更与材料代用,一律由设计部门提出正式通知单,方可进行变更和代用。
11.2.7 依据工程设计,提出混凝土、砂浆的种类和强度等级,将进场的材料送检测站,委托试验,取得配比单,方可进行工程施工。不得套用其他的配比施工。
11.2.8 工地配备标准养护箱、回弹仪、坍落度桶各一个。配备混凝土、砂浆试模若干组。指定专人负责取样送试,制作试块,做好试块的养护与试压工作。
11.3 加强施工过程中的管理
11.3.1 分项工程施工前做好技术交底。使每个操作人员都能了解工程的施工工艺,操作方法,质量要求,按设计要求和施工操作规范进行施工。做到一次成活,不返工。
11.3.2 施工班组分项工程的施工,实行样板制,挂牌制,按工艺卡进行施工。严格质量检查制、自检、互检、交接检制,不合格的一定要重做。确保每道工序的施工质量。
11.3.3 地槽、地坑、地基挖掘好后,要逐个检查验收。挖掘的轴线尺寸,断面尺寸,标高和地质情况必须符合设计要求,地质不符合要求的,要提出报告,交监理、设计部门提出处理意见,按设计部门提出的变更单进行处理。
11.3.4 进场的构配件,要有出厂合格证、试验单。进场后逐个进行检查:品种、规格、质量、数量,必须符合设计要求。质量规格不符和局部有损坏的,提交设计部门鉴定,确定处理意见,决定能否使用。
11.3.5 混凝土与砂浆拌制前,按检测站提供的配比单,依据现场材料的含水率制定施工配比单和一次搅拌各种材料数量。投料设专人看管过称与材料的增减。
11.3.6 钢筋的焊接,竖向粗钢筋采用电渣压力焊和水平粗钢筋采用直螺纹连接,焊接严格按专业操作规程和图纸设计要求施
焊,完成后,取样送试,焊接质量必须合格。
11.3.7 钢筋绑扎接头位置和搭接长度,必须符合图纸设计要求和施工规范要求。板受力钢筋用砂浆块垫起,上层筋用铁马登架起。梁的钢筋用φ25 短钢筋垫起。柱子纵向钢筋,四角用塑料卡子固定,控制钢筋混凝土保护层的厚度。
11.3.8 钢模板用前必须清除表面、侧面的杂物,刷隔离剂一道。U 形卡、L 形卡按要求设置。支模时,模板不得空放,防止模板变形或缝隙充满水泥浆,造成脱模困难,影响产品质量。
11.3.9 木模板、胶合板严格控制产品质量,材料品种、质量、规格尺寸、制作质量必须符合产品质量要求。做到保证混凝土质量,能多次周转使用。依据工程结构不同类别进行模板设计,数量大的制成定型模板。做到可靠、经济,又能保证混凝土的施工质量。
11.3.10 混凝土浇筑完12h 后,盖草袋或包塑料薄膜养护,不少于7d。
11.3.11 混凝土柱,为了保证位置,混凝土浇筑后,再做一次垂直度检查,做一次纠正,防止柱子上部移位。
11.3.12 混凝土柱浇筑前,铺一层与混凝土同强度等级的水泥砂浆一道,厚5-10cm 再浇混凝土,防止柱底出现空洞蜂窝麻面。
11.3.13 模板制作,面板必须刷隔离剂一道。混凝土浇筑前浇水湿润,防止混凝土粘连,脱模时,结构表面出现麻面。
11.3.14 砖墙砌筑,要求抄平,立线杆,挂外线或双面挂线,采用三一砌砖法操作,确保墙面横平竖直,灰缝饱满,灰浆饱满,
组砌合理,接槎与拉结筋设计符合设计要求。
11.3.15 屋面与卫生间防水施工。找平层按要求抹灰,水平立面交接处,管口处做园角,地面找好流水坡度。防水层按施工操作规程做,铺粘,接好缝。为了避免多次试验,防水层完成后要逐个进行检查,认定合格后,再进行淋水或闭水试验。合格后做好保护,防止损坏。
本工程采用的具体措施
(1)模板施工前,必须进行设计,保证模板结构的强度,刚度与稳定。配板合理,装拆方便。
(2)模板选择,种类与规格必须符合设计要求。
(3)模板制作加工要精细,尺寸准确、方正,板边顺直。
(4)支模时,立柱下的地面要夯实。梁下立柱底面须垫大方。立柱纵横立柱,按设计要求进行拉结,确保立柱不下沉,支架结构的稳定。柱下加对头楔,随时调整模板的高度。
(5)梁板模板安装,要按轴线、标高线找正,确保结构位置标高准确。
模板安装做到尺寸准确,接缝严密。安装误差满足施工规范要求。确保结构、尺寸、标高准确,不漏浆。梁柱侧模支顶牢固,防止倾斜与胀模。
(6)混凝土施工中,下部设专人看护,发现问题及时采取补救措施。
(7)模板加工前刷隔离剂,便于模板拆除,混凝土结构表面整洁。
11.4.2 钢筋工程
(1)进场的钢材除了有出厂合格证和试验单外,须进行二次试验,合格后方可用于施工。
(2)应用新技术代换钢材,须经设计部门核定同意方可用于工程上,代用钢材必须有试验单,二次试验合格后方准用于施工。
(3)进场的钢材有锈蚀、油泥必须清净,保证钢筋的使用要求。
(4)钢筋加工,按设计图纸操作规程下料、焊接和弯折。
(5)钢筋绑扎要按设计要求进行,梁、板上划线,按线绑扎。绑扎牢固,上部筋用铁马登支起,确保钢筋的设计位置。
(6)安装时梁下,两层筋中间加短钢筋垫起,板筋下垫砂浆块,确保钢筋的位置,不漏筋。
11.4.3 混凝土工程
(1)进场的水泥要有出厂合格证、试验单。砂子、石子、试验材质必须合格。
(2)混凝土配合比,由市检测站提供,随时测定砂、石的含水率及时调整混凝土的施工配合比。施工中经常检查混凝土的和易性、坍落度,保证混凝土的拌合质量。
(3)楼板混凝土施工时,施工人员不得将料斗放在模板上或人站在上层钢筋上操作。混凝土振捣时不得碰撞钢筋,确保钢筋位置准确,不漏筋。
(4)强度等级不同的混凝土,要向操作人员说清楚,料斗上做明显的标识,防止弄错。
(5)混凝土振捣时,采用快插、慢拨的方法,做到振捣均匀,不漏振,也不过振。防止混凝土出现蜂窝麻面孔洞。
(6)每浇筑一段,随时用振捣器振实,拍平,保证上表面的平整。
11.4.4 砌筑工程
(1)砖进场后检查砖的质量,、规格尺寸、翘曲、裂纹等必须符合设计要求,按规定送试,合格后方可用于施工。
(2)砂浆配比由市检测站下达,随时检查砂子的含水率,制定施工配比。砂浆中掺粉煤灰,试验必须合格。
(3)投料采用电子秤计量。确保配比准确。
(4)拌合的砂浆3h 以内用完,不得使用过夜砂浆。
(5)砌筑时一砖墙单面挂线,一砖半以上的墙挂双线。施工采用“三一”砌砖法操作,确保墙面平整,灰浆饱满。
(6)砖砌筑前提前一天浇水,严禁干砖上墙,确保砌体的质量。
11.4.5 门窗安装
(1)门窗进场要有出厂合格证,安装前进行全面检查种类规格、附件、保护膜必须符合设计要求。
(2)抄平测量找出洞口位置,修正好洞口,按操作规程安装,临时固定,吊正,发泡填框与墙间缝隙,加密封膏,安装五金配件,清理表面。每项都必须按操作规程进行。事先做样板检查合格后,再大面铺开,确保安装质量。
11.4.6 顶棚、墙面抹灰
(1) 顶棚:抄平找出顶棚水平线,清净基层,刮素水泥浆,做找平层与面层,找平层用木抹子抹,刮板刮平面层用木抹子抹,刮板刮平,铁抹子压光。抹灰时从四边向中间抹,确保顶棚抹灰面平整线条顺直。
(2)墙面抹灰,清净基层,吊垂直贴饼充筋,做找平层,再做面层,操作方法同顶棚。做好门窗护角。做到墙面平整墙面垂直。门窗、窗台板、散热器做好保护,教育操作人员,尊重别人的劳动成果,减少损失。
(3)砂浆按体积比配料,设专人管理,确保抹灰砂浆质量,防止随便加水泥引起抹面开裂。
11.4.7 外墙贴面砖
(1)面砖进场要有出厂合格证、试验单。进场后开箱检查,种类、规格、颜色,吸水率必须符合设计要求。
(2)水泥要有出厂化验单,砂子试验必须合格。
砂浆配比执行体积比,设专人管理。
(3)由上到下吊垂直线,抄平找出墙面的四角,洞边的边线和洞口的水平线。从上到下做墙面的找平层。
(4)分层弹线由下到上摆砖,刮水泥砂浆贴面砖。敲实附线,拨正。做到表面平整,灰缝顺直粘贴牢固。
(5)面砖用前必须用水浸泡两天,阴干,防止日晒砖面脱落。
11.4.8 回填土
(1)基础周边的土,排净积水,分层用铁夯或蛙式打夯机夯实,尤其是边角部分一定要仔细夯实。大面积回填土,可用推土机推碾,再用蛙式夯机夯实。采用环刀法分层检测夯实的密实度合格
率必须达到90%以上。
(2)用于回填的土要用防雨布盖好,防止雨淋含水率过高,无法使用。
(3)暖气沟施工挖槽后,检查地基土的密实度。不均匀时,再进行一次夯实,防止沟墙下沉。
成品保护
11.5.2 制定成品保护制度,做好交接检工作,对施工中损坏的部门,执行罚款处理。
11.5.3 装饰阶段,设专人看管,防止损坏。
11.5.4 对已完的工程,采取一些必要的防护措施加以保护。
内业档案管理
11.6.1 收集整理好建设单位提供的设计图纸,地质资料,设计变更等技术资料,整理归档。
11.6.2 施工中,不断收集施工资料,设计变更,技术经济签证,抄测记录,隐蔽工程检查记录, 质量检查记录,材料试验单,试块试压报告等,分类装袋保管。
11.6.3 工程竣工后,将全部资料整理,装订成册,交建设单位归档。
安全生产、防火保证措施
建筑施工,通常是多人在一个建筑工地露天多层次作业,施工又常常受天气的影响,作业条件复杂,做到安全生产并非容易。施工过程中,要做好安全生产教育,场内搭设必要的安全防护设施,加强生产安全管理,确保施工安全,不发生安全事故,杜绝重大伤亡事故。
做好施工准备工作
12.1.1 进入现场的全体人员,均要参加安全生产教育,对施工的工程有个全面了解,安全生产需要注意的事项和要求。做到有书面签字手续。
12.1.2 分项工程施工前,必须接受技术安全交底,做到有书面签字手续。
12.1.3 特殊工种:机械工、电工、架子工、起重工、电焊工必须接受安全培训,考试合格,持证上岗。
12.1.4 从事高空作业人员,必须经过体格检查,检查合格后方可上岗工作。
12.1.5 现场搭设的临时房屋,架设的临时电气线路,要做到施工前有设计图纸,施工按图进行,完成后,由项目技术负责人组织检查验收。合格后方可投入使用。
12.1.6 现场使用的机电设备,均实行一机一闸一保护。潮湿的场所,使用36V 以下的安全电压。电器设备做重复接地,安装漏电保护器,要定期检查外壳绝缘情况。
12.1.7 起重机、提升架设置避雷,行程限位器。
12.1.8 各类脚手架、活动架的搭设,应按规定执行,完成后,经安全员检查验收,合格后方可投入使用。
12.1.9 建筑物结构上的各类洞口,凡直径超过20cm 的一律用钢筋网、安全网或木板封闭。
12.1.10 现场主要出入通道,作业棚要搭设安全棚,确保工作人员出入、生产操作的安全。
12.1.11 深坑周边要设警示灯标志,防止夜间误入发生安全事故。
12.1.12 脚手架外围,首层顶板处要搭设水平安全网,宽6m 以上。每隔三层增设水平安全网一道,架子外侧立面满挂密目安全网。
12.1.13 建立消防责任制,划分责任区,指定专人负责。
12.1.14 备用一套消防设施与工具,经常检查,防止丢失、损坏。做到火灾发生,能有效使用。
加强施工过程管理工作
12.2.1 进入现场的工作人员,均要戴安全帽,高空作业配用安全带,不允许穿拖鞋、高跟鞋,保证袖口、裤角紧身利索。
12.2.2 对未按规定进入现场的人员,安全员有权清出现场。
12.2.3 施工现场操作人员工作时,必须遵守时间,听从指挥,不得打闹,也不得饮酒参加生产。对违章者,停止工作,严重者解除劳务合同。
12.2.4 现场机电设备,设专人操作与维护保养,其他人员不得随便动用。防止机械安全事故的发生。
12.2.5 现场电气线路设专人管理、维护,其他人员不得私自改线、乱拉、乱接,防止触电事故的发生。
12.2.6 地槽、地坑土方开挖,要依据地质情况,和施工操作规程放坡,不能按要求放坡处,应加支撑。槽、坑边1m 以内不准堆土,防止塌方伤人。
12.2.7 高空从事木方、模板、脚手杆、钢筋等散状物运输,必须捆绑牢固,并保证平衡方可吊运。烧结普通砖,空心砖等零散材料必须用笼子吊运。
12.2.8 建筑垃圾的清理,严禁高空从楼口往下抛洒,必须装入大灰槽内,用起重机运下。
12.2.9 外加剂,做好保管,发放与回收工作,按工长提出的领料单供料,按工长签署的退料单返库。防止中毒事故的发生。
12.2.10 每月由项目经理组织一次现场的安全检查,发生问题制定整改措施,指派专人负责按期完成。
12.2.11 制定安全防范制度,现场设更夫两名,看护好现场,做好日常防护交接班和检查工作。
12.2.12 现场设吸烟室,其他地方严禁吸烟。
12.2.13 现场生火,要向安全员提出申报。工作中设专人管理,不准在用火点周围堆放易燃物品,不准在电源附近、电线杆下设火点,用完及时熄灭。电焊、气焊作业,要注意远离易燃物品。
本工程具体安全防火措施
12.3.1 土方工程 :土方开挖按规定的30%放坡,挖出的土堆
在地坑边沿1m 以外,并及时运走。挖土时,前后操作人员之间的距离不应小于2-3m,堆土要距坑边1m 以外,高度不得超过1.5m。挖土时要注意土壁的稳定性,发现有裂缝或倾塌可能时,操作人员要立即离开并及时处理。
12.3.2 钢筋工程:绑扎钢筋时的钢丝头向构件里弯折,以免划破手脚。钢筋及半成品应按规格品种堆放整齐,制作场地要平整,工作台要稳固。展开盘圆钢筋要一端卡牢、坚实牢固,切断钢筋要先用脚踏后再切。钢筋设备要按规范安装,实行一机一闸一保护,使用前认真检查,严禁带病运行。利用弯曲机时,手不允许放在两轴之间,以防伤手。进入现场必须正确使用“三宝”用品,遵守安全操作规程,严禁违章作业或酒后作业。多人合运钢筋时,起落、转停要动作一致,人工上下传送不得在同一垂直线上,钢筋堆放要分散、稳固,防止倾倒和塌落。使用切断机断料时,钢筋应入在切口底部,刀片要根据磨损情况及时更换,连续切断时要适当间歇,以免刀具过热损坏伤人。钢筋设备指定专人操作管理,共他人不得乱动,不使用时拉断电闸,锁好闸箱,设备应配置漏电保护器。利用切断机切断时,直径20mm 以上的必须每次一根,直径在20mm 以下的允许每次切2 根,弯曲机也要遵守上述规定。五级大风或雨天就暂停作业。
12.3.3 砌筑工程:操作前应对脚手架及施工现场进行检查安全后方可施工。脚手架上堆料每平方米应≤270kg, 堆砖高度应≤3 层,同一块脚手板上操作人员不应超过二人。操作者不准站在
墙上接线、扫、检查大角垂直度等。砍砖时应面向内打砖,防止碎砖落下伤人。吊砖用的砖笼,吊灰用的料斗,不得装载过满,吊件回转范围内不得有人停留,吊笼落到架子上时,砌筑人员应注意躲避。在同一垂直面上交叉作业时,必须采取安全隔离措施。
12.3.4 架子工程:进入施工现场必须戴安全帽,高处作业人员系安全带,不符合要求的安全帽、安全带禁止使用。使用材料要放稳,工具应入工具袋内,上下传递杆件时,严禁抛掷。机械用杆件,指挥人员应站在能照看到全面工作的地点,使用信号应统一规范。操作时应集中精力,密切配合,服从指挥,严禁酒后作业。遵守操作规程,使用钢管应检查其是否有锈蚀、裂纹、不符合要求的管件,杆子严禁使用,跳板铺满锁牢。在脚手架上堆放模板、木料要严格控制荷载,以保证脚手架不超负荷。搭设吊蓝等特殊脚手架时,必须检查应用料具,不合格严禁使用,搭设完按规定做荷载试验。
拆除脚手架按先后顺序进行,设警戒区由专人监护。五级风以上或雨天应暂停作业。脚手架搭设应经有关部门验收合格后方准使用,架子在使用期间应经常检查,发现问题及时处理。
12.3.5 混凝土工程:进入现场必须戴好安全帽,高处危险部位作业人员要系好安全带。上下运料应经常检查钢丝绳,吊斗是否结实,前后推车人员应保持2m 的安全距离。浇筑混凝土时,搭设操作平台,平台应稳固,并设安全网。振捣器由专人使用管理,并配置漏电保护器,夜间作业应有足够的照明。
12.3.6 模板工程:工作前先检查所使用的工具是否牢固,工作时思想集中,防止扎脚或滑落。安装与拆除5m 以上模板,应搭好脚手架,设防护栏杆,严禁上下在同一垂直面上操作。五级风以上应暂停作业。
二人抬模板应互相配合,协同作业,传递模板、工具应用运输工具或绳子系牢后升降,不得乱扔,高处拆模时,应有专人指挥,并设警戒区,暂停人员通过。不得在脚手架上堆放大批模板等材料。支撑不得搭在脚手架上,通过路中间的斜撑应设在1.8m 以上。
支撑过程中如需暂停,应将支撑柱头板等钉牢,拆模间歇时,将活动的模板支撑拆走,防止扶空、踏空而坠落。拆模时防止整块模板掉下伤人。拆模时必须经技术负责人、质量安全员同意后方可拆除。
12.3.7 抹灰工程:进入现场必须遵守操作规程和有关安全规定。高处作业时,应检查脚手架是否牢固可靠,对脚手架不牢固之处和探头板等及时处理。在脚手架上工作时,工具不许随便乱扔,材料堆放不得超载。不准随意拆除脚手架拉支结构和护栏,如防碍施工必须经工长批准后,由架子工负责拆除。操作前应检查架子、马登等是否牢固,如发现不安全的地方立即做加固处理。
文明施工,减少扰民,降低环境污染措施
建筑施工中做到生产场区、生活环境的整洁卫生,又不扰民。必须对职工加强教育,增设一些必要的环保设施,加强施工管理,努力树立企业在社会的光辉形象。
做好施工准备
13.1.1 入场职工进行文明施工教育,让每个职工都能懂得文明施工的必要性与重要性。克服以往懒散,不讲卫生的习惯。不随地吐痰,乱扔污物,到处放水、大小便,保持生产场区与生活区的整洁卫生。
13.1.2 按施工组织设计要求,搭设办公室、厨房、仓库、作业棚,做到规范、整齐,符合使用、居住、施工作业的要求。
13.1.3 按施工总平面规划要求,安装施工机械,摆放设备要求安装规范,配件齐全,试车验收合格。
13.1.4 生产场区、生活区设用水点、厕所、垃圾点、集水井。
13.1.5 修筑现场道路与场区排水沟渠做好维护。防止运输车辆将泥土带到城市街道。
13.1.6 水泥罐周围用编织塑料布围好,减少水泥粉尘污染环境。
13.1.7 搅拌棚、生活用水点等处地面修筑集水井,排放的污水经过沉淀后,再排到城市排水干管中。
13.1.8 砂浆、混凝土搅拌棚用编织塑料布和苯板进行半封闭,减少噪音对居民生活的干扰。
13.1.9 炊事员要定期做体格检查,确保职工的身心健康。
做好施工过程中的管理
13.2.2 制定文明施工管理制度。由项目经理负责定期组织现场清理、打扫、检查,确保现场整洁。
13.2.3 办公室、宿舍建立值日制,每天必须清扫一次,做到室内整洁、通风。
| 13.2.4 | 现场进料,拆下的模板、脚手架木必须堆放整齐。 |
| 13.2.5 | 施工要做到工完场清。 |
| 13.2.6 | 教育职工遵章守法,施工期间无事不得到居民区乱 |
窜,寻事打仗斗欧,扰乱社会治安。轻者采取教育罚款处理,重者解除劳动合同。
13.2.7 现场文明卫生检查,每周一次。不合格的限期清理打扫干净,不能按时达到标准的采取罚款处理。
13.2.8 场内的垃圾、粪便、积水井的污泥,指派专人按时清掏。
13.2.9 工地准备一些常用的医药与包扎材料、担架,便于职工生病、负伤临时使用。
本工程特殊的技术措施
13.3.1 根据施工平面布置图,场区四周砌筑砖围墙,高2m, 刷涂料,写上宣传标语。
13.3.2 施工现场配齐工程公告牌、劳动纪律牌、安全警示牌、宣传板,做好文明施工宣传工作。
13.3.3 适当的位置设绿化区,裁花种草,美化周边环境。
13.3.4 对进入施工现场的民工进行全面身体检查,建立个人健康档案。设专人对民工宿舍清扫、消毒,防止疾病传播。
13.3.5 施工现场与教学区进行全封闭,建立严格的管理制度,遵守学校各项规定,教育职工不论是工作时间或休息时间,不得进入教学区,现场设专人进行监督管理,违者予以安排处罚。严重者解除劳务合同。
保证工期措施
建筑工程必须履行合同,保证工期。因此必须调进足够的机械设备、劳动力,按时运入足够的材料,做好施工安排,才有可能实现。
搞好施工前的准备工作
14.1.1 收集工程图纸的设计进度情况,建设单位的资金来源与供应情况,为工程施工安排提供依据。
14.1.2 做好图纸会审,各专业有无交叉,做好记录,交监理部门、设计部门审定。
14.1.3 编制工程图施工预算,为施工组织设计提供数据。
14.1.4 依据工程图纸、地质资料、施工合同编制施工组织设计。
14.1.5 编制材料、构件供应计划,为材料、构件定货采购提供依据。
14.1.6 做好市场材料供应与运输条件的调查,确定材料供应方案与运输方式。
14.1.7 组建一支组织能力强,技术高超,能打硬仗的组织管理机构,组织好这项工程的施工。
14.1.8 选择一支工种齐全,技术水平高,又能吃苦耐劳,人员充足的施工队伍。施工中依据建设的需要组织三班或两班作业,加快工程进度。
14.1.9 选择优质、高效、完好的机械设备。施工中充分发挥作用,做到两班、三班作业,缩短工期。
加强施工过程中的管理
14.2.1 组织施工管理人员学好图纸及有关技术资料,提前研究解决施工中存在的问题,解决土建、水暖、电气工程及分包工程发生交叉矛盾。避免施工时发生交叉,影响施工进度。
14.2.2 主要工程项目,采用分段流水、立体交叉作业,最大限度的利用空间、时间,减少停工窝工时间。
14.2.3 在施工组织设计的指导下,科学组织、精心编制施工进度计划,制定相应的技术措施,精心组织施工,做到日保旬、旬保月。当天的工作必须完成,计划只能提前,不能拖后。
14.2.4 施工队伍、班组实行分部、分项工程承包制,包质量、包材料、包工期。工程提前完成受奖,工期拖后受罚,推动施工计划的加快进行。
14.2.5 施工中,管理人员做到责任分工明确,必要时做到跟班作业。
14.2.6 分项工程施工中做好施工技术安全交底。推行样板制、三剑制,做好施工过程中的检查,做到一次成活,避免大量返工影响工期。
14.2.7 工程中采用新技术、新材料、新工艺。提前做好试验,制定相应技术措施,保证工程质量,加快工程进度。
14.2.8 每周召开一次生产调度会议,除本工程施工管理人员参加外,邀请建设单位、监理单位人员参加。调整进度计划,解决施工中存在的问题。
14.2.9 搞好与建设单位、设计单位及监理单位三方关系,及时搞清资金供应情况,设计图纸供应情况,特殊材料、设备供应情况以及施工过程中监理工作程序。工作中做到大家团结一致,相互信任,互相支持与帮助,共同促进工作。
14.2.10 加强与各分包队伍的协调配合工作。在土建方面给予施工设备、脚手架等使用上的保证和劳动上的配合,并建立例会制度加以协调。
本工程采取的具体措施
(1) 按施工进度计划提前编制原材料、构配件加工计划,提前5d 组织进场。
(2) 现场搭设仓储面积为500m2 的临时半封闭仓库,仓储量能满足3-5d 施工材料的要求,以保证随机事件发生满足材料供应充足,保证工程按计划进行。
(3) 配备专职人员负责现场人员生活福利,确保作业人员合理生活起居。
(4) 现场配备一名专业医护人员,及时检查处理施工作业人员各种伤、疾病及疫情的预防。
(5) 增加机械设备的一次投入量,利用技术间歇时间和业余时间检查围护、保养机械设备,使其完好率达到100%。
(6) 选择机械性能好、机械效率高的机械设备,其使用率达到100%,减少机械设备维修时间,加快工程进度。
14.3.2 资金保证
(1) 及时编制月、季施工进度计划和资金使用计划,每月底向
建设单位提供资金使用计划和施工进度计划,以保证建设单位按期拨付工程款。
(2) 合理编织资金使用明细,分轻、重、缓、急安排资金合理使用。
(3) 施工合同中明确规定各项经济责任和索赔条款,避免发生经济纠纷,影响工程进度及交付使用。
14.3.3 技术保证
(1)采用网络控制技术,采用立体交叉平行流水施工的方法,使各工种在最大可能同时施工,形成流水作业段的良性循环,各工种密切配合,做到不窝工。
(2)混凝土预应力梁施工中,采用早强剂,保证预应力梁的强度在7d 内达到100%,确保预应力张拉工艺需要。
(3) 粗钢筋连接:竖向钢筋采用电渣压力焊,水平钢筋采用直螺纹套筒连接技术,提高钢筋连接质量,加快工程进度。
(4) 模板采用胶合板,制成定型模板并统一编号,减少木模加工作业量,加快工程进度。
雨期施工技术措施
建筑施工通常总要遇到雨期,为了保证施工质量,按期完成工程任务,必须依据天气、工程设计的特点、工期要求制定相应的措施,妥善安排施工。
搞好施工前的准备
15.1.1 收集本地区近几年的气象水文资料,编制施工进度计划。在可能的条件下,基础工程、屋面保温防水工程、室外装饰工程、室外地下管网工程,尽量避开雨期施工。
15.1.2 修筑现场临时施工道路,尽量利用施工现场正式道路,降低工程造价。没有正式道路的,修筑临时道路。找平、夯实路基,铺填粗砂或炉渣。路边设排水沟,过路水沟铺设钢制、混凝土制涵管。做到流水通畅。雨后场区道路不积水。
15.1.3 依据工程施工安排,编制雨期施工设备计划。购置与调入足够防雨布,塑料薄膜油毡、草帘、雨衣、水靴、塑料管, 编织塑料布、水泵等物质,以满足雨天施工的需要。
15.1.4 施工现场安装的机电设备,上部加防雨罩,做好接地接零,防止漏雨损坏设备漏电伤人。
15.1.5 起重机、钢脚手架要做好接地、避雷,防止雨天发生雷击伤人。
15.1.6 雨期到来之前,对现场的道路,排水沟道进行一次全面清理。对已建的临时设施进行一次防雨检查,做一次检修,防止雨淋造成物资、材料损失,影响正常施工。对起重等机电设备做一次检查,看有无线路安装不齐,有无漏电情况发生,避免漏电伤人。
加强施工过程中的管理
15.2.1 进场的烧结普通砖、空心砖要集中堆放,摆放整齐,下部铺垫混砂,防止混入泥土。雨天连绵,上部盖编织塑料布,防止砖、砌块含水率过高影响砌筑质量。
15.2.2 进场的水泥存放:散装水泥储存在水泥罐中,罐下用编织塑料布围好,做混凝土地面,防雨防潮。袋装水泥存入水泥库中,保证不受雨水侵蚀。
15.2.3 砂石堆场,铺设混凝土地面。确保砂石清洁。雨天进场的砂石要严格控制质量,含土量在允许范围,堆料时,禁止使用推土机进行工作。
15.2.4 进场的木材、木门窗、塑料窗、铝合金门等要按要求堆放整齐,下边用木方垫起,上部盖防雨布,防止雨淋受潮变形及混入泥土给安装增加困难。
15.2.5 钢筋进场,下部要用木方垫起,按规格分别堆放,防止雨天带进泥土。连雨天气钢筋上部要盖防雨布,防止长时间雨淋生锈。加工完成的钢筋和绑扎好的钢筋骨架,要分类挂牌堆放在木方上,不得放在地面上或上人踩踏。
15.2.6 钢模板与木模板,进场按要求检查质量,检查合格后,堆放整齐,做好防雨防潮工作。
15.2.7 拆下的模板与脚手架要清净上边的杂物,起掉钉子,除去铁件,钢丝堆放整齐,便于雨天查找。
15.2.8 混凝土、砂浆制备用的砂石。雨天经常测定其含水率,及时调整配合比,确保工程质量,节约水泥。
15.2.9 地槽、地坑雨期施工, 不论机挖还是人工挖土,都要依据土质情况适当放坡,基底留25—30cm 厚的土做保护,基础施工前清底,防止塌方和地基受水浸泡,影响地基的承载力。
15.2.10 地槽、地坑上口周边堆土要放在槽口外0.5m,地坑外1m,并修筑土堤,阻止地面雨水流入。
15.2.11 雨天机械挖土,要设专人监护,防止塌方等意外事故的发生。
15.2.12 大雨天气,严禁混凝土浇筑。
15.2.13 雨天不得进行屋面保温、隔汽、防水层的施工。施工中遇雨停工后,基层必须晾干后再做。
15.2.14 雨后,对塔式起重机、脚手架基础进行检查,发现基础不均匀沉降,结构倾斜要立即查明原因,进行加固处理。
15.2.15 雨期施工设专人昼夜值班,做好抢险物资的准备,随时排除险情。
本工程采取的具体措施
15.3.1 基坑、基槽开挖采取分段开挖,分段浇筑混凝土,分段砌筑,分段回填,减少地槽开挖后受雨水浸泡的时间,影响施工质量和进度。
15.3.2 雨天施工时,严格控制砂、石含水率,设专人负责,每班测试二次,并做好记录。并及时调整砂浆,混凝土掺水量。受雨水冲刷的砂浆,应重新加水泥拌好后再用。砂浆在运输时用塑料遮盖,以免淋雨。
15.3.3 雨天砌筑墙体,收工时,在墙顶盖一层干砖,防止雨水冲刷灰浆,同时加草袋等覆盖。如大雨时发现灰浆被冲刷,应拆除一至二层砖铺浆重砌。雨后过湿的砖不得上墙,炎热的天气则要充分浇水润湿,不能干砖上墙。
15.3.4 搅拌机前、后台做好排水设施,保证上料的坑内无积水。
15.3.5 雨天运输混凝土时,用塑料布等进行遮盖。
15.3.6 模板涂刷隔离剂后用防雨布加以遮盖,防止被雨水冲刷。若发现被雨水冲刷掉,应重新涂刷后方可浇筑混凝土。
15.3.7 雨天浇筑混凝土时,要搭设防雨篷或用防雨材料随浇随盖。
15.3.8 屋面施工时,要避开雨天,同时备足防雨材料,对要施工的部位遇雨应及时覆盖,保持基层的干燥。如果保温层被雨水淋湿,要晾干后方可进行下道工序施工。
15.3.9 屋面施工时,遇雨要及时停止作业,并将工作面及时覆盖。
15.3.10 大风、大雨等恶劣天气,停止一切作业活动。
冬期施工及越冬维护技术措施
为了缩短工期,加快工程进度,本工程主体施工预计10 月20 日左右完成,此时已进入冬期。为了确保冬期施工质量,入冬前必须制定详尽、切实可行的技术方案,做好充分准备,做到外加剂、保温材料进场,锅炉具备点火条件,以防寒流突然袭击。建立健全各项检查,检验及管理制度,使每道工序都在可控中进行。外加剂的选用,要符合国家、省、市等有关规范、规定的要求。同时要经过公司技术部门审批,严格按配合比进行填加,并设专人负责。根据工程现有条件,结合工程冬期施工特点,本着质量第一,节约资金,注重经济效益的原则,因地制宜组织施工。
冬期施工准备
16.1.2 冬期施工用的锅炉、热源设施等,在施工前检修完毕,经过打压调试验收合格。
16.1.3 临时水管,供水装置,做好保温防冻工作。
16.1.4 关注天气预报,指定专人做好大气温度测量工作,每日三次:7:30、 14:00、21:00 做好记录。
16.1.5 做好搅拌棚、水泵房的防风保温工作。
16.1.6 按冬期施工要求,分批有序备足冬期施工所用的材料。
16.1.7 向职工做好冬期施工任务、特点、技术、质量、检测安全要求的教育。
16.1.8 做好司炉工、掺外加剂、看火人员的培训工作。
16.1.9 组织现场施工管理人员学习冬期施工方案,冬期施工方法,日常技术操作的要点,提高操作技术,加强质量意识。
16.1.10 上冻前,做好办公室、厨房、宿舍的保温,搭设取暖设备,保证职工工作生活正常运行。
施工过程中的管理
16.2.1 水泥、砂子、石子等原材料在室外保温棚中存放,砂、石入棚前,把冰雪清净,不得含有冰块和大于1 cm 的冻结块。
16.2.2 黏土空心砖砌筑前要清除上面的冰霜,不得浇水湿润,不得使用被水浸和受冻后的砌块。可适当加大砂浆稠度,一般控制在8~12cm。
16.2.3 施工现场设一台2t 锅炉,用来加热砂子和施工用水。
16.2.4 砂浆、混凝土的搅拌在搅拌棚中集中搅拌,同时在运输中对砂浆、混凝土加以保温,保证砂浆、混凝土的使用温度和入模温度。
16.2.5 拌制砂浆和混凝土时,水的温度不得超过80℃, 砂的温度不得超过40℃。
本工程采取特殊的技术措施
(1)混凝土搅拌:搅拌前,用水或蒸汽冲洗搅拌机。搅拌时间比常温延长50%,且不得小于120s。掺防冻剂的混凝土拌合物的出机温度不得低于15℃。入模温度不得低于10℃。正温养护时间在24h 以上。
混凝土运输与浇筑:混凝土浇筑前,要清除模板与钢筋上的冰雪与污物,但不得用蒸汽直接融化冰雪,以免再度结冰。混凝土倾落的高度不得大于2m。在浇筑竖向结构时,要先在底部铺填-10cm 厚与混凝土同强度等级的砂浆。当浇筑高度超过2m 时,采用串筒,溜管下落混凝土。混凝土养护:负温下,混凝土浇筑完后,盖塑料布、草袋、岩棉等保温材料防冻。必须保证混凝土达到临界强度之前不遭受冻害。临界强度为3.5MPa。搞好混凝土的测温工作,临界强度以前每2h 测一次,以后每6h 测一次。试块做四组,一组标准养护,三组与结构同条件养护。
16.3.2 钢筋工程:钢筋冷拉、冷弯可在负温度下进行,但温度不宜低于-20℃。负温下钢筋冷拉后,要逐根检查,其表面不得有缺陷和局部颈缩。
当温度低于-20 ℃时,严禁对低合金钢筋进行冷弯。钢筋焊接,宜在室内进行。必须在室外施焊时,最低气温不宜低于-20,而且应采取防风雪措施。焊后的接头严禁立即碰到冰雪。气压焊不宜在-15 以下环境中进行焊接,焊接后未冷却的焊接接头应避免碰到冰雪。
16.3.3 空心砖砌筑工程:砌筑采用“三一砌砖法砌筑,即一铲灰,一块砖,一挤揉,一顺一丁砌筑。水平灰缝控制在10mm 以内。砌块堆放,必须采取防潮措施,以免堆放时相互冻结,无法分开,或由于砖的吸潮,冻结成霜,影响砌体的粘结强度。冬期砌砖,不采用浸水措施,采用防冻剂砂浆法,砂浆稠度可较常温下稍大,但不得超过13cm。
砂浆尽量采用热搅拌。运输过程中,采用保温措施,确保砂浆的可塑性。当气温低于-10℃或大风天气不得施工。试块预留,增加同条件养护两组。
越冬维护措施
本工程主体施工完毕后,就不再进行冬期施工,即进入越冬维护阶段。为了保证建筑物安全越冬,采取如下越冬维护措施:
16.4.1 编制切实可行的越冬维护方案,制定各项管理制度和岗位责任制。保证越冬工作有序进行。
16.4.2 做好现场材料的清理归堆码垛工作。
16.4.3 机械设备全部断电,采用现场封存或送库保管。
16.4.4 现场备用一套防火用具与修理防护工具,确保消防安全与现场围护设施的完整。
16.4.5 建立健全值班责任制度,做好各项检查记录,交接班记录,遇事向上级报告。
16.4.6 做好大门、围墙的修缮工作,确保工程安全越冬。
16.4.7 地梁、承台按设计要求在其下部填300mm 厚炉渣,侧壁回填厚度为150-200mm 的混砂或炉渣,防止承台地梁被冻土胀裂。
16.4.8 一层门窗用五彩布或砌块进行临时封闭,保证安全越冬。
16.4.9 做好冬期测温工作,设专人进行测温。每天测温4 次,即早8 点、11 点、14 点、17 点。测温部位:大气气温、阴阳面气温、建筑物内部温度按施工规范要求做好测温记录,存入工程档案。
降低工程成本措施
建筑施工,在保证工程质量,按期交工的前提下,降低工程成本,提高企业的经济效益是企业经营的宗旨,也是企业生产发展的重要条件。在本工程中,做好施工准备,坚持按程序施工,搞好各项施工管理,应用新技术,加强经济核算,使降低成本得以实现。
加强材料管理
17.1.1 贯彻执行企业制定的“工程分包工作程序”和“采购工作程序”, 对外购、外协物资的承包方的质量、保证能力进行调查,审核初评和复评。对物资采购的过程实行质量控制,确保采购的材料、产品符合质量要求。保证分供方能长期、稳定供应质量优良,价格合理的原材料与产品。
17.1.2 贯彻执行企业制定的“运输、储存、包装、防护交付工作程序”确保产品符合设计规定的质量要求,保证产品不损坏,不丢失,不变质,保证质量的特性,达到完好的产品交付的目的。
17.1.3 严格执行材料进场发放制度。不合格的材料不准进场。须做二次试验的材料,必须试验合格后,方可使用。材料发放,要按施工任务单和材料预算单供料。严禁超预算供应。
17.1.4 严格执行“ 产品标识和可追溯性工作程序”对产品进行标识。确保在需要对产品质量的形成过程中实施追溯。对采购的物资、材料部门,应根据对工程质量是否有影响予以区别对待。尤其是对钢材、水泥、木材等重要物资。到场后必须进行追溯性标识,做好记录,以防错裁,错用或不合格产品流入,造成损失。
17.1.5 材料进场后,按施工总平面图布置,材料管理规定分类堆放整齐,做好质量检查与验收工作,杜绝材料质差、量差的发生,造成浪费。
17.1.6 门窗、混凝土予制构件,装饰板材进场要按要求检查质量,核对数量,分类堆放保管好,防止质差、量差的发生与损坏,造成返工浪费。
做好机械设备的管理工作
17.2.1 依据施工组织设计的要求,调入足够数量、性能优良的机械设备,用完后及时返回,降低租赁使用费用。
17.2.2 机械要实行专机专用,做好日常的保养与维修,保证机械施工期间的正常运行。
17.2.3 施工用的脚手板、脚手架木等周转工具,按计划进场,合理安排使用,拆下后要堆放整齐,保管好,压缩调入数量和施工中损坏与丢失。用完后及时返回,降低租赁费用。
加强施工管理
17.3.2 施工前,进行图纸会审,做好记录,提出清单,由设计单位出具核定单或设计变更。
17.3.3 施工中出现设计变更,材料、构件代用,在办理好书面签证后,再行施工,避免日后结算带来麻烦。
17.3.4 认真选择施工队伍,要求做到数量充足,工种齐全,技术水平与素质高,又能听从指挥的一支队伍入场,确保施工任务,保证质量,按期完成。降低人工费与管理费。
17.3.5 做好分项工程的施工技术交底,推行样板制,严格质量检查,达到一次验收合格,避免返工损失浪费。
17.3.6 合理安排施工作业计划和季节施工,避免停、窝工发生,影响施工进度。
17.3.7 各项施工,做好事前的安全交底,施工中做好安全检查,防止违章作业,防止安全事故的发生,杜绝重大人身伤亡事故的发生。
合理选择施工方法
17.4.1 强化工程测量放线工作,准确控制建筑物、构筑物、轴线位置与标高。为施工中提供可靠的数据。初测后,项目技术负责人必须进行复测。最后经监理部门、建设单位验收合格,方可开工。防止意外事故发生。
17.4.2 土方工程,合理选择机械,开行路线,挖运方式和放坡大小,减少土方的开挖量。做好土方挖填平衡工作,减少土方的运输费用。
17.4.3 混凝土与砌筑工程,严格执行检测站提供的混凝土,砂浆配合比。随时测定砂、石的含水率,调整施工配比,节省水泥。
17.4.4 加强试块的养护试压工作,依据砂浆、混凝土试块的抗压强度,调节配比,在保证质量的条件下,降低水泥用量。
17.4.5 严格控制墙面平整度与垂直度,现浇楼板的平整度,减少砂浆的抹灰厚度,减少材料的用量。
17.4.6 圈梁模板采用硬架支模,重复使用,节约木材。
17.4.7 混凝土地面采用随打随抹一次压光,提高质量,节约水泥。
17.4.8 施工中,做到工完场清,及时清理落地灰、碎砖、砂、石等,用于工程的适当部位上,减少损失、浪费。
17.4.9 水泥地面,喷涂“养护灵”养护,节约用水与人工。
17.4.10 钢筋集中下料,先长后短,合理搭配使用。
施工中应用新材料、新技术
17.5.1 模板推行组合钢模,竹胶合板,制成定型模板,周转使用节约木材。
17.5.2 混凝土施工中,楼板、梁中掺早强减水剂,提高混凝土的早期强度,加快模板周转。
17.5.3 砌筑砂浆中,掺粉煤灰,节约石灰与水泥用量。
17.5.4 楼板钢筋推行冷轧带肋钢筋,节约钢材。
17.5.5 粗钢筋连接推行电渣压力焊与直螺纹连接技术。
17.5.6 模板推选定型化的竹模板和清水混凝土结构。
17.5.7 给排水工程推行塑料管,降低工程造价。
17.5.8 模板涮长效脱模剂,一次涂刷多次使用,降低模板损耗和隔离剂用量。
17.5.9 施工中,应用计算机管理,推行网络计划与全面质量管理技术,节约人工费开支。
控制好成品保护
17.6.1 合理安排各专业、分项工程的施工顺序,避免专业、工序间的交叉与干扰。
17.6.2 教育职工尊重别人的劳动,爱惜已完成的施工成果,施工中小心从事。
17.6.3 做好分项工程的交接检工作,推行谁损坏,谁修好的原则。一项工程完成后,立即检查,核定执行。
17.6.4 门窗、散热器、窗台板、卫生器具安装后,做好防护工作,包装好,加防护板,堵严,防止损坏与堵塞。
17.6.5 装饰阶段,分层、分段设专人看管,发生问题立即纠正,防止大面积损坏、修补的发生。
经济活动分析
每月进行一次材料供应,施工活动经济分析。每个分部工程完成后,做一次成本经济活动分析。找出问题,提出改进方案,在未来的工作中进行整改,杜绝浪费损失,降低工程造价。
各项技术经济指标
17.8.1 开竣工日期:2003 年8 月5 日~2004 年7 月15 日
17.8.2 有效工期:176d
17.8.3 施工机械化程度 80 %
| 土方工程:80 | 砌筑工程:50 | 钢筋混凝土工程:80 | |||
| 吊装工程:100 | 装饰工程: 20 | 垂直运输:100 | |||
| 水平运输:80 | |||||
| 17.8.4 | 直接费降低率: | 8 | %。 | ||
| 17.8.5 | 材料节约 | ||||
| 人工费:1% | |||||
| 材料费:2% | |||||
机械费:1%
管理费:2%
17.8.6 单位工程质量等级:牡丹杯。
17.8.7 安全生产:创建文明施工工地,杜绝死亡,重大安全事故发生。一般事故控制在1.5‰以内。
新技术、新工艺、新材料应用
为了确保工程按期完成,保证工程质量,结合本工程特点,拟采用以下新技术、新工艺、新材料。
新技术、新工艺
18.1.1 粗直径钢筋竖向连接采用自动电渣压力焊,水平粗直径钢筋连接采用直螺纹连接技术,可节约钢材,加快施工进度,提高工程质量,保证合格率必须达到100%,降低工程造价。
18.1.2 采用钢模竹胶中型模板,取代普通钢、木模板,可加快施工进度,减少施工环节,节省抹灰材料。采用钢框竹胶模板,可保证混凝土表面平整。混凝土合理安排施工顺序,加强振捣,使混凝土结构无蜂窝麻面、露筋和明显气泡。达到清水混凝土的效果,降低工程成本。
18.1.3 本工程的给排水管材全部采用硬聚氯乙稀管材,取代传统的镀锌钢管,节省钢材,降低施工难度,加快施工进度,降低工程成本。
新材料
18.2.1 在楼板钢筋中,推广应用冷轧带肋钢筋。经设计单位审核验算,出具变更。利用冷轧带肋钢筋强度提高的特点,取代现浇板的普通I 级钢,可节省钢材40%左右,增加钢筋与混凝土的握裹力和法向力,提高楼板的强度刚度,冷轧带肋钢筋不做弯钩,可简化施工工艺,节省钢材,减少制作和运输量,缩短工期,降低了工程造价。
18.2.2 在砌筑砂浆中掺入一定数量(按配合比)粉煤灰,增加混凝土砂浆的和易性和密实度,减少水泥用量,降低成本。
保证创优质工程硬性管理措施
(1) 在管理上严格按ISO9001 质量管理体系进行管理。积极采用新工艺、新材料、新技术,提高施工质量,确保工程质量达到" 牡丹杯"标准。
(2) 严把住材料进货关。坚决执行公司制定的材料采购供方评价制度,选择合格的供方实行定点采购,杜绝不合格材料进场和使用。
(3) 坚决执行材料进场检查验收制度。材料进场后,首先由质检员进行外观质量和合格证检查,合格后由保管员验收入库。
(4) 严格按规范要求对进厂的原材料进行二次检验,对检验不合格的原材料坚决不许使用,并限期运出施工现场。
(5) 各分项工程施工前,严格按规范要求做好技术、质量、进度、安全交底工作,做到人人了解质量标准、进度计划、安全规程,掌握施工技术,保证工程质量。
(6) 坚持样板引路。做到每项工序施工前先做样板,经质检员、监理检查认可后,再全面推行。
(7) 严格隐蔽工程检查验收制度和质量三检制。每个分项工程施工完后,组织各班组进行自检、互检、交接检,然后专职质检员检查,最后由监理工程师检查,对不合格的分项工程,坚决予以返工。
(8) 认真贯彻省、市有关消除质量通病的规定,制定严格的控制措施,使质量通病消除率达80%以上。
(9) 积极推广应用新工艺、新材料、新技术。在粗钢筋连接 114
上采用自动电渣压力焊和直螺纹连接技术,保证粗直径钢筋连接质量合格率达到100%; 在模板上拟采用钢框竹胶模板,保证混凝土表面光滑平整,达到清水混凝土效果,提高混凝土施工质量;在砂浆中掺一定量的粉煤灰,改善砂浆和易性和密实性,保证工程质量。
(10) 制定成品保护制度。做好成品保护工作,对施工完的成品、半成品,设专人看管,保证完工一项优良一项,最后单位工程达到“牡丹杯”标准。
关键部位与复杂环节重点控制措施
混凝土屋檐施工控制措施
为了保证混凝土屋檐的施工质量同时也为了保证该部位施工时工人操作安全以及支设模板的方便,特制定以下技术措施。
20.1.1 利用外围护脚手架反搭设操作平台,供工人操作时使用。
20.1.2 在外墙的下面预留120×120 孔洞,间距1000,利用该孔洞穿入100×100 木方做为支设屋檐时的支点。
20.1.3 具体支设方法见模板支设图。需要注意的是支设时一定要慎重,重点检查斜支杆的稳定、强度以及屋面板以上部位空心砖砌体,后面拉杆的牢固程度,做到万无一失,不允许有变形,胀模现象。
20.1.4 该部位采用细石混凝土进行浇筑。要求用直径φ20 的小型振捣棒进行振捣,同时要求保证插点均匀,不漏振,做到里实外光。
20.1.5 安排工长、质量检查员跟班作业。
曲线墙体轴线及曲率控制措施
(1) 首先用经纬仪按图纸给定的角度放出外层圆柱的中心点位置,然后按中心点的准确位置引出控制线做为校正圆柱垂直度用。
(2) 圆弧墙体部分曲率的控制,按实际弧度做出大样尺,砌筑时用大样尺逐段进行检查所砌的曲面是否符合要求。
(3)每砌筑1m 高时,用吊尺检查墙面垂直度,做到三步一卡,五步一吊,确保墙面平整,垂直度符合要求。
20.2.2 办公部分:
(1)控制点设在1-J 轴上,控制线设在1-12 轴上。
(2) 将控制点、控制线外引到适当位置,做好保护,做为校核用。
(3)曲率控制同20.2.1 条第二款。
(4)墙体砌筑控制同20.2.1 条第三款。
无粘结预应力梁的施工控制措施
该教学楼中的阶梯形教室的一~三层为12 根400mm×650mm 的预应力梁(12.96m 长)。为保证无粘结预应力梁施工质量,在施工过程中重点采取以下控制措施。
20.3.1 确定制作安装及施工穿叉顺序:
(1)钢筋等材料进场要进行复试;
(2)制作安装绑扎调整焊接;
(3)放线安装绑扎马登,铺设无粘结钢铰线;
(4)梁板模安装;
(5)板筋绑扎,铺设电气管道;
(6)浇筑混凝土、养护、压混凝土试块取试验报告;
(7)拆除边模、穴模,进行张拉;
(8)切钢铰线封锚。
20.3.2 无粘结预应力钢绞线选材
(1) 指标要求:选用秦皇岛预应力钢铰线联营公司生产的
φ15.24 高强低松驰钢铰线,抗拉强度标准值1860MPa, 张拉控制应力0.7×1860MPa=1302MPa, 超张拉3%, 钢铰线性能经试验符合《预应力混凝土用钢铰线》(GB5524-85)的规定。
(2) 观感表面要求:钢铰线表面不得有裂缝,小刺劈裂等机械损伤及氧化薄钢板和油迹。
(3)对进场的钢铰线按规定进行二次复试。
(4) 涂刷防腐油脂要求:单根据无粘结预应力钢铰线,由专业化工厂生产,钢铰线上涂一层专用防腐润脂每米用量70.05kg, 油脂厚度70.5mm,防腐油脂完全填充预应力惫钢铰线与外包层的环形空间外包层采用厚度71mm 的低压高密度聚乙烯,壁厚均匀,无破损光滑。
20.3.3 锚具系统要求:采用中国建筑科学研究院结构所生产的锚具,张拉端用夹片式锚具,固定端用挤压锚具,锚具夹片必须经国家级检验合格后进入施工现场,使用前要进行外观检查,表面无裂纹,结构尺寸符合标准,其次是硬度检查,经检测合格后方可使用;组合检验,无粘结预应力钢铰线,锚夹具组装件进行静载锚固性能试验。
20.3.4 无粘结预应力曲线钢铰线施工控制:无粘结预应力曲线筋有严格的平面位置和竖向位置要求,无粘结钢铰线的铺放是预应力施工的重要环节。马登是铺凤无粘结预应力钢铰线成为曲线形的关键,定位要准确,安装要稳固。
经详细计算采用φ10 钢筋和1mm 厚铁板制作成所需马登,每1000mm 放一马登,与梁钢筋固定在一起,以确保钢铰线位置和矢高,张拉端部模板预留孔,按图规定钻孔,为保证质量制作整体工艺准确,提前在地面上做模板钢筋样品放大样,并对图示钻孔位置进行一一的检查编号,无粘接钢铰线张拉端固定组装好后,严禁碰撞移动,施工技术人员跟班作业,抓质量。
20.3.5 浇筑混凝土时要制定相应的技术措施。
(1)明确浇筑顺序,分层振捣,要求在初凝前将梁板抹平、压实。
(2) 要求质检员跟班作业,随时检查构件状态,协同监理进行质量检查,一次到位。
(3) 加强岗前教育,由技术人员对参加施工的木工、架子工、混凝土工、力工进行技术交底和安全教育。
(4) 要保证机械设备及小型工具配套齐全,保证施工连续性。
20.3.6 张拉及封锚:张拉与封锚是无粘结预应力梁板质量控制的最后一道工序,为此采用YC20D 穿心式千斤顶在构件上张拉无粘结钢铰线,具体要求如下:
(1) 设备机具要求:张拉设备做配套校验,压力表的精度不低于 1.5 级,试验机或测力计精度不低于±2%, 千斤顶张拉工作状态与实际空载运行一致,张拉机具由专人使用及保管,并定期检修和校验,安装千斤顶时做到使张拉作用线与无粘结筋的中心线重合,保证受力均匀。
(2) 张拉控制:①采用一端固定,一端张拉的方式进行张拉。将YC20D 穿心式千斤顶穿在预应力钢铰线上,由右向左依次张拉,张拉结束,待无粘结预应力钢铰线自动调整松驰稳定后,用
手提无齿锯切断超长外露部分无粘结筋,进行封锚。②张拉采用应力控制,校核无粘结筋伸长值,按照规范要求有效的控制无粘结钢铰线实际伸长值不大于理论伸长值的10%,并不小于理论伸长值的5%。③ 提高张拉控制应力值时,不宜大于钢铰线强度标准值的75%。施工中预应力筋的超张拉程序为0~1.03Scon。④外露预应力筋短时,张拉完一根无粘结预应力后,停1~2min 再拆卸千斤顶。⑤在封锚前对锚具及承压板表面涂刷防火涂料,混凝土界面涂环氧树脂类粘结剂,然后用细石混凝土封堵。
网架安装的施工控制措施
20.4.1 网架的施工设计图纸未到,待图纸到位后,做为总包单位首先要委托具有专业资质,施工安装信誉良好的专业施工队伍来承担该项目的网架的安装。
20.4.2 总包单位负责搭设满堂红脚手架,以及操作平台。
20.4.3 总包单位对分包单位的施工方案要进行严格的审查,并设专人对整个安装过程进行监督。
20.4.4 指定专人负责或参与材料的采购,并对进场的材料及零部件、防腐材料认真审查出厂合格证明文件,必要时进行二次复验。
20.4.5 严格按国家现行规范及施工技术要求进行检查验收。
刚性防水屋面防裂控制措施
刚性防水屋面开裂是比较常见的质量通病,为保证该工程刚性防水屋面的工程质量,确保不裂、不渗达到使用功能和美观的要求,特采取如下措施:
20.5.1 对材料的选择要严格控制,严格把关。
(1)豆石最大料径15mm,含泥量<1%。
(2)砂选用中砂,含泥量<2%,云母含量<2%,轻物质含量<1%,硫化物含量<1%.
(3) 水泥采用温春水泥厂生产的普通硅酸盐水泥,并要经二次复试合格后方能使用。
(4)密实剂选择JJ91 硅质密实剂掺量3%。
(5)水选择能饮用的自来水。
20.5.2 施工过程控制
(1) 采用机械搅拌,严格按配合比进行投料,特别要注意控制水灰比和硅质密实剂的掺量,设专人负责,并要有记录。
(2)为了减小板块的收缩产生裂缝,故板块的纵横间距按
1.5m 进行分块,并放置半缝铁分格条,女儿墙与屋面的交接处必须设一道缝,间距1.5m , 并放置弧形分格条。同时为避免防水板块热胀时隆起,纵横间距9-20m 放一道全缝分格条,分格条要放线排列,留丁字缝。
(3)每块板块均设置一层φ4 钢筋网片,女儿墙要挂一层1.5m 宽钢丝网。用C20 防水细石混凝土做60mm 厚压顶。立墙抹20 厚防水砂浆,按钢丝网宽,间距1.5m 设分格缝,与弧形分格缝相连,对齐,同时施工。缝宽7mm;缝内嵌入A 型密封膏麻丝。
(4)将掺有JJ91 的C20 细石混凝土放入分格条内摊平,用微型振捣器或铁辊辗压,表面泛浆后抹平。每个板块的混凝土必须一次浇筑完成,不留施工缝,以防止在该处断裂。抹光时不得
在表面洒水、加水泥净浆,或撒干水泥。当混凝土收水后,即进行二次压实抹光,并取出分格条和修边。注意,分格条取出过早混凝土易坍边,过晚板块易产生裂缝。决不能采用无齿锯切割分格缝的做法。
(5) 加强板块的养护,具体方法为在抹压成型的板块上,覆盖一层塑料薄膜,注意四周要压紧,不能被风掀开,在养护初期不得上人。
(6)刚性防水板块宜在5~32℃气温条件下施工,并应避开大风、暴晒,阴雨天气。
卫生间防水质量控制措施
为保证卫生间防水工程质量,使之达到不渗不漏,确保使用功能的要求,重点采取以下几项措施。
20.6.1 在主体施工阶段,卫生间部分的现浇混凝土中掺入JJ91 硅质密实剂,并且要求振捣密实,不漏振,此部位施工时,质检员要跟班作业。
20.6.2 卫生间现浇板四周要上返300mm,要求一次浇筑成型,不留施工缝。
20.6.3 卫生间地面要比走廊地面低20mm。
20.6.4 SBS 卷材铺贴前基层要清扫干净,各个管道口、地漏口四周用膨胀砂浆或膨胀细石混凝土填塞严密,并找好坡度。
20.6.5 SBS 卷材的铺贴要严格控制各个管道口及地漏口、墙面与转角处,同时要求卷材上返墙面不少于300mm。
20.6.6 男卫生间墙面1.5m 以下用防水砂浆进行抹灰打底,然后再贴面砖。
20.6.7 施工完毕逐个卫生间做蓄水试验,合格后方可交付使用。
保温墙体防裂控制措施
20.7.1 砖砌体砌筑时要求砂浆饱满,特别是竖向灰缝一定要饱满、均匀。
20.7.2 砖砌体表面平整度要控制在3mm 以内,立面垂直度控制在4mm 以内。
20.7.3 60mm 厚的苯板要填塞严密,不留死角,苯板的切割采用专用切割锯进行,不允许随意切割以避免苯板不规整,破碎的小块苯板不允许使用。
20.7.4 砌筑时设φ6@500 的拉结钢筋,钢筋的拉结长度以及位置必须准确,该部位施工时质检员要跟班作业,严看死守。
20.7.5 墙面抹灰前要将砖墙面洒水湿润,抹完灰待水泥砂浆初凝后设专人洒水养护。
塑料窗的安装
为保证塑料窗的整体稳固,满足在使用过程中的各项使用功能要求,使之达到封闭严密,抗渗性能,抗风压能力达到国家标准,特采用如下技术措施。
20.8.1 塑料窗的加工制作委托具有专业资质,信誉良好的生产厂家加工制作,要求塑料窗的钢衬采用1.5mm 厚的镀锌钢板,在加工过程中,派专人随时抽检,确保塑料窗加工质量。
20.8.2 对进场的塑料窗进行严格的检查验收,并重点检查产品的合格证,性能检测报告,必要时对塑料窗的各项性能指标进行复检。
20.8.3 塑料窗的固定采用镀锌固定片与膨胀螺栓连接牢固,固定点的位置距窗角、中横框、中竖框150-200mm,固定点间距不大于600mm。
20.8.4 安装时严格控制窗的正侧面的垂直度,平整度以及对角线长度差,保证窗扇开关灵活,关闭严密,无倒翘现象。
20.8.5 为了防止由于温度升降引起窗变形或在窗框与墙体间出现裂缝,所以塑料窗框与墙体间缝隙必须采用聚氨脂发泡材料填嵌饱满,表面采用密封胶密封。
20.8.6 塑料窗安装完毕工程竣工验收前,由监理、建设、施工单位有关技术负责人员组成的验收小组重点对以下9 个部位再进行一次详细的检查验收。
①门窗表面的检查。要求表面洁净、平整、光滑,大面无划痕、碰伤,型材无断裂,开焊现象。
②门窗五金件的质量检查。要求安装数目齐全,位置正确,安装牢固,使用灵活,达到各自的使用功能。
③玻璃密封条的检查要求,密封条与玻璃槽口的接触要平整,不得卷边,脱槽。
④密封质量的,检查要求门窗关闭时,扇与框间无明显缝隙,密封面上的密封条应处于压缩状态。
⑤玻璃安装质量的检查。双玻安装好的玻璃要平整,安装牢固没有松动现象,内外表面都洁净, 玻璃夹层内没有灰尘和水气,
双玻隔条没有翘起。
⑥压条的检查。带密封条的压条必须与玻璃全部贴紧,压条与型材的接缝处要没有明显缝隙,接头缝隙小于1mm。
⑦拼樘料的检查。要与窗框连接紧密,不得松动,螺钉间距≤600mm,内衬增强钢衬两端与洞口固定牢固,拼樘料与窗框间要用嵌缝膏密封。
⑧门窗开关部件的检查,平开窗扇要关闭严密,搭接量均匀,开关灵活,密封条不得脱槽。
⑨框与墙体连接的检查。门窗框要横平竖直,高低一致,固定片安装位置正确,间距要≤600mm,框与墙体要连接牢固,缝隙内要用弹性材料填嵌,饱满。表面用嵌缝膏密封,无裂缝。
玻璃幕墙
20.9.1 为防止玻璃幕墙由于内外温差产生冷凝水,从而导致幕墙下面的块材产生冻融破坏,所以要在易发生渗漏的部位设置流向室外的水孔,并且要采用耐候硅酮密封胶进行嵌缝。
20.9.2 为保证幕墙框体与墙体的可靠连接,在砌筑墙体过程中按要求的位置留置“T” 形预埋件,该预埋铁件做防腐处理。如在施工过程中防腐层损坏,重新对其进行防腐处理。
20.9.3 幕墙工程使用的硅酮结构密封胶,选用法定检测机构检测合格的产品,在使用前,必须对选用的铝合金型材、玻璃、双面胶带、硅酮耐候密封胶、塑料泡沫棒等与硅酮结构密封胶接触的材料做相容性试验和粘结剥离性试验,试验合格后才能进行打胶。
20.9.4 幕墙工程使用各种预埋件,必须经技术负责人计算后确定,以保证其具有承载力。同时为了保证幕墙与主体结构连接牢固、可靠,幕墙与主体结构连接的预埋件在主体施工时,按设计要求的数量,位置和方法进行埋设。
20.9.5 如在施工过程中预埋件遗漏或偏离设计位置时,可采用后置埋件进行补救,但必须做现场拉拨试验。
20.9.6 为防止腐蚀,竖向龙骨与主体结构之间连接用的紧固件表面必须做镀锌处理,紧固件与埋件固定时采用不锈钢或镀锌螺栓。
20.9.7 为保证玻璃幕墙的安装质量,在施工过程应注意以下几个问题:
①认真核对玻璃尺寸,严格控制垂直度及中心线位置。
②装饰压条的安装采用吊线和拉水平线相结合的方法进行控制,确保安完后的装饰压条横平竖直。
③玻璃进场时要进行开箱抽查,安装前发现有翘曲现象应剔出不用。安装过程中各道工序严格操作,密封条镶嵌平整,打胶后将表面擦干净。
④铝合金表面的保护膜不要过早撕掉,防止打胶时污染面层。
⑤为防止玻璃幕墙沿玻璃四周渗水,在安橡胶条时,胶条规格要匹配,尺寸不得过大或过小,嵌塞要平整密实,接口处一定要用密封胶填实。达到不漏水为准。
⑥紧固件与预埋件焊接质量必须严格控制,要由有上岗证的焊工进行焊接,焊缝的高度、长度必须满足设计要求。
工程质量通病防治措施
水泥砂浆地面裂缝的防治措施
21.1.1 严格控制原材料的质量。水泥强度等级不低于PO32.5,用中粗砂,砂的含泥量不大于3%,砂浆水灰比控制在
0.25 左右。
21.1.2 加强楼板基层的处理工作,面层施工时要认真清除基层上的杂质浮灰。前一天应洒水湿润基层,抹面时刷水灰比为
0.4~0.5 的纯水泥浆,使面层粘结牢固,减少裂缝。
保证楼梯踏步等高等宽措施
施工前做好测量放线工作,并在墙上弹好等高等宽的踏步线作为抹灰的依据,操作时, 严格要求,认真检查,不符合要求的坚决返工,保证楼梯踏步等高等宽。
厨房、卫生间、盥洗室防渗漏措施
21.3.1 厨房、卫生间、盥洗室的地面防水严格按要求进行施工。在防水施工前做好基础处理保证基层平整,涂油均匀,封边严密。
21.3.2 卷材接缝必须粘贴封严,接缝口用材性相容的密封材料封严,宽度不小于10mm。
21.3.3 阴阳角转角处应做成圆弧或45°(135°)折角,其尺寸视卷材品质确定。在转角处,阴阳角等特殊部位,增贴1-2 层相同的卷材,宽度不宜小于500mm, 泛水高度不应小于150mm(自结构层算起)。
21.3.4 管道穿过防水层处,应设置固定式或套管式穿墙套防水。
21.3.5 在铺设找平层前,对立管、套管和地漏与楼板节点之间进行密封处理。并在管四周留出深8~10mm 的沟槽,采用防水卷材或防水涂料裹住管口和地漏。
21.3.6 铺设防水材料时,首先制定施工程序,按施工工艺施工,在穿过楼板面管道四周处,防水材料向上铺涂超过套管的上口。
21.3.7 铺设完毕后,做蓄水试验,蓄水深度宜为20~30mm, 24h 内无渗漏为合格,并做好施工记录。
21.3.8 厨房、卫生间内排风竖管采用变压式预制通风道,其截面大小根据楼层数由设计单位计算确定。保证排气孔直径不小于150mm。
墙体、门窗膀防潮、防霉变措施
施工时,严格控制水灰比,保证砂浆的和易性,严格控制砌体的灰浆饱满度。保证砌体灰缝严密,不渗漏,不结露。
21.4.2 门窗与墙体结合处采用膨胀型聚氨酯发泡进行保温处理,窗框四周内外嵌胶进行密封,防止冷桥雨水的侵入。杜绝室内墙面和门窗膀结露、潮湿、发霉等现象发生。
21.4.3 外窗台、挑檐等部位,按设计要求做出鹰嘴或滴水槽,防止雨雪水向墙体渗透,导致墙体受潮变霉。
地下管线及其他地下、地上设施保护加固措施
在工程开工前及时与建设单位勾通了解地下管线布置情况,在施工中采取有效措施加以保护,并及时向监理单位报告,
22.1 基础施工中,如遇地下管线时用混凝土块垫上做成坡道或采取临时支架和围设木板进行保护;对地下其他设施搭设临时支架和围设木板进行保护,保证施工中不断不漏。
22.2 地上的树木,树干缠上草绳并搭设防护架加以保护,防止施工中受到损坏。
22.3 对地上风景名胜古迹等设施搭设防护棚或支架进行防护以防施工中受到损坏。
与监理部门协调配合措施
为了保质、保量,按期完成本工程施工任务,在施工过程中积极配合监理单位的工作,接受监理单位的监督与监控。
质量控制配合
23.1.1 开工前,将施工现场质量管理制度、各项质量责任制度及项目经理部组织机构等资料,以书面形式呈报监理单位,保证项目机构人员与现场实际工作人员相符,不随意更换。
23.1.2 工程施工前,将施工组织设计、工程重点部位、关键工序的施工方法、施工工艺和确保工程质量的措施报呈监理部审核,审批后方可施工。
23.1.3 施工前,首先对建设单位给定的水准点标桩位置进行复验,准确无误后方可对建筑物进行定位放线及桩位定位然后通知监理单位进行复核,合格后方可进入下道工序施工。
23.1.4 施工过程中对各关键部位及重要结构工程在隐蔽前及时通知监理工程师核查后方可隐蔽。
23.1.5 施工过程中对所完成的各分部分项工程要及时向监理部报验验收。
23.1.6 对进场的各种原材料构配件,及时向监理部提供产品合格证及二次化验单,钢筋、混凝土及砂浆等取样送检,必须在监理工程师的监督下进行。
进度控制配合
23.2.1 及时向监理部提交施工总进度计划及各分部分项工程的进度计划。
23.2.2 定期向监理部提交施工进度计划报表,以便监理部能及时掌握工程进展情况。
23.2.3 对影响施工进度的各种问题及时向监理部反映,协调解决。
投资控制配合
23.3.2 及时向监理部提交已完工程量报告,以便监理部对已完工程量进行核验。
23.3.3 对现场施工中的设计变更,材料替换以及现场签证,及时向监理部汇报核查。
分包单位组织管理措施
该工程具有:结构较复杂、专业技术难度高、功能比较多,工程量较大等特点,为保证工程工期和质量,无粘结预应力混凝土、玻璃幕、消防、通风、电信、钢网架等分项工程选择专业队伍分包,为使各分包队伍在施工中有效利用时间、空间采取如下措施:
对分包单位组织原则:管理与服务。
(1) 工期控制:对分包单位工期控制是管理原则中重要组成部分,必须依据施工计划在限定时间内进行,不能提前,也不能拖后。
(2) 质量控制:对分包单位质量控制是管理原则中另外一个重要组成部分,对质量控制主要是审查分包单位施工方案中工期、施工方法、质量标准是否符合规定,检查分包单位进场材料是否达到质量标准,依据规范标准检验分包单位已完项目是否达到质量标准,检查分包单位现场系统试验是否合格,检查分包单位工程内业是否符合要求。
(3) 工程交接控制:组织分包单位工程交接是第三个重要组成部分,主要是组织交接班双方验收并有三方签字。
(4) 成品保护控制:分包单位对已完成品保护是保证工程质量的重要措施,必须经常检查分包单位在施工过程中对已完成品保护情况。
24.1.2 服务原则
(1)为分包单位提供施工现场和材料堆放现场。
(2) 有偿为分包单位提供垂直运输设备、脚手架、临时设施等。
(3)有偿为分包单位提供施工用水、用电。
组织分包单位参加验收
24.2.2 组织分包单位参加最终验收。
预防传染性非典型肺炎措施
预防传染性非典型肺炎( 以下简称“非典”) 是关系到国民经济和社会发展大局性问题,由于施工企业流动性较大,预防“非典”工作更为重要,做好施工现场预防“非典”具体措施如下:
加强领导,提高对预防“非典”工作重要性的认识
由于施工现场人员密集,外来人员多,最易引发外来病菌的入侵、传播、流行。做好“非典”预防工作是项目部一项重要工作。施工现场成立以项目经理为首的预防“非典”工作领导小组,负责预防“ 非典”日常管理工作,组织制定落实有效的预防措施,保障施工人员的健康。
加大预防“非典”知识的宣传工作力度,提高施工人员爱清洁,讲卫生好习惯。
工地设置宣传板报栏,宣传预防“非典”知识和个人卫生知识,供施工人员学习,使每一位施工作业人员都了解“非典”防控措施及救治办法,具备必要的防护“非典”的常识。施工现场的生活区内悬挂开展爱国卫生运动和搞好“非典”防治工作的宣传条幅标语,以提醒人们对预防“非典”工作的重视。
加强预防“非典”工作制度建设
25.3.1 建立用工管理制度,严格控制民工队伍进场,不私招乱雇闲散人员。进入施工现场的人员首先要经过卫生防疫部门检查确认无误后方可进入施工现场(见表25-6)。
25.3.2 加强现场封闭式管理,建立人员出入登记制度,施工
人员外出请、消假制度,不经批准,不得擅自离开现场或返乡(见 134
表25-3~表25-5)。
25.3.3 施工现场的各种临时设施建立卫生清扫制度,保持室内清洁、通风,室外美化绿化,专人负责清扫,垃圾及时清运。
25.3.4 建立消毒制度。工地设专职消毒员,负责每天至少二次用20%的过氧乙酸与水以1:40 的比例配制消毒剂对办公室、宿舍、食堂、浴室、阅览室、厕所等公共设施进行消毒(见表25-2)。
25.3.5 建立每天每人体温测试制度,检查施工人员的日常体温并记录,发现体温异常人员立即报告并送医院检查(见表25-1)。
25.3.6 建立“非典”疫情报告制度。各施工队、班组每日无论有无疫情都要向项目部“非典”领导小组报告情况(见表25-7)。
建设标准化临时设施,创优美生产、生活环境
工地实行封闭式管理,围墙严密牢固,设置钢制大门,切断工地与外界的直接接触,配备门卫人员,确需进入工地的人员,要测量体温,由专人负责接待。施工现场的办公室、宿舍、食堂、阅览室、淋浴室、仓库室内净高不低于2.5m,墙面抹灰刷白,水泥地面,前、后墙设可开启的窗户,保持通风,食堂炉灶台面贴白色瓷砖,有纱窗、纱门、防蝇措施,排水通畅,灶间、贮藏间分设,炊事人员穿工作服,持健康证上岗。宿舍每间居住不超14 人,设单人上下铺钢床,设生活用品专柜。工地厕所按每25 人一个蹲位设水冲厕所,设专人清扫。为使施工人员搞好人个卫生,工地设淋浴室、洗手处用流水洗手。生活区、办公室、仓库等门前种花种草美化环境。创造一个良好的生活、生产环境。
依靠群众,群防群治
搞好施工人员的个人卫生,增强自我防护能力是预防“非典”一项十分重要的措施,每个人都注意搞好卫生,养成一个良好的卫生习惯,促进施工现场爱国卫生运动的开展和创建省、市安全文明工地活动。个人餐具、洗漱用品要专用,实行分餐制,饭前便后要用流水洗手,打喷嚏、咳嗽和清洁鼻子后要及时洗手,洗手后应用清洁毛巾或纸巾擦干,与呼吸道传染病人接触需戴口罩。施工现场每位施工人员要互相监督,发现有高烧、干咳、全身乏力症状人员要及时报告并送到医院检查治疗,经医院诊断为非典型肺炎或疑似病例的施工人员,进行隔离治疗,对接触密切者进行严格观察,对病人的同宿舍人员,同班组人员要进行隔离。工地设专用的“非典”隔离间,控制“非典”的传播。早发现,早隔离,早治疗,切实把“非典”疫情控制住。
施工人员体温测试记录
表25-1
| 姓名 | 测试时间 | 体温 | 姓名 | 测试时间 | 体温 |
审核:记录人:
施工现场消毒记录
表25-2
| 消时 | 毒间 | 消部 | 毒位 | 消毒剂 | 用 | 量 | 消毒员签字 |
请假条
表25-3
| 姓名 | 性别 | 年龄 | 所在班组 | |||||||||
| 请 | ||||||||||||
| 假 | ||||||||||||
| 事 | ||||||||||||
| 由 | ||||||||||||
| 所在地点 | 出发时间 | |||||||||||
| 施 | 项 | |||||||||||
| 工 | 目 | |||||||||||
| 队 | 施工队队长签字: | 部 | 项目经理签字: | |||||||||
| 意 | 意 | |||||||||||
| 见 | 见 | |||||||||||
| 返回工地时间 | 年 | 月日 | ||||||||||
施工人员出入现场登记表
表25-4
| 姓名 | 性别 | 年龄 | 所在单位 | 出场事由 | 出场时间 | 进场时间 | 备注 |
记录人:
年月日
施工现场外来人员登记表
表25-5
| 姓名 | 性别 | 年龄 | 工作单位 | 证件号 | 进场事由 | 进场时间 | 出场时间 |
记录人:
年月日
牡丹江市第六建筑工程公司施工现场管理人员、作业人员登记一览表
施工单位:工程名称:工程地址:登记日期:项目经理:联系方式:民工负责人:总人数:表25-6
| 姓名 | 年龄 | 性别 | 身证 | 份号 | 户口所在地 | 职务或工种 | 来牡时间 | 现住址 | 身体状况 | 备注 |
施工现场防控“非典”情况日报表
表25-7
| 填报单位: | 填报时间: | |||
| 民工总数: | 其中:新增民工数: | |||
| 其他来自疫区务工人员情况 | 当日进入人数: | |||
| 截止本日累计进入人数: | ||||
| 省内民工进入总数: | 人 | 省外民工进入总数: | 人 | |
| 市(县)市(县)市(县)市(县) | 人 人 人 人 | 省 省 省 省 | 市 市 市 市 | ( 人) ( 人) ( 人) ( 人) |
| 隔离 ( 人) | 非典疑似: ( 人) | 非典: | ( 人) |
填报人:负责人:
水暖、电气施工方案
工程概况
26.1.1 电气工程:电源采用电缆直埋进户,引至一层配电室,三相四线制220V/380V 供电。室内配线采用铜塑线穿阻燃塑料管沿墙板暗设,采用铁制配电箱,内设PE 线、N 线端子。
灯具选用:教室采用双管荧光灯,走廊采用半圆吸顶灯。采用联合接地装置,接地电阻不大于1.0Ω。
26.1.2 暖卫工程:本工程暖卫工程主要包括室内采暖、给排水、消火栓给水、通风等系统。
采暖系统采用上供下回单管顺流式同程系统和水平串联双支管系统,热媒为95—70℃热水。管道采用焊接钢管,DN≤40 为丝接,DN>32 为焊接。采暖立支管采用铜闸阀,干管采用蝶阀。散热器采用TZY2-6-5[8] 型普压铸铁散热器。采暖暗装管道采用聚胺脂发泡保温管,保温层厚度为50mm,外套玻璃钢保护壳。采暖明装管道,支架、散热器刷防锈漆一遍,银粉二遍。
给水系统采用下行上给式,给水管采用PP-R 管,熔接。排水管道采用消毒发泡塑料管,粘接。消防给水管道采用焊接钢管,焊接。消火栓采用乙型,水龙带长25m,水枪喷嘴直径19mm, 消火栓口径DN65。给水管道阀门DN50 以下采用铜球阀,DN50 以上采用蝶阀,大便器及小便器采用红外线感应节水器。暗装消防管道,刷防锈漆二遍,明装管道,支架刷防锈漆一遍,银粉二遍。
施工组织机构(见图26-1)

图26-1 水电施工组织结构图
施工准备
26.3.1 施工前组织工程技术人员认真审阅施工图纸,领会设计意图,做好图纸会审工作。
26.3.2 组织有关人员进行现场调查,掌握现场的实际情况,进行合理施工布署。
26.3.3 根据现场情况,选择暂设地点和材料堆放场地。
26.3.4 做好施工所需材料、施工机具及人员进场工作。
26.3.5 做好施工人员进场前的安全技术交底工作。
施工方案及施工方法
26.4.1 施工方案:根据工程特点及土建进度情况适当合理地
调动人力、物力,灵活调整施工程序。本工程按以下工序组织施工:
(1)基础施工:电气工程进行接地装置安装工作,水暖工程进行预埋预留穿越基础的管道孔洞工作。
(2)主体施工:配合土建进行电气线管盒和箱体暗设,防雷引下线施工及暖卫预溜管道洞孔工作。
(3)抹灰工程完毕后,进行穿线、散热器、排水管道、给水管道、消防管道安装工作。
(4)涂料粉刷完毕后,进行配电箱、灯具、开关、插座、卫生洁具安装工作。
(5)屋面避雷带在室外装饰工程完毕后进行敷设。
26.4.2 水、电分部工程主要项目施工方法
(1)电气工程
1)本工程配合土建主体施工工程量较大,合理安排人力做好配合工作,模板支撑完毕后,依照电气图纸进行灯位定位及开关管梁内钻孔,电线管在底筋绑扎完毕后进行,绑扎牢固,混凝土浇筑时,设专人看护已敷设完毕的电线管,禁止人员踩踏,对于接头、接线盒及梁转角处线管重点看护,钢管采用专用连接管件连接,禁止焊接防止破坏内锌层,模板拆除,抹灰之前,及时进行扫管,对于有问题管路及时处理,避免给穿线留隐患。将箱内及开关、插座盒内管口封好,抹灰后,进行穿线,导线规格严格按施工图纸选用,走廊、阶梯教室及其他场所成排灯具,采用挂
线方法,控制成排灯具直线偏差在5mm 以内。灯具、开关、插座安装注意对墙面成品的保护。设于地下的电线管路在地面土建夯实之后进行,设于垫层内。防雷接地工程暗设于非混凝土内的材料均选用镀锌材料,严格控制钢材搭接焊长度,埋于地下的焊口刷沥清漆防腐。
2)配电箱、照明器具安装完毕后,在总进户通以三相临时电源,进行通电试验,通电试亮在24h 以上无故障。
(2)暖卫工程
1)本工程在土建主体施工时,暖卫工程安排专人负责与土建的配合工作。在土建绑扎楼板钢筋时,应由专人进行各种管道孔的预留工作。在各种管道图纸位置放置塑料管,然后用绑线加以固定。楼板混凝土浇筑时,应由专人看管,以保证预留孔位置的正确,待混凝土强度达到50%时,将塑料管加以松动拔出。土建室内抹灰完毕后,即可进行室内给排水、消防、采暖管道的安装。管道外皮距离装饰面为20~50mm,管道应严格按照图纸位置及坡度进行施工。散热器应组对试压合格后方可进行安装。散热器安装垂直中心线与窗口中心线重合,内表面与墙面距离为30mm。采暖管道安装要严格按照设计坡度进行,立支管距墙20mm,干管距墙50mm。卫生陶瓷的安装在室内装饰完毕,给排水管道施工完毕后进行。卫生洁具的安装应采用地脚螺栓或膨胀螺栓加以固定,安装位置应合理,方便使用,安装应平稳、牢固、美观,安装完毕,应进行灌水试验,通水试验。
2)暖卫工程施工完毕后,应进行各系统的试水、通水调试,以检查各系统是否渗漏、通畅,从而保证使用功能。
各项技术组织措施
26.5.1 保证质量措施
(1)各种原材料、设备入场必须有合格证,对于质量不合格的材料,严禁安装使用。
(2)设立专职的质量检查人员,加强质量监督保障体系,定期对工程质量进行检查。
(3)对于各种隐蔽工程,必须经甲、乙、监理三方检查后,并在记录上签字、盖章、方可进行隐蔽。
(4)管道、阀门、散热器试压,必须经甲、乙、监理三方检查后,并在记录上签字、盖章方可安装。
(5)严格按施工规范和图纸要求施工。
26.5.2 保证工期的措施
(1)合理利用人员,精心组织施工,力求增加作业面,必要时考虑加班作业。
(2)加强安装前予制件的准备工作。
(3)加强专业队伍作业,加快施工进度。
(4)与各有关单位配合,做好各专业交叉作业的协调,及时创造施工条件,提前施工。
(5)根据土建施工进度,灵活安装和调整施工程序。
26.5.3 保证安全生产、文明施工的措施
(1)施工前要进行班前安全教育。
(2)夜间或地沟内施工要有足够的照明。
(3)各种施工电线、电缆要有良好的绝缘。电焊机等设备要有
漏电保护装置。
(4)安装机具使用前,要进行全面检查。
(5)进入施工现场,必须戴安全帽,防护用品要齐全,充分利用“安全三宝”。
(6)严禁酒后作业。
(7)材料堆放要平整,牢固,严禁超高堆放。
26.5.4 降低成本的措施
(1)管件、短丝尽量考虑加工预制。
(2)管材要合理下料,减少损耗,短管要合理利用。
(3)分层、分环路计划领料,加强施工现场管理,材料要当天清理。
(4)加强工程的质量管理,消除质量隐患,避免返工现象。
(5)杜绝浪费,做到人尽其才,物尽其用,减少管理费支出。
(6)搞好文明施工,开展双增双节活动,开展提合理化建议活动。
劳动力需用计划(见表26-1)
水电施工劳动力需用计划表表26-1
| 序号 | 工程名称 | 需用人数及进场日期(2003 年) | 需用人数及进场日期(2004 年) | |||||
| 8 月 | 9 月 | 10 月 | 4 月 | 5 月 | 6 月 | 7 月 | ||
| 1 | 预留暖卫洞口 | 2 | 2 | 2 | ||||
| 2 | 排水管道安装 | 4 | 2 | 6 | ||||
| 3 | 采暖管道安装 | 4 | 2 | 6 | ||||
| 4 | 散热器安装 | 6 | ||||||
| 5 | 给水管道安装 | 4 | 2 | 6 | ||||
| 6 | 卫生洁具安装 | 2 | 6 | |||||
| 7 | 系统试水调试 | 4 | ||||||
| 8 | 接地装置安装 | 4 | 2 | |||||
| 9 | 电线导管敷设 | 6 | 8 | 4 | ||||
| 10 | 电线穿管敷设 | 6 | 6 | |||||
| 11 | 照明器具安装 | 4 | 10 | |||||
| 12 | 配电箱安装 | 6 | ||||||
| 13 | 避雷网安装 | 4 | ||||||
| 14 | 系统通电试验 | 4 | ||||||
工程量一览表(见表26-2)
水电工程量一览表表26-2
| 序号 | 分项工程名称 | 单位 | 工程量 | 备注 |
| 1 | 配电箱安装 | 台 | 35 | |
| 2 | 电线导管暗设 | m | 11780 | |
| 3 | 电线穿管敷设 | m | 33109 | |
| 4 | 开关安装 | 套 | 314 | |
| 5 | 插座安装 | 套 | 227 | |
| 6 | 照明灯具安装 | 套 | 1667 | |
| 7 | 引下线敷设 | m | 769 | |
| 8 | 避雷网安装 | m | 716 | |
| 9 | 接地极制安 | 根 | 7 | |
| 10 | 焊接钢管安装 | m | 3133 | |
| 11 | 散热器安装 | 片 | 6950 | |
| 12 | UPVC 排水管安装 | m | 732 | |
| 13 | PP—R 管安装 | m | 527 | |
| 14 | 阀门安装 | 个 | 337 | |
| 15 | 卫生洁具安装 | 套 | 206 | |
| 16 | 支架安装 | Kg | 540 | |
| 17 | 消火栓 | 套 | 41 |
主要机具设备计划(见表26-3)
水电主要机具设备计划表表26-3
| 序号 | 名称 | 规格、型号 | 单位 | 数量 |
| 1 | 电焊机 | 14kVA | 台 | 2 |
| 2 | 砂轮切割机 | 2.2kW | 台 | 2 |
| 3 | 电锤 | 台 | 3 | |
| 4 | 兆欧表 | ZC—70 0~500V | 台 | 1 |
| 5 | 接地电阻测试仪 | 台 | 1 | |
| 6 | 合梯 | 5m | 付 | 2 |
| 7 | 磁力线坠 | 个 | 2 | |
| 8 | 工具箱 | 个 | 2 | |
| 9 | 冲击钻 | 把 | 2 | |
| 10 | 台钻 | 台 | 1 | |
| 11 | 电动套丝机 | 台 | 1 | |
| 12 | 热熔机 | 台 | 4 | |
| 13 | 电动压泵 | 台 | 1 | |
| 14 | 气割工具 | 套 | 2 | |
主要材料计划(见表26-5,表26-6)
| 序号 | 名称 | 规格 | 单位 | 数量 |
| 1 | 配电箱 | 台 | 35 | |
| 2 | 阻燃塑料管 | φ20 | m | 10900 |
| 3 | 阻燃塑料管 | φ50 | m | 640 |
| 4 | 阻燃塑料管 | φ40 | m | 1300 |
| 5 | 阻燃塑料管 | φ16 | m | 95 |
| 6 | 镀锌钢管 | G15 | m | 5878 |
| 7 | 开关插座线盒 | 中八角、86 盒 | 个 | 3295 |
| 8 | 铜塑线 | BV—502 | m | 310 |
| 9 | 铜塑线 | BV—252 | m | 3100 |
| 10 | 铜塑线 | BV—162 | m | 1300 |
| 11 | 铜塑线 | BV—42 | m | 2100 |
| 12 | 铜塑线 | BV—2.52 | m | 26040 |
| 13 | 铜塑线 | BV—352 | m | 1320 |
| 14 | 开关、插座 | 套 | 680 | |
| 15 | 灯具 | 套 | 1767 | |
| 16 | 镀锌圆钢 | φ12 | m | 730 |
水暖部分主要材料计划表26-6
| 序号 | 名称 | 规格 | 单位 | 数量 |
| 焊接钢管 | DN150 | m | 21 | |
| 焊接钢管 | DN100 | m | 290 | |
| 焊接钢管 | DN80 | m | 185 | |
| 焊接钢管 | DN70 | m | 135 | |
| 焊接钢管 | DN50 | m | 330 | |
| 焊接钢管 | DN40 | m | 235 | |
| 焊接钢管 | DN25 | m | 587 | |
| 焊接钢管 | DN20 | m | 1350 | |
| 型钢 | kg | 540 | ||
| 阀门 | DN65 | 个 | 10 | |
| 阀门 | DN50 | 个 | 13 | |
| 阀门 | DN40 | 个 | 30 | |
| 阀门 | DN25 | 个 | 98 | |
| 阀门 | DN20 | 个 | 170 | |
| 阀门 | DN15 | 个 | 16 | |
| 散热器 | TZY2-6-5[8] | 片 | 6950 | |
| UPVC 排水 | DN150 | m | 288 | |
| UPVC 排水 | DN100 | m | 256 | |
| UPVC 排水 | DN75 | m | 50 | |
| UPVC 排水 | DN50 | m | 138 | |
| PP—R 管 | φ50 | m | 215 | |
| PP—R 管 | φ25 | m | 135 | |
| PP—R 管 | φ32 | m | 177 | |
| 消火栓 | φ65 | 套 | 41 | |
| 洗脸盆 | 套 | 62 | ||
| 蹲便 | 套 | 144 | ||
| 挂式小便器 | 套 | 43 |
================================================================
说 明
景观园林、建筑、规划、室内装修、建筑结构、暖通空调、给排水、电气设计、施工组织设计
雅居云录分户验收:批量上传,自动排版,省时省力,规范标准。