天 钢 中 厚 板 工 程
1号电气室地下室底板、墙砼结构
施 工 方 案
编制人: 日期:
总工程师: 日期:
项目经理: 日期:
xxx工程一公司专业项目部
2005年5月31日
编号:
施工方案会签单
编号:
| 工程名称 | 1号电气室地下室底板、墙砼结构 |
| 方案内容 | 工程概况及结构特点、编制依据、施工布置、施工准备、主要施工内容及施工方法、质量控制及保证措施、雨季施工保证措施、安全文明施工与环境保护措施 |
| 评审结果 | |
| 项目经理批准 | |
| 相关部门会签 |
审 批 栏
| 天钢轧钢指挥部:
我公司承担的天钢3500mm中厚板工程,主电机室及1#电气室方案已经有关工程技术人员审核,请贵方予以审定。 |
- 工程概况
本工程为天钢东移厂区中厚板工程中1#电气室及电机室的-列1米以南,线至线-3.5米,即1号电气室部分,根据到图情况,本次方案为地下室钢筋混凝土底板及墙体部份,其以上结构待图纸到后再补充。
底板标高为▽-6.500,集水井处标高为▽-7.500,板厚为900,墙厚600。 采用C30防水混凝土,抗渗等级S6,垫层采用C10级混凝土.
地下室底板底部钢筋保护层为100mm。顶部、侧壁钢筋保护层为40mm。混凝土量约为2100m3,钢筋约350t。
地下室墙壁施工到▽-2.000。
- 编制依据
- 设计图纸
| 名 称 | 图 号 |
| 1#电气室及主电机室地下室平面图之一 | 38.392J6 – 4 |
| 1#电气室及主电机室地下室平面图之二 | 38.392J6 – 5 |
| 1#电气室及主电机室地下室剖面图 | 38.392J6 – 6 |
-
- 工验收规范、标准
| 名 称 | 标准号 |
| 《建筑施工质量验收统一标准》 | GB50300 – 2001 |
| 《地下防水工程质量验收规范》 | GB50208 – 2002 |
| 《混凝土结构工程施工质量验收规范》 | GB50204 – 2002 |
三、施工安排:
1、施工组织机构:
项目经理
副经理
技 施 经
术 工 营
负 负 预
责 责 算
人 人
技 施 档 钢 机 木 混 材 设
术 工 案 筋 电 工 凝 料 备
质 安 资 工 负 工 土
量 全 料 长 责 长 工
人 长
2、施工程序:清理基层 垫层 底板施工 墙壁施工
交接验收。
3、施工顺序:
清理基层 放线 复查 支模 检查
加工钢筋 运输 布筋绑扎 接头焊接 检查
浇灌底板混凝土 拆模、养生
围墙钢筋加工 绑扎 支模 检查 浇灌混凝土 拆模、养生
- 施工分段及进度安排:
根据现场实际情况,施工场地非常狭窄,采用分段施工方法,先施工11线以东部分底板及墙壁,钢筋对焊场地放在西边,以节省部分转运时间,待东边底板施工完毕后将对焊设备挪到东边,制作11线以西底板钢筋。分段间底板及墙壁施工缝加设钢板止水带及钢丝网。西段底板施工可以与东段墙壁施工穿插进行,能节约部分工期时间。总体进度控制在一个月内完成(进度计划详见附图)。
5、劳动组织: 木工 65 人
钢筋工 35 人
混凝土工 10 人
电工 2 人
焊工 5 人
普工 30 人
其他 10 人
6、施工机(仪)器
名 称 数量
钢筋调直机 2 台
钢筋切断机 2 台
钢筋对焊机 1 台
交流电焊机 4 台
钢筋弯曲机 1 台
电锯刨床 2 台
砼泵车 2 台
振动器 8 套
全站仪 1 套
水准仪 2 套
拖拉机(20马力) 1 台
板(架)车 1 台
套丝机 2 台
四、施工准备
1、技术准备:
组织有关技术人员,预算员、测量员审查并熟悉图纸,明确结构特点和细部作法,做好各项技术资料和相关图集,规范的准备工作,并与建设单位,设计单位作好图纸会审,做好施工前期的一次性洽商,在审图和熟悉图纸的基础上列出需要解决的问题,组织技术交底和图纸会审。
2、生产准备:材料员向甲方申报钢材、领料,按规格堆放标示。
3、钢筋加工场按施工平面图放置机具,堆放钢材、预埋
件。
4、勘察现场,接通施工用电源、用水,设置现场照明,确定运
材通道。
五、主要施工方法:
1、钢筋工程:按03G101-1、04G101-3施工规范,按图纸做好钢筋用料表,计算钢筋用量,由专人指挥配料、成型,按规格分类堆料和绑扎,以免混乱。
钢筋接头采用对焊为主,部份用绑条焊及帮扎搭接,并保证焊缝、搭接长度.箍筋按图成型.绑扎箍筋时铁丝扣要相互成八字型,保证箍筋的间距,加密的部位、高度。
底板下层钢筋用100×100×100预制块支垫,上层钢筋用角钢支架托垫,每排支架间距为1.5m。为保证墙体钢筋垂直,外侧应加双排脚手架支护。钢筋托架图如下:

2、模板工程:
采用15*1220*2440黑色光面大模板支设,用木枋备楞,脚手管支设加固的方法,木枋备楞间距@250。木模板截割时要棱角平直、保证接缝紧密,接缝用胶纸粘贴,以防板缝漏浆影响混凝土外观。
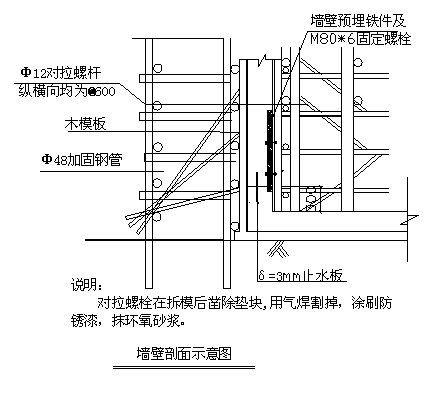
底板外模考虑两道对拉螺栓间距@600加固,搭接焊在对应底板钢筋上,内侧300高模板用40*4角钢焊托架,立柱间距@1500焊接在底板钢筋上,800高,上接横向角钢400长,斜撑500长。墙面预埋铁件采用M80*6螺栓与模板紧固,以保证铁件平直不凹变形进砼内。底板、墙模板支模图:


对拉螺杆中间焊止水环,两侧契形块内侧焊φ10钢筋头,并保持两契形块外侧的距离为600。 如下图示:


模板支设前必须涂隔离剂,墙模板的下脚必须留有清理孔,
以便清理垃圾。
模板支设前必须把己经施工的预留筋清理干净,结合部位的混凝土进行凿毛,剔除浮浆、松散物,扫净灰尘,经检查后方可合模。
模板工程检查的重点为控制高度、垂直度、平整度,预埋件、预留孔数量、位置等。
模板拆除:拆除时以混凝土强度能保证其表面及棱角部不损坏为宜。
拆模时不要用力过猛,拆下的材料要及时运走,随时清理干净,涂刷隔离剂,分堆堆放整齐,以便再用。
3、混凝土工程:
(1)底板从线至以西2米;以西2米至以西3.5米分二段浇灌,止水板、密眼钢板网设在以西2米至以西3.5米处,以便后续施工。振捣要密实,确保抗渗要求。
(2)采用商品混凝土,浇灌前搅拌站必须提供水泥、砂、石及外加剂实验报告,必须有予拌混凝土合格证书,经检查证件齐全后方可使用。底板混凝土与相接的300高下部墙体一次浇灌。并在墙体300高处埋止水板。
混凝土罐车运混凝土到现场,出罐混凝土应保持良好的和易性,坍落度应符合配合比要求,若发现离析,应进行二次搅拌后使用。
(3)养生:满铺麻袋片覆盖、洒水、保温养生。
4、脚手架支设:
墙体的内外模板要用双排脚手架支撑,扣件连接,搭设时每6跨设1根抛杆,纵向水平接长采用搭接,搭接长度不小于1m,横向水平杆间距不应大于立杆纵距的1/2。
墙体钢筋未合模前要用支撑模板的脚手架支撑,以保证钢筋的稳定、垂直。
六、质量控制及保证措施:
1、质量控制措施:
-
- 建立质量保证体系
- 建立自检、互检、交接检的三检制度,对钢筋绑扎、支模的尺寸、质量进行检查。
- 钢材进场后必须取样送检,合格后方可使用,按规格及型号进行堆码、标示。
- 混土浇灌时必须按班取样成型,随件养生送检,并索取报告。
- 钢筋进场时,要用枕木支垫,以防粘附泥土。
2、保证措施:
(1)建立质量保证体系,责任到人,管理到位,进行质量意识教育,做到心想质量、干活保证质量。
(2)施工资料,及时将试验报告反馈,以便随时了解质量情况,采取必要的措施,保证施工的正常进行。
(3)写、收集资料时,一定要书写清楚,手续齐全。
七、雨季施工的保证措施:
1、随时掌握气象情况,以便及早安排防雨措施。
2、现场要准备好防雨布,以备正在浇灌的混凝土遇雨时进行覆盖。
3、施工区四周要设排水沟,以利排水,并用水泵将积水抽出。
4、模板的隔离剂如被雨水冲刷,要及时补刷隔离剂。
5、钢管支架垫脚板要支垫牢固,防止下雨时下沉松动。
6、底板南侧围护桩间隙遇雨时,泥水流入,因此,在底板开始施工前,用红砖砌300高240厚挡水沟墙挡水,并设3处240厚砖砌直径1米、深1米集水井,便于抽水。6线处底板集水井施工在外侧增设一个降水井比其低500,以利于排除井内滞留水。如下图示:

八、安全文明施工
1、安全措施管理
- 安全帽每人一顶,必须佩带。
- 高空作业要系安全带。
- 安全人员要在现场随时检查,发现有违安全的地方要及时纠正。
- 气温高时,最好措开高温时段作业,以防中署。
- 混凝土操作人员要站在稳固的平台上作业,避免采空。
- 必须保证使用的机具、电器、电线的安全,严禁漏电作业,严格执行一机、一闸、一漏保的措施。
- 配电箱必须安装合格的漏电保护器,随时关好箱门。
2、文明施工管理
- 必须统一着装、配戴有二十冶标识的安全帽,否则不准入场。
- 进场的材料、机具,必须堆放整齐,要按规格插牌标示。
- 小型机具进入现场要按要求布置,搭设防雨盖要统一标准(用彩板)。
- 配电箱的配线要规范整齐,定期清扫,保持清洁。
- 模板、脚手架、扣件、木材要堆放整齐有序。
- 现场施工产生的固体废弃物,应及时与甲方联系回收处理。
- 施工区的生活垃圾要定点投放,定时清理。
- 缆禁止乱拉乱接临时施工用电的电。
- 现场的运输车辆严禁装载过多,有条件的要进行覆盖,严禁随地洒落。
3、环境保护
为了保护和改善生活环境,防止由建筑施工造成的作业污染和扰民,保障建筑工地附近的居民和施工人员的身体健康,必须做好施工现场的环境保护工作。
①、防止大气污染
(1)由高处清理垃圾严禁凌空抛撒造成扬尘。施工垃圾要及时清运,清运时,适量撒水减少扬尘。
(2)施工现场要在施工前做好施工道路的规划和设置,施工现场道路必须进行硬化处理。可利用设计中永久性的施工道路,也可采用临时施工道路,基层要夯实,路面铺垫细石,并随时撒水,减少道路扬尘。
(3)散水泥和其他易飞扬的细颗粒散体材料应尽量安排库内存放,如露天存放应采取防潮地坪严密遮盖,运输和装卸时防止遗撒飞扬,以减少扬尘。
(4)现场施工车辆尾气排放要符合标准,严禁不合格车辆进场。
(5)现场及生活区内严禁烧煤等空气污染严重的材料。
②、防止水污染
(1)搅拌站必须在搅拌机前台及运输车清洗处设置沉淀池。排放的污水要排入沉淀池内,经二次沉淀后方可排入污水管线或回收用于洒水降尘。未经处理的泥浆水、污水严禁直接排入排水设施和河流。
(2)施工现场临时食堂要设置简易有效的隔油池。产生的污水要经过隔油池。平时加强管理,定期掏油,防止污染。
(3)施工现场要设置专用的油漆油料库,油库内严禁放置其他物资,库房地面和墙面要做防渗漏的特殊处理,存储、使用和管理要专人负责,防止油料的跑、冒、滴、漏,污染水体。
③、防止噪声污染
(1)防止施工噪声污染
(2)电锯使用时,出料口应设三角形开口器减少木料夹锯片发出的噪声,或设专屋。
(3)对施工人员进场进行文明施工教育,施工中或生活中不准大声喧哗,特别是晚上10点以后,早6点以前不准发生人为的噪声。
④、防止固体污染
(1)垃圾清运不得装车过满,防止垃圾遗撒。
(2)施工现场及钢筋厂的钢筋头、钢筋碎沫、锯末等固体废物要集中堆放,及时清理。

说 明
景观园林、建筑、规划、室内装修、建筑结构、暖通空调、给排水、电气设计、施工组织设计
ftp://xingxin.gnway.net