目录
第一章 工程概述 2
第二章 施工总平面布置 10
第三章 施工组织及资源配置 34
第四章 工程施工进度计划 48
第五章 工程施工管理 58
第六章 质量控制与检验 82
第八章 施工技术方案专题说明 129
工程概述
1.1.1 概况
某水电站位于沅水干流上游河段的清水江中下游,贵州省黔东南苗族侗族自治州锦屏县境内,上距剑河县城80km,下距锦屏县城25km,是沅水干流15 个梯级电站中的第二级,为沅水上唯一具有多年调节性能的龙头水电站。电站为I 等工程,工程规模为大(I)型。工程枢纽布置为:河床布置主坝,左岸布置副坝,坝型均为混凝土面板堆石坝,
地下引水发电系统布置在右岸。水库正常蓄水位475m,相应库容37.48亿m3,有效库容26.16 亿m3。
引水发电系统由三大系统组成:引水系统、厂房系统和尾水系统。
主要由引水洞、主副厂房、母线洞、主变开关洞、尾水调压井、尾水洞、电缆竖井、尾水闸门竖井、施工支洞、进厂交通洞、主排风洞、母线排风洞及竖井、排水廊道等地下建筑物和进水口、尾水出口、出线平台等地面建筑物组成。
地下厂房内装有4 台单机容量为250MW 的立轴混流式水轮发电机组,采用一机一洞引水的布置方式,尾水系统采用2 机共用一个调压井和一条尾水隧洞的布置型式。电站保证出力234.9MW,多年平均发电量约24.28 亿kW·h,以一回500kV 电压等级接入湖南电网的邵阳变电站。电站在系统中担任调峰、调频和事故备用。
地下厂房区布置有主副厂房、安装场,其主要尺寸为147.20m×22.70m×60.01m(长、宽、高),底部设有检修排水廊道(高程291.24m)。在主厂房端头靠4#机侧布置有六层的中控楼。主变开关洞位于主厂房下游并与之平行,洞室间岩墙厚31.50m,主变开关洞尺寸为111.00m×23.00m×30.80m。主变开关洞与主厂房之间有4 条母线洞,洞宽为7m,地面高程为322.70m。尾水系统由4 条8.9m×11.5m 的尾水支洞、2 个圆形阻抗式调压井、2 个“2 合1”的岔洞、2 条圆形尾水隧洞及尾水出口等建筑物组成,尾水支洞闸门竖井在主变开关洞下游边墙处,孔口尺寸为8.90m×3.0m。
发电机与变压器组采用联合单元接线,发电机出口装设发电机断路器。发电机至主变间用15.75kV 离相封闭母线连接,主变通过油/SF6套管和管母线(GIB)直接与500kVGIS 连接。GIS 通过500kV 挤包绝缘电缆与户外出线平台设备连接。
电站采用开放式全分布计算机监控系统。电站设有中控室,负责对全厂设备进行操作、控制和监视。每台机布置有机组励磁、调速器、辅助设备控制屏和保护屏、计算机监控系统现地控制单元等。
1.1.2 工程自然条件及对外交通
工程现场的环境温度从最低-8.4℃到最高38.3℃之间变化,最低月平均气温2.2℃,最高月平均气温32.4℃,多年平均相对湿度84%,多年河水平均流量为240m3/s。电站所在地区地震基本烈度小于里氏六度。
三板溪电站对外公路从湖南靖州县境内309 国道的响水坝接线,至大坝下游的清水江大桥约82km,路面为混凝土,宽6.5m。公路沿线桥涵荷载标准为汽—20、挂—300。厂内混凝土路面宽10.5m,大桥荷载标准为汽—60、挂—200。铁路运输最近的是靖州县艮山口车站,距离工地约88.6km。进厂交通洞的尺寸为7.0m×(7m 直段+2m 顶拱),厂内设备吊物孔尺寸为:发电机层4.8m×3.0m;母线层3.0m×2.5m;至水轮机层以下均为2.5m×2.5m。
1.2 工程范围
本合同机电安装工程的项目和工作内容包括以下设备的到货、卸货、现场验收、仓储保管、二次运输、安装、调试、启动、试运行、维护和保修期内的保修至移交发包人的全部工作(包括为完成合同所需的临时设施等):
(1) 混流式水轮发电机组4 台套(含混流式水轮机及其微机调速器油压装置;250 MW 水轮发电机及微机可控硅静止励磁设备;水轮发电机组控制、保护及测量屏柜等;机组单元内油、气、水、量测、消防系统管路及设备)。
(2) 2 台套400/100/10t 桥机本体及其配套设备、1 台套10t 桥机及其配套设备,桥机轨道、滑线安装。
(3) 公用系统
a、4 台套发电机电压配电装置;
b、计算机监控系统设备(不包括机组LCU,但包括与其连接的电缆);
c、通信系统;
d、直流系统;
e、工业电视系统;
f、接地工程(含整个电站的接地,其中土建已预埋的进行交接);
g、照明工程(含坝区的室外照明);
h、油、气、水、水灭火和水力测量系统设备、管路、控制、保护、监测工程;
I、通风、空调系统设备及管路工程;
j、机电埋设件;
k、消防系统。
(4)主变及其辅助设备
4 台套主变压器及保护、控制监测设备
(5)500kVGIS 及其辅助设备
a、500kVGIS 及其辅助设备,包括2 个进线间隔,1 个出线间隔,1 个PT 和避雷器间隔,4 隔离开关和电流互感器间隔、500kV SF6管母线;
b、500kVGIS 控制、保护、监测及自动化设备(包括母线保护、各线路保护、故障录波装置及安全自动装置);
(6) 500kV 挤包绝缘电缆及其辅助设备,总长度约1200m,最大输送容量1150MW
(7) 500kV 出线平台设备,包括出线并联电抗器、SF6/空气套管端、SF6 管母线、户外电缆终端、隔离开关、避雷器、阻波器、电容式电压互感器、500kV 控制保护设备等
(8)与上述设备有关的辅助设备的安装
本工程计划于2005 年12 月底第一台机组投入运行,2006 年9 月底全部机组投产。
1.3 工程特点
1、根据某水电站施工工程进度安排,4#机尾水管交付安装工作面时间为2004 年4 月,桥机到货时间为2003 年10 月30 日,因此在4#机尾水肘管等水下埋设件安装期间,厂房桥机能投入正常使用,使水下部件的吊装具备了有利条件。
2、某水电站施工由于受自然条件的限制,相对的空闲场地较少,对于工地成套设备材料存放及生活福利设施等的布置空间相对有限。为此,我局将充分利用我局土建已参与电站地下厂房施工的有利因素,进行资源综合调配,使有限的资源得到充分利用。利用土建与机电安装高峰期的时间差,进行综合考虑,合理安排调配施工人员的住宿、生活用水、用电、医务人员等,适当减少新建生活住房的建筑面积,充分利用有限的空间。同时合理安排设备材料进场时间,主要大件设备尽量直接拉进厂房卸车,减少仓库面积使用量及二次倒运工作量。
3、主厂房桥机为单小车电动双梁式,额定起重量主钩为400t、副钩为100t,主梁重约70t,安装时在主厂房安装场顶部没有设吊点,因此需要制订专门的技术措施来实施施工,我局对此作了专门的阐述。
4、某水电站以一回500kV 接入湖南电网,与近区电网无联络,首台机组调试试运行时厂用电从施工变电站以10kV 引入。我局将根据厂用电系统的实际容量与有关单位协商在首机发电前自行设计完成该线路。同时为了确保电站的安全试运行,我方考虑自带一台40kW 的柴油发电机以满足渗漏排水及临时照明的保安电源的需要。
5、按某水电站施工进度安排,电站机电安装从肘管吊装到第一台机组发电前后共约21 个月的时间,后续机组发电时间间隔3 个月。根据我局在小浪底水电站的施工经验,从肘管安装到第一台机组投产,一般情况需18~22 个月,其它机组按每台机相继3~4 个月投产。从某水电站设备的到货情况来看,部分设备的到货相对较晚,如2#机调速器电气柜、软件、电缆等2006 年4 月到货,6 月发电;1#机自动化系统设备等2006 年7 月到货,9 月发电。因此本工程施工的高峰期较为集中,只要加强土建与机电安装及各方面的密切配合,加强设备到货检查,安排施工紧凑,调配得当,按期发电是可以实现的。
6、某水电站安装的机组为低水头、低转速机组,生产厂家为哈尔滨电机厂,安装位置在地下厂房。我局对此类型的机组安装及施工环境具有较强的实际施工经验,积累了丰富经验(熟悉哈尔滨电机厂厂家的设备)。现将某水电站与小浪底的机组主要特性参数对比如下:
某水电站与小浪底的机组主要特性参数对比 表1-1
| 序号 | 项目名称 | 某水电站 | 小浪底电站 | |
| 1 | 主厂房桥机 | 2 台400t/100 单小车电动双梁桥式起重机 | 2 台500t/250 双小车电动双梁桥式起重机 | |
| 2 | 蜗壳进口直径 | 6050mm | 7000mm | |
| 3 | 转轮标称直径 | 5000mm | 6570mm | |
| 4 | 水轮机额定出力 | 256.5MW | 306MW | |
| 5 | 额定流量 | 225.00m3/s | 296.0m3/s | |
| 6 | 额定转速 | 166.7r/min | 107.14r/min | |
| 7 | 额定水头 | 128.0m | 112.0m | |
| 8 | 机组型式 | 立轴半伞式发电机、混流式水轮机、 | 立轴半伞式发电机、混流式水轮机 | |
| 9 | 机组数量 | 4 台 | 6 台 | |
| 10 | 发电机冷却方式 | 全密闭循环空气冷却 | 全密闭循环空气冷却 | |
| 11 | 定子型式 | 工地组装叠片、下线 | 工地组装叠片、下线 | |
| 12 | 发电机总重 | 1210t | 1870t | |
| 13 | 发电机额定容量 | 250MW | 333.33MVA | |
| 14 | 发电机额定电压 | 15.75KV | 18KV | |
| 15 | 推力轴承负荷 | 1470t | 3447t | |
| 16 | 机组飞逸转速 | 315r/min | 204r/min | |
| 17 | 生产厂家 | 哈尔滨电机厂 | 卡瓦纳、哈尔滨、东方电机厂 |
施工总平面布置
根据我工程局以往施工经验,结合本工程的规模、特点、施工环境及施工条件,拟定本工程的施工总布置原则为:
1、所有的生活、生产临建设施、施工辅助企业及施工道路布置均按招标文件要求及发包人提供的各种条件在指定的施工场地进行规划布置。
2、临建设施的规模和容量按施工总进度及施工强度的需要进行规划设计,力求布置紧凑、合理、方便使用,规模精简,以降低工程造价,并尽量避免与其它标段工程施工的干扰和影响。
3、施工生产设施和生活办公设施划分合理,按使用功能进行分区,使生产区与生活办公区实现相对分隔,减少干扰。
4、按国家有关规定和招标文件的要求,所有的生活、生产等设施布置体现安全生产、文明施工。
5、各施工场地及营地均按有关要求配置足够可靠的环保设施及消防设施,避免施工对公众利益的损害,并考虑为他人提供方便。
2.2 施工场地规划
施工场地的规划布置根据招标文件所提供的场地情况,并结合发包人提供的现有条件和由于我局承建三板溪地下厂房施工,辅助企业、生活福利可资源共享的优势,按施工需求及使用功能的不同进行规划布置。
2.2.1 生活福利、办公设施场地规划
生活福利设施与我局三板溪分局共享,根据分局土建所承担的项目与机电安装工程施工人员强度高峰分配,在A2 区现有的住房设施经调配可以满足本标人员住宿条件。办公区在招标文件指定的一期场平B1 区内规划布置,并配有污水处理系统,场地由业主无偿提供使用。
2.2.2 生产辅助企业场地及设备、材料库规划
生产辅助企业包括金工车间和配管场。金工车间(100m2)将布置在我局地下厂房标一期场平D 区钢管厂旁,资源共享;配管场在钢管厂内,届时钢管制作高峰已过(2004 年10 月前为钢管制作高峰期),可以用作配管使用。材料库(200 m2)与我局中心仓库合用。
设备库主要在招标文件指定的一期场平B1 区内进行规划布置,主要有封闭库(1800 m2)、保温库200 m2)、露天堆放场(1590 m2)、敞棚库(1800 m2)。
施工场地规划(施工总平面布置图)见附图2-1。
2.3 施工交通、风、水、电及通信布置
2.3.1 交通布置
一期场平B1 区内纵向布置一6m 宽水泥路面与大门外公路相接。在主厂房上游侧布置一道栈桥通至4#机,作为人行通道兼小型材料运送通道。栈桥布置和结构见附图2-4。
2.3.2 施工供风
机电安装施工用风采用移动式空压机供给。自备1 台6.0m3/min 和3 台0.75m3/min 的空压机,供厂房各施工作业面的设备和管路吹扫,以及供给焊缝碳弧气刨清根用气。
2.3.3 生活及施工供水
本工程施工期的办公生活用水主要取自山水,将在后山上修建18m3二级蓄水池,采用自流供水方式向B1 区办公及生活用水点供水。厂房内用水从我局地下厂房土建标的水管接入。生活供水系统见附图2-7。
2.3.4 施工供电、照明
1、供电线路
一期场平B1 区供电拟从我局过一期场平B1 区后山的高压接线点引线。地下厂房供电将在高压引水施工支洞分局施工变高压端接线。
供电的变电配置根据不同部位的用电需要和用电时段进行设置。系统供电特性见表2-1,供电接线见附图2-6。
变配电站供电特性表 表2-1
| 编号 | 容量 | 变压器型号 | 数量 | 布置位置 | 用电点及用电内容 |
| 1# | 800KVA | S7-800/10/0.4 | 1 | 地下厂房内 | 地下厂房内机电安装用电 |
| 2# | 315KVA | S7-315/10/0.4 | 1 | 一期场平B1 区 | 设备库、保温库、桥机及照明和办公等用电 |
2、厂用系统临时电源
按招标澄清文件第3 条要求:“首机发电前,厂用系统电源从施工变电站以10kV 线路引入……”。施工变电站距施工现场约3km。拟采用架空线路从施工变到排风洞口的方案,再利用10kV 电缆引到副厂房高压厂用盘,作为首台机发电前的厂用电系统电源。10kV 厂用电源进线所需材料见表2-2。
10kV 厂用电源进线所需材料 表2-2
| 序号 | 规格名称 | 数量 | 备注 | |
| 1 | 锥形非预应力水泥杆直杆(11m) | 25 根 | ||
| 2 | 锥形非预应力水泥杆转角杆(11m) | 3 根 | ||
| 3 | 锥形非预应力水泥杆终端杆(11m) | 2 根 | ||
| 4 | 10kV 钢芯铝绞线(LGJ-35) | 3200m×3 | ||
| 5 | 10kV 针式绝缘子 | 160 片 | ||
| 6 | 10kV 悬式绝缘子 | 30 片 | ||
| 7 | 耐张线夹 | 30 付 | ||
| 8 | 抱箍 | 30 付 | ||
| 9 | 横担 | 30 付 | ||
| 10 | YJV-3×50 10kv 电力电缆 | 500m | ||
| 11 | 10kV 户外电缆头 | 1 套 | ||
| 12 | 10kV 户内电缆头 | 1 套 | ||
3、照明
办公及生活福利区、辅助企业、仓库等地面施工场地采用220V 照明线路。机坑内安装的工作照明采用36V 线路,用行灯变将220V 或380V电压降为36V 供电。地下施工场地照明拟以投光灯集中照明为主,并对局部区域辅以白炽灯和碘乌灯加强照明,采用脚手架钢管制作灯塔,每个灯塔上装设2-3 个1000W 可自由调整照射范围的投光灯。各场所照明度满足标书要求。地面施工照明采用白炽灯和碘乌灯照明。
4、无功补偿
为提高施工供电质量,使功率因数不小于0.9,拟在每台变压器低压侧配置2-3 台TBBZ0.4 型并联补偿装置。
5、变压器保护
一期场平B1 区变压器配置一组避雷器和一组跌落式熔断器,以防短路和雷电波损坏设备;洞内变压器配置一台10kV 少油式油开关,当发生故障时,断开电源。
6、事故备用电源
选用1 台40kW 柴油发电机作为备用电源。当供电线路发生电网停电事故时,通过开关切换接通厂房排水系统、应急照明系统,实施备用电源供电。
2.3.5 施工通讯
项目部向地方电信部门购买4 部固定电话其中3 部布置在一期场平B1 区;一部布置在厂房安装间用于与业主、监理、及对外联系。项目部部室正职以上人员配置移动电话进行通信联络,另设置4 只无线电对讲机用于工作面的通信联络。
2.3.6 施工通风
采用自然通风为主,轴流风机负压通风为辅的方式。在排风道布置一台轴流风机,沿排风洞布设风管至主副厂房交界处,风机采用TV-160(2400m3/min,132kW),风管采用φ1500mm 橡胶硬质风管,长50m。工作面附近采用局部通风机辅助通风,以改善工作面附近的工作条件。
2.3.7 防汛排水
1.地下厂房防汛排水
在安装间搁置2 台600m3/h、扬程60m 水泵作为防汛排水用,水排至自流排水洞。
2.一期场平B1 区防汛排水
在B1 区设置排水沟,并保持畅通。
设1 台600m3/h、扬程60m 水泵防汛排水排至指定排放点。
2.4 施工临时设施布置
本标工程布置范围紧凑、时效性较强,因此采取以集中为主的原则布置生活、生产设施及辅助企业,以保证施工的延续性,方便工程开工后施工即可及时顺利进行。
2.4.1 生产设施及辅助企业布置
1、生产辅助企业
金工车间新建在一期场平D 区,配管车间在钢管厂内。配管车间和金工车间内部布置设备如表2-3
车间主要设备表 表2-3
| 序号 | 设备名称 | 型号规格 | 电机(kw) | 单位 | 数量 | 备注 |
| 1 | 普通车床 | CW6110V | 11.0 | 台 | 1 | |
| 2 | 弯管机 | DWG | 台 | 1 | ||
| 3 | 管子套丝机 | EIT80 | 0.75 | 台 | 1 | |
| 4 | 摇臂钻床 | Z3080HX25 | 台 | 1 | ||
| 5 | 直流电焊机 | AX5-500 | 26 | 台 | 4 | |
| 6 | 牛头刨床 | B650 | 台 | 1 |
2、地下厂房临时设施见表2-4
地下厂房临时设施布置参数表 2-4
| 布置位置 | 项目 | 型号规格 | 结构型 | 备注 |
| 地下厂房 | 变压器室 | 800KVA | 栅栏围蔽,安装警示灯 | |
| 厕所 | "塞莱斯"简易移动厕所,两个 | 2个 | ||
| 柴油发电 | 40KW | 移动式 | ||
| 配电盘 | 4块 | |||
| 防汛物质(水泵) | 600m3/h 60m | 3台(设备库1
台、厂房2台 |
||
| 轴流风机 | V-160︵2400m | 3/min,132Kw︶ | 1台 |
2.4.2 办公及生活福利设施布置
根据施工总体进度安排,本标于2003 年9 月1 日进场,施工月平均人数127 人,高峰人数210 人左右。在A2 区现有的住房设施经调配可以满足本标人员住宿条件。A2 区可提供的住房面积时间分配与本标人员强度时段对照见表2-5。
A2 区营地可提供的住房面积与本标人员强度时段对照 表2-5
| 时 | 间 | 住房面积(使用面积m 2) | 累计住房数量(4人/间) | 相应时间段本标所投入的人员数量 | 备 | 注 | |
| 2003 | 9 月 | 98.6 | 5 | 20 | 食堂、浴室、卫生间可同时提供或共享 | ||
| 四季度 | 98.6 | 5 | 20 | ||||
| 2004 | 一季度 | 788.8 | 40 | 40 | |||
| 二季度 | 788.8 | 40 | 70 | ||||
| 三季度 | 788.8 | 40 | 79 | ||||
| 四季度 | 867.68 | 44 | 92 | ||||
| 2005 | 一季度 | 867.68 | 44 | 121 | |||
| 二季度 | 1183.2 | 60 | 157 | ||||
| 三季度 | 1183.2 | 60 | 208 | ||||
| 四季度 | 1183.2 | 60 | 210 | ||||
| 2006 | 一季度 | 1183.2 | 60 | 210 | |||
| 二季度 | 1183.2 | 60 | 190 | ||||
| 三季度 | 1183.2 | 60 | 159 | ||||
项目部办公设施在发包人指定的一期场平B1 区内规划布置。在该营地内新建办公楼300m2、厕所50m2、污水处理室30m2,并配有排水系统。
生活福利及临时办公设施布置详见附图2-2。房建特性见表2-6。
临时生活、办公房建特性表 表2-6
| 序号 | 项 | 目 | 建筑 面积 (m2) | 占地 面积 (m2) | 结构型式 | 布置位置 | 备 注 |
| 1 | 项目部办公室 | 300 | 180 | 一幢砖混结构( 二层) | 一期场平B1 区 | 新建 | |
| 2 | 职工宿舍 | 1100 | 已有(A2 区) | ||||
| 3 | 医疗室 | ||||||
| 4 | 招待所 | ||||||
| 5 | 食堂 | ||||||
| 6 | 浴室 | ||||||
| 7 | 厕所 | 50 | 砖木结构 | ||||
| 8 | 污水处理室 | 20 | 50 | 砖木结构 | 一期场平B1 区 | 新建 | |
污水处理设备见表2-7。
| 数量(台) | ||||
| 设备名称 | 型号 | 规格 | 用途 | |
| 生活污水处理室 | ||||
| 平板格栅 | BS | 断面尺寸3600× 3000mm | 1 | 截留>Φ3.6mm 漂浮物 |
| 螺旋泵 | LXB | D300mm Q40m3/h | 1 | |
| 污水处理设备 | DCW | 处理量为50m3/h | 1 | 处理有机污水 |
| 折浆式搅拌机 | ZJ | H1000mm | 1 | 在混合反应槽药剂制备、搅拌 |
| BFD 弄便携式测量仪 | 1 | 净化水质检测 |
3、 消防设施
在各厂区、库房及生产、生活营地分别设置消防专用水阀及消防用软管等设施。B1 区消防用水引自后山。同时在各厂区、库房及生产、生活场地按有关规定配置足够的泡沫灭火器和干粉灭火器。施工期间,现场消防主要采用CO2 灭火器消防。厂房内各施工点至少配置2 个以上的MF1 型干粉灭火器和MY1 型1211 灭火器。安装间、设备库各配置2台 MFT25 型干粉灭火器。办公楼及每栋宿舍均配置2 个MY1 型1211 灭火器。消防水系统见附图2-7,消防器材见表2-8。
主要施工消防器材 表2-8
| 序号 | 名 | 称 | 型号及规格 | 单 位 | 数 量 | 备 | 注 |
| 1 | 干粉灭火器 | MFT25 | 个 | 10 | 安装间、设备库 | ||
| 2 | 干粉灭火器 | MF1 | 个 | 20 | 各施工点 | ||
| 3 | 1211 灭火器 | MY1 | 个 | 30 | 办公楼、宿舍及施工点 | ||
4、各种信号的设置
在施工区内,包括洞内设置一切必需的信号,包括标准的道路信号、报警信号、危险信号、控制信号、安全信号、指示信号等,各类信号标示清晰、准确。
2.4.3 安装间施工布置
1、布置原则
桥机主钩的起吊范围距上游边墙2100mm;
上、下游厂房承重柱内侧留出1.2 m 宽的通道;
设备之间留有足够的交通通道及作业空间;
考虑爬梯及进场设备运输通道占用空间;
使用同一工位的各个设备占用工位的时间相互错开。工位逻辑见附图2-8。
2、安装间施工布置
主变直接进厂房安装间328.2m 高程卸车;转轮根据招标文件到货时间及施工总进度计划可以直接进厂房。肘管、定子、转子、顶盖、主轴转轮、上下机架等在安装间组装和检查。见附图(2-9)。
严格按照招标图纸设置安装间设备组装工位进行主机部件的组装、检查和试验。其中,安装间定子组装工位为一个,定子组装焊接、叠片,磁化试验工作在此工位上全部完成,下线在机坑内进行。肘管组装工位:
该工位供分瓣肘管临时组装用,暂时占用定子工位,计划每台肘管组装工期15 天,按进度计划所有肘管在首台定子组装前全部完成。
转子组装工位:
该工位布置在安装间靠风机房上游侧,仅作为转子组装工位。四台机转子均在该工位上进行组装。计划4#机转子组装工期120 天,其余转子组装工期为90 天,作为关键线路能满足每台机组投产发电要求。
定子组装工位:
该工位有一个,布置在安装间靠1#机端上游一侧。四台机定子均在此工位进行组装。计划每台定子组装工期90 天,能满足每台机组投产发电要求。另1#、2#上机架在此工位组装,计划每台机架组装工期20 天;3#、4#上机架在各机组之间组装。
转轮大轴工位:
该工位布置在安装间定转子之间上游一侧,作为转轮大轴组装工位。四台机转轮大轴均在该工位进行清扫检测。计划每台清扫检测组装占用工位时间约15 天。
下机架组装工位:
该工位布置在安装间的下游侧,作为机架组装工位。全部机架均在该工位进行组装。计划每台下机架组装工期20 天。底环清扫也在此工位完成。
顶盖组装工位:
该工位布置在安装间交通洞进口处,作为顶盖组装工位。4 台机顶盖在此组装。计划每台顶盖组装工期5 天。顶盖组装期间与主变到货错开。
安装间设备进场通道:
安装间作为大件设备的进场和卸车场地,同时还要考虑主变卸车和运输,并且在施工前期提供部分场地给予土建使用以及上述各部件的组装工位,工作面多,需合理安排施工进度以保证场地通道始终畅通无阻,严禁随意堆放货物,确保施工顺利实施。
3、施工临时设施
临时支墩制作,用于上下机架及顶盖组装8 个钢支墩见下图。钢板用量约1.3t)。
钢支墩:20×380(W)×580(L)×820(H)mm。

厂房吊物孔及发电机坑安全围栏:
为了厂房施工人员的人身安全和方便施工,同时考虑对厂房相邻4台机组段内的所有吊物孔及发电机坑构筑安全围栏。围栏高约1.08m,采用φ42×2.5 mm 焊接钢管焊制,膨胀螺栓固定。约用钢管2t。
安全防护栏如下图:

2.4.4 设备库布置
一期场平B1 区仓储面积共约4810m2,根据设备到货时间及施工总进度计划安排,仓储面积虽较紧张,但只要科学管理得当,安排合理,能够满足成套设备仓储需要。
1、成套办公室
成套办公室的建筑面积为50 m2,层高2.6 m。其建筑结构为砖木平房,木门、钢窗,室内水泥地面。
2、封闭仓库
按招标补疑通知要求设置临时机电仓库(按永久仓库标准)。仓库面积约1800m2(长×宽:90m×20m),高12m。仓库为轻型框架式结构,便于拆卸,在仓库一端和中间设置2 个大门同时在仓库内隔出一间200m2供储存备品备件和专用工具。库房内安装一台跨度10t 双梁桥机,储存间制作30 架货架,尺寸为(长×宽×高:2000mm×600mm×2000mm)分1 格,格板厚度15mm,间距适当,顶部可放东西。货架为木制,刷中灰油漆。见附图2-5
3、保温库
在一期场平B1 区新建保温库200m2,库房为砖木结构,库房内配备柜式空调8 台、除湿机4 台、冰柜1 台。
4、设备露天堆放场
露天堆放场占地面积约1590 m2。主要堆放可露天存放的大型设备部件和埋件、电缆等。
5、敞棚库
敞棚库的建筑面积为1200 m2。库长60m,宽20m,采用简易钢屋架、石棉瓦建筑结构,钢管柱高5.5 m,顶高7.2 m,见下图。
库房平面布置图见附图2-2
各类设备库营造工程量见表2-9。

C 类库立面示意图

C 类库平面示意
C 类成套设备库平面布置示意图
仓库及辅助企业建筑特性表 表2-9
| 序号 | 类别 | 项目 | 建筑面积(㎡) | 占地面积(㎡) | 结构形式 | 布置位置 | 备注 |
| 1 | 中心仓库 | 库房及堆施场 | 120 | 200 | 砖木结构 | 一期场平D区 | 已有
已有 |
| 办公室 | 15 | 20 | 砖木结构 | 新建 | |||
| 2 | 辅助企业 | 金工车间 | 80 | 100 | 砖木结构 | 在钢管厂内 | |
| 配管车间 | |||||||
| 3 | 成套设备库 | 封闭库(包括200
m2 备品备件及专 用工具间) |
1800
(90× 20× 12) |
1800 | 轻型框架式结构 | 一期场
平B1 区 |
新建 |
| 保温库 | 200 | 220 | 砖木结构 | ||||
| 敞棚库 | 1200
(90× 20× 12) |
1800 | 轻型框架式结构(钢材
60t)石棉 瓦顶1950 m2 |
||||
| 值班室 | 50 | 60 | 砖木结构 | ||||
| 露天库 | 1590 | 露天场地 | |||||
| 区内道路 | 650 | 6M 宽水泥路面 | |||||
| 合 计 | 3250 | 5520 |
届时我方将在成套设备库内配置汽车起重机、载重汽车、叉车等起重运输设备和工具,同时配备工程师及起重运输人员。
2.5 临设施工现场管理措施
1、为确保施工场地有一个文明施工的良好条件,由项目经理部制定施工现场管理、施工秩序管理、施工安全管理、治安保卫、工地消防、卫生管理、环境保护管理、成品保护管理的实施细则,并认真落实。
2、工程施工中,按平面布置图实施定位管理,施工现场内所有物品,严格按图定位,做到图物相吻。同时,根据工程进展,适时地对施工现场进行整理、整顿,进行必要的调整。
3、工地各种标牌、标志应统一制作,书写规范;进入施工区作业人员均挂牌上岗,确保工地规范化管理。
按施工总进度计划的安排,在临时设施开始施工前20 天,我方将递交详尽的施工临时设施和临时生活设施的总布置图及其设计说明书一式四份,报请工程师审批。总布置图内将标示出各类临时设施的位置,面积和规模,以及内部道路、供电、供水、排水、排污布置等。图纸经业主和工程师批准后,严格按图施工,决不随意变动。
施工组织及资源配置
我局将把某水电站机电安装工程列为工程局重点施工项目之一,统一由三板溪分局管理,机电安装项目部作为三板溪分局的下属单位与土建项目部实行资源共享、统一调配、齐心协力为优质高效完成某水电站机电安装工程而努力。同时按照现代项目法施工原则,选聘技术素质高、施工管理经验丰富的人员组成项目部领导层,负责本标段工程的施工组织领导与管理工作。
项目部领导层由项目经理、副经理、总工程师组成。项目部经理对本合同工程的施工质量、进度、安全等负全面责任,并直接向业主和监理工程师负责,项目部副经理、总工程师协助项目经理分管相应的工程项目和业务工作。
3.1.1 现场管理机构图
水电十四局三板溪分局机电安装项目部管理机构见下框图所示:
水电十四局三板溪分局
项目经理
总工程师
生产副经理
质量、安全副经理
综合办公室
物资供应科
计财科
成套设备科
施工管理科
质量安全保证科
工程技术科
水轮机施工队
发电机施工队
电气二次施工队
铺机施工队
电气一次施工队
起重班
电气维护班
金加工班
后勤清洁环保组
电气调试中心
汽车运输队
三板溪分局机电安装项目部管理机构框图
3.1.2 现场管理人员配置
项目经理 1 人 质量安全保证科 5 人
项目副经理 2 人 施工管理科 3 人
总工程师 1 人 物资供应科 2 人
工程技术科 5 人 计划财务科 4 人
成套设备管理科 5 人
综合办公室 2 人
共 计 30 人
3.2 项目部各部门主要工作职责
管理部门设置分别为:工程技术科、质量安全保证科、工程施工管理科、物资供应科、计财科、成套设备科、综合办公室。各部门主要职责划分如下:
工程技术科:作好施工技术措施、施工进度计划的编制、临时设施的设计、施工测量放线和施工现场的技术指导与管理工作等(详见5.2.2)。
质量安全管理科:严格按照ISO9000-2000 质量管理体系执行,编制质量计划和实施办法。分期对质量情况进行评价,并做出相应措施,对工程的总体施工质量控制实行统一管理。制定安全管理办法,重点跟踪重要安全对象,作好安全防范工作,杜绝发生安全事故;与工程管理科一起制定安全文明施工计划,负责检查落实工作。对工程的总体施工安全环保控制实施统一管理。
计财科:负责计划统计、报量结算、合同管理、内部经营管理、成本管理、财务报表、资金管理等工作。
物资供应科:负责材料、设备及配件等的采购、供应和设备维护等管理工作。
工程管理科:负责执行项目经理施工指令,按照工程的施工计划安排,进行施工现场组织、车辆调配及协调等工作。
综合办公室:负责内部管理、外部协调、劳动人事、生活服务及保卫工作等。工地的医务人员(分局土建单位已有)统一负责职工的健康,配备急救设备和必需品,满足卫生要求,防止传染病的转播。
3.3 人员计划及管理
3.3.1 劳动力计划
根据合同工期计划要求和我局编制的三板溪电站施工进度计划进行本标段的劳动计划编制,拟于2003 年9 月人员进点,2006 年9 月完成最后一台机的发电工作,总工期为37 个月。本合同劳动力强度主要集中在2005 年下半年至2006 年上半年,机电安装高峰期在2005 年7月至2006 年3 月,其最高劳动力强度为210 人,月平均人数127 人。三板溪电站机电安装标施工劳动力强度见表3-1 和强度图
劳动力计划表 表3-1
| 人数 | 工种 | 机械 | 电工 | 起重 | 焊工 | 调试 | 其它 | 合计 | ||
| 人数 | 人工工日数 | |||||||||
| 2003 年 | 三季度 | 4 | 2 | 2 | 2 | 1 | 9 | 20 | 600 | |
| 四季度 | 4 | 2 | 2 | 2 | 1 | 9 | 20 | 1800 | ||
| 2004 年 | 一季度 | 12 | 4 | 4 | 6 | 2 | 12 | 40 | 3600 | |
| 二季度 | 22 | 6 | 6 | 16 | 0 | 20 | 70 | 6300 | ||
| 三季度 | 25 | 8 | 8 | 18 | 0 | 20 | 79 | 7110 | ||
| 四季度 | 25 | 8 | 8 | 26 | 0 | 25 | 92 | 8280 | ||
| 2005 年 | 一季度 | 35 | 18 | 10 | 26 | 2 | 30 | 121 | 10890 | |
| 二季度 | 50 | 35 | 10 | 20 | 4 | 38 | 157 | 14130 | ||
| 三季度 | 65 | 65 | 12 | 16 | 10 | 40 | 208 | 18720 | ||
| 四季度 | 65 | 65 | 12 | 12 | 16 | 40 | 210 | 18900 | ||
| 2006 年 | 一季度 | 65 | 65 | 12 | 12 | 16 | 40 | 210 | 18900 | |
| 二季度 | 56 | 56 | 10 | 12 | 16 | 40 | 190 | 17100 | ||
| 三季度 | 45 | 45 | 8 | 10 | 16 | 35 | 159 | 14310 | ||
| 合计 | (至最后一台机组发电止) | 140640 | ||||||||
三 板 溪 机 电 安 装 劳 动 力 强 度 图

说明:系列1 为机械工,系列2 为电工,系列3 为起重工,系列4 为焊工,系列5 为调试人员,系列6 为管理人员及其它,系列7 为合计人数。
3.3.2 人员管理
为优质高效完成三板溪电站机电安装工程,我方将按照现代项目法施工原则,选聘技术素质高,施工管理经验丰富的人员组成项目部领导层和管理层,负责本工程的施工组织领导与管理工作,派遣技术合格、有一定实际施工经验的数量足够的各类专业技术人员、工长、技工、和管理人员参与工程建设。本工程安排在工地的主要管理人员和技术骨干将相对固定,主要参与本工程施工的为单位的正式职工,所聘的民工和临时工的总数不超过职工总数的10%。自行安排和调遣所有职工和民工,并负责提供必要的工作和生活条件,并定期向监理人提交工地人员变动情况。
参与本工程建设的技术岗位和特殊工种的工人均有相应的资格。
我局电工、电焊工、起重工三个工种属特殊工种,其工作人员必须持有特种操作作业证方可上岗,我方对特种作业人员实行以下管理:
全局特种作业人员的培训取证工作由人事部负责实施;
人事部组织特种作业人员进行安全规程、规范的学习培训,培训结束后由上级部门进行理论、实际操作的考试,考试合格者申办特种作业操作证;
特种作业操作证书由我局人事部登记造册,注明使用日期,并统一保管,统一换证;
特种作业人员持操作证的复印件上岗。
3.4 施工设备
为保证合同范围内的工程内容和任务按合同要求的质量、工期目标顺利进行,我局将抽调、组织足够的合格的施工设备进入三板溪电站参加施工建设。具体拟投入三板溪电站施工建设的主要施工设备、仪器仪表见表3-2。
机电安装主要施工设备 表3-2
| 设备名称 | 型号及规格 | 数量 | 制造厂名 | 购置年份 | 检查情况 | 现在何处 | 进场时间 |
| 全站仪 | TC2000 | 1 台 | 瑞士 | 1999 年 | 良好 | 昆明 | 2003.9 |
| 经纬仪 | T2 | 1 台 | 瑞士 | 1997 年 | 良好 | 昆明 | 2003.9 |
| 激光测距仪 | DI2002 | 1 台 | 瑞士 | 1999 年 | 良好 | 昆明 | 2003.9 |
| 水准仪 | NA2,NA3 | 各1 台 | 瑞士 | 1996 年 | 良好 | 昆明 | 2003.9 |
| 磁力电钻 | φ50 | 2 台 | 上海 | 1998 年 | 良好 | 昆明 | 2005.4 |
| 逆变式电焊机 | ZX-630 | 10 台 | 上海 | 2000 年 | 良好 | 昆明 | 2003.9 |
| 测微计 | GPM3 | 1 台 | 上海 | 1999 年 | 良好 | 昆明 | 2005.4 |
| 电动套丝机 | 2 台 | 江苏 | 2000 年 | 良好 | 棉花滩 | 2004.1 | |
| 电动盘车设备 | 一套 | 国产 | 2000 年 | 良好 | 小浪底 | 2005.8 | |
| 压力滤油机 | YL100 | 2 台 | 国产 | 1995 年 | 良好 | 昆明 | 2005.4 |
| 碳弧气刨机 | DZHQ-1500 | 2 台 | 上海 | 1997 年 | 良好 | 昆明 | 2004.4 |
| 焊机 | 15 台 | 成都 | 良好 | 昆明 | 2004.7 | ||
| 砂轮切割机 | J3GQ-400 | 6 台 | 1999 年 | 良好 | 昆明 | 2004.5 | |
| 焊条烤箱 | KWG-1 | 2 套 | 上海 | 良好 | 昆明 | 2004.4 | |
| 空压机 | 英格索兰6.0m3 | 1 台 | 中外合资 | 2000 年 | 良好 | 昆明 | 2004.7 |
| 空压机 | 0.75m3 | 3 台 | 无锡 | 1998 年 | 良好 | 昆明 | 2004.4 |
| 载重车 | 15t | 1 辆 | 日本 | 良好 | 昆明 | 2004.4 | |
| 载重车 | 8t | 2 辆 | 国产 | 良好 | 昆明 | 2004.7 | |
| 汽车 | 5t | 2 辆 | 国产 | 良好 | 昆明 | 2003.9 | |
| 汽车吊 | 16t | 1 辆 | 日本 | 1994 年 | 良好 | 昆明 | 2003.12 |
| 汽车吊 | 50 t | 1 辆 | 日本 | 1996 年 | 良好 | 昆明 | 2004.3 |
| 液压汽车起重机 | QY100H | 1 辆 | 上海 | 2001 年 | 良好 | 昆明 | 2003.11 |
| 拖板车 | 60t | 1 辆 | 瑞士 | 1995 年 | 良好 | 昆明 | 2004.11 |
| 电动叉车 | 10t,5t | 各1 辆 | 1998 年 | 良好 | 昆明 | 2004.10 | |
| 卷扬机 | 5t,3t | 各1 台 | 上海 | 1997 年 | 良好 | 昆明 | 2005.4 |
| 设备名称 | 型号及规格 | 数量 | 制造厂名 | 购置年份 | 检查情况 | 现在何处 | 进场时间 |
| 弯管机 | DWG | 2 台 | 1997 年 | 良好 | 大理 | 2004.4 | |
| 电动试压泵 | 0-4Mpa | 1 台 | 1999 年 | 良好 | 昆明 | 2004.10 | |
| 手动试压泵 | 1 台 | 1999 年 | 良好 | 昆明 | 2004.4 | ||
| 摇臂钻床 | Z3080HX25 | 1 台 | 国产 | 1993 年 | 良好 | 昆明 | 2004.4 |
| 普通车床 | CW6110V | 1 台 | 国产 | 1995 年 | 良好 | 昆明 | 2004.4 |
| 牛头刨床 | B650 | 1 台 | 国产 | 1995 年 | 良好 | 昆明 | 2004.4 |
| 超声波探伤仪 | CTS-26 | 2 台 | 国产 | 1995 年 | 良好 | 昆明 | 2004.4 |
| X 射线探伤机 | EX-260GH- | 1 台 | 上海 | 1996 年 | 良好 | 小浪底 | 2004.4 |
| 3 | |||||||
| 磁粉探伤仪 | CJE-D | 2 台 | 上海 | 2000 年 | 良好 | 昆明 | 2004.4 |
| 直流电阻测试仪 | JD2520 | 2 台 | 武汉 | 1995 年 | 良好 | 昆明 | 2005.6 |
| 便携波形记录仪 | DF1024 | 2 台 | 武汉 | 1995 年 | 良好 | 昆明 | 2005.6 |
| 高压开关特性测 | GYKC-C | 1 台 | 武汉 | 2002 年 | 良好 | 昆明 | 2005.6 |
| 试仪 | |||||||
| 组别变比测量仪 | KP-4 | 2 套 | 武汉 | 1999 年 | 良好 | 昆明 | 2005.4 |
| 单相试验变压器 | 1 套 | 上海 | 1998 年 | 良好 | 昆明 | 2005.4 | |
| 微量水份分析仪 | 1 台 | 上海 | 1998 年 | 良好 | 昆明 | 2005.4 | |
| 全自动油试验器 | GIZ-100 | 1 台 | 中外 | 2003 年 | 良好 | 昆明 | 2005.5 |
| 合资 | |||||||
| 全自动介质损耗 | QJS2 | 1 台 | 上海 | 1998 年 | 良好 | 昆明 | 2005.5 |
| 测试仪 | |||||||
| 直流高压发生器 | ZGSII600/4 | 1 台 | 苏州 | 2003 年 | 良好 | 昆明 | 2005.4 |
| 微电脑继电保护 | WDJB-9818 | 1 台 | 2000 年 | 良好 | 昆明 | 2005.4 | |
| 检测仪 | |||||||
| 微电脑线号印字 | LM-350AⅡ | 1 台 | 日本 | 良好 | 昆明 | 2005.1 | |
| 机 | |||||||
| 流量计算仪 | LG15 | 1 台 | 1998 | 良好 | 昆明 | 2005.8 | |
| 工频谐振试验变 | YD-200kVA | 1 套 | 泸洲 | 1998 | 良好 | 昆明 | 2005.4 |
| 真空滤油机 | 1 台 | 上海 | 1997 年 | 良好 | 昆明 | 2005.6 | |
| 柜式空调机 | 5 台 | 南京 | 良好 | 昆明 | 2004.10 | ||
| 除湿机 | 5 台 | 南京 | 良好 | 昆明 | 2004.10 | ||
| 变频谐振试验装 | BPD-300 | 1 台 | 湖南 | 2003 年 | 良好 | 昆明 | 2005.6 |
| 置 | TPX-800 | 湘超 | |||||
| 自动气体保护焊 | KEMPPIMI | 2 台 | 北京 | 2000 年 | 良好 | 小浪底 | 2004.5 |
| 机 | G500 | ||||||
| 等离子切割机 | CG2-11 | 2 台 | 上海 | 2000 年 | 良好 | 小浪底 | 2004.5 |
| 局放仪 | DST—4 | 北京
电科 院 |
2003 年 | 良好 | 昆明 | 2005.6 | |
| 柴油发电机 | 120GF
40kW |
1台 | 2000年 | 良好 | 昆明 | 2005.1 |
工程施工进度计划
本合同工程为机电设备安装项目。根据本工程的施工特点及招标文件的要求,本合同的施工总进度安排依据和原则如下。
1、严格以招标文件规定的设备到货时间、工作面移交时间及控制性进度和节点工期为依据,结合我局在类似工程中的施工经验,充分发挥我局类似工程的施工技术优势,合理安排各项目的施工程序和进度,确保合同节点工期和总工期目标如期实现。
2、以主机安装为中心,紧紧抓住主机水下部分安装砼浇筑和定转子组装等施工的关键环节安排关键线路工期,做到统筹兼顾、合理安排好各项施工进度,确保整个安装工程协调有序整体推进。
3、充分发挥我局参加过多个类似工程的技术和设备优势,合理安排施工程序,提高施工生产效率,加快工程施工进度。
4、采用适中的施工强度指标排定施工日程,对不可预见因素留有充分的回旋余地,并在施工中力求实现均衡生产、文明施工,并有利于提高施工进度的保证率和施工质量、节省施工成本,实现本合同工程安全、优质、按期建成。
5、从安全文明施工角度考虑,尽可能避开土建机电大范围的交叉施工,合理安排工期,做到文明施工。
4.2 施工进度计划安排
4.2.1 合同节点工期目标
本合同节点工期目标为:
1、工程进点:2003 年9 月1 日
2、厂房桥机安装完成:2004 年3 月31 日
3、4#机座环开始安装:20004 年7 月25 日
4、4#机电机层砼完成:20005 年5 月7 日
5、3#、2#、1#机电机层砼完成:分别为2005 年5 月25 日、2005年8 月2 日、2005 年9 月27 日
6、定子组装开始时间:2005 年2 月3 日
7、转子组装开始时间:2005 年5 月5 日
8、4#机投入商业运行:2005 年12 月16 日
9、3#机投入商业运行:2006 年3 月30 日
10、2#机投入商业运行:2006 年6 月30 日
11、1#机投入商业运行:2006 年9 月30 日
12、工程竣工: 2007 年6 月30 日
4.2.2 主要控制进度安排
本合同施工关键线路为主机设备安装工程,结合以上节点工期要求,本工程相应的主要施工控制进度安排见表4-1。
主要施工控制进度计划表 表4-1
| 序号 | 工程项目 | 开工时间 | 完工时间 |
| 01 | 工程进点 | 2003.09.01 | |
| 02 | 桥机安装调试 | 2004.01.01 | 2004.03.31 |
| 03 | 肘管安装时间 | 2004.04.02 | 2004.05.16 |
| 04 | 4#机蜗壳座环安装 | 2004.07.25 | 2004.11.21 |
| 05 | 4#机电机层砼完成 | 2005.05.07 | |
| 06 | 4#组变安装 | 2005.07.01 | 2005.09.03 |
| 07 | 水力机械辅助设备安装调试 | 2005.03.09 | 2005.09.24 |
| 08 | 高压电缆安装 | 2005.07.01 | 2005.08.29 |
| 09 | 1#主机安装 | 2005.02.03 | 2005.11.23 |
| 10 | 4#电气一次/二次设备安装 | 2005.03.01 | 2005.11.27 |
| 11 | 4#机组充水联动调试 | 2005.11.24 | 2005.12.23 |
| 12 | 4#机试运行 | 2005.12.24 | 2005.12.26 |
| 13 | 3#机水下部分预埋 | 2004.04.01 | 2004.11.26 |
| 14 | 3#机砼浇至发电机层 | 2004.11.27 | 2005.05.25 |
| 15 | 3#机机电安装 | 2005.05.26 | 2006.02.08 |
| 16 | 3#机调试试运行 | 2006.02.09 | 2006.03.30 |
| 17 | 2#机水下部分预埋 | 2004.05.10 | 2005.02.03 |
| 18 | 2#机砼浇至发电机层 | 2005.02.04 | 2005.08.02 |
| 19 | 2#机机电安装 | 2005.08.03 | 2006.05.11 |
| 20 | 2#机调试试运行 | 2006.05.12 | 2006.06.30 |
| 21 | 1#机水下部分预埋 | 2004.06.15 | 2005.03.11 |
| 22 | 1#机砼浇至发电机层 | 2005.03.12 | 2005.09.27 |
| 23 | 1#机机电安装 | 2005.09.28 | 2006.08.11 |
| 24 | 1#机调试试运行 | 2006.08.12 | 2006.09.30 |
| 25 | 工程竣工 | 2007.03.31 |
4.3 施工关键线路
本合同工程关键线路为:
工程进点→施工生产、生活及设备库房房建及其它辅助设施→肘管安装→肘管砼→锥管安装→锥管及蜗壳支墩砼→座环蜗壳安装→机坑里衬安装→蜗壳机墩至发电机层砼→定子吊装调整→定子机坑下线→下端轴吊装→下机架吊装调整→推力轴承安装→推力头安装→转子吊装调整→上机架吊装调整→上端轴安装→机组盘车轴线调整→机组回装→联动充水联动调试→72 小时试运行→4#机投产发电3#转子组装吊装→2#转子组装吊装→1#转子组装吊装→1#机机电安装→1#机回装→1#机调试试运行→工程收尾→工程竣工。
4.4 施工工期保证措施
4.4.1 施工组织保证措施
本合同工程是三板溪电站工程的主体工程之一,该合同工程能否优质、按期完工,决定着对电站的投入能否按期有效得到预期回报。
鉴于本工程的重要性,我局将选调优秀管理和技术骨干组成三板溪电站机电工程项目经理部,全面负责本工程的施工组织领导工作。同时,根据本工程的实际施工需要,投入足够性能优良的施工机械设备和富有经验、高素质成建制的专业队伍投入本项目施工,确保本工程优质、按期建成。
4.4.2 技术管理保证措施
我局将按ISO9001 质量保证体系的标准,建立以总工程师为核心,工程技术科、质量管理科为指导,厂队技术员为主体的三级技术管理体系,负责承担起与业主、监理、设计等联系,以及工程施工技术的计划、组织、指导、监督和管理的责任。对工程进度、质量影响较大的重大技术问题、重大技术方案,由项目部组织有施工经验的我局技术专家及时进行监督、指导,做到:一、及时编制科学、详细的施工组织设计和作业指导书,做好技术交底工作,好施工过程中的各个环节和关口;二、按业主、监理批准的技术方案做好由厂队技术人员
负责的现场实施工作,以确保不出现技术方案的失误,并杜绝由于技术方案不当造成的工、返工等;三、对技术方案应根据施工特点和实际情况不断优化和创新,确保施工技术的先进性、实用性和高效性。
4.4.3 质量管理保证措施
项目部将严格按照ISO9001-GB/T19001-2000 质量标准,建立健全以项目经理为第一责任人的质量保证体系,结合工程实际,编制适合于本工程的质量计划,严格按计划中的过程、程序和项目进行实施,实行质量责任终身制,层层落实到个人,真正做到全员、全方位、全过程的有效控制。保证工程质量合格率达100%、安装优良率达92%以上,工程总体质量达优良标准。消灭一切质量事故,坚决杜绝由于质量问题引起的误工、返工现象,确保工程顺利进行。
4.4.4 进度管理保证措施
项目部将根据工程实际情况、施工图和招标文件要求,由项目部总工组织编写详细的施工组织设计、总进度计划,报请监理工程师批准,并围绕批准的总进度计划分解编排阶段性月、季施工计划,坚持生产周计划及周生产调度会制度,及时检查、调整进度计划,切实做到以日保周、以周保月、以月保总工期的进度保证要求。建立工期目标经济责任制,将工期目标层层分解落实到各部门、各厂队,定期检查考核,严格奖罚。
4.4.5 施工资源管理保证措施
机电物资部门、综合办及计财部门,根据施工组织设计及总进度计划的要求,超前编制并落实好各阶段的人力、机械设备、材料物资及资金供应计划,确保施工进度的需要。对主要的机械设备、材料物资应有必要和足够的备用,特别要注意洪水期防洪渡汛的材料物资储备和供应。对不适合的设备及时更换,不影响施工,确保施工强度的要求。
4.4.6 环境及文明施工保证措施
项目部设置专人,在业主和监理工程师的统一领导下,积极处理好与地方的关系,加强与施工有关各方面及其他施工单位的联系和沟通,加强自身人员的管理,并根据现场情况对有可能影响工程进度的因素进行预控,争取较好的施工环境,促进施工顺利高效进行。
4.5 工程进度计划的管理及实施
1、进度计划及报告
三板溪电站我方一旦中标后,将在收到监理人开工通知书后20天前提交一份符合招标文件一般技术条款第1.4.2 条的施工总进度计划,同时按规定在每年11 月份向监理人报送次年年度计划终稿,在每季前20 天报送季进度计划、月26 天前报送月进度计划,月进度报告,其内容将满足招标文件1.7 条款相关要求,同时附有显示工程面貌的形象照片。
2、进度会议
按规定参加监理人在每月、每周定期召开的周、月进度会议,提交周、月进度报表,严格贯彻会议精神,同时项目部在每周六晚组织各施工队、各科室负责人召开一次生产调度会,分析上周工程进展情况(对照经监理人批示的进度计划)、质量、安全文明施工情况,传达监理人有关会议精神,布置下周工作,总结分析各部门各施工队查找施工进度质量、安全方面所存在的问题及需提交监理人解决的有关问题,并拟订出下周工作计划发各部门施工队严格执行。各施工作业队、施工班组对项目部下发的周工作计划逐一实行层层分解,落实责任,并在每日早点名布置分工,收工时由班组检查逐级上报至调度。
3、检查与落实
为了确保工程进度如期完成,项目部设一付经理主管生产,现场设施工管理科,由三人组成,分别划片区实施现场调度,管理科科长对经理负责,全权实施工程施工现场管理及资源调配,协调与其他承包商的关系,参加由监理人组织的各种现场协调会。就周工作计划检查各施工作业队具体完成情况,拟写季报、周报、月报。机电安装高峰期将在主厂房发电机层设置一移动式现场办公室,悬挂机组发电倒计时牌,项目部领导现场轮流值班实施非常管理。
4、进度计划的制订
进度计划分年、季、月及分部分项工程计划。进度计划的制订由总工室负责,技术科拟订,设备、经营部配合,严格按工程总进度计划进行年度、季度、月、周及单项分解,以关键线路实施节点控制,同时考虑均衡施工,资源调配经济合理,各主要线路、节点目标进行跟踪,对在工程过程中无论何种原因引起的工期延误及时作出调整,说明其原因,尤其对涉及到的关键线路改变完工日期的提交监理人审批。
5、进度考核
按照工程进度计划,项目部由项目经理部负责工程进度考核指标落实完成情况,考核各施工作业队、班组逐月或单项工程完成情况,质量安全情况,按照有关制度实施奖惩,以此激励各施工班组、作业队保质保量按期完成所制订的工程目标。
工程施工管理
中国水利水电第十四工程局是一个具有工程施工总承包一级资质的企业,工种全面、技术力量雄厚、设备先进。特别是在地下工程施工及大型机电设备安装及调试方面积累了丰富的经验和具备了娴熟的施工技术,总结出了一套成功的施工技术及经验。因此,我局完全有能力、有信心、优质按期完成本合同工程。
5.1 施工现场管理
5.1.1 现场管理
本工程的施工实行项目经理负责制,项目经理为工程施工第一责任人。项目经理部将负责工程施工管理、工程进度、质量安全管理、工程协调、工程施工技术、物质供应管理、财务管理、文明施工、治安保卫及环境保护管理等各方面工作(见组织机构图),在施工全过程实施有效管理监督,并根据ISO9001-2000 的要求建立质量管理体系,以顾客为关注焦点,增强顾客满意为目的,执行项目经理质量终身制。根据原国电公司《水电达标投产考核办法(2001 年版)》,对所承建的施工项目严格考核,高标准、严要求,从进点开始就逐条逐项按要求实施,努力把三板溪电站建设成国内一流工程。加强安全教育,认真履行安全职责,制定安全操作规程, 确保施工安全。配备必要的安全生产设施和劳动保护用具,并根据需要或监理人的指示,自费提供和维持所有照明、护板、栅拦、警告信号和值班,为公众安全提供方便。做好每年的汛前检查,配置必要的防汛物资和器材。
5.1.2 协调与配合
对于施工单位而言,满足顾客(业主)的要求是我局的宗旨,为了目标的顺利实现,我方将积极主动做好与业主、监理、设计、厂家等各方的协调配合工作。针对三板溪电站机电安装的特点,我局在现场的工作设想是:以业主为支撑点、以监理为依托,熟悉图纸了解设计意图,深入现场,多沟通、多协调,对有不同意见的问题提前求得共识。为此,我局将在现场设置工程管理人员,配置有施工、协调经验的人员,配备对讲机、值班车,加强通信联系,随时应付不同情况的发生,及时处理现场的各种问题。主动解决施工中存在的交叉部位、结合部位、移交部位,为确保工程的顺利进展创造条件。主动积极的向业主、监理反映现场工作情况,形成每周一报,每月一个工作总结;对于设计人员在现场的工作给予积极的配合,做到有求必应、有问必答;虚心接受现场监理、设计的检查指导,注意现场急需的问题,也同时关注业主、监理关心的问题。在业主、监理、设计的帮助、协调、指导下,积极主动地做好工作,保证总体目标的实现。
5.2 施工技术管理
建立以项目总工程师为首的技术管理系统,根据ISO9001-2000的要求建立质量管理体系,实行项目经理质量终身制。严格执行我局质量文件体系文件中有关技术管理办法。制定岗位责任制、编制施工组织设计、制定施工设计文件会审制、技术交底制、开竣工报告制、测量多级复核责任制及竣工文件编制办法,按高标准、严要求做好电站的施工建设工作。
5.2.1 施工技术管理组织
1、 技术管理人员配置
技术科长: 1 人
技术付科长: 1 人
主管工程师: 2 人
资料管理员: 1 人
施工总工程师由具有高级技术职称和相应施工管理经验的工程师担任,各专业主管工程师由具有中级以上技术职称和相应施工管理经验的工程师担任,另设资料管理员一人。
2、技术管理组织机构见下框图
项目经理
总工程师
工程技术科
主机主管工程师
辅机主管工程师
电气一次主管工程师
电气二次主管工程师
电气试验主管工程师
焊接主管工程师
起重主管工程师
资料管理员
施工技术员
施工技术员
施工技术员
施工技术员
施工技术员
施工技术员
施工技术员
技术管理组织机构框图
5.2.2 各级技术管理部门的职责
1、工程技术科职责
全面负责施工图纸的审核工作,解答基层单位对设计图提出的问题;负责制定和执行岗位责任制,编制实施性总体施工组织设计、作业指导书、技术、测量及资料管理办法,制定施工设计文件会审制、技术交底制、开竣工报告制、测量多级复核责任制及竣工文件编制办法;参与工程、关键工序施工组织设计的编制;贯彻落实国家规范及合同条款中的技术规范,全面负责与监理、业主往来的技术文件;负责变更设计工作;推广应用新技术、新材料、新工艺,及时总结施工生产中的技术成果;负责技术干部的业务学习与培训。
2、施工队技术员职责
技术员负责落实项目经理部编制的施工组织设计,负责工程施工项目的测量检查工作,收集各种测量资料、检查资料,负责向作业面施工人员进行技术交底,检查、监督、验收作业面施工质量。对机电设备的安装、监控、量测等关键工序均实行技术干部责任包干制,确保关键工序的质量。
3、技术责任制
项目经理部技术负责人技术责任制
(1)熟悉施工图纸及相关技术文件,实施任务单的签发和项目的施工组织设计和临时措施的编制且负责组织实施。向班组技术人员进行施工前的技术交底,解决施工过程的技术问题。同时负责对有关技术,质量问题的对外联系。
(2)对本项目经理部的技术和质量负直接责任。施工中加强工程质量的检查,督促班级施工技术人员做好各项技术工作。
(3)参与施工过程的技术、质量事故调查工作,提供事故调查处理的客观依据,对事故做出及时正确的反映。
(4)负责检查督促本项目经理部技术人员对本工程所有技术资料及工程相关文件的收集、整理、编写、汇总、保存。工程结束,负责组织本工程技术人员对本工程施工技术资料的汇总编制,参加工程的交接验收工作。班组施工技术人员技术责任制
(1)必须认真学习规程、规范。在施工前应熟识、核对图纸及有关资料,并在此基础上编写施工措施、工程任务单,向工人进行技术交底,解决施工中一般技术问题。
(2)施工期间认真负责。在熟识设计图纸、制造厂提供的技术文件的基础上,做好本职工作。做好各项施工纪录,发现问题及时向上一级技术负责人汇报。
(3)机械施工技术人员应该以合格的检测仪器,对制造厂到货的设备、零部件进行认真地检测、标识,同时做好检测纪录。
(4)电气施工技术人员应该对制造厂到货的设备、装置进行型号规格的核对;对屏、柜、箱内端子接线进行核查。参照设计图纸对不正确的接线进行更正,标识,记录。图纸的修改必须参照设计修改通知书进行。
(5)施工技术人员及时统计对消除缺陷及设计修改增加的工程量,并拟写签证单。
(6)试验、检验技术员按机电安装工艺要求或设备的制造、安装进度,按相关的规程、规范进行相关试验和检验。试验检验过程中必须确保人身、设备的安全。同时对试验纪录的正确、完整性负责,并根据相关要求,及时提供试验、检验报告。
(7)施工技术人员对施工的工程质量负责。在施工中严格贯彻执行规程、规范、质量标准,督促工人按照图纸、施工技术措施及质量要求施工,把好质量关。
(8)施工技术人员应及时填写安装纪录,并对纪录的完整、真实负责,认真执行三检制中的工作。
(9)施工技术人员对技术、质量事故应能做出正确的反映,且具备一定的事故分析处理能力,客观如实地向上一级技术负责人提供事故情况过程,负责填写事故报告。
(10)工程结束,在项目经理部(厂、队)技术负责人的组织领导下编制竣工资料,编写施工总结。
5.2.3 施工技术管理措施
1、执行我局的技术管理层层负责责任制,确保规范和规程、技术措施和技术纪律的正确贯彻执行。
2、总结我局地下工程的施工经验和教训,结合本工程设计要求、机电设备安装的技术要求,编制实施性施工组织设计,并对关键及特殊工序制定详细的并落实到人的施工过程控制程序和操作细则。
3、施工过程严把“四关”
一是严把图纸关,首先组织技术人员对图纸进行认真复核,让所有技术人员彻底了解设计意图,其次严格按图纸和规范要求组织实施,并层层组织技术交底。
二是严把验收关,配合监理工程师对整个工程的设计控制数据进行复核,认真做好每一环节工序过程的质量复检工作,并负责施工测量放线。
三是严把材料质量检验和交货验收关,按合同要求进行材料的抽样检验和工程设备的检验测试,按规范要求进行质量检验,杜绝不合格的材料及半成品使用到工程中。
四是严把过程工序质量关,监督和指导施工严格按照技术图纸、规范及技术措施进行。
4、加强与业主、监理、设计单位的联系,在施工技术方面取得广泛的合作与支持,并及时解决施工中遇到的技术难题和问题。
5、由项目总工程师及主管工程师亲自抓技术交底和组织关键和特殊工序的作业人员进行经常性的技术学习,严格贯彻执行制定的施工控制程序和提高职工技术素质。
5.2.4 竣工文件管理
竣工文件是全面反映、记载主体及施工全过程的重要文件,是工程承包合同的一部分,同时也代表着施工企业的综合管理水平,与完成工程主体有着同等的重要性。竣工文件编制管理工作主要包括以下内容:
按合同和有关竣工资料编制要求确定竣工文件的编制内容和方法;进行竣工文件的收集、整理和编制工作;竣工资料的审核、装订和移交等。
5.3 技术标准及规范
本合同工程所有机电设备安装工作的检查、施工安装、调整、试验、验收均遵照原水利电力部和国家基本建设委员会颁发的所有现行技术规范、规程及标准执行。在合同执行过程中,如国家或部颁标准和规程规范被更新时,则执行最新版本。此外,施工中还遵守发包人制定的施工测量、质量控制、竣工验收等管理办法和管理规定及按设备制造厂商的安装使用说明书和图纸的要求执行。根据招标文件技术条款,本合同引用的技术标准和规范规程如下(但不限于此):
5.3.1 原水利电力部及机械工业部标准
1)、《水轮发电机基本技术条件》JB861
2)、《电容式套管通用技术条件》JB1094
3)、《35KV 及以下变压器套管》JB1463
4)、《交流高压短路器》JB518
5)、《交流高压短路器的操作机构》JB519
6)、《交流高压隔离开关操作机构》JB521
7)、《水利水电建设用起重机试验方法》DL454
8)、《大中型水轮发电机静止整流励磁系统及装置试验规程》DL489
9)、《电力建设施工及验收技术规范》DL57
10)、《电力建设施工及验收技术规范》(热工仪表及控制装置篇)SDJ157
11)、《电力建设施工及验收技术规范》(金属焊缝射线检验篇)SDJ60
12)、《电力建设施工及验收技术规范》(焊接篇)SDJ51
13)、《大中型水轮发电机静止整流励磁系统及装置技术条件》SD299
14)、《气体绝缘金属封闭开关设备技术条件》DL/T617
15)、《架空送电线路施工及验收规范》DL/T602
16)、《气体绝缘金属封闭电器现场耐压试验导则》DL/T555
17)、《气体绝缘金属封闭开关设备现场交接试验规程》DL/T618
18)、《水轮发电机组启动试验规程》DL507
19)、《薄壁离心钢管混凝土结构技术规程》DL/T5030
20)、《水电站基本建设工程验收规程》DL/T5123-2000
21)、《水利水电基本建设工程单元工程质量等级评定标准水轮发电机组安装工程》SDJ249.3
22)、《水利水电基本建设工程单元工程质量等级评定标准水力机械辅助设备安装工程》SDJ249.4
23)、《水利水电基本建设工程单元质量等级评定标准》SDJ249.5
24)、《继电保护和安全自动装置技术规范》DL400
25)、《工业管道工程施工及验收规范》(金属管道篇)DL503
26)、《电力金具标准》(国家标准局批准)
5.3.2 国家标准
1)《电机基本技术要求》GB755
2)《高电压试验技术和高压输变电设备绝缘配合》GB311
3)《电力变压器》GB1094
4)《电气装置安装工程施工及验收规范》GBJ147~149
5)《高压电瓷瓷件技术条件》GB772
6)《交流高压断路器》GB1984
7)《交流高压隔离开关》GB1985
8)《电压互感器》GB1207
9)《电流互感器》GB1208
10)《交流无间隙金属氧化物避雷器》GB11032
11)《工业企业通讯设计规范》GB
12)《工业管道工程施工及验收规范(金属管道篇)》GBJ235
13)《焊条分类及型号编制方法》GB980
14)《低碳钢及低合金高强度钢焊条》GB981
15)《不锈钢焊条》GB983
16)《堆焊焊条》GB984
17)《焊条检验、包装和标记》GB1225
18)《焊接用焊丝》GB1300
19)《现场设备、工业管理焊接工程施工及验收规范》GBJ236
20)《水轮发电机基本技术条件》GB7894
21)《水轮机调速器与油压装置》GB9652
22)《干式电力变压器》GB6450
23)《铝母线与母线式穿墙套管》GB1247
24)《电站用35kV 及以下户内支持绝缘子》GB769
25)《通风与空调工程施工及验收规范》GBJ243
26)《低压电器元件基本技术条件》GB773
27)《水轮发电机组安装技术规范》GB8564
28)《3~35kV 交流金属封闭开关设备》GB3906
29)《六氟化硫电气设备中气体管理和检测导则》GB8905
30)《离相封闭母线》GB8349
31)《低压成套开关设备》GB7251
32)《高压套管技术条件》GB4109
33)《变压器油》GB2536
34)《继电保护和安全自动装置技术规范》GB14285
35)《电气装置安装工程电缆线路施工及验收规范》GB50168
36)《电气装置安装工程接地装置施工及验收规范》GB50169
37)《电气装置安装工程旋转电机施工及验收规范》GB50170
38) 《电气装置安装工程盘、柜及二次回路接线施工及验收规范》GB50171
39)《电气装置安装工程蓄电池施工及验收规范》GB50172
40)《电容式电压互感器》《电力金具标准》(国家标准局批准)GB4703
41)《通用桥式起重机》GB/T14405
42)《起重设备安装工程施工及验收规范》GB50278
43)《钢质压力容器》GB150
44)《压缩机、风机、泵安装工程施工及验收规范》GB50275
45)《交流高压接地开关关合感应电流试验》GB/T6461
46)《高压开关设备SF6 气体密封试验导则》GB11023
47)《低压成套开关设备交接试验标准》GB4966
48)《工程电气设备交接试验标准》GB50150
49)《电力变压器和电抗器的雷电冲击和操作冲击波试验导则》GB7449
50)《电气装置安装高压电器施工及验收规范》GB/J147
51)《电气装置安装电力变压器、油浸电抗器、互感器施工及验收规范》GB/J148
52)《电气装置安装工程母线装置施工及验收规范》GB/J149
53)《电抗器》GB10229
5.4 材料的采购检验和保管
项目部将成立物资供应科,设备供应科长一人、采购人员一人负责工程所须的设备、材料的采购、检验和保管工作。
5.4.1 材料采购
技术科协助物资供应科根据合同进度计划、设计图纸和技术要求制定材料供应计划并报监理审批,计划必须写明设备、材料的规格、型号和数量。物资供应科按照施工进度计划和质量的要求,按时、按质、按量保证主要材料和辅助材料的配套供应,严把材料采购关,凡业主和监理指定了材料采购地点的均一概到指定点采购,对没有指定采购地点的尽可能通过多方考察证实销售商的良好信誉后方确定其为供货商。
5.4.2 材料检验
物资供应科对所采购的施工材料和设备的质量负责,杜绝不合格材料和半成品进入工地。质检部门或中心试验室根据有关规程、规范和标准参与材料的检查验收工作。
1、查验证件
所购材料一定要具有材质证明和产品合格证书,并有制造厂标志。按供货合同的要求查验成批材料的发货单、计量单、装箱单、质量证明书、化验单、图纸或其它有关证件,并将检验结果提交监理人。材料到达工地后邀请监理单位和业主设备科一同参与检查、验收工作,注意材料品名、规格、数量、包装等的正确性和完好性。
2、抽样检测试验
由质检部门或中心试验室根据有关规程、规范和标准对设备及材料进行检查测试验收工作。
按照我局质量体系程序文件中的有关检验和试验控制程序进行,进货检、工序检、分项分部检和单位工程质量评定、阶段检、设备安装检、预检、隐蔽检、功能检和终检等,采用工序检验记录、质量评定记录、工序交接记录、工程摄影、竣工验收文件、现场标记等方式进行标识,作到及时、准确、完整、可靠。查验材料证件或抽样检验后,对每批材料是否合格作出鉴定,并将鉴定意见书提交监理人复查。凡有明显缺陷或经检验测试结果证明材料不符合合同要求和产品有关技术要求的一律退还供货商,不得将其用于安装施工中。对代用材料,应附有质量证明书和试验报告,确保其使用不会降低工程质量并经监理批准后方可使用。
5.4.3 材料的保管
1、物资供应科负责工程材料的入库验收、仓储维护、控制发料、仓库盘点等材料的日常管理工作,建立和健全材料管理制度,严格按计划供应材料,设专人对材料进行保管。
2、经检验合格的材料要进行分类保管,经检验合格入库的材料应分类堆放,并挂标识牌,上面写明型号、规格、生产厂家、出厂日期。钢材、钢管等可以露天堆放,对不能露天堆放的材料要放在室内保管,对环境要求较高的材料应按规定存放在温度和湿度符合要求的保温库里。不同的材料根据材料特性要求放在不同的仓库,保证材料在保管过程中不能变质、损坏。
3、仓库根据所储存材料挂标识牌,上面写明所存材料名称和注意事项。
4、材料保管员必须做好每天的材料进库和出库记录,根据工程技术科提供的材料计划表及材料库存情况,做出材料购买计划。定期向项目经理和总工程师汇报材料库存情况。
5.5 成套设备管理及工地运输
5.5.1 管理部门
1) 人员设置
设备科长 1 人
设备管理员 4 人
2) 设备管理组织机构
项目经理
成套设备科长
项目副经理
主机设备管理员
电气设备管理员
辅机设备管理员
施工员设备和专用工具
设备运输队
组织机构框图
成套设备科按不同专业设置设备管理员,负责设备到货后的开箱检查、点收、登记造册、仓储保管、发料等管理工作。施工设备和专用工具、备品备件借用后由专人负责管理。
5.5.2 设备管理内容
本标段全部电站机电成套设备的卸车、开箱检查、验收、保管、仓储、成品保护、二次运输,施工设备和材料等的管理工作。
5.5.3 设备的工地运输
1、运输和装卸设备
成套设备管理科主要装备如下运输设备,用于本标成套设备的工地运输,见下表5-1。
主要运输和装卸设备 表5-1
| 序号 | 机械名称 | 规格型号 | 数量 | 备注 | |
| 1 | 汽车起重机 | 50t | 1 辆 | 现有 | |
| 2 | 汽车起重机 | XZT4240 | JQ216 | 1 辆 | 现有 |
| 3 | 内燃叉车 | CPCD5 | 5t、10t | 各1 辆 | 现有 |
| 4 | 载重汽车 | 三菱 | 15t | 1 辆 | 现有 |
| 5 | 载重汽车 | 东风 | 8t | 2 辆 | 现有 |
| 6 | 载重汽车 | 东风 | 5t | 1 辆 | 现有 |
| 7 | 拖板车 | 60t | 1 辆 | 现有 | |
| 8 | 手动叉车 | 2t | 2 辆 | 现有 | |
| 9 | 手动叉车 | 1t | 2 辆 | 现有 | |
2、设备运输
本标段工地道路运输主要部件有座环与蜗壳、顶盖、主轴、转轮及机组其他成套设备等,为满足成套设备工地装卸、运输需要,本项目部主要配备50t 吊车一辆、60t 拖板车一辆、16t 汽车起重机一辆,15t、8 t、5t 载重汽车共5 辆。
按照合同和工期计划要求制定合理设备到货和二次运输计划,在安装现场条件允许的情况下,大型设备(如转轮、大轴、座环等)可直接运到安装现场,不进行二次倒运。其他设备一般应先在成套设备库进行卸车、检查、验收、保管和仓储等工作,最后根据安装进度的要求,进行二次运输到厂房进行安装。设备的超大件、超重量件及主变压器和桥机由发包人确定的厂家负责直接运到工地现场交货。
设备的装卸、运输应注意设备箱/件的重量、重心及吊点的位置标示,严格遵守安全操作规程,牢靠加固,平稳行驶,避免设备损坏。
对超重、超宽、超大设备的装卸运输,事前应拟定装卸运输方案,报请监理人和相关部门审批,取得认可再组织实施。
本合同主要大件设备见表5-2
| 部件名称 | 单件重量(t) | 单件最大尺寸(mm) |
| 转轮 | 70 | Ф5200×2290 |
| 主轴 | 40 | Ф1400×4530 |
| 座环 | 83 | Ф8190×2385(分4 瓣) |
| 部件名称 | 单件重量(t) | 单件最大尺寸(mm) |
| 顶盖 | 64 | Ф6600×1560(分2 瓣) |
| 转子支架中心体 | 40 | 3700×3700×2860 |
| 定子机座 | 20 | 8250×2500×2600(分4 瓣) |
5.5.4 设备管理
1、设备的仓储保管
本合同将修建设备保管库房,设备库房按A 类库(保温库)、B类库(封闭库)、C 类库(半封闭库)和D 类库(露天库)设置,管理采用计算机辅助管理,按不同专业配备专职设备管理员,对设备按不同仓储保管要求,分门别类进行保管,从设备点收、开箱验收到仓储保管、领用全过程,必须做到台帐、卡和实物一致,做到时间、地点等与实际一致。
设备管理员参加业主或监理组织的设备开箱检查,如发现设备有质量、数量、外观等缺陷时,立即报告,并做好记录。按照ISO9001编制设备材料管理手册和机电设备货物编码管理办法进行系统编码,建立施工范围内的设备台帐,妥善保管物资,严防偷盗及损坏。
设备运到工地开箱后,所有厂商提供的备品备件、安装专用工具和随机图纸、资料交由监理人统一保管和存储。
借用由专人负责向监理工程师办理,同时内部建立备品备件、安装专用工具和随机图纸、资料损坏丢失经济处罚的管理制度,以确保工程完工后如数、完好的交回监理人。
设备的仓储保管,重点做好防火、防雨、防潮和防盗,采取封闭式管理,安排保卫人员24 小时值班,坚持出、入库车辆检查,出库设备必须持有出库单制度。各类库房配备足够消防设施和器具,库区内严禁吸烟。
设备库内存放的设备,严格按规定层数叠堆,露天堆放的设备,应先在地面垫平方木,并应盖雨布防淋。定期检查库存设备,做好维护工作。
2、施工设备和材料的管理
施工设备进入工地前,将根据有关规定进行年检和定期检修(提交使用和检修记录),确保能投入现场使用,并配备足够的备品备件以保证施工设备的正常运行。运入工地的材料和设备,在未经监理人同意前不得运出工地。
3、现场设备的成品保护
做好施工现场的成品保护是一项十分重要的工作,也是文明施工的一项重要内容。施工现场存放的设备和材料,应分门别类堆放,并加标签注明,将工程设备和施工设备分开堆放,工程设备应注明名称、安装部位等内容,便于落实成品保护责任制。小件物品放置于专用的房间内。
质量控制与检验
质量是企业的信誉和生命,切实有效地保证工程质量是我局的一贯宗旨,在本工程项目施工中,我项目部将严格按照招标文件的质量保证要求,在工程施工中推行ISO9001《质量管理和质量保证》系列标准,严格进行质量管理和控制,确保本项目部承担的工程项目全优施工质量目标的实现。
本项目部的质量方针是:一流的质量、顾客的期望、我们的追求。
其注释如下:
1) 一流的质量——提高全员的质量意识,树立质量是企业生命的理念。完善质量管理体系,严格控制,科学管理,在满足法规、规范、标准的前提下持续改进,不断提高,使工程施工质量领先于国内先进水平。
2) 顾客的期望——以顾客为关注焦点,满足顾客对工程质量、施工安全、文明施工的高标准、严要求,确保工期,创建精品。
3) 我们的追求——精益求精、不断创新、与时俱进。本项目部的质量目标是:严格按照ISO9001 质量保证体系组织施工,工程合格率达到100%,机电安装优良率达到92%以上,杜绝质量事故,消除质量隐患,实现机组整体启动一次成功,工程总体质量达到优良标准。
6.2 质量保证组织机构及人员配置
质量保证组织机构见下框图,质量体系要素分配表见表6-1。
项目经理
项目副经理
施工构件
生产副经理
试验员
施工管理科
工程技术科
综合办公室
物资供应科
质量保证科
计财科
测量组
施工构件
主机质检工程师
辅机质检工程师
电气一次质检工程
电气二次质检工程
测量质检工程师
焊接质检工程师
各施工作业工队
保证组织机构框图
质量体系要素分配 表6-1
| 要素编号 | 要 | 素 | 职能部门 | 质量保证科 | 工程技术科 | 物资供应科 | 计划财务科 | 试验室 | 综合办公室 | 施工管理科 | 施工作业队 |
| 1 | 管理职责 | ▲ | △ | △ | △ | △ | △ | △ | |||
| 2 | 质量体系 | ▲ | △ | △ | △ | △ | △ | △ | |||
| 3 | 合同评审 | △ | ▲ | ||||||||
| 4 | 文件和资料控制 | ▲ | △ | △ | △ | △ | △ | △ | |||
| 5 | 物资采购 | △ | △ | ▲ | △ | △ | |||||
| 6 | 顾客提供产品的控制 | △ | △ | ▲ | △ | △ | |||||
| 7 | 产品标识和可追溯性 | △ | ▲ | △ | |||||||
| 8 | 过程控制 | △ | ▲ | △ | △ | △ | ▲ | △ | |||
| 9 | 检验和试验 | ▲ | △ | △ | ▲ | △ | |||||
| 10 | 检验、测量和试验设备的控制 | △ | △ | ▲ | △ | ||||||
| 11 | 检验和试验状态 | ▲ | △ | △ | △ | ||||||
| 12 | 不合格品的控制 | ▲ | △ | △ | △ | △ | ▲ | ||||
| 13 | 纠正和预防措施 | ▲ | ▲ | △ | △ | △ | |||||
| 14 | 搬运、贮存、包装、防护和交付 | △ | ▲ | ▲ | ▲ | △ | |||||
| 15 | 质量记录控制 | ▲ | △ | △ | △ | △ | △ | △ | |||
| 16 | 内部质量审核 | ▲ | △ | △ | △ | △ | △ | △ | |||
| 17 | 培训 | △ | △ | ▲ | △ | ||||||
| 18 | 服务 | ▲ | △ | △ | △ | △ | |||||
| 19 | 统计技术 | ▲ | ▲ | △ | |||||||
注:“▲”为主要职能部门;“△”为相关职能部门。
6.2.1 质量保证体系
为了切实有效地开展质量管理和质量保证活动,确保质量体系持续有效运行,项目部将根据本工程的施工任务和特点,以水电十四局质量方针为宗旨,以ISO9001 标准为指南,建立健全质量保证体系,制定本工程的质量管理办法,明确项目部各级人员的质量职责,正确合理地分配各职能部门的质量体系要素,实施全面科学质量管理。见附图6-2建立健全质量检查机构,加强质量监督检查。建立以项目经理为首,由与工程质量管理直接相关的各职能部门负责人组成工程质量管理委员会,项目经理为施工质量的第一责任人,对所有工程的施工质量全权负责,并实行工程质量分级责任制,对工程质量实施统一领导,对保证施工质量的重大问题进行决策。
赋予质检人员对工程使用的材料和工程的所有部位及其施工工艺过程进行全面质量检查和随机抽样检验的权力。质检员在施工整个过程中坚持实行旁站制,在现场进行质量跟踪检查,加强对各道工序特别是关键部位或技术复杂部位的专职检查,严格把关,发现问题督促有关人员及时纠正,对重大问题立即向质安科报告,质安科的质检工程师对关键工序和技术复杂部位坚持实行旁站制,对在施工中发现的问题作好记录,达不到要求的工序未处理完善不得进入下一道工序。
6.2.2 质量管理人员配置
本工程设一名质量安全副经理负责质量管理的日常工作,设专职质检员3 名,各作业队均配备兼职质检员2~3 名,组成项目质量监督机构,质检员在现场进行质量跟踪检查,加强对各道工序特别是关键部位或技术复杂部位的专职检查,严格把关,发现问题及时督促有关人员纠正,对重大问题立即向项目技术负责人报告,质量管理人员[配置见表6-2。
质量管理人员配置表 表6-2
| 序号 | 名 | 称 | 人数 | 部 | 门 |
| 1 | 项目经理 | 1 | 项目部 | ||
| 2 | 质量安全副经理 | 1 | 项目部 | ||
| 3 | 总工程师 | 1 | 项目部 | ||
| 4 | 质安科科长 | 1 | 项目部 | ||
| 5 | 专职质检员 | 3 | 质量安全保证科 | ||
| 6 | 兼职质检员 | 15 | 施工作业队 | ||
| 7 | 义务消防员 | 5 | 施工作业队 | ||
6.3 质量保证管理措施
1、严格贯彻执行国家电力公司“国电水[2000]83 号文”的规定进行项目施工质量控制。质量检查的主要依据包括:国家及部级颁发的规程、规范、标准和有关实施细则;批准的设计文件、施工详图及设计修改通知;制造厂提供的设备图纸及技术说明书;合同中规定的标准、规范以及项目部制定的报请监理批准并经业主确认的有关技术措施。
2、编制“质量管理计划”,确保整个施工过程处于受控状态。开工前,各施工作业队依据设计图纸、招标文件、施工规范和施工措施及我局《质量体系第三层次(管理性)文件》,编制“质量管理计划”,制订出各分部分项工程程序控制图及质量控制点,编制施工作业指导书、操作规程、管理细则和岗位责任制等,对施工质量进行全过程的管理控制,确保整个施工过程连续、稳定地处于受控状态。
3、实行工程质量岗位责任制和质量终身制,严格执行质量奖惩制度。按科学化、标准化、程序化作业,实行定人、定点、定岗施工,各自负责其相应的责任。施工现场挂牌,标明施工区域,技术负责人及行政负责人,接受全方位、全过程的监督。做到奖优罚劣,确保一次达标。对不按施工程序和设计标准施工的班组和个人追究责任,并予以经济惩罚。
4、坚持质量一票否决制。对施工过程中违反技术规范、规程,存在质量问题时,质检人员有权当场制止并责令其限期整改。对不重视质量、粗制滥造、弄虚作假的人,质检人员有权要求行政领导给予严厉处理,并追究其相应的责任。在质量与工期发生冲突时,坚持质量一票否决制。
5、开展质量教育,增强职工质量服务意识和服务水平。开工前和施工过程中,对职工进行质量责任教育和质量管理意识教育,牢固树立“百年大计、质量第一”的观念,然后针对本工程的实际,加强对各级人员的培训工作,对主要工种进行技术业务培训和再培训,使职工具有保证作业质量的技术业务知识和能力,并要求质量检验人员和特殊工种作业人员持证上岗。
6、开展全面质量管理活动,建立健全质量保证体系。按照程序文件中《文件和资料控制程序》、《质量记录控制程序》和《内部质量审核程序》的要求,认真做好工程的施工记录、资料收集整理,每月写出质量报表,对施工质量进行质量统计分析,找出质量缺陷原因,及时提出改正措施,从而确保质量目标的实现。
7、工程中标后建立以项目总工程师为首的技术管理系统,执行水电十四局通过ISO9001 标准的质量体系程序文件中的《施工技术管理办法》的有关技术管理办法。总结我局过去类似工程的施工经验和教训,结合本工程设计要求及技术要求,依据设计图纸、招标文件、施工规范和施工组织措施以及水电十四局质量体系第三层次(管理性)文件,编制项目部质量计划,制订出各分部工程和分项工程的程序控制图及质量控制点,编制分部(分项)工程施工作业指导书、操作规程、管理细则和岗位责任制等相关文件,对施工质量进行全方位、全过程的管理控制,确保整个施工过程持续稳定处于受控状态。管理制度主要包括:岗位责任制度;施工检验制度;技术交底制度;开工报告和竣工报告制度;材料检验制度;隐蔽工程检查制度;工程负责人质量评定奖惩制度;工程自检制度;工程质量事故处理制度等。
8、重大设备的检查和试验按照相应的设备采购合同中的有关规定进行,一般设备的检查和试验按照采购合同相关条款中的文件制定计划,提交监理审核后执行。
9、工程验收检查内容、时间和地点,提前24 小时书面通知监理工程师。对关键部位和特殊工序制订详细并落实到人的施工过程控制程序和操作细则,并对技术人员实行专业分工负责责任制,专业技术人员既是该工序的技术质量负责人,同时又是工序施工负责人,要有效防止因技术人员和施工人员责任不清,分工不明导致的质量缺陷。
10、如果发生质量事故,项目部应立即组织相关人员,提出事故报告和处理措施,报请监理会同有关单位,共同对质量事故进行剖析,查找事故原因并审查处理措施。
11、施工过程要严格把好“四道关”,开展质量“三检制”和“联检制”。按照合同相关条款的规定,作好详细的质量检查记录,编写质量检查报表,定期向监理工程师提交质量自检报告。提供质量鉴定和验收所需要的施工记录和有关试验资料包括质量自检报告。严把四道关即是:
1) 严把图纸关。首先组织技术人员对图纸进行认真复核,让所有的技术人员彻底了解设计意图,其次严格按图纸和规范要求组织实施,并层层落实,执行技术交底并做好记录。
2) 严把测量关,工程技术部测量组根据复核结果进行测量控制网的布设及对施工放样进行抽检复核,厂队测量人员负责施工测量放线。
3) 严把材料质量和试验关,对每批进入施工现场的钢材按照规范要求进行质量检验,并按ISO9001 质量体系进行管理,杜绝不合格的材料及半成品使用到工程中。
4) 严把过程工序质量关。监督和指导施工过程严格按照技术图纸、规范及技术措施进行。施工过程中做到“六不施工”和“三不交接”。其中“六不施工”是指:不进行技术交底不施工,图纸和技术要求不清楚不施工,测量和资料未经审核不施工,材料无合格证或试验不合格不施工,隐蔽工程未经检查签证不施工,未经监理认可或批准的工序不施工。“三不交接”是指:无自检记录不交接,未经监理或值班技术人员验收不交接,施工记录不完整不交接。“三检制”和“联检制”是指:施工过程坚持施工班组初检、作业队质检员复检、质安科质检工程师终检制度,在三检合格的情况下由质安科质检工程师将检验合格记录呈交监理工程师,并在监理工程师指定的时间内,由质检工程师、施工作业队质检员和监理工程师一起对申请验收的部位进行联合检查验收,配合设备制造厂家对安装质量的检验,配合业主、监理的检验。建立隐蔽工程“专业联检制”,对于隐蔽工程在覆盖前必须遵循严格的质量检查程序,施工中组织各专业的质检工程师对隐蔽工程进行联合检查验收,并将检查验收记录呈交相应的监理工程师进行会签。
6.4 质量保证技术措施
6.4.1 原材料质量检测和试验
施工全过程原材料质量检测试验工作是保证质量不可缺少的重要手段,产品质量的优劣是通过试验检测确定。完善检验机构,建立现场试验室,并配备满足工程需要的各项试验检测仪器设备和检测人员,用试验数据指导施工。
6.4.2 焊接质量保证技术措施
1、从事焊接施工人员必须持有有效的资格证书,并报监理认可。焊工应当按照监理要求参加焊工试焊考试,合格后方能上岗进行焊接工作。焊接施工要严格按照国家标准和设备厂家相关规定进行。
2、焊接材料的检验和储存
1) 焊接材料(包括焊条、焊丝和焊剂等)必须具有出厂质量证明书,其各项指标(包括化学成分、机械性能和可焊性等)均应符合有关规定。
2) 材料供应部门严格执行“原材料入场检验制度”,做好原材料的检查验收工作,对经验收合格的焊接材料做好标识,并按不同的品种和规格分类分区存放。焊条、焊丝和焊剂存放于通风、干燥且室温不低于5℃的专用库房内,并派专人保管。
3) 焊条在使用前按厂家说明书要求严格烘干后保存在100~150℃的恒温箱内,随用随取。现场使用的焊条装入100~150℃的保温筒中,在保温筒内存放时间不得超过4h,若超过后需重新烘焙,重新烘焙的次数不得超过两次,并及时做好实测温度和焊条发放记录,焊丝在使用前彻底清除铁锈和油污。
3、焊接质量控制要点
1) 施焊前将坡口及两侧10~20mm 范围内的铁锈和污物等清除干净,施焊时如果存在以下情况之一:风速大于10m/s、雨雪天气或环境温度低于-5℃、相对湿度大于90%,焊接场所要有可靠的防护屏障和保温措施。
2) 对一、二类焊缝的定位焊焊接工艺和对焊工要求与主缝相同。对需要预热焊接的钢板,在定位焊时的预热工艺要求符合相关规定要求。
3) 对一、二类焊缝的预热工艺、焊接层间温度、焊后热处理温度以及焊接线能量控制等各项工艺要素需符合相关推定要求。
4) 手工电弧焊焊接时,严禁在坡口以外的母材上引弧,熄弧时应当将弧坑填满。焊缝应当留有适当的余高。多层多道焊时,每道和每层之间的接头必须错开。
5) 纵缝埋弧焊时在焊缝两端设置引弧和熄弧板。引弧和熄弧板用氧-乙炔火焰切割或碳弧气刨切割,严禁锤击,切割完后用磨光机修磨成原坡口型式。
6) 双面焊接时,单侧焊接后用碳弧气刨或砂轮进行背面清根,将清根侧的定位焊焊缝金属和未熔合的根部金属彻底清除,然后用磨光机修磨刨槽,高强钢磨除渗碳层,仔细检查无缺陷,必要时做渗透探伤检查。
7) 焊接完成后,焊工进行自检。一、二类焊缝自检合格后在焊缝附近用钢印打上焊工代号,并作好记录。对不允许打钢印的抗拉强度在550Mpa 以上的低合金调质钢,焊缝自检合格后当场作好记录,并由焊工本人签名。
8) 焊缝成型外观达到技术要求标准,对飞溅、焊渣等外观缺陷打磨光滑。经无损检测后不合格的局部焊缝,选派经验丰富的焊接人员进行返修。同部位发生的缺陷返修不得超过三次,第三次则必须上报项目部总工室,并由技术科专职工程师拟订处理措施报监理批准后现场监督实施。
9) 异种钢焊接时,焊接材料按设计要求选用或按强度低的钢材选用,焊接工艺按强度高的钢材选用。
10) 为减少焊接变形和焊接内应力,选择合理的焊接顺序,采用分段退步焊、多层多道焊或采取预留反变形等措施。对封闭焊接时配合适当的锤击措施以消除焊接应力。
6.4.3 无损检测质量保证技术措施
1) 从事无损检测的工作人员必须持有有效的资格证书,并报监理认可。无损检测工作要严格按照国家标准和设备厂家相关规定进行。
2) 所有焊缝进行外观检验(VT),外缝焊接质量符合相关条款要求。
3) 焊缝无损检测的长度、比例以及无损检测的方法和评定标准按照设计和厂家规定,如无规定时按照相关规范执行。
4) 无损检测工作必须保证在焊接完成后24h 以后进行。
5) 焊缝缺陷处理和补焊按规范有关规定执行。
6) 填写焊缝质量检测结果一式三份,其中一份报监理工程师,一份报项目部质安部,一份留底备查。若有质量问题,在被检测的部件焊接位置注明缺陷尺寸大小、深度等,并通知相关人员及时返修。
6.4.4 隐蔽工程的验收
隐蔽工程指位于地下、水下、被覆盖的建筑和埋入地下、水下、混凝土或圬土中的零部件、电缆、管道、钢筋和扁钢等。当隐蔽工程或工程的隐蔽部位具备覆盖并达到合同规定的验收条件时,按照合同规定进行自检,合格后在隐蔽工程和中间验收48 小时前,向监理提交申请验收报告,并为监理提供足够的检验、鉴定和验收时间。申请验收报告包括自检记录、隐蔽工程和中间验收内容、验收时间和地点等。
6.4.5 测量检验
1. 随着技术的发展,我局准备在本工程的施工测量中,采取先进的测量控制手段,尽量减少数据采集由人工观测、记录和计算的陈旧方法工艺,将此转化为智能化自动采集数据的方法,提高观测效率和观测质量,取消用人工记录、观测和计算方式,全部数据直接与计算机相互处理及交换,最大限度地减轻作业人员的劳动强度,消除人为因素带来的错误和误差,以确保所获得的观测数据和记录成果的准确性和可靠性。
2. 所有测量设备必须检验合格才能使用,控制测量采用激光经纬仪和红外测距仪控制网,施工测量主要采用全站仪,局部工程部位采用水准仪配合经纬仪进行。测量作业由富有经验的专业人员进行测量放线和复测。
3. 遵照国家有关测绘标准和工程相关技术要求,接受测量资料(控制网、基准点、基准线和水准点等),测放出所需中心点、中心线、高程、里程和桩号、方向等要素。检测资料填写相关表格,一式四份,其中一份报监理,一份报质安部,一份移交下道工序作业,一份留底备查。资料记录保证字迹清楚正确,并有检测人员签字。
6.5 完工验收
6.5.1 工程完工
工程完工后,按照国家标准和合同条款的相关规定,结合工程进度,对单元工程、分项工程和分部工程进行阶段性完工和竣工验收。
6.5.2 竣工资料的准备和工程移交
竣工资料是工程项目进行交接的主要依据,是项目施工过程中重要的真实的记录,在工程施工过程中以及在竣工前要设专人对整体施工过程中产生的相关资料进行积累、收集和整编,相关人员和部门积极配合,并由项目总工程师主抓此项工作。文件资料的整理打印、签章、装订符合科技档案管理规定以及招标文件和发包人的规定及要求。竣工验收前,按合同要求准备好下列资料:
1) 按水轮发电机组安装规程(GB8564)所列图纸、资料及安装、试验和试运行记录;
2) 永久水准点和控制桩的坐标位置图;
3) 主要原材料、半成品和重要构件的出厂合格证明书、说明书及自行检验或委托试验的证明书;
4) 特种焊接的试验记录;
5) 施工中采用的新技术、新工艺的鉴定结论或试验记录;
6) 图纸会审、设计变更,材料、设备代用的批准文件;
7) 施工中全部分项工程的质量评定记录;
8) 重大质量事故和主要设备缺陷情况及处理记录;
9) 工程施工期间有关方面的协议、会议纪要、补充规定等文件;
10) 工程施工期间形成的其他必要资料。
施工图纸及资料在工程竣工后的两个月内移交业主,一式三份。竣工图要与实际相符,图面做到整洁美观,字迹清晰工整。竣工图更改太多时重新绘制。所有竣工图由项目部技术负责人审核签证。工程移交前,所有工程项目包括完善部位,需全部完成并且符合由项目负责人组织的自检要求标准。所有的文件资料完整、齐全,符合规定要求,最后按照发包人验收程序申请移交。
6.6 工程竣工验收
6.6.1 工程竣工
工程竣工时需满足以下条件:本项目部承担的合同内工程全部完工并经最终验收合格,合同外新增工程在允许范围内全部完工并经验收合格。本合同无遗留工程,并经业主方批准认可。
6.6.2 竣工验收程序
竣工验收在最后一台机组试运行半年后的6 个月内,向业主和监理提出竣工验收申请,提供相关的验收技术资料、文件,取得业主和监理认可后参加竣工验收工作。单元工程提交单元工程质量评定表、单元工程施工检验记录;分项工程提交所含的各单元工程验收资料文件和分项工程施工报告。分部工程提交所含分项工程中各种合格的验收资料、文件和相关图纸资料以及分部工程施工报告。阶段完工和竣工验收按照合同文件要求及《水利水电建设工程验收规范》SL223-1997 的相关规定提交竣工验收资料。
6.7 工程保修
6.7.1 竣工及保修期的服务
在全部工程移交完工及其之后的一年保修期内,如果发生因安装因素造成的质量缺陷或质量问题,我部将负责无条件修复处理;即使发生因其它非安装因素造成的质量缺陷或质量问题,我部也将负责收集安装质量信息,做好质量保证期内的回访、监督和保修工作,积极配合监理和制造厂家的工作,选派素质较高的管理人员和熟练工人,认真做好工程质量缺陷的修复工作和收尾工作,为顾客提供满意服务。
6.7.2 工程回访
移交工程时制定工程回访计划,按计划进行工程质量回访,及时了解掌握顾客对工程的意见和质量要求,对回访过程中反映出的质量问题,按照质量回访及服务程序执行,确保顾客100%满意。
安全生产文明施工环境保护
本项目部的安全管理目标是:“四无一低一杜绝”。“四无”即无人身死亡事故,无重大机械设备安全事故,无重大交通事故,无火灾和洪灾事故。“一低”即职工负伤率低于行业标准,“一杜绝”即杜绝重伤事故,并在此基础上创建安全文明工地。
7.2 安全管理组织机构及人员设置
项目经理是项目安全生产的第一责任人,全面负责并领导项目安全生产工作。项目副经理和质量安全保证科(以下简称质安科)负责安全生产管理的日常工作。质安科设专职安全员1 名,各施工作业队配备2~3 名兼职安全员和数量适应的义务消防员。安全员负责施工现场的安全管理和安全监督工作。义务消防员应经过一定的上岗前消防知识培训,能够掌握基本的消防知识并正确熟练地使用消防设施。安
全生产管理人员配置见表7-1
安全生产管理人员配置表 表7-1
| 序号 | 名 | 称 | 人数 | 部门 |
| 1 | 项目经理 | 1 | 项目部 | |
| 2 | 质量安全副经理 | 1 | 项目部 | |
| 3 | 质安科科长 | 1 | 项目部 | |
| 4 | 专职安全员 | 1 | 质量安全保证科 | |
| 5 | 兼职安全员 | 15 | 施工作业队 | |
| 6 | 义务消防员 | 5 | 施工作业队 | |
安全管理组织机构见下框图。
项目经理
质量安全副经理
安全负责人
技术负责人
生产调度负责人
机械管理负责人
消防防汛管理负责人
劳务管理负责人
其它有关部门
1. 监督施工全过程的安全生产纠正违章。
2. 配合有关部门排除施工不安全因素。
3. 项目全员安全活动和安全教育。
4. 监督劳保用品质量和使用。
1.制定项目安全技术措施和
分项安全方案。
2.督促安全措施落实。
3.解决施工过程中的不安全
技术问题
1.在安全前提下合理安排生产计划。
2.组织施工安全技术措施的实施.
1. 保证项
目使用的
各类机械
安全运行。
2. 监督机
械操作人
员持证遵
章作业.
1. 保证防
火设备设
施齐全、有
效。
2. 消除火
灾隐患。
3. 组织现
场消防。
4. 防汛物
资检查、安
全度汛.
1. 保证进场施工人员安全技术素质。
2. 控制加班加点、保证劳逸结合。
3. 提供必需劳保用具用品, 保证质量。
1. 财务部门保证安全措施项目的经费
2.卫生、行政部门保证工人生活基本条件,确保工
人健康。
开工前准备
施工中检查
竣工时总结
安全生产责任制
安全生产奖罚制度
1.施工组织设计中有安全技术措施。
2.机具设备状况合乎安全要求。
3.施工人员经过安全技术教育。
4.建立各级施工安全责任制。
5.施工安全防护措施及预防措施。
6.不安全因素预想及控制。
1、安全技术交底。
2、施工中各种不安全因素的控制。
3. 坚持和检查安全操作规程的措施。
4. 坚持和检查施工安全挂牌制。
5. 定期召开安全会议。
1. 总结施工安
全经验。
2. 找出施工安
全生产的薄弱环节并提出改进措施。
3. 做好安全生
产的评比和奖罚。
1. 建立项目部、作业队、生产班组
三级安全生产责
任制,各级主要领
导为责任人。
2. 各职能部门制定安全生产制度,落
实安全措施。
3. 施工中如出现事故,应坚持“三不放过”原则处理。
1. 安全风险扣
抵押金制度。
2. 伤亡事故罚
款和处分制度。
3. 表彰安全生
产单位和个人
制度。
7.3 施工安全保证体系
安全是保证项目施工顺利进行的基本前提和重要保障。安全生产必须坚持“安全第一,预防为主”的方针和 “以人为本”的观点,遵循“管生产,必须管安全”的原则,建立切实有效的安全生产责任制,制定完善的安全生产规章制度,并保证这些规章制度有效实施。为确保项目施工顺利有序进行,实现项目安全生产管理目标,监督安全生产责任制的落实,杜绝安全隐患和安全事故,保证安全生产保证体系自身的有效运行,建立本项目安全生产保证体系。见附图7-2
7.4 安全目标管理
建立严格的安全生产经济责任制是实施安全管理目标的中心环节,运用安全系统工程的思想,坚持以人为本,教育为先,管理从严,做好安全事故的超前防范工作,为实现安全管理目标打下良好的基础。
1、本合同工程成立以项目经理为组长的安全生产领导小组,全面负责并领导本项目的安全生产工作。在现场常设一名安全副经理负责安全工作,该副经理具有安全工作经历,且熟悉施工工作。其负责制定现场安全规则,检查安全执行情况,对职工进行安全教育,采取各种预防措施,防止事故的发生。
2、本项目实行安全生产三级管理,即一级管理由项目经理、质量副经理负责,项目经理是施工项目安全管理第一责任人,二级管理由项目部专职安全员负责,三级管理由施工作业队班组长负责。
3、按照颁布的《安全生产责任制》的要求,落实各级管理人员和操作人员的安全生产负责制,全员承担安全生产责任,做到纵向到底,横向到边,一环不漏,人人做好本岗位的安全工作。
4、项目部组织有关人员编制适合本工程需要的安全防护手册,在收到开工通知后21 天内将手册的复制清样提交监理人。安全防护手册下发项目部全体职工,同时报送业主和监理。安全防护手册的基本内容包括以下几方面内容:
1) 安全防护用品的使用规定;
2) 各种施工机械设备和交通运输工具的使用规定;
3) 照明设施安全操作规程;
4) 压力容器安全操作规程;
5) 信号和报警知识;
6) 用电安全操作规程;
7) 机电设备安装安全措施;
8) 特种作业(包括起吊、焊接等)安全措施;
9) 机电设备的防锈、防冻、保温、防潮等保护措施;
10) 意外事故(如火灾、中毒等)的救护程序等。
此外,根据工程进度需要,编制实施性安全施工组织设计,对机械电气施工、运输等作业项目编制和实施专项安全措施设计,确保施工安全。
安全员工作程序框图

5、实行逐级安全技术交底制,由项目部组织有关人员进行详细的安全技术交底,凡参加安全技术交底的人员要履行签字手续,并保存资料,项目部专职安全员对安全技术措施的执行情况进行监督检查,并作好记录。安全员工作程序框图如上。
6、加强施工现场安全教育
(1)针对本工程特点,对所有从事管理和生产的人员,施工前进行全面的安全教育,重点对专职安全员、班组长、从事特殊作业的起重工、电工、焊工、机械工、机动车辆驾驶员等进行培训教育。
(2)执行“三不上岗”制度:未经安全教育的施工管理人员和生产人员不准上岗,未进行三级教育的新工人不准上岗,变换工种或采用新技术、新工艺、新设备、新材料而没有进行培训的人员不准上岗。
(3)特种工种的操作人员的安全教育、考核、复验,严格按照《特种作业人员安全技术考核管理规定》考核合格,获取操作证方能持证上岗。对已取得上岗证的特种作业人员要进行登记,按期复审,并要设专人管理。
(4)通过安全教育,增强职工安全意识,树立“安全第一,预防为主”的思想,并提高职工遵守施工安全纪律的自觉性,认真执行安全检查操作规程,做到:不违章指挥,不违章操作和三不伤害(不伤害自己,不伤害他人,不被他人伤害),达到提高职工整体安全防范意识和自我防护能力。
7、认真执行安全检查制度
项目部要保证安全检查制度的落实,规定定期检查的日期和参加检查的人员,项目部每周进行一次、作业班每天进行一次定期检查。视工程情况,如施工准备前、施工危险性大、采取新工艺、季节性变化、节假日前后等要进行检查,并要有项目部领导值班。对检查中发现的安全问题,按照“三不放过”的原则立即制定整改措施,定人限期进行整改,保证“管生产必须管安全”的原则。
7.5 主要安全技术措施
7.5.1 消防安全措施
1、施工现场布置防火、防爆、防雷电等规定和文明施工的要求,施工现场的生产、仓库、材料堆放、停车场、修理厂等场地应按照批准的总平面布置图进行布置。
2、各类房屋、库棚和料场等的安全消防距离符合公安部门的规定,室内不堆放易燃易爆物品,不在易燃易爆物品附近吸烟,随时清除现场的易燃易爆杂物,不允许在有火种的场所或其近旁堆放。
3、现场的生产生活区设置足够的消防器材,具备足够的且能够随时供应的消防水源,并使消防设施处于良好状态,可随时满足消防要求。消防器材由专人管理,不乱拿乱动,组建一个由10 人组成的义务消防队,所有施工人员和管理人员熟悉并掌握消防设备的性能和使用方法。建立健全消防组织机构,编制消防管理程序、动火规定、防火检查等消防管理制度,责任部门监督认真贯彻落实。
7.5.2 保卫安全措施
施工现场配备适当数量的保安人员,协助业主设立的现场治安管理机构开展现场的治安保卫工作,负责本工程施工工地和生活区的治安保卫工作以及施工物资、机械设备和施工人员的日常生产生活的安全保卫工作。配备足够数量的夜间照明和防护设施,以保证保卫工作在夜间和节假日等时间仍继续正常开展。保安人员接受教育,遵纪守法,做好本项目工程范围内的治安保卫工作,同时协管对职工进行教育,制止职工的不合法行为或妨碍治安行为,以维护社会秩序,保护工程附近居民和财产免遭上述行为的侵害。
7.5.3 施工安全措施
1、在工程开工后21 天内编制《工程施工安全措施》报送监理审批,其中包括安全机构的设置、专职人员的配备以及防火、防毒、防噪声、防洪、救护、警报和治安等项具体安全措施。
2、现场施工除设置安全宣传标语牌外,危险地点和安全隐患地点按照GB2893-82《安全色》和GB2894-82《安全标志》规定悬挂标牌,夜间有人经过的施工区还设有红色警示灯。
2、夏季施工机械设备做好降温防故障措施,尽量避免在高温时间露天作业;冬季机械设备做好防冻措施,露天管道进行包扎保温。
3、油漆及稀释剂、易燃易爆物品如氧气瓶等不得沾染油脂,乙炔发生器必须具有防回火的安全装置,氧-乙炔设备按规定运输、存放、使用,并远离火源,符合防火规定,同时张贴醒目的防火标志。加强对焊割作业的安全管理。
4、按照公安部门的有关规定,对易燃、易爆物品、火工产品的运输、加工、保管和使用等工作项目制定一系列规章制度,并接受当地公安部门的审查检验。
5、施工现场临时用电具备设计方案。按照《施工现场临时用电安全技术规程》(JGJ46-88)的要求进行设计、施工、验收和检查。建立健全安全用电管理制度和安全技术档案。制订用电安全技术措施和电气防火措施,现场用电达到三相五线制。施工用电按一至四级盘分级布置,所有用电设备设置符合安全要求,电焊机采用集装箱式布置,施工现场照明充足,施工电源线为电缆或皮线,施工电源开关盘柜及其开关板采用胶木绝缘板制作。开关、线路布置合理有序,不乱拉乱搭,开关保护罩完好无损,电线电缆无裸露现象。在电源开关下端施工接线时,关闭开关,挂警示牌禁止合闸或者派专人值守现场,以免误合闸事故发生,作好安全接地和安全避雷工作。
6、根据施工现场情况设置安全网、孔口盖板、防护栏、防护罩并以警告识别色标,对各种限制保险装置不允许擅自拆除或移动。因施工要求确实需要移动时,必须经工地施工负责人同意,并需采取相应的临时安全措施,在完工后及时复原。
7、施工用各类脚手架、通道、爬梯、防护栏杆和安全网等安全防护设施做到完善可靠;安全标志醒目;对于高处作业设置垂直防护和水平防护设施,设置安全通道,交叉作业隔离设施的搭设。施工用脚手架材料符合规范要求。脚手架基础必须夯实,立杆底部应垫垫木,并作好排水措施,应根据施工作业面的高度确定脚手架的搭设方式,立杆间距不大于1.8 米,大横杆间距不大于1.2 米,小横杆间距不大于1.5 米,立杆、大横杆接头应错开,用接头扣件连接,操作层应铺满脚手板,不得留有空隙和探头板、飞跳板,脚手架须经检查验收合格后方可使用,搭拆脚手架应划出作业区,设专人值守警戒。
7.5.4 大型机械设备和交通运输安全措施
1、重大设备起吊运输的吊装作业严格遵守有关起重吊装的安全规程和标准,对厂房内特大件的吊装有吊装措施并经过监理工程师的批准方可施行。定转子等大件的吊装和桥机载荷试验前对桥机预先进行检查维护,实施吊装或试验时有紧急避险措施和安全防护措施。对超长、超宽、超高和超载的设备运输,在电站区域以外按照当地交通管理办法申报批准,取得同意,悬挂有关指示标记,按照相应办法执行;在电站区域内的运输比照上述办法并在监理的认可和指导下实施。
2、严格进行大型机械设备和车辆的使用管理,实行机械车辆派遣制度,禁止酒后驾驶和无证驾驶,遵守当地有关交通规则。
3、以水电十四局有关设备管理办法为指导,根据现场施工环境和条件,制定适宜现场的《机械设备管理事实细则》。按细则严加管理和约束,随时检查督促落实各级责任。
4、严格按照水电十四局的相关管理办法,实行设备专人负责制。做到“管用结合、人机一体化”,设备操作负责人对整台设备的安全全权负责。
5、确保设备操作负责人员上岗资质有效,并定期进行考评。上岗人员必须达到“六懂”(懂设备安全规程规范、设备构造、工作原理、设备性能、用途和用油)和“三会”(会正常操作、会日常保养、会故障排除)。
6、随时检查施工作业环境,特别对便道地基松软、滑坡、易坍塌部位进行仔细检查,做到检查后先处理再作业,避免冒进和蛮干。
7、设备作业场地和停放场地周围50 米范围内严禁堆放易燃易爆物品,所有残油、干枝随时清理干净。定期对设备进行检查、维护和保养,避免机械故障造成安全隐患。严禁设备带病运转,严禁工作人员情绪不稳定上岗操作。
8、随时了解当地天气预报和气象变化情况,对影响施工因素的雨雪天气进行分析,提前布置调整施工方案并采取有效的防滑、防塌陷、防冻和防洪等应急措施。
7.5.5 职业卫生安全措施
1、按照国家劳动保护法的规定,定期给现场施工的工作人员发放必需的劳动保护用品,如安全帽、雨衣、手套和安全带等;发给特种作业人员劳动保护津贴和营养补助。做好季节性劳动保护措施,夏季防暑配备降温设施和药品。控制作业时间,避开高温时段作业。冬季施工配备防寒保暖设施。
2、定期及时对职工进行常规体检,避免传染病流行;注意饮食安全,餐具经常进行消毒处理;调整膳食结构,保证职工营养丰富,身体健康;及时清理公共场所的垃圾,消灭污染源。从事钢管道表面预处理和涂装的施工人员事先需穿戴好密封的工作服,供给的空气需是流动的经过过滤的无害空气。涂装时必须通风良好,工作场地严禁有明火。凡是患有呼吸系统疾病(如肺部疾病、气管炎等)不宜从事密封作业人员,均不允许进行涂装作业。
3、参加高空作业的工作人员,工作前必须进行身体健康状况检查,凡是患有神经系统疾病(如精神病、癫痫等)、循环系统疾病(如心脏病、高血压等)和其他不宜从事高空作业人员,均不允许进行高空作业。
7.5.6 施工人员安全保护措施
1、针对工程特点,对所有从事管理和生产的人员施工前进行全面的安全教育,重点对专职安全员、施工班组长、从事特殊工种作业的起重工、机械工、电工、焊工和机动车驾驶员等进行安全教育培训,合格后方可上岗。
2、特殊工种的操作人员需进行安全教育和考核,严格按照《特种作业人员安全技术考核管理规定》且考核合格后取得操作证方可持证上岗。对已取得上岗证的特种作业人员进行登记备案,按期复审并设专人管理。
3、确保必需的安全资金投入,劳动保护用品、安全设备及设施做到完全满足安全生产的需要。
4、有进入地下洞室工地的人员,按规定配带相应的安全防护用品,遵章守纪,服从统一安排指挥。作业人员到达工作面时,首先了解相邻工作面的当前工作情况,并检查所施工的工作面是否处于安全状态,如有安全隐患应提前予以清除或进行保护。
7.5.7 通风与防尘安全措施
现场设置临时大型通风设备,通风管的安装做到平顺,接头紧密、弯曲半径不小于风管直径的3 倍。设备运行维护设专人管理。
7.5.8 水轮发电机组安装与调试安全措施
7.5.8.1 机械设备安装
1. 机组安装现场设足够的固定和移动式照明,埋件安装、机坑、廊道和蜗壳内作业采用低压照明,并备有应急灯。对预留进人孔、排水孔、吊物孔、放空阀等孔洞加防护栏杆或盖板封闭。
2. 尾水管、肘管、座环、机坑里衬安装时,机坑内搭设脚手架和安全工作钢平台,平台基础稳固并满足承载要求。
3. 蜗壳安装高度超过2 米时,内外均需搭设脚手架和安全工作平台,并铺设安全通道和护栏。
4. 水轮机室内、蜗壳内等密闭场所进行焊接和打磨作业时配备通风除尘设施。
5. 尾水管、蜗壳内和水轮机过流面进行环氧砂浆作业时,有相应的防火、防毒设施并设置安全围栏和警告标志。
6. 定子干燥和转子磁极干燥时周围设安全护栏和防静电、防磁等警告标志,并配有专门的消防设施。
7. 发电机下部风洞盖板、机架及风闸基础埋设时,搭设与水轮机室隔离封闭的钢平台,其承载力满足安全作业要求。
8. 机组零部件使用脱漆剂清扫去锈时,作业人员配戴防毒口罩和皮手套,进入转轮体内或轴孔内清扫时,设置通风设施,清扫去锈施工现场设临时围栏和消防设施。
9. 定子组装、铁芯叠装和定子下线作业时,搭设牢固的脚手架、安全工作平台和爬梯。临空面设防护栏杆并悬挂安全网。
10. 转子铁片堆积时,铁片堆放整齐、稳固并留有安全通道,转子外围搭设宽度不小于1.2m 的安全工作平台,转子支架上平面之间铺满木板或钢板,并设置上下转子的钢梯或木梯。
11. 定子线棒环氧浇灌、定子、转子喷漆以及机组内部喷(刷)漆时,应配备消防、通风、防毒设施,周围应设围栏和警告标志。
12. 与安装机组相邻的待安装机组周围设安全防护栏杆,并悬挂警告标志。
13. 运行机组与安装机组之间采用防护围栏隔离,并悬挂警告标志。
7.5.8.2 电气设备安装
1. 变压器安装除设置保护阀门和安全防护栏杆,搭设操作平台,并设有爬梯、安全绳、安全带等设施。现场设有通风及消防装置,排氮时有防护措施。滤油期间做好放火隔离措施。
2. GIS 安装,有SF6 气体回收装置和漏气检测装置。
3. 高压试验现场设围栏,并悬挂“高压有电”警告标志。高压设备安装设有爬梯,高压试验设备外壳接地良好,接地电阻不得大于4Ω。在带电高压设备附近作业有预防感应电击人的防护措施。
4. 母线焊接场地设有通风设施,并配有足够的防护口罩等个体防护用品。
5. 蓄电池安装时蓄电池室设有通风和供水设施,备有防酸碱和防铅中毒的防护衣和橡皮手套等,并配有适量的灭火器材。
7.5.8.3 机组调试
1. 水轮发电机组整个运行区域与施工区域之间设安全隔离围栏,在围栏入口处设专人看守,并挂“非运行人员免进”标志牌,在高压带电设备上均应挂“高压危险”、“请勿合闸”等警告标志牌。
2. 吊物孔、临时未形成永久盖板的孔洞等制作临时盖板,盖板强度满足相应安全要求,运行现场临时通道牢固可靠。
3. 运行现场临时用电部位设带有漏电保护器的低压配电箱。
4. 在低压配电设备前后两侧的操作维护通道上铺设绝缘垫。
5. 水轮机层、发电机层、开关站、电缆层、附属设备等处均应配备足够的消防器材。
6. 厂房运行区域通风系统完善可靠,在通风不良的部位增设临时通风设施。GIS 设备检修时配有氧气探测仪。
7. 机组调试过程中,对需要测量机组运行情况的部位设置可靠的临时测量平台和爬梯等。
7.6 文明施工措施
本项目部以“科学生产、文明施工”为文明施工目标来指导工程施工建设。为实现创建文明施工工地的安全管理目标,将采取以下文明施工措施:
1、在工程开工时组成由项目经理直接领导、质量安全副经理亲自主抓的文明施工管理和监督机构,负责组织和监督本工程文明施工措施的落实。对现场文明施工的直接管理由质量安全保证科负责,各作业队及施工班组安全员同时兼文明施工监督员负责本施工队或班组的文明施工监督。
2、严格贯彻执行国家电力公司“国电水[2000]162 号文”,在制定安全、质量管理文件时,一并考虑文明施工的要求,将文明施工的精神融于安全质量管理工作中去。
3、由项目部质量安全副经理组织质安科、综合办、物资供应科、工程技术科和施工管理科有关人员制定文明施工实施细则,层层加以落实,每周由监督管理机构按照实施细则进行检查并把文明施工检查情况在生产调度会上向有关单位及项目经理层汇报,提出进一步的整改措施。
4、施工作业区及生活区采用封闭作业与管理,场地门口设置施工标示牌,标明建设工程名称、规模,业主、设计、监理以及施工单位名称,施工单位负责人、总工程师以及开工完工日期、施工许可证等项目。
5、施工现场设置的临时设施,包括办公室、宿舍、食堂、厕所等均建立住地文明、卫生和防火责任制,按规定布置防火设施,并落实相关责任管理。
6、成立以质量安全副经理领导,消防负责人主管的项目部消防领导小组,负责施工和生活消防工作,定期组织进行施工区和生活区的消防安全检查。
7、成立以项目经理领导的项目部防洪渡汛领导小组,配备必要的防汛物资和器材,在汛期时组织进行防汛检查,按要求做好安全度汛工作,配合业主相关管理机构完成工地防汛和抗灾工作。
8、为文明施工创造必要的条件,施工设备严禁沿道停放,必须在指定地点有序停放,经常冲洗擦拭,确保设备良好的备用状态和完好率。
9、施工现场所有施工管理人员和操作人员必须佩戴证明其身份的标示牌,标示牌标明本人姓名、职务和工作编号。
10、教育施工人员遵纪守法、爱护环境,注重自身素质的提高,以良好的精神风貌投入施工生产,与当地群众搞好关系。
11、合理安排施工顺序,避免工序相互干扰,凡下道工序对上道工序会产生损伤或污染的,要对完工的上道工序采取保护措施后方可开始下道工序施工。
12、风管、水管和电缆线、通讯设施、施工照明等布置合理,标识清晰;施工用风管、水管或电线等总体上采取由上至下的顺序布置。
13、各项施工生产活动严格按照有关的规程规范作业,杜绝野蛮施工和盲目施工。提倡文明作业,对野蛮施工的行为进行制止,一经发现一律给予经济处罚。
14、项目部对自检和监理单位组织的检查中查出的施工中存在的问题要立即纠正,并且针对文明施工中的薄弱环节进行改进和完善,使文明施工不断优化和提高。
15、工程完工后按照要求及时拆除所有工地围栏和安全防护设施以及其它临时设施,并将工地及周围环境清理整洁,做到工完料清场地净。
7.7 环境保护措施
本项目部以“工程建设与环境保护协调发展”为环境保护目标来指导工程施工建设。为实现创建文明施工工地的安全管理目标,将采取以下环境保护措施:
1、在工程开工的同时,建立由项目经理直接领导的环境保护管理和监督机构,制定环境保护措施,编制施工区和生活区的环境保护措施计划,报送监理人审批。负责组织和监督本工程环境保护措施的层层落实,协调在工程施工过程中出现的环境与各项施工生产之间的矛盾和冲突,达到工程施工与环境保护协调发展。环境保护措施计划主要内容包括:
1) 防止饮用水污染措施;
2) 施工场地安全通道保护措施;
3) 施工活动中的噪声、粉尘、废气、废水、废渣和废油等的治理措施;
4) 施工区和生活区的卫生设施以及粪便、垃圾的治理措施;
5) 完工后的场地清理。
2、严格遵守国家和地方有关环境保护的法令法规,对施工活动界限内的生态环境加以认真保护。开工前对全体职工进行培训教育,组织开展环境保护宣传教育,强化施工人员的环保意识,使环境保护成为职工的自觉行为;建立健全施工中的环境保护责任制,切实加以贯彻落实。自觉接受当地环保部门和监理工程师对施工活动的监督、指导和管理,积极改进施工中存在的环保问题,提高环保水平。
3、按照施工总平面布置图实施布置管理,施工现场内所有临时设施均按平面布置图布置,使施工现场、生活区、辅助企业、建筑物等处于整齐有序的状态,尽量减少工程施工对环境造成的负面影响。实行施工封闭化、围栏标准化、现场硬地化、厨房厕所卫生化和宿舍办公室规范化管理,对各区域实行分块专人负责,明示责任区,定期检查和随时抽查相结合,做到奖罚分明。
4、在工程施工过程中,加强对施工中有毒、有害、易燃易爆物品的安全管理,防止管理不善而导致环境污染的发生。加强施工机械的净化,减少污染源;对安装所使用的柴油、汽油、煤油等易污染砼及地板的油类使用时采取耐油橡胶隔离;配置对有害气体的监测装置,禁止不符合国家废气排放标准的机械设备进入工区。
5、与废油有关的部位,如厂房、车库、车间和设备停放场地等,设置废油收集池;收集到的废油进行专门处理,不得随意排放。
6、在远离固定卫生设施的所有施工部位,设置并维护简易的化粪处理厕所或类似的卫生设施,并定期清扫厕所,保持清洁卫生,粪便经处理后运至当地卫生主管部门指定或允许的地点排放,在地下厂房内适当位置设置两个移动厕所,安排专人负责日常管理,每天进行清洁排污。
7、为防止施工废水和工区生活污水污染周围环境,所有建筑物及设施周围均设有排水沟或污水废水排放系统,污废水通过排水管道汇集后进入污水处理池进行处理,达到污水综合排放标准后方可排放。
8、生活区及作业人员集中的场所合理布置一定数量的公共厕所、垃圾收集点等卫生设施,并与食堂或饮用水源相隔30 米以上距离。永久性防渗厕所按照卫生要求设计,配备自来水、照明等设施,并具备良好的通风采光条件。公共厕所(包括临时厕所)及时做好清洁、清运和消毒工作,达到无蛆无蝇标准。
9、在作业区修建生产垃圾临时堆放场,制订环卫制度,并配备专职环卫人员定时清理。定期将临时垃圾堆放场内的垃圾定点掩埋或运至工地的垃圾处理场。严禁在工区、生活区周围环境中随意倾倒垃圾。
10、在办公及生活区配备足够的垃圾池,污物和生活垃圾定点堆放,堆放点距水源和食堂距离不小于50 米。组织专业服务队,对施工场地内的路面、排水沟、工业废物垃圾、生活垃圾等进行定期清扫运输,并统一及时运往指定地点,保持环境清洁。
11、职工食堂环境清洁整齐,配备防蝇、防鼠、防尘和防蟑螂等的设施或药品,配置洗涤、污水排放及垃圾存放设备;发生食物中毒及时向当地卫生防疫部门报告,做好食物中毒的调查与治疗。
12、遵守国家和地方有关环境保护法规以及合同有关规定,做好施工生活区的环保工作,教育职工爱护土地、爱护水源、爱护树木,尽量减少施工和生产中对环境的污染,同时采取有效措施综合治理施工噪音、粉尘、废气、废水、废渣等对环境的侵害。在工程施工期间禁止施工人员进入山区林地进行采伐、采药和狩猎等活动,合理堆放建筑材料,减少对植物的破坏。工程完工退场前严格依据合同要求在规定期限内拆除施工临时设施,清除生活区和营地的废弃物等,并按照监理批准的环保措施计划完成环境保护工作,进行植被或土地的有效恢复。
施工技术方案专题说明
8.1.1 施工范围
三板溪电站水轮机及其附属设备安装工程内容包括:四台套256.5MW 混流立式水轮机及埋件(包括肘管、座环、蜗壳、机坑里衬等)安装;四台套PID 调速器(6.3Mpa)及其操作系统安装。
8.1.2 施工准备
8.1.2.1 施工技术准备
施工技术准备包括以下内容:
(1)仔细阅读并熟悉水轮机各部件施工图纸及安装说明书等相关资料。
(2)根据图纸、安装说明书及规程规范要求,结合我局施工经验及ISO9002 质量体系标准,制定合理的施工工艺及详细的施工作业指导书,报请监理工程师审批。
(3)施工前根据批准的施工方案和作业指导书对施工作业队和施工班组进行技术交底,其内容包括施工手段、施工工艺、施工质量、安全措施等。
(4)现场设置机组安装高程、中心控制测量基准点,报请监理工程师复核认可。
(5)根据施工详图,再次查验设备相关部件及零配件及起吊、调整、紧固、测试专用工器具是否到货完整、充分、无缺陷,办理相关设备和材料出库、领料手续。设备的工地到货检验报请监理工程师和供货商代表共同参加,并作记录签字认可后入库管理。
(6)焊工在工地通过实际考核合格后上岗。
8.1.2.2 水轮机安装程序
水轮机安装程序见下框图
施工准备
机组中心、高程基准点测定
尾水管扩散段及时管安装
尾水锥管安装
座环、蜗壳安装
机坑里衬安装
导水机构预装、拆除
基础埋件、埋管安装
砼浇筑
砼浇筑
基础埋件、埋管安装
砼浇筑至发电机层
转轮、主轴吊装
顶盖安装、控制环吊装
机组联轴、盘车(轴线调整)
主轴密封、水导轴承安装
接力器、推拉杆安装、导水机构联动
水轮机附件、管路安装
注油、充水、启动、调试
72小时试运行
发电机部分安装
水轮机安装程序框图
8.1.3 尾水管里衬安装
三板溪电站尾水管分为锥管、肘管、扩散段三部分,肘管分15 节,锥管分三节,工地组合焊接,锥管壁厚为25mm,肘管和扩散段壁厚为20mm, 进人门布置在 ▽306.10 层,锥管上游侧。
尾水管里衬安装按下述步骤进行:
组装
扩散段就位
肘管安装、调整加固
扩散段调整对接焊接
整体加固及验收
砼浇注
锥管安装
尾水管各节组装将根据可运输尺寸提前在成套露天库进行。
8.1.3.1 肘管安装
根据电站实际情况,在扩散段下部支墩上敷设QU80 的钢轨,用于平移和对接扩散段各段。见附图8-1 所示。
将扩散段依次吊放到轨道上,并逐节水平拖运至尾水洞中,留出肘管安装位置。
肘管吊装就位后,用钢琴线拉好X、Y 方向基准坐标线,确定高程基准点,-Y 方向坐标线延伸至尾水扩散段末节。
肘管上管口为水平管口,其中心与机组中心重合,将该节作为中心、高程、水平的定位节。调整符合规范要求后加固。
控制肘管各对接管口中心、管口垂直度(或角度)、高程、里程偏差满足GB8564 规范要求,并可靠加固。
逐一对接扩散段各节,对接时确保管口中心、高程、里程、管口垂直度、与Y 轴线的距离偏差等符合设计要求。
肘管安装如附图8-1 所示

图8-1 尾水管安装示意图
肘管部份安装的关键环节是各对接焊缝的焊接变形的控制,焊缝的焊接采用由8 名焊工对称、分段、退步、同时焊接,焊接时控制线能量、窄焊道、多层多道焊接的方法,并在焊接过程中严密监视焊接变形。
同时管路安装、焊接及水压试验工作交叉进行。
对接、焊接完成后,全面复测各项技术指标及加固强度,经监理工程师检查验收后交付土建浇筑砼。
砼浇筑程序经监理批准后方可实施,用百分表进行多点监视,确保肘管在浇注过程中不发生位移和有害变形。
8.1.3.2 尾水锥管安装
锥管分为三节,组焊工作在成套露天库进行,组合焊缝经超声波探伤合格,待肘管砼浇筑完成后进行安装。
符合设计和规范要求,利用预埋的基础件及锚钩对其进行加固。并确
保进人门坐标偏差符合设计及规范要求。
8.1.4 座环、蜗壳安装
三板溪电站座环分为4 瓣,在工地进行组焊,座环组合焊缝的工地焊接变形控制是水轮机安装的重点环节。
8.1.4.1 座环组装
座环组装工作根据现场条件安排在机坑进行:
1) 现场制作150mm×200mm,斜度为1:50 的楔子板50 对,用以组装过程调整座环水平。
2) 组合面清洗后,用油石研磨组合面,再用平尺检查其平面度符合要求,然后组装半圆,再组装成整圆。
3) 组装时相邻两部分先调水平,再组合,组合时销钉进入平稳无卡阻。
4) 组装完成后测量座环的圆度、平面度及组合缝错牙等指标全部符合设计及规范要求。组合螺栓紧度符合设计要求。
8.1.4.2 座环焊接
根据我公司在天荒坪、小浪底等电站座环焊接经验,座环焊接的首要目的是:既要保证焊缝焊接质量,又要控制焊接变形在允许范围内。
焊接前,制订切实可行的焊接程序和焊接工艺,进行严谨的工艺评定,并经监理工程师和制造商代表批准后实施,并遵循以下原则:
(1)焊前预热、焊中保温、焊后热处理过程的温度、保温时间、
升温速度、降温速度由专人严格控制。
(2)焊接实施时周围环境的湿度和温度与其材料性能相适应。
(3)对焊接设备和加温设备进行性能测试,确保其稳定可靠。
(4)焊条型号的选择和母材理化性能相匹配,焊条的烘烤、保温全过程由专人负责。
(5)焊接变形进行的观测、监视准确可信。
(6)配备具有相应资格证书的优秀焊工实施焊接,焊接过程控制焊接线能量和焊接速度,并与焊接变形监测保持高度适时性,确保焊接变形时时处于受控状态。
(7)焊接完毕后打磨光滑,按要求进行超声波或x 射线探伤检查。
座环组合缝焊接程序见附图8-2 所示:

附图8-2 座环焊接示意
座环组合缝焊接完成后,冷却至室温进行打磨抛光,复测座环平面度、圆度等指标符合规范优良标准,报请监理、制造商代表和我方质检工程师进行整体验收。
8.1.4.3 蜗壳挂装、焊接
1、蜗壳组装、挂装
在机坑调整座环高程、中心、水平符合要求后,进行临时加固再进行蜗壳挂装。
1) 蜗壳瓦片组圆工作在成套露天库完成,为提高焊接质量,加快挂装进度,部分蜗壳可进行双节组装焊接。这种施工方法我局在小浪底电站蜗壳施工中取得了成功经验。
2) 蜗壳瓦片所有焊接坡口及附近150mm 区域,在组装和挂装前打磨光滑。
3) 蜗壳组装成“C”型节时,调整其管口圆度、开口尺寸、错牙值、管口平面度等指标符合要求,加内支撑固定。
4) 组装缝焊接完成后经无损检测合格后打磨光滑并完成涂底漆工作。
5) 蜗壳挂装前在座环上用全站仪测量并标记每节蜗壳角度定位点如附图8-3 所示A、B、C、D……。

附图8-3 蜗壳挂装顺
6) 根据制造厂到货情况,确定二节定位节,挂好钢琴线。定位节的确定同时兼顾对称原则,以免蜗壳挂装过程座环倾斜。
7) 蜗壳挂装时严格控制管口圆度、垂直度、最远点半径、中心高
程符合设计及规范要求,挂装示意图见附图8-4。

图8-4 蜗壳挂装示意图
8)挂装环缝间隙符合设计要求,并在下节蜗壳挂装前完成焊接探伤工作。蝶形边焊接待凑合节嵌装完毕后整体焊接。
2、凑合节嵌装
凑合节嵌装是蜗壳挂装的重要环节。嵌装质量对焊接质量和座环变形影响较大,嵌装时从以下方面确保质量。
1)凑合节现场切割尺寸的确定:
首先测量凑合部位两管口的外周长,分别确定中心(即最远点),作好标记。以最远点为基准,将两管口分别等分为相同的偶数份数n,将较大管口上的等分点标记为A1,A2,A3 ,…… An+1 ,将较小管口上的等分点标记为B1,B2,B3,……Bn+1 。分别测量对应的缺口尺寸A1B1,A2B2,……An+1Bn+1 。将这些尺寸对应复制到凑合节上,画出切割线并复核确认。切割时先垂直切割,再按图修割坡口,完毕后打磨光滑。对接间隙由打磨时控制。
2)凑合节嵌装时相应标记须全部吻合。焊缝间隙超过3mm 部位在焊接时作堆焊处理。
3、蜗壳焊接
根据我公司小浪底、棉花滩等类似电站蜗壳焊接经验,蜗壳焊接的首要目的是:既要保证焊缝焊接质量,又要控制焊接变形在允许范围内。尤其是凑合接的安装焊接和蝶形边的焊接,对座环整体质量有重要影响。其所遵循的原则见“座环焊接部分”。另外还要注意以下几点:
(1) 蜗壳挂装缝的焊接,凡间隙大于3mm 的焊缝必须作堆焊处理。
(2) 每条环缝由4名或8名焊工实施对称、分段、退步焊接。如图8-5 所示。

图8-5 蜗壳环缝焊接顺序图
(3)层间焊接过程中,根据母材厚度增加层间打磨和磁粉探伤。背缝清根后,磨去渗碳层,经磁粉或着色探伤合格后方可进行背缝焊接。

附图8-6 蜗壳蝶形边焊接顺序
(4)蝶形边焊接由16 名焊工上、下各8 人按上下对称、径向对称、分段退步焊法实施焊接,如附图8-6 所示,焊接过程严密监视座环变形。
8.1.4.4 座环蜗壳整体调整
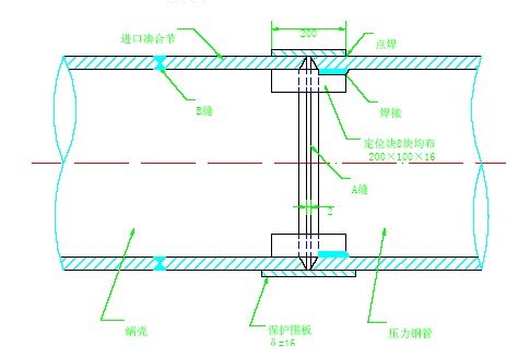
蜗壳焊接完毕后,在座环基础支墩上精确调整座环水平、中心、高程及蜗壳进口中心等参数。用水准仪测量底环组合面、顶盖组合面的波浪度、高差值符合设计要求,局部高点可进行手工研磨处理。将机组坐标线、高程基准点、蜗壳进口中心线(即压力钢管中心线)等基准全部复核经校核无误后,用6 个50T 千斤顶分别在水平方向、旋转方向和垂直方向调整。座环蜗壳安装调整的关键是调整座环水平、中心、高程及蜗壳进口中心等参数,符合规范标准及设计要求,再按图纸要求进行加固。为消除蜗壳砼浇筑时产生的浮力的不利影响,在蜗壳加固时必须保证其加固强度。
8.1.4.5 蜗壳进口凑合节安装焊接
蜗壳进口段与压力钢管连接部位的凑合节(简称进口凑合节),
假设其上游侧焊缝标记为A 缝,下游侧标记为B 缝。
现场划线,测量20 组对应缺口尺寸,按照蜗壳凑合节切割工艺进行切割和打磨。
在蜗壳砼浇注前完成B 缝焊接、探伤、打磨及验收工作。
为避免A 缝焊接过程对座环中心、水平的不利影响,A 缝焊接在砼浇注完成后进行。A 缝对接时作如下处理:
1) 坡口型式加工为内侧V 型坡口。
2) 焊缝外侧,加装钢板围带,并压实点焊。
3) 焊缝内侧,加装限位板,单侧点焊。如图8-7 所示。

施焊前,对焊缝间隙较大的部位,先进行堆焊,尽可能地减少由此而引起的焊接变形。
A 缝焊接采用分段退步焊法,由4 名优秀焊工同时施焊,母材预热、保温、后热和焊条烘烤由专人负责。
采用多层多道焊接,强化过程质量控制,每层焊接完毕后,经打磨和磁粉探伤合格后方可进行下一层焊接。
焊接完成后,打磨光滑,进行探伤检验。
6、机坑里衬安装
机坑里衬组装在安装间进行,组合缝焊接完成后,测量其椭圆度符合要求加可靠内支撑后,而后根据蜗壳形状切割下料,整体吊放在座环上,调整机坑里衬中心、顶部高程符合设计要求后,进行焊接及加固。
外围管路及埋件安装交叉进行并符合设计要求,确保完整、准确无遗漏。
上述工作全部结束并验收合格后,移交土建进行蜗壳砼浇注。
8.1.5 水轮机安装
机坑砼浇筑到发电机层后,可进行水轮机安装工作,安装程序为:导水机构预装→顶盖拆除→主轴转轮联接→主轴转轮吊装→顶盖回装→控制环吊装→接力器安装→机组盘车及轴线调整→主轴密封安装→水导轴承安装→静态调试及机组充油→机组充水试验→机组启动调试、试运行。
8.1.5.1 导水机构预装
1、底环预装
底环预装前提条件:
①机坑里衬、座环、蜗壳清扫、去锈、涂漆全部完成,并经检测符合要求。
②座环中心、水平高程经复测全部符合规范要求。
③尾水锥管清扫及中心高程复测符合要求。
底环预装:
将底环吊入机坑,调整底环与座环同心度,底环水平度满足规范优良标准。将底环与基础环螺栓对称、均匀把紧,复测同心度、水平符合设计及规范优良标准。底环与尾水锥管连接符合要求。
2、导水叶吊装
导水叶清扫及导叶下轴套安装完毕后,按编号将导水叶逐一吊入机坑,插入相应的导叶下轴套内,检查其转动是否灵活,将导叶置于关闭位置,检查导叶高度及顶盖、座环组合各部位尺寸,分析导叶端面总间隙是否符合设计要求。若间隙过大,可在底环下部加垫调整,若间隙过小,可在顶盖下部加垫调整。
3、顶盖预装
1)预制6 个500×500×500 的钢支墩,用于安装间组合顶盖。
2)将2 瓣顶盖分别运入安装间,每瓣用3 个钢支墩支撑。仔细清扫后,用千斤顶和桥机配合,分别调整两瓣顶盖的水平,在组合缝处用平尺检查其高程无偏差后,可插入水平销钉和垂直销钉,用组合螺栓将两瓣顶盖对称、均匀、平稳组合,整个过程销钉无卡阻现象。把紧螺栓后检验顶盖圆度、平面度、组合面错牙、组合面间隙等符合规范优良标准。
3)安装4 个定位套筒及轴承,用桥机吊起顶盖,进行吊装调平后,将顶盖整体吊入机坑,平缓安装就位,就位全过程监视各导叶轴及止口等部位平滑进入,无卡阻现象。
4)测量顶盖与底环同心度,检查顶盖水平和高程,各参数符合设计及规范优良标准后,对称、均匀把紧组合螺栓。
5)安装导叶轴承套筒,安装过程平滑无卡阻,安装后导叶能灵活转动。
6)捆绑导叶,并测量导叶立面间隙、端面间隙等,符合图纸及规范要求。若端面间隙过大,可在底环下部加垫调整,若间隙过小,可在顶盖下部加垫调整。
7)钻、铰顶盖、底环销定孔,安装销钉。
8)拆除:经全面检查各参数符合要求后,预装工作完毕,按下述步骤进行拆除。导叶上套筒拆除→顶盖与座环间销钉、螺栓拆除→顶盖吊出机坑 。
8.1.5.2 转轮安装
转轮与水机轴联结工作在安装间进行,连轴时保证大轴和转轮的同心度,连接螺栓伸长值符合设计要求。顶盖吊出机坑后,可进行大轴转轮吊装工作,用专用吊具进行起吊和调平,将转轮吊入机坑,置于基础环上,调整中心偏差小于0.05mm,高程高于设计值10mm,以利于推力头热套,调整主轴法兰面水平不超过0.02mm/m,完毕后用楔子板固定。
转轮吊装如附图8-8 所示:

图8-8 转轮吊装图
8.1.5.3 顶盖吊装
按预装程序将顶盖吊入机坑,与座环组合,调整中心,待定位销钉孔对正后插入销钉,用小锤轻轻敲紧,对称均匀把顶盖座环组合螺栓,螺栓扭矩或伸长值符合设计要求,按预装编号将导叶套筒逐一安装完毕,检查导叶转动灵活。
待下机架安装完毕后进行机环形轨道和吊具安装。
8.1.6 调速系统安装
8.1.6.1 控制环、接力器安装
水轮机连轴吊入机坑后,将控制环吊入机坑,安放在顶盖上,检查其滑动磨擦面无异常,并调整至全关位置。接力器安装前,对接力器进行如下试验及测量:
(1)接力器油压试验,包括最低动作油压试验、耐压试验、漏油量试验,各指标须全部满足设计要求。
(2)全行程测定,用油泵将活塞推至全关位置,再推至全开位置,测定两接力器行程是否一致并符合设计要求。
(3)锁定装置解体清扫,组装后灵活无卡阻。
上述检验实验完毕后,将接力器按图纸分别吊入机坑,安装在其基础上,调整两接力器中心、高程、水平及两接力器油缸平行度等指标满足设计及规范要求,对称、均匀把紧螺栓,钻、铰销钉孔,安装销钉。
8.1.6.2 调速系统安装及导叶开度曲线测绘调速系统安装包括调速器柜安装、油压装置安装、接力器推拉杆安装、导水叶间隙调整,导叶拐臂、双连杆安装及其相应的测试等内容。
将调速器油箱吊放在基础上,调整中心、水平、高程符合要求后进行二期砼浇筑。
油罐安装,调整其中心、高程、垂直度符合设计及规范要求,完毕后对油箱和油罐进行彻底清扫。
(2)调速器柜安装须调整中心、高程、垂直度符合规范要求,并确保其内部清洁,调速器管路配制完成后,经拆除酸洗合格后进行回装。
(3)油泵动作试验,充油、升压试验及安全阀调整符合设计要求。接力器、控制环、活动导叶全部处于全关位置,各部位参数符合设计要求后,用机坑环形吊具依次安装接力器推拉杆、导叶拐臂、双连臂等,安装过程平滑无卡阻。
(6)调速器系统最低动作油压试验符合设计要求。
(7)压紧行程调整,按图纸要求,调整接力器压紧行程值。
8.1.7 水轮发电机组整体盘车和轴线调整
整体盘车前具备以下条件:
发电机推力轴承安装完成,润滑措施可靠。
上、下导轴承在坐标方向抱4 块瓦,润滑措施可靠。
发电机转动部份垂直度和中心调整符合要求。
上述条件满足后,可联接发电机轴和水轮机轴,进行整体盘车与轴线调整。
联轴过程按以下程序进行:
(1)用联轴工具,平稳、均匀、对称提升水轮机轴。止口即将靠近时,用绸布和无水酒精再次清扫法兰面,确保无任何灰尘。
(2)止口进入时平滑、无碰撞和憋劲。
(3)螺栓把紧前,两法兰间无间隙,两法兰径向无错牙。
(4)用专用工具将螺栓对称、均匀把紧,各螺栓伸长值必须满足设计要求,其误差控制在设计允许范围内。
盘车前,在整个转动部分的集电环、上导轴颈、下导轴颈、联接法兰、水导轴颈、转轮下迷宫等处设置8 个上下对应的盘车点,进行对应标记和编号,在上述位置X 方向、Y 方向分别设置百分表监测摆度值,在镜板位置X 方向、Y 方向分别设置百分表监测镜板轴向跳动值。
转动前,检查各部间隙满足要求,确认转动部分调整在中心位置。盘车时,记录起始点百分表读数,每旋转45°(即一个盘车点),记录一组数据,直至回到起始点。
盘车结束后,计算各部位摆度值、倾斜值,绘制机组轴线拐点曲线和各盘车部位摆度曲线。
分析各数据的合理性及准确性(是否符合正弦曲线规律),分析镜板垂直度、大轴直线度、倾斜值等参数,若有超标,采取相应措施(研刮绝缘垫或在设计允许范围内调整联轴螺栓紧度)进行处理并再次盘车分析,直至全部指标满足设计要求。
8.1.8 主轴密封及水导轴承及其它附件安装
盘车及轴线调整符合设计和规范优良标准后,以水轮机迷宫为基准,调整转动部分中心和大轴垂直度。旋转中心偏差小于0.05mm,垂直度不超过0.02mm/m,符合后将转动部分固定,并在转轮、发电机上下机架处X、Y 方向分别设置百分表,监视主轴位移情况。
主轴检修密封安装前,进行气密性试验,以确保各部件无制造和运输产生的缺陷。合格后,按下述程序进行主轴密封安装:
检修密封支座就位、组合、间隙调整固定 → 检修密封空气围带、密封盖安装 → 间隙复测 → 气密性试验及动作试验 → 工作密封支座安装调整固定 → 密封条安装 → 滑环安装调整、固定 → 动作试验 → 附件安装。
水导轴承安装前对轴瓦、轴颈进行检查,按图进行研磨或研刮工作,以保证接触面满足受力或润滑要求。
将水导轴承挡油圈组合安装完毕后,进行煤油渗漏试验并符合要求。
水导轴瓦为分块挖结构,安装调整前,根据机组轴线调整结果和图纸技术要求,结合上下导轴承设计间隙值,与监理工程师、制造商代表充分沟通、协商后,确定瓦间隙分配方案,逐块进行轴瓦间隙调整并锁定后,用面团清除油盆内灰尘,经验收签证后,进行轴承盖安装。
附件安装包括:水机层脚踏板、栏杆、机坑进人门及机坑油、汽、水管路安装等,做到整齐美观并符合设计要求。
8.2 发电机及其附属设备安装
8.2.1 施工范围
1、发电机安装工程和范围
三板溪电站共安装4 台套额定容量为250MW 的立轴、半伞式、空冷同步发电机及其附属设备、部件和机组油、气、水系统、制动装置、灭火系统、加热除湿系统。每套发电机安装包括定子、转子、上下端轴、推力轴承和上下导轴承、上下机架、集电环与电刷、引出设备等;4 台套发电机微机自并激可控硅整流励磁系统系统等设备。上述全部设备工地仓库的卸车、开箱验收、保管、工地二次倒运、安装、调试(部分项目配合厂家)、运行操作与维修、试运行直至移交业主。
2、结构特点:
根据招标文件及有关资料,发电机结构特点如下主轴:发电机为立轴,转轴采用两段轴结构,上端轴与中心体为外置式法兰连接,下端轴与中心体为内置式法兰连接。
转子:转子由转子支架、磁轭和磁极等组成,工地现场叠片。转子支架由中心体和三瓣外环组成,中心体与外环在现场装配组焊为整体。
定子:定子机座分四辨运输,在工地组圆、叠片及下线。
通风方式:发电机采用带空气冷却器密闭式通风系统,
机架:上、下机架均由中心体与支臂组成。上机架由一个中心体与四个盒形支臂组成,中心体重14 吨;下机架由一个中心体与六个支臂组成,中心体重40 吨。上、下机架均在工地组焊成整体,下机架为承重机架。
推力轴承:推力轴承设置在下机架上。推力轴承采用内循环水冷却。
导轴承:导轴承为自润滑、油浸式,分块瓦可调结构。下导轴承位于推力轴承的下方。
制动系统:发电机采用电制动和机械制动二种方式。机械制动装置兼作液压顶起装置。
励磁系统:采用微机自并激可控硅整流励磁系统。励磁系统由励磁变压器、三相全控桥功率整流装置、灭磁装置、转子过电压保护装置、微机励磁调节器、交、直流励磁电缆、辅助单元、起励装置、励磁控制、保护装置、变送器、电流及电压互感器、电制动变压器等部分组成。
励磁装置由广州电器科学研究所/ABB 公司供货。
发电机设有检测机组振动和摆度检测器、消防系统、加热器、除湿机等。
发电机旋转方向为俯视顺时针方向。
8.2.2 施工前准备
1、技术准备
仔细阅读并熟悉经监理工程师批准的发电机及其它相关部分的图纸、资料,收集相关标准和规范。
根据图纸、资料,结合施工场地、设备到货等情况,制定并编写出详细作业指导书报监理工程师审批。
编写现场施工管理细则和安全保障措施。
安装前,所有参与发电机安装的施工人员,认真熟悉经监理工程师批准的发电机安装施工程序、作业指导书和质量工艺要求。施工过程严格照章执行。
完成特殊工种人员,如焊工、起重人员、测量人员和无损检验人员等有效资格证书的审查。焊工在工地通过实际考核合格后上岗。
2、发电机施工具备的条件
良好的施工环境是保证发电机安装质量优良的重要因素之一,而部件装配又是发电机安装的关键工作。定、转子装配施工前,安装间具备如下条件:
主厂房内两台桥机安装试验完毕并投入运行,定、转子叠片预埋基础及支墩安装调整完毕,并验收合格;
在安装间铺设一层施工用地板胶,以保证施工地面干净、整洁及无尘。
发电机图纸资料、主要装配部件、材料等已准备就绪,由制造厂提供的装配专用工具、设备等全部到货,并开箱验收,检查合格。
定、转子装配前在施工场地搭设施工围栏,以保证施工场地清洁且宽敞干燥,并有可靠的消防措施。
在安装间定、转子组装场地配置除湿机和加热装置,控制调整装配场地的温度和空气湿度以满足装配要求。
安装场有足够的照明,装配场地清洁、干净、布置整齐、通风良好。
与土建及其它标段的施工单位协作配合,切实保证装配场地的环境如湿度、温度及灰尘等满足施工要求。
5、发电机安装程序框图
定、转子组装埋件预埋现场施工准备
定子机座装配及定位筋调
铁蕊叠压、热压及磁化试验
定子吊入机坑安装调整
定子下线及耐压试验
下端轴吊装
下机架吊装、推力轴承安装调整
转子吊装
转子支架组焊
磁轭堆积、压紧
磁轭冷、热打键
磁极挂装
附件安装及电气接线
转子电气试验
下机架装配与焊接
定子及下机架基础预埋
上机架装配与焊接
上机架及上端轴吊装
机组整体盘车
推力轴承受力调整、机组定中心
上、下、导轴承安装
上、下导推力轴承注油
发电机系统调试
充水及试运行
机组移交运行
油气水管路及附件安装
集电环、碳刷架安装
电气系统安装调试
8.2.3 发电机定子安装
定子装配施工程序:
定子装配支墩安装、调整
定子机架清扫、检查
机座装配、调整
中心测圆架安装、调整
定子机座焊接
定位筋校正及垫板焊接
定位筋装配、调整及焊接
机座整体清扫、检查及喷漆
下齿压板安装、调整
铁蕊叠片、压紧、检查
定子铁蕊执压
定子磁化试验、压紧
定子吊装、调整、加固
定子线棒嵌装
定子而压试验
定子安装程序方框图
1、定子铁芯装配
1)机座组装
定子装配前在施工场地搭设施工围栏,施工围栏布置如图8-9 所示:
图8-9 定子施工围栏示意图
按出厂标记分别将四瓣定子机座依次运至安装间,对机座组合面及基础板等进行认真的清扫、打磨,并进行变形检查、处理。根据分瓣定子出厂编号和图纸要求的位置,依照定子中性引出线方位确定机架各瓣位置与机坑内方位一致,确定分瓣定子的组装位置(安装位置),将各瓣定子用螺栓组合成整体。第一瓣定子竖立后采取临时加固措施,防止倾倒。
复测组合后的定子机座主要装配尺寸,调整机座圆度、下环板水平及波浪度,使整体定子机座各环板的半径、圆度、水平及组合缝间隙等各项指标符合图纸要求。
按厂家或工地编制并经监理工程师批复的焊接工艺措施,由数名合格焊工在定子机座组合缝上对称进行手工电弧焊接。焊前电焊条严格按要求进行烘烤,并置于保温筒中通电保温使用。在上、下环板的组合缝两侧焊上定位块,用千分尺监测的收缩变化情况,根据机座变形和焊缝收缩量的变化,及时调整焊接顺序。控制定子机座的焊接变形在图纸要求的公差范围内。一般环板采用由中间分别向内外方向分段退步跳焊,立缝采用由定子中心位置开始同时向上和向下分段退步焊接。焊接过程中密切监测定子机座下环板水平和定子机座半径。
在进行定子机座焊接的同时,按图纸要求进行空冷器基础框架的装配与焊接;
定子机座焊接完成后,按规范和图纸要求进行焊缝外观检查和无损探伤。探伤合格后清扫整个定子机座并对全部焊接部位进行涂漆。
对施工的每道工序,填写原始安装记录报监理工程师验收。只有上道工序验收合格后才能进行下道工序的施工。
2)定位筋装配
测圆架检查:测圆架中心柱与底座组装就位后,调整中心柱的垂直度至符合设计要求,测量臂旋转一周,检测测头的径向跳动在图纸要求的范围内。重复测量圆周上任意点的误差不大于0.02mm.
为保证定子铁芯的整体堆叠质量,安装前进行定位筋弯曲度和扭曲度的检查和校正,修除定位筋鸽尾部分的毛刺。
定位筋安装调整严格按厂家工艺文件和经监理工程师批复的施工方案进行施工,根据图纸要求在下环板上按拉紧螺栓孔位置等分划出定位筋分布线并顺序编号,确定第一根基准定位筋位,调整基准定位筋至符合要求。
以基准定位筋为准,根据图纸将全部定位筋分成数个大等分,进行大等分定位筋的调整;大等分各区域时,清除各区域累计误差的影响。
大等分定位筋调整、焊接通过验收后,再进行小等分定位筋的安装、调整与焊接直至符合要求。全部定位筋就位后,在下部铺设一层试叠片,利用试叠片调整固定定位筋下部位置。
定位筋的焊接由数名合格焊工对称分布同时施焊,控制各焊工的焊接速度保持基本一致,焊接过程中通过调整焊层次序和方向的方法来调整定位筋弦距、半径(一般定位筋变形沿焊接方向的变化而变化),但只能做小范围内的调整,若超差过大必须铲除焊缝,重新调整。
定位筋全部满焊完成后,在冷态下检查测量各参数。
定位筋的安装调整严格按图纸和有关规程规范的要求进行,每次装焊定位筋前核准一次基准点半径,每道关键工序开始前复测中心测圆架垂直度。
3)铁芯叠装
下列工作完成后即可进行定子铁芯的叠片与压紧工作:
定子机座焊接、定位筋安装、机座整体清扫、刷漆等工作已完成并通过监理工程师的验收。
机架内环形可升降叠片平台搭设完毕,施工工器具及有关材料准备就绪。铁芯叠压如图8-10 所示:
图8-10 定子铁芯叠压示意图
按图纸要求运入相应的铁芯冲片并开箱检查,去除油污与灰尘、,对不合格冲片如表面划伤、折齿、漆膜不均或脱落等进行清除。
抽查每箱冲片实际厚度并分类放置,根据图纸计算铁芯各段叠片层数;
叠片与压紧:
严格按图纸设计进行铁芯叠装,相邻冲片接缝正确,不缺片。叠至一定高度后用整形棒整形,按图纸要求放置槽样棒及槽楔槽样棒定位。槽样棒及槽楔槽样棒随铁芯叠片增高而不断提高,以保证定子槽形的几何尺寸。每一段叠片高必须控制在设计范围内。同一段铁芯尽量使用同一重量级的冲片,按图叠装通风槽片及层间绝缘片,通风槽片叠前进行认真的清扫与检查。
按设计要求进行铁芯的分段压紧。每次压紧前,在铁芯全长范围内整形至符合要求,预压时在压板下放置一层废冲片,通风槽片不得直接放在预压板下面。
对预压工具进行认真清扫,以免污损铁芯。检查预压螺杆两端的丝牙是否完好并进行螺杆校直工作。
预压工具按设计要求安装,安装上端压板时,将槽样棒上端打下,保证槽样棒不会与预压板相抵触,且压板上下孔要准确对齐,以免两孔错牙造成预压螺杆在槽内倾斜而挤伤铁芯槽壁。随铁芯高度的增加,
合理配置不同高度的撑管进行铁芯压紧。
在整圆周径向对称位置按设计的压紧力矩依次拧紧拉紧螺杆,拧紧顺序交替进行,即第一遍按顺时针方向,第二遍逆时针方向,每次预压时测量铁芯压紧前后的高度、圆度、波浪度和铁芯紧度等,计算铁芯的叠压系数,各参数必须在设计要求的范围内,铁芯各层通风沟高度尺寸的偏差不得超出允许偏差。叠压后根据测量值,在下次叠片中对铁芯波浪度用调节片进行局部补偿。
测圆架在使用过程中按规范和图纸要求分阶段校核其准确性,以保证铁芯的装配尺寸。
最后一次压紧用永久螺栓进行,压紧后按要求进行拉紧螺栓伸长值测量。
详细记录铁芯叠压过程各道工序的安装调整参数,每道工序完工自检合格后报请监理工程师检查验收,上道工序验收合格后才能进行下道工序的施工;
铁芯叠压完成后,清理、收整、归顺装配场地的装压工具、平台、设备及冲片等,对专用工具作防锈处理,以备下道工序的施工。
4) 铁芯热压
定子铁芯冷压工序完成并验收合格后,再次进行定子铁芯清扫,确保铁芯沟槽内无任何异物、油污等,施工场地干净,无泥、水及易燃物,照明满足要求;定子可靠接地,现场配备足量的消防设施;采用电加热器作为定子铁芯的加热源,加设风机,通风传热,使定子铁芯各处温升均匀。
按要求进行加热器、风机及测温元件的布置、接线;所有导线的连接牢固可靠,测温导线端部与测点位置编号一、一对应,接线完毕后,分别对各组加热器、风机进行认真、细致的检查、对线、绝缘测量等。检查正确无误后,进行通电试验,合格后切断电源。
用耐温帆布将定子整体覆盖围严,覆盖时,帆布与与定子机座外壁距离及与加热器间的距离必须满足安全要求,热压前测量各测点定子铁芯长度值并作记录。
投入加热器对定子铁芯进行加热,同时监视铁芯各部温升情况。
铁芯温升控制在设计范围内,若温升过快或各部位温差过大,可通过增、减加热器来调节控制,必要时可调整加热器及风机的位置。当铁芯平均温度达到设计值后按要求进行铁芯保温,在整个保温过程中,铁芯各测点温差控制在允许范围内。铁芯保温至规定时间后,切断所有加热器及风机电源,敞开遮盖帆布,让定子铁芯自然冷却。
待铁芯温度降至室温后,用力矩扳手按设计值对称把紧铁芯压紧螺栓,热压完成后,测量铁芯长度值并记录,按《DB719-89 大型水轮发电机铁芯质量标准》及厂家的技术要求全面检查、验收。合格后移交进行铁损试验。
5) 铁损试验
全面清理定子机座和铁芯, 对定子铁芯、机座的上、下端处及通风沟等进行全面认真的清理、吹扫,确保通风沟内无异物;
重新紧固定子基础板与支墩的连接螺栓,定子基础接地可靠。
按经监理工程师批复的试验方案,进行试验设备、绕组、测温元件等的布置与接线,经通电检查无异常。
保证试验所需电源容量安全、可靠,并采取相应的消防措施。
按试验方案进行定子铁损试验,观察铁芯的振动,拉紧螺栓、定位筋、通风沟和机座内部的异常声响等,若有异常情况立即切断电源,停止试验。
根据测量数据计算实际磁通密度、功率损耗、单位铁损和铁芯温差等,并与有关规范或制造厂的规定相比较。符合要求后填报试验记录报监理工程师检查验收。
铁损试验完成后,再进行定子铁芯压紧及测量工作,根据铁芯实测高度数据计算铁芯平均中心至定子基础板顶面的距离并作好记录,然后按要求进行各螺帽及固定片的点焊工作。彻底清理定子机座及铁芯,按设计要求进行铁芯的喷漆。然后将定子吊入机坑进行定子下线工作。
2、定子安装调整
1)定子吊装
定子的吊装用起吊梁进行。
编制定子吊装措施并经监理工程师批复同意;
对桥机及轨道进行系统性地认真检查,维护、保养,确保桥机各部分运转正常,状态良好;检查并校核定子基础板埋设是否符合设计要求;
按图纸要求进行起吊平衡梁与定子的组装,确保各部件配合良好,连接螺栓用专用扳手紧固。
装配定子基础板,检查并清理定子基础预留孔内的杂物和积水;
核对定子吊装方位,清除障碍物,保证定子吊运通道畅通无阻;
清除定子基础螺栓表面的防锈漆和油污,按图装配螺栓下部的垫板与螺帽后将基础螺栓放入预留孔内;
检查、测量吊钩的提升高度是否满足起吊要求。
对起重指挥、操作人员及其他相关人员明确分工,各司其责。吊运中,噪音较大的施工暂停作业,以保证指挥哨音清晰、准确无误。
根据定子吊装技术措施将定子平稳、准确地吊放在定子基础上。
吊装中测量机座及铁芯的变形并作记录;
2)安装调整
定子安装以水轮机座环法兰面为基准进行调整,在对称、均布的八个方向各放置一个千斤顶,配以钢支墩进行定子径向调整;
在每个定子基础板的两侧,分别在机架外璧上装焊支撑,用千斤顶进行定子的轴向调整。子铁芯半径分上、中、下三个测段,圆周测点不少于16 点;
反复调整定子中心、水平、高程及铁芯垂直度至符合要求后,将基础螺栓与预埋钢筋焊接加固,加固中注意保持基础螺栓的垂直;同时密切监视定子各控制尺寸的变化并适时调整。经检查、验收合格后,移交土建进行二期混凝土浇注。定子安装调整示意如图8-11 所示:
图8-11 定子安装调整示意图
3、定子下线
定子下线程序图
定子下线现场准备
支持环基础安装、焊接
支持环安装、焊接
定子铁蕊清扫、编号
铁芯RTD 装配
槽底垫条安装、线棒耐压
下层线棒嵌装、端部绑扎
测槽电位、下层线棒耐压
层间RTD 装配
层间垫条安装
上层线棒嵌装及固定绑扎
测槽电位、打槽楔
上、下层线棒耐压
绕组接头焊接
引出线、汇流排安装、接头焊接
支路电阻测量
绝缘包扎
绝缘盒安装、灌装环氧
支路电阻测量
RTD配线
定子清扫、干澡
交、直流耐压试验
定子喷漆、清理现场
单元工程检查验收
2)定子下线准备
在定子内部搭设下线环形工作平台,定子下环板下面布置一定数量的加热器,环形工作平台上布置除湿机,以满足定子下线对温度和湿度要求。定子下线示意如图8-12 所示
图8-12 定子下线示意图
按图纸要求点焊支持环支座和汇流环底板。清扫定子铁芯,仔细检查线槽上下槽口和槽底,两侧面及通风沟等有无凸点及毛刺,并进行修磨平整,修磨时不能造成铁屑微粒滞留。修磨完毕,用高压清洁空气全面清扫铁芯及线槽,并认真检查确认铁芯清洁无异物。依照设计图纸对定子铁芯线槽进行编号,并抽样检查线棒的直线宽度与铁芯槽宽是否符合设计要求,不符合要求的及时处理,并给线按要求进行单根线棒的表面电阻率和耐压试验,并做标记。检查定子测温电阻(RTD)的绝缘及直流电阻,按设计图纸对应槽位编号安装RTD,其引线经电缆引至机端测温端子箱。RTD 引线端头与电缆连接时,两接头错开,端头搪锡焊接牢固,引线编号清晰,布线整齐,绝缘良好,接地可靠。
3)定子下线
根据设计图纸确定定位线棒的槽位,安装槽底垫条,选择适量外型尺寸好且与线槽配合间隙均匀的下层线棒,按定位好的槽位依次将线棒嵌入槽中,调整上、下端部标高符合设计及工艺要求后,用塞尺检查槽底部及两侧间隙,检查处理合格后用压紧工具压紧线棒。槽底垫条安装完成后开始进行下层线棒嵌装。 参照已下好的定位线棒再按顺序、工艺要求将其余的下层线棒嵌入定子线槽,调整上、下端部标高与定位线棒标高一致,检查底部及两侧间隙。间隙不符合规范要求的,进行处理直至达到规范要求。
线棒与铁芯及支持环的装配同时靠实,斜边间隙均匀一致并符合技术要求,不能满足要求的,用侵渍过的适型材料填充下层线棒与支持环及线棒斜边之间的间隙,使之符合技术规范要求。
线棒嵌入合格后,用压紧工具按厂家要求压紧线棒,配斜边垫块,进行端部绑扎,将线棒固定牢固,然后刷环氧树脂胶固化。
下线过程中,施工人员在搬运线棒时避免人为磕碰损伤线棒主绝缘,小心谨慎,轻拿轻放,线棒的嵌入平稳均衡,将端部各绑线接头整理平齐光滑,无毛刺和尖端,以防电晕。
下层线棒全部嵌装完毕后,清扫现场,分别进行槽电阻测量和下层线棒的耐压试验。试验前检查RTD 可靠接地,试验过程认真做好记录。耐压试验合格后,再次清扫定子线槽及线棒端部,擦尽灰尘,保护好接头,进行下层线棒端部喷漆。层间测温电阻RTD 装配的施工工艺与定子RTD 相同。再次清扫定子线槽,确认清洁无异物,安装层间半导体垫条。打磨上层线棒接头,用酒精擦洗干净。按照设计图纸要求在定子线槽中嵌入上层定位线棒,并调整线棒的上、下端部高度和上、下层线棒的端部间隙,上、下层线棒的搭接头相互错开,确认上层定位线棒嵌入的各项技术指标均符合规范要求。
按图安装端部层间绝缘支持环,包扎好绝缘,用绑线将其绑扎固定于端箍和下层线棒上;然后依照定子线槽编号,顺序将其余的上层线棒嵌入定子线槽中,工艺及注意事项与下层线棒相同。线棒嵌入检查合格后,用压紧工具压紧线棒
槽楔从上、下槽口同时逐个依次打入槽中,两端口的槽楔最后打入,且无间隙;槽楔打入线槽时,其通风口的方向与定子铁芯通风沟的方向保持一致即顺时针方向;槽楔在塞打过程中,每打好一块,用测隙规通过定子铁芯的通风槽口检查波纹板的压紧程度,其压缩量符合规范要求。
整个线槽的楔块塞好后,检查上层垫条的长度不得超过槽楔;用手锤敲击楔块,上、下两端的槽楔不能有空音,其余楔块的间隙不超过槽楔长度的1/3,否则加垫条塞实。同时楔槽不能凸出铁芯。打槽楔时,注意不能人为的伤及线棒和定子铁芯。
定子铁芯槽楔全部打入完毕后,全面检查清理现场;无异常情况既可进行上、下层线棒的整体耐压试验,试验前检查全部RTD 是否可靠接地。试验合格后,复测RTD 绝缘电阻、直流电阻并与规范比较。
耐压试验合格后用绝缘带将上层线棒的端部绑扎固定,工艺与下层线棒的端部绑扎相同。绑扎时用塑料布或棉布保护好定子铁芯、线棒端部、上齿压板,绑扎结束后整理绑线,绑扎表面光滑无毛刺,刷固化胶固化。
用银铜焊机进行定子线棒接头焊接。持有合同规定的有效合格证的焊工,在现场通过焊接试验合格后才能进行实际焊接。焊接前用砂纸、酒精清理线棒焊接接头面,并仔细检查焊接设备、清点焊接材料;
同时在焊接面周围铺盖湿石棉布,做好定子铁芯和线棒端部的绝缘隔热防护,防止残余焊料和金属粉末溅入定子铁芯和绕组中。
焊接过程中随时调整接头和连接板间的距离,使其随时保持在规定的范围内。焊条溶化时焊接紧固件夹紧稳固,以保障焊缝间隙能满足设计图纸的要求。焊接时焊料向焊缝间隙填充充足,保证焊接面的平整光滑,无气孔、棱角、空洞;在焊接的同时用高压气对线棒端部位置进行冷却。焊接后及时清理接头表面的残余焊料、毛刺及表面氧化物,并用酒精擦洗干净,让接头光亮平滑。
用放大镜肉眼检查各接头焊接质量,施焊接缝不得有气孔、裂纹等缺陷。各焊接接头检查合格后,拆除湿石棉布等防护用具,打扫干净现场,用干燥高压空气彻底吹扫定子铁芯和绕组。接头焊接时,操作者必须穿戴绝缘鞋帽,现场要防火、防尘、防电。
4) 绕组引出线、汇流排安装与焊接。
按照图纸将绕组引出线、汇流排绝缘支架用螺栓牢固地固定在基础板上,根据图纸尺寸,从下往上预装汇流排,调节并对准汇流排与出线棒之间的接头以及主引出线和中性点引出线的位置。预装好一层汇流环后,将其临时绑扎固定在绝缘支架上。接头焊接时,其加热焊接时间不得超过厂家的规定;焊接前要用湿石棉布铺于焊接面周围,做好焊接防护措施。焊接完后严格检查焊接质量,如有无气隙、裂纹、夹渣,焊接面是否饱满平整等。
清理焊接表面,除去锐角、毛刺、氧化层,用酒精清洗干净。按工艺要求用绝缘材料将接头半叠紧密包扎,并逐层均匀刷涂环氧漆,最后用压紧模具压紧成型,排除空气,干燥后打磨光滑。测量分支、分相直流电阻并与设计或规范要求比较。
5) 绝缘盒安装和灌注。
逐个检查绝缘盒有无破损、裂纹,符合要求后用酒精擦洗干净,烘干后待用。对绝缘盒树脂填料进行配方配比及湿度验证试验,直至结果符合要求。
按绝缘盒安装工艺要求,在绕组端部套上绝缘盒,调整绝缘盒的高差及绝缘盒之间间隙和圆度至符合设计要求。将绝缘树脂填料搅拌均匀后灌注绝缘盒内,直至填充料充满整个绝缘盒和接头四周间隙,与线棒旧绝缘的搭接长度满足技术要求;清理干净绝缘盒表面、绕组端部等处多余的树脂。
6) 定子线圈干燥现场试验。
用加热装置对线圈进行烘烤干燥,定子线圈温升及最高温度不得超允许值,当绝缘电阻和吸收比大于厂家规范值时,绝缘稳定4-8 小时后,停止定子线圈的干燥。
在绝缘电阻、吸收比满足技术要求且极化指数大于2 时,可按规范要求进行定子线圈的直流耐压试验。试验方法按设计图纸要求,记录并保存试验数据。
交流耐压试验按照规范要求进行,升压时起始电压一般不超过试验电压的1/3,然后逐步连续升压至满值,升压时间和全额试验电压的耐压时间符合设计图纸的要求。耐压合格后进行RTD 检查测试。
定子现场试验主要项目;
定子绕组各相对地的电容和相对相的电容测量;
定子绕组电晕试验;
定子绕组的绝缘电阻、吸收比和直流电阻测定;
定子绕组绝缘的介质损耗试验;
定子直流电阻测定;
7) 定子喷漆和单元工程验收
全部试验合格后,对整个定子进行反复彻底的清扫和检查,用干净棉布仔细擦尽定子线棒端部、汇流环、引线、铁芯等各部位的灰尘,按工艺要求对绕组和定子铁芯喷漆。
拆除机坑内下线施工平台,拆除定子下线作业区围栏。将工器具房、材料库、值班室拆除转移,清理干净施工现场。
8) 安全措施
由于定子下线是安全、技术要求较高的工作,故其施工场所实行全封闭管理,设置现场值班室,建立值班及门卫制度,加强现场保卫工作。
进入作业区的工作人员统一着装,不得携带钥匙、硬币、小刀或其他与工作无关的金属小物件进入施工现场;所带工具编号,下班时清点回收。
作业区作业期间必须每天检查和记录湿度和温度,保持环境清洁、卫生,严禁吹扫地面,水洗地面,避免灰尘污染及湿气影响定子线棒绝缘水平。
作业区内配备足够的消防、除湿、通风设备,严禁吸烟、明火;
施工电源的安装和使用安全、可靠;有机易燃物品安置于安全地点,专人负责看管;作业区内严禁放置氧气、乙炔瓶。
人工搬运线棒时,必须是三人同抬线棒的直线部分,要相互配合默契,防止跌倒损伤线棒。现场临时摆放线棒时,线棒直线段平稳放置,使其受力均匀,以防线棒受力不均弯曲变形。
运至现场开箱检查的设备,验收、清点完后,不能及时安装到位的,必须用塑料薄膜遮盖保护好,防止灰尘、油污、水汽污染。
禁止用铅笔(导电类笔)或钢笔(笔尖尖锐)在铁芯和线棒表面上标记。
下线小心谨慎,禁止磕碰或划破线棒,特别是伤及主绝缘。
银铜焊时,工作人员必须佩戴有色眼镜、口罩和手套。槽口必须用石棉布保护。
打槽楔时,必须用0.5kg 以下的橡皮锤或铜锤敲打,严禁使用铁锤;各类工具的使用都要用力适当,防止损伤线棒和定子铁芯。
严禁在线棒、汇流排、引线上坐、踏、踩及搁置重物。
定子喷漆时,需挂警示牌,机坑周围20m 范围内禁止明火作业,喷漆时,工作人员穿戴防护衣、帽,个人作业时间不宜太长。
由专人负责环氧树脂胶的配置,确保操作正确无误并作好记录。
8.2.4 发电机转子安装
施工程序:
中心体吊装与调整
转子支架装配、焊接
磁针轭叠装及固定
磁极挂装
附件安装
转子清扫、检查与喷漆
1、转子支架组装焊接
转子支架由中心体和三瓣外环组成,中心体重40 吨。根据图纸在转子安装工位预埋转子中心体支墩基础板和转子磁轭支撑基础板,在转子检修坑内安装并调整中心体支墩的水平和高程至符合要求后,将支墩固定在基础板上。转子中心体拉入安装间后进行认真的打磨清理,尤其是下部法兰面的键、槽及孔等,进行键与键槽的研配,测量中心体的主要外形尺寸及配合尺寸并记录,如中心体两法兰间距离、止口高度、外径等,划分盘车点标记,将转子中心体按正确安装位置吊放在支墩上,测量、调整中心体的水平与垂直及上、下镗口的同心度至符合要求后,将中心体固定在支墩上用螺栓把紧。
将转子起吊轴吊放在中心体上,调整其垂直度符合要求后把紧螺栓,吊装并调整转子测圆架,直至测圆架测臂旋转一周,测头的径向跳动和水平变化在图纸要求的范围内。
打磨清理转子外环组合面,按要求将组合缝四周的面漆打磨干净,然后按装配标记依次吊装外环与中心体组合,外环吊装时,在组合块之间加适当垫片。为防止中心体产生重心偏移,吊装第一瓣外环时,在外环下部用支墩临时支承。将中心体与外环用螺栓把合为整体后,用测圆架测量、检查并调整各支臂上立筋的分布半径、向心、上下端弦距、水平及垂直度等,测量调整中,必要时可对组合块进行处理,使转子支架装配满足要求。转子装配如图8-13 所示
图8-13 转子装配示意图
在外环上、下环板的组合面焊缝两侧焊上定位块,按厂家的工艺文件或工地编制并经监理工程师批复的焊接工艺措施,由数名合格焊工在组合缝上对称进行手工电弧焊接。焊接过程中各焊工的焊接速度尽量保持一致,每焊完一层,用锤击或风动工具消除焊接应力,测量焊缝的收缩量,根据支架变形和焊缝收缩量的变化,及时调整焊接顺序及焊接方式,控制转子支架的焊接变形在设计要求的公差范围内。
转子支架焊缝多,焊接应力分布复杂,一般宜采用多层多道对称焊,控制层间温度和温度梯度。对立缝与环缝的焊接顺序与焊接方法,严格按经监理工程师批复的焊接顺序与焊接工艺进行焊接。每次焊接完成缓冷后,测量转子支架全部数据,分析比较后,再确定下次焊接顺序与方法。电焊条严格按规定要求进行烘烤,并置于保温筒中通电保温使用。
整个焊接过程中采用水准仪、水平仪、测圆架及百分表监测支架的变形情况,根据焊接变形及时调整焊接方式。
焊接完成后测量各有关参数,符合要求后按图纸和规范进行探伤、刷漆,填写安装记录报请监理工程师验收。
2、转子磁轭叠装
安装并调整磁轭支墩的水平和高程,使其符合规范和图纸要求后,把支墩固定在基础板上(支墩的安装注意错开拉紧螺栓的位置)。按装配标记将下磁轭压板吊放在支架立筋挂钩及支墩上拼成整圆,用楔块调整其水平、波浪度、半径等,同时复查和调整转子支架水平,调整中注意检查下磁轭压板与立筋挂钩间不得出现间隙,在立筋上装配叠片导向键,用测圆架测量并调整导向键间的弦长偏差,半径、径向及切向垂直度,在下磁轭压板上叠数层试叠片以确定下磁轭压板和定位销的精确位置,测量并调整试叠片的半径与园度,上述调整符合要求后即可进行磁轭叠装。叠片前在导向键表面涂上一层二硫化钼。
若下磁轭压板需焊接,则进行试叠片工序:在调整合格后的下磁轭压板上试叠一定高度的磁轭冲片,穿入定位销,磁轭冲片孔与压板孔对齐,调整试叠片的圆度与半径符合要求后,用压紧工具压紧,按图纸要求工艺进行下磁轭压板的背缝焊接,一般焊至二分之一至三分之一高度,然后拆除试叠片,进行下磁轭压板上部组合缝的焊接。整个焊接过程中,严格控制磁轭下压板的焊接变形在允许范围内。下磁轭压板剩余焊缝待磁轭叠装完成后再进行焊接。进行转子冲片的清洗、修磨毛剌及高点、称重并分类标记。根据各类冲片的重量、厚度及转子装配图,计算并列出磁轭堆积配重表(通风槽参加配重),安装磁轭堆积环形工作平台。磁轭堆积如图8-14所示
图8-14 磁轭堆积示意图
根据图纸按磁轭堆积配重表进行磁轭堆积,同一层片叠堆同类重量的铁片,随叠片的增高用整形工具对磁轭进行调整并穿入部分拉紧螺栓,在磁轭堆叠过程中,随时检查磁轭的半径、圆度、垂直度及磁轭底部的平面度、径向倾斜和支架的水平等,并进行调整。根据磁轭设计高度,磁轭叠片将分数次压紧。磁轭叠装至图纸要求的高度时,进行磁轭的分段压紧工作。每次压紧时测量转子磁轭压紧前、后的圆度、半径、高度及波浪度等,磁轭压紧按要求的力矩对称进行。每次压紧后,在磁轭内、外圆用扁铁或圆钢两头点焊拉紧,以防压紧螺栓拆除后磁轭反,最后一次压紧前小心地磨去拉紧扁铁。根据铁芯的计算高度与实测高度计算铁芯的叠压系数。用补偿片进行铁芯波浪度调整时,补偿片需均匀分布到将要叠的各层冲片中。补偿片的剪切要准确,切口打磨平滑无毛刺。铁芯叠至一定高度后穿入全部拉紧螺栓,继续叠片至下一次压紧高度。磁轭全部叠压后整体测量磁轭的圆度、半径、高度、波浪度及磁轭垂直度等,符合设计要求后,逐个进行螺栓孔的拉铣及拉紧螺栓的更换直至全部完成。更换后的拉紧螺栓上、下部露出部分不得影响转子其它附件如制动环等的安装。
磁轭固定
磁轭堆叠完成后,进行磁轭键槽及磁极键槽的拉铣工序。
进行磁轭固定时,在常温下用大锤对称均匀地打紧磁轭径向键和切向键,使转子支架与磁轭间产生约0.05~0.10 mm 的相对变形。此时磁轭键上端露出的长度,必须满足热打键的要求。
热打键时,按要求进行磁轭加热布置,磁轭加热采用电磁加热法:
用电缆沿轴向缠绕在磁轭上,然后将整个转子用保温蓬布包起来,通入电源进行加温,磁轭加温时间一般不宜超过12 小时。加温时通过调节温控仪控制磁轭温度均匀上升,单位时间内的温升值符合设计要求,定时测量温度并记录。当膨胀量达到要求后,停止加热,揭开蓬布,将磁轭键打紧后,让磁轭自然冷却。待磁轭冷却至室温后测量磁轭的圆度、同心度、垂直度等,必要时,可对磁轭的局部进行研磨处理,直至符合要求。点焊全部压紧螺帽,所有锁片折角锁定牢固。
制动环安装,制动环一般为分块结构,装配前进行认真的清扫、检查,按厂家标记进行制动环的装配,装配后的制动环后一块不得高出前一块,制动环半径、表面波浪度及径向水平偏差等符合设计要求。
3、磁极挂装及附件安装
磁极开箱清扫后按常规进行绝缘电阻、交流阻抗、直流电阻的测量和线圈耐压工作,核对磁极编号与重量,进行磁轭实际称重并记录。
实测下端轴长度尺寸,以中心体下法兰面为基准,根据定子铁芯实际安装高程,下机架挠度和磁轭下沉量,确定磁极挂装中心尺寸。
将试验检查合格的磁极按制造厂编号对称挂装,注意磁轭的引出线与极性方向,磁极挂装完后的中心高程偏差、同心度、半径及圆度符合规范与设计要求,按设计进行磁极紧固工序。全部磁极挂装打紧后,重新复测各磁极的绝缘电阻、交流阻抗和直流电阻及耐压试验。合格后按图纸进行极间连线、阻尼环和转子上下部风扇等附件装配,附件装配完毕后,测量转子绕组绝缘电阻和直流电阻,按要求进行绕组交流耐压试验等;转子引线待上端轴吊装后再进行安装。所有连接螺栓点焊固定或锁片锁定牢固。
对转子进行全面清扫,检查,自检合格后,整理安装试验记录报请监理工程师检查验收。监理验收合格后按要求进行转子的喷漆工序。
8.2.5 上、下机架组装
上、下机架均由中心体及支臂组成,上机架为非承重机架,下机架为承重机架,下机架上布置有推力轴承、制动闸、下导轴承等,下机架支臂间铺设盖板与水轮机室隔开,支臂底部设有环形轨道以进行水轮机零部件吊装。
施工前,熟悉图纸及制造厂的有关工艺文件,根据机架结构特点,编制合理的施工作业指导书及工艺操作规程规范,装配场地配置足够的照明,场地清洁、干净、布置整齐。中心体钢支墩结构结实,稳固,牢靠、安全。
机架部件运到安装间后,对中心体及支臂进行认真清扫,检查,校核主要配合尺寸,打磨组合缝周围的面漆,去除毛刺及高点,用行车将中心体吊到组装工位的钢支墩上。调整中心体的水平至符合要求后,分别在对称方向按装配标记将支臂与中心体进行组合,支臂另一端底部用千斤顶支撑并调整其水平。在中心体中心悬挂钢琴线,测量调整支臂的半径,用加减垫片或者打磨支臂的方法调整支臂的半径和相邻支臂间的弦长值。各支臂的半径、弦长、水平、组合面间隙及中心体水平满足设计要求后,拧紧组合螺栓。按图纸要求对机架组合缝进行焊接,焊接完成后按要求进行焊缝检查。合格后提交机架安装记录报请监理工程师检查验收。
完成机架焊接后,根据图纸进行上挡风板、上灭火管、推力轴承支座、弹性油箱、制动器、环形轨道及机架部分油、气、水管路等的预装配,完工后按要求进行机架表面的刷漆。施工中严格执行质保体系的操作程序,认真做好施工过程的安装记录,施工过程中保持施工场地整洁,工具摆放有序,文明施工。
8.2.6 发电机总装
基础埋设
基础埋设主要有下机架基础、定子基础、下部风洞盖板基础及上盖板基础等预埋。根据基础图及埋件的布置形式,进行相关基础的预埋安装。定子与下机架基础埋设采用预留孔法,浇筑一期砼时留出基础螺栓孔,在定子和下机架吊入时穿入基础螺栓并带上螺帽,与基础板同时进行预埋;下部风洞盖板基础在一期砼浇筑时按设计要求进行埋设,上盖板基础留出二期砼预埋槽,与上盖板一起安装。当水轮机大件吊入机坑,发电机部件预组装工作基本结束后,即可进入发电机的总装阶段。发电机总装程序:
1、下端轴吊装
开箱后对下端轴进行认真的清扫、检查,修磨法兰面及键槽的毛剌、高点、研配组合面的键、销,校,核主要配合尺寸,如轴长、轴径、卡环槽、法兰止口尺寸等并记录,进行下导瓦研磨、刮瓦、划分盘车点标记,上述工作完成后进行吊具装配、立轴,当水轮机主轴吊入机坑且其上部法兰水平、中心及高程调整符合要求后(水轮机主轴的法兰高程高出设计值不小于10mm,以便进行推力头的安装),即可进行下端轴的吊装。按装配标记将下端轴吊放在水轮机主轴法兰上,对称穿入六颗连轴螺栓。
2、下机架安装
下机架的安装高程和中心以下端轴上法兰为基准,由于下机架是承重机架,其安装高程须考虑挠度值。下机架吊装前,检查并校核预下机架吊装推力轴承安装及调整
发电机总装程序方框图
留基础孔的尺寸,清理排除孔内的杂物及积水,确保基础螺栓在孔内处于垂直状态并留有调整余量。下机架缓缓吊入机坑,利用行车配合进行机架高程与方位的初调后,在下机架支臂上焊接调整板,进行机架的标高、中心、水平及方位的精调。反复调整直至符合要求后,进行焊接加固并浇筑二期砼,施工过程中采取相应的防变形措施,保证机架各参数不因焊接或砼浇筑变化超出允许范围。
进行推力轴承的安装调整。按要求检查试验弹性油箱,安装推力瓦,吊装镜板并调整高程、中心与水平,符合要求后,安装推力油槽并作渗漏试验。
按图纸进行推力头安装,测量推力头与镜板的间隙值,符合预定值后,进行推力头与镜板的连接。
按图纸进行制动器及其管路、附件的安装调整等工作,制动器安装前按要求进行分解、清扫、检查和耐压。
3、转子吊装
1)条件
转子装配已完成并通过验收;盘车点已划分;
制动顶起系统设备、管路及附件已安装调试完毕并通过验收;
定子安装高程、中心及水平符合设计要求,定子铁芯整体清扫干净,全部通风沟已用压缩空气吹扫、检查并通过验收。
复核推力头顶面高程、水平及中心符合要求,组合面清扫、检查、及各键、销研配合格并通过验收。
《转子吊装措施》已经监理工程师批复同意执行;
下挡风板、下灭火管等已安装完成,所有必须通过定子吊入的的设备、部件,如下导冷却器、下导油盆盖与油盆底、转子与下端轴组合螺栓等,均已吊入机坑并妥善放置。
2)准备工作
对桥机主、副车进行系统性的维护、检查、调整、注油等;
对桥机轨道及压紧螺栓进行认真的清扫、检查;进行桥机梁的应力测量准备,
进行平衡梁与桥机装配,检查并车后桥机及主钩的同步情况并符合要求;
在下机架上设置百分表以监测转子吊入后机架的挠度;
进行平衡梁与转子起吊轴的装配;
制动风闸各高程已调整在预定位置,保证转子吊入落在制动器上后,两法兰面间的安装间隙满足要求;
吊转子使用的有关工器具,如导向木条、对讲机等均已准备就绪;
3)转子吊装
缓缓起升转子,检查桥机主钩同步及制动情况,必要时进行调整;
测量转子轮环的下沉量并记录;
对中心体下法兰进行认真的清洗、研磨、检查直至符合要求;
按《转子吊装措施》的吊装方案将转子吊放在制动风闸上。
测量下机架挠度并记录;
利用桥机配合进行转子下法兰与下端轴上法兰的对正调整,符合要求后,用连轴工具进行下端轴与转子的连轴并把紧。
拆除平衡梁与起吊轴,解除并车装置,将起吊轴与平衡梁认真清扫后妥善收存以备下台机使用;
吊装上端轴,进行转子引线的装配;
4、上机架安装
将组装合格的上机架按正确位置吊放在定子机座上,以上端轴为基准进行机架高程、中心及水平调整,根据测量数据进行上机架基础板加工、焊接、配钻销钉孔,上机架高程、水平、中心符合要求后,进行上盖板及其基础的安装、调整并浇筑基础二期砼。转子与下端轴连接螺栓按设计的伸长值把紧后,在上、下导轴承处各抱住四块导瓦,顶起风闸,松开锁定,将转动部分的重量落在推力瓦上;
6、机组轴线调整
机组轴线调整采用电动盘车。发电机不进行单独盘车。
盘车时先进行刚性盘车,刚性盘车合格后,再进行弹性盘车检查校核。
刚性盘车:在上、下导轴领位置各对称装配四块导瓦并抱紧滑转子,在每个油箱的外侧装测杆,测杆下方设置两块百分表,上、下导轴瓦表面涂抹透平油后,分别顶起、落下转子,测量油箱压缩变形量,同时测量下机架的挠度,根据计算值调整各弹性油箱的压缩值偏差,使其在允许范围内。弹性油箱受力调整合格后,投入锁定装置,调整转子在定子中心位置,测量转子上下部空气间隙,在上、下导轴领位置各对称装配四块导瓦并抱紧滑转子,分别调整上、下导瓦间隙,在上、下导、镜板、水轮机主轴上法兰、水导轴承及转轮上密宫等处同一轴向位置互成90°方位装设百分表,在瓦面抹上透平油;符合要求后通过盘车柜分别向定、转子线圈中通入电流,按机组旋转方向电动盘车,每转过一点,切断电源,待转动部分平稳后方可读数。根据百分表的读数计算各测点的摆度,分析摆度产生的原因,通过调整相应部位连接螺栓的预紧力、移动主轴或研磨法兰面等方法进行处理,直至各部位摆度符合规范要求并经监理工程师和安装督导认可。
机组盘车各测量部位如图8-16 所示
图8-16 机组盘车示意图
刚性盘车合格后,退出锁定装置,按上述方法进行机组弹性盘车及转子一点固定和定子一点固定盘车检查,同时测量镜板径向跳动。轴线调整合格后,计算各部轴瓦间隙调整值报监理工程师,将转动部分固定在迷宫中心,按监理工程师批复的轴瓦间隙值进行上、下导瓦及水导瓦的的安装和间隙调整。
8.2.7 发电机附属设备安装
1、制动和顶起系统安装
下机架安装就位后进行制动和顶起系统安装,主要有制动闸及其连接管路和附件、制动器活塞带有锁定螺母,以保证卸去油压时仍可将转动部分锁定在顶起的位置。安装时制动闸按规定要求进行分解、清扫及耐压试验,制动器安装后通压缩气检查,动作灵活自然,无卡阻现象,密封良好且无漏油漏气情况。各制动器之间高程差控制在图纸要求的范围内。管路装配完成后,按要求进行耐压试验,管路接头、三通、阀门等无渗漏。
2、通风冷却系统安装
发电机采用带空气冷却器密闭式通风系统。由上、下盖板及上、下挡风板、空气冷却器构成密闭式通风系统。空气冷却器等间距对称地布置在定子机座上,空气通过转子的风扇作用产生循环。空气冷却器进行严密性耐压试验合格后,对称吊装到定子机座上。冷却器吊装就位后,配装空气冷却器的供、排水管。配装前按规范要求所有的阀门进行水压试验,试验压力为1.5 倍的工作压力,保持10 分钟无压降。
管路配装完后,进行空气冷却器进水口与出水口之间水压降测试。
合格后对管路涂防锈漆和标识漆。
3、水喷雾灭火系统安装
水喷雾灭火系统包括灭火环管、喷淋阀、喷头、温度和烟雾探测器及相应的电气控制设备。灭火环管分别布置在定子绕组的上、下方。
将环管按照设计尺寸放大样在机坑外工作平台上,预装上、下灭火环管,符合图纸要求后,上部灭火环管装配在上机架支臂下方,下部灭火环管按图纸要求装配在定子机坑壁上。
喷雾环管整体组装后,封堵环管上的孔洞,对其进行1.5 倍工作压力的试验。
试验合格后去除封堵件,安装消防喷头进行图纸要求的试验;检查消防喷头的角度,不合格的调整到合适的位置。
安装电气控制设备,在无水条件下按制造厂调试说明书要求调试其控制元件。
模拟烟雾报警和温度报警的状况,测试消防喷雾灭火系统自动控制的可靠性。
4、发电机加热系统安装
按图纸在发电机风罩内等距离安装加热器,加热器在发电机停机一定时间后自动投入运行,以防止发电机结露受潮。
5、其它附属系统安装
根据图纸要求安装滑环与电刷、引出设备、中性点接地系统、自动化元件及仪表等。
8.2.9 微机励磁系统安装
励磁系统是保证水轮发电机安全运行的重要组成部分,对电力系统的稳定运行及发、供电质量起着重要的作用。
本电站采用微机自并激可控硅整流励磁系统。励磁系统由励磁变压器、三相全控桥功率整流装置、灭磁装置、转子过电压保护装置、微机励磁调节器、交、直流励磁电缆、辅助单元、起励装置、励磁控制、保护装置、变送器、电流及电压互感器、电制动变压器等部分组成。安装单位在励磁系统厂家工程师的指导下,完成全部励磁装置的安装、调试、试验工作。
1、安装工程内容
本项工程内容包括4 台套发电机的励磁系统成套设备的装卸、保管、安装(包括基础制作、设备固定、盘内部分元器件的固定和改线、设备与电站接地网的连接、与设备相关电缆的敷设和连接等)、调试、起动、试运行及验收的全部工作。
2、安装流程图
施工准备
基础槽钢予埋、接地
设备转运、开箱、检验
电缆敷设、固定
电缆头制作、电缆连接
常规检查、单元试验
整体调试
电缆孔洞及盘柜孔洞封堵
单元工程验收
励磁变压器
励磁针柜就位接地调整
3、施工准备
1)环境要求
顶楼板施工完毕,不得渗漏。
结束室内地面工作,室内沟道无积水、杂物。
预埋件及预留孔符合设计要求,预埋件安装牢固。
进行装饰工作时有可能损坏已安装设备或设备安装后不能再进行施工的装饰工作全部结束。
2)技术准备
配备熟悉相关励磁系统及装置安装、试验规程的具有实际安装经验和调试经验的工作人员。
熟悉励磁系统的施工设计图纸及产品说明书等相关资料。
编制安装调试技术措施,编制后由单位技术负责人审批,报监理工程师备案。
组织施工技术交底。准备安装调试记录表和设备缺陷处理表,以及工作日志等。
准备有关的安装工器具、材料、设备及调试用仪器仪表。
4、主要施工工艺说明
1) 基础槽钢安装
按设计图进行测量放线,用水准仪和经纬仪调整槽钢的位置,确定后,与插筋焊接固定。
基础槽钢安装后有明显的可靠接地,浇筑二期砼时其顶部宜略高于抹平地面。
2) 设备就位
设备搬运和安装过程中注意采取防震、防潮等安全措施。
励磁盘柜在安装间开箱后吊到相应位置,然后人工就位、调整,并用规定的螺栓将盘柜牢固固定在基础槽钢上。对于盘柜内的易损元件可在吊装前拆下,待盘柜固定后再进行单独安装。
励磁变连同包装在安装间卸车,通过吊物孔吊到母线层,落在地面上用叉车运送到指定位置。开箱检查后,进行励磁变找正就位,用螺栓牢固固定在基础槽钢上。
按设计和厂家要求进行设备的水平和垂直度调整。设备接地牢固可靠,装有电器的可开启的门,以裸铜软线与接地的金属构架可靠地连接。
3) 电缆敷设、连接
按照电缆走向图和敷设图进行电缆敷设,敷设完后立即进行整理固定,在相应的部位挂上电缆牌,以保证查找电缆方便。
电缆整理、固定好后,在连接前剥头进行绝缘试验,以保证绝缘要求。
电缆芯线不得直接入接线端子,必须按相应的要求进行做头或压接鼻子。在电缆芯线和所配导线的端部标明其回路号,配线整齐、清晰、美观。
在指定的盘柜内按规定进行电缆的绝缘接地铜网。
按设计要求对电缆进行防火处理,电缆孔洞用防火材料封堵。
施工完后进行场地清理和盘内整理,合格后将盘柜移交调试人员调试。
5、现场试验
现场试验前的检查
在进行下列检查并经监理人和厂家代表认可后,即可进行现场试验。
盘柜的固定接地可靠,盘内清洁整齐。
盘柜内所装电器齐全完好安装位置准确,固定牢固。
所有回路接线正确,连接可靠。标志齐全清晰,绝缘符合要求。
一次设备的安装质量验收要求符合国家现行的有关标准规范的规定。
1) 变压器试验项目
测量绕组连同套管的直流电阻,所有分接头的变压比检查变压器引出线的极性。
测量绕组连同套管的绝缘电阻,吸收比或极化指数;
绕组连同套管的交流耐压试验;
测量与铁芯绝缘的各紧固件及铁芯接地线对外壳的绝缘电阻;
无载调压切换装置的检查和试验。
额定电压下的冲击合闸试验。
2) 相位检查
① 断路器及灭磁开关的绝缘电阻测定及介电强度试验,并检查导电性能和动作的可靠性。
② 率定整流元件的伏安特性参数。其控制特性的测量数值与元器件的出厂记录值无明显的差别,最大值和最小值符合产品标准。
③ 测量脉冲变压器的输入与输出特性,并进行电气绝缘强度试验。
④ 非线性电阻特性试验结果符合规范和产品说明要求,并进行介电强度试验。
3) 静态调试
① 在安装、配线、元器件检查完毕,以及回路绝缘良好的情况下,输入程序,进行静态调试。
② 进行交/直流电源检查、相序/极性正确,电压值符合产品要求。通电后风机及各部件工作正常。
③ 进行摸拟试验,检查操作、保护、监测、信号及接口回路动作的正确性。
④ 进行自动励磁调节器各基本单元的静态特性试验、各辅助单元的静态试验和励磁装置的总体静态特性试验,其结果符合规范和产品说明要求。基本单元包括:测量元件、调差单元、综合放大和积分单元、移相触发单元。辅助单元包括起励单元、稳压电源单元、其他辅助功能单元。总体特性试验包括小电流开环试验、大电流开环试验。
4)动态调试
空载试验
(1) 发电机为空载额定转速,进行手动升压、降压、自动升压、降压及起励和逆变灭磁特性的录波,起励时测定发电机电压超调量、摆动次数和调节时间。
(2) 在发电机空载额定转速下,励磁调节器处于“自动”、“手动”或“备用”通道控制时,测量励磁调节器电压整定范围及给定电压的变化速度。
(3) V/f 限制试验。在发电机空载情况下,频率值每变化1%,自动励磁调节系统保证发电机电压的变化值不大于额定值 ±0.25%。
(4) 在发电机空载情况下进行自动调节方式和手动控制方式的切换试验,工作正确、可靠。
(5) 10%阶跃响应试验。发电机在空载额定转速下,用自动励磁调节器将发电机定子电压调整在90%额定值,突然相当于发电机额定电压的10%的阶跃信号,使发电机电压上升至额定值,录制施加阶跃信号的发电机电压、励磁电压以及励磁电流波形。然后,突加降低发电机额定电压的10%的阶跃信号,重复录制上述各量的波形。
(6) 整流功率柜冷却系统的检测、躁声试验、以及均流,均压试验。
(7) 发电机在空载和空载强励情况下的灭磁试验。录制发电机电压、励磁电压、励磁电流、灭磁开关磁场断路器断口电压波形。
(8) 负载试验
(9) 发电机并网运行后,将调差单元投入,检查调差极性是否符合设计要求。
(10)发电机无功负荷调整试验及甩负荷试验。发电机并网运行后,在有功功率分别为0%、50%、100%额定值下,调整发电机无功负荷到额定值,调节均匀,无跳变。分别在0%、100%的额定有功功率下,发电机带无功功率各甩负荷一次,记录甩负荷前后发电机的各运行参数,并录制甩负荷时发电机电压、励磁电压和电流波形
(11)发电机在额定工况下,跳发电机出口断路器,联动跳灭磁开关或磁场断路器灭磁。录制发电机电压、励磁电流、电压及开关断口电压波形。
(12)测量励磁系统顶值电压及电压影响的时间,符合设计的要求。
(13)发电机在额定负载和额定功率因素下连续运行2h 进行励磁系统各部分的温升试验。
(14)各辅助功能单元(最大励磁电流限制器、励磁过电流限制器、欠励磁限制器)的整定与动作试验。
(15)与机组现地控制、保护联调试验。在以上试验过程中,配合机组现地控制进行开/停机流程及事故情况下的动作、信号检查,配合保护系统进行失磁保护、过激磁保护等等保护调试。另外配合进行升流升压试验。
(16)励磁系统在额定工况下与机组一起进行72 小时试运行。
8.3 水力机械辅助设备及管路系统
8.3.1 施工范围
某水电站水力机械辅助设备安装包括下列各系统的设备、管路、附件订货(除发包人采购的设备、材料外)及设备的验收、到货、卸货、仓储保管、二次运输、安装调试、试运行直至移交给发包人的全部工作。工程范围包括以下各项:
1) 技术供水系统
2) 渗漏及检修排水系统
3) 全厂高、低压缩空气系统
4) 厂内透平油、绝缘油系统
5) 电站水力监视测量系统
8.3.2 水系统
8.3.2.1 水系统简介
1. 技术供水系统
技术供水系统采用单元供水方式,每台机组以蜗壳自流减压供水作为机组主供水,尾水取水泵供水作为备用水。坝前取水作为全厂空调供水及全厂消防供水的主供水源,另外从蜗壳取水作为坝前供水的备用。每台机组从蜗壳取水,经一台规格为Dg400、Pg=2.0Mpa 的滤水器,两台型号规格为ZTY46H-16、Dg400、Pg=2.0Mpa 的减压阀,为发电机空气冷却器、上导轴承、推力轴承、下导轴承、水导轴承、主轴密封和主变压器等设备供应冷却用水主用水,冷却水排水通过Dg400的排水总管排至尾水管。每台机组从尾水管各引两根Dg250 取水管,经两台型号规格为10SA-6F,Q=600m3/h,H=62.5m 的供水泵,两台止回阀,一台规格为Dg400、Pg=2.0Mpa 滤水器,为发电机空气冷却器、上导轴承、推力轴承、下导轴承、水导轴承、主轴密封和主变压器等设备供应冷却用水备用水,冷却水排水通过Dg400 排水总管排至尾水管。
主变的冷却水在下游水位较高时排至集水井,在下游水位较低时直接排至尾水洞。
通过压力变送器、流量计、压力表、温度计、示流信号器等监测元件,监视机组技术供水系统,确保机组安全运行。
2. 排水系统
排水系统包括厂内渗漏排水系统和机组检修排水系统。
(1) 厂内渗漏排水系统
厂内渗漏排水系统主要包括空调排水、顶盖自流排水、蜗壳弹性垫层排水、锥管层地漏排水、空压机冷却及地漏排水、深井泵房、透平油库地漏排水及厂房各层地漏排水,经渗漏排水总管排至渗漏集水井。全厂设一个渗漏集水井,布置3 台规格为Q=300m3/h,H=60m 渗漏深井水泵。3 台渗漏深井水泵要求定期轮换运行,水泵的启动和停止均由液位控制器自动控制。渗漏集水井内水由渗漏深井水泵,经渗漏深井水泵出水管Dg350 排至1 号调压井或2 号调压井。
渗漏深井水泵布置在安装场下水轮机层EL.318.200m 高程渗漏深井排水泵房。
(2) 机组检修排水系统
机组检修排水系统用于机组检修时,排除机组进水闸门与尾水闸门之间流道内的积水以及检修期间闸门的渗漏水。蜗壳内积水通过Dg500 的盘形阀及管道排至尾水管。每台机组尾水管底部设有两根Dg500 的排水管,通过锥管层Dg500 的盘形阀引至EL.292.900 高程的检修排水廊道,自流排至检修集水井。全厂设一个检修集水井,布置3 台规格为Q=900m3/h,H=60m 的检修深井水泵。检修集水井内水由检修深井水泵,经Dg600 检修排水管,排至1 号调压井或2 号调压井。
集水井清淤、埋设有排污管道,并设有1 台规格为Q=43~108m3/h,H=48.5~89m 的污水泵(两井并用),清污时由进人孔吊入,为了便于清污,在廊道中每台机组段各设有一条Dg25 的冲淤气管和水管。检修深井水泵可手动亦可自动,水位自动控制停泵。检修深井水泵布置在安装场下水轮机层EL.318.200m 高程检修深井排水泵房。
8.3.2.2 水系统安装
1. 管件、管架制作及安装
管道及管路附件配置包括管路的弯制、大直径的三通、弯头、大小头的制作及管路附件、管路基础埋件的制作加工以及某些需按设计图纸要求在现场加工的部件。凡是有定型产品的管件按设计提出的型号、规格进行采购,如MN 管架系统。
根据图纸要求进行管件、及少量管架制作。制作前按设计要求选择合格的材料,其材质、规格、质量符合设计文件的规定。管架及支撑材料将严格按照设计要求采用MN 系统的安装方式。安装时,调整好相应位置后加固牢靠。
2. 管路安装
(1) 管路安装技术要求
管道及管件到货时都要检查制造厂的质量证明书,其材质、规格、型号符合设计文件的规定,并按国家现行标准进行外观检查。
管道安装时的关键环节是安装前先进行清扫,对于管道内污物、泥浆和一切杂物进行彻底清洗,确保所有管道内部无任何杂物;当管道采用焊接连接时,管道的焊接位置、管子的坡口形式和尺寸、管道对接焊口的组对等符合规范要求。
(2) 埋管安装
埋管主要有技术供水系统和厂内排水系统管路等。埋管按设计图纸要求位置埋设,其出口位置偏差、管口伸出混凝土面距离以及管子距混凝土墙面距离符合规范要求,且不小于法兰、阀门的安装尺寸。
排水管须有同流向一致的坡度,坡度大小根据设计确定。
埋设管路安装的注意事项是:埋设供水管在混凝土浇筑前按要求进行压力试验,确保焊缝无渗漏及其它异常现象。所有埋管混凝土浇筑前由监理人组织有关单位人员检查埋管的数量、安装位置和畅通性,验收签字后方可浇筑混凝土。在混凝土浇筑期间,管口用钢板点焊封堵,直至与其他管道或阀门连接时才可拆除。
(3) 明管安装
按管道设计布置图要求,确定管道支架或吊架位置,如预先已埋设支架固定钢板可在预埋钢板上焊接支架,否则须在混凝土墙或楼板上用膨胀螺栓安装支架或吊架。支吊架安装合格后,用人工或手拉葫芦等方法,将预先制作的管节按正确顺序吊放在管架上,进行组装连接。
穿墙、楼板、梁等的管道,在混凝土浇筑时预先按图纸要求位置埋设套管,套管直径符合设计要求。埋设的穿墙或梁套管两端与混凝土平齐,穿楼板的套管下端与楼板平齐,上端高出楼板最终完工面约25mm,穿伸缩缝的套管按设计图纸要求作过缝处理。套管安装后将它点焊在钢筋上固定,以免浇筑混凝土时产生位移。
管道安装工作暂时不施工时,管口及时用木塞或钢板等物可靠封堵;连续施工时检查内部是否干净。管道装配位置符合规范要求,检查明管安装平面位置小于±5mm 且全长小于10mm。
技术供水明管安装完成后,按设计要求的方法做严密性耐压试验,试验合格后填写试验报告报监理人验收。
(4) 阀门试验及安装
检查阀门的出厂合格证,检查填料、压盖螺栓及型号符合设计要求。将阀门内、外清扫干净。阀门安装前做严密性耐压试验,试验合格后方可进行安装。
根据介质流向确定阀门的安装方向,然后将阀门处在关闭位置,以法兰或螺纹连接的方式将阀门装配在管道上。安全阀安装时一定要垂直,投入运行时及时按要求调校开启和回座压力,在工作压力下不得有泄漏,调校合格后做铅封。
各种阀门安装后位置正确,阀杆手柄的朝向要便于操作、转动灵活;电动阀门安装后,用手操作其动作灵活,传动装置无卡阻现象。
管道施工程序如下框图。
系统管道施工程序图
管道、管件配置检
埋设管道组配
埋设管道安装
系统设备安装
浇筑混凝土
作业场布置
明管道预组配
搭设脚手架
管架安装
明管道及附件安装
管道系统试压
系统设备试
管道系统试验
涂漆
系统设备及电气接线、调试
(5) 管路涂漆
管路全部安装完成经监理人验收后,根据规范要求进行防锈和标识涂漆。裸露的辅助设备及管道等(除了不锈钢外)均须涂防结露材料。
3. 设备安装和试验
根据图纸要求的位置,安装本系统各种类型的水泵、自动滤水器、压力变送器、示流信号器、水位测控器、液位测量显示器等。排水系统水泵安装前,清洗和检查其数量、结合面情况。安装顺序及要求按水泵制造厂产品使用说明书要求进行;深井水泵安装满足厂家技术规定。
水泵安装前检查其基础的尺寸、位置及标高,符合设计图纸要求。
水泵开箱后检查出厂合格证书,安装使用说明书;按出厂技术文件清点水泵零部件,无缺件、损坏和锈蚀现象,管口封闭良好;对水泵底板尺寸进行检查并核对是否与混凝土基础预留孔相符,出现问题在安装前妥善处理。
利用安装地点的预埋吊点,并用手拉葫芦或千斤顶将水泵吊放在基础垫板上,利用楔子板或垫片调整设备的高程,同时进行中心、水平调整。上述尺寸合格后浇筑水泵地脚螺栓基础混凝土,待混凝土强度达到要求后拧紧地脚螺栓固定水泵,并重新检查水泵的水平度。深井泵安装后,用钢板尺检查泵轴提升量符合设计要求。
进行电动机与泵连接时,以泵轴线为基准,连接后用人力盘车转动灵活,法兰面平行,间隙均匀。两轴线倾斜及偏心、联轴器之间端面间隙均符合出厂说明书或安装规范要求。
水泵安装完成后,按制造厂和规范要求在系统正式投入联合调试前,作单独调试工作,以便顺利地进行联合调试。首先检查电动机转向与水泵的转向一致,固定部件连接牢固,各润滑部位已注油,各指示仪、安全保护装置、电控装置均准确可靠。
深井泵安装程序如下框图
清除井内积水、杂物
基础垫板、螺栓预埋
起重设施布置
泵体、输入管分件吊入
泵座部分安装
电动机安装
出水管及附件安装
启动试运行
泵体、输入管分解清洗、预装、搬运
深井泵安装程序框图
水泵启动前,先打开电磁阀向水泵供润滑水,1min 后方可启动水泵,水泵运转5min 后才能切断润滑水。检查各转动部件运转正常,无不良震动和噪音;管道连接牢固无渗漏;各仪表装置指示正确;轴承温度不高于设计值。连续运行2 小时以上,水泵压力、流量符合设计要求,电动机电流不超过额定值,水泵调试为合格。水泵调试期间,调整集水井各水泵的水位计及信号器。水泵调试合格后认真填写试运转记录并报监理人验收签字。
8.3.3 厂内压缩空气系统
8.3.3.1 厂内压缩空气系统简介
厂内压缩空气系统分:低压压气系统和高压压气系统。
1. 低压压气系统
低压压气系统主要供机组制动用气、主轴检修密封充气、进水门槽冲扫、集水井冲淤供气、安装场检修用气及水轮机层用气。低压压气系统设备:2 台水冷式空气压缩机,排气压力为0.8Mpa, 排气量为10.0m3/min;2 台空冷式空气压缩机,排气压力为0.8Mpa,排气量为3.0m3/min。设置两台低压空压机作为机组制动用,两台低压空压机作为机组检修用。0.8Mpa 储气罐4 只,其中4.0m3 2 只,5.0m3 2 只。机组制动引自Dg50 制动供气总管;主轴检修密封、吹污清扫和风动工具引自Dg80 检修供气总管。压气机的控制、保护设备布置在压气机室内。
为实现空压机轻载启动和自动排污,空压机停机时打开电磁阀,开机18s 后自动关闭。
低压压气机室布置在安装场下母线层EL.323.20m 高程。
2. 高压压气系统
高压压气系统的主要任务是为调速器油压装置初次充气和补气。
高压压气机室布置在安装场下母线层EL.323.20m 高程。压气机室内布置:3 台空冷式高压压气机,其中两台工作,一台备用;排气压力为7.0Mpa,排气量为1.0m3/min;6.3MPa 容积为3m3储气罐2 只。
油压装置供气由压气机室引出的DN20 供气管供给。
当高压储气罐内压力降至6.0Mpa 时工作空压机启动;当压力降至5. 5Mpa 时,备用空压机启动并发信号;当储气罐压力恢复至6.3Mpa时,空压机自动停止运行;当储气罐内压力降至5.3MPa 或高于6.4MPa时,发报警信号。
当油压装置油槽内油位超过正常油位上线,同时油压低于正常工作油压时,自动打开电磁阀向压油罐补气;当油位处于正常油位时,自动关闭电磁阀。
高压压气系统采用自动控制和自动补气方式,配有电磁阀、配压阀、液压阀及自动控制设备和自动保护装置等。
高压压气机室布置在安装场下母线层EL.323.20 高程。
8.3.3.2 厂内压缩空气系统安装
1. 空压机安装及调试
(1) 空压机安装
空压机室的土建室内装修完工后,检查空压机安装基础的尺寸、位置及标高符合设计图纸要求。空压机开箱检查有出厂合格证书,安装使用维护说明书;根据出厂技术文件清点设备零部件,无缺件、损坏和锈蚀现象,管口封闭良好;对设备底板尺寸进行检查,并核对是否与混凝土基础预留孔相符,出现问题在安装前妥善处理。
低压压气系统和高压压气系统,除厂家已铅封或标明“不准拆卸”的设备外,都要进行全面分解、清扫、逐件检查其性能是否达到规定指标和设计要求,所有检查记录、出厂合格证交监理人验证,并随竣工资料移交发包人。空压机安装前要进行拆卸和清洗,清洗剂要冲洗干净;然后根据制造厂产品说明书的要求进行重新装配。按照制造厂图纸和设计布置图进行空压机安装,利用安装地点预埋吊点并用手拉葫芦或千斤顶将空压机吊放在基础垫板上,利用楔子板或垫片调整设备的高程,同时进行中心,水平调整。上述尺寸合格后浇筑空压机地脚螺栓基础混凝土,待混凝土强度达到要求后,拧紧地脚螺栓固定空压机,并重新检查设备的水平度。
空压机安装过程检查其机身中心线高程与设计值的偏差小于±5mm,机身水平偏差小于0.1 mm/ m;进行电动机与压缩机连接时,以泵或压缩机轴线为基准,接后用人力盘车转动灵活,法兰平行,间隙均匀。两轴线倾斜及偏心小于0.15 mm、联轴器之间端面间隙均在0.5~
2 mm 范围内。
(2) 空压机调试
空压机安装好后,根据产品说明书的要求进行空压机调试。检查各紧固件是否紧固和锁定,检查仪表和电气设备已调整正确,电机转向与空压机转向相符;检查润滑、冷却系统已合格,进、排气管畅通,各安全阀已经校验,动作灵敏、可靠;人工盘车数转灵活无阻滞现象。空载运行1 小时,运转中检查空压机各部件无异常情况,且温度符合产品说明书的要求。空载试验合格后做带空气负荷试验,试验按额定压力下运转1 小时进行,试验期间检查润滑油,各级吸排气、冷却供排水压力和温度;各级安全阀动作压力正确,动作灵敏;自动控制装置灵敏可靠;检查轴承、滑道等磨擦部位的温度以及运转情况符合产品说明书要求后停止运转,清洗油过滤器和更换润滑油。
空压机调试过程做详细试验记录,试验完成后,填写试验报告,并报监理人签字认可。
空压机安装程序如下框图
测定基础中心高程
基础清理
机座安装
浇筑基础二期混凝土
活塞连杆拆卸清洗组装
空气压结缩机体就位规定
电动机找正靠背轮联接
管道仪表及附件安装
启动试运转
储气罐基础清理
储气罐吊装调整
附件、仪表检查
电缆设备线路联接调试
空压机安装程序框图
2. 储气罐安装
安装前检查储气罐出厂合格证书,安装使用维护说明书;按出厂技术文件清点设备零部件,无缺件、损坏和锈蚀现象,管口封闭良好;对储气罐底板尺寸进行检查,并核对是否与混凝土基础预留孔相符,出现问题在安装前妥善处理。
储气罐安装前按GB150-89《钢制压力容器》要求进行强度耐压试验。储气罐充满水后,用电动试压泵进行1.5 倍额定工作压力的耐压试验,保压30 分钟无渗漏,试验合格清扫干净后才能安装。试验过程做详细试验记录,试验完成后填写试验报告并报监理人签字认可。如果储气罐强度耐压试验在出厂前已做,且出厂期不长,经监理人同意可免做。
利用安装地点预埋吊点,用手拉葫芦或千斤顶将储气罐吊放在基础垫板上,利用楔子板或垫片调整储气罐的高程,同时进行中心,水平调整。上述尺寸合格后,浇筑储气罐地脚螺栓基础混凝土,待混凝土强度达到要求后,拧紧地脚螺栓固定储气罐,并重新检查其水平度。储气罐安装位置与设计值的偏差小于±5mm,吊线锤用钢板尺检查其垂直度不大于3mm;其高程和中心线位置符合规范要求。
3. 管件及管夹制作
凡是有定型产品的管件必须采购,只有无法采购的管件才在现场制作。根据图纸要求的方法进行管件、管夹配制,其质量要满足设计图纸和规范要求。制作前按设计要求选择合格的材料,其材质、规格、型号、质量符合设计文件的规定。
4. 管道及阀门安装和试验
(1) 阀门试验和安装
检查阀门的出厂合格证,检查填料、压盖螺栓及型号符合设计要求;将阀门内、外清扫干净。阀门安装前做严密性试验,对不合格的
阀门处理合格后方可安装。安全阀安装前进行检查调整,当超过工作压力0.1~0.2Mpa 时全开,调校合格后做铅封。阀门试验完成后,填写试验报告并报监理人签字认可。
根据介质流向确定阀门的安装方向,然后将阀门处在关闭位置。
各种阀门安装后位置正确,阀杆手柄的朝向要便于操作,转动灵活,电动阀安装后用手操作其动作灵活,传动装置无卡阻现象。
(2) 管道安装和试验
根据GBJ235-82《工业管道工程施工及验收规范(金属管道篇)》以及GB8564-88《水轮发电机组安装技术规范》中的有关规定和制造厂图纸及设计布置图安装管道。
管道安装完成后,高压气管做1.5 倍设计压力的严密性耐压试验,低压气管做1.5 倍设计压力的严密性耐压试验;压缩空气管道及附件试验压力为1.25 倍工作压力,试验介质为空气,稳压时间30 分钟,试验期间检查接头、焊缝处无漏气现象。试验过程做详细试验记录,试验完成后填写试验报告并报监理人签字认可。
管路全部安装完成经监理人验收后,根据规范要求进行防锈和标识涂漆。
8.3.4 厂内透平油、绝缘油系统
8.3.4.1 透平油系统
1. 透平油系统简介
厂内透平油系统用于向机组水导轴承、下导轴承、推力轴承、上导轴承及调速器油压装置供油,以及机组检修时的油处理。在厂房内安装场下EL.316.700m 层,设置透平油罐库、透平油处理室及烘箱室。
透平油罐库内设置容积为20m3 运行油罐2 个,容积为20m3 净油罐2 个;油处理室设置LY-150 型压力滤油机1 台; ZLY-100 型真空滤油机1台;2CY-18/3.3-1 型齿轮油泵2 台;容积为0.5m3移动油车1 台;烘箱1 台;不锈钢软管若干。
本系统主要由油罐、油处理设备、阀门、管道等组成。油槽车新油运到安装场后,通过一根Dg80 供油管自流到运行油罐。运行油罐内新油通过压力滤油机进行自循环过滤后存入净油罐;净油罐内的油通过净油泵以及供油总管,向四台机的调速器及各轴承供油。检修时分别由各轴承排油支管和调速器油压装置排油支管汇入排油总管,通过油泵排入运行油罐。废油从运行油罐通过污油泵排入油槽车。
2. 透平油系统安装
(1) 油罐制作、安装
按设计图纸要求制作油罐,对焊缝作100%探伤,焊缝合格,作渗漏试验,无渗漏现象。对油罐内外面去锈防腐。
按设计图纸布置位置吊装油罐,利用安装地点预埋吊点并用手拉葫芦或千斤顶将油罐吊放在基础垫板上,利用楔子板或垫片调整油罐的高程,同时进行中心,水平调整。上述尺寸合格后,浇筑油罐地脚螺栓基础混凝土,待混凝土强度达到要求后拧紧地脚螺栓固定油罐,并重新检查油罐的水平度。油罐安装位置与设计值的偏差小于±5mm,吊线锤用钢板尺检查其垂直度不大于3mm;其高程和中心线位置符合规范要求。
(2) 油处理设备安装和试验
油处理设备包括压力滤油机、真空滤油机和齿轮油泵等。开箱时油泵和滤油机有出厂合格证书,安装使用维护说明书;按出厂技术文件清点油泵和滤油机零部件,无缺件、损坏和锈蚀现象,管口封闭良好;对油泵和滤油机底座尺寸进行检查并核对是否与混凝土基础预留孔相符,出现问题在安装前妥善处理。
利用安装地点预埋吊点并用手拉葫芦或千斤顶将油泵和滤油机吊放在基础垫板上,利用楔子板或垫片调整油泵和滤油机的高程,同时进行中心,水平调整。合格后浇筑油泵和滤油机地脚螺栓基础混凝土,待混凝土强度达到要求后拧紧地脚螺栓固定油泵和滤油机,并重新检查油泵和滤油机的水平度。油泵安装后用塞尺检查齿轮与泵体径向间隙在0.13~0.16mm,用百分表检查主、从动轴中心偏差不大于0.08mm。
齿轮油泵、滤油机安装完成,接通电源可进行启动运转试验。试验过程检查各转动部件运转情况,无异常声和磨擦现象,管道连接牢固无渗漏,各仪表装置指示正确,轴承温度不高于设计值且运转平稳。
油泵外壳振动不大于0.05mm,油泵轴承处外壳温度不超过设计值;油泵的压力波动小于设计值的±1.5%,油泵输油量不小于设计值。油泵、滤油机试验合格后,认真填写试验记录并报监理人验收签字。
(3) 管道及阀门安装和试验
按设计图纸要求,进行管道阀门安装以及设备与管路及附件的连接工作,连接法兰端面平行对齐,螺栓自由穿入,不借法兰螺栓强行连接。连接后复测设备原找正尺寸,如发生偏移,调整管道安装位置予以校正。
阀门安装前做严密性耐压试验,管道安装完成后,按规范要求进行严密性耐压试验。油管路做1.25 倍额定工作压力试验,30 分钟无渗漏和压降现象为合格。油管试验后用透平油循环冲洗,冲洗后的回油经净化再返回储油罐;冲洗要连续不断进行,直至抽取油样化验合格为止。
阀门和管道试验要做详细记录,填写试验报告报监理人验收签字。
合格后按规范要求进行阀门和管道涂漆工作。
8.3.4.2 绝缘油系统
1. 绝缘油系统简介
本电站不设绝缘油库,绝缘油系统布置有LY-150 型压力滤油机2台,ZLY-100 型真空滤油机1 台,2CY-5/3.3-1 型齿轮油泵2 台,吸附过滤器1 台。
2. 绝缘油系统安装
绝缘油系统的安装方法与透平油系统的安装方法大致相同,见上所述。
8.3.5 电站水力量测系统
8.3.5.1 电站水力量测系统简介
水力量测项目分全厂性测量和机组段测量。
1.全厂性测量
全厂性测量项目包括:上游水位、毛水头、下游水位、水库温度和冷却水进口水温。
2.机组段测量
机组段测量项目包括:冷却水出口水温、拦污栅压差、进水门平压、调压井水位、尾水门平压、尾水管出口压力、有效水头、蜗壳进口压力、蜗壳末端压力、尾水锥管进口压力、肘管内侧压力、肘管外侧压力、转轮上腔压力、超声波测流、蜗壳测流、上止漏环压力、技术供水压力、顶盖垂直振动、顶盖水平振动、上导水平振动、上导垂直振动、尾水进人门脉动和噪音测量。
测量仪表和仪表盘布置在进水口闸门室、尾水闸门室、尾水管层、蜗壳层。凡接入计算机的信号,均为4~20mA 输出,由计算机监控。
计算机室的计算机与中央控制室的计算机终端连接,可显示、打印各项测量数据。
8.3.5.2 电站水力监视测量系统安装
根据图纸要求首先进行管夹及仪表支架检查配制,然后根据设备仪表制造厂的使用说明书和设计布置图要求,进行水力测量设备仪表安装。安装完成后按规范要求的方法检查设备仪表、仪表盘位置、仪表盘垂直度和水平度、仪表盘高程、取压管位置符合设计要求。
阀门严密性耐压试验合格后,按设计要求的位置进行管道和阀门的安装。测压管安装完成后进行严密性耐压试验,试验压力为额定工作压力,无渗漏现象为合格。试验过程有详细记录,填写试验报告报监理人验收签字。合格后按规范要求进行阀门和管道涂漆工作。
8.3.6 管路安装注意事项
8.3.6.1 管路焊接
1. 全部采用合格的持证上岗焊工,并在工地进行全位置管路焊接考试合格后,方可焊接管路。
2. 管路焊接及坡口要求:
(1) 管路坡口表面无凹坑并打磨至光亮;
(2) 根据管路结构部分管路焊接采用氩弧焊打底手工电弧焊盖面,氩弧焊接时,管内充满氩气,防止出现氧化物;。
8.3.6.2 管路焊缝检查
1.肉眼外观检查;
2.路焊缝内表面检查,采用管道内窥镜检查焊缝内表面的成形情况;
3.管路焊缝的无损检测,按监理工程师及设计、制造厂家要求进行。
8.3.6.3 管路冲洗
水系统管路冲洗
水系统管路安装完成后,将所有与设备连接的管路接口断开,并用临时管道连接起来,用外循环泵加上滤网,对水管路进行循环冲洗,至少12 小时,直至合格后,方可排水并与永久设备重新连接。
2.油系统及气系统管路冲洗
油系统管路酸洗完成后涂抹透平油。油系统管路安装完成后,对每根管道作好编好,然后将所有管道拆下,在平地上通过临时管道连接起来,并分别与真空滤油机及压力滤油机连接起来进行热油循环,直至取油样化验合格为止。
气系统管路用压缩空气吹扫。
8.4 桥式起重机
8.4.1 起重机简介
本电站主厂房内安装二台400/100/10t 单小车电动双梁桥式起重机,作为机组安装、检修及设备装卸使用;500kv GIS 室安装一台10t电动单梁桥式起重机,主要用于500kv GIS 室设备安装及检修。
主厂房桥机跨度为20m,起重机轨道型号为QU120,起重机工作类型为轻级(提升机构及电气设备为中级)。单根主梁重约42t,桥机安装时最重单元件≤42t ,单台桥机总重264t。500kv GIS 室桥机跨度为15.5m,起重机轨道型号为24kg/m。
8.4.2 施工准备
1) 技术准备
安装前收集桥机施工设计图纸,准备相关的施工标准、规程和规范。为保证桥机安装施工质量优良,施工前由技术主管工程师组织编写施工措施报监理人审批;对参加施工的全体人员进行技术交底,使每个人都掌握桥机安装的过程、方法及质量要求。
开箱检查桥机的出厂合格证书和相关试验报告,根据设备到货清单对桥机零部件进行清点,经各方代表检查签字认可后进行安装。
2) 施工设备准备
为保证安装进度和施工质量,配备桥机安装的主要施工设备及工器具。设备和工器具由专人管理,且工具房安置在安装场地旁边。租赁桥机试验铸铁块300t,工地设计制作混凝土试验块170t、桥机试验吊架35t 和吊具。
3) 场地准备
安装前清理安装现场,安装场的沟槽加盖;轨道埋设部位的混凝土表面凿毛并冲洗干净。
4)施工人员准备。
8.4.3 桥机安装
1)桥机安装程序见下框图
轨道安装、二期混凝土浇注
行走台车安装
主梁吊装端梁吊装
桥梁组合、铆焊
小车清扫、拼装组合、检查
起升机构安装调整
电气传动部分接线
滑轮、钢丝绳、卷筒联接
主、副钩联接
桥机试验
主梁、端梁清扫检查
电气部分立盘配线
行走机构安装调整
10电动葫芦安装
司机室滑线检修平台大小车扶梯、拦杆安装
电源引入部分安装
辅助部分安装(起升高度限制机构、缓冲器、并车装置等)
桥机安装程序框图
2) 桥机轨道安装
①准备工作
根据图纸对轨道进行下料、标识、检查、矫正。
设置轨道中心、高程,并拉好钢琴线。检查已预埋好的轨道基础螺栓与轨道中心线距离偏差小于±2 mm,超过要求范围对基础螺栓进行处理,合格后方可安装轨道。
② 轨道安装
在安装间将轨道用50t 汽车吊吊到悬壁梁上,用自制工具将轨道运输到位。根据已设置的轨道中心线及高程将轨道垫板套入预埋螺栓,根据所设置的高程点利用水准仪将各垫板找平并用螺帽压紧(螺栓应露出2-4 扣);将轨道吊上垫板并用轨道压板压紧。
③ 轨道检查
轨道的实际中心线的偏差小于3 mm,轨道的实际中心线对安装基准线的水平位置偏差小于5mm,同一断面两轨道的标高相对差小于10mm。轨道顶面基准点的标高相对于设计标高偏差小于±10mm,纵向倾斜度不大于1/1000。
两平行轨道的接头位置应错开,错开距离不能等于桥机前后车轮的基距;轨道接头用鱼尾板连接,接头左、右、上三面的错位均应小于1mm,接头间隙1~3mm;轨道接头用焊接时焊条应符合轨道母材的要求,焊后打磨光滑和平整。
轨道调整符合要求后,拧紧螺母并全面复查各螺栓无松动现象。
轨道上的车档宜在吊装桥机前安装好,同一跨端两条轨道上的车档与桥机缓冲器应接触良好。随时用水准仪对轨道进行精调直至合格后报请监理人验收。
3) 桥机安装
采用安装间布置一台100t 汽车吊和50t 汽车吊安装方案。桥机吊装示意图见附图8-17 、8-18根据桥机安装说明书要求,在厂房安装场布置50t 汽车吊一台,将1#桥机的行走台车吊装到桥机轨道上,用拉紧器调整行走台车,注意上、下游行走台车必须调整到同一截面固定。然后用100t 汽车吊将1#桥机右主梁吊到行走台车上与行走台车进行组装,组装后将右主梁向厂房右侧移动4 米,再吊端梁与桥机右主梁组装。随后吊装左主梁行走台车到桥机轨道上,用拉紧器调整行走台车,注意上、下游行走台车必须调整到同一截面固定。再将1#桥机左主梁吊到行走台车上与行走台车进行组装,并移动与端梁组装。组装时应将起重机跨度控制在制造厂装配图纸允许的偏差范围内。
③桥架组装完成后,按JB《通用桥式起重机技术条件》要求检查桥架的对角线长度差,测量小车轨距同一截面上小车轨道高低差,桥机跨度的相对差。上述尺寸在允许的偏差范围内,螺栓头、螺母与被连接件的接触应紧密,有预紧力要求的连接应按规定的预紧力进行预紧,螺栓与螺母拧紧后应露出2~5 个螺距,有锁紧要求的应按其技术要求锁紧。
④小车吊装
用50t 汽车吊一台,将小车部件吊到位进行组装,报请监理人验收(小车分部件到货,单件最重单元18t)。
5)附件及滑线安装
操作室及桥机其它附件在小车吊装完成后用50t 汽车吊进行吊装。滑线支架的制作、安装符合设计图纸的要求。滑线吊挂夹、固定卡、连接盒的安装牢固可靠,集电器与滑线接触良好。安装后根据制造厂的要求先进行电气安装检查试验和调试。
6)两台桥机安装方法一样。
8.4.4 桥机试验
桥机试验装置,试块吊架自制(~35t),试验起重吊绳采用巨力集团生产的钢丝环型吊绳φ120×13M×4 件,试验最大重量500t(租赁300t 铸铁试块,自制170t 砼试块)。
①试验前检查
根据《起重机试验规范和程序》要求,桥机安装完毕进行常规检查包括车轮、大梁等几何尺寸的检查;大梁无载挠度的测量;在制动器松开情况下用手转动电动机的联轴器、减速器、齿轮组及卷筒等均运转灵活轻松、无卡阻现象。
检查电气系统、安全联锁装置、制动器、控制器、照明和信号系统等安装符合要求,动作灵敏、准确。
检查钢丝绳端的固定及其在吊钩、取物装置、滑轮组和卷筒上的缠绕是否正确、可靠。
检查各润滑点和减速器所加的油、脂的性能、规格和数量是否符合设备技术文件的规定。
② 空载试验
空载试验包括对起吊、小车行走、大车行走三个方向的速度制动等进行试验,并测量电动机的工作电流。
操作大、小车行走开关使车沿轨道行走三次,检查以下项目:
运行机构启动或停止时主动车轮不应有明显打滑,起动和制动正常可靠,限位开关动作正确;
操作方向与起重机构运转方向一致;
分别开动各机构的电动机,其运转正常,三相电流平衡;各制动器能准确、及时的动作,各限位开关及安全装置动作准确、可靠;
大小车在行走时,滑块沿滑线动作平稳,不应有卡阻、跳动及严重冒火现象;
所有机械部件运转时,均不应有冲击声和其他异常声音;机构运行平稳,无异常现象;
所有齿轮和轴承有良好的润滑,轴承温度不得超过65℃;
检查车轮踏面和轨道接触印痕,是否偏向外侧;试运行有无啃轨现象。
空钩升降时操作提升开关使空钩上升、下降三次,此时起升机构限位开关的动作准确可靠,同时检查下列项目:
操作提升开关与实际升、降方向是否一致;
升降电动机的空载工作电流平稳,三相电流平衡;
电气设备无异常发热现象;
所有机械部件运转时,均不应有冲击声和其他异常声音;
开式齿轮啮合均匀;
起重机驾驶室内噪音小于80dB。
③ 静载试验
在空载试验正常的情况下,将小车开到主梁中部进行静负荷试验。
---- 50%额定负荷(200t)、75%额定负荷试验(300t)检查以下项目:
水工、机械观测组记录好各观测点的初始值;
起动吊车将重物提升至离地面150mm 停止,停留时间约10 分钟;
停稳后水工和机械组记录该荷重下的各项数据;
起吊时电气组测量电源电压和电动机的工作电流。
---- 100%额定负荷试验(400t)
方法同75%额定负荷试验。
---- 125%额定负荷试验(500t)
在做完110%额定负荷的动负荷试验后进行,方法同75%额定负荷试验。将重物以1m/min 的速度吊起,离地面100~150mm 时停下,停留时间不小于10min;试验期间进行必要的数据观测。静负荷试验大梁的挠度应符合规范的要求。
④ 动载试验
---- 大车动载试验
100%额定负荷(400t)的动负荷试验基本上与75%额定负荷试验相同,但在向厂房另一方向行驶时小车在跨端,使大车轮承受最大轮压。当到达某一测量断面后将小车移至另一跨端,继续前行直到完成各断面的测量。
在返回安装间途中的任一断面停下,以快速和漫速两个速度让重物尽可能下降,然后提升。在试验期间检查所有行走机构的运行和制动,保护和润滑情况。
测量大车电动机的工作电流和电源电压。
---- 小车动载试验(安装间进行)。
小车进行1.1 倍(440t)额定负荷的动载试验,试验时观察小车行走机构和制动、保护和润滑等情况。
测量小车电动机的工作电流和电源电压。
⑤二台桥机联动试验
通过联动试验可以检查桥机的制造质量和安装质量,从而对厂家提出的性能保证进行验证,为满足工作要求。二台桥机要进行联动试验,验证联动时机诫部份和电气操作的正确。试验合格报请有关部门许可后才可投入正常运行。
8.4.5 安全措施
1) 桥机安装属高空作业,吊装前编制详细大件吊装措施,严格按吊装方案进行吊装。
2) 高空组装位置需搭设有利于人工操作的工作平台,高空作业使用的各种器具必须用带子系好;高空作业人员系好安全带,安装间及工作平台应有足够的照明。
3) 施工人员必须戴安全帽进入施工现场,整个吊装过程必须由专人统一指挥。
4) 大件吊装前在地面先做试吊,吊离地面100mm 左右,对起重机状况及各捆绑点的均匀受力状况进行仔细检查,确认无异常情况后进行正式吊装。
5) 整个吊装过程注意安全,号令统一,严防任何安全事故发生。
8.4.6 GIS 起重设备安装
按设计图纸要求位置安装其起重设备,安装试验方法参考上述方法,用50t 汽车吊吊装。
8.5 电气一次设备及装置安装
8.5.1 500kV 主变压器安装
8.5.1.1 主变简介
三板溪电站发电机与变压器组设计采用联合单元接线,发电机出口装设发电机断路器,发电机和主变压器间用离相封闭母线连接,主变压器通过油/SF6 套管和管母线GIB 直接与500kV GIS 连接。4 台套500kV 主变压器安装在主变洞高程为328.20m 的主变压器层。变压器型号:SSP-290000/550(三相双线圈),额定容量:290MVA,电压比:
550/15.75kV,冷却方式:OFWF(强油循环水冷),联接组标号:YN,D11,短路阻抗:14%,中心点直接接地,套管带CT,油重约35t,充氮运输重:约180t,总重约220t。主变压器安装设备主要包括以下内容:
⑴主变压器本体及其辅助设备安装,包括冷却器、套管、本体测温系统、保护设备、自动化元件等;
⑵主变压器保护控制设备安装,包括主变保护屏,主变冷却系统控制箱,主变控制箱和状态监测装置等;
⑶主变压器轨道安装。
8.5.1.2 主变轨道安装
1) 施工措施及质量工艺要求
① 施工程序见下框图
准备工作
轨道埋件安装
二期混凝土浇灌
轨道安装调整安装
验收、移交
安装、检查记录及竣工图纸、资料审查
主变轨道校正
轨道施工程序框图
② 安装措施及工艺质量要求
现场测量放线:根据监理工程师提供的基准点和主变安装高程和中心确定轨道的安装高程和中心线。先焊接基础螺栓,然后进行轨道垫板安装。
检查、核对轨道材质证明及其外形等必须符合设计和规范规定。
在现场用型钢和钢板搭设校正平台,对轨道进行外形检测和校正,其校正方法可用轨道校直机或自制轨道校正架,用油压机进行校正。
在每根轨道的两端用型钢制作一个门型架,用膨胀螺栓将其固定在混凝土地面上,然后将高程和中心用洋冲标在小门型支架上,供安装和复测用。
根据轨道的实际尺寸确定基础螺栓的安装高程和垫板安装高程,先焊接基础螺栓,然后进行垫板安装,用调节螺帽调整高程,用水平仪监测每块垫板高程,使其水平和中心满足设计和规范要求。
将经过校直的轨道按设计图吊装就位,装上压板,用压板和撬棍进行调整,最后用力矩搬手拧紧螺丝,用水平仪、钢琴线进行监测,安装完毕用全站仪进行复测,轨道接头间隙要符合设计和规范要求,两轨道接缝位置应按设计要求错开,不能在同一断面。按设计要求进行轨道接地安装。
轨道安装调整完毕后用全站仪等工具进行全面校核,并作好记录,报监理工程师检查确认后进行二期混凝土回填。二期混凝土回填之后再次进行复测工作。
主变轨道安装可与同段的500kV 主变埋件等预埋工作同时进行。
2) 500kV 出线平台并联电抗器轨道安装的施工方案参照进行。
8.5.1.3 主变压器安装
1) 施工准备
施工准备包括工器具准备,施工材料及临时设施材料准备,进行正式安装前保证安装现场的清洁卫生和防潮湿、防尘、防火等要求。
施工前编写施工技术措施和施工进度计划报工程师审批,熟悉施工图纸及安装使用说明书,并对安装人员和相关人员进行技术交底;
结合油/SF6 高压气管母线的安装位置,确定主变的最终安装位置,并在轨道上做出标记。
按照施工技术措施要求将主变压器运输就位安装所需的设备按现场条件布置在合适位置(见图8-19),将牵引卷扬机布置在主变廊道顶端适当位置,利用土建预埋锚钩安装导向滑轮(根据需要可在其他位置安装导向滑轮)。主变就位后将空气干燥机、真空滤油机及橡胶油袋等布置在适当位置。
2) 主变压器安装程序见下框图
安装准备
变压器到货检查、验收
卸车、运输、就位
检查氮气压力、残油分析绝缘判断
内检
冷却器管阀门安装
变压器抽真空、注油
热油循环
绝缘油试验
储油柜等附件安装
套管安装
冷却器及油管线安装
变压器抽真空、注油
木体热油循环
冷却器注油
冷却器热油循环
补油静置密封试验
中性点设备安装
绝缘油试验
电气试验
接地补漆现场清理检
试运行
竣工资料审查
验收
电缆架安装电缆敷设连接
控制柜及端子箱安装
套管试验
干燥空气发生装置形成
轨道中心高程复查划线
附件吊装设备准备
油处理系统形成
主变压器安装程序框图
3) 主变运输就位和安装调整
① 主变压器运抵厂房安装间后,利用主厂房桥机卸车,吊点必须按厂家吊装标记进行,吊绳长度一致,受力均匀,所采用夹角不大于300。当变压器底部高度降至离地适当高度时,将主变方向转至设计安装方向,安装主变滚轮,安装好后将主变徐徐降落在轨道上。
② 对变压器进行检查,主要查看外观是否完好、有无机械损伤;氮气表压力是否在规定范围内;3 维碰撞记录仪不应超过3g(g 为重力加速度),检查完按专用表格填写记录。
③ 利用卷扬机和导向滑轮组将变压器拖动前进,通过动滑轮组将牵引速度控制在2m/min 以内,牵引点按制造厂的标记进行。当变压器运至变压器廊道与交通洞交叉处时,用4 台100t 的油压千斤顶将变压器顶起,改变滚轮的方向及变压器牵引点,在顶起过程中,在每一千斤顶旁各放一个钢制支墩,用不同厚度的钢垫块或方木跟随主变压器的起落调整支墩高度,作为保护措施。操作时尽量使4 个千斤顶的升降速度一致,保证变压器平稳垂直升降。
④ 用同样的方法将变压器从主变廊道运进变压器室并最终将变压器拖至安装位置。按预先测量的标记进行就位,并用固定器进行固定。
4) 抽真空、注热油和器身加热
排氮前将变压器残油通过真空滤油机排入预先准备好的油罐。排氮前新油已经过滤检验为合格油。按下图接好排氮注油管路,然后开启真空泵进行排氮,当变压器油箱真空度达到80~100kPa(或厂家规定值)稳定后,即可开启注油阀门用真空滤油机将合格新油从变压器下部注入变压器油箱内,当油位超过铁芯100mm 时,按厂家规定时间保持真空,然后继续从变压器下部缓缓注油至变压器油箱顶部并及时拧紧排氮气阀。主变压器真空注油设备连接见下图。

主变压器真空注油设备连接图
5) 变压器内检
① 内检前为保证变压器不受潮气浸入,应进行热油循环,以提高变压器自身温度,一般比环境温度高10℃左右。热油循环用真空滤油设备进行。
检查选择在气温大于0℃,器身温度高于环境温度10℃以上,相对湿度不大于75%情况下进行。尽量缩短检查时间,防止绝缘受潮,按规定不宜超过16 小时。
② 按下图接好油、气系统管路,用真空滤油机将变压器油箱内的油排至净油罐内。放油时用空气干燥机以0.8~2.5m3/min 的流量向变压器油箱内注入干燥空气,内检过程中应以0.2~0.3m3/min 的流量向变压器内输入干燥空气。主变内检时干燥空气发生器连接见下图。

主变内检时干燥空气发生器连接图
③ 按国标和厂家安装说明书要求进行内检,进入油箱内的人员一般以3~4 人为宜,须穿带清洁的专用工作服,带入的专用工具必须全部登记,内检完毕要进行核对,防止遗留在箱内,检查结果和处理项目一律按要求记入专用记录表,并由参检人员签字。
④ 内检过程中同时完成升高座、套管等附件安装以及引线的连接。内检完后,清理油箱内部杂物,用合格变压器油进行冲洗,把底部残油排尽,最后封闭进人孔。
6) 附件安装
严格按照制造厂安装使用说明书进行升高座、套管、储油柜、冷却器、压力释放装置阀、气体继电器及有载调压装置等附件安装。
安装前要先完成中性点套管电流互感器试验,互感器出线端子板绝缘、密封良好,无渗漏现象。电流互感器和中性点套管的中心应一致。安装时要对法兰面、密封垫清扫干净,涂上密封胶。
套管运到现场后,按规程要求进行试验合格后。用专用起吊工具将其竖立在套管架上,用干净白布将套管擦干净,按厂家要求进行安装,注意各密封处的处理要仔细,按安装说明书进行引出线的连接。
冷却器安装前,按厂家规定压力对冷却器进行严密性检查,合格后将冷却器运到现场,用合格油进行循环冲洗,排尽残油,用专用的起吊设备进行吊装,安装完毕后立即注满合格油。
储油柜与导油、导气管吊装时,先装支架,然后吊装储油柜,按厂家连管图进行导气短管安装和连接。气体继电器安装前要先进行轻、重瓦斯检查调整试验,安装时瓦斯继电器上的箭头应指向储油柜。油位表动作正确,并与真实油位一致,信号接点位置正确、绝缘良好。
根据厂家说明书安装压力释放装置,压力释放装置安装前要进行检查试验合格后才能进行安装。
7) 真空注油
按制造厂家说明书和规程规定对变压器抽真空,注意将安全气道、瓦斯继电器和连接短管、储油柜等隔离。真空度达到规定值后保持24小时以上。按真空注油系统示意图接好管路,真空状态下注油。注油从变压器下部进油阀缓慢注入,一般不大于100L/min,距箱顶200mm时停止注油。注油后按厂家要求时间保持真空度。
真空注油完毕后,进行热油循环,热油循环时间大于48 小时,热油循环完毕后由变压器下部取油样进行检验,其结果应达到规程规定。
热油循环结束后,通过真空滤油机继续补充合格油至储油柜油位计指示略高于正常油位,补油过程中注意放气。补油完毕,进行静置,静置时间大于72 小时,静置后应打开放气塞将变压器内部残余气体排尽。
变压器安装完毕后,应在储气柜上用气压或油压进行整体密封试验,其压力为油箱盖上承受0.03MPa 压力。试验持续时间24 小时,无渗漏。
按厂家说明及设计图纸进行中性点设备、控制盘柜和电缆等安装、接线和调试工作。
8) 现场试验
①现场试验按合同和国家有关规程规范要求进行试验,主要试验项目如下:(不限于)变压器绕组直流电阻测量;
主变绝缘电阻和吸收比测量;
主变压器变比测量;
主变压器接线组别检查;
绝缘油试验;
中性点CT 试验;
主变和套管介质损失角测量;
主变直流泄漏试验;
交流耐压试验;
主变局放试验;
主变冲击试验;
合同条款和制造厂规定的其它试验项目检查。
② 局放试验条件
变压器及全部附件均安装完毕,高低压、中性点各侧引线均断开。
变压器注油后应静置72 小时,并多次排气。
变压器油试验已合格。
变压器各项常规试验均已完成并合格。
③ 局放试验内容及方法
试验接线如下:以A 相为例,分接开关置于“Ⅰ”档。根据主变电容量,选择试验电源容量,电源由单独的变压器供电。见下图。

局放试验原理接线图
8.5.2 500kVGIS 设备安装
8.5.2.1 500kVGIS 简介
500kV 管母线(GIB)和500kV 户内全封闭组合电器(GIS)分别安装在主变洞高程为338.20mGIB 层和高程为343.20m 的GIS 室。GIB 和GIS设备额定电压:550kV,额定电流:2000A,断路器额定断开电流:40kA,热稳定电流:40kA(3s),额定峰值电流:100kA。500kV GIS 设备及其
辅助设备安装主要包括以下内容:
1) 2 个进线间隔,规格500kV,2000A;1 个出线间隔,规格500kV,2000A;1 个500kV PT 和避雷器间隔;4 个500kV 隔离开关、CT 间隔;
2) 500kV SF6 管线350m,包括导体、绝缘子、伸缩节、三通、弯管和外壳等;
3) 现地控制柜4 面;
4) SF6/500kV 电缆连接元件3 相套;SF6/500kV 变压器连接元件12 相套;
5) 辅助设备1 套,包括空气压缩系统,各部分之间的连接管道与电缆,操动机构、监视设备等的安装。
8.5.2.2 施工措施及工艺质量要求
1) 安装程序见下框图
场地清扫
设备进场开箱、检查
中心水平测量基础安装
基础支架安装
基准间隔进行安装
主母线连接安装
以基准间隔为准向两边扩展安装其他间隔
支母线连接(包括CT )
调换吸湿剂
SF6气体管路安装
空压机及其管路系统安装
抽真空、检漏、充SF6气体
调试检查
系统整体耐压试验
电缆终端连接
最终检查\补漆
空压机电气控制回路安装
二次盘柜安装、电缆敷设埋线
接地系统安装
竣工资料整理移交
验收
GIS 开关站设备安装程序框图
2) 施工措施
安装前应检测环境条件,含尘量不得超过0.1~0.2mg/m3,保证安装现场相对湿度不大于80%,必要时装设除湿机进行除湿,场地清扫用吸尘器,保持室内清洁。
依据测量控制基准,根据设计图纸和制造厂说明书,以变压器高压套管中心、高程为基准进行测量放线,经反复校核达到厂家技术要求无误后方可进行安装。
按照安装程序及厂家设备编号顺序运进设备。用汽车将GIS 设备运至主变廊道,通过管线层和GIS 室地面吊物孔将设备吊到GIS 室和管线层,GIS 室内设备用室内桥机吊至各相应安装位置。
现场开箱检验,设备外包装应完好无损,设备和支架外观涂装完好,无脱落、锈蚀和机械损伤,内部组件接口密封良好,充气运输的组件压力正常,备品备件和各零部件专用工具、装箱清单、说明书及图纸资料齐全。
根据设计图和安装程序,选择中间间隔作为基准间隔首先进行安装,母线安装时,注意密封槽一定要光滑,无毛刺。用力拉伸密封圈检查其弹性应正常、无裂纹,母线导体安装前检查接头及绝缘子,其管内表面应清洁。基准间隔安装完后向两边延伸安装其他间隔。各间隔安装完毕后,进行空气压缩系统安装和SF6 气体管路系统安装。
更换吸附剂必须在空气湿度小于90%的条件下进行,从密封装置中取出到装入设备的时间不超过2 小时,且装入后要尽快抽真空。
按厂家技术要求分批进行隔室抽真空、检漏和SF6 气体充注。充气前进行气体含水量检查,充气设备应干净无水无污,抽真空时防止真空泵突然停止或因误操作而引起的倒灌事故。对已在工厂充过SF6气体的运输单元,不需再进行抽真空和检漏,只需补充SF6 气体到规定压力即可。
8.5.2.3 设备检查与试验
按国家规程规范和合同要求进行管型母线和GIS 设备的电气试验,其主要有以下试验项目:
绝缘电阻测量;
GIB 和GIS 整体耐压试验;
直流泄漏试验;
互感器介质损失角测量;
冲击试验;
操作试验;
避雷器电导电流及工频放电电压试验;
相位检查;
合同条款和制造厂规定的其它试验项目检查。
8.5.3 500kV 挤包绝缘电缆敷设
8.5.3.1 500kV 挤包绝缘电缆工程简介
三板溪电站500kV 挤包绝缘电缆及其辅助设备安装主要包括以下内容:
500kV 挤包绝缘电缆及其辅助设备敷设安装。高压电缆型式:
XLPE,额定电压(U0/Un):300/550kV,最大输送容量:1150MW,高压电缆(一回线)3 根,总长度约1200m,电缆弯曲半径约3m,辅助设备包括:高压电缆支架、电缆卡等采购、制作、安装; 1200m 接地回流线安装;接地连接箱、过电压保护器、护层保护器1 套;监视系统1套;500kV 挤包绝缘电缆终端安装,包括户内SF6 终端(GIS 侧)3 套,户外空气终端(出线平台侧)3 套,及电缆终端支架制作安装等。
8.5.3.2 施工步骤与注意事项
高压电缆的施工风险较大、影响安全的因素较多,因此必须准备充分、组织得当。由于施工线路较长,因而通讯联络十分重要,要作到统一指挥、统一行动,确保万无一失。
1) 施工准备:
熟悉设计图纸和资料,对施工人员进行技术交底和安全学习,充分考虑运输、搬运和起重过程中的安全防范措施;组织人员沿高压电缆安装线路进行检查,其土建工程已完工;沿电缆线路安装照明设施,保证安装照明需要;沿电缆路径安装电话线路和足够数量的保证施工用的电话;准备一施工用电电源,其容量能足以保证电缆放线机和其他施工设备的用电需要;人员分工明确,职责分明,对电缆路径上重要位置和转弯处派专人负责。
2) 施工程序
电缆的施工程序见下框图:
安装固定电缆用支架和临时电缆固定设施
安装电缆终端支架
安装电缆盘支架和斜面支架
沿电缆敷设路径水平段安装滚轮、保护管、牵引机,竖井安装输送机和保护管,在斜面支架上安装滚轮
安装牵引电缆用卷扬机
在每层平台安装安全网
在电缆盘支架上安装电缆盘刹车
全线联动试车
牵引钢丝绳与电缆头牵引连接
电缆敷设 水平段用牵引机敷设电缆,竖井用牵引机制动敷设电缆
电缆敷设结束后,由下向上将电缆从牵引机中取出,用电缆校直器,按照设计校正电缆成形
测量护层绝缘
每相电缆敷设好后固定牢固,最后安装回流导线
3 相电缆敷设结束,移去敷设用牵引机及脚手架,并清理场地
调试与试验
500kV 高压电缆安装程序框图
3) 施工注意事项
敷设方法:主要采用履带式牵引机敷设。电缆刚开始敷设时用卷扬机导向牵引电缆线头,在进入履带式牵引机控制范围后使用牵引机敷设,控制敷设速度,并使电缆端部呈直线状前进(见图8-20)。
制动措施:电缆盘采用盘边刹车(见图8-21),每台牵引机有制动装置。
固定顺序:电缆敷设完毕后,由下部弯曲处(下R)向两侧固定,敷设当天力争完成竖井中30%-50%电缆的永久固定,以防电缆向下自行滑落。
安装敷设所需设备:水平段:每隔1.5 米放置一个滚轮,并按技术说明书安装牵引机。竖井段:每层竖井平台开孔处下设置安全网,并将牵引机及支架固定在平台上。
电缆敷设技术措施
同步敷设:敷设时,现场统一指挥,同步敷设。
牵引电缆:用卷扬机将电缆从电缆盘上拉出,引入首台牵引机,调节侧压力夹紧电缆,用力矩扳手夹紧牵引机履带,同步启动卷扬机和牵引机输送电缆,依次进入第二台、第三台及后续牵引机。
通过上部弯曲(上R)及竖井:牵引头经上R 至竖井,电缆经过上R 时需设专人监视。
竖井部分:进入竖井后,电缆端部牵引力应逐步减少,电缆每进入一台牵引机,调节侧压力夹紧电缆后,启动牵引机。放线过程中严格控制电缆下降速度,如有异常,立即停止,电缆盘应同步制动。
牵引头到达制作终端所需预定长度后,需多拉一段长度,满足水平廊道和竖井电缆成形校正的需要。
电缆牵引完毕后锚定措施:
盘边刹车制动,水平廊道和竖井采用牵引机制动。
电缆校正成形及卡件安装自下R 部向上安装电缆卡件:各段依次松开输送机,校正电缆成形,将电缆固定安装在支架上并用卡件压紧,在此作业过程中电缆应用链条葫芦临时固定电缆及校正成形。在水平廊道段,用木垫块及电缆校直器调整电缆成形,用绳子临时绑扎,全部校正后装保护罩。
8.5.3.3 试验检查
500kV 高压电缆主要有以下试验项目:绝缘电阻测量;交流耐压试验;直流泄漏试验;冲击试验;相位检查以及国家规程规范、合同条款和制造厂要求的其它试验项目。
交流耐压试验方法
根据厂家提供的资料,精确计算电源容量,选择试验电源容量和谐振电抗器参数。
试验电压频率范围为30—300 HZ。试验前计算谐振频率,估算负载电流,按实际情况校核电容分压器的分压比。
试验接线方法见下图(8.5.3-1)

8.5.4 500kV 出线设备安装
8.5.4.1 500kV 出线设备简介
500kV 出线设备安装在出线平台,出线平台分2 层布置,其中第一层高程为480.0m 安装500kV 出线并联电抗器,第二层高程为490.0m安装500kV 出线设备。500kV 设备安装主要内容包括:
3 台500kV氧化锌避雷器;3 台500kV 电容式电压互感器;3 台500kV阻波器;3 台500kV 结合滤波器;1 组500kV 隔离开关;3 台500kV 出线并联电抗器,包括中性点小电抗器、避雷器、套管、250m 轨道安装等;3 个500kV SF6/空气套管端;12m 单相500kV SF6 管母线,包括隔离开关、接地开关、导体、绝缘子、伸缩节、三通、弯管和外壳等;1回500kV 设备线夹、软母线等;1 套500kV 出线塔架,立柱采用薄壁离心钢管混凝土电杆;6 串500kV 导线绝缘子串,包括金具;2 串避雷线绝缘子串;1 个电压互感器箱;500kV 设备支架安装(采用薄壁离心钢管混凝土电杆)。
8.5.4.2 施工措施及工艺质量要求
1) 安装程序见下框图(8.5.4-1)
基础、支架及轨道安装
设备运输、现场开箱检查
设备吊装、找正、固定
绝缘子串检查、试验、挂装一次拉线
一次拉线接地系统安装
二次电缆接线
电气试验
验收
500kV 出线场设备安装程序框图(8.5.4-1)
2) 施工措施及质量工艺要求
对设备基础及支架进行检查,其中心、高程、垂直度及螺孔位置应符合设计图纸规定。
设备运输带外包装,装卸车吊点应按厂家标记进行,装车时要加固,防止倾倒和位移。
设备运到出线平台480.0m 高程,用50 吨吊车将设备吊到安装层开箱检查。开箱检查内容有:外包装是否完好、瓷件表面光滑、涂釉均匀、有无裂纹、砂眼、气泡和机械损伤,铁瓷接合牢固与否,配件齐全是否完好,厂家资料及装箱清单是否齐全等到。
检查合格后,用50 吨吊车将设备吊到相应位置进行调整和固定,电抗器则在检查合格后用吊车放到轨道上,用卷扬机拖运至安装位置进行安装。
避雷器安装时,一般铭牌应置于巡视时易看到的一侧,均压环应安装水平,放电记数器密封良好,动作可靠,接地可靠。
电容式电压互感器安装应根据厂家说明书要求进行安装。连接处接触面应除去氧化膜涂上导电复合脂,二次接线端子牢靠,标志清晰,绝缘良好。油位正常,油位指示器、放油阀和瓷套法兰连接处不得渗油。取油样试验合格,才能进行电气试验。
阻波器安装应考虑风压、地震及其它因素对支撑件的影响,应确保相相、相地间规定的电气安全距离和阻波器器材本体的安全运行。
一次拉线及跳线安装时,要按实际尺寸进行下料,导线不得有松股、扭曲、擦伤和断股等现象。按设计要求配备线夹和金具。引下线和跳线安装时要采取措施防止设备端子受到过大拉力。接头要涂导电复合脂。绝缘子串均应进行外观检查和清扫,经交流耐压试验合格后才能挂装。
出线塔架构件用载重汽车运到出线平台480.0m 高程的适当位置,用布置在此处的50 吨吊车将构件全部吊到490.0m 高程平台,组焊成整体后,用5 吨卷扬机和三角塔架(挂手拉葫芦)起吊立柱。先用三角塔架上的葫芦将立柱提起到一定角度,然后用卷扬机将其拉到安装位置。调整构架下端部中心与预埋基础板上的安装中心线对齐,检查构架立柱所在平面的垂直度偏差符合要求,然后把构架立柱与基础连接牢固,起吊安装方法见图8-22
安装完毕按规定进行电气试验,试验结果应与厂家出厂试验记录进行比较分析,并写出评语。最后按设计要求进行刷漆,刷漆前应清除污渍、锈斑,并对设备瓷件采取保护措施,防止污染。
8.5.4.3 设备检查与试验
1) 通用检查项目:
出线设备及辅助设备安装位置正确,固定牢靠,附件齐全,外表清洁;设备接地完好、牢靠;开关操作机构、闭锁装置动作灵活,位置指示正确;油漆完整,相色标志正确。
2) 电气试验检查项目:
直流电阻测量;绝缘电阻测量;开关操作试验;互感器介质损失角测量;并联电抗器直流泄漏试验、交流耐压试验、局部放电试验;
并联电抗器绕组变形测量;冲击试验;避雷器电导电流及工频放电电压试验;相位检查;合同条款和制造厂规定的其它试验项目检查。
8.5.5 发电机电压配电装置安装
8.5.5.1 工程概况
本电站发电机电压配电装置共有4 台套,主要包括以下设备:20kV限流熔断柜12 面(单相柜、包括SF6 负荷开关、电流互感器等);24kV
12kA 发电机断路器成套装置4 台(包括控制柜、操作柜、高支架等);
20kV 电压互感器柜12 面(单相柜);20kV 电压互感器、避雷器12面(单相柜);15.75kV 主回路、中性点回路离相封闭母线610m 及其附件(包括主母线、支持绝缘子、电流互感器、支架、吊架等);中性点成套设备4 套(包括:隔离开关、电流互感器、接地变压器);
15.75kV 分支回路离相封闭母线110m 及其附件(包括分支母线、支持绝缘子、电流互感器、支架、吊架等);母线测量系统4 套;母线防结露装置4 套;电流互感器端子箱3×4 面;母线洞钢平台48t(各种规格型钢)。
8.5.5.2 封闭母线安装
1) 安装程序
安装程序见下框图(8.5.5-1)
安装准备
测量放线
母线支架及施工平台安装
母线开箱检查与就位
母线对接与调整
母线焊接
短路板接地线安装
穿墙处安装
母线与相关设备的连接
密封板安装
母线耐压
设备清扫、喷漆
验 收
离相母线的安装程序框图(8.5.5-1)
2) 施工措施与工艺质量要求
① 测量放线
土建工程施工完毕验收合格,母线系统设备安装基础埋件已验收,按照施工图纸的要求进行测量放线工作。并标出用于测量高度和安装轴线的基准点及安装用的控制点。
用全站仪、水准仪、铅垂线和钢琴线测量发电机主引出线和主变压器低压侧套管的中心位置和高程是否符合图纸要求,根据母线中心高程,确定母线支座高程,确定并画出B 相的中心线。
② 设备运输
将发电机出口母线及设备运到现场,在安装间卸货,卸货后利用主厂房桥机吊运至相应机组段,从吊物孔吊至323.20 高程,再运到母线廊道,主变低压侧母线从主变廊道运入进行安装。母线搬运用2 台手动叉车运至安装位置,利用土建预埋的吊钩,用链子葫芦进行吊装。
③ 母线安装调整
封闭母线按分段、相序、编号、方向等标志进行安装布置,根据布置图将母线通过支吊钢梁及抱箍底座摆放在相应位置,并将土建或安装的误差按比例分配到各个纵向接口上。首先调整好封闭母线与发电机、发电机断路器、变压器连接处及封闭母线转角处的尺寸,然后调整其它的接口尺寸,完成封闭母线的安装布置。在每段母线安装就位之前必须对母线内部进行清扫、检查、瓷件表面光滑完好,螺栓紧固、间隙均匀,同心度符合厂家说明书要求。
调整相邻两母线间外壳中心线使之与规定的相间距离一致,误差小于±2mm。母线与设备之间的连接,纵向尺寸可调范围不超过+5~-10mm,外壳与设备端子罩法兰纵向尺寸可调量不超过±10mm。焊接连接纵向尺寸的允许误差:
母线导体纵向不超过±15mm;母线导体伸缩节,纵向尺寸不超过±15mm。调整母线导体与外壳的同心度,使其不超过±5mm。
④ 母线焊接
焊接工作必须按照厂家的焊接技术文件及国家或行业有关标准要求进行,由经过现场考试合格的焊工来承担,采用氩弧焊进行母线焊接。
焊接前对母线、外壳进行检查达到规范要求后方能焊接。焊接后焊缝表面外观检查达到规范要求,表面应无肉眼可见裂纹、凹陷、气孔、夹渣、咬边等缺陷,导体及外壳的焊缝截面应大于被焊金属截面的1.25 倍,焊缝宽度以大于坡口宽度2mm 为宜,未焊透深度不超过被焊母线厚度的5%,焊缝表面的凹陷、气孔、夹渣等缺陷的表面积总和不大于被焊金属断面的10%。
⑤ 设备安装及连接
封闭母线安装后即可进行与之相连的励磁变压器、负荷开关、高压厂用变压器、PT 柜等设备的安装和连接,设备安装按照厂家安装手册及国家有关规程规范进行。连接时检查接线端子接触面是否符合要求,螺栓连接面用清洁棉布蘸上丙酮清洗,涂敷一层导电复合脂。螺栓垫圈、螺母等紧固件,凡在紧固过程中有相互磨擦的地方应事先涂上中性凡士林油,用力矩扳手紧固,按制造厂规定的力矩进行紧固,紧固后用0.05mm 的塞尺检查,其塞进深度不大于厂家规定深度。
施工完毕经工程师检查后进行表面喷漆和相色标志。
⑥ 母线接地
母线接地系统的敷设必须按设计和厂家规定进行敷设。各接地点和接头连接方式,连接材料和接头工艺处理都必须严格按设计图和规程要求进行。接地线应做到横平、竖直、整齐、美观、接头可靠,系统连续、完整。按设计和规程规定进行刷漆和涂标志色。
8.5.5.3 发电机断路器安装
1) 安装程序见下框图(8.5.5-2)
施工准备
设备开箱检查
设备开箱检查
设备就位、调整、固定
母线连接
SF6气体检测、压力调整、补充
机械、电气性能试验
地线连接、清扫、涂漆
试运行
测量放线
基础埋件检查
验收
操作机构管路及电缆连接
竣工资料审查
发电机出口断路器安装程序框图(8.5.5-2)
2) 施工措施及质量工艺要求
① 施工准备
土建装修完毕,场地清扫干净,运输通道门,洞尺寸经校核能满足设备运输需要。
根据设计图和制造厂安装说明书及图纸,结合离相封闭主母线的中心、高程确定发电机断路器的安装中心和高程,在断路器基础上做出标记。
② 设备运输及开箱检查
断路器带外包装用汽车运入安装间再用桥机吊至相应机组段,用厂房吊车通过吊物孔将其吊到323.20m 发电机层,开箱检查合格后运到安装位置,通过母线廊道拱顶上的预埋锚钩用手拉葫芦将断路器吊至断路器安装基础上。
在现场开箱检查,包装应完好无损,无锈蚀和损伤变形;绝缘件应无变形、裂纹和剥落;瓷件表面应光滑,无裂纹;检查SF6 气体的部件,其压力值应符合厂家说明书的规定;设备的零件,备件及专用工具齐全,出厂证件和技术资料齐全。
③ 安装调整
发电机SF6 断路器一般由制造厂整体组装调试完毕,消弧室内充SF6 气体整体运输,一般在工地不允许拆卸,因此安装就位后,只需整体进行中心、水平、高程调整达到设计图纸要求即可。
进行母线与开关的连接和操作机构的管路,电缆和地线的连接;
进行断路SF6 气体的检测和压力调整及补气工作。进行断路器机械、电气性能试验,试验结果应满足厂家技术及国家规范要求。最后按设计要求进行喷漆和做相色标志。
8.5.5.4 发电机中性点设备安装
发电机中性点设备包括:中性点离相封闭母线,中性点电流互感器及隔离开关、消弧线圈等。
安装程序见下框图(8.5.5-3)
基础埋设
现场开箱检验
设备就位、调整、固定
电气试验检查
试运行、消缺
母线、电缆连接
验收
二次回路检查
竣工资料审查
发电机中性点设备安装程序框图(8.5.5-3)
2) 安装措施及工艺质量要求
土建工程基本完工,检查基础一期混凝土埋件、接地抽头及预留孔洞。按设计图纸和厂家说明书要求,根据发电机定子安装高程和中心进行测量放线,确定发电机中性点母线及设备的安装中心和高程。
设备用汽车运至安装间,用厂房桥机吊至各机组段,通过主厂房发电机层吊物孔吊至发电机出线层,用叉车运至安装位置。进行设备开箱检查验收。外包装应完好无损,设备外观完好、无划痕,连线头镀银层、二次线完好。
按设计布置图进行设备就位和中性点离相封闭母线安装(技术要求同主母线)及接头连接,最后检查安装的中心、高程、水平及垂直调至设计要求的误差范围内,用扭力扳手进行最后固定并记录。
按设计和说明书进行电缆和接地线连接。
8.5.5.5 现场试验和竣工验收
设备安装完毕后进行现场试验,试验按照制造厂的技术要求、国标GB8349-2000《金属封闭母线》和GBJ149-90 以及合同要求的项目进行。现场试验项目主要包括:淋水试验、绝缘电阻测量、工频耐压试验。
验收时应提供下列资料和文件:变更设计的证明文件;制造厂提供的产品说明书、试验记录、合格证件及安装图纸等技术文件;安装技术记录;电气试验记录;备品、备件及专用工具清单。
设备检查与试验项目
通用检查项目:设备本体安装位置正确,固定牢靠,附件齐全,外表清洁;设备接地完好、牢靠;断路器、开关操作机构、闭锁装置动作灵活,位置指示正确;设备油漆完整,相色标志正确。
电气试验检查项目:
相位检查;绝缘电阻测量;SF6 断路器气体、密封检查试验;断路器同期性检查;断路器、开关操作试验;断路器直流泄漏试验;交流耐压试验;避雷器电导电流及工频放电电压试验;设备冲击带电试验;合同条款和制造厂规定的其它试验项目检查。
8.6 电气二次部分
8.6.1 简介
本部分工程量根据招标文件工程量清单统计量为准,主要包括以下内容:
电缆架:总重约550 吨,首台机发电前计划完成工程量约为500吨。
低压电力电缆:100km,首台机发电前计划完成工程量约为80km。
二次电缆:180km,首台机发电前计划完成工程量约为130km。
10kV 开关柜:约35 面,首台机发电前全部完成。
400V 开关柜:约80 面,首台机发电前完成60 面。
15.75/10.5kV 厂用变压器:4 台,首台机发电前完成1 台。
10.5/0.4kV 厂用变压器:9 台,首台机发电前完成6 台。
机旁盘:每台机有约14 块,首台机发电前完成4#机旁盘。
励磁盘:每台机有6 块,首台机发电前完成4#机励磁盘。
调速器电气柜:每台机有1 块,首台机发电前完成1 块。
高、低压气机控制柜:各1 套共6 块,首台机发电前要完成。
检修排水泵控制系统:共4 个柜,首台机发电前要完成。
渗漏排水泵控制系统:共4 个柜,首台机发电前要完成。
直流系统:2 组220V 铅酸免维护蓄电池组,充电装置屏两套,逆变电源2 套,馈线屏2 面,事故照明切换柜1 个,首台机发电前全部完成。
计算机监控系统安装在首台机发电前基本全部完成。
火灾报警系统共7 套,首台机发电前至少完成4 套。
接地系统,4#机设备的接地及所有公用设备接地都必须在首台机发电前完成。
照明系统,按区域要求完成。
500kV 控制保护设备有约20 块盘,首台机发电前必须全部完成。
电气二次部分约三分之二的工程量要在首台机发电前完成,所以保证首台机按期发电是施工组织的重点,要保证第一台机按计划日期发电,一个科学的施工组织计划显得尤其重要。
电缆架安装、电力电缆敷设、高低压厂用电设备的安装在工程划分中属于电气一次部分,但根据施工实际,无法将这几部分与二次部分严格分开,所以也将这几部分内容归入了电气二次部分。
8.6.2 施工技术及工艺要求
8.6.2.1 接地系统安装
按土建工程进度埋设各部分的接地体,垂直接地体的距离至少为其长度的两倍,并根据设计要求确定接地体埋设深度。
根据设备布置图,引出接地抽头。
接地电阻的测量选择在干燥的晴天进行,并用两种以上方法进行测量。
测试方法、所用仪器、测量计划等在报监理工程师批准并在监理工程师在场的情况下进行测量,测量结果应满足设计要求。
8.6.2.2 电缆架安装
电缆架安装的合理与否,很大程度上决定了电缆敷设的美观与否,所以在电缆架安装前,首先对照设备布置图、电缆走向图、电缆架截面图及电缆架布置图,统筹考虑后确认电缆架容量、层数要能满足电缆敷设要求,如有问题,向监理工程师提出书面报告阐述理由及解决方案,并在得到监理工程师及设计院的通知后再进行相关部位的施工。
GIS 室、主变洞及母线洞电缆架安装时,将电缆架运至主变洞根据工作面情况就近卸车,堆放以不影响施工为原则,然后用人工抬到相应位置进行安装。
中控楼电缆架安装,则将电缆架运到安装间,用主厂房桥机吊至中控楼电缆夹层走道上,再用人工抬到相应位置进行安装。
主厂房电缆桥架安装时,电缆架运到安装间,再用主厂房桥机吊到相应位置。
电缆架安装,首先按厂家技术说明及设计图纸安装吊架,保证其水平度及垂直度满足设计及规范要求,沟内电缆架从底层开始组装,吊装的电缆架则从顶层开始组装,保证每层的水平及层间距离。
电缆架安装中,在电缆架层数有变化的接头处,设计详图不一定会考虑到所减少或增加的电缆架内电缆的电压等级,在施工前对这些
部位进行重点审核,确定具体的连接方案,如涉及到需要设计修改将向监理工程师报告并得到明确答复。
电缆架接地线安装与电缆架安装同时进行,按设计图纸要求固定,并符合规范的有关规定,对连接处、切口处进行喷锌处理。
电缆架固定牢固,各项要求达到设计及规范要求后进行防火隔板的铺设。每部分电缆架安装结束后,做好工程量及施工质量原始记录,提请监理工程师检查验收,为电缆敷设做好准备。
8.6.2.3 电缆敷设
首先做出每天的电缆敷设计划,检查电缆走向,所有涉及到的电缆架必须已经过验收,对需要清扫的部分进行清扫。
在做电缆敷设计划时,基本是从合理利用每盘电缆长度、保证电缆排列整齐美观、以及敷设效率尽量最优几方面进行考虑。为了提高敷设效率,至少制作四付电缆放线架。
连接到高低压厂用电室的电力电缆敷设时,将电缆盘放置地厂用电室内或过道上,由于电力电缆都较重,敷设时使用部分电缆敷设滚轮,人员组织也相对较集中,在敷设前明确每个施工人员的位置和责任,确保敷设质量。转弯处或有障碍物的地方,以及设备附近的地段,所敷设电缆容易受损伤或可能损伤已运行的电缆,将特别加强这些地方的人员分配,而且将采取措施保护可能受损伤的电缆。
计算机电缆较易受到损伤,所以安排在相应通道内大部分电缆敷设完成后再进行这些电缆的敷设。
连接到500kV 控制保护盘上的电缆,将电缆盘放置在GIS 室内进行敷设。
连接到机旁盘、励磁盘的电缆,将电缆盘在发电机层、母线层就近放置进行敷设。
为了保证电缆敷设质量,达到整体美观,每根电力电缆敷设到位后进行整理并用永久绑带或电缆卡进行固定,而每根控制电缆在敷设到位整理好后先用临时绑带固定,每天进行一次统一整理再用永久绑扎带或电缆卡进行固定,水平段用绑扎带,竖井段用电缆卡。
每敷设一根电缆均要认真填写电缆敷设记录表,每天进行一次统计并与敷设计划进行比较,及时验证施工进度计划,如果发生偏差则立即采取措施进行补救,确保按计划完成电缆敷设工程量。
电缆的标志用塑料电缆牌,用微电脑打印机打印标志内容,这样更醒目。
电缆敷设后,按设计及规范要求进行防火处理。
8.6.2.4 设备安装
1)基础安装
在土建施工面具备条件后,根据设备布置图纸,进行基础槽钢制作安装;成列盘柜的基础槽钢应一次制作、安装、调整及固定。
用经纬仪和水平仪检查其不直度及水平度、位置误差及不平行度,满足要求固定牢固后,用钢丝刷将槽钢表面清扫干净并涂刷防锈漆,再刷上与盘柜漆色一致的颜色或监理及业主要求的颜色。
2)设备安装
在设备安装前,对照设备订货图,校核安装通道的门、窗尺寸是否能满足设备的运输要求。
由于本部分设备到货较晚,公用系统及4#机设备安装时已敷设了部分电缆,所以在安装前要将电缆捆好放到电缆架上,设备安装好后再将电缆整理到位。
安装在主、副厂房的设备,运到安装间后,用主厂房桥机吊到安装位置附近进行开箱检查。
开箱检查内容为:设备的包装、外观、数量、规格、质量、厂家技术文件及资料、附件及备件。根据装箱清单及设计图纸检查核对,满足设备各项技术要求,设备表面无机械损伤及锈蚀,盘柜及柜内元器件外观完好无损伤,紧固件紧固无松动。检查后作详细的开箱记录,各方代表签字认可。
机旁盘可直接用桥机吊装就位进行调整固定。安装在其它位置的设备则利用叉车、滚筒配合或直接由人工运到安装位置。
安装在GIS 的设备,运到主变洞卸车,分别在安装高程就近位置开箱检查。再利用叉车及滚筒运到安装位置。
盘柜的整体调整用水平管、线锤、钢板尺等进行检查下列各项:
垂直度 <1.5mm/m
相邻两盘顶部 <2mm
成列盘顶部 <5mm
相邻两盘边 <1mm
成列盘面 <5mm
盘间接缝 <2mm
满足要求后,用螺栓将盘柜与基础槽钢固定牢固,并将盘柜及基础可靠接地,再用力矩扳手将盘间螺栓拧紧。
端子箱、操作箱及配电箱按设计要求安装,位置正确,牢固可靠,封闭良好,并检查其防潮、防尘效果。
设备安装好后,及时请监理工程师进行验收,以便进行下一道工序,即盘内电缆接线工作。
3)厂用变压器
全部连接螺栓必须用扭力扳手紧固,其力矩按厂家规定或按选用的螺栓规格确定。
母线槽安装前,特别注意检查变压器与母线槽的接口型式和尺寸。
冲击合闸试验时,要注意观察变压器有无异常现象和异常响声。
4)蓄电池安装
蓄电池开箱检查每个电池有无变形、损伤,将外观合格的电池由人工搬运到蓄电池室内。
按设计及厂家图纸将蓄电池放到电池架上,测量单个蓄电池端电压并与厂家技术要求相比较。
机械装配完毕,检查合格后,进行电气连接,将电池连成系统,并按厂家技术规定或设计值要求的紧固力矩值连接螺栓。
安装完毕后,进行全面清扫、检查并测量全部电池的原始参数(电压、温度及环境温度和系统绝缘)正常后进行充电工作。
5)照明器具安装
同一室内或场所成排安装的灯具,其中心线偏差不应大于5mm。
灯具固定牢靠,每个灯具固定用的螺钉或螺栓不少于两个。
同一室内安装的插座与插座及开关与开关高度差不大于5mm,并列安装的相同型号的插座与插座及开关与开关高度差不大于1mm,并列安装的拉线开关的相邻间距不小于20mm,并且保证它们的安装高度符合设计及规范要求值。
地线和零线的连接必须按设计和规程要求进行,技术交底时要使施工人员明白不把零线当地线,并保证灯座、外壳等非带电部分的接地完整、牢靠。
8.6.2.5 电缆接线
电缆接线工作的关键在于实现工艺标准化和统一化,所以在工作开始前编写作业指导书并提交监理工程师批准,根据批准的作业指导书对施工人员进行交底,确保所有有关施工人员按统一的工艺标准进行电缆的整理、固定、标识和接线,确保接线正确、工艺美观且统一。
20kV、10kV 电缆头制作时从剥切电缆开始连续操作直至完成,缩短绝缘暴露时间,剥切电缆时不损伤线芯和保留的绝缘层。
电缆终端采取措施加强绝缘、密封防潮、机械保护。
电缆连接牢固可靠,在铜排与接线鼻子间涂电力复合脂。
1kV 以下电力电缆及控制电缆头的制作将用热缩型或冷缩型。
电缆的屏蔽层按设计要求的接地方式予以接地。
电缆芯线和所配导线的端部均标明其回路编号,端子号及电缆号,
而且编号正确。
芯线标识材料用塑料套管,用线号印字机打印标识内容。
每个施工人员每天都如实填写电缆接线记录表,并统一交给班组技术员,以便掌握每天的实际完成情况,有利于目标控制。
8.6.2.6 现场试验
1)高压开关柜
用2500kV 的兆欧表测量绝缘拉杆的绝缘电阻,其电阻值不低于1200MΩ。
采用不小于100A 电流的回路电阻速测仪测量每相导电回路的电阻,其阻值不大于出厂试验值的120%为合格。
对开关柜进行绝缘耐压试验,试验电压和标准如表8.6-1
| 加压部位 | 试验电压 | 时间 | 结果 |
| 整体对地 | 27kV | 1min | 通过 |
| 相间 | 27kV | 1min | 通过 |
| 断口 | 42kV | 1min | 不发生贯穿性放电 |
开关柜进行绝缘耐压试验,试验电压和标准 表8.6-1
用开关机械特性测试仪,在断路器额定操作电压下测量断路器主触头分、合闸时间,实测数值应符合产品技术条件的规定。
测量断路器合闸时触头的弹跳时间。断路器合闸过程中触头接触后的弹跳时间,应小于2ms。
操作机构试验按表8.6-2 要求进行
操作机构试验 表8.6-2
| 操作类别 | 操作电压与额定电压比值(%) | 操作次数 |
| 合、分 | 110 | 3 |
| 合闸 | 85(80) | 3 |
| 分闸 | 65 | 3 |
| 合、分、重合 | 100 | 3 |
测量分、合闸线圈及合闸接触器线圈的绝缘电阻,不低于10MΩ,利用直流电阻速测仪测量的直流电阻应与产品的出厂试验值一致。
避雷器试验,测量绝缘电阻及泄漏电流,将结果与厂家技术要求及国家标准进行对比确定是否合格。
电流互感器和电压互感器的试验,测量绕组的绝缘电阻,进行绕组连同套管对外壳的交流耐压试验,根据要求进行互感器的励磁特性试验。
利用三相校表源进行柜表的校验。
开关柜试验,包括备自投试验、自动切换试验、操作联动试验。用2500V 兆欧表测量母线的绝缘电阻,10kV 母线支持绝缘子的绝缘电阻应不低于500MΩ。
测量母线接头处的接触电阻,结果与设计值进行比较来判断是否满足设计要求。
交流耐压试验:10kV 母线加压42kV,1min 无异常。
2)低压开关柜
低电压电气动作情况检查。
电压线圈的动作值检查。
低压电器采用的脱扣器的整定。
盘表的校验。
断路器的分合闸检查。
自动切换试验。
测量母线接头处的接触电阻,结果应满足设计要求。
交流耐压试验:400V 母线一般用2500V 兆欧表测量1min,无异常为合格。
3)厂用变压器
在各分接头的所有位置上测量绕组连同套管的直流电阻。相间测得值的相互差值应小于平均值的2%,线间测得值的相互差值应小于平均值的1%。试验结果与出厂实测数值比较,相应变化不应大于2%。
利用自动变比速测仪检查所有分接头的变比。测试结果应与制造厂铭牌数据吻合,且应符合变压比规律,变比的允许误差不应大于1%。
利用自动变比速测仪检查变压器的组别和极性,将结果与设计要求和铭牌上的符号相比较。
测量绕组连同套管的绝缘电阻,其结果与产品出厂试验值的70%比较以确定是否合格。
交流工频耐压试验,根据设计及规范要求确定试验电压及试验时间。
采用2500V 兆欧表测量与铁芯绝缘的各紧固件及铁芯接地线引出套管对外壳的绝缘电阻,持续时间为1min,应无闪络击穿现象。
在变压器的高压侧利用额定电压对变压器进行冲击合闸试验,进行5 次,每次间隔为5min,应无异常现象。
4)电缆
电力电缆绝缘电阻
直流耐压试验及泄漏电流测量
检查电缆线路的相位
二次电缆绝缘检查
5)计算机系统
机械和外观检查
电气绝缘检查
接线正确性检查、接地系统检查
各部分性能检查:主控级硬件安装及测试;主控级软件安装及测
试;现地控制单元硬件安装及测试;现地控制单元软件安装及测试。
功能检查和整体特性试验;
系统实时性测试;
重载状况下数据采集;
多层窗口画面实时调用;
共享文件调用;
系统可靠性检验;
重载状况下操作检验;
关键性故障检验;
系统高级应用软件功能试验;
自动发电控制;
自动电压控制;
安全稳定自动控制;
运行试验检查;
系统可用率试验;
按规定的统计校核时段,统计系统的无故障运行时间和故障停运时间,计算系统的可利用率。
6)保护系统
(1) 静态调试
接线正确性的校核,用二次回路通入1A 电流的方法来校核电流回路。
测量绝缘电阻及交流耐压试验时,拨出装有集成电路芯片的插件,插拨插件必须有专门措施,防止因人身静电损坏集成电路。交流回路均用1000V 兆欧表进行绝缘电阻测量,绝缘电阻不小于10ΜΩ;直流回路均用500V 兆欧表进行绝缘电阻测量,绝缘不小于10ΜΩ;交流耐压试验电压1000V/1min,在绝缘电阻为10ΜΩ以上时,可采用2500V兆欧表代替,试验持续时间为1min 无闪络现象。
有关保护CT 的伏安特性试验、CT 极性检查试验结果与出厂值相比较应基本一致,如相差太大,应查明原因。
(2) 线路保护、母线保护及自动装置设备:
检验固化的程序是否正确。
检验数据采集系统的精度和平衡度。
测定中间继电器,出口继电器起动值、返回值检验。
根据保护整定通知单和厂家相关技术资料,做继电保护装置整定试验。在做整定试验前,断开所有到断路器跳闸回路出口的连接,并解除到所有电压互感器、电流互感器的二次回路的接线。检查保护的电压、电流相别及极性是否一致,相互间闭锁关系是否与设计符合,动作信号是否正确。
继电保护系统与监控系统的传动试验。
相关保护出口跳闸断路器试验,线路保护跳闸试验由系统决定。
连续通电试验。
(3) 故障录波设备:
模拟量零漂、精度检查;
启动特性试验;
整组动作试验;
连续通电试验;
分析软件检查和测试;
故障测距试验;
设备说明书要求的其它试验。
试验项目完成后,出具调试试验报告并交监理工程师审查,签字认可。
(4) 分项设备的联合调试
线路及母线继电保护相关保护装置、故障录波设备随相应的发电单元进行机组启动试验、试运行,在联合调试中,相关保护的投切、试验,由电力系统决定,并考核运行装置。
7)控制、测量及信号装置
按照相关规程规范、厂家的技术文件进行调试试验,包括:
设备及回路的绝缘检查;
接线正确性检查;
控制功能检查;
配合机组起动试验的检查(公用设备),机组及电力设备等配套装
置控制系统;
与主设备联动试验(机组、电力配套设备控制);
其它要求的试验。
除48V 及以下回路外,进行交流耐压试验,应符合要求。
8)直流系统
(1) 进行绝缘电阻和绝缘强度试验,与厂家技术文件和规范要求作对比确定是否合格;
(2) 进行绝缘监测装置的试验,报警、监视功能及动作可靠性;
(3) 进行电池组容量试验:
首次充电和首次放电,做好计算以防止过充和过放。蓄电池充电时,定时检测蓄电池室的温度,保证室内空气畅通,严禁明火。
根据厂家技术说明书规定的时间或充电率进行充电;
在电池电压不小于规定值时终止首次放电,放电的容量经温度换算后应≥85%额定容量。新装电池采用10 小时放电率考核。如果第一次放电容量达到95%额定容量,则可进行浮充,如达不到,应再次循环充放。在第五次循环内应达到放电容量的95%C10。
(4) 进行稳压精度试验,稳流精度试验,纹波系数测量;
(5) 充电装置要进行浮充试验,均充试验,模拟故障试验,逆变试验;
(6) 还要进行负荷联络试验,噪声测量,冲击负荷试验;
合同及厂家要求做的其它试验项目。
现场试验应符合厂家技术文件及规范的相关要求。
绝缘监察装置和电池在线监测装置的性能应满足设计和厂家要求。
9)励磁系统
本系统的调试在厂家指导下进行,但至少包括以下内容:
系统部件的绝缘测定及介质电气强度试验;
自动励磁调节器各基本单元的静态特性试验以及总体特性试验;
系统顶值电压及电压响应时间的测定;
自动励磁调节器的电压整定范围试验;
手动控制单元调节范围试验;
起励和逆变灭磁试验;
发电机空载状态下10%阶跃响应试验;
在自动励磁调节器投入情况下测定发电机电压频率特性;
发电机在额定工况,空载及空载强励情况下的灭磁试验;
自动/手动自动切换试验;
两套自动调节通道相互切换试验;
在自动励磁调节器投入下测定发电机电压调差率;
最大励磁调节电流限制器试验;
磁励过电流限制器试验;
欠励磁限制器动作试验;
励磁变压器试验;
功率单元均流、均压试验;
噪音试验;
发电机空载及甩负荷试验;
冷却系统试验;
pss 试验;
励磁系统在额定运行方式下72h 连续试验。
10)火灾报警控制系统
线路检查测试是否有对地短路现象,并做好记录。
分区调试,并做好记录。
系统调试,并做好记录。
8.7 通信及工业电视系统
8.7.1 简介
某水电站的通信系统包括:载波通信、光纤通信和厂内通信。根据标书要求,本安装标只包括厂内通信设备的安装调试、开通以及与其它通信系统相关的协助、配合工作。
厂内通信主要设备安装的工作量为:通信电源安装一套;厂内生产调度管理交换机一套;通信电缆安装敷设 10000 米。
工业电视系统安装工作量包括:摄像头 60 个;主控级设备 1 套;
电缆 1 套。
8.7.2 通信及工业电视系统的工作内容
承但上述分项工程全部设备及装置性材料的工地卸车、开箱清点、保管、工地运输、安装、调试、以及与其它通信系统相关的协助、配合工作、试运行直至移交业主前的全部工作。
8.7.3 施工措施及工艺质量要求
8.7.3.1 安装流程图(8.7-1)
施工准备
安装运输及开箱检查、保管
设备基础制作
盘柜、摄像设备、用户话机安装
电缆接线
分部调试验收
系统调试验收
电缆敷设
电缆管道及盒、箱预埋
安装流程框图(8.7-1)
8.7.3.2 通信及工业电视系统预埋工程
主、副厂房及其它地方的通信管道、箱盒按设计要求的预埋工作配合土建工程进度由电气施工班组进行。所有预埋件的工艺及质量在符合设计要求及现行国家标准GB50258-96《电气装置安装工程1kV 及以下配线工程施工及验收规范》的规定的基础上,将特别注意以下几点:
配合土建施工时,充分掌握土建的结构和房间的布置以及装饰要求,特别要掌握楼板厚、墙厚、标高、梁和柱的截面、抹灰厚度等土建的基本数据,做到心中有数,并随时掌握土建工程进度,以避免遗漏预埋的项目。
开工前将预埋的金属管道进行调直、除锈、吹除,然后内外刷防锈漆一道,风干,送往工地。如采用电线管可不必刷漆,因为电线管出厂时已内外刷漆。
对送往现场的管材、盒、箱等材料,进行外观及质量检查,检查是否有裂纹、破口、开焊及明显的机械损伤。敷设的管路其规格型号应符合设计要求。
配合土建施工使用的主要图样,如设备平面部布置图、弱电系统平面布置图、配电系统图、电缆清册以及有关土建结构、建筑的图样,带到施工现场。
预埋好的管路将管口包扎严实,以免异物落入;进入箱、盒的管口先清除毛刺,敞口水平放置的管口做成喇叭口,并焊好接地螺钉。
随时摆正已下好的竖管及箱、盒,避免由土建工人或他人移位。
预设好的埋管、箱、盒在土建浇筑前及时请监理检查验收并倾听其意见,发现问题及时处理更正。
8.7.3.3 通信系统接地工程
通信及工业电视系统的接地网应在静电地板安装前按设计要求设置,并与接地体可靠连接。接地电阻一般应≤4Ω,如需与建筑物防雷接地、交流电源工作接地共用接地时,应≤1Ω,具体按设计要求确定。
其施工方法及工艺质量则参照有关规程及规范进行,在此不再赘述。
8.7.3.4 通信及工业电视系统电缆敷设
通信电缆(线)及电视电缆的敷设方法同常规电缆,其要求及工艺质量按GB50168-92 《电气装置安装工程电缆线路施工及验收规范》、YDJ38-85《市内电话线路工程施工及验收技术规范》及现行有关技术规范等的有关标准。还应注意以下几点:
电缆敷设前检查管、盒预埋的质量及数量,保证满足设计及规范要求。
通信电缆、电话线及电视电缆强度较小,施工中注意用力适中,防止断线;电话线及电视电缆不得有接点,所以距离较长者将在接线盒内进行连接。
通信电缆如采用特种电缆——铝包对称通信电缆,则在施工时应注意其特殊性(参考特种电缆的安装方法)。
通信室及中控室按设计要求将电缆及电话线敷设在静电地板下面,导线及电缆在地板下的敷设成束整齐排列。
接线前应测试电缆线芯或导线的绝缘电阻。
8.7.3.5 设备盘柜安装
厂内通信电源柜、生产调度管理交换机、工业电视主控级设备〔如:电源柜、直流(浮充)柜、报警控制台、UPS 电源、自动电话交换机磁带自动录像系统、视频放大器、视频自动切换开关、视频分配放大器、监视器〕等室内设备应安装在槽钢底座上,方法及要求同动力电路中柜体的安装;
盘柜的固定及接地应可靠,盘面漆层应完好、清洁、整齐;
盘内所装电器元件应齐全完好,安装位置应正确、固定牢固;
盘内接线应正确,连接可靠,标示齐全清晰,绝缘符合要求;
盘柜及电缆管道安装完毕后,应作好防火封堵;
检查测试的项目及指标参考GB50171-92 的要求。
8.7.3.6 工业电视系统安装其它注意事项
闭路电视设置方式示意图(8.7-2)
摄像头
视频放大器
监视器
75Ω开关
ON IN
。 。 。
OFF OUT
(a)
摄像头
视频分配放大器
监视器
75Ω开关
ON IN
。 。 。
OFF OUT
监视器
75Ω开关
ON IN
。 。 。
OFF OUT
监视器
75Ω开关
ON IN
。 。 。
OFF OUT
(b)
摄像头
摄像头
摄像头
视频自动切换器
监视器
75Ω开关
ON IN
。 。 。
OFF OUT
(c)
摄像头
摄像头
摄像头
视频自动切换器
监视器
75Ω开关
ON IN
。 。 。
OFF OUT
监视器
75Ω开关
ON IN
。 。 。
OFF OUT
监视器
75Ω开关
ON IN
。 。 。
OFF OUT
(d)
上图的设置方式中:(a)在一处监视一个目标;(b)在多处监视一个目标;(c)在一处监视多个目标;(d)在多处监视多个目标。
具体施工时,根据具体的设计图纸进行安装。
2) 工业电视系统安装注意事项
电缆电视系统的安装必须符合施工及验收规范,标准号GB50198-94 及其它标准,如GB 50168-92,GB 50258-96 等。还应注意:
摄像头的安装应直对被监视物或出入口的附近,广角镜头,应设假镜头,隐蔽安装。
装有遥控装置的系统一般应将遥控继电器箱装于机房机柜上,执行机构装于摄像头处且隐蔽安装,中间用控制电缆连接。
电缆全部暗装,200 米以内可用多芯闭路电视电缆,200 米以上用同轴电缆传送视频信号,用多芯电视电缆传送其它控制信号。具体按设计要求。
调试时先检查线路及元件设备安装是否正确,电源及切换有无错误,如无误则可开机一一测试和试验。元件及设备间的连接其阻抗、信号电平要匹配,可用电平表测试,并与设计相符。
安装前的设备要进行功能及外观检查。
遥控装置应运行自如。
系统全部调试完后应检测被监视部位的监测效果或选择非安装人员模拟盗窃破坏试验,从保安中心观察监视器,最后通过录像核实模拟人员的全部行动,如有漏录,则说明系统欠缺,应增补设施。
8.7.3.7 通信及工业电视系统二次配线
二次配线应参照GB50171-92《电气装置安装工程盘、柜及二次回路结线施工及验收规范》、GB50258-96《电气装置安装工程1kV 及以下配线工程施工及验收规范》以及现行其它有关标准进行。
8.7.3.8 通信工程分部及系统调试
所有通信设备安装完毕后,按照制造厂商的安装说明书及相关的国家、行业标准的有关规定进行现场检查试验。试验项目包括以下内容:
1) 调度(行政)交换机
程控交换机通电试验
检查输入直(交)流电压,各部件(机箱)电压、电流面板表计指示状态,检查设备的告警特性等。
系统性能测试
检查测试的项目及指标参考YD5077-98《程控电话交换设备安装工程验收规范》。
2) 通信电源
①高频开关电源
绝缘电阻和绝缘强度试验
监视装置试验
电池组容量试验
稳压精度试验
稳流精度试验
纹波系数试验
充电装置的浮充试验
充电装置的均充试验
充电装置模拟故障试验
充电装置逆变试验
负荷联络试验
噪声试验
②免维护蓄电池组
蓄电池连接线应排列整齐,极性标志清晰正确;
电池编号应正确,外壳清洁并无膨胀现象;
蓄电池充、放电容量及其特性曲线应符合要求;
蓄电池组的绝缘良好,绝缘电阻应不小于0.5MΩ;
直流电流系统对地绝缘电阻值不小于10MΩ。
3) 完成与其它通信系统相关的协助、配合工作。
8.8 通风空调及消防系统
8.8.1 通风空调系统
8.8.1.1 简介
该电站通风空调,主要分为地下主厂房通风与空调系统和中控楼通风集中空调系统。其他区域采用机械通风。
排风系统主要有地下主厂房,将主厂房水轮机层和中间层风排至夹层,由主厂房排风井和排风机排至全厂总排风洞。母线洞、主变洞、GIS 室通过排风机排至全厂总排风洞。中控楼空调采用全空气系统,主机为水冷冷水机组,所有设备由业主采购提供,安装施工中与风管制造商和土建协调好是工作难点,因土建承包商由本局施工,故协调工作难度降低,工程将会顺利开展。重点在各系统的调试。
8.8.1.2 施工准备
1、根据技术合同要求和所从事的施工内容,准备施工时所需最新版本的规程规范及验收质量标准。
2、主要材料的样品和质量证明书报送监理人审批。
3、施工设备和人员准备。
4、熟悉施工图,进行施工技术交底工作。编写施工技术措施报监理人审批,主要应编写《空调水管安装技术措施》、《通风设备安装技术措施》。
5、各种设备安装记录表格的制定和报监理人审定。
8.8.1.3 施工程序图(8.8-1)
隐蔽工程安装、验收检查
设备开箱检查记录
设备、管路清扫、检查记录
风管、设备基础、管路支架制安
施工程序框图(8.8-1)
8.8.1.4 设备及管路安装
1、隐蔽部分安装
将监理人认可使用的材料领到作业场,根据设计要求和规范要求对埋件和预埋管进行制作和防腐处理,预埋管两端150-250mm 范围内暂不处理。待安装试验合格后才能处理。安装时两端管口进行焊接修口,对口应满足GB50268-97 4.2 表2.7 的技术要求,不得在对口间隙夹焊或用加热法缩小间隙施焊,焊工必须有合格的上岗证。埋件埋管按安装X-Y 轴进行找正,并调整高程。加固材料用角钢或槽钢,不得用木材加固,最后对管道进行打压试验,填写隐蔽工程检验单,经相关部门验收后才能进行下一步工作。
2、明管安装
当工作面可以进行安装时,先安装设备和预制好的管支架,支架根据设计图进行分布,用膨胀螺栓固定,支架高程应符合设计要求。
管路DN100 以上直线部份在作业场配焊成法兰段直接进行镀锌后,用人工或手拉葫芦将管路吊到支架上,复核管路中心高程和各部尺寸,并进行调整,然后用卡套固定在支架上,如管路有保温要求时,支架与管子之间应有50 毫米以上的管垫木,卡套与管子之间应垫厚5mm的橡皮条。每15-20 米记录一次,整个安装完成填好验收单、会同记录一起进行初验。弯管、变径部份,然后选定打压段、分段进行打压试验,最后进行防腐处理和保温处理。
对于≤ф100 的镀锌管只能进行套丝连结,接头必须密封,并打压合格。
所有管路走向应符合设计和规范要求,排列整齐。与设备的接口自然、顺畅。不得扭曲、错位。
冷冻水管安装时,应采取以下措施,保证所安装的水管内部的干净。
1) 所采用的水管外观干净,不得锈蚀。
2) 每节、段在正式安装前进行管内冲洗或用干净布拖拉清洗。
3) 安装完成后分区、分段用水冲洗,最后作好记录。
3、设备安装
该工程所有设备,除厂家已铅封和注明“不准拆卸的设备和部件外,都须遵照规程要求进行分解、清洗、回装、测量记录相关尺寸。
风机、水泵手动能转动灵活,防火阀检修时将机械熔断片卸下才能进行检修,检修后回装并要求手动正常,24V 电池操作灵活。组合式空
调机现场组装时,应严格按厂家说明书进行,冷水机组应整体吊装。调试时再作检查。风机盘管、新风超薄吊机和柜式空调器一般不许分解,只作外部清扫和电气接线检查,组装时应按厂家说明进行。
8.8.1.5 检查验收及试验
当通风空调系统安装完成后,要进行中间验收环节,对各个系统进行一次全面的检查验收。
1、设备单机试运行
当设备安装检查后,电气接线和控制回路已安装结束,就可进行单机试验。首先测量设备电机绝缘,达到要求后,对电气一、二次回路进行静态模试,合格后再对单机设备进行点动试车,并进行试运行24 小时,作好设备单机试车记录。
2、系统联合调试及试运转
对于一个系统,单机试验完后,要进行系统联合调试,检验各系统监视元件,自动化仪表是否工作正常,并与消防报警系统进行联合调试,从而检验各排烟机、防火阀,相关设备运作正确,反应灵敏,最终达到设计要求和消防验收。
8.8.2 消防设备和器材
8.8.2.1 简介
本工程范围:消防供水系统、气体灭火系统、火灾自动报警及消防控制系统、消防器材。消防供水系统包括电站全部建筑的室内外消火栓给水系统和机电设备水喷雾灭火给水系统,地下厂房消防给水环管系统。气体灭火系统是以CO2 气体为灭火剂的自动灭火系统。火灾自动报警及消防控制系统,采用智能型总线控制中心、报警系统由集中火灾报警控制器、消防广播柜、各区域火灾报警控制器、显示控制工作站和各现地探测器、手动报警按钮、模块、消防广播扬声器等组成。消防器材指建筑灭火器、砂箱、防毒面具等器材。
8.8.2.2 施工前准备
1、技术交底
即在工程具体施工前由施工技术管理人员以书面形式,对施工内容、重点部位、操作要点、施工方法等进行指导与明确,以利于施工人员能保质保量正常施工。
2、材料选定、供应
1)全部材料、货物的选购必须符合规范的要求或经甲方、监理人、设计部门批准后采用的代用材料、货物。
2)全部材料、货物的供应必须根据施工进度有计划地供给,以免造成施工场地阻塞及材料欠缺而影响施工进度。
3)所有材料必须附有消防“三证”,并经现场材料员验收合格方可进库。
8.8.2.3 消防供水系统安装方法和主要技术要求
1、消防供水系统简介
(1)消防供水系统包括全部建筑的室内外消火栓给水系统和机电设备水喷雾灭火给水系统。
(2)消火栓给水系统分设地下厂房消火栓给水系统。
(3)地下厂房消火栓给水系统和机电设备水喷雾灭火给水系统的引水管均引至全厂消防环管。
2、施工程序
配合土建预埋套管和预留孔洞→管道支吊架、管道预制→立管安装→水平总干管安装→配合土建消火栓箱安装→管道支管及消火栓安装→设备安装→管道试压、冲洗→管道保温→管道系统试运行→配合土建安装喷头→系统验收
(1)熟悉施工图,紧密配合土建结构施工时预埋穿墙防水套管。
参见国家施工标准图集S312 及设计说明书,凡穿墙、穿楼板的管道,留洞尺寸比其管外径大30mm 左右,其位置必须准确。管道安装后,采用水泥砂浆封闭孔洞。
( 2 ) 管道支、吊架采用MN 系统安装方式, 按施工规范(GB50261-96)及(GBJ242-82)施工。
(3)管道预制安装管径大于100mm 时,采用法兰连接,沟槽式连接或焊接,管径不大于100mm 时,采用螺纹连接,连接部位要清洁。
尤其自喷系统,丝扣连接接口很多,组合时注意不扭曲。阀门安装时使其手柄便于操作,不妨碍使用。螺纹连接管道上的法兰阀门时,配螺纹法兰盘。
(4)消火栓箱安装,土建砌墙时紧密配合土建安装,箱体安装平整,并按国家标准图87S163-16-13,室内消火栓箱在240mm 厚的砖墙上安装方式为半暗装,箱体背后墙的厚度保留120mm,消火栓栓口朝外,栓口中心距地面1.10 米。
(5)安装压力表和泄压阀。压力表安装应加设缓冲装置。压力表和缓冲装置之间安装旋塞,压力表量程为工作压力的2-2.5 倍。
(6)管道试验、冲洗,遵照施工规范(GB50261-96)设计压力乘上1.5 倍,10 分钟,消火栓系统检查不泄露、不变形,压力表不下降,为合格。
(7)自动喷水系统试验,设计压力乘上1.5 倍,稳压30 分钟,目测管网无泄露和无变形,且压力降不大于0.05Mpa 为合格。然后作系统严密性试压,其设计压力稳压24 小时,无泄露为合格,作好试验记录和签证工作。
(8)管道系统所有设备、阀件、器材、垫片均在安装前进行开箱检验合格后方可安装。消防专用组件,如水流指示器、喷头、压力开关、减压阀、安全阀等必须具备生产消防产品许可证、年检证、国家消防产品检验中心检验报告,并有当地安装消防部门对外地产品准许证等。
(9)喷嘴安装前与施工设计图纸上标明的型号规格和喷孔方向逐个核对并符合要求。
(10)安装在吊顶下的喷嘴,其连接螺纹不露出吊顶,喷嘴挡流罩紧贴吊顶安装。施工完毕,防护区管道穿越孔洞用不燃材料封堵。
8.8.2.4 气体灭火系统安装方法和主要技术要求
气体灭火系统是以CO2 气体为灭火剂的自动灭火系统,用于扑灭火灾。
1、施工程序
灭火剂输送管道安装→喷嘴安装→灭火剂输送管道试压、吹扫和涂漆→系统验收。
2、系统设备管路安装
1)灭火剂输送管道安装
(1) 管道穿过墙壁、楼板处安装套管。穿墙套管的长度和墙厚相等,穿过楼板的套管高出楼面50mm。管道与套间的空隙应用柔性不燃烧材料填实;
(2) 管道固定牢靠、管道支、吊架安装最大间距应符合《惰性气体IG-541 灭火系统技术规程》表4.3.12 的规定;
(3) 在所有管道的末端安装一个长度为50mm 的螺纹管帽作集污器;
(4) 管道末端及喷嘴处采用支架固定,支架与喷嘴间的管道长度不大于300mm;
(5) 管道变径采用异径套管、异径管、异径三通或异径弯头。
2)喷嘴的安装
(1) 喷嘴安装前与施工设计图纸上标明的型号、规格和喷孔方向逐个核对,并符合设计要求。
(2) 安装在吊顶下的喷嘴,其连接螺纹不能露出吊顶,喷嘴挡流罩紧贴吊顶安装。
(3) 施工完毕,防护区中的管道穿越孔应用不燃材料封堵。
3)灭火剂输送管道的试压、吹扫和涂漆
灭火剂输送管道安装完毕后,进行水压强度试验和气压严密性试验,并符合下列要求:
(1) 水压强度试验压力,为减压孔板后管道工作压力的1.5 倍,稳压5min,检查管道各连接处无明显滴漏,目测管道无明显变形;
(2) 不宜进行水压强度试验的防护区,必须有设计单位和建设单位同意并采取有效的安全措施后,方可采用压缩空气或氮气作气压强度试验,试验压力为减压孔板后管道工作压力的1.2 倍;
(3) 进行气压强度试验时,采用空气做预试验,试验压力宜为0.2Mpa。预试验合格后,方能进行正式气压强度试验;
(4) 进行正式气压强度试验时,逐步缓慢增加压力,当压力升至试验压力的50%时,如未发现异状或泄露,继续按试验压力的10%逐级升压,每级稳压3min,直至试验压力。稳压5min 后,再将压力降至管道的工作压力,目测管道无明显变形,以发泡剂检查不泄漏为合格;
(5) 气压严密性试验压力与管道工作压力相同。试验时应逐步缓慢增加压力,当压力升至试验压力的50%时,如未发现异状或泄漏,继续按试验压力的10%逐级升压,每级稳压3min,直至试验压力。关闭试验气源后,3min 内压力降不超过试验压力的10%,且用发泡剂检查防护区外管道连接处,以不泄漏为合格。
(6) 水压强度试验后或气压严密性前管道要进行吹扫,并符合下列要求:
a.吹扫管道可采用压缩空气或氮气;
b.吹扫完毕,采用白布检查,直至无铁锈、尘土、水渍及其他杂物出现。
c.灭火剂输送管道的外表面涂红色油漆。在吊顶内活动地板下等隐蔽场所内的管道,可涂红色漆色环。每个防护区的色环宽度、间距一致。
6)系统验收
(1) 气体灭火系统的竣工验收由建设主管单位组织、建设、公安消防监督机构、设计、施工等单位组成验收组共同进行。
(2) 竣工验收时,建设单位提交必要的技术资料。
(3) 气体灭火系统的验收包括防护区、储瓶间、设备和系统功能的验收。其验收要求参照《灭火系统技术规程》
8.8.2.5 消防器材安装方法和主要技术要求
本条所述消防器材,主要指建筑灭火器、砂箱和防毒面具、防火堵料、 防火涂料、防火包、防火隔板等。
安装时须注意以下几条:
1、所有消防器材摆放位置都必须满足《建筑灭火器配置设计规范》(GBJ140-90)和《水利水电工程设计防火规范》(SDJ278-90)中的有关规定,并且符合设计图纸的要求,设置消防器材的箱、柜等必须安全可靠。所有消防器材都必须使用经消防检测部门检测通过、经消防主管部门认可的产品。
2、所有手提式灭火器均应放置在专用的灭火器内或消火栓箱合用的灭火器箱内,其设置高度,顶部离地面不大于1.5m,底部离地面不小于0.15m。
3、每个砂箱应配置铁锹和盖板。
4、防毒面具应放置在专用箱内,并设在电缆层、室出入口处。
8.9 调试试运行
8.9.1 机组调试依据和条件
本节内容主要为发电单元设备的充水和电站接入电力系统的启动试运行试验,试验合格及交接验收后投入系统并网运行。进行此项试验时,应具备下列条件:
8.9.1.1 设备条件
水电站土建工程经验收合格,金属结构工程已具备发电条件。
机组的引水系统和尾水系统已符合机组发电的要求。
水轮发电机组及其附属设备、电气设备等机电工程已全部竣工,并经检查验收符合设计要求。
8.9.1.2 试运行程序编制依据
《水轮发电机组启动试验规程》(DL507-2002)
《水轮发电机组安装技术规范》(GB 8564-88)
有关设备合同、厂家资料、设计资料、监理和业主的有关要求等
8.9.1.3 组织条件
启动验收委员会正式建立,试运行指挥部及其下设机构(调试组、运行组、检修维护组)已经工程主管单位批准成立,职责分工清楚明确。
机组启动试运行大纲、程序、试验项目和步骤、安全措施已经批准。
试运行指挥部已将试运行大纲、程序试验项目和步骤以及安全注意事项向参与调试运行的有关人员交底。
运行单位应具有经过审批的机组试运行程序。
试验仪器、仪表、记录表等已备齐。
为保证机组试运行有条不紊并安全地进行,应严格按照国家和部颁有关标准进行,成立启动委员会作为调试试运行的领导机构,启动委员会下设调试运行组、验收交接组,各小组分别由业主、监理、设计、施工、厂家和生产单位组成,在启委会的领导下负责具体的试运行、调试、验收、移交工作,按照机组起动试运行程序要求及电网调度指令等既定程序严格实施。
8.9.2 机组充水试验
机组充水前的试验和检查,应在启动委员会的指挥协调下,由各承包商负责完成各自的检查、试验项目。
8.9.2.1 引水及尾水系统的检查
进水口拦污栅已安装调试完工并清理干净,测量装置已安装完毕并检验调试合格。
进水口闸门手动、自动操作均调试合格,启闭情况良好。工作闸门、检修闸门在关闭状态。通讯、联络信号畅通。
压力钢管及通气孔、蜗壳、尾水管等水通流系统均已检验合格清理干净。
流道上各测压、测流管路畅通完好,灌浆孔已封堵,测压头已安装完毕。
蜗壳排水阀与尾水检修排水阀操作灵活可靠,启闭情况良好。
尾水闸门门槽及周围已清理干净,闸门启闭情况良好。
尾水闸门室或尾水调压井、尾水洞已清理干净。
电站上下游水位测量系统安装调试合格,水位信号远传正确。
8.9.2.2 水轮机部分的检查
水轮机转轮及所有部件已安装完毕检验合格,施工记录完整,上下止漏环间隙、导水叶立面与端面间隙等各部间隙值测量合格。
导水叶处于全关位置,锁锭投入。
水导轴承润滑、冷却系统已检查合格。油位、温度传感器整定值符合设计要求。
水轮机大轴中心孔补气阀操作灵活可靠,处于开启状态。
各测量表计、示流计、流量计、摆度、振动等传感器及各种变送器均以安装验收合格,管路、线路连接良好。各整定值符合设计要求。
顶盖排水泵已安装调试完毕,可满足自动排水要求。
主轴工作密封与检修密封已安装完工,经检验合格,检修密封投入,主轴密封经试验密封良好。
8.9.2.3 调速系统及其设备的检查
调速系统及其设备已安装完毕,并调试合格。油压装置压力、油位正常,透平油化验合格。各部位表计、阀门均已整定并符合要求。
油压装置油泵在工作压力下运行正常,无异常振动和发热。集油槽油位浮子继电器动作正常。高压补气装置手动、自动动作正确。漏油装置手动、自动调试合格。
由手动操作将油压装置的压力油通向调速系统,检查各油压管路、阀门、接头及部件等均无渗油现象。
调速器电调柜已安装完工并调试合格,电液转换器工作正常。
事故配压阀和分段关闭装置等均已调试合格。锁锭装置调试合格,信号指示正确,充水前处于锁锭状态。
调速系统联动调试的手动操作,调速器、接力器及导水机构联动动作的灵活可靠和全行程内动作的平稳性,导叶开度、接力器行程和调速器柜的导叶开度指示器的一致性等检查已经完成并合格。
用紧急关闭办法检查导叶全开到全关所需时间,并录制导叶开度与接力器行程的关系曲线的试验已完成并合格。
已完成调速器自动操作系统模拟试验,及自动开机、停机和事故停机试验,各部件、元件动作的准确性和可靠性满足设计要求。
8.9.2.4 发电机部分的检查
发电机整体已全部安装完毕,记录完整,检验合格。发电机内部已进行彻底清扫,定、转子气隙内无任何杂物,定转子空气间隙值符合要求。
上导、下导、推力轴承油槽注油完毕,冷却水具备投入条件。
推力轴承油位、温度传感器已调试,整定值符合设计要求。
发电机风罩以内所有阀门、管路、电磁阀、变送器等均已检验合格,处于正常工作状态。
发电机内水喷雾灭火系统已检验合格。管路及喷嘴经手动动作准确。通压缩空气试验畅通无阻。
发电机转子集电环、碳刷、碳刷架已检验并调试合格。
发电机风罩内所有电缆、导线、辅助线、端子板均已检查正确无误。
发电机机械制动系统的手动、自动操作已检验调试合格,动作正常,充水前风闸处于投入制动状态。
转子再顶起一次,使镜板与推力瓦面间形成油膜。
发电机空气冷却器已检验合格。
监测发电机工作状态的各种表计、传感器、测量装置等均已安装完工,调试、整定合格。
8.9.2.5 油气水系统的检查
机组技术供水系统管路阀门安装完毕并验收合格,减压阀和滤水器均已调试合格,动作正常。各示流信号器、压力、流量、温度、差压变送器已按设计整定,指示正常。
排水系统管路、阀门、盘形阀、检修排水泵、渗漏排水泵等均安装调试完毕,动作正常,满足设计要求。
全厂透平油、绝缘油系统已部分或全部投入运行,能满足该台机组供油、用油和排油的需要。油质经化验合格。
高、低压空气压缩机均已调试合格,储气罐及管路无漏气,管路畅通。各类表计、变送器等工作正常。整定值符合设计要求。
所有高、低压空气系统管路已分别分段通入压缩空气进行密闭性漏气检查合格,无漏气现象。
各管路、附属设备已刷漆,标明流向,各阀门已标明开关方向,挂牌编号。
主厂房、发电机母线层、中控室、主变压器、电缆层、电缆井、母线室、母线道、开关室、油库等部位的消防系统或管路设施已安装完工检验合格,符合消防设计要求。
通风空调需要部分已安装调试完毕。
8.9.2.6 电气一次设备的检查
主回路封闭母线、发电机断路器、励磁变压器、电压互感器柜、电流互感器、中性点引出线、中性点接地变压器等设备已安装调试完毕,导体连接紧固,外壳接地完善,具备带电试验条件。
主变压器已安装完工调试合格,分接开关置于系统要求的给定位置,绝缘油化验合格,冷却系统调试合格,消防系统以及周围安全保护措施符合设计要求,具备带电试验条件。
厂用电设备已全部安装完毕,检验并试验合格,已接通电源投入正常工作。备用电源已检验合格,工作正常。
高压开关设备与本机组发电有关回路设备及母线、连接线等均已完工,500kV GIS 已调试合格。
厂房内各设备接地已检验,接地良好。各接地网接地电阻阻值已测试,符合设计的要求。
厂房照明已安装,主要工作场所、交通道和楼梯间照明已检查合格。事故交通安全疏散指示牌已检查合格。
进行4号机启动试运行时,500kV 升压站设备调试合格,具备升流升压的条件。
8.9.2.7 励磁系统设备与回路的检查
励磁变压器、励磁盘柜已安装完工检查合格,回路已做耐压试验。
励磁系统各部分的耐压试验结束。
微机励磁调节器各基本单元及辅助单元的静态特性试验及总体静态特性试验结束。
8.9.2.8 电气控制和保护系统及回路的检查
电气设备及保护设备及现地控制系统安装完工验收合格。保护各装置动作值已按系统保护定值进行整定,并模拟动作至各出口设备。
计算机监控系统设备均已安装验收合格。
全厂公用设备及机组现地监控系统、计算机监控系统的程序录入、调试,信号采集及回路模拟试验已进行完毕。
中央音响信号系统工作正常。
机组同期操作回路已进行模拟试验,能满足调试并网的要求。
通风空调系统满足机组调试试运行的需要。
发电机、变压器等重要机电设备的消防设施具备投入条件。
通讯系统运行正常,厂内通讯与系统通讯畅通无阻。
8.9.2.9 保护回路的检查
下列保护各装置动作值已按系统保护定值进行整定,并模拟动作至各出口设备
发电机继电保护回路的整定与模拟。
主变压器继电保护回路的整定与模拟。
500kV 母线、线路继电保护回路的整定与模拟。
厂用继电保护回路的整定与模拟。
辅助设备及其它PLC 操作保护回路的模拟整定。
8.9.3 水轮发电机组充水试验
当前述检查试验已全部完成,在启委会的指挥下,各部分承包商互相配合,开始水轮发电机组充水试验。
此前坝前水位已蓄至最低发电水位,再次确认进水口闸门、调速器、导水机构处于关闭状态,尾水闸门处于关闭状态。
确认电站厂房检修排水系统、渗漏排水系统运行正常。
尾水管充水
利用技术供水排水管供水方式向尾水管充水,在充水过程中检查尾水管进人门、顶盖、主轴密封、测流测压管路等处有无渗漏,密切监视压力表变化并做好详细记录,若发现漏水等异常情况,立即停止充水进行出处理。
待尾水充水平压后,提起尾水闸门并可靠锁定。
压力管道和蜗壳充水
开检修闸门充水阀,观察检修闸门与工作闸门间水位上升情况,平压后提起检修闸门。观察工作闸门下游侧的漏水情况。
打开工作闸门充水阀,向压力管道充水,监视压力管道水压表读数,检查压力管道充水情况。
充水过程中随时检查蜗壳进人门、水轮机顶盖、导水叶、主轴密封、测流测压管路的密封情况。密切监视蜗壳压力变化做好详细记录。
记录蜗壳与钢管充水时间。
检查压力钢管充水情况,充水平压后以手动或自动方式使进水口闸门在静水中启闭试验三次。在机盘旁作远方启闭操作试验,闸门应启闭可靠。最后将进水口事故门提升至全开位置。
8.9.4 水轮发电机组空载试运行
8.9.4.1 起动前准备
1) 主机周围各层场地已清理干净,吊物孔盖板已盖好,通道畅通,通讯指挥系统正常工作。各部位运行人员已进入岗位。各测量仪器、仪表已调整就位。
2) 确认充水试验中出现的问题已处理合格。
3) 各部位冷却水、润滑水投入,水压正常,润滑油系统、操作系统工作正常。
4) 上、下游水位已记录,各部位原始温度已记录。
5) 漏油装置处于自动位置。
6) 调速器处于准备工作状态,相应下列机构应为:
油压装置至调速器的主油阀门已开启,调速器液压操作柜已接通压力油,油压指示正常。
调速器的滤油器位于工作位置。
调速器处于“手动”位置。
调速器的导叶开度限制位于全关位置。
调速器的速度调整机构位于额定转速位置。
永态转差系数可调整到2%~4%之间。
7) 与机组有关的设备应符合下列状态:
发电机出口断路器断开。
发电机转子集电环碳刷拔出。
水力机械保护和测温装置已投入。
拆除所有试验用的短接线和接地线。
外接标准频率表监视发电机转速。
8.9.4.2 首次手动起动试验
拔出接力器锁定,手动启动机组,待机组起动后,立即停机,监听机组运行情况,无异常声响,再次手动起动机组。
待机组转速达到10—15%额定转速时,监听机组运行情况,经检查无异常情况后,继续升速。当转速升至50%额定转速时机组停止升速,在此转速下运行5 分钟,全面检查各转动部分与静止部件有无碰撞和摩擦。无异常后,手动将机组逐步升速达到额定转速的75%和100%,在每级转速下检查记录轴承温度和机组摆度及振动值。
在升速过程中如果机组摆度超过轴承间隙或各部分振动超过标准时,停机进行动平衡试验,直至在额定转速下机组的摆度和振动符合国家标准为止。
机组达到额定转速的80%(或规定值)后,校验电气转速继电器相应的接点。
记录机组的起动开度和空载开度。当达到额定转速时,校验电气转速表应位于100%的位置。
在机组升速过程中加强对各部位轴承温度的监视,不应有急剧升高和下降现象。机组起动达到额定转速后,在半小时内,应每隔1~2min 测量一次推力瓦和导轴瓦的温度,以后可适当延长记录时间间隔,并绘制推力瓦的温升曲线,观察轴承油面的变化,油位应处于正常位置。待温度稳定后标好各部油槽的运行油位线,记录稳定的温度值,此值不超过设计规定值。
机组起动过程中,监视各部位应无异常现象,如发现金属碰撞声,水轮机室窜水,推力瓦温度突然升高,推力油槽甩油,机组摆度过大等不正常现象则应立即停机。
监视水轮机各部位水温、水压,记录排水泵运行情况和排水工作周期。
记录全部水力量测系统表计读数和机组附加检测装置的表计读数。
测量、记录机组运行摆度和各部位的振动,其值应符合设计或厂家标准。
测量发电机一次残压及相序。相序应正确,波形完好。
8.9.4.3 机组空载运行下调速系统的调整试验.
1) 频率给定的调整范围应符合设计要求。
2) 进行手动和自动切换试验时,接力器应无明显摆动。在自动调节状态下,机组转速相对摆动值,不应超过额定转速的±0.25%。
3) 调速器空载扰动试验应符合下列要求:
人工加入±8%转速扰动量,观察调节器最大超调量、超调次数、调节时间,应符合要求,否则调节参数,直至合格;
转速最大超调量,不应超过转速扰动量的30%;
记录油压装置油泵向油槽送油的时间及工作周期。在调速器自动运行时记录导叶接力器活塞摆动值及摆动周期。
8.9.4.4 停机过程及停机后的检查
1) 操作开度限制机构进行手动停机,当机组转速降至额定转速的20%~30%时,手动加闸使机械制动停机装置作用直至停止转动,解除制动闸。
2) 停机过程中应检查下列各项:
监视各部位轴承温度变化情况。
录制停机转速和时间关系曲线。
检查各部位油槽油面的变化情况。
3) 停机后投入接力器锁锭和检修密封,关闭主轴密封润滑水。
4) 停机后的检查和调整:
各部位螺丝、销钉、锁片及键是否松动或脱落。
检查转动部分的焊缝是否有开裂现象。
检查发电机上下挡风板、挡风圈、导风叶是否有松动或断裂。
检查风闸的摩擦情况及动作的灵活性。
在相应水头之下,调整开度限制机构、主令控制器的空载开度接点。
检查各油槽浮子继电器的油位接点。
8.9.4.5 过速试验及检查
机组振动符合规程要求,即可进行机组过速试验。
根据设计规定的过速保护装置整定值,进行机组过速试验。
将测速装置各过速保护触点从水机保护回路中断,用临时方法监视其通断情况。将机端残压信号接至机旁临时频率计,以监视机组转速。
以手动开机方式使机组达到额定转速。待机组转速正常后,将导叶开度限制机构的开度继续加大,使机组转速上升到额定转速的115%,调整转速继电器相应的转速接点后,继续将转速升至设计规定的过速保护整定值,并调整过速保护装置相应的转速接点。
过速试验过程中应监视并记录各部位摆度和振动值,记录各部轴承的温升情况及发电机空气间隙的变化。过速试验停机后应进行如下检查:
全面检查发电机转动部分。
检查发电机定子基础及上机架基础的状况。
各部位螺丝、销钉、锁片及键是否松动或脱落。
检查转动部分的焊缝是否有开裂现象。
检查发电机上下挡风板、挡风圈、导风叶是否有松动或断裂。
检查风闸的摩擦情况及动作的灵活性。
8.9.4.6 自动起动和自动停机试验
1) 自动起动和自动停机试验是为了检查计算机监控系统自动开停机控制回路动作的正确性。
2) 自动起动前应确认:
调速器处于“自动”位置,功率给定置于“空载”位置,频率给定置于额定频率,调速器参数在空载最佳位置。
确认所有水力机械保护回路均已投入,且自动开机条件具备。
3) 自动开停机在中控室和机组自动盘上通过硬件按钮或软件命
令进行。并应检查下列项目:
检查自动化元件能否正确动作;
记录自发出开机脉冲至机组达到额定转速的时间;
检查调速器动作情况。
4) 机组自动停机过程中及停机后的检查项目:
记录自发出停机脉冲至机组转速降至制动转速所需时间。
记录自制动闸加闸至机组全停的时间。
检查转速继电器工作是否正确,调速器及自动化元件动作是否正确。
5) 自动开机,模拟各种机械与电气事故,检查事故停机回路与流程的正确性与可靠性。
6) 分别在现地、机旁、中控室等部位,检查紧急事故停机按钮动作的可靠性。
8.9.4.7 发电机短路试验
1) 发电机短路试验应具备的条件:
在发电机出口端设置三相短路线。
投入厂用电源代替并联励磁变压器,提供主励磁装置电源。
投入机组水机保护;机端各PT 投入;相关保护投入,跳灭磁开关。
2) 发电机短路试验:
手动开机,发电机各部位温度应稳定,运转应正常。
手动合灭磁开关,通过励磁装置手动升流,检查发电机各电流回路的准确性和对称性。
升流检查各继电保护和测量表计动作的正确性。
录制发电机三相短路特性曲线(定子电流和转子电流关系曲线),在额定电流下测量发电机轴电压,检查碳刷及集电环工作情况。
在发电机额定电流下,跳灭磁开关检验灭磁情况是否正常,录制发电机在额定电流时灭磁过程示波图,并求取灭磁时间常数。
3) 试验合格后一般做模拟紧急事故停机,并拆除发电机短路点的短路线。
8.9.4.8 发电机升压试验
1) 发电机升压试验应具备的条件:
发电机保护系统投入,励磁及调节器回路电源投入,辅助设备及信号回路电源投入。
发电机振动、摆度及空气间隙检测装置投入。
2) 自动开机后机组各部分运行正常。测量发电机电压互感器二次侧残压,并检查其对称性,如无异常,可手动升压至50%额定电压,并检查下列各项:
发电机及引出母线,与母线相连的断路器,分支回路设备等带电设备是否正常。
机组运行中各部振动及摆度是否正常。
电压回路二次侧相序、相位和电压值是否正确。
继续升压至发电机额定电压值,并重复上述检查。
在发电机额定转速下的升压过程中,检查低压继电器和过电压继电器工作情况,在额定电压下测量发电机轴电压。
将发电机电压降至最低值,录制发电机空载特性曲线,当发电机励磁电流升至额定值时,测量发电机定子最高电压。
分别在50%、100%额定电压下,跳开灭磁开关检查消弧情况,录制示波图,并求取灭磁时间常数。
8.9.4.9 水轮发电机空载下励磁调节器的调整和试验检查励磁调节系统的电压调整范围,符合设计要求。自动励磁调节器应能在发电机空载额定电压70%~110%范围内进行稳定平稳地调节。
在发电机空载额定转速下,手动控制单元调节范围:下限不得高于发电机空载励磁电压的20%,上限不得低于发电机额定励磁电压的110%。
测量励磁调节器的开环放大倍数。
检查在发电机空载状态下,励磁调节器投入,上、下限调节,手动和自动切换、通道切换、带励磁调节器开、停机等情况下的稳定性和超调量。即在发电机空载且转速在0.95~1.0 额定值范围内,突然投入励磁调节器,使发电机电压从零升至额定值时,电压超调量不大于额定值的10%,振荡次数不超过2 次。调节时间不大于5 秒。
发电机电压——频率特性试验,应在发电机空载状态下,使发电机转速在90%~100%额定值范围内改变,测定发电机端电压变化值,录制发电机电压——频率特性曲线。频率值每变化1%,自动励磁调节系统应保证发电机电压的变化值不大于额定值的±0.25%。
可控硅励磁调节器应进行低励磁、断线、过电压、均流等保护的调整及模拟动作试验,其动作应正确。
8.9.5 主变压器及500kV 系统试验、主变冲击合闸试验
8.9.5.1 试验前的检查
发电机断路器、隔离开关、发电机电压设备及有关高压设备均已
试验合格,具备投入运行条件。
主变压器经试验验收合格,油位正常,分接开关位置正确。
厂用电系统、500kV 系统经试验验收合格。
发变保护、厂用电保护、母线保护、线路保护和各控制信号回路经试验工作可靠。
8.9.5.2 主变短路升流试验
在主变压器的高压侧适当位置设置可靠的三相短路点。
投入发电机继电保护、水力机械保护装置和主变压器冷却器以及控制信号回路、动作跳灭磁开关,切除其它开关的操作电源,以确保在升流期间不致开路。
开机后递升加电流,检查各电流回路的通流情况和表计指示,并绘制主变压器的电流矢量图。
观察主变升流情况有无异常,手动降流至零,跳灭磁开关。
投入主变压器、高压电缆、母线的保护装置,投入开关操作电源,模拟主变压器保护动作,检查跳闸回路是否正确,相关断路器是否可靠动作。
8.9.5.3 主变升压试验
1) 拆除主变压器高压侧短路点的短路线。
投入所有保护装置。
断开主变压器高压侧的断路器,进行升压试验。
手动递升加压,分别在发电机额定电压值的25%、50%、75%、100%
等情况下检查一次设备的工作情况。
检查电压回路和同期回路的电压相序和相位应正确。
8.9.5.4 500kV 开关站升流试验
1) 在开关站内部或出线点适当位置设置可靠的三相短路点。
2) 投入发变组继电保护、自动装置和主变压器冷却器以及控制信号回路,动作跳灭磁开关,切除其它开关的操作电源,以确保在在升流期间不致开路。
开机后递升加电流,检查各电流回路的通流情况和表计指示,用一次电流实际校核GIS 和并联电抗器有关CT 二次回路的完好性和对称性。
检查500kV 母线保护和线路保护的所有电流回路和工作情况,绘制电流矢量图。
观察500kV 系统升流情况有无异常,手动降流至零,跳灭磁开关。
投入母线保护装置,投入开关操作电源,模拟母线差动保护,检查跳闸回路是否正确,相关断路器是否可靠动作。
8.9.5.5 500kV 开关站升压试验
拆除开关站内部或出线点的短路点的三相短路线。
断开线路断路器,进行升压试验。
手动递升加压,分别在发电机额定电压值的25%、50%、75%、100%等情况下检查500kV 系统设备的工作情况。
检查电压回路和同期回路的电压相序和相位应正确。
8.9.5.6 主变冲击试验
向系统提出进行主变冲击试验的申请,申请批准后可进行主变合闸试验。
断开发电机侧的断路器及隔离开关,拆除主变压器低压侧母线连接端子的接头。
投入主变压器的继电保护装置及冷却系统的控制、保护及信号。
主变压器的中性点可靠接地。
合主变压器高压侧断路器,使电力系统对主变压器冲击合闸共5次,每次间隔约10 分钟,检查主变有无异常。
检查主变压器差动保护和重瓦斯保护的动作情况。
检查主变在冲击合闸情况下的机械强度和绝缘性能。
检查主变差动保护对激磁涌流的闭锁情况,录制主变激磁涌流波形。
8.9.6 水轮发电机组并列及负荷试验
8.9.6.1 水轮发电机组空载并列试验
检查同期回路的正确性。
以手动和自动准同期的方式进行并列试验。在正式并列试验前,先断开相应的隔离开关进行模拟并列试验,以确定自动同期装置工作的准确性。
正式进行手动和自动准同期并列试验。录制电压、频率和同期波形图。
8.9.6.2 水轮发电机组带负荷试验
水轮发电机组带负荷试验,逐步增加有功负荷,观察各仪表指示及各部位运行情况。观察并检查机组在加负荷时有无振动区,测量振动范围及其量值。
机组带负荷下调速系统试验。
水轮发电机组带负荷下励磁调节器试验:
发电机有功功率分别为0%、50%、100%额定值下,按设计要求调整发电机无功功率从零到额定值。调节应平稳、无跳动。
测定并计算水轮发电机组端电压调差率,调差特性应有较好的线性并符合设计要求。
分别进行各种限制及保护功能试验和整定。
8.9.6.3 水轮机甩负荷试验
1) 甩负荷试验前应具备下列条件:
将调速器的稳定参数选择在空载扰动所确定的最佳值。
调整好测量机组振动、摆度、蜗壳压力、机组转速、接力器行程、发电机气隙等电量和非电量的检测仪表。
所有保护装置及自动装置均已投入。
自动励磁调节器的参数已选择在最佳值。
2) 机组甩负荷试验应在额定有功功率的25%、50%、75%和100%下分别进行,记录有关数值,同时应录制过渡过程的各种参数变化曲线及过程曲线。若电站运行水头和电力系统条件限制,机组不可能带额定负荷和甩额定负荷时,则按当时条件在尽可能大负荷下进行甩负荷试验。
3) 水轮发电机突然甩负荷时,检查自动励磁调节器的稳定性和超调量。当发电机突然甩额定有功功率负荷时,发电机电压超调量不应大于额定电压的15%~20%,振荡次数不超过3~5 次,调节时间不大于5 秒。
水轮发电机突然甩负荷时,检查水轮机调速系统动态调节性能,机组转速上升等均应符合设计规定。
8.9.7 水轮发电机72 小时带负荷连续试运行
完成上述各项试验后,经检验合格,机组进入72 小时连续试运行。
根据正式运行值班制度,全面记录试运行所有有关参数。记录运行中设备出现的问题和缺陷。
72 小时带负荷试运行后,进行停机检查和消缺处理。
竣工移交,机组进入试生产阶段。
8.9.8 确保调试试运行一次成功的保障措施
依据GB/T19002—ISO9002 标准,建立完善质量管理和质量保证体系。
加强纪律,严格服从启动验收委员会同意后正式组成的试运行指挥部及有关办事机构的领导。
调试试运行期间严格遵守电力系统调度管理规定,服从电力系统调度指挥。
加强与制造厂、监理单位及设计单位的友好协作、配合。
建立相应的运行指挥部,对机组调试、试运行实现具体的领导和指挥。
建立健全各项规章制度,制定反事故预防措施,编制运行操作、
设备检修、保养规程,编制运行所需要的各类记录表格。
选择雅居云录平台进行分户验收二维码电子档案管理的原因与优势与价值如下:
快速生成二维码:完成系统基础设置后,即可生成分户验收二维码备用,无需等待全部资料上传完成。
灵活修正资料:支持资料修正与重新上传,无需重新修改或印制已生成的二维码。
直观房号管理:后台模拟楼层与房号列表,便于快速查找和直观管理。
自动生成详情:填写项目基本信息后,系统自动生成验收详情页面,无需逐页手动录入。
资料分类上传:验收记录、照片、结果表等资料分类上传,避免手动合并,节省整理时间。
渐进式上传:支持逐步上传资料,编制完成一项即可上传,充分利用签字等空闲时间。
批量上传支持:支持验收资料批量上传,避免逐份上传的繁琐操作。
自动规范排版:上传的验收照片自动完成规范排版,无需人工调整。
精美PDF输出:二维码一键生成,系统自动生成精美PDF文件,用户可直接打印。
可视化进度管理:进度看板直观展示分户验收资料整体及分项完成比例,并提供明细清单。