目 录
脚手架搭设施工方案
一、工程概况
1、工程名称:3M中国有限公司新桥生产用房扩建工程
2、工程地点:中国上海市松江区新桥镇民益路38号3M新桥工厂内
3、结构类型:危险品仓库:独立承台加条基,单层轻型钢结构,防爆墙部分为剪力墙结构;
930厂房:桩基独立承台,现浇钢筋砼框架结构,整体二层(局部三层)。
4、建筑面积:危险品仓库: 1550平方米。
930厂房: 13194平方米
二、编制依据
1、《建筑施工安全检查标准》JGJ-99;
2、《建筑施工扣件式钢管脚手架安全技术规范》JGJ130-2001;
3、《建筑施工高处作业安全技术规范》JGJ80-91;
三、脚手架材料要求
1)、脚手架杆件采用外径48mm、壁厚3.5mm的焊接钢管,其力学性能应符合国家现行标准《碳素结构钢》GBT700中Q235A钢的规定,用于立杆、大横杆、斜杆的钢管长度为4-6米,小横杆、拉结杆2.1-2.3米,使用的钢管不得有弯曲、变形、开焊、裂纹等缺陷,并涂防锈漆作防腐处理,不合格的钢管决不允许使用。
2)、扣件使用生产厂家合格的产品,并持有产品合格证,扣件锻铸铁的技术性能符合《钢管脚手架》GB15831-1995规定的要求,对使用的扣件要全数进行检查,不得有气孔、砂眼、裂纹、滑丝等缺陷。扣件与钢管的贴合面要严格整形,保证与钢管扣紧的接触良好,扣件夹紧钢管时,开口处的最小距离不小于5mm,扣件的活动部位转动灵活,旋转扣件的两旋转面间隙要小于1mm,扣件螺栓的拧紧力距达60N*M时扣件不得破坏。
3)、脚手板采用50mm厚落叶松,宽度为300mm,凡是腐朽、扭曲、斜纹、破裂和大横透疥者不得使用,使用的脚手板两端8cm用8号铅丝箍绕3圈。
四、施工措施
结合本工程结构形式、实际施工特点, 930厂房建筑物四周搭设落地式、全高全封闭的扣件式双排钢管脚手架。此架为一架三用,既用于结构施工和装修施工,同时兼作安全防护。室内采用满堂红脚手架模板支撑体系。
危险品仓库沿防爆墙周围搭设落地式全高扣件式双排钢管脚手架。
(一).地基处理
首先进行搭设场地的平整、夯实工作,930厂房从建筑物主体向外围按照3-5‰找坡。回填土夯实后,上面铺设厚5cm厚、20cm宽以上的脚手板沿建筑物周围及室内通长布置,之后在脚手板上放置立杆,之后按设计的立杆间距进行放线定位,铺设木脚手板要平稳,不得悬空。下雨过后要对脚手架架体基础进行全面检查,严禁脚手架基底积水下沉。
危险品仓库回填土夯实后,在上面铺上碎石垫层夯实,上面铺设厚5cm厚、20cm宽以上的脚手板,其余做法同930厂房。
(二).排水措施
在距脚手架外排立杆外0.5米处,设置一排水沟,排水沟坡度为3-5‰。在最低点,设置积水坑,水流入坑内,用潜水泵将水排出场外。
(三).外脚手架搭设的构造要求
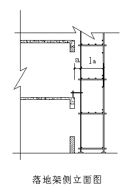
搭设尺寸为:立杆的纵距为 1.20米,立杆的横距为1.05米,立杆的步距为1.80 米;计算的脚手架为双排脚手架搭设高度930厂房为 20.5 米,危险品仓库为11.5米,立杆采用单立管;内排架距离墙长度为0.30米;大横杆在上,搭接在小横杆上的大横杆根数为 2;采用的钢管类型为 Φ48×3.5的焊接钢管;横杆与立杆连接方式为单扣件;扣件抗滑承载力系数为 0.80;连墙件采用两步三跨,竖向间距 3.60 米,水平间距3.60 米,采用扣件连接;连墙件连接方式为双扣件;
a.立杆:全楼脚手架采用双排双立杆,立杆顶端高出结构檐口上皮1.5米,立杆接头采用对接扣件连接,立杆与横杆采用直角扣件连接。接头交错布置,两个相邻立柱接头避免出现在同步同跨内,并在高度方向错开的距离不小于50㎝;各接头中心距主节点的距离不大于60㎝。
b.大横杆:大横杆置于小横杆之上,在立柱的内侧,用直角扣件与立柱扣紧;其长度大于3跨、不小于6米,同一步大横杆四周要交圈。大横杆采用对接扣件连接,其接头交错布置,不在同步、同跨内。相邻接头水平距离不小于50㎝,各接头距立杆的距离不大于50㎝。
c.小横杆:每一立杆与大横杆相交处(即主节点),都必须设置一根小横杆,并采用直角扣件扣紧在大横杆上,该杆轴线偏离主节点的距离不大于15㎝。小横杆间距应与立杆柱距相同,且根据作业层脚手板搭设的需要,可在两立柱之间在等间距设置增设1-2根小横杆,其最大间距不大于75㎝。
小横杆伸出外排大横杆边缘距离不小于10㎝;伸出里排大横杆距结构外边缘15㎝,且长度不大于44㎝。上、下层小横杆应在立杆处错开布置,同层的相邻小横杆在立柱处相向布置。
d.纵、横向扫地杆:纵向扫地杆采用直角扣件固定在距底座下皮20㎝处的立杆上,横向扫地杆则用直角扣件固定在紧靠纵向扫地杆下方的立柱上。
e.剪刀撑:本脚手架采用剪刀撑与横向斜撑相结合的方式,随立柱、纵横向水平杆同步搭设,用通长剪刀撑沿架高连续布置。剪刀撑每6步4跨设置一道,斜杆与地面的夹角在45-60度之间。斜杆相交点处于同一条直线上,并沿架高连续布置。剪刀撑的一根斜杆扣在立柱上,另一根斜杆扣在小横杆伸出的端头上,两端分别用旋转扣件固定,在其中间增加2-4个扣结点。所有固定点距主节点距离不大于15㎝。最下部的斜杆与立杆的连接点距地面的高度控制在30㎝内。
剪刀撑的杆件连接采用搭接,其搭接长度≥100㎝,并用不少于2个旋转扣件固定,端部扣件盖板的边缘至杆端的距离≥10㎝。
f.脚手板:
(1) 在使用人员密集、使用周期较长的部位,脚手板采用木板。木板用杉木或松木制作,其宽度≥200mm,厚度≥50mm,两端用10~14号镀锌钢丝捆紧。禁止使用腐朽的木板。
(2) 在一般部位,脚手板采用由毛竹或楠竹制作的竹串片板,宽度同脚手架宽度, 四角用用10~14号镀锌钢丝与脚手架捆紧。
g.连墙件:连墙件采用刚性连接,连墙件设置:三步三跨。
h.防护设施:脚手架要满挂全封闭式密目安全网。密目网用网绳绑扎在大横杆外立杆里侧。作业层网应高于平台1.2米,作业层下步架处设一道水平兜网。
作业层脚手架立杆于0.6米及1.2米处设有两道防护栏杆,底部侧面设18㎝高的挡脚板。防护栏杆如下图所示:

临边防护示意图
i. 脚手架出入口的构造:大小为4×5米(宽×高)的防护棚,上铺50㎜厚的双层脚手板。在出入口两侧的内、外排单立杆处分别增设一根辅立杆,并高于门洞口1-2步,立柱用短管斜撑相互联系。上方悬空立柱处增加两根斜杆,斜杆与各主节点相交处用扣件固定。洞口上方增设两道横向支撑,应伸出斜腹杆的端部,以保证立柱悬空处的整体性。门洞15㎝两侧分别增加两根。当斜腹杆在1跨内跨越2个步距时,应在相交的大横杆处增设一根小横杆,将斜腹杆固定在其伸出端上;斜腹杆宜采用通长杆件,接长时用对接扣件连接。如下图所示:

j. 楼梯间防护措施
楼梯的侧边利用脚手架做安全防护,架子立管从梯井内搭设,侧边沿楼梯坡度方向做一道1.2米高的护身栏,侧边底部设18㎝高的挡脚板。
(四)、框架梁板脚手架的构造要求
a.立杆:纵横向立杆间距0.7*0.8 m,允许搭设偏差±5cm,立杆垂直度允许搭设偏差±10 cm。下部设扫地杆,扫地杆从垫板往上20 cm处设置,扫地杆采用对接接长。扫地杆在端头与立杆交接处伸出扣件长度不小于10 cm。
b.横杆:立杆之间满设双向水平杆,纵横向水平拉杆步距1.5m,确保其在两个方向都具有足够的设计刚度,横杆用对接方法接长,一根横杆两端的高差,不能超过2 cm,纵向水平杆全长平整度不小于±10cm。为防止水平横杆对立杆产生偏心弯距的影响,在搭设模板支架时,将横杆对称相间布置。示意如下图所示:
c.剪刀撑:沿支架四周外满设剪力撑,四角应设抱角斜撑,中部每隔10 M沿纵向设一道剪刀撑,斜撑和剪刀撑均应由下而上连续设置。
d.架板铺设:因本工程架高大于4m,架板必须满铺。
e.接头节点要求:纵向水平杆对接接头应交错布置,不应设在同步、同跨内,相邻接头水平距离不应小于500cm,并应避免设在纵向水平杆的跨中
f.梁板模板支架的搭设要求
1.严格按照设计尺寸要求搭设,立杆和水平杆的接头应错开在不同的框格中设置;
2.确保立杆的垂直度和横杆的水平偏差符合《扣件架规范》的规定;
3.斜杆尽量同立杆连接,节点构造符合规范规定;
4.确保每个扣件的拧紧力矩控制在45—60N.M;
5.地基支座的设置和承载力均应达到设计要求;
g.施工作业要求
1.上架作业人员必须持证上岗,戴安全帽,系安全带。
2.混凝土浇注过程中,要确保模板支架均衡受荷,宜从中部开始向两边扩展浇注方式进行。
3.严格控制施工荷载,在混凝土浇注过程中,派专人检查支架及其支撑情况,发现下沉、松动和变形时,及时解决。
五、脚手架搭设施工工艺
落地脚手架搭设工艺流程为:场地平整、夯实→材料配备→定位设置通长脚手板→纵向扫地杆→立杆→横向扫地杆→小横杆→大横杆(搁栅)→剪刀撑→连墙杆→铺脚手板→扎防护栏杆→扎安全网。
定距定位:根据构造要求在建筑物四角用尺量出内、外立杆离墙距离,并做好标记。用钢卷尺拉直,分出立杆位置,并点出立杆标记。垫板、底座应准确地放在定位线上,垫板必须铺放平稳,不得悬空;双管立柱应采用双管底座,底座下垫枕木,并垂直于墙面设置。
在搭设首层脚手架的过程中,沿四周每框架内设一道斜支撑,拐角处双向增设,待该部位脚手架与主体结构的连墙杆可靠拉结后方可拆除。当脚手架操作层高出连墙件两步时,应采取临时稳定措施,直到连墙件搭设完毕后方可拆除。
双排架宜先立里排立杆,后立外排立杆。每排立杆宜先立两头的,再立中间的一根,互相看齐后,立中间部分各立杆。双排架内、外排两立杆的连线要与墙面垂直。立杆接长时,宜先立外排,后立内排。
六、安全施工技术措施
6.1.材质及其使用的安全技术措施
6.1.1.扣件的紧固程度应在40-50N.m,并不大于65N.m,对接扣件的抗拉承载力为3KN。扣件上螺栓保持适当的拧紧程度。对接扣件安装时其开口应向内,以防进雨水,直角扣件安装时开口不得向下,以保证安全。
6.1.2.各杆件端头伸出扣件盖板边缘的长度不应小于100㎜。
6.1.3.钢管有严重锈蚀、压扁或裂纹的不得使用。禁止使用有脆裂、变形、滑丝等现象的扣件。
6.1.4.外脚手架严禁钢竹、钢木混搭,禁止扣件、绳索、铁丝、竹篾、塑料混用。
6.1.5.严禁将外径48㎜与51㎜的钢管混合使用。
6.2.脚手架搭设的安全技术措施
6.2.1.脚手架的基础必须经过硬化处理满足承载力要求,做到不积水、不沉陷,顶板基础的混凝土必须达到设计强度的75%以上才能施工。
6.2.2.搭设过程中划出工作标志区,禁止行人、统一指挥、上下呼应、动作协调,严禁在无人指挥下作业。当解开与另一人有关的扣件时必先告诉对方,并得到允许,以防坠落伤人。
6.2.3.开始搭设立杆时,应每隔6跨设置一根抛撑,直至连墙件安装稳定后,方可根据情况拆除。
6.2.4.脚手架及时与结构拉结或采用临时支顶,以保证搭设过程安全,未完成脚手架在每日收工前,一定要确保架子稳定。
6.2.5.脚手架必须配合施工进度搭设,一次搭设高度不得超过相邻连墙件以上两步。
6.2.6.在搭设过程中应由安全员、架子班长等进行检查、验收和签证。每两步验收一次,达到设计施工要求后挂合格牌一块。
6.2.7.外脚手架的卸荷严格采用ф15.5的钢丝绳通过梁上对拉螺栓孔与脚手架连接,严禁私自拆改。
6.3.脚手架上施工作业的安全技术措施
6.3.1.结构外脚手架每支搭一层,支搭完毕后,经项目部安全员验收合格后方可使用。任何班组长和个人,未经同意不得任意拆除脚手架部件。
6.3.2.严格控制施工荷载,脚手板不得集中堆料放荷,施工荷载不得大于3KN/㎡,确保较大安全储备。
6.3.3.结构施工时不允许多层同时作业,装修施工时同时作业层数不超过两层,临时性用的悬挑架的同时作业层数不超过1层。
6.3.4.当作业层高出其下连墙杆3.6米以上,且其上尚无连墙杆时,应采取适当的临时撑拉措施。
6.3.5.各作业层之间设置可靠的防护栅栏,防止附落物体伤人。
6.3.6.定期检查脚手架,发现问题和隐患,在施工作业前及时维修加固,以达到坚固稳定,确保施工安全。
七、脚手架计算书
钢管脚手架的计算参照《建筑施工扣件式钢管脚手架安全技术规范》(JGJ130-2001)、《建筑地基基础设计规范》(GB 50007-2002)、《建筑结构荷载规范》(GB 50009-2001)、《钢结构设计规范》(GB 50017-2003)等规范。
(一)、参数信息:
1.脚手架参数
搭设尺寸为:立杆的纵距为 1.20米,立杆的横距为1.05米,立杆的步距为1.80 米;计算的脚手架为双排脚手架搭设高度为 为20.5 米,立杆采用单立管;内排架距离墙长度为0.30米;大横杆在上,搭接在小横杆上的大横杆根数为 2;采用的钢管类型为 Φ48×3.5;横杆与立杆连接方式为单扣件;扣件抗滑承载力系数为 0.80;连墙件采用两步三跨,竖向间距 3.60 米,水平间距3.60 米,采用扣件连接;连墙件连接方式为双扣件;
2.活荷载参数
施工荷载均布参数(kN/m2):3.000;脚手架用途:结构脚手架;同时施工层数:2;
3.风荷载参数
上海市地区,基本风压为0.45,风荷载高度变化系数μz为0.84,风荷载体型系数μs为0.65;考虑风荷载
4.静荷载参数
每米立杆数承受的结构自重标准(kN/m2):0.1161;脚手板自重标准值(kN/m2 ):0.350;栏杆挡脚板自重标准值(kN/m2):0.110;安全设施与安全网(kN/m2 ):0.005;脚手板铺设层数:2;脚手板类别:木脚手板;栏杆挡板类别:栏杆冲压钢;
5.地基参数
地基土类型:碎石土;地基承载力标准值(kN/m2):500.00;
基础底面扩展面积(m2):0.09;基础降低系数:0.40。


(二)、大横杆的计算:
大横杆按照三跨连续梁进行强度和挠度计算,大横杆在小横杆的上面。按照大横杆上面的脚手板和活荷载作为均布荷载计算大横杆的最大弯矩和变形
1.均布荷载值计算
大横杆的自重标准值:P1=0.038 kN/m ;
脚手板的荷载标准值:P2=0.350×1.050/(2+1)=0.123 kN/m ;
活荷载标准值: Q=3.000×1.050/(2+1)=1.050 kN/m;
静荷载的计算值: q1=1.2×0.038+1.2×0.123=0.193 kN/m;
活荷载的计算值: q2=1.4×1.050=1.470 kN/m;

大横杆计算荷载组合简图(跨中最大弯矩和跨中最大挠度)

大横杆计算荷载组合简图(支座最大弯矩)
2.强度计算
最大弯矩考虑为三跨连续梁均布荷载作用下的弯矩
跨中最大弯距计算公式如下:
![]()
跨中最大弯距为M1max=0.08×0.193×1.2002+0.10×1.470×1.2002 =0.234 kN.m;
支座最大弯距计算公式如下:
![]()
支座最大弯距为 M2max= -0.10×0.193×1.2002-0.117×1.470×1.2002 =-0.275 kN.m;
我们选择支座弯矩和跨中弯矩的最大值进行强度验算:
σ=Max(0.234×106,0.275×106)/5080.0=54.134 N/mm2;
大横杆的抗弯强度:σ= 54.134 N/mm2 小于 [f]=205.0 N/mm2。满足要求!
3.挠度计算:
最大挠度考虑为三跨连续梁均布荷载作用下的挠度
计算公式如下:
![]()
静荷载标准值: q1= P1+P2=0.038+0.123=0.161 kN/m;
活荷载标准值: q2= Q =1.050 kN/m;
三跨连续梁均布荷载作用下的最大挠度
V= 0.677×0.161×1200.04/(100×2.06×105×121900.0)+0.990×1.050
×1200.04/(100×2.06×105×121900.0) = 0.948 mm;
脚手板,纵向、受弯构件的容许挠度为 l/150与10 mm 请参考规范表5.1.8。
大横杆的最大挠度小于 1200.0/150 mm 或者 10 mm,满足要求!
(三)、小横杆的计算:
小横杆按照简支梁进行强度和挠度计算,大横杆在小横杆的上面。
用大横杆支座的最大反力计算值,在最不利荷载布置下计算小横杆的最大弯矩和变形。
1.荷载值计算
大横杆的自重标准值:p1= 0.038×1.200 = 0.046 kN;
脚手板的荷载标准值:P2=0.350×1.050×1.200/(2+1)=0.147 kN;
活荷载标准值:Q=3.000×1.050×1.200/(2+1) =1.260 kN;
荷载的计算值: P=1.2×(0.046+0.147)+1.4 ×1.260 = 1.996 kN;

小横杆计算简图
2.强度计算
最大弯矩考虑为小横杆自重均布荷载与荷载的计算值最不利分配的弯矩和均布荷载最大弯矩计算公式如下:
![]()
Mqmax = 1.2×0.038×1.0502/8 = 0.006 kN.m;
集中荷载最大弯矩计算公式如下:
![]()
Mpmax = 1.996×1.050/3 = 0.698 kN.m ;
最大弯矩 M= Mqmax + Mpmax = 0.705 kN.m;
σ = M / W = 0.705×106/5080.000=138.749 N/mm2 ;
小横杆的计算强度小于 205.000 N/mm2,满足要求!
3.挠度计算
最大挠度考虑为小横杆自重均布荷载与荷载的计算值最不利分配的挠度和
小横杆自重均布荷载引起的最大挠度计算公式如下:
![]()
Vqmax=5×0.038×1050.04/(384×2.060×105×121900.000) = 0.024 mm ;
P2 = p1 + p2 + Q = 0.046+0.147+1.260 = 1.453 kN;
集中荷载标准值最不利分配引起的最大挠度计算公式如下:
![]()
Vpmax = 1453.080×1050.0×(3×1050.02-4×1050.02/9 ) /(72×2.060×105×121900.0) = 2.378 mm;
最大挠度和 V = Vqmax + Vpmax = 0.024+2.378 = 2.402 mm;
小横杆的最大挠度小于 (1050.000/150)=7.000 与 10 mm,满足要求
(四)、扣件抗滑力的计算:
按规范表5.1.7,直角、旋转单扣件承载力取值为8.00kN,按照扣件抗滑承载力系数0.80,
该工程实际的旋转单扣件承载力取值为6.40kN。
纵向或横向水平杆与立杆连接时,扣件的抗滑承载力按照下式计算(规范5.2.5):
R ≤ Rc
其中 Rc -- 扣件抗滑承载力设计值,取6.40 kN;
R -- 纵向或横向水平杆传给立杆的竖向作用力设计值;
横杆的自重标准值: P1 = 0.038×1.050=0.040 kN;
脚手板的荷载标准值: P2 = 0.350×1.050×1.200/2=0.221 kN;
活荷载标准值: Q = 3.000×1.050×1.200 /2 = 1.890 kN;
荷载的计算值: R=1.2×(0.040+0.221)+1.4×1.890=2.959 kN;
R < 6.40 kN , 单扣件抗滑承载力的设计计算满足要求!
(五)、脚手架荷载标准值:
作用于脚手架的荷载包括静荷载、活荷载和风荷载。静荷载标准值包括以下内容:
(1)每米立杆承受的结构自重标准值(kN/m);为0.1161
NG1 = 0.116×12.000 = 1.393 kN;
(2)脚手板的自重标准值(kN/m2);本例采用木脚手板,标准值为0.35
NG2= 0.350×2×1.200×(1.050+0.3)/2 = 0.567 kN;
(3)栏杆与挡脚手板自重标准值(kN/m);本例采用栏杆冲压钢,标准值为0.11
NG3 = 0.110×2×1.200/2 = 0.132 kN;
(4)吊挂的安全设施荷载,包括安全网(kN/m2);0.005
NG4 = 0.005×1.200×12.000 = 0.072 kN;
经计算得到,静荷载标准值
NG =NG1+NG2+NG3+NG4 = 2.164 kN;
活荷载为施工荷载标准值产生的轴向力总和,内、外立杆按一纵距内施工荷载总和的1/2取值。
经计算得到,活荷载标准值
NQ= 3.000×1.050×1.200×2/2 = 3.780 kN;
风荷载标准值应按照以下公式计算
![]()
其中 Wo -- 基本风压(kN/m2),按照《建筑结构荷载规范》(GB50009-2001)的规定采用: Wo = 0.450 kN/m2;
Uz -- 风荷载高度变化系数,按照《建筑结构荷载规范》(GB50009-2001)的规定采用: Uz= 0.840 ;
Us -- 风荷载体型系数:Us =0.649 ;
经计算得到,风荷载标准值
Wk = 0.7 ×0.450×0.840×0.649 = 0.172 kN/m2;
不考虑风荷载时,立杆的轴向压力设计值计算公式
N = 1.2NG+1.4NQ= 1.2×2.164+ 1.4×3.780= 7.889 kN;
考虑风荷载时,立杆的轴向压力设计值计算公式
N = 1.2 NG+0.85×1.4NQ = 1.2×2.164+ 0.85×1.4×3.780= 7.095 kN;风荷载设计值产生的立杆段弯矩 MW计算公式
Mw = 0.85 ×1.4WkLah2/10 =0.850 ×1.4×0.172×1.200×
1.8002/10 = 0.079 kN.m;
(六)、立杆的稳定性计算:
不组合风荷载时,立杆的稳定性计算公式为:
![]()
立杆的轴心压力设计值 :N =7.889 kN;
计算立杆的截面回转半径 :i = 1.58 cm;
计算长度附加系数 :K = 1.155 ;
计算长度系数参照《扣件式规范》表5.3.3得 :U = 1.500
计算长度 ,由公式 lo = kuh 确定 :lo = 3.119 m;
Lo/i = 197.000 ;
轴心受压立杆的稳定系数φ,由长细比 lo/i 的结果查表得到 :φ= 0.186 ;
立杆净截面面积 : A = 4.89 cm2;
立杆净截面模量(抵抗矩) :W = 5.08 cm3;
钢管立杆抗压强度设计值 :[f] =205.000 N/mm2;
σ = 7889.000/(0.186×489.000)=86.737 N/mm2;
立杆稳定性计算 σ = 86.737 小于 [f] = 205.000 N/mm2 满足要求!
考虑风荷载时,立杆的稳定性计算公式
![]()
立杆的轴心压力设计值 :N =7.095 kN;
计算立杆的截面回转半径 :i = 1.58 cm;
计算长度附加系数 : K = 1.155 ;
计算长度系数参照《扣件式规范》表5.3.3得 :U = 1.500
计算长度 ,由公式 lo = kuh 确定:lo = 3.119 m;
Lo/i = 197.000 ;
轴心受压立杆的稳定系数φ,由长细比 lo/i 的结果查表得到 :φ= 0.186
立杆净截面面积 : A = 4.89 cm2;
立杆净截面模量(抵抗矩) :W = 5.08 cm3;
钢管立杆抗压强度设计值 :[f] =205.000 N/mm2;
σ = 7095.240/(0.186×489.000)+79452.534/5080.000 = 93.649 N/mm2;
立杆稳定性计算 σ = 93.649 小于 [f] = 205.000 N/mm2 满足要求。
(七)、最大搭设高度的计算:
不考虑风荷载时,采用单立管的敞开式、全封闭和半封闭的脚手架可搭设高度按照下式计算:
![]()
构配件自重标准值产生的轴向力 NG2K(kN)计算公式为:
NG2K = NG2+NG3+NG4 = 0.771 kN;
活荷载标准值 :NQ = 3.780 kN;
每米立杆承受的结构自重标准值 :Gk = 0.116 kN/m;
Hs =[0.186×4.890×10-4×205.000×103-(1.2×0.771
+1.4×3.780)]/(1.2×0.116)=89.207 m;
脚手架搭设高度 Hs等于或大于26米,按照下式调整且不超过50米:
![]()
[H] = 89.207 /(1+0.001×89.207)=81.901 m;
[H]= 81.901 和 50 比较取较小值。得到,脚手架搭设高度限值 [H] =50.000 m。
考虑风荷载时,采用单立管的敞开式、全封闭和半封闭的脚手架可搭设高度按照下式计算:
![]()
构配件自重标准值产生的轴向力 NG2K(kN)计算公式为:
NG2K = NG2+NG3+NG4 = 0.771 kN;
活荷载标准值 :NQ = 3.780 kN;
每米立杆承受的结构自重标准值 :Gk = 0.116 kN/m;
计算立杆段由风荷载标准值产生的弯矩: Mwk=Mw / (1.4×0.85) = 0.079 /(1.4 × 0.85) = 0.067 kN.m;
Hs =( 0.186×4.890×10-4×205.000×10-3-(1.2×0.771+0.85×1.4×(3.780+0.186×4.890×0.067/5.080)))/(1.2×0.116)=84.694 m;
脚手架搭设高度 Hs等于或大于26米,按照下式调整且不超过50米:
![]()
[H] = 84.694 /(1+0.001×84.694)=78.081 m;
[H]= 78.081 和 50 比较取较小值。经计算得到,脚手架搭设高度限值 [H] =50.000 m。
八、脚手架拆除施工工艺
拆架程序应遵守由上而下,先搭后拆的原则,即先拆拉杆、脚手板、剪刀撑、斜撑,而后拆小横杆、大横杆、立杆等(一般的拆除顺序为:安全网→栏杆→脚手板→剪刀撑→小横杆→大横杆→立杆)。
不准分立面拆架或在上下两步同时进行拆架。做到一步一清、一杆一清。拆立杆时,要先抱住立杆再拆开最后两个扣。拆除大横杆、斜撑、剪刀撑时,应先拆中间扣件,然后托住中间,再解端头扣。所有连墙杆等必须随脚手架拆除同步下降,严禁先将连墙件整层或数层拆除后再拆脚手架,分段拆除高差不应大于2步,如高差大于2步,应增设连墙件加固。
拆除后架体的稳定性不被破坏,如附墙杆被拆除前,应加设临时支撑防止变形,拆除各标准节时,应防止失稳。
当脚手架拆至下部最后一根长钢管的高度(约6米)时,应先在适当位置搭临时抛撑加固,后拆连墙件。
九、脚手架拆除的安全技术措施
9.1、拆架前,全面检查待拆脚手架,根据检查结果,拟订作业计划,报请批准,进行技术交底后才准备工作。
9.2、架体拆除前,必须察看施工现场环境,包括架空线路、外脚手架、地面的设施等各类障碍物、地锚、缆风绳、连墙杆及被拆架体各吊点、附件、电气装置情况,凡能提前拆除的尽量拆除掉。
9.3、拆架时应划分作业区,周围设绳绑围栏或竖立警戒标志,地面应设专人指挥,禁止非作业人员进入。
9.4、拆除时要统一指挥,上下呼应,动作协调,当解开与另一人有关的结扣时,应先通知对方,以防坠落。
9.5、在拆架时,不得中途换人,如必须换人时,应将拆除情况交代清楚后方可离开。
9.6、每天拆架下班时,不应留下隐患部位。
9.7、拆架时严禁碰撞脚手架附近电源线,以防触电事故。
9.8、所有杆件和扣件在拆除时应分离,不准在杆件上附着扣件或两杆连着送到地面。
9.9、所有的脚手板应自外向里竖立搬运,以防脚手板和垃圾物从高处坠落伤人。
9.10、拆下的零配件要装入容器内,用吊篮吊下;拆下的钢管要绑扎牢固,双点起吊,严禁从离空抛掷。
景观园林、建筑、规划、室内装修、建筑结构、暖通空调、给排水、电气设计、施工组织设计
雅居云录分户验收二维码与电子档案平台支持分门别类上传不同类别的验收资料,如《分户验收记录表(户内)》《室内净距净高检验记录表》《分户验收表(公共部位)》等,无需事先合并整理扫描,显著简化资料整理流程,减少操作步骤,提高归档效率。