第一节 编制依据
《建筑施工计算手册》江正荣著 中国建筑工业出版社;
《建筑施工手册》第四版 中国建筑工业出版社、《钢结构设计规范》GB50017-2003 中国建筑工业出版社;
《建筑结构荷载规范》GB50009-2001中国建筑工业出版社;
《建筑施工脚手架实用手册(含垂直运输设施)》中国建筑工业出版社;
《建筑施工扣件式钢管脚手架安全技术规范》JGJ130-2001 中国建筑工业出版社;
《混凝土结构设计规范》GB50010-2002中国建筑工业出版社;
《建筑地基基础设计规范》GB50007-2002中国建筑工业出版社;
《建筑施工安全检查标准》JGJ59-99中国建筑工业出版社。
********公司车间及附属用房工程施工图纸。
********建筑工程公司的内部技术标准、工作标准、管理标准以及公司ISO9002质量体系程序文件。
- 工程概况
*********有限公司新厂区工程(以下简称本工程)位于****工业园,由****有限公司投资建设,****施工图设计,****地质勘察,****公司承建。
本工程建设面积20693㎡,有夹包成型车间及附属用房、鞋楦车间及附属用房、制鞋楦机车间机附属用房共三个单位工程,夹包成型车间及附属用房层数为五~七层,建筑物檐高23.9米,建筑面积9658㎡;鞋楦车间及附属用房、制鞋楦机车间机附属用房均为二~六层,檐高19.4米,建筑面积均为5517.5㎡。总工期350天。
第三节 脚手架方案选择
本工程考虑到施工工期、质量和安全要求,故在选择方案时,应充分考虑以下几点:
1、架体的结构设计,力求做到结构要安全可靠,造价经济合理。
2、在规定的条件下和规定的使用期限内,能够充分满足预期的安全性和耐久性。
3、选用材料时,力求做到常见通用、可周转利用,便于保养维修。
4、结构选型时,力求做到受力明确,构造措施到位,升降搭拆方便,便于检查验收;
5、综合以上几点,脚手架的搭设,还必须符合JCJ59-99检查标准要求,要符合江西省文明标化工地的有关标准。
6、结合以上脚手架设计原则,同时结合本工程的实际情况,综合考虑了以往的施工经验,决定采用以下1种脚手架方案:
落地架。
第四节 脚手架的材质要求
落地架
l、钢管脚落地手架,选用外径48mm,壁厚 3.50mm,钢材强度等级Q235-A,钢管表面应平直光滑,不应有裂纹、分层、压痕、划道和硬弯,新用的钢管要有出厂合格证。脚手架施工前必须将入场钢管取样,送有相关国家资质的试验单位,进行钢管抗弯、抗拉等力学试验,试验结果满足设计要求后,方可在施工中使用。
2、本工程钢管脚手架的搭设使用可锻铸造扣件,应符合建设部《钢管脚手扣件标准》JGJ22-85的要求,由有扣件生产许可证的生产厂家提供,不得有裂纹、气孔、缩松、砂眼等锻造缺陷,扣件的规格应与钢管相匹配,贴和面应干整,活动部位灵活,夹紧钢管时开口处最小距离不小于5mm。钢管螺栓拧紧力矩达70N.m时不得破坏。如使用旧扣件时,扣件必须取样送有相关国家资质的试验单位,进行扣件抗滑力等试验,试验结果满足设计要求后方可在施工中使用。
3、搭设架子前应进行保养,除锈并统一涂色,颜色力求环境美观。脚手架立杆、防护栏杆、踢脚杆统一漆黄色,剪力撑统一漆桔红色。底排立杆、扫地杆均漆红白相间色。
4、脚手板、脚手片采用符合有关要求。
5、安全网采用密目式安全网,网目应满足2000目/100cm2,做耐贯穿试验不穿透,1.6×1.8m的单张网重量在3kg以上,颜色应满足环境效果要求,选用绿色。要求阻燃,使用的安全网必须有产品生产许可证和质量合格证,以及由温州市建筑安全监督管理部门发放的准用证。
6、连墙件采用钢管,其材质应符合现行国家标准《碳素钢结构》(GB/T 700)中Q235A钢的要求。
第五节 脚手架的搭设流程及要求
落地脚手架搭设的工艺流程为:场地平整、夯实→基础承载力实验、材料配备→定位设置通长脚手板、底座→纵向扫地杆→立杆 →横向扫地杆→小横杆→大横杆(搁栅)→剪刀撑→连墙件→铺脚手板→扎防护栏杆→扎安全网。
定距定位。根据构造要求在建筑物四角用尺量出内、外立杆离墙距离,并做好标记;用钢卷尺拉直,分出立杆位置,并用小竹片点出立杆标记;垫板、底座应准确地放在定位线上,垫板必须铺放平整,不得悬空。
在搭设首层脚手架过程中,沿四周每框架格内设一道斜支撑,拐角除双向增设,待该部位脚手架与主体结构的连墙件可靠拉接后方可拆除。当脚手架操作层高出连墙件两步时,宜先立外排,后立内排。其余按一下构造要求搭设。
1、主杆基础
本工程脚手架地基础部位应在回填土完后夯实,采用强度等级不低于C15的混凝土进行硬化,混凝土硬化厚度不小于10cm。地基承载能力能够满足外脚手架的搭设要求(具体计算数据参阅脚手架计算书)。
2、立杆间距
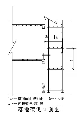
(1)脚手架立杆纵距1.5m,横距1.05m,步距1.8m;连墙杆间距竖直3.6m,水平4.5m(即二步三跨):里立杆距建筑物0.3m。
(2)脚手架的底部立杆采用不同长度的钢管参差布置,使钢管立杆的对接接头交错布置,高度方向相互错开500mm以上,且要求相邻接头不应在同步同跨内,以保证脚手架的整体性。
(3)立杆应设置垫木,并设置纵横方向扫地杆,连接于立脚点杆上,离底座20cm左右。
(4)立杆的垂直偏差应控制在不大于架高的1/400。
3、大横杆、小横杆设置
(1)大横杆在脚手架高度方向的间距1.8m,以便立网挂设,大横杆置于立杆里面,每侧外伸长度为150mm。
(2)外架子按立杆与大横杆交点处设置小横杆,两端固定在立杆,以形成空间结构整体受力。
4、剪刀撑
脚手架外测立面的两端各设置一道剪刀撑,并应由底至顶连续设置;中间各道剪刀撑之间的净距离不应大于15m。剪刀撑斜杆的接长宜采用搭接,搭接长度不小于1m,应采用不少于2个旋转扣件固定。剪刀撑斜杆应用旋转扣件固定在与之相交的横向水平杆的伸出端或立杆上,旋转扣件中心线离主节点的距离不宜大于150mm。
5、脚手板、脚手片的铺设要求
(1)脚手架里排立杆与结构层之间均应铺设木板:板宽为200mm,里外立杆应满铺脚手板,无探头板。
(2)满铺层脚手片必须垂直墙面横向铺设,满铺到位,不留空位,不能满铺处必须采取有效的防护措施。
(3)脚手片须用18铅丝双股并联绑扎,不少于4点,要求绑扎牢固,交接处平整,铺设时要选用完好无损的脚手片,发现有破损的要及时更换。
6、防护栏杆
(1)脚手架外侧使用建设主管部门认证的合格绿色密目式安全网封闭,且将安全网固定在脚手架外立杆里侧。
(2)选用18铅丝张挂安全网,要求严密、平整。
(3)脚手架外侧必须设1.2m高的防护栏杆和30cm高踢脚杆,顶排防护栏杆不少于2道,高度分别为0.9m和1.3m。
(4)脚手架内侧形成临边的(如遇大开间门窗洞等),在脚手架内侧设1.2m的防护栏杆和30cm高踢脚杆。
7、连墙件
(1)脚手架与建筑物按水平方向4.5m,垂直方向3.6m,设一拉结点。楼层高度超过4m,则在水平方向加密,如楼层高度超过6m时,则按水平方向每6m设置一道斜拉钢丝绳。
(2)拉结点在转角范围内和顶部处加密,即在转角l米以内范围按垂直方向每3.6米设一拉结点。
(3)拉结点应保证牢固,防止其移动变形,且尽量设置在外架大小横杆接点处。
(4)外墙装饰阶段拉结点,也须满足上述要求,确因施工需要除去原拉结点时,必须重新补设可靠,有效的临时拉结,以确保外架安全可靠。
8、架体内封闭
(1)脚手架的架体里立杆距墙体净距为200mm,如因结构设计的限制大于200mm的必须铺设站人片,站人片设置平整牢固。
(2)脚手架施工层里立杆与建筑物之间应采用脚手片或木板进行封闭。
(3)施工层以下外架每隔3步以及底部用密目网或其他措施进行封闭。
第六节 脚手架计算书
落地架
一、参数信息:
1.脚手架参数
双排脚手架搭设高度为 26.0 米,立杆采用单立管;
搭设尺寸为:立杆的纵距为 1.50米,立杆的横距为1.00米,大小横杆的步距为1.80 米;
内排架距离墙长度为0.30米;
大横杆在上,搭接在小横杆上的大横杆根数为 2 根;
脚手架沿墙纵向长度为 106 米;
采用的钢管类型为 Φ48×3.5;
横杆与立杆连接方式为单扣件;取扣件抗滑承载力系数为 0.80;
连墙件采用两步两跨,竖向间距 3.60 米,水平间距3.00 米,采用扣件连接;
连墙件连接方式为双扣件;
2.活荷载参数
施工均布活荷载标准值:3.000 kN/m2;脚手架用途:结构脚手架;
同时施工层数:2 层;
3.风荷载参数
本工程地处浙江省温州市,基本风压为0.60 kN/m2;
风荷载高度变化系数μz为1.42,风荷载体型系数μs为0.65;
脚手架计算中考虑风荷载作用;
4.静荷载参数
每米立杆承受的结构自重标准值(kN/m2):0.1248;
脚手板自重标准值(kN/m2):0.300;栏杆挡脚板自重标准值(kN/m2):0.150;
安全设施与安全网(kN/m2):0.005;脚手板铺设层数:4;
脚手板类别:竹笆片脚手板;栏杆挡板类别:栏杆、竹笆片脚手板挡板;
每米脚手架钢管自重标准值(kN/m2):0.038;
5.地基参数
地基土类型:碎石土;地基承载力标准值(kN/m2):500.00;
立杆基础底面面积(m2):0.09;地面广截力调整系数:0.40。


二、大横杆的计算:
按照《扣件式钢管脚手架安全技术规范》(JGJ130-2001)第5.2.4条规定,大横杆按照三跨连续梁进行强度和挠度计算,大横杆在小横杆的上面。将大横杆上面的脚手板自重和施工活荷载作为均布荷载计算大横杆的最大弯矩和变形。
1.均布荷载值计算
大横杆的自重标准值:P1=0.038 kN/m ;
脚手板的自重标准值:P2=0.300×1.000/(2+1)=0.100 kN/m ;
活荷载标准值: Q=3.000×1.000/(2+1)=1.000 kN/m;
静荷载的设计值: q1=1.2×0.038+1.2×0.100=0.166 kN/m;
活荷载的设计值: q2=1.4×1.000=1.400 kN/m;

图1 大横杆设计荷载组合简图(跨中最大弯矩和跨中最大挠度)

图2 大横杆设计荷载组合简图(支座最大弯矩)
2.强度验算
跨中和支座最大弯距分别按图1、图2组合。
跨中最大弯距计算公式如下:
![]()
跨中最大弯距为M1max=0.08×0.166×1.5002+0.10×1.400×1.5002 =0.345 kN.m;支座最大弯距计算公式如下:
![]()
支座最大弯距为 M2max= -0.10×0.166×1.5002-0.117×1.400×1.5002 =-0.406 kN.m;选择支座弯矩和跨中弯矩的最大值进行强度验算:
σ=Max(0.345×106,0.406×106)/5080.0=79.921 N/mm2;
大横杆的最大弯曲应力为 σ= 79.921 N/mm2 小于 大横杆的抗压强度设计值 [f]=205.0 N/mm2,满足要求!
3.挠度验算:
最大挠度考虑为三跨连续梁均布荷载作用下的挠度。
计算公式如下:
![]()
其中:
静荷载标准值: q1= P1+P2=0.038+0.100=0.138 kN/m;
活荷载标准值: q2= Q =1.000 kN/m;
最大挠度计算值为:
V= 0.677×0.138×1500.04/(100×2.06×105×121900.0)+0.990×1.000×1500.04/(100×2.06×105×121900.0) = 2.185 mm;
大横杆的最大挠度 2.185 mm 小于 大横杆的最大容许挠度 1500.0/150 mm与10 mm,满足要求!
三、小横杆的计算:
根据JGJ130-2001第5.2.4条规定,小横杆按照简支梁进行强度和挠度计算,大横杆在小横杆的上面。用大横杆支座的最大反力计算值作为小横杆集中荷载,在最不利荷载布置下计算小横杆的最大弯矩和变形。
1.荷载值计算
大横杆的自重标准值:p1= 0.038×1.500 = 0.058 kN;
脚手板的自重标准值:P2=0.300×1.000×1.500/(2+1)=0.150 kN;
活荷载标准值:Q=3.000×1.000×1.500/(2+1) =1.500 kN;
集中荷载的设计值: P=1.2×(0.058+0.150)+1.4 ×1.500 = 2.349 kN;

小横杆计算简图
2.强度验算
最大弯矩考虑为小横杆自重均布荷载与大横杆传递荷载的标准值最不利分配的弯矩和均布荷载最大弯矩计算公式如下:
![]()
Mqmax = 1.2×0.038×1.0002/8 = 0.006 kN.m;
集中荷载最大弯矩计算公式如下:
![]()
Mpmax = 2.349×1.000/3 = 0.783 kN.m ;
最大弯矩 M= Mqmax + Mpmax = 0.789 kN.m;
最大应力计算值 σ = M / W = 0.789×106/5080.000=155.276 N/mm2 ;
小横杆的最大应力计算值 σ =155.276 N/mm2 小于 小横杆的抗压强度设计值 205.000 N/mm2,满足要求!
3.挠度验算
最大挠度考虑为小横杆自重均布荷载与大横杆传递荷载的设计值最不利分配的挠度和小横杆自重均布荷载引起的最大挠度计算公式如下:
![]()
Vqmax=5×0.038×1000.04/(384×2.060×105×121900.000) = 0.020 mm ;
大横杆传递荷载 P = p1 + p2 + Q = 0.058+0.150+1.500 = 1.708 kN;
集中荷载标准值最不利分配引起的最大挠度计算公式如下:
![]()
Vpmax = 1707.600×1000.0×(3×1000.02-4×1000.02/9 ) /(72×2.060×105
×121900.0) = 2.414 mm;
最大挠度和 V = Vqmax + Vpmax = 0.020+2.414 = 2.434 mm;
小横杆的最大挠度和 2.434 mm 小于 小横杆的最大容许挠度 1000.000/150=6.667与10 mm,满足要求!
四、扣件抗滑力的计算:
按规范表5.1.7,直角、旋转单扣件承载力取值为8.00kN,按照扣件抗滑承载力系数0.80,该工程实际的旋转单扣件承载力取值为6.40kN。
纵向或横向水平杆与立杆连接时,扣件的抗滑承载力按照下式计算(规范5.2.5): R ≤ Rc
其中 Rc -- 扣件抗滑承载力设计值,取6.40 kN;
R -- 纵向或横向水平杆传给立杆的竖向作用力设计值;
大横杆的自重标准值: P1 = 0.038×1.500×2/2=0.058 kN;
小横杆的自重标准值: P2 = 0.038×1.000=0.038 kN;
脚手板的自重标准值: P3 = 0.300×1.000×1.500/2=0.225 kN;
活荷载标准值: Q = 3.000×1.000×1.500 /2 = 2.250 kN;
荷载的设计值: R=1.2×(0.038+0.225)+1.4×2.250=3.466 kN;
R < 6.40 kN,单扣件抗滑承载力的设计计算满足要求!
五、脚手架立杆荷载计算:
作用于脚手架的荷载包括静荷载、活荷载和风荷载。静荷载标准值包括以下内容:
(1)每米立杆承受的结构自重标准值(kN),为0.1248
NG1 = [0.1248+(1.50×2/2+1.50×2)×0.038/1.80]×26.00 = 5.741;
(2)脚手板的自重标准值(kN/m2);采用竹笆片脚手板,标准值为0.30
NG2= 0.300×4×1.500×(1.000+0.3)/2 = 1.170 kN;
(3)栏杆与挡脚手板自重标准值(kN/m);采用栏杆、竹笆片脚手板挡板,标准值为0.15
NG3 = 0.150×4×1.500/2 = 0.450 kN;
(4)吊挂的安全设施荷载,包括安全网(kN/m2);0.005
NG4 = 0.005×1.500×26.000 = 0.195 kN;
经计算得到,静荷载标准值
NG =NG1+NG2+NG3+NG4 = 7.556 kN;
活荷载为施工荷载标准值产生的轴向力总和,内、外立杆按一纵距内施工荷载总和的1/2取值。
经计算得到,活荷载标准值
NQ= 3.000×1.000×1.500×2/2 = 4.500 kN;
风荷载标准值按照以下公式计算
![]()
其中 Wo -- 基本风压(kN/m2),按照《建筑结构荷载规范》(GB50009-2001)的规定采用:
Wo = 0.600 kN/m2;
Uz -- 风荷载高度变化系数,按照《建筑结构荷载规范》(GB50009-2001)的规定采用:
Uz= 1.420 ;
Us -- 风荷载体型系数:取值为0.645;
经计算得到,风荷载标准值
Wk = 0.7 ×0.600×1.420×0.645 = 0.385 kN/m2;
不考虑风荷载时,立杆的轴向压力设计值计算公式
N = 1.2NG+1.4NQ= 1.2×7.556+ 1.4×4.500= 15.367 kN;
考虑风荷载时,立杆的轴向压力设计值为
N = 1.2 NG+0.85×1.4NQ = 1.2×7.556+ 0.85×1.4×4.500= 14.422 kN;
风荷载设计值产生的立杆段弯矩 MW 为
Mw = 0.85 ×1.4WkLah2/10 =0.850 ×1.4×0.385×1.500×
1.8002/10 = 0.222 kN.m;
六、立杆的稳定性计算:
不组合风荷载时,立杆的稳定性计算公式为:
![]()
立杆的轴向压力设计值 :N =15.367 kN;
计算立杆的截面回转半径 :i = 1.58 cm;
计算长度附加系数参照《扣件式规范》表5.3.3得 :k = 1.155 ;
计算长度系数参照《扣件式规范》表5.3.3得 :μ = 1.500 ;
计算长度 ,由公式 lo = kμh 确定 :l0 = 3.119 m;
长细比 Lo/i = 197.000 ;
轴心受压立杆的稳定系数φ,由长细比 lo/i 的计算结果查表得到 :φ= 0.186 ;
立杆净截面面积 : A = 4.89 cm2;
立杆净截面模量(抵抗矩) :W = 5.08 cm3;
钢管立杆抗压强度设计值 :[f] =205.000 N/mm2;
σ = 15367.000/(0.186×489.000)=168.953 N/mm2;
立杆稳定性计算 σ = 168.953 N/mm2 小于 立杆的抗压强度设计值 [f] = 205.000 N/mm2,满足要求!
考虑风荷载时,立杆的稳定性计算公式
![]()
立杆的轴心压力设计值 :N =14.422 kN;
计算立杆的截面回转半径 :i = 1.58 cm;
计算长度附加系数参照《扣件式规范》表5.3.3得 : k = 1.155 ;
计算长度系数参照《扣件式规范》表5.3.3得 :μ = 1.500 ;
计算长度 ,由公式 l0 = kuh 确定:l0 = 3.119 m;
长细比: L0/i = 197.000 ;
轴心受压立杆的稳定系数φ,由长细比 lo/i 的结果查表得到 :φ= 0.186
立杆净截面面积 : A = 4.89 cm2;
立杆净截面模量(抵抗矩) :W = 5.08 cm3;
钢管立杆抗压强度设计值 :[f] =205.000 N/mm2;
σ = 14421.960/(0.186×489.000)+222474.675/5080.000 = 202.357 N/mm2;
立杆稳定性计算 σ = 202.357 N/mm2 小于 立杆的抗压强度设计值 [f] = 205.000 N/mm2,满足要求!
七、最大搭设高度的计算:
按《规范》5.3.6条不考虑风荷载时,采用单立管的敞开式、全封闭和半封闭的脚手架可搭设高度按照下式计算:
![]()
构配件自重标准值产生的轴向力 NG2K(kN)计算公式为:
NG2K = NG2+NG3+NG4 = 1.815 kN;
活荷载标准值 :NQ = 4.500 kN;
每米立杆承受的结构自重标准值 :Gk = 0.125 kN/m;
Hs =[0.186×4.890×10-4×205.000×103-(1.2×1.815
+1.4×4.500)]/(1.2×0.125)=67.892 m;
按《规范》5.3.7条脚手架搭设高度 Hs等于或大于26米,按照下式调整且不超过50米:
![]()
[H] = 67.892 /(1+0.001×67.892)=63.576 m;
[H]= 63.576 和 50 比较取较小值。得到,脚手架搭设高度限值 [H] =50.000 m,满足要求!
按《规范》5.3.6条考虑风荷载时,采用单立管的敞开式、全封闭和半封闭的脚手架可搭设高度按照下式计算:
![]()
构配件自重标准值产生的轴向力 NG2K(kN)计算公式为:
NG2K = NG2+NG3+NG4 = 1.815 kN;
活荷载标准值 :NQ = 4.500 kN;
每米立杆承受的结构自重标准值 :Gk = 0.125 kN/m;
计算立杆段由风荷载标准值产生的弯矩: Mwk=Mw / (1.4×0.85) = 0.222 /(1.4 × 0.85) = 0.187 kN.m;
Hs =( 0.186×4.890×10-4×205.000×10-3-(1.2×1.815+0.85×1.4×(4.500+0.186×4.890×0.187/5.080)))/(1.2×0.125)=47.605 m;
按《规范》5.3.7条脚手架搭设高度 Hs等于或大于26米,按照下式调整且不超过50米:
![]()
[H] = 47.605 /(1+0.001×47.605)=45.442 m;
[H]= 45.442 和 50 比较取较小值。经计算得到,脚手架搭设高度限值 [H] =45.442 m,满足要求!
八、连墙件的计算:
连墙件的轴向力设计值应按照下式计算:
Nl = Nlw + N0
风荷载标准值 Wk = 0.385 kN/m2;
每个连墙件的覆盖面积内脚手架外侧的迎风面积 Aw = 10.800 m2;
按《规范》5.4.1条连墙件约束脚手架平面外变形所产生的轴向力(kN), N0= 5.000 kN;
风荷载产生的连墙件轴向力设计值(kN),按照下式计算:
Nlw = 1.4×Wk×Aw = 5.816 kN;
连墙件的轴向力设计值 Nl = Nlw + N0= 10.816 kN;
连墙件承载力设计值按下式计算:
Nf = φ·A·[f]
其中 φ -- 轴心受压立杆的稳定系数;
由长细比 l0/i = 300.000/15.800的结果查表得到 φ=0.949,l为内排架距离墙的长度;
又: A = 4.89 cm2;[f]=205.00 N/mm2;
连墙件轴向承载力设计值为 Nf = 0.949×4.890×10-4×205.000×103 = 95.133 kN;
Nl = 10.816 < Nf = 95.133,连墙件的设计计算满足要求!
连墙件采用双扣件与墙体连接。
由以上计算得到 Nl = 10.816小于双扣件的抗滑力 16.0 kN,满足要求! 连墙件扣件连接示意图

九、立杆的地基承载力计算:
立杆基础底面的平均压力应满足下式的要求
p ≤ fg
地基承载力设计值:
fg = fgk×kc = 200.000 kN/m2;
其中,地基承载力标准值:fgk= 500.000 kN/m2 ;
脚手架地基承载力调整系数:kc = 0.400 ;
立杆基础底面的平均压力:p = N/A =160.244 kN/m2 ;
其中,上部结构传至基础顶面的轴向力设计值 :N = 14.422 kN;
基础底面面积 :A = 0.090 m2 。
p=160.244 ≤ fg=200.000 kN/m2 。地基承载力满足要求!
第七节 脚手架搭设的劳动力安排
1、为确保工程进度的需要,同时根据本工程的结构特征和外脚手架的工程量,确定本工程外脚手架搭设人员需要15~20人,均有上岗作业证书。
2、建立由项目经理、施工员、安全员、搭设技术员组成的管理机构,搭设负责人负有指挥、调配、检查的直接责任。
3、外脚手架的搭设和拆除,均应有项目技术负责人的认可,方可进行施工作业,并必须配备有足够的辅助人员和必要的工具。
第八节 脚手架的检查与验收
1、脚手架必须由持有效上岗证的专业技术人员搭设;
2、进行分段验收和检查,发现有不符合要求的应迅速整改,并追究责任;
3、外脚手架分段验收严格按《建筑施工扣件式钢管脚手架安全技术规范》JGJ130-2001第八节及JGJ59-99中"外脚手架检查评分表",所列项目和施工方案要求的内容进行检查。填写验收记录单,并由搭设人员、安全员、施工员、项目经理签证,方能交付使用。
4、架体内必须做到每层封闭(即进行隔离),且不能大于4步。
第九节 脚手架搭设安全技术措施
1、钢管架应设置避雷针,分置于主楼外架四角立杆之上,并联通大横杆,形成避雷网络,并检测接地电阻不大于30Ω。
2、外脚手架不得搭设在距离外电架空线路的安全距离内,并做好可靠的安全接地处理。
3、定期检查脚手架,发现问题和隐患,在施工作业前及时维修加固,以达到坚固稳定,确保施工安全。
4、外脚手架严禁钢竹、钢木混搭,禁止扣件、绳索、铁丝、竹篾、塑料篾混用。
5、外脚手架搭设人员必须持证上岗,并正确使用安全帽、安全带、穿防滑鞋。
6、严禁脚手板存在探头板,铺设脚手板以及多层作业时,应尽量使施工荷载内、外传递平衡。
7、保证脚手架体的整体性,不得与井架、升降机一并拉结,不得截断架体。
8、结构外脚手架每支搭一层,支搭完毕后,经项目部安全员验收合格后方可使用。任何班组长和个人,未经同意不得任意拆除脚手架部件。
9、严格控制施工荷载,脚手板不得集中堆料施荷,施工荷载不得大于3kN/m2,确保较大安全储备。
10、结构施工时不允许多层同时作业,装修施工时同时作业层数不超过两层,临时性用的悬挑架的同时作业层数不超过重层。
11、当作业层高出其下连墙件3.6m以上、且其上尚无连墙件时,应采取适当的临时撑拉措施。
12、各作业层之间设置可靠的防护栅栏,防止坠落物体伤人。
13、脚手架立杆基础外侧应挖排水沟,以防雨水浸泡地基。
第十节 脚手架拆除安全技术措施
1、拆架前,全面检查拟拆脚手架,根据检查结果,拟订出作业计划,报请批准,进行技术交底后才准工作。作业计划一般包括:拆架的步骤和方法、安全措施、材料堆放地点、劳动组织安排等。
2、拆架时应划分作业区,周围设绳绑围栏或竖立警戒标志,地面应设专人指挥,禁止非作业人员进入。
3、拆架的高处作业人员应戴安全帽、系安全带、扎裹腿、穿软底防滑鞋。
4、拆架程序应遵守由上而下,先搭后拆的原则,即先拆拉杆、脚手板、剪刀撑、斜撑,而后拆小横杆、大横杆、立杆等,并按一步一清原则依次进行。严禁上下同时进行拆架作业。
5、拆立杆时,要先抱住立杆再拆开最后两个扣,拆除大横杆、斜撑、剪刀撑时,应先拆中间扣件,然后托住中间,再解端头扣。
6、连墙杆(拉结点)应随拆除进度逐层拆除,拆抛撑时,应用临时撑支住,然后才能拆除。
7、拆除时要统一指挥,上下呼应,动作协调,当解开与另一人有关的结扣时,应先通知对方,以防坠落。
8、拆架时严禁碰撞脚手架附近电源线,以防触电事故。
9、在拆架时,不得中途换人,如必须换人时,应将拆除情况交代清楚后方可离开。
10、拆下的材料要徐徐下运,严禁抛掷。运至地面的材料应按指定地点随拆随运,分类堆放,当天拆当天清,拆下的扣件和铁丝要集中回收处理。
11、高层建筑脚手架拆除,应配备各良好的通讯装置。
12、输送至地面的杆件,应及时按类堆放,整理保养。
13、当天离岗时,应及时加固尚未拆除部分,防止存留隐患造成复岗后的人为事故。
14、如遇强风、雨、雪等特殊气候,不应进行脚手架的拆除,严禁夜间拆除。
15、翻掀垫铺竹笆应注意站立位置,并应自外向里翻起竖立,防止外翻将竹笆内未清除的残留物从高处坠落伤人。