目录
第一章 施工组织设计总说明 4
第1节 前言 4
第2节 工程概况 5
第3节 工程目标 6
第4节 编制依据及范围 8
第二章 施工现场总平面布置 9
第1节 总平布置原则 9
第2节 临时设施布置 10
第3节 分阶段施工场布 13
第4节 施工水电场布 16
第三章 施工总进度计划表 19
第1节 节点工期安排 19
第2节 施工进度计划表 19
第3节 施工工期保证措施 19
第四章 施工机械、劳动力配备计划 25
第1节 施工机械配备计划 25
第2节 劳动力配备计划 30
第五章 施工方案及技术措施 31
第1节 施工方案总体设想 31
第2节 施工组织部署 40
第3节 基础工程施工技术措施 47
第4节 结构工程施工技术措施 53
第5节 屋面工程施工技术措施 64
第6节 装饰工程施工技术措施 66
第7节 水电安装工程施工 79
第六章 现场施工组织管理 92
第1节 项目组织机构图 92
第2节 各主要管理人员及部门职能 93
第3节 项目管理措施 101
第七章 施工质量、安全、文明保证措施 135
第1节 工程质量目标 135
第2节 施工质量控制流程 140
第3节 施工质量创优措施 144
第4节 针对性施工质量保证措施 146
第5节 施工安全保证措施 154
第6节 文明施工保证措施 168
施工组织设计总说明
前言
我们认真地学习和研究了招标文件和所有设计图纸,并数次踏勘了施工现场,在分析了各种因素和工程承包的特点、难点后,我们有充分的信心保证高质量、如期、全面地完成招标文件规定的承包范围的任务。
一旦有幸中标,我们一定全力以赴,做好施工前期准备工作以及各项施工方案的审定工作。我们一定发挥本单位的优势,以科学的管理,达到人、财、物的合理配置,确保工程施工的优质高效。
在施工过程中我们将配合业主做好指定分包商的选定工作,积极做好对分包的管理、协调、配合照管工作,抓好对分包商的施工质量、工期、安全、文明施工等全面的管理工作,确保工程优质、高效、全面建成。
我们完全接受招标文件提出的质量和技术要求,我们按国家质量标准和上海市有关质量规定进行施工。本工程实行创优目标管理,确保工程达到国家的质量和验收标准。如果中标,在实施过程我们将虚心接受监理的监督,确保工程达到“一次性验收合格”,若达不到要求愿接受按每平方米罚款5 元。
若我单位能够中标,将按照上海市有关建筑工程施工现场标准化管理规定组织施工和现场文明,确保工程达到“区文明工地”的标准。
我们将与业主、设计单位密切配合,真心诚意接受施工监理、业主和设计人员在施工全过程的热忱指导和帮助。我们将以先进的管理、优质的服务竭诚为本工程的顺利建设而努力,为工程早日投入使用,早日发挥社会效益和经济效益作出我们应有的贡献。
本技术标书的编制顺序严格依据招标文件的第六条,评标内容分布具体如下:
1、施工现场平面布置内容详见:第6 页“二、施工现场总平面布置”内容;
2、施工方案及技术措施内容详见:第22 页“五、施工方案及技术措施”内容;
3、机械设备及劳动力配备情况内容详见:第18 页“四、施工机械、劳动力配备计划”内容;
4、质量、安全、文明的保证措施内容详见:第111 页“七、施工质量、安全、文明保证措施”内容;
工程概况
本工程为上海电信实业**有限公司综合办公楼工程,位于上海市**公园东路、**路口,五层框架结构。建筑面积为6113 平方米,建筑高度为24 米。
本工程基础形式采用承台地梁条形基础,本工程设计室内标高±0.00 为绝对标高4.5 米,室内外高差0.45m。本工程设计单位:上海江南建筑设计院,由上海**建设咨询有限公司为本工程施工招标代理单位。
目前本工程“三通一平”已完成,本工程施工用水2 英寸进水管、用电70KW 电源已经准备好,建设单位接至施工现场红线边缘。

工程目标
一旦有幸中标,我们一定全力以赴,做好施工前期准备工作,并做好各项施工方案的审定工作。建设单位要求工期为180 个日历天。
我们将发挥本公司管理的综合优势,协调交叉搭接各专业工序之间的施工,确保本工程在2004 年12 月25 日开工,计划完工日期为2005年6 月17 日,总工期175 个日历天竣工。
1.3.2 施工质量目标
1、我们将全面执行招标文件提出的质量和技术要求,按国家质量规范、上海市建委有关质量规定进行施工。本工程实行创优目标管理,确保工程达到国家质量验收标准的“一次验收合格”。
2、我们若中标承建本工程,在工程竣工后的保修期内,我们将提供优质服务。即使保修期满后,我们也将提供满意服务。对工程质量负责到底,解除业主的后顾之忧。
1.3.3 文明施工目标
我们将按上海市建委有关建筑工程施工现场标准化管理规定组织施工,确保施工区域内部及外部道路清洁和安全,及时解决由施工造成的对周围居民日常生活的影响,确保工程达到“区文明、标化工地”。
1.3.4 安全施工目标
确保无重大伤亡事故(包括我司职工、分包队伍职工);年均负伤事故频率小于1‰;无机械设备事故和管线损坏事故;安全管理规范、内外业资料齐全,安全检查考评达总评分90 分以上。
编制依据及范围
☆ 本工程招标文件;
☆ 本工程建筑结构有关图纸;
☆ 国家安全生产、文明施工的规定及规程;
☆ 本设计图所涉及的技术规范。
☆ 国家现行的有关施工及验收规范(规程);
(1)、工程测量规范 (GB50026--99)
(2)、钢筋焊接及验收规程 (JGJ109--2002)
(3)、地基与基础工程施工及验收规范 (GB-50007-2002)
(4)、建筑地面工程施工及验收规范 (GB50209--2002)
(5)、混凝土结构工程施工及验收规范 (GB50205--2002)
(6)、砌体工程施工及验收规范 (GB50204--2002)
(7)、建筑装饰工程施工及验收规范 (JBJ73--2002)
(8)、建筑工程质量检验评定标准 (JBJ301--98)
(9)、组合钢模板技术规范 (JBJ214--98)
(10)、建筑机械使用安全技术规程 (JGJ33--99)
(11)、建设工程施工现场供用电安全规范 (GB50194--99)
2.编制本标书范围
☆土建部分:基础、上部建筑;
☆装饰部分:粗装修及对二次装饰的总包管理
☆安装部分:水、电及其它管线预埋安装;
施工现场总平面布置
总平布置原则
1.本工程施工工期紧。在施工过程中必须充分利用建设空间。根据本工程的施工特点,进行科学动态管理现场,施工现场平面布置图按施工进度进行合理调整。
2.明确划分施工区域和材料堆放场地,保证材料运输道路环通通畅,施工方便。
3.平面布置要符合施工流程要求,减少对专业工种和其他方面施工的干扰。
4.施工区域与生活区域分开,且各种生产设施布置便于施工生产安排,且满足安全防火、劳动保护的要求。
5.平面布置要符合上海市文明施工的有关规定执行,着眼于创市文明工地的目标实施,高起点、严要求,进行封闭施工,符合工程总体环境的要求。
临时设施布置
本工程在华青路侧开设两只大门,作为进出场地的主要通道。其中1#大门作为钢筋等施工材料主要运输通道,2#大门为人员进出的主要通道。
另一方面在现场尽量在建筑物的四周设置环形封闭的施工便道。
现场全部采用硬地坪施工,场内临时运输便道的位置尽量利用永久道路的位置,以不影响永久建筑物的施工。尤其是在进行砼浇捣时,有意识的进行重、空车的蓄车位区分,以有效加快施工速度,保障文明施工。
2.2.2、大门
在华青路侧两边开设8 米宽两只大门,大门边设置门卫室。大门旁设置一非机动车出入口,为施工人员的日常生活提供方便。
2.2.3、办公室
考虑到永久建筑的布置,办公室布置在施工用地的北侧,一层砖结构,近办公室侧设七牌一图宣传板,将来所有本工程的分包全部在此进行办公,同时在办公楼的北侧设置管理人员的宿舍和食堂,以便统一管理满足文明施工要求。临时办公室除会议室用隔墙隔断外,其余整个办公室用3m 的隔断分隔。以体现办公环境的整体统一性。
2.2.4、宿舍
宿舍布置在场地办公室的西北侧,该区域内布置宿舍、浴室、食堂等生活设施。在临时宿舍上要布置相应的安全,文明施工、企业宗旨等宣传铭牌。落实专人负责临时设施的卫生保洁工作。宿舍全部采用活动板二层进行设置。
2.2.5、堆场
施工区的材料堆场尽量布置在施工便道边,以便材料直接吊运至施工操作面,减少水平运输的次数;另一方面堆场全部用铁丝网进行隔断,并挂设标识牌,满足文明施工要求。
在场地办公区与施工区中间的矩形区域,设置钢筋加工场地,施工便道与围墙之间设材料临时堆场,堆场的设置应根据现场的实际施工情况进行相应的调整,以满足施工的要求。
2.2.6、围墙
整个工程施工实现围挡封闭施工,并在围墙作宣传标识。施工临设场布详见下页所示。

分阶段施工场布
基础施工阶段采用硬地坪施工,沿基础四周设素混凝土的施工便道,沿施工便道的内侧边布置排水沟。同时沿基坑四周设置钢管围档,桩基施工采用一台静压桩机施工,承台挖土施工直接采用挖土机,地梁采用机械加人工挖土,最后留设20 公分采用人工挖土,混凝土浇捣利用一台汽车泵在基坑北侧的施工便道进行软管的退浇施工。
2.3.2 结构施工阶段
结构施工阶段对基础施工时的场布进行调整,把材料堆场及加工场尽量安排在近建筑物的地方,在结构施工时,布置二台施工井架,用来进行装饰材料的垂直运输,在结构的南布置一台TD60 行走式塔吊主要负责结构施工时的钢筋及模板的垂直运输。在近2 号大门侧的脚手设置上下的人行斜道,详细结构施工场地布置如下页所示。
2.3.3 装饰施工阶段
结构完毕即进行粉刷等装饰施工,并在适当的地方进行总体施工,整个施工场地随之进行调整。

施工水电场布
业主已提供Ф50 水头,施工用水在平面上和立面上分开布置,在平面上沿施工场地周边布置,水管用2〃管,在施工现场周边的水管每隔20m 左右设一个3/4〃水龙头,其中在两只大门口设置水笼头作为车辆进出施工场地的冲洗用。在结构的施工中,水管至施工操作面,施工用水由2〃水管附在主体结构垂直向上敷设。
2.4.2 施工排水
为了控制施工中污水任意排放,现场设置三级沉淀池,施工现场沿基坑设置排水沟进入到沉淀池,经沉淀后水通过管道排入城市雨水总排水管道。
现场的生活污水直接排入城市污水管井。基础回填土之前,积、雨水用地坑、明沟集中,用水泵汇入文明沟排入城市雨水井,回填完成后,立即着手室外排水系统的施工。
2.4.3 施工用电
业主已提供75KW 临时施工用电源头,并已接驳至工地红线边缘。
工地临时供电在施工现场设置配电间,为满足文明标化施工的要求,设计输电线的走向,沿围墙架空,并用瓷瓶作架空敷设。现场按施工用电、办公用电及大型设备用电分区形成输电电缆。
1.电缆沿现场四周布置,电缆规格为80mm2,每20m 设置一个分电箱。
2.为满足结构的施工用电,在结构内向上拉设一根电缆,电缆规格为55mm2。
3.施工井架等施工机械用电从专用电箱单独拉出,电缆规格为45mm2。
4.施工水电布置详见下页所示。

施工总进度计划表
节点工期安排
1、基础桩基打设、承台地梁挖土、地梁砼施工安排20 天,从2004年12 月30 日至2005 年1 月18 日;
2、结构施工60 天,从2005 年1 月19 日至2005 年3 月20 日;
3、装饰施工90 天,从2005 年3 月11 日至2005 年6 月8 日;
4、总体配套施工31 天,从2005 年5 月15 日至2005 年6 月14 日;
5、施工总工期175 天,从2004 年12 月25 日至2005 年6 月17 日。
施工进度计划表
施工工期保证措施

3.3.2 主要分项工程工期控制
3.3.2.1 钢筋工程
1.钢筋加工配备足够的钢筋加工机械和作业人员,确保工序按计划进行。
2.钢筋在加工之前应由钢筋翻样事先提供钢筋翻样单。
3.钢筋绑扎应按施工区域的进度要求及时完成。
4.优化钢筋施工方案,使钢筋工程和其它施工工序顺利搭接。
3.3.2.2 模板工程
1.在结构施工中,运用新工艺、新技术,加快施工速度。
2.模板按施工区域进行配备,且配备足够的模板和木工,确保工程的顺利进行。
3.优化模板施工工艺,使上下工序顺利搭接。
4.墙模、板模、梁模板,应分类编号放置,模板施工时应按木工翻样进行施工。
3.3.2.3 混凝土工程
1.混凝土运送及混凝土浇灌振捣需配备足够车辆及施工人员。
2.优化混凝土施工方案,使混凝土施工和其它工序顺利搭接,避免窝工。
3.3.2.4 机电工程
1.优化安装施工方案,使各工序顺利搭接,加工、安装跟随土建进度。
2.每周定期召开工程例会,落实进度计划协调和解决安装与土建有关施工班组的施工顺序。
3.各分段块机电工程,均应跟随土建工程,不得拖后腿,必须顺利进行。
3.3.3 保证进度计划总体要求
1.一旦中标,我单位项目管理人员将立即进行施工准备工作,确保按业主指定日正式开工。
2.我单位将立即按照投标文件中的组织体系成立工程施工项目体,落实各岗位人员。
3.本工程施工时作业人员经合理调整后,保证节假日有管理人员照常工作,保证工程工期不受影响。并采用合理的加班施工来缩短工期,争取提前完成。
4.项目部将每星期召开由监理单位和建设单位参加的工程例会,及时协调各方关系,解决和总结一周以来出现的问题,有利于以后工作的开展。
5.充分发挥我单位施工、技术、管理上的优势,组织钢筋、模板、混凝土的合理搭接,各单体的流水施工,确保各分项的工期目标实现。
6.开工之前,优化各分项工程的施工方案,使各分项工程在确保质量的情况下,最为省力省时。
3.3.4 进度计划保证项目
1.施工图纸的保证
2.施工技术方案的保证
3.合理编制施工计划的保证
4.流水作业、科学管理的保证
5.劳动力的保证
6.物资供应的保证
7.施工机械的保证
8.资金保证
9.半成品质量的保证
3.3.5 进度计划控制措施
1.办公室挂贴施工总进度计划,明确施工管理人员各自分管的分项工程施工时间要求。
2.以施工总进度计划为依据,编制总、月、周生产计划,各期计划必须逐级保证,即周度计划保证月度计划实现,月度计划保证总计划实现,确保各单位工程施工总进度计划实现。
3.根据施工总进度计划编制各时期的较为详细的实施作业计划,向参加施工班组下达任务。
4.根据施工总进度计划和实施作业计划,编制各个时期的各种资源供应量计划,对于需预定加工的构配件、市场上紧销的材料和配件,应估计定货、采购、加工、运输和进场(库)时间,须超前编制和落实各类资源供应量计划。
5.后勤供应情况是各个时期计划检查的重点,在定期召开的计划会议和调度会议上,后勤供应管理人员应详细汇报供应情况。
6.在向班组布置任务或签订责任制合同时,要对完成该任务提出时间要求,该时间要求取决于实施作业计划。
7.施工总进度计划中包括各班组承建的分项工程和主要工序,各班组在各时期编制实施作业计划方案,经建设单位进行综合平衡确认。在施工过程中定期检查和协调各单位间的配合关系。
8.经常和定期地检查计划实施情况,包括工程形象进度、资源供应及管理工作进展,在实施过程中,如偏离计划,应分析原因,果断地进行调整,确保关键工序按计划执行。
施工机械、劳动力配备计划
施工机械配备计划
结构施工阶段主要是楼层施工钢筋、模板等材料垂直、水平运输;拟配备如下施工机械。
| 序号 | 机械设备名称 | 型号规格 | 单位 | 数量 |
| 1 | 井架 | 2T | 台 | 2 |
| 2 | 汽车吊 | 35 | 台 | 1 |
| 3 | 挖机 | 1.0m3 | 台 | 2 |
| 4 | 钢筋对焊机 | UN-100 UN-125 | 台 | 1 |
| 5 | 钢筋切断机 | 6-40mm | 台 | 1 |
| 6 | 钢筋弯曲机 | 6-40mm | 台 | 1 |
| 7 | 混凝土搅拌机 | 350L | 台 | 1 |
| 8 | 砂浆机 | HT200 | 台 | 3 |
| 9 | 木工电锯、刨床 | 台 | 2 | |
| 10 | 电焊机 | A×4-300-1 | 台 | 4 |
| 11 | 空压机 | W-0.9/7 | 台 | 2 |
| 12 | 潜水泵 | DG100 | 台 | 1 |
| 13 | 高压水泵 | 100TSW-7 | 台 | 1 |
| 14 | 插入式振动器 | φ50 | 台 | 25 |
| 15 | 平板式振动器 | 台 | 2 | |
| 16 | 砂轮切割机 | J3G-400 | 台 | 3 |
| 17 | 汽车泵 | LIBHER(28m 摇臂) | 台 | 2 |
| 18 | TD60 塔吊 | 台 | 1 | |
| 19 | 静压桩机 | 台 | 1 |
4.1.2 机电工程机械配备
本工程水、电等工作内容属于我单位承包范围,据此拟配备如下的设备。
| 序号 | 机械设备名称 | 型号规格 | 单位 | 数量 |
| 1 | 交流弧焊机 | NSA4-300 | 台 | 2 |
| 2 | 氧气瓶 | 套 | 2 | |
| 3 | 砂轮切割机 | 台 | 4 | |
| 4 | 电动套丝机 | 15~50mm | 台 | 1 |
| 5 | 角向砂轮机 | 台 | 2 | |
| 6 | 角向磨光机 | 台 | 2 | |
| 7 | 手枪钻 | 只 | 4 | |
| 8 | 直流弧焊机 | AX4~300 | 台 | 1 |
| 9 | 试压泵 | DSP~60 | 台 | 1 |
| 10 | 砂轮机 | 台 | 3 | |
| 11 | 手拉葫芦 | 2t | 只 | 1 |
| 12 | 接地电阻测试仪 | 只 | 1 | |
| 13 | 步话机 | 套 | 2 | |
| 14 | 压接钳 | 把 | 1 | |
| 15 | 力距板手 | 把 | 1 | |
| 16 | U 型差压器 | 套 | 1 | |
| 17 | 兆欧表 | 只 | 2 | |
| 18 | 万用表 | 500 型 | 只 | 1 |
| 19 | 水准仪 | 台 | 1 | |
| 20 | 卷扬机 | 2t | 台 | 1 |
| 21 | 按扭式咬口机 | 台 | 2 | |
| 22 | 数字万用表 | PF5 | 只 | 2 |
| 23 | 钳形电流表 | DF-266 | 套 | 2 |
4.1.3 计测量、器具配备
为了确保建筑物施工的定位准确,配备一定的高精自动测量仪器来确保结构定位精确,拟配备如下的计测量器具。
| 序号 | 机械设备名称 | 型号规格 | 单位 | 数量 | 配备情况 | |
| 1 | 经纬仪 | J2 | 台 | 1 | 测量组 | |
| 2 | 垂准仪 | DZG6 | 台 | 1 | 测量组 | |
| 3 | 水准仪 | DSZ3 | 台 | 2 | 测量组 | |
| 4 | 钢卷尺 | 50m | 把 | 3 | 测量组 | |
| 5 | 钢卷尺 | 15m | 把 | 8 | 工长、班组 | |
| 6 | 钢卷尺 | 30m | 把 | 5 | 工长、班组 | |
| 7 | 钢卷尺 | 5m | 把 | 20 | 主要操作人 | |
| 8 | 角尺 | 200×200mm | 把 | 8 | 班组质检 | |
| 9 | 水平尺 | 450mm | 把 | 15 | 班组质检 | |
| 10 | 百格网 | 115×240mm | 把 | 1 | 质 | 检 |
| 11 | 塞尺 | 楔形 | 块 | 2 | 质 | 检 |
| 12 | 焊缝检测仪 | 0-45mm | 台 | 2 | 质 | 检 |
| 13 | 托线板 | 2000×150×15mm | 把 | 6 | 质 | 检 |
| 14 | 砼坍落度筒 | 只 | 2 | 质 | 检 | |
| 15 | 混凝土试模 | 150×150×150mm | 组 | 5 | 质 | 检 |
| 16 | 混凝土试模 | 100×100×100mm | 组 | 3 | 质 | 检 |
| 17 | 砂浆试模 | 70.7×70.7× | 组 | 3 | 质 | 检 |
| 18 | 抗渗试模 | 组 | 4 | 质 | 检 | |
| 19 | 台秤 | TGT-500 型 | 台 | 1 | 工 | 地 |
| 20 | 台秤 | TGT-1000 型 | 台 | 1 | 工 | 地 |
| 21 | 自控检测器尺 | JZC-3 型 | 把 | 2 | 质 | 检 |
| 22 | 垂直校正器尺 | JZC-2 型 | 把 | 2 | 质 | 检 |
| 23 | ||||||
劳动力配备计划
本工程工期较紧,质量要求高,为此我单位将配备技术强、素质高的劳动力投入到本工程的施工中去,合理的调配资源,做到高效有序,具体的劳动力投入安排见下图所示。

施工方案及技术措施
施工方案总体设想
机械的选用,以适用为优选目标,由于本工程高度为24 米,高度不高,根据构件运输量和周转半径,选用TD60 的塔吊一台,主要负责主体结构材料的平面及垂直运输工作,在装饰施工队段布置二台井架。
另外为方便施工人员上下及小型器件运输,在脚手架的大门口侧依脚手架搭设人员的上下斜梯。混凝土的浇捣采用汽车泵软管直接进行施工,在井架侧装饰阶段布置砂浆机等设备。机械设备配备布置见下图所示。
5.1.2 模板工程

5.1.2.1 地梁模板
本工程施工的基础地梁模板采用小钢模。
模板配板原则:
(1)要保证构件的形状尺寸及相互位置的正确。
(2)力求构造简单,装拆方便,不妨碍钢筋绑扎,保证混凝土浇捣时不漏浆。
(3)模板长向拼接宜采用错开布置,以增加模板的整体刚度。
(4)施工时模板应绘制模板配置图,标出模板的位置、规格型号和数量。
(5)施工时应根据施工流水分阶段进料。
5.1.2.2 结构柱模板
本工程结构柱采用组合工具式木模,为防止模板间的拼缝漏浆,在模板接缝处粘贴泡沫条子,施工时两块模板间挤牢泡沫条子,确保接缝不漏浆。
为使模板根部不漏浆,根据楼层标高,先用水泥砂浆将墙体根部批平,在混凝土浇捣时,应先进行砂浆接浆,防止根部漏浆。
5.1.2.3 结构平台模
平台模采用散装散拆模板,面板采用九夹板,排架选用48 的钢管搭设,间距900。
5.1.2.4 楼梯模板
楼梯模板由平台、楼梯梁及梯段板等组成。楼梯支模时要事先做出大样,计算好水平距离、高度以及踏步步数,梯段侧的宽度应等于梯段板厚及踏步高,反三角木由若干三角木块钉在方木上,三角木块两直角边长分别各等于踏步的高和宽,每一梯段反三角木至少应配一块,反三角木用横楞及立木支吊。施工时先撑楼梯梁和平台,然后撑斜底板以及踏步三角模板、踏步板,支模的起步和收步要注意预留出不同的粉刷厚度尺寸。支撑要稳定牢固,钢管排架需加设与梯段垂直的支撑。
5.1.2.5 模板的施工
模板施工时,先在砼面上根据测量提供的控制轴线弹出纵横轴线及模板尺寸线。然后根据弹线校正插筋,烧焊模板限位。支撑时先柱后梁板,再平台模板,模板制作尺寸准确,拼缝严密。板、梁底模支撑系统采用钢管扣件排架支撑。层高大于3.5m 的用双层排架撑。排架立柱间距在900mm 左右。梁下排架之间采用水平管和剪刀撑增加稳定性,@4m 左右加一道剪刀撑,@2m 左右加一道双向水平搭接与纵横支撑进行固定。
梁长大于4 米时,梁底板中间应有0.3%的起拱。梁模板安装的难点主要在梁墙节点以及不同材质模板间的拼接,对梁墙节点处,预先在模板上开凹口,模板上小孔和平台板模板间拼缝大的应用老粉批嵌封钉。
5.1.3 钢筋工程
工程结构钢筋钢材市场采购,在现场设钢筋加工场地,加工成型后由TD60 塔吊运至施工操作面,并按规定送质监站试验中心检验合格后,才能用于工程中。
5.1.4 混凝土工程
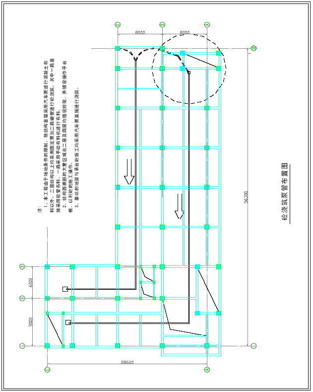
施工便道及临时设施所需混凝土全部采用现场设置的搅拌机进行搅拌,结构所需混凝土全部采用商品混凝土。结构混凝土利用汽车泵进行混凝土泵送。楼层混凝土泵管及布料布置见下图所示。

5.1.5 脚手工程
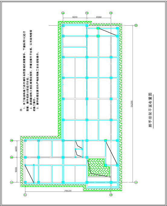
由于本工程的结构高度最高为24 米,故在结构外围考虑采用落地钢管脚手,在井架附近的施工便道上作防护顶棚。土建结构封顶后,同样利用该脚手体系进行外墙饰面的施工,从上而下施工,随拆除脚手。

施工组织部署
5.2.2 施工准备

5.2.2.1 技术准备
开工前根据甲方提供的图纸编制详细的施工组织设计,组织施工管理人员(包括班组长)熟悉图纸、施工规范、操作规程,做好技术交底与质量、安全交底;指定专人做好钢材、水泥等材料抽样送检工作;指定专人做好各工种的原始施工记录和隐蔽验收记录。同时,尽快准备图纸交底与会审。
5.2.2.2 图纸会审
组织有关施工人员详细阅读施工图,充分了解设计意图,核对图纸节点和尺寸,然后由项目工程师组织会审,分析并汇总施工图中的问题,以便按工程特点和合同要求组织施工。
5.2.2.3 设计交底
在充分了解施工图的基础上,由建设单位组织设计单位向施工单位进行施工图交底,进一步理解施工图或有关图纸问题,与业主和设计单位达成一致意见,并把交底记录整理成文,印发有关单位,并作为设计文件的组成部分。
5.2.2.4 施工现场区域划分
1.本工程施工虽然施工场地宽阔,但工期紧,在施工过程中必须充分利用建设空间。根据本工程的施工特点,进行科学动态管理现场,施工现场平面布置图按施工进程进行合理调整。
2.明确划分施工区域和材料堆放场地,保证材料运输道路环通通畅,施工方便。
3.平面布置要符合施工流程要求,减少对专业工种和其他方面施工的干扰。
4.施工区域与生活区域分开,且各种生产设施布置便于施工生产安排,且满足安全防火、劳动保护的要求。
5.平面布置要符合本市文明施工的有关规定执行,着眼于创市文明工地的目标实施,高起点,严要求。符合本工程总体环境的要求,进行封闭施工,不影响临近周围居民的正常生活。
5.2.3 施工测量工程
5.2.3.1 测量总则
根据建设单位提供的界址点及坐标尺寸、标高基准点以及设计单位提供的建筑定位图进行轴线放设及标高控制。
测量精度的控制及误差范围:
1)测角:采用三测回,测角误差±5”以内,总误差±5”以内。
2)测距:采用往返测法,取平均值。当气压、气温与标准气象条件相差很大时,考虑气象改正系数。
3)量距:用鉴定过的钢尺进行量测并且进行温度修正。
每层轴线之间的偏差在±1MM 以内,层高垂直偏差在±2MM 以内。
5.2.3.2 测量仪器
采用DSZ3水准仪一台进行水平测量,采用J2经纬仪一台进行角度测量,垂直引测采用DZG6 激光垂准仪一台,以及50m、30m、及5m 钢卷尺若干,并配置10kg 拉力器。
5.2.3.3 平面控制
根据规划局给出的红线和基准点,定出工程施工时基准线,依据基准线定四只正交垂直投点,并做好保护。
5.2.3.4 标高控制
基础施工时设工作水平基准点,定期与复核基准点进行核对。上部结构施工时,随施工进程每隔一定高度做一个水准点,记录水准点的标高,采用20m 钢卷尺从水准点向上引测每层标高,要求每层测量偏差不大于±3mm。标高及曲线测量如下图所示。
5.2.3.5 垂直度控制

在楼底层设3 个垂直度控制点。每层楼板上相应平面位置预留400×400 的孔,避开每层的柱、梁,并且点与点之间不被柱子等预留钢筋挡住视线。控制点设置成与轴线平行或垂直的闭合矩形,用激光垂准仪以天顶法进行垂直投测。具体过程为:把激光垂准仪架设在垂直控制点上,经整平、对中,打出激光向上投射至施工楼层孔上覆盖的光靶,360 度旋转投射点,通过上、下人员用对讲机联络,调整精度,直至激光投射点的轨迹呈直径小于10mm 的圆为止,移动光靶使光靶中心与该轨迹圆心重合。此时光靶中心即为该楼层的垂直度控制基准点,根据它们与轴线的距离,采用J2 级经纬仪和钢卷尺引测该施工楼层的轴线,这样就能保证楼层的垂直度。
具体测量方案示意图见下页所示。

基础工程施工技术措施
5.3.1 桩基施工
根据本工程的桩型,桩数量等因素,考虑选用JND-260 型全液压静力压桩机。
5.3.1.1 桩的制作、吊运和堆放
5.3.1.1.1 制作
采用工厂预制桩,在工厂制作的过程中,派专职质量员到工厂进行预制桩的制作监督,确保制作过程的质量保证,预制桩进场按项目部的指令分散、分批进场预制桩进场时,随车携带质保书。
5.3.1.1.2 桩的吊运
1.桩的吊运条件
当桩身混凝土强度达到设计强度的70%时方可起吊,达到设计强度的100%时才能运输。桩起吊时,使每个吊点同时受力,使之保持平稳,保护桩身质量。
2.桩的吊运方式
a.运桩时采用具有弹簧和转盘的平板车,转盘上的刚性托板应有足够长度,在刚性托板和桩之间用垫木衬垫,平板车的轨道力求平整,在运输过程中应注意使平板车保持平稳,避免振动、跳动和撞击,严禁损坏桩身。严禁在场地上直接拖拉桩体。
b.当桩放上平板车后,须清除桩上粘附的杂质。
5.3.1.1.3 桩的堆放
1.堆放场地平整、坚实。
2.垫木与吊点的位置应相同,并保持在同一平面上。各层垫木应上下对齐,最下层的垫木适当加宽。
3.桩的堆放尽量搬放在桩架附近,原则上按照沉桩顺利堆放,桩的堆放按不同型号分别堆放。
4.堆放层数一般不宜超过4 层。叠堆二层以上时各级支垫在同一直线上,支垫在l/5 处,要用止动楔块。
5.3.1.2 压桩施工
5.3.1.2.1 施工流程
a.压桩顺序遵循先压靠近需要保护的建筑、道路管线或堤坝侧的一排桩。这样,可以起隔断的作用,减轻压桩施工对这些保护对象的挤压。详见压桩流程示意图。
b.施工工艺流程

5.3.1.2.2 技术措施
1.场地要求平整,倾斜度<20,并铺设道渣压实,地基承载力达到0.12--0.13Mpa,施工现场有自来水源,施工用电400 千瓦。
2.测量基准点和水准点距离施工现场50m 以上,数量不少于3—4 个,并加以保护定期校核,以免因机械行走、压桩、开挖土方出现偏差,影响工程的质量,同时要求放线工作根据压桩的顺序分步进行。
3.进桩时,必须对桩身质量按标准进行验收,并由专人记录有关质量验收数据。
4.桩的连接采用焊接。焊接接桩的钢板采用低碳钢,焊条宜用E43型。预埋铁件表面保持清洁,上下节桩之间的间隙用铁片填实焊牢。
焊接时要采取措施,减少焊接变形,焊缝连续饱满。
5.整个压桩过程必须由监理单位专人对桩编号、桩身强度、焊接及沉桩顺序进行全面严格的监护,要按有关施工规范进行验收。
6.本工程的桩在施工中必须严格控制设计标高与水平位移,在地下无任何障碍物的情况下进行施打。
7.施工前,压桩单位根据设计的桩位图,按施工顺序将桩逐一编号,依据桩号所对应的轴线,按尺寸要求验收桩位,并设置样桩,以供桩机就位、定位。
8.为确保工程质量,施工过程由二台经纬仪在垂直方向上双向控制桩身垂直度(如下图所示),桩位轴线每天复测,压桩时做好沉桩记录。

9.在焊接过程中要严格按照施工图中桩接头详图和技术规范施焊,施焊人员应严格遵守操作规程,控制焊接速度和焊接顺序,保证焊缝质量。上下节桩的中心偏差不得大于10mm,节点弯曲矢高不得大于桩长的1‰,且不大于20mm。
10.停锤标准应由监理、设计、总包、压桩四方单位协商后统一落实实施,停锤后及时采取措施解决,尽量保证施打继续进行,以免造成不必要的施工困难及损失。
11.现场施工员对轴线、桩位、桩身垂直度、送桩标高、焊缝质量等要求严格检查复核,发现问题及时纠正,确保工程质量。
5.3.2 承台、地梁施工
5.3.2.1 基坑围护
本工程基坑挖深约1.2m。由于基坑深度不大,考虑放坡开挖,同时作好基坑排水工作。既要做好基坑外侧地面排水,防止坑外雨水流入基坑,而且不宜在基坑周围堆载。基坑开挖施工后暴露时间不宜过长,以保证基坑施工安全。
5.3.2.2 基坑排水
工程施工排水主要包括两方面:坑外排水和坑内排水。土方开挖之前为防止坑外水流入坑内,在坑外沿基坑和施工车道旁布置一条500×600mm 的砖砌排水沟,用来截住地面外来水侵入到基坑内;而坑内水主要来源:①土中的含水;②雨水。同时在坡底设置排水明沟和集水坑,在每个集水坑内设置一台泥浆泵,并派专人负责现场抽水。明排水方案的作用,主要是对地下水与雨水进行及时有效地排除,以确保土方顺利开挖施工。基坑排水对挖土和施工及围护相当重要,有效的排水不仅可为施工提供良好的操作条件,更重要的是还可在挖土过程中保证土体的稳定,并改善土体的性能。
5.3.2.3 基坑开挖
承台及地梁采用放坡开挖,按1:1 放坡,用挖土机进行大开挖,一次挖至基坑底标高以上200 位置,这部分土采用人工开挖。
坡顶不宜堆土或堆载,放坡开挖应采取有效措施排除地表水,严禁地表水或基坑排出的水倒流回渗入基坑。采用机械挖土,坑底应保留200~300mm 厚基土,用人工挖除整平,并防止坑底土扰动。挖出的土方,严禁堆放在基坑附近。
5.3.2.4 结构施工
1、模板施工
采用小钢模。
2、 钢筋施工
1)严格按设计施工图和国家规范的标准由钢筋翻样按图进行分批列单断料后方能加工。
2)对进入现场的钢筋必须根据清单进行整理、分类,按施工计划分点堆放整齐。
3)地梁、底板钢筋绑扎前要做到:
☆ 砼垫层应该达到能随钢筋和施工操作的重力承载强度。
☆ 轴线、柱截面尺寸该符合设计施工图。
☆ 加工进场的材料该达设计规定和国家标准。
☆ 承受钢筋重量和施工荷载的保护层垫块砼该达到能承受该部分重量的强度。
3、混凝土施工
1)基础钢筋由加工区的半成型钢筋运至现场绑扎成型。
2)钢筋的运输主要由汽车吊和人工来完成。
3)基础混凝土一次浇捣完毕。
4)汽车泵由东向西进行混凝土浇捣。
结构工程施工技术措施
1.主体结构高度约为24m,结构的外脚手采用落地式钢管扣件脚手。
2.脚手架的底脚在地面层上搭设,在地面层上铺设10#槽钢,使冲天(立杆)垂直稳定在槽钢上。
3.主体结构的钢管脚手搭设:冲天(立杆)纵距为0.9m,冲天(立杆)横距为1.2m,从20m 向上冲天采用常规单根钢管。
4.脚手架底部离地20cm 处设扫地杆,底步高度为1.8m,从第一步起,每步高度均为1.8m。
5.脚手架每步搁栅上应满铺竹笆,竹笆应用18#铅丝同钢管扎牢。
每排脚手靠墙面部位应铺脚手板脚手板离墙面不得大于20cm。
6.脚手架的外侧设防护栏杆,并设防护安全网。
7.脚手架与主体结构的拉结点是保证脚手架安全最重要的因素,应按下列要求严格执行:
a. 水平方向每三个冲天间距(5.4m),垂直方向每二步(3.60m)设一拉结点。
b. 拉结点一端用扣件与脚手架紧紧扣牢,另一端在主体结构上预埋铁件,把拉结连杆固定在预埋件上。
c. 脚手架的最上部因承受较大风力,拉结点应密设置。
8.在脚手架外侧每隔9m(水平距离)左右用斜杆搭设剪刀撑,斜杆与地面成45°~60°角。
5.4.2 模板施工
1.平台模板材料采用九夹板。
2.板、梁底模支撑系统采用钢管扣件排架支撑,板梁模板用Φ48×3.5 钢管排架支撑,立杆横向、纵向间距一般为0.8 米左右,特殊情况视实际适当加密立杆,在梁底同时在横向增设剪刀撑,以加强整体稳定性。梁板支架如下图所示。
3、柱模结构所下图所示。

4.根据所测标高,弹线位置在柱四周,可用1:2 水泥砂浆通长做模板底座,宽度约为5CM。当具有一定强度时(一般为1d)方可支模。
模板组装根据图纸尺寸依次对号入座。模板就位后安装围檩,用对销螺栓将模板夹紧,松紧程度以碰到上下限位为准。阴阳角挂小线锤校准垂直度,模板上口拉麻线校准平面出进,待检查校正后即把松动的螺栓全面拧紧固定。
5.模板组装完毕,全面进行检查并做好记录。模板组装的允许偏差2MM,模板位置偏差3MM。混凝土强度达到1.2Mpa(通常为1d)才能松螺栓开始拆旁模。拆模严格按与组装顺序相反进行。
6.平台底模采用九夹板中间起拱,支撑采用Φ48 钢管排架,排架平面尺寸≤900MM 离地面1.5M 处设水平牵杠。搁栅采用Φ48 钢管,联结采用扣件。
5.4.3 钢筋施工
1.钢筋堆放于拟建物东南侧的临时堆场,由汽车吊吊运施工操作面。
2.在钢筋绑扎过程中如发现钢筋与埋件或其他设施相碰时,会同有关人员研究处理,不得任意弯、割、拆、移。
3、上部结构竖向钢筋的连接采用电渣压力焊,现场配备一套电渣压力焊设备。
5.4.4 混凝土施工
5.4.4.1 浇捣前的准备工作
1. 预先了解天气情况,最好选在无雨的天气浇捣砼,如有雨准备足够数量的防雨物资(如塑料薄膜、油布、雨衣等)。
2. 制定浇捣期间的后勤保障措施。
3. 会同监理对所有的钢筋、模板、水电预留管、预留孔进行质量验收,清除垃圾,天热还需浇水湿润模板。并做好书面资料。
4. 制定砼浇捣期间的管理人员名单,落实每个人的职责。机修、电工到场。
5.配备好振捣器、太阳灯、对讲机等设备。
5.4.4.2 泵送砼的技术要求
1. 开始泵送时,应使砼处于低速运转,待泵压和各部分的工作正常后,再提高运转速度加大行程,转入正常的泵送。
2. 正常泵送过程中,宜保持泵送的连续性,尽量避免泵送中断,若砼供应不及时,宁可放慢泵送速度,也要保持泵送的连续性。因为在泵送过程中,输送管内砼拌和物处于运动状态,砼中各部分呈均匀分布状态,泵送中断时,剩下的粗骨料易造成输送管的堵塞,停泵时间不得超过15 分钟。
3 泵送过程中一旦因故中断时,砼泵应每隔4-5 分钟开泵一次,每次使泵正常运转和反转二个冲程,以防止输送管内砼拌和物造成堵塞。这时受料斗中的砼应保持一定高度,否则将造成吸空和外喷。
4. 在泵送砼过程中,受料斗内应充满砼,以防止吸入空气,如吸入空气,应立即反泵将砼吸回料斗内,去除空气后转为正常运转。
5. 在泵送砼时,水箱应充满洗涤水,并应经常更换和补充。
6. 泵送将结束时,应估算残留在输送管内的砼量,这些砼经水或空气推动后才能使用。
7 砼泵使用完毕后应及时清洗,输送管边也应清洗干净,以防砼残留在管道中影响下一次砼泵送。
5.4.4.3 结构混凝土浇捣
1.主体结构一次浇捣,即每层柱、梁、平台一次浇捣完毕。
2.砼浇捣时,从东向西顺序退捣,在施工便道布置1 台汽车泵,用软管接至结构施工面,浇捣区域范围内的砼。
3.在浇捣砼的过程中,应由专人(管理人员)在施工面上统一指挥控制好各泵车的速度,合理进行供料控制,特别对墙砼,要适当增加振捣次数,以防下皮砼超过初凝时间。
4.泵车的浇捣区要求以2~3 人为一组配二台振捣器,共2 组人员,其中一组振捣柱砼,一组在后面振捣流淌的砼(特别是柱砼),随着砼浇筑工作向前推进,以确保砼的密实度,操作时要分清每组的振捣范围,采用插入式振捣器分层振捣,由于本工程的柱、板、梁的钢筋可能相当密集,空隙较小,对振动棒的要求较高,故此振捣时要详细交底,并派老工人指导,在振捣柱砼时,要由有经验的技工在下面配合敲击模板,以确认砼的密实程度,振动机要求快插慢拔,间距@500左右一点,振出气泡,以确认砼的密实度,振动器插入砼深度应是插入下一皮砼5cm 左右,以保证上、下、层砼的密实。浇捣时要有管理人员和专职人员在作业面指挥和监控。
5.在浇捣时,应有专人看模、看铁、经常注意观察模板、钢筋、预埋件和柱、墙插筋等有无移动、位移、变位、发现问题要及时处理。
6.在砼浇捣至面标高后的2—3 小时,应派专人用铁滚筒反复碾压数遍,再用木蟹打磨压实,等砼收水后用平板式拖动机碾,再第二次用木蟹抹平实,以防止出现收水裂缝。在插筋较密处,滚动无法压实,应用木蟹数次拍实。
7.砼试块,每100m3 混凝土制作试块一组,另增加2 组拆模试块,坍落度测定每隔2 小时在现场测定(随时解决坍落度过大或过小问题),现场决不允许随便加水,如发现坍落不符合要求时,应及时和搅拌站联系后进行调整,必要时要作调整处理。
8.混凝土工程技术措施
(1)正常泵送过程中,宜保持泵送连续性,尽量避免泵送中断,若砼供应不及时,宁可放慢泵送速度,也要保持泵送连续性。在泵送过程中,输送管内砼拌合物处于运动状态,砼中各部成分呈均匀分布状态,泵送中断时,剩下的粗骨料易造成输送管堵塞。当再次继续泵送时,剩下的粗骨料易造成输送堵塞。故此,要合理调整粗骨料粒径和砼塌落度,当中断时间过长时(超过2 小时),拆管清理后,重新进行排管。
(2)按照浇捣方案,组织全体施工人员进行大型技术交底会,使每个操作人员对技术要求、砼下料方法、振捣步骤等做到心中有数。
(3)全体施工管理人员实行岗位责任制,做到职责分清,奖罚分明。
(4)砼搅拌车进场,砼品质严格把关。检查搅拌车运输时间、砼塌落度、可泵性是否达到规定要求。对不合格者要立即与搅拌站进行联系,严禁不合格砼进入泵车输送。
(5)泵车进料量要及时反映到调度室,按浇捣总量及时平衡搅拌车进入泵位,基本做到浇捣速度均匀。
(6)砼浇捣时按每皮下料高度控制在50cm,做到边下料边振捣。每台泵的砼浇注面不少于4 只振动棒进行振捣。
(7)当泵管发生爆管时,若砼散落在模板上,经估计后砼散落至散落处的时间少于砼初凝时间,则可以不派人去清理。若砼散落至散落处的时间超过砼初凝时间,则立即派人去清理散落砼,在砼浇捣至该处前,必须清理干净。
(8)砼浇捣必须连续进行,中途操作者、管理人员轮流交替用餐。
(9)砼表面处理做到“三压三平”
a. 首先按面标高用铁锹拍板压实,长刮尺刮平。
b. 其次初凝前用铁滚筒碾压数遍。
c. 最后终凝前,用木蟹打磨压实、整平,防止砼出现收水裂缝。
(10)砼泵使用完毕后及时清洗,输送管边也清洗干净,以防砼残留在管道中影响下一次砼泵送。
5.4.4.4 柱施工缝处理
1.柱施工缝留设在底板面或楼面层,砼浇捣比板面高3-4cm。
2.柱钢筋绑扎前,砼终凝后,施工缝表面浮砼要凿去,松动的石子要清除,灰尘要清扫干净。
3.砼浇捣前必须将新老结合处施工缝湿润后才能进行浇灌砼。柱脚节点处理如下图所示。

5.4.5 砌体工程
1.墙体砌筑
施工前先在基层弹线,在砼墙、柱上弹出垂直线,对表面的垃圾、杂物进行清扫。由于本工程砌筑砖体数量不多,因此要求同一段的墙体同步砌筑。在砌筑过程中要注意保持墙面平整垂直,灰缝饱满。砌墙灰缝要上下错缝,内外搭砌的头缝要饱满,没有漏缝。并按设计和规范要求设置拉墙筋。在施工过程中认真执行自检制度,如发生偏差及时纠正。砌墙时要派技术好的施工人员立尖角,同时预留门窗洞口尺寸及标高必须符合设计要求,在砌筑过程中用托线板及线锤经常检查头角墙面,保证墙面垂直。并及时清扫墙面。砂浆根据不同要求配制,计量要准确,搅拌均匀且有良好和易性。当天砂浆当天用完,并按规定留置试块。对于灰砂砖的施工,必须做到隔夜浇水湿透。
2.砌体工程施工技术措施
a. 砖块进场必须要有质保书,并经试验室检测合格后方能使用。
b. 砌筑前楼层面建筑垃圾清扫完毕,并在楼面全面进行弹线工作。不仅弹墙身线,而且装修工程内外门窗控制轴线、水平标高线在砌筑工程开始前要全部结束,为今后的门窗安装创造条件。
c. 施工留搓统一排齐,尽量减少留搓部位,以减少留搓洞口对墙体削弱。
d. 严禁干砖上墙,砌筑前提前浇水,水洇湿砖10mm 为宜。墙体砌筑时按在砼柱、墙预先划好的砖皮数进行砌筑。
e. 砌筑泥工按每层工作量配备合理人数,有步骤地逐层浇水作业,保持劳动力均衡施工。
f. 墙体施工要与管线安装紧密配合,留孔、留洞尽量做到预先设置,减少返工开凿现象。
g. 砂浆配合比试验室到现场取样品做试验,提供级配,砂浆要严格按配合比配制,要严格掌握水灰比。
h. 轻质墙要有质保书合格证,龙骨施工完毕后,要经验收后才能施工面层。
屋面工程施工技术措施
细石砼找坡水泥标号宜采用425 号,砂采用中砂,含泥量不大于3%。
为了保证屋面排水畅通,屋面必须做足坡度。施工时应正确设置标尺、弹线。天沟应使用水泥砂浆(1:3)找平,天沟的纵向坡度为0.5-1%,内落水的水落斗周围应使用细石砼做成半径为0.5 米,坡度大于5%杯形坡。
找平层起砂脱皮等缺陷会影响卷材防水层的粘结力,克服的方法有:材料质量应符合要求,施工时基层应清理干净,表面湿润,砼浇捣前还可先刷水灰比为0.4-0.5 的水泥浆一遍,随刷随浇捣,并粉平压实。粉平时严禁在表面撒水,不得在终凝后进行粉平压实。
砼终凝后应根据季节气温进行浇水养护或铺盖保温材料。常温下养护时间不小于五天。
砼未结硬前和养护期间不得在上面行走和堆物。
5.5.2 防水卷材施工
1、清扫基层,清理基层上浮灰,铲除浮砂及残留砂浆。
2、均匀滚刷冷底子油一道,不得漏涂。
3、进行节点、附加层处理。在落水管及出屋面的管线处采用涂膜型防水材料和改性沥青油膏进行密封,加强处理。
4、在分仓缝处单边粘贴250 毫米宽卷材附加层,同时在女儿墙处、泛水垂直面和屋面水平面相连处加贴卷材附加层,宽度为垂直面贴到女儿墙处大于250 毫米,转至水平面处粘贴大于200 毫米,屋面内天沟处附加层为天沟内全贴至天沟外大于200 毫米。
5、对节点、附加层处理完后,准备大面积铺贴卷材前,会同甲方、监理工程师、总承包等施工单位对前道节点、附加层进行隐蔽工程验收,在验收合格后,进行大面积铺贴,并做好验收资料。
6、在大面积铺贴时,先沿平行屋脊方向弹出铺贴线,然后从屋面的落水处开始自低向高处按弹线进行铺贴。
7、女儿墙泛水卷材收头处根据规范要求,拟用金属压条钉压固定,并用改性沥青油膏封口,再用涂膜型防水材料封固收头。
装饰工程施工技术措施
室内外主要装修(不包括二次装修):1、楼地面:钢筋混凝土板上20 厚水泥砂浆抹平、地砖、水磨石、花岗岩; 2、内墙面:混合砂浆底,白色乳胶漆面、磁砖;3、天棚:水泥砂浆找平。
5.6.1 施工部署
1.材料运输及安排
装饰材料依据计划进场后及时入库,妥善保管,并要限额领料。
装饰材料由人工及手推车作平面运输。井架作垂直运输。
2.施工安排
a. 当建筑物土建结构施工完毕,该部位粉刷装饰工程可以开始进行施工。
b. 装饰施工前,必须由上级质量部门对钢筋砼、砖墙砌筑结构质量、门窗安装进行验收合格后才能进行装饰施工。
c. 装饰材料由井架送至各楼层面进行施工。
d. 内外墙面、平顶、地面装饰工程结束后,必须做好产品的保护工作。
3.施工工艺流程

4.普通粉刷

a. 装饰施工前做好结构验收工作,并且由技术人员根据设计图纸要求对班组进行技术交底。对墙体凹凸太多要垫平或凿平,砼面要斩毛,基底表面的灰尘、污垢、油渍、碱膜均清洗干净。所有的空洞要坞牢,做到密实无渗漏现象。
b. 装饰工艺一般按先上后下的原则进行,以便做到减少修理,保护成品。装饰时要浇水湿润墙面。内墙阳角(包括门窗)均装出1:2 水泥砂浆护角线再做面层,除明确由二次装修提供设计的用房外,所有内墙、地面、平顶(含水箱)的阴阳角均需装出圆角。
c. 基层达到表面洁净、粗糙、基本平整(凸凿凹填)。
d. 为有效地控制抹灰层的垂直度、平整度和厚度,使其符合抹灰工程的质量验收标准,在抹灰及饰面工程施工中设置灰饼和冲筋,作为底层抹灰的依据(注意阴阳角方正的处理)。
e. 为使外突阳角在抹灰后线条清晰、挺直,并防止碰撞损坏,护角线采用暗护角线(空门洞除外)。
f. 底层抹灰压实粉平,使其粘结牢固。中层待底层稍干后,方能进行操作(隔夜糙)。并用刮尺和木蟹打平整。
g. 罩面待中层达到六七成干后进行。先从阴、阳角开始。铁板压光不少于两遍。
h. 装修完进行质量检查,发现有超出检查规范的,整修达到合格。
5.6.2 主要装饰工程施工
5.6.2.1 花岗岩地面施工
地面石材选材必须符合设计要求。铺设应按设计图纸的花饰和布置线,并按实际测定编排的板块进行编排,编排无误方可铺设。
基层要求做到平整洁净,铺贴前板块应先浸水湿润,阴干后擦去背面浮灰,方可使用。
安放必须四周平正下落,并用橡皮锤敲击平实,调好缝,并随时检查砂浆粘结层是否平整、密实,如有空隙,必须及时纠正。
灌缝用素水泥浆灌2/3 高度,再用与面板相同颜色的水泥浆灌缝,然后用干木屑拭净擦亮,并用干木屑或其它遮盖品覆盖保护,2-3 天内禁止上人。
5.6.2.2 地面砖楼面施工
5.6.2.2.1 工艺流程
楼层基层处理——弹水平标高线——出灰饼——施工找平层——弹线——贴地砖——压平、拔缝——质量自检——落手清。
5.6.2.2.2 施工方法
1.施工前先清理楼面,出灰饼,做15 厚1:3 水泥砂浆找平。在房间纵、横二个方向排好砖,其接缝宽度不大于2mm。当排列两端边缘不合整砖时(或特殊部位),应量出尺寸,将整砖切割成镶边砖。排砖确定后,用方尺规方,每隔3~5 块砖在结合层上弹出纵、横控制线。
2.将选配好的地砖清洗干净后,放入清水中浸泡2~3 小时后取出,凉干备用。弹完线后,接着按顺序铺砖。铺砖时,应抹5 厚1:2水泥砂浆,按线先铺纵、横定位带,定位带各相隔15~20 块砖,然后从里往外退着铺定位带内的地砖。将地面砖按控制线铺贴平整、密实。
3.压平、拔缝:每铺完一个段落,用喷壶略洒水,15 分钟左右,用木锤和硬木拍板按铺砖顺序锤拍一遍,不得遗漏。边压实,边用水平尺找平。压实后拉通线,先纵缝,后横缝,进行拔缝调直,使缝口平直、贯通。调缝后再用木锤、拍板砸平,随即将缝内余浆或砖面上的灰浆擦去。
4.从铺设砂浆至压平、拔缝,应连续作业。常温下必须5~6 小时完成。
5.嵌缝、养护:铺设地面4 小时后,将缝口清理干净,刷水润湿。
用1:1 水泥细砂浆嵌缝,嵌实压光,用棉纱将地面擦拭干净。嵌缝结束后,要铺锯末洒水养护,不得少于7 天。
5.6.2.3 磁面砖内饰面施工
5.6.2.3.1 施工工艺
1.抹灰前将墙面基层表面的灰尘,污垢和油渍等清除干净,并洒水湿润。墙面凿平,凹处用1:3 水泥砂浆补平,补平层较厚时应分层进行,厚度超过40mm 时要在基层上设钢筋网片后再用砂浆抹平。
2.在墙角处挂垂直线并做上、下塌饼,横向水平线。
3.根据塌饼厚度用1:3 水泥砂浆刮糙,糙坯层表面用刮尺、木蟹刮平整。
4.磁面砖粘贴前应先选砖,并分格,磁面砖的排列应避免非整砖,非整砖应粘贴在次要部位或阴角处。
5.在墙面及转角处每隔2m 左右坞好贴面标志(可用面砖、角料),以控制面层砖平整度、垂直度和粘结的厚度。
6.磁面砖铺贴前先将其洗刷干净,放入清水中浸泡2h 以上,取出将表面晾干后使用。
7.磁面砖铺贴根据预定的流水分块进行,每个分块自上而下铺贴。
操作时在磁面砖背面刮满刀灰,粘结层厚度应为6~8mm,磁面砖上墙后,用直尺调整度和垂直度。第二层,木条依次取出,用水洗净后继续使用。
8.磁面砖表面的清洁工作应在当天随即做好,如完成后还有不洁水处,可用5%~10%稀盐酸清洗墙面。
5.6.2.3.2 质量要求
1.磁面砖的品种、规格、颜色和图案必须符合设计要求。
2.磁面砖粘贴必须牢固,无歪斜、缺角掉棱和裂缝等缺陷。
3.磁面砖表面应平整、洁净、色泽协调、无变色、泛碱、污痕和显著的光泽受损处。
4.磁面砖接缝应填嵌密实、宽窄均匀,颜色一致,非整砖使用部位适宜。
5.突出物周围用整砖套割吻合,使边缘整齐,贴脸条突出墙面的厚度一致。
6.流水坡向正确,滴水线顺直。
5.6.2.4 涂料饰面施工
5.6.2.4.1 施工准备
1、在基层施工前应对结构进行检验,符合设计要求时,才可以进行基层施工。
2、水暖、电气管线已安装完毕。
3、各种预埋件已安装就位。
4、基层表面必须坚固和无酥松、脱皮、起壳、粉化等现象,基层表面的泥土、灰尘、油污、油漆、广告色等杂物脏迹,必须清洗干净,粉化物必须铲除。
5、基层必须干燥,新抹砂浆面层经自然养护10d 以上才能进行施工。
6、基层要平整,但又不应太光滑,孔洞和不必要的沟槽应进行修补,修补材料可用聚合物水泥浆进行。
7、基层表面的垂直度、平整度、强度符合施工质量要求。
8、有关涂料基层处理材料就位,均符合设计要求。
5.6.2.4.2 施工工艺
1、涂料工程使用的腻子,应坚实牢固,不得粉化、起皮和裂纹,湿度较高的房间,应用耐湿性的腻子。
2、腻子干燥后,应打磨平整光滑,并清理干净。
3、施涂涂料前,对基层表面应再作灰尘、污垢、溅沫的清理,潮湿的表面不得施涂涂料。
4、涂料的工作粘度或稠度,必须加以控制,使其在施涂时不流坠,不显刷纹。
5、后一遍涂料必须在前一遍涂料干燥后进行,每一遍涂料应施涂均匀,颜色一致,各层必须结合牢固。
6、涂料施涂时的环境温度,应按产品说明书的温度控制。
7、施涂结束后,应将施工现场清洗干净。
5.6.2.4.3 控制措施
1、基体或基层的含水率不得大于10%。
2、施涂时,后一遍涂料必须在前一遍涂料表面干燥后进行。每一遍涂料要施涂均匀,各层结合牢固。
3、按产品要求的温度施涂。
4、为保证装饰质量,应满刮1-2 遍腻子后,再施涂涂料,在施涂刷过程中,应用力及用量分布均匀,防止产生流挂、裂纹、颜色不一致等质量问题。
5.6.3 门窗工程
5.6.3.1 铝合金门窗安装要求
1、根据塌饼弹门窗垂直线,离外墙面砖面距离控制在10.5~11 厘米内。
2、门窗框安装牢固,予埋件和连接件应是不锈钢件或经防锈处理金属件规格,数量和位置按图纸尺寸准确埋入砖墙、砼中。予埋件间距一般小于350 毫米,连接件厚度大于2.5 毫米,宽度大于20 毫米节点联结小于500 毫米,门窗装入洞口应横平竖直,外框与洞口弹性连接牢固,不得直接埋入墙体。
3、门窗安装的偏差必须严格控制,按设计位置框垂直度和中心线的偏差为宽度小于3 米时小于5 毫米,宽度大于3 米时小于8 毫米,上下各楼层同位置窗立柜相对位移小于20 毫米。
4、同高度相门窗框相对的高度差小于3 毫米,门窗横框的水平度小于1.5 毫米,门窗框的平面度小于2 毫米。
5、门窗框安装固定后,框与墙体间应隔均匀,饱满密实地填充材料,采用矿棉和玻璃棉毡条,分层填塞缝隙,外表面留5~8 毫米槽口填嵌嵌缝油膏。
5.6.3.2 铝门窗安装技术指标与质量标准
1、门窗两对角线长度差允许偏差:大于2 米:3 毫米,小于等于2 米:3 毫米,检验方法:用钢卷尺检查,量里角。
2、平开窗:窗扇与框搭接宽度差偏差限值:1 毫米,用深度尺或钢板尺检查。同樘门窗相邻扇的模端角高度差:2 毫米,用拉线和钢板尺检查。
3、推拉扇:门窗扇开启力限值允许偏差扇面积小于等于1.5 平方米小于等于40 牛,大于1.5 平方米小于等于60 牛。用100 牛弹簧秤勾住拉手处,启闭五次取平均值。门窗扇与框或相邻扇立边平行度允许偏差:2 毫米,用1 米钢板尺检查。
4、弹簧门扇:门扇对口缝或善与框之间立、横缝留缝限制:2~4毫米,门扇与地面间隙留缝限制:2~7 毫米,均用楔形塞尺检查。门扇对口缝关闭时平整允许偏差:2 毫米,用深度尺检查。
5、门窗框(含拼樘料)正、侧面的垂直度允许偏差:2 毫米,检验方法:用1 米托线板检查。
6、门窗框(含拼樘料)的水平度允许偏差:1.5 毫米,检验方法:用1 米水平尺和楔形塞尺检查。
7、门窗横框标高允许偏差:5 毫米,用钢板尺与基准线比较。
5.6.3.3 木门窗制作安装要求
1、门窗框必须符合设计要求,位置包括编号、空间位置。门框应按下端锯口线为准,对照设计所指定的标高,空间位置是指门窗框与纵横墙的相对尺寸,与墙面是外平还是内平,或是在墙身中间,如平开式的。必须认准开启方向,避免装反方向。
2、门窗框必须安装牢固,在砖石墙上安装木门框时应以钉子固定于砌在墙内的木砖上,安装木门窗的固定点位置和固定数必须符合施工规范。每边的固定点应不少于两处,其间距应不少于1.2 米,如门窗框的一面需钉贴脸时(即门头线),则门窗框应凸出墙面,凸出的厚度应等于抹灰层的厚度。另外还应注意框与木砖间如存在空隙,必须用木板衬严密后,才能用钉子钉牢固,否则将会造成框的弯曲。木砖必须先经防腐处理后方可使用,包括木框与砌体等接触处的防腐处理。
3、门窗框与墙体间要用水泥砂浆填塞密实。
4、双扇门、扇门中间的高低缝(亦称叠缝)应顺直。门窗扇安装涉及的刨面,只指扇高宽的四周侧面,为达到留缝符合要求,刨的面应平整、光滑并倒去棱角,使其边角整齐。开关要灵活,不允许在开关过程中发生与框子、地面、扇与扇之间存在碰擦现象。不能有倒翘现象,除了门窗扇、门窗框无翘曲现象外,安装位置也要正确。
5、门窗小五金应安装齐全,位置适宜,固定可靠,符合设计要求,小五金均应用木螺丝固定,不得用钉子代替。应先用锤打入三分之一深度,然后拧入,严禁打入全部深度,锁距门窗上、下端宜取立挺高度的十分之一,并避开上下冒头,安装后应开关灵活,门窗拉手应位于门窗高度中点以下,窗拉手距地面1.5~1.6 米为宜,门拉手距地面0.9~1.05 米为宜,如门锁的位置,一般应离地1 米,不宜在中冒头与立挺的结合处安装门锁。
6、要严格按照规范控制门扇与地面间、门扇与下坎间的留缝宽度。
5.6.3.4 木门窗制作的技术指标与质量标准
1、翘曲:框允许偏差:I、II 级为3 毫米,III 级为4 毫米,扇分别为2 毫米和3 毫米,检验方法:将框扇平卧在检查平台上,用楔形塞尺检查。
2、对角线长度差(框、扇)允许偏差:I、II 级为2 毫米,III级为3 毫米,检验方法:尺量检查,框量裁口里角,扇量外角。
3、胶合板(纤维板)门扇在1 平方米内平整度允许偏差:I、II级为2 毫米,III 级为3 毫米,检验方法:用1 米靠尺和楔形塞尺检查。
4、宽、高框允许偏差:I、II 级为+0~1 毫米,III 级为+0~2 毫米,扇分别为+1~0 毫米,+2~0 毫米。检验方法:尺量检查,框量内裁口,扇量外缘。
5、裁口线条和结合处高差(框、扇)允许偏差:I、II 级为0.5毫米,III 级为1 毫米,检验方法:用直尺和楔形塞尺检查。
6、扇的冒头或檩子对水平线允许偏差:I、II 级为+1~1 毫米,III级为+2~2 毫米,检验方法:尺量检查。
5.6.3.5 木门窗安装技术指标与质量标准
1、框的正、侧面垂直度允许偏差:I 级为3 毫米, II 、III 级为3 毫米,检验方法:用1 米托线板检查。
2、框对角线长度差允许偏差:I 级为2 毫米, II 、III 级为3毫米,检验方法:尺量检查。
3、框与扇、扇与扇接触处高低差允许偏差2 毫米,检验方法:用直尺和楔形塞尺检查。
4、门窗扇对口和扇与框间留缝宽度1.5~2.5 毫米,检验方法:用楔形塞尺检查。
5、框与扇上缝留缝宽度允许偏差:1.0~1.5 毫米,用楔形塞尺检查。
6、窗扇与下坎间留缝宽度允许偏差:2~3 毫米,用楔形塞尺检查。
7、门扇与地面间留缝宽度允许偏差:外门为4~5 毫米,内门为:6~8 毫米,卫生间门为:10~12 毫米,用楔形塞尺检查。
8、门扇与下坎间留缝宽度允许偏差:外门为4~5 毫米,内门为3~5毫米,用楔形塞尺检查。
5.6.4 装饰工程技术措施
1.墙面进行砂浆粉刷采取必要的技术措施,制定合理的施工方案,确保粉刷层施工质量。
2.粉刷步骤内墙先平顶,再墙面,最后为地面粉刷和装饰。外墙从上至下顺序进行。
3.墙面粉刷要做好粉刷厚度灰饼。
4.楼地面粉刷前,面层建筑垃圾要清扫干净,经监理认可后再进行下一道工序施工,防止地坪起壳。
5.楼地面铺贴地砖要先在室内绘制排列图,然后现场放线,经业主、监理认可后,确定铺贴方案。
水电安装工程施工
5.7.1.1 施工方法
1.预埋配合主要施工方法:按图纸尺寸与结构尺寸对预埋套管、预留孔洞进行校对,测得正确的尺寸作为预埋预留标准尺寸,施工完毕前进行复核。套管预埋时与钢筋一次性焊牢。预留孔洞的模具按照比管道直径大两档的要求进行制作,并按照模板上的标记进行放置,待砼强度达到30%时,及时拆除模具。
2.给水管道施工方法:生活给水系统管道由下而上先安装立管,再安装分支管;管道安装前先安装支架后安装管道。
3.排水管道施工方法:排水管道由下而上先安装立管再安装支管,排水管道连接采用粘结剂粘接。
4.消防管道施工方法:镀锌钢管采用螺纹连接,无缝钢管采用法兰连接。
5.卫生洁具安装:在土建装饰施工完毕后进行安装,卫生洁具固定采用螺栓固定,安装完毕后做好产品保护工作。
6.附属设备安装:设备基础混凝土强度达到>70%时及土建湿作业完工后,进行设备的安装。
5.7.1.2 施工工艺流程
1.预留孔洞、预埋套管施工流程:材料准备→预制加工→测量定位→固定→复核→隐蔽验收→清理
2.给水管道工艺流程:施工准备→预制加工→干管安装→支管安装→管道试压→管道冲洗→管道防腐和保温→交工验收
3.排水管道工艺流程:安装准备→管道预制→污(雨)水干管安装→立管安装→支管安装→灌水、通水、通球试验→交工验收
4.消防管道及设备安装工艺流程:安装准备→主管预制→主管安装→支管及消火箱栓安装→消防水泵、水泵结合器安装→管道试压→管道冲洗→联合调试
5.卫生洁具安装工艺流程:安装准备→卫生洁具及配件检验→卫生洁具安装→卫生洁具配件预装→卫生洁具安装→卫生洁具与墙面缝隙处理→卫生洁具外观检查→通水试验
6.附属设备安装工艺流程:基础复测→设备开箱检查→设备就位→设备找正找平→进出水管安装→清洗加油→电气接线→设备试运转
5.7.2 电气安装工程
5.7.2.1 施工方法
1.动力、照明、弱电系统施工
暗钢管敷设按照先柱、梁、墙身后平台的施工程序,采用垂直管道集中预制,水平管道流水安装的施工方法配合土建结构施工。
箱盒安装采用划线定位的方法,固定箱盒,成排的箱盒用拉线定位固定。暗装的配电箱采用先安装箱壳后安装箱内胆的方法进行预埋;
明装的配电箱在结构中先预装过渡终端箱,然后安装配电箱。
导线敷设采用电源线为黄、绿、红色相线,浅兰色为零线,黄绿双色线为接地线,除上述颜色线之外可另选一种颜色线为照明开关线。
导线的连接采用铜鼻子或压接的方法进行导线连接。
2.桥架、电缆施工
采用先安装支架后安装桥架最后敷设电缆的程序。桥架安装采用先安装水平部位,后安装垂直部位,最后安装设备机房部位的方法安排施工。
电缆敷设前,按照设计图纸编制电缆敷设排列图,做到敷设一根固定一根,在直线段,转角处始终端设置标志牌。
5.7.2.2 施工工艺流程
1.动力、照明系统施工工艺流程:钢管敷设要求→预制弯管、切管套丝→测定箱盒位置及固定→管路连接丝扣套接→接地跨接线焊接→配电箱外壳固定→配管隐蔽验收→选择导线→管口护圈→导线连接→线路检查绝缘测→检查灯具开关等器具(配电箱柜安装要求)→箱盒防腐处理(槽钢基础)→送电调试、验收
2.桥架及电缆敷设工艺流程:桥架敷设要求→弹线定位→预留孔洞,预埋吊杆、支架及金属膨胀螺栓安装→支架与吊杆安装→桥架安装→保护接地线→质量验收→电缆敷设→检查电缆及绝缘检测→电缆敷设→挂标志牌→电缆绝缘测试→电缆终端头安装→通电试运验收
5.7.3 施工过程控制
a. 防雷接地系统施工
☆ 确定、统一引下线主筋位置、方向,每组引下线不少于2 根主筋,作为色标。
☆ 均压环处主筋焊接长度不小于主筋直径的6 倍,主筋四边满焊后除去药渣。
☆ 窗洞位置按标准图集EBD-02-93 施工,预留与窗连接的接地线。
☆ 电阻测定数值符合设计规定。
b. 暗配管施工
☆ 材料必须具有有效合格证、质量保证书、准用证。
☆ 箱盒定位正确,箱口紧贴模板,固定牢靠,箱盒内充填物饱满,模板拆除后及时清理箱内充填物。
☆ 管道进箱盒顺套,管口封堵严密,管道连接牢靠,模板拆除后,及时疏通管路。
c. 套管预埋
☆ 材料必须具有有效的合格证、质量保证书。
☆ 管壁均匀、无锈蚀现象。
☆ 管口切割齐平。有防水要求部位的套管必须焊止水铁板铁板厚度不小于3mm。
☆ 套管加工的长度按各系统的要求,结合楼板的厚度,计算出正确的长度,统一加工,并焊接固定套管的元钢与模板钢筋焊接。
d. 预留孔洞的施工
☆ 单根管道的洞孔,留洞尺寸大于管道直径100mm。
☆ 多根成排的管道,留洞尺寸应留长孔洞,管道之间距应大于100mm,管道四周与洞孔边间距应大于50mm。
☆ 预留孔洞上下位置尺寸保持统一。
5.7.4 主要施工配合措施
a. 管道工程
☆ 给排水、消防的预埋件、预留洞孔施工前,在施工图上测量正确的坐标、标高、位置、尺寸,并做好记录,以便预埋、预留、复核。
☆ 埋件统一加工制作,分类堆放。
☆ 埋件预埋时与钢筋可靠地焊接,防止位移、歪斜。
☆ 浇捣砼时,指定专人进行监护。
b. 电气工程
☆ 防雷接地引下线主筋的根数不小于两根,且每层用同规格材料焊接连通。
☆ 防雷接地电阻测试数值小于1Ω,使用的仪器经检定合格,并在使用有效期内。
☆ 电管敷设在楼板上下钢筋的中间,及墙板前后筋的中间,不得紧贴模板。
☆ 木模板固定箱盒用4”元钉进行固定,箱盒内的充填物用袋装木屑进行充填。
☆ 墙板上的箱盒安装大于100mm 的,用预留洞的方法进行过渡处理,相接时进行调整。
☆ 所有的管口用封堵护圈进行封堵防止水泥浆水浸入管内。
☆ 管线敷设完毕进行验收复核,浇捣砼时指定专人进行监护。
5.7.5 机电安装工程的施工技术措施
a. 一般措施
☆ 开工前,施工技术人员应认真做好图纸资料会审,编制相应的施工方案,对施工班组进行详细的施工技术交底。对工程内容、性质、质量要求、采用的规范、标准、进度、工期、设备材料到货情况、现场道路、环境等应尽量做到熟悉、了解。
☆ 施工全过程中,施工人员应严格按施工方案要求施工,严格遵循相应规范、标准、施工工艺、操作规程要求施工,并及时做好施工记录,强化自检、互检、专检的三检制,对特殊工种人员应按规定持证上岗。
☆ 施工全过程中,应加强工程项目管理,抓好施工现场的安全、质量、技术、进度、横向(纵向)的协调配合等方面的管理,及时发现问题,及时反馈信息,及时协同解决。
☆ 做好安装与土建、安装内部各专业(工种)间的交叉施工配合。
☆ 严格按照公司制定的工艺计量和质量计量网络图规定,进行工艺检测和质量检测,并及时做好记录。
☆ 强化质保体系,按质量手册要求,加强质量重要环节的控制和停止点检查,控制点处必须专人控制,停止点处必须停止检查,待合格后,才能进入下道工序。
☆ 严格按公司“质量保证手册”要求和相应程序文件规定施工,确保工程质量,满足用户要求。
☆ 严格按照现行的建筑安装工程施工及验收规范和其他有关的技术规程与规范的规定进行施工。
b. 管道安装工程的技术措施
☆ 各类管子、管配件、阀门等在安装前按规范要求检查,检验规格、型号、质量,符合要求方可使用。管子在下料、组对前应将管内浮锈、杂物清除干净,安装中断或完毕的敞开口应临时封堵。
☆ 钢管(除镀锌外)在安装前应涂刷防锈漆,安装完毕试压结束后按设计要求涂刷面漆。埋地钢管按设计要求进行外防腐处理。
☆ 丝扣连接的管道,其丝扣加工分2~3 次套丝,丝扣的断丝或缺丝不得大于丝扣全扣数的10%。
☆ 镀锌钢管丝扣连接后,丝扣露出的部分应做防腐处理。丝扣配件在安装时应向旋紧的方向一次旋紧,不得倒回。
☆ 管道焊缝的坡口可用气割或机械加工,用气割加工的坡口必须除去氧化皮。管子对口前,坡口管端的15~20mm 范围的铁锈、油污等应清除干净。
☆ 相同壁厚的管道组对时其内壁应平齐,内壁错边量不应超过壁厚的20%且不大于2mm。对口时不得用强力对正,以免引起附加应力。
☆ 对二次安装一次镀锌的管道应尽量做到地面预制,管道的直线长度和几何尺寸要符合镀锌槽的尺寸要求。
☆ 需二次安装的消防管道镀锌前必须检查其外观质量、焊接质量及沟槽的滚压质量(维克托利克型管接头)均符合要求后才能送去热镀锌。
☆ 埋地及暗装的管道应及时做好试压、灌水、通球等工作,办理隐蔽工程验收手续。
☆ 排水管道安装走向和位置应符合设计要求,水平管的坡度不得小于规范规定的最小排水坡度,不得有倒坡现象。
☆ 卫生器具在安装前,对其外观进行检查、复验型号。安装过程中,不准将管子钳等工具直接钳于镀铬铜管、装饰罩等表面,以免镀层剥落。安装后,卫生器具的支托架应平整牢固,与器具接触紧密,并做好产品保护措施。
☆ 管道安装要做好防堵措施,即在管道毛坯施工时,采取“上堵下开”的工艺,为此要加工各类管道的临时堵头,防止管道被建筑垃圾堵塞。
☆ 管道施工完毕后,按系统进行完整性检查。完整性检查分硬件和软件二部分,硬件检查是检查安装的管子、管配件、阀门、仪表、支吊架等是否符合设计和规范的要求,是否已全部施工完毕。软件检查是指管道安装的各类记录、签证是否及时、正确,只有完整性检查合格的管线,才能进行压力试验。
☆ 管道系统试压时应编制方案,绘制试压系统图,便于管道的试压和系统的调试。
☆ 管道的保温要求铺设平整、绑扎紧密,无滑动、松驰、断裂等现象。
c.电气安装工程的技术措施
☆ 对本工程的大量暗敷管(包括埋设在混凝土楼板和吊顶内的),要根据建筑物特点,采取相应的配管配线方法,特别注意以下几点:
☆ 按规范规定设过路箱,过路箱处的吊顶应设检修孔。
☆ 如建筑物有变形缝,管线(包括电缆及桥架)必须在变形缝处作补偿处理。
☆ 了解土建进度和施工方法,采取对应的措施,密切配合,既保证工程进度,又确保配管质量。
☆ 按现行规范做好管路的接地跨接,跨接所用材料截面和接触面应符合规定。
☆ 对本工程照明灯具既要保证内在质量,也要特别重视外观质量。强调以下几个方面:
★ 当吊顶高度小,要特别注意与风管、冷热水管、消防管、给排水管施工协调,不能占用上述管道的位置,更不能影响吊顶的高度。
★ 照明灯具位置要与安装在吊顶的喷淋头、烟(温)感报警器、风口位置协调,保证吊顶的美观。若有设计上的问题,应及早提出建议。
★ 保证灯具安装牢固。灯具重量大,超过吊顶龙骨的承载能力时,应专设固定灯具的支架。
★ 高杆路灯的基础必须牢固,除了考虑灯具灯杆自重,还要考虑风力。
☆ 配电箱内开关、电器质量是保证安全可靠供电的主要因素之一,同时要求与建筑协调的安装方式和箱体颜色。为此要求做到以下几点:
★ 与制造厂签订合同时要强调配电箱(柜)内开关、电器的质量,不能装上冒牌货和质量不可靠的产品。制造过程中,如有可能应派专业技术人员监制。运到工地必须进行质量检验。
★ 产品应符合现行国家技术标准,有品牌、有合格证,还应有施工图设计的编号、产品技术文件齐全。
★ 应坚持文明施工,安装前必备的土建条件是:屋顶无渗漏、门窗已安装完毕,可能损坏配电箱的装饰工作应结束。地坪已完成,至少毛地坪已完成,地坪标高已标出,无积水。不同时具备以上条件时,应有妥善的产品保护措施。
★ 安装用紧固件应用镀锌制品,水平、垂直偏差符合规定,接地应牢固、可靠,测量绝缘时应注意保证不损坏弱电电器。
d.通风空调工程的技术措施
☆ 在施工准备阶段,在采购、运输、储存、使用等环节上一定要加强管理,在投入使用前应有专业人员加以复核,以免发生差错。
☆ 严格执行风管和管配件的制作工艺,确保制作质量,风管连接安装时做好防漏风的措施,以满足达到国标检测标准。
☆ 风管保温要特别做好保温层,外表要有一层严密不透气的隔气层,以杜绝保温不善而引起的凝露现象。
☆ 空调设备安装时要做好隔振措施,防止隔振失效而产生振动噪声。
e. 设备安装工程的技术措施
☆ 按照基础图及设备安装图对基础各部位尺寸、预留孔(地脚螺栓)划线,对基础缺陷和座标尺寸与设计不附之处应予以处理。
☆ 安置设备垫铁的基础表面应剁堑平整,确保垫铁放置平衡。
☆ 设备开箱应在施工需要时进行,开箱时应会同业主、监理等有关人员作好检验、清点工作,并作好记录。
☆ 开箱后的设备或零部件应搬到室内或采取防雨措施,对各类设备或零部件的工作面、啮合面、密封面等要采取防锈、防碰措施。
☆ 垫铁布置要合理,设备就位找正、找平(标高、纵横向位置、水平度、垂直度、平行度及同轴度)必须符合规定要求。
☆ 设备部件的吊装必须选择好吊点和重心,千斤位置要根据不同的要求采取相应的保护措施,对各种工作面、配合面和密封面等严禁碰撞和擦伤。
☆ 金属构件的焊接必须按规程进行,焊后应及时清除焊渣、飞溅。
现场施工组织管理
项目组织机构图

各主要管理人员及部门职能
1.负责调配、组织企业资源,确保工程的顺利施工。
2.主持编制主包项目管理方案,确定主包项目管理的目标与方针。
3.确定主包项目管理组织机构的构成并配备人员,制定规章制度,明确有关人员的职责,组织项目经理部开展工作。
4.及时、适当地作出项目管理决策,其主要内容包括投标报价决策、分包选择决策、人事任免决策、重大技术方案决策、财务工作决策、资源调配决策、工期进度决策、合同签订及变更决策等。
5.审批各分包商的技术方案与管理方案,并监督协调其实施行为。
6.与业主、监理保持经常接触,解决随机出现的各种问题,替业主、监理排忧解难,确保业主利益。
7.积极处理好与项目所在地政府部门及当地街道居委会的关系,确保当地政府部门利益并促使本项目成为“爱民工程”。
6.2.2 项目工程师职能
1.负责工程重大施工方案的审查和批准。
2.组织、汇同技术骨干力量对本项目的关键技术难题进行科研攻关,进行新工艺、新技术的研究,确保本项目顺利进行。
3.在项目经理领导下,具体主持项目质量管理保证体系的建立,并进行质量职能分配,落实质量责任制。
4.审核各分包商的施工组织与施工方案,并协调各分包商之间的技术质量问题。
5.与设计、监理保持经常沟通,保证设计、监理的要求与指令在各分包商中贯彻实施。
6.组织有关人员对材料、设备的供货质量进行监督、验收、认可,对不合格者坚决退货。
7.及时组织技术人员解决工程施工中出现的技术问题。组织安全管理人员监督整个工程项目的施工安全,保证施工安全与工程质量。
6.2.3 项目副经理职能
1.进行总进度计划及现场管理。
2.负责项目合同管理,对合同谈判、合同签定及合同管理的全过程进行监督管理。管理工程项目预决算的编制工作。
3.分析、预测工程总成本及阶段成本,确保工程项目的资金合理流转。
4.负责分包商的资格审查及招标工作。
5.参与制定、贯彻项目管理方针目标,抓好内部的基础管理和队伍建设。
6.协助项目经理,负责项目的行政决策,日常内部管理及后勤保障管理。
7.负责工程红线以外与本工程项目公共关系的对外协调工作。
8.负责整个工程的综合治理工作,确保方针目标的实现。
6.2.4 工程技术部职能
1.具体抓住项目的进度管理,从计划进度、实际进度和进度调整等多方面进行控制,确保项目如期完工。
2.具体负责工程项目的技术管理工作,完成现场的验收、检查工作。
3.负责编制施工大纲,并确定施工大纲是否符合工程实际需要。
4.对各分包商的施工组织设计和施工方案进行审核检查,协调各分包商施工方案上的矛盾冲突。
5.对各专业分包商的深化图进行审核协调,避免发生设计与施工的矛盾而造成不必要的返工。
6.完成与项目有关的计量、试验工作。
7.负责解决施工现场出现的技术问题,与设计、监理协作解决有关技术问题。
8.协助项目工程师对关键技术难题进行科研攻关,进行新工艺新技术的开发研究。
9.按ISO9002 标准管理文件资料,对项目技术资料进行系统化管理。
10.有效、动态地对现场施工活动实施全方位、全过程管理。
11.合理安排施工搭接,确保每道工序管理,形成最终优质建筑产品。
12.实施作业过程中的施工指导,确保工序管理点的顺利实施。
13.负责处理和协调各分包商之间的关系,协调各分包商的劳动力使用,合理调配劳动力资源,使工程建设有组织按计划进行。
14.负责不同阶段施工场地和临时堆放场地的协调与管理,有序地组织平面、立体的各种材料和设备的运输、堆放等工作。
15.编制项目进展的进度计划,确保进度计划科学管理,并随工程实际情况不断调整计划安排。
16.负责大型机械及垂直运输设备的协调调度。
17.负责主包部《施工日记》的记录工作。
6.2.5 材料设备部职能
1.按质量要求和施工方案,提供合格的机械设备与材料。
2.强化原材料、半成品的质量管理。提高设备的完好率及使用率,杜绝设备带病运行。
3.严格控制无质保文件和不符合技术规范指标的材料设备投入施工,对不合格材料设备一律拒之门外。
4.实施工程现场管理标准化,对材料设备的堆放安置作出科学合理的安排,使操作现场的工作环境不影响工程施工质量。
5.负责外包单位或甲供材料设备产品的质量延伸监控和管理。
6.负责验收、收集、保管所提供产品的质保书,标准文件及相关技术资料。
7.负责项目材料设备管理业务,协助项目副经理(经营)进行材料设备采购工作。
8.对各分包商经监理认可的材料设备进行全过程的协调管理。
6.2.6 质量安全部职能
1.按质量文件与合同要求,向甲方全面负责实施全过程的质量控制和检查、监督工作。
2.负责对分部、分项工程及最终产品的检验,并参与最终产品的质量评定工作,独立行使施工过程中的质量监督权力。
3.对施工全过程进行质量控制,对不合格产品坚决不予放行,待其进行整改后再行检查验收。
4.负责工地测量网络建立和轴线标高的控制。
5.负责各种质量记录资料的填制、收集、立卷工作。
6.负责整个工程分项分部的质量评定工作及与市质监站的对口联系。
7.按ISO9002 的质量保证体系对工程质量进行监控。
8.组织对未完产品及产品的保护,组织现场安全工作,做好各种安全检查和评比工作。
9.负责项目的安全生产和施工现场的安全、消防、保卫工作。
10.完善和健全安全管理各种台帐,强化安全管理软件资料工作负责各种安全记录资料的填制、收集和立卷工作。
11.负责完善本项目各类安全生产制度,消防保卫工作制度,并有针对性地制定安全生产细则。
12.监督分包商认真执行安全、保卫、消防法规、条例、标准和规定的实施。
13.负责场容场貌文明施工管理、定期组织各分包商进行安全、文明施工的检查考核。
14.监督分包商开展安全教育工作,做好分部分项工程技术安全交底工作。
6.2.7 合约财务部职能
1.具体实施项目的合同管理。参与分承包商的选择。
2.负责各分包商的月报的核实与工程款的核对。
3.工程量复核与增减帐管理,并做好阶段性的结算工作。
4.编制项目预决算,并进行工程款的收取与支付。
5.做好项目成本控制,合理组织资金周转。
6.做好成本分析计算,为项目经理提供决策依据。
7.组织进行经济类台帐报表的记载、分析与上报工作。
6.2.8 综合办公室职能
1.加强项目基础管理及内外协调工作,强化信息传递。
2.做好对外联络工作,加强与当地政府、有关职能部门的合作联系,做好对外接待、宣传工作。
3.确立内部基础管理流程,制定岗位责任制,积累各类资料。
4.做好施工现场的标准化管理工作。
5.做好文件资料的收发与整理工作。
6.负责文件资料的登记、分办、催办、签收、用印、传递、立卷、归档和销毁等工作。
7.来往文件资料收发应及时登入台帐,视文件资料的内容和性质,准确及时递交有关部门。
8.负责接收各部门文件资料责任人按阶段递交的已立卷的文件资料,并按规定进行审核、归档和保管。
9.注意保密的原则。
10.在工程竣工后,负责文件资料立卷移交工作。
项目管理措施
项目总承包管理的工作质量要求严格履行合同,实现本工程“一流管理、一流质量、一流速度”的建设目标。
项目质量、安全、文明施工等各项指标的落实,关键在于管理。
同时项目经济效益产生也依赖于严格的管理。管理的好坏直接影响到本项目体的工作效率和声誉。
为此本项目部在项目经理的直接领导下,按ISO9002 贯标措施,加强对工程目标、计划、质量、安全、技术、经济、材料、设备、标准化、文件资料、公共关系等方面的管理,落实岗位责任制并进行相应的经济考核。
6.3.1 合同管理
1.职责划分
由项目经理确定合同管理的指导思想,由合约财务部具体负责合同的过程管理与结算工作。
2.合同管理
★在有条件的情况下,尽可能采用国际惯例文本或国内合同示范文本,并由合同当事人在此基础上进行修订补充。
★做好对各分包的合同管理工作,督促各分包商认真履行其分包合同范围内的工作,确保各分包商施工的工期、质量和安全达到合同要求,从而保证整个工程的顺利施工。
★建立健全工程项目合同管理制度,形成一套对分包合同及加工购销合同等的合同管理实施细则。
★业主所有由其签署的有关指定分包合同都须注明:所有施工或供货单位都必须服从施工总承包单位在工程计划、工程质量、文明施工等各个方面和环节进行的统一管理、统一控制、统一协调。
6.3.2 综合计划管理
1.职责划分
由工程技术部进行管理操作,在项目部工程技术部中设专职计划员。
2.管理内容
★对项目的合同进行跟踪管理,负责的设备安装合同的管理、业主设备采购合同的协调节。
★负责工程的合同管理动态管理等有关合同的事务。
★协助业主进行设备系统采购的合同执行期间的跟踪管理。
★在项目经理的指导下,提出项目总进度计划,利用分包商或供货商提供的施工进度计划对项目总进度计划进行修改,协调各分包商之间的施工进度,包括施工顺序、时间、劳力和材料的安排、细部设计、产品资料及样品的提交程序,以及需要长时间准备工作或采购过程的产品提交程序。提交修改后进度计划。
★负责审查工程概算、编制施工图预算。
★负责编制季、月的部门工作报告。
3.管理要点
★计划员职责
· 认真研究设计图纸和承包合同,作好各项编制工期计划必须信息的收集和分析工作,负责起草编制工期计划。
· 负责给各单位送报计划书.纵向单位有总承包、监理,横向单位有各分包单位和项目部有关部门及人员。
· 负责下达计划任务,向施工管理及技术管理等有关人员分发作业计划,并督促有关人员贯彻执行作业计划。
· 负责收集信息,作好项目实物工程和形象进度的统计工作,掌握施工的实际进度,分析施工情况并及时向项目副经理汇报。
· 负责计划调整工作,根据施工实际情况,主动及时提出修正计划的建议,并按项目经理的指示,修正下阶段的施工计划。
★材料设备部负责编制项目的材料设备使用计划。
★技术部和工程部有关人员负责落实每周的作业计划。完成预定的实物工程量,把握施工的形象进度,并每周向计划员反映形象进度情况。
★项目需编制的计划按期限可分为以下几类:
· 项目总计划。它是指导整个工程全过程的总计划,确定主要技术经济指标应达到的水平,明确达到经营目标所应采取的措施。
· 季度施工生产技术、财务计划。它是项目施工在相应计划期内从事施工生产活动的作业指导,也是必须达到的目标,是评价考核项目管理工作的主要依据。
· 月、旬、周作业计划。它是实现性计划,是将季度计划具体细化后的计划安排,施工作业班组按此组织施工生产活动。
★在年季计划中,施工生产计划是中心,技术组织措施计划和各项资源计划则是施工计划的保证性计划。
★计划的控制管理
· 进行计划动员,把计划变为职工的行动。
· 开展岗位经济责任制,把计划指标的执行情况与部门、单位和职工个人的经济利益挂钩。
· 做好检查工作,掌握各种信息,找出影响计划完成的原因,及时研究对策,采取措施。
· 加强调度工作,组织新的平衡。
· 加强信息管理和统计分析制度。
★为保证工期,需做好资源配置管理,对以下各要点配备专职人员进行管理:
· 劳动力供应管理;
· 机械设备配置管理;
· 材料供应管理;
· 项目资金流转管理。
★确立以合同为依据的计划管理思路,运用合同的控制手段来保证工期的实现。对各分包商要依据合同要求强化工期管理,确保总工期。
6.3.3 进度控制管理
1.职责划分
由工程技术部进行管理操作。
2.管理内容
★遵照总工期要求制定工程总进度计划和分阶段进度计划,各施工分包单位在分包合同中确认的进度计划,必须纳入按总工期要求制定的工程总进度计划和分阶段计划控制之中。督促和审查施工单位制定工程计划、分阶段计划和月进度计划报业主并送监理备案。
★制定项目总进度网络(包括土建、机电安装、装饰及其他专业工程)及分项工程网络计划,确定控制节点,提出控制计划目标。
★严格计划进度管理。一旦发现进度脱期趋向,及时说明原因,并采取相应的积极措施予以调整。
★动态控制进度,协调各主、分包单位的进度安排并作出及时调整,保证总进度及节点、目标的实现,定期组织召开工程例会,及时分析协调、平衡和调整工程进度。
★每月提供进度分析报表。
★及时向业主及监理单位提供有关施工进度的信息和存在问题。
★协调安排各施工单位、市政配套单位及设备材料供应单位的进场、退场时间以及相应施工周期,组织有条不紊的交叉施工。
6.3.4 技术管理
1.职责划分
由项目工程师领导进行整个工程的技术管理工作,由设计部和工程技术部、质量安全部共同承担。
2.技术管理内容
★技术准备阶段的技术管理内容包括图纸深化设计和优化设计工作,图纸的熟悉审查,设计交底及会审,编制施工组织设计及技术方案交底。
★技术开发活动的技术管理内容包括科研攻关,技术改造,技术革新,新技术、新工艺试验和技术培训。
★技术管理还包括对技术文件,技术资料,技术档案,技术标准和技术情报等管理工作。
★编制施工组织设计,督促本工程所有参加施工的各施工单位严格按施工图所显示的设计要求以及施工组织设计进行施工。
★及时向业主及设计单位就施工设计可能出现的疏漏缺陷,或尺寸差异,或资料不足(如施工所需之节点图等)提出修改意见和合理化建议,若该类意见属实,应及时报请监理及设计单位确认后按设计单位修正或补充的施工图指导施工单位进行施工。如因甲方需要变更设计或变更标准,特别在影响工程造价控制时,以业主书面通知作为安排施工单位进行施工的依据。
★负责设计单位提供的设计资料的收集、保管及分发工作并负责做好图纸保密工作。
3.施工图纸会审办法
★针对本工程的特点,对施工图纸会审实行分级负责制,由总包项目经理部组织会审。
★图纸会审时会同设计单位、监理及分包单位有关人员共同进行。
★会审一般按如下程序进行:

4.设计变更、技术核定单管理办法
★设计变更应由提出单位办理技术核定单,并经设计单位、监理共同签字认可。
★施工过程中发生的材料代用,施工做法改变或施工条件变化而需要修改,提出单位应办理技术核定单。
★一般的设计变更由技术部办理技术核定单,重要的由项目工程师办理。
★由设计单位提出的变更由设计单位出设计变更通知单。
5.施工组织设计管理办法
★施工组织总设计应包括:工程概况;工程总体布署;暂设工程及临时设施的规划;现场总平面布置;现场交通、防洪、消防规划;
水源、电源需要及解决办法;主要施工方法及技术措施;特殊气候下施工措施;设计、监理、分包的配合关系及分工负责范围;与设计共同签订的施工图纸分批供应计划;主要技术经济指标的测算等。
★要求各分包商提供相应的单位工程施工组织设计,应包括:工程概况;主要工作准备计划;施工流水段的划分;主要项目的施工顺序和施工方法;劳动组织;技术措施;工程进度表;分期材料、半成品、劳动力、机具需用量计划表;分阶段的现场平面布置图;保证工程质量的措施;保证施工安全的措施;技术节约措施;经济技术指标的测算;施工组织任务分工表等。
★施工组织设计按编组分工逐级向下交底,并做到交底明确。
★各分包商严格按照施工组织设计施工,维护其严肃性。如因条件变化而修改原设计时,应经原审批人同意。
★做好施工组织设计的调整,实行动态管理。当施工条件发生变化时,编制施工组织设计调整方案,报原审批人审批后执行。
6.材质与产品检验
★材料、成品、半成品进场必须随带合格证明,对品名、规格、型号不符或不合格的产品,不得验收使用。
★对防水材料等,进场时必须有合格证明和复验证明。
★砌块、水泥应有合格证明,进场后需经过复验才能使用。砂石料应按批量和产地不同分别进行试验。
★施工过程中应做回填土、灰土的干容量试验;砂浆、混凝土试块强度试验、钢筋接头试验;防水试验等。
7.工程测量管理
★工程施工前,对勘测设计单位提供的基准点进行复核,确认无误后方可使用。
★工程施工中,对建筑物轴线、水准点、座标控制点进行复测。
★工程竣工后,按规定进行建筑物和市政管线的竣工测量。
8.工程计量管理
★施工中应用的文件、图纸、资料、报表应采用国家法定计量单位。
★凡新购、修复、安装的计量器具,必须经检定合格后方可使用,并按计量检测要求进行周期检测。
★各类工程测量、试验、质量评定等使用的计量器具,其种类、规格及精度应满足国家施工规范和质量检验标准的要求。
9.隐蔽工程验收与技术复核
★工程施工过程中,应按部位、按工序进行技术复核,未经检查验收的分项不得进入下道工序。
★对隐蔽工程验收分项,未经监理复核审定不得进入下道工序。
并应及时办理检查记录,签字齐全。
★单位工程结束后要组织设计、监理参加验收,检查施工质量,填写验收评定意见。
10.竣工资料及竣工图
★按建设主管部门的规定做好竣工技术资料收集工作。
★在竣工验收之前,重新绘制竣工图。
★各专业项目设专人负责编制技术资料和竣工图。
6.3.5 质量管理
1.职责划分
由项目工程师负责项目工程质量进行全过程、全方位的监控管理。
2.质量管理内容
★建立质量管理组织体系,按ISO9002 要求,编制《项目质量保证计划》。
★制定质量管理监督工作程序,保证专业专职配备到位(专业划分、专职划分、阶段划分、工序及分项、子目划分)。
★严格按照设计单位确认的工程质量施工规范和验收规范,精心组织好施工。
★按照上述要求抓好施工质量、原材料及半成品质量,严格质量监督,工程质量确保达到优良。
★审查各施工分包单位编制的施工组织设计中的质量保证措施报表、请求、备忘录、通知单,检查施工单位的各项施工准备工作。
★根据合同和图纸要求,审查施工分包单位提供的材料、设备清单及质保书,并对工程使用的有关原材料、构件及设备进行必要的抽验。对施工单位提交的装饰材料样品经审查并送监理单位审核后报业主审定并及时封样和采取相应保护措施,以便督促和检查施工单位严格按样品采购相应材料。
★严格按照国家建筑安装施工规范和设计图纸要求进行施工。
★检查工程施工质量,每月一次书面向业主提供工程质量报告(重大工程质量问题及时专题报告),组织好各项工程验收(包括隐蔽工程验收,分部分项工程验收等)。
★检查设计变更和工程联系单的执行情况,负责处理施工过程中发生的技术问题,并报设计院及业主最终确认后实施。
★对工程施工过程中出现的工程质量事故,要查明质量事故原因和责任、报业主备案,制定严密的整改措施,经规定的有关审批程序审批后落实实施。
★组织由监理单位、质监部门、设计单位和业主参加的分部工程及总体工程的检查、验收及工程竣工初步验收,按业主要求组织工程竣工最终验收,提出竣工验收报告(包括整理资料的安排)。
3.质量管理的重要环节
★提高所有参加本工程项目施工的全体职工的质量意识,特别是工程项目领导班子成员的质量意识。树立“百年大计,质量第一”的思想。
★推行全面质量管理,通过PDCA 循环,不断克服质量薄弱环节,攻克工程难题,推动工程质量的提高。
★努力提高参加工程项目职工的素质,加强职业道德教育和业务技术培训,提高施工管理水平和操作水平,努力创出第一流的工程质量。
★对工程施工管理人员采取办班上课、现场教学、知识竞赛、知识讲座等形式的质量教育。
★强化计量工作是保证工程质量的重要手段与方法。
★在工程项目施工中,要及时了解设计、监理、质量监督部门的信息,及时掌握各施工班组的质量信息,认真作好原始记录,便于有关人员及时采取对策。
4.质量控制
★设置工序管理点
a.对下列工程设置工序管理点:关键部位的分项工程;对下道工序质量有较大影响的工序;质量不稳定的分项工程;返修率高的分项工程;采用新技术、新工艺的工序等。
b.施工分包单位的施工人员必须在技术人员交底并做好交底记录、明确工艺要求、质量要求和操作要求的基础上方能上岗和施工。
施工过程中发现问题,应及时向技术人员反馈,经项目工程师同意后,方可继续施工。
★作业人员素质控制
a. 定期对项目施工人员进行规范、规程、工序工艺、标准计量、检验等质量管理基础知识培训,开展质量意识教育。
b. 树立为“用户服务”和“下道工序就是用户”的思想,严格按照工艺规范,使每个操作人员做到不合格工序不进入下道工序的施工。
c. 项目经理部的管理人员都必须具有相应的专业技术等级职称和上岗证书。
d. 对分包单位人员进行技术等级复核,并对操作人员进行技能抽检。特殊工种必须持有相应的技术等级证书方能上岗操作。
e. 一旦发生质量事故,必须追究有关人员的法律责任。
★原材料质量控制
a. 在材料、构件的外采购前,应向采购部门或分包单位提出质量要求。
b. 对供应厂商的生产能力、技术力量、生产稳定性和管理水平需有一个较全面的了解。
5.对工程质量检查的内容:
★审查分包单位的施工方案。
★做好隐蔽工程验收和质量预检。
★把好材料、设备质量检验验收关。
★做好施工过程中对操作质量的巡视检查。
★做好主要分部分项工程和关键部位的质量监控。
★做好技术管理工作和技术档案资料的收集。
★参与质量事故的调查与处理。
6.3.6 设备材料管理
1.职责划分
由项目材料设备部进行工程项目的材料设备管理。
2.设备材料管理内容
★编制材料、设备进场(厂)计划及采购申请汇总表
★如业主需要参与甲供设备、材料供货谈判,审核材料设备清单(包括规格、型号、数量、质量),审核设备材料供货的时间、地点、协调供货单位与施工单位的工作联系,协调供货期限与施工工期的衔接。
★制定设备保管制度,保证专材专用并不擅自撤离场内。
★做好施工阶段材料、设备的保护工作并随时检验。
3.材料员主要职责
★具体负责项目材料管理业务,对项目施工期间的材料管理工作进行通盘规划,全过程管理。
★负责项目材料降耗的实现。
★协助项目副经理进行新材料的采购工作。
★参与施工组织设计的编制,对各种设施、设备、材料堆放、技术节约措施等方面提出看法和要求。
★进行材料计划管理。
★组织材料进场,控制质量。
★现场材料的验收及定置堆放。
★现场材料的发放管理。
★现场材料的原始单据的台帐制作。
★现场材料的核算管理。
4.材料管理措施
★编制材料供应计划。包括单位工程材料总计划、材料季度计划、材料月度计划和材料周计划。
★对构成工程实体的主要和部分主要辅助材料以及凡有定额依据的各种材料都必须实行限额领料。
★对于超用和非直接用于工程的以及质量返修的部分,应在限额领料单上分别加盖“超耗专用章”、“非工程用料专用章”、“质量返修专用章”。
★大宗材料由于用量大,对材料核算的影响大,所以加强验收和“月盘存制”、防止“以进代耗”、“以领代耗”的现象发生。每月按实际调整,达到“帐实”、“帐帐相符”。
★周转设备材料在工程项目施工中用量较大,占工程成本和流动资金的比例较高,因此,项目材料员应按施工计划合理化组织周转设备材料分期分批进场。
★现场材料进场时,把好四道验收关(品种、规格、数量、质量),凡不符合要求者都进行退货和追索赔偿。有质保书的材料,须收取材料质保书或产品合格证书、产品说明书。必须送样检验的或验收时有疑问的材料应及时送样试验,在取得试验报告前,不能动用材料。对数量上有缺方少吨或品种、规格不符合要求的材料也不准动用,待索赔处理后方可使用。
★为保证项目有一套完整、及时、准确的原始数据和资料,故在项目设置如下的材料台帐的报表:
· 大宗材料收、耗(拔)、存台帐;
· 仓库材料收、耗(拔)、存台帐;
· 周转设备料收、发、存台帐;
· 项目材料资金总帐;
· 项目材料统计台帐;
· 材料收发存月报表;
· 单位工程设备材料租费摊销月报。
★签订分包合同时,在分包合同中对分包单位领用、借用、租用的各种原材料、劳防用品、施工用具、周转材料、临时设施等的供应方式、结算依据等予以明确。
5.设备管理措施
★制定机械设备使用的最优方案。根据工程占地面积、工程量、结构特点、施工需要等具体情况选择施工机械并合理布置。
★采用先进的施工机械来投入施工。
★简化施工工艺,合并工序,变单机作业为联合体机械作业。
★广泛采用新技术,使用高效能的建筑机械,提高机械设备使用水平。
6.机械设备技术管理
★机械设备和合理使用
a. 在满足施工技术要求情况下,使机械设备的燃料、动力和劳动力消耗最少,生产率最高。
b. 采用合理的技术管理和完善的技术保养,使机械设备经常处于正常状态,工作中经久耐用,不出故障。
★维护与保养
a. 在机械设备进场安装使用之前,首先按产品规范进行验收,发现问题应及时交涉解决,并作详细验收记录,办理好必要的移交手续。
b. 定期对机械设备有计划地进行清理、润滑、调整、紧固、排除故障、更换磨损失效的零件,使机械设备保持良好的状态。
c. 由于冬季气温低,为保证机械设备的正常运转,机械的驾驶室做好保暖工作,润滑剂采用不浓化类型。采用液压操纵的机械设备,低温时用变压器油代替机油和透平油,不能用甘油。
★定期调整
机械设备零部件长期使用后,会造成间隙增大,螺丝松脱,以至丧失精度。因此定期进行调整,恢复零件间的配合,恢复零件几何轴线的正常位置。
★修理
按计划按规定对机械设备进行大修、中修和小修,并把保养修理情况记录下来。
6.3.7 信息管理
1.信息管理的任务
①组织项目基本情况的信息,并系统化,编制手册;
②确定报告信息的内容、格式、软件要求等等;
③建立完整的项目管理信息流程;
④文控的管理。
2.职责划分
由综合办公室负责项目文件资料的统一管理和发放,负责信息流程的管理。
3.资料处理要点
★项目文书处理一般包括登记、分办、批办、承办、催办、拟稿、签发、用印、传递、立卷、归档与销毁等程序。
★项目经理部的文件收、发由项目资料员统一登记,视公文内容和性质,准确及时交项目经理批示或办理。
★对于不符合国家有关法令、法规与违反制度的文件,可不予办理。
★按照ISO9002 标准对项目的文件资料进行管理,做好文件受控管理工作。
4.文件往来与信息传递
★对外发出的所有文件,都纳入编号系统并实行分级管理,并将各分包商的来往文件也纳入编号系统,以便统一管理。
★总包文件签发分三级管理
· 一级文件:必须由项目经理签发,内容主要是施工组织设计、总进度计划、季、月度计划;重要的会议记录以及项经部文件等。
· 二级文件:必须由部门经理签发,内容主要是备忘录、整改通知、业务联系单、技术核定单等。
· 三级文件:由综合办公室分发,主要是会议通知等。
★文件的分发与传递
· 文件由综合办公室统一分发。
· 外单位及分包单位来文,必须由综合办公室统一收文,逐一处理,由总包项目经理签发。
· 有关工程的传真文件统一由综合办公室收文、编号并按规定分送有关部门。
★发文规则:
a. 所有文件使用统一文稿纸,由办公室印制。
b. 文件署名签发必须用钢笔书写,不使用原珠笔或铅笔。
5.信息的分类系统管理
★信息的分类
a. 会议纪要
按现会议制度召集召开的各种工程会议必须有及时、准确的会议纪要。会议纪要由召集召开的主持部门按会议实际记录、整理和分发。
分发的范围为参加会议的各个部门(包括施工单位)。
列席会议的部门接到纪要后,如不同意纪要内容,有权提出交涉。
确定的纪要变更应由会议主持部门编制会议纪要补充或更正,分发到与纪要分发范围相同的部门。
b. 部门函件
部门函件以部门经理函为抬头,并由负责人签名后发出并生效。
函件必须有主送部门,表示指令、汇报、请示、申请、批示、转发和通知等;也可有抄送部门,表示通报。
主送部门须为在管理组织结构图中有指令线连接的相关部门;抄送部门可以是除了主送部门之外,但其工作职责与函件内容有关的任何部门。
c. 工作报告
是按各部门的分工职责,按有关规定向直接上级部门提交的报告。
d. 设计变更
e. 工程变更
f. 施工签证
g. 工程款支付申请
h. 口头预示
对以上第2、4、5、6 的文件内容,如明显非重要情况,允许因时间较紧而先由部门负责人发出口头预示,并在24 小时内和不影响工程实施前提下补发相应书面文件。否则口头预示将被视作无效。
★联系单编号
编号图例:AAAAAA/BBB/CCC DD
其中:
AAAAAA 表示项目编号
BBB 表示档案类别
CCC 表示顺序号
DD 表示签发人/拟稿人代号
★文档类别
a. 000 总体资料
010 付款申请单(一般资料)
011 承包商付款申请单
012 材料供应商付款申请单
013 设备供应商付款申请单
014 付款申请单
视需要还可顺次往下编号,届时另发文通知。
b. 020 合同、协议(一般资料)
视需要还可以顺次往下编号,届时另发问通知。
c. 030 来函(一般资料)
视需要还可顺次往下编号,届时另发文通知。
d.
.
.
.
★顺序号
取三倍数,从001,002,…顺次编号
6.3.8 档案管理
1.职责划分
由综合办公室负责督促其他各部门对相应的文件资料进行收集、整理。严格按照档案局关于基本建设的档案管理要求〖国档发(88)第4 号文件〗做好收集、整理、汇编工作,装订成册,提供业主一份。
2.工程档案总管部门
工程档案由综合办公室统一管理,各分管部门将整理后的资料交综合办公室归档存库。
3.工程档案分管部门
★合约财务部
· 工程合同;
· 各分包合同;
· 收取款项及支付各分包款项的文件;
· 每月的财务报表;
· 会计帐册会计凭证;
· 每月的预算报表;
· 每月的统计报表。
★工程技术部
· 各类施工组织设计及方案;
· 各类技术措施;
· 技术核定单;
· 各会议记录;
· 工程技术联系单。
· 分阶段施工平面图及文字说明;
· 施工日记;
· 每次工程例会、会议纪要;
· 工程总计划、季度计划、月计划;
· 工程联系单。
★质量安全部
· 质量管理网络与质量检查制度;
· 项目质量保证计划与质量检验计划;
· 每月分部分项质量评定统计表;
· 分包单位填报的建筑企业统一的施工技术资料(表式);
· 质量专题会议记录;
· 质量整改会议记录;
· 安全生产网络及管理办法;
· 各分包单位制订的安全生产制度、教育培训制度,消防保卫工作制度、场容场貌管理办法等文件。
· 每月安全生产检查评比表;
· 发生重大安全事故的,要有事故报告、事故调查报告、事故处理报告;
· 各类安全生产有关的台帐、资料等。
★材料设备部
· 材料、设备采购合同、运输合同、仓储合同;
· 材料设备进退场计划;
· 材料质保书及设备质量鉴定书;
· 进口材料的国家商检报告;
· 新型材料的说明书;
· 有关材料设备问题的会议纪要。
★综合办公室
· 工程设计图纸以及修改通知;
· 项目部规定的一、二级文件;
· 工程简报;
· 由正、副经理召开的各类会议记录;
· 工程定点定期照片、录像等;
· 设计、监理综合协调会议的会议记录;
· 各类分发、接收的有关文件。
4.归档时间
各部门明确一名兼职文件资料员,由部门经理签字后送综合办公室资料员,由资料员负责整理立卷。
5.档案的借阅
为充分发挥工程档案作用,因工作需要在工作时间随时可借阅。
但需办理借阅手续,档案不得带出本项目。
6.档案的检查、核对及移交
工程档案定期进行检查核对,做到帐物相符,待工程竣工后,工程评定结束,按有关规定向有关档案管理部门移交。
6.3.9 安全管理
1.职责划分
由质量、安全部负责对整个工程项目的安全进行监督管理。
2.安全保卫管理措施
★提高全体施工人员的安全生产意识和自我保护能力。
· 安全生产教育与思想意识教育相结合,旨在改变施工作业者的安全意识。
· 实行“三工制”,加强工前教育、工中检查、工后讲评,进行严格、及时监控。
· 根据施工生产内容的变化,及时进行相应的生产技术知识和安全操作知识教育。
· 坚持安全教育经常化,保证教育培训时间和效果。
· 安全教育和培训与经济收入挂钩。
★建立安全保卫管理网络。
★建立安全员岗位责任制,各分包商要设立专职安全员,同时要求在施工生产最基层、不脱离生产岗位的施工人员中设立兼职安全员。
真正把安全监控职能渗透到生产全部过程的每个方位,及时发现并消除隐患。
★建立联保互保安全保卫责任制。通过作业者互相监督、互相控制、互相保护,实现对人的不安全行动的有效控制。
★建立专职保卫队伍,设立固定和巡回相结合的保卫岗位,联络社区治保机构和各分包队伍的专兼职保卫员,形成专兼职结合,群防群冶的保卫系统。按施工各阶段的特点,划分相对封闭的作业区域。
实现全员、全过程的有效控制。
3.安全事故的预防措施
★改进生产工艺,实现机械化、自动化。
★设置安全装置。
· 防护装置:用屏蔽方法与手段把人体与施工生产中出现的危险部位隔离开来;
· 保险装置:机械设备在非正常操作和运行中能够自动控制和消除危险;
· 信号装置:利用人的视、听觉反应来达到安全事故预防;
· 危险警示标志:警示进入施工现场应注意或必须做到的要求。
★预防性的机械强度试验和电气绝缘检验。
★机械设备的维修保养和有计划的检修。
★文明施工。
★合理使用劳动保护用品。
★认真执行操作规程,普及安全技术知识教育。
4.保卫、消防事故的预防措施
★合理布置施工现场,实况办公、生活、生产区域相对独立、设立固定的保卫岗位和独立的危险品、易燃品、贵重物品保卫仓库。
★成立各级保卫消防责任制度。
★按规定配置消防器材和防盗防火警铃警报。
★实现上岗作业人员的胸卡标示制度和访客登记制度。
★实行动为作业的三级市制度和监护制度。
★定期组织专职人员的培训交流和全员的专题教育。
5.安全保卫事故隐患检查
★通过对各个环节进行估计与检查,发现事故隐患,然后及时采取措施预防。
★通过对人、机、料、法、环五方面进行的常见隐患估计。
6.3.10 现场文明管理
1.职责划分
由质量安全部和综合办公室按主管部门的规定,对施工现场进行标准化管理。
2.施工现场
★根据施工组织设计要求进行现场平整、疏通交通道路,并贯彻“先地下、后地上”原则,做好上下水、电力、电讯及能源安排。
★掌握坐标位置、水平标高、建筑边界以及与相邻建筑物、地铁隧道、周围管线的关系,建立工程测量控制图。
★现场布局规划周密,使管理方便,合理压缩临时设施构筑,以减少费用支出。
★大门、围墙等设置按照我单位要求统一设置。
★按定置管理要求设置材料、成品、半成品、机械的位置,避免不必要的场内运输,减少二次搬运,提高劳动生产率。
★符合劳动力保护、安全生产、消防、卫生及防范等有关规定。
★以定置管理的方法管理场容,为文明施工打好基础。
★在施工现场做好系统标志管理。
3.施工现场的场容管理
★场容管理总要求是:施工现场的设施、设备、构件、机械、材料等必须按施工总平面图规定位置设置、堆放,符合定置管理要求。
为符合实际,对施工总平面图进行动态控制,随项目施工结构、装饰等不同阶段及时进行核对和修订调整,使之图实相符。
★努力实现“三优二好一无”工程
· 样板先行、规范操作、监控返修、工序验收的工程质量优;
· 严格验收、定置堆放、限额领料、物尽其用的物料管理优;
· 合理布置、路沟通畅、生活卫生、整洁高效的场容场貌优;
· 合理配置、按章使用、及时保养、进出有序的设备管理好;
· 核算到位、台帐清晰、降本有方、信守合同的项目效益好;
· 进场教育、标志明确、防范周密。定期巡视,无重大和社会管理事故。
★做好现场的材料储存、堆放、中转管理;按平面图布置设置机械设备;加强对现场仓库、工具间的搭设、保安、防火管理。
★施工现场开展落手清管理。由项目副经理(工程)负责落手清工作的推行、检查、考核。
施工质量、安全、文明保证措施
工程质量目标
本工程质量目标:确保一次性验收合格。
针对本工程的特点,我公司将从技术的先进性、管理的科学性、配合的实际性上制定措施,确保工程质量、施工技术、建筑材料等方面都达到一流水平。
杜绝质量事故,减少返工返修,提高一次成优率,按照相应的国家标准,完善质量体系,深化质量管理。做到质量工作有章可循,有章必循,体系有效,责任落实。
7.1.2 工程质量目标分解
为保证质量目标的实现,在施工中,项目管理部将严格按照国家现行的建筑工程施工及验收规范,质量评定标准和本市有关保证建筑工程质量的规定进行施工。同时建立全面质量管理制度,完善质量体系,深化质量管理,做到质量工作有章可循,责任落实。
7.1.2.1 材料管理质量目标
7.1.2.2 钢筋工程施工的质量目标

7.1.2.3 砼工程施工的质量目标

7.1.2.4 砌筑工程施工的质量目标

施工质量控制流程
7.2.2 施工过程纠正和预防工作流程控制

在施工中严格按照纠正和预防措施的流程控制,以确保工程质量。

7.2.3 现场施工资料管理流程控制
项目体配一专职资料员,对文件、材料质保资料、检验资料、质量记录等进行收集、汇总和统一发放,要做到全面、及时和正确。

施工质量创优措施
1.本工程质量目标:确保一次性验收合格。
2.品质管理是我企业管理的中心任务之一,为达到工程创优,其运作主要抓住七个环节:
★ 工作目标的制定;
★ 目标推进计划的拟定;
★ 管理方案的策划;
★ 目标推进的过程控制;
★ 对工程控制情况的日常检查;
★ 目标实施情况的分析评估;
★ 品质管理的基础管理。
3.项目经理部应制定管理方案与工作计划,对项目管理班子的人员配备给予优化与支持。
4.项目经理部全体人员必须职责明确,施工方案策划正确,技术方案严密周全,保证措施有效落实,管理到位,实施过程严格监控,质量标准严格把握。
5.项目经理部应对目标工程的分项、分部、阶段性目标进行分解,并制定切实有效的保证目标实现的各项方案、措施。全面作好技术资料方面收集、整理,并保证资料的齐全性、准确性。在工程实施一定阶段后对自身工作进行分析、总结和评价。不断创新,坚定信念,努力工作,最终实现创优目标。
6.公司有关部门应按照品质管理与责任管理的要求,群策群力,严格控制各自管辖范围的质量标准与要求,协助、配合项目创出品牌工程。
7.公司质量管理部负责对项目经理部的管理方案、管理责任进行全面考核。对目标工程实施全面监控以及建立一定的检查制度,对工程的方案、计划、措施在实施过程中的进行控制、调整及信息反馈。
7.3.2 夜间施工技术措施
1.夜间施工要有足够的照明设施。施工场地要做好落手清工作,不乱堆物,保持工作面上整洁。
2.脚手架的转角、上人梯上,各层楼梯口、电梯井口的出入口等相应安装36V 安全照明灯。
3.现场配备手电筒若干,以备检查之用。
4.夜间严禁进行搭、拆脚手架等高空危险作业,以确保安全。如有特殊情况,需经工地负责人批准,并采用相应措施后方可进行。
5.施工用水、电线路尽可能排放整齐,不准乱拖乱拉,以防出意外事故。
针对性施工质量保证措施
1、施工前钢筋施工员必须对施工顺序、操作方法和要求向操作人员详细交底,施工过程中对钢筋规格、数量、位置随时进行复核检查。
要特别注意一些较复杂部位的钢筋位置、数量及规格,梁柱节点严禁漏放环箍。
2、钢筋绑扎完成后,必须特别检查地下室底板上下层钢筋和悬臂结构钢筋的撑脚是否牢固可靠。
钢筋的保护层厚度依设计图纸规定进行。同一截面钢筋的接头数量应符合规范的要求。
4、严格控制柱插筋位置,避免发生钢筋位移及规格与设计图纸不符,柱钢筋绑扎前必须清理根部的水泥浆水,清理干净后方可进行绑扎,并注意竖筋的垂直度,不得在倾斜的情况下绑扎水平筋及箍筋。柱的插筋上做一个收小的箍,将插筋上部连成一片防止任意移位及弯曲。
5、严格控制板面负筋的高度特别是悬挑部位的钢筋,设置钢筋马凳及跳板,避免人为踩踏后落低,悬挑结构必须单独开具隐蔽工程验收单
6、工程上的钢筋不得任意代换,根据实际情况确需调整时必须由技术部门与设计商量同意后方可施行,并办妥技术核定单。
7、弯曲变形的钢筋须矫正后才能使用,钢筋上的油污、泥浆要清除干净。
8、钢筋搭接处,应在中心和两端用铁丝扎牢;梁主筋与箍筋的接触点全部用铁丝扎牢,墙板、楼板双向受力钢筋的相交点必须全部扎牢;
上述非双向配置的钢筋相交点,除靠近外围两行钢筋的相交点全部扎牢外,中间可按梅花形交错绑扎牢固。
9、钢筋的绑扎搭接及锚固除按规范要求外还须满足抗震设计规范要求。
钢筋绑扎时如遇预留洞、预埋件、管道位置须割断妨碍的钢筋,要按图纸要求留加强筋,必要时会同有关人员研究协商解决,严禁任意拆、移、割。
10、浇捣砼时要派专人进行监控,随时随地对可能出现的钢筋偏差进行整修。
11、质量员必须签署隐蔽工程验收单。对每阶段的施工情况要召开质量分析会,找出存在问题,提出整改措施。协助监理单位对工程进行验收,对提出的问题进行认真整改,保证工程质量。在监理部门对隐蔽工程进行复验签证后方可进行下一步施工。
12、保证钢筋焊接施工质量的几点措施:
(1)电弧焊接
a.焊接前的准备
(a)焊缝边缘的清理(去除油污、铁锈、露水等);
(b)焊接材料(焊条、焊剂是否符合要求);
(c)技术文件(图纸和工艺等);
(d)焊接设备。
b.对钢筋施焊前须在相同条件下制作二个抗拉试件。试验结果大于该类别钢筋的抗拉强度时,才允许正式施焊。焊后的焊缝检验,主要进行外观检查,要求焊缝表面平顺,不得有裂缝,没有明显咬边、凹陷、焊瘤、夹渣及气孔。用小锤敲击焊缝时应发出基本与金属同样的清脆声。焊缝尺寸与缺陷的偏差符合“钢筋混凝土工程施工及验收规范”。
(2)电渣压力焊
操作者须持证上岗,施工前焊剂必须烘干,操作钢筋卡具随时检查,应根据钢筋直径的大小选择合适的焊接电流和通电时间,焊后夹具不易过早放松。加强工序自检,并做好记录。钢筋的端接部应平整,并清除铁锈,对焊钢筋轴线垂直对接,特别是上下钢筋的边缝一定要对齐,接头处弯折不大于2 度,接头处钢筋轴线偏移不大于0.1d 且不大于2mm。焊接后,接头焊包均匀,不得有裂纹,钢筋表面无烧伤等明显缺陷。接头处钢筋位移超过规定的要重新焊接。同时为了补充焊接时的长度损失,钢筋长度宜放长5cm(即1-2d),电渣压力焊接头要逐个进行外表检查,并按规定每层300 个同类接头,取一组(三根)试样至实验室。
7.4.2 模板工程质量保证措施
1.模板制作的优劣直接影响混凝土的质量。本工程模板配置采用七夹板大模,局部用木模,保证结构垂直度控制及几何尺寸。制作安装偏差控制参照标准执行。
2.模板施工前,必须先进行模板及支撑系统的配置设计,绘出模板排列图。翻样与技术员必须对模板支承、排列、施工顺序、拆装方法向班组人员作详细交底。
3.模板安装必须正确控制轴线位置及截面尺寸,模板拼缝要紧密。当拼缝≥1mm 的要用老粉批嵌或用白铁皮封钉,跨度大于4m 时,模板应起拱3‰。
4.模板支承系统必须横平竖直,支撑点必须牢固,扣件及螺栓必须拧紧,模板严格按排列图安装。浇捣砼前对模板的支撑、螺栓、柱箍、扣件等紧固件派专人进行检查,发现问题及时整改。
5.孔洞、埋件等应正确留置,建议在翻样图上自行编号,防止错放漏放。安装要牢固,经复核无误后方能封闭模板。
6.平台模板支撑必须严格按照设计图纸要求做到上下、进出一致,木工施工员必须做到层层复核。
7.模板拆除应根据“施工验收规范”和设计规定的强度要求统一进行,未经有关技术部门同意,不得随意拆模。现场增加砼拆模试块,必要时进行试块试压,以保证质量和安全。
8.模板周转使用应经常整修、刷脱模剂,并保持表面的平整和清洁。
7.4.3 砼工程质量保证措施
1.严格执行砼浇捣令制度。浇捣令签发前施工现场应办妥各类有关技术复核、隐蔽验收手续。并填写《砼浇捣前验收报告》,报建设单位代表批准。
2.施工前一月,将砼所用各种材料送市质检站试验中心,委托进行试配,并提请监理方审查,在收到正式级配单后才能组织生产。
3.为保证混凝土质量,主管砼浇捣的人员一定要明确每次浇捣砼的级配、方量,以便砼搅拌站能够严格控制砼原材料的质量技术要求,并备足原材料。
4.严格把好原材料质量关,水泥、卵石、砂及外掺剂等即要达到国家规范规定的标准,及时与砼供应单位沟通信息。
5.及时了解天气动向,浇捣砼需连续施工时应尽量避免大雨天。如果砼施工过程中下雨,应及时遮盖,雨过后及时做好面层的处理工作。
6.砼浇捣前,施工现场应先做好各项准备工作,机械设备、照明设备等应事先检查,保证完好符合要求,模板内的垃圾和杂物要清理干净,木模部位要隔夜浇水湿润。
7.砼在浇捣前各部位的钢筋、埋件插筋和预留洞,必须由有关人员验收合格后方可进行浇捣,柱、砼不能一次下料到顶,应分皮分层进行振捣。
8.砼浇捣前应对新老砼接缝处的垃圾、杂物等进行检查,并清除干净(可用大功率吸尘器),并浇水湿润,但不得有积水。
9.浇捣砼前应向施工人员进行交底,并做好书面记录,落实专人负责振捣,有专人负责看铁看模。操作人员的交接班以及吃饭、休息时必须移交施工情况,严格做好交接班工作,并做好交接记录,由负责人签名归档,以免砼超振漏振。砼浇捣完毕后,钢筋上所受污染的水泥浆应予以清除。
10. 在操作难度较高处和留洞、钢筋密度较大的区域,应做好醒目标志,以加强管理,确保砼浇捣质量。
11. 振动器的操作要做到“快插慢拔”,快插是为了防止先将表面砼振实而与下面砼发生分层、离析现象,慢拔是为了使砼能填满振动棒抽出时所造成的空洞,并消除砼内气泡。
12. 砼分层浇筑时,在振捣上层时,应插入下层中5 cm 左右,以消除两层之间的接缝,同时在振捣上层砼时,要在下层砼初凝之前。
13. 每一插点要掌握好振捣时间,过短不易振实,过长可能引起砼产生离析现象,一般以砼表面呈水平不再显著下沉,不再出现气泡,表面泛出灰浆为准。
14. 振动器插点要均匀排列,采用交错式的次序移动,以免造成混乱而发生漏振,每次移动位置的距离应不大于50cm 。并不准将振动棒随意振动钢筋、模板及预埋件,以防钢筋、模板变形、预埋件脱落。
15. 楼面砼浇捣时,应铺设架空走道板,禁止人在钢筋上直接踩踏,以避免造成钢筋变形位移。
16. 做好砼试块养护工作,试块应在浇捣地点制作。砼试块成型24 小时后拆模,放入标养室养护至设计龄期进行强度检测。
17. 为确保施工顺利进行,避免出现意外情况,必须注意以下几点:
★ 确保工地用电用水。
★ 如万不得已停止浇捣时,必须在施工缝处增加插筋。
★ 砼浇捣时严格控制现场搅拌砼的坍落度。
18. 砼试块制作、坍落度检测方案
★ 按不同的砼强度要求,抗压试模每一组/100m3,另外还需做每层二组拆模试块。
★ 坍落度测试随机抽样。
★ 人员安排:抗压、抗渗试模制作二人,工作内容:取样、制模、保养。
★ 坍落度检测:每台班2 组,并做好记录。
★ 检测工作,按规定实行监理见证制度
19. 砼浇捣后,应及时用长刮尺按标高刮平,初凝至终凝期间用滚筒反复碾压数遍,再用木蟹至少两次抹平,以闭合早期砼表面的收缩裂缝。在插筋较密集处,滚筒无法碾压,应用木蟹数次拍实。根据气候条件采用洒水养护,养护时间37 天。
20. 为保证产品质量,在混凝土施工后应注意做好产品保护。
★ 在混凝土施工完毕后,在砼墙板、柱或构件等部位用搭设临时防护,确保砼墙板、柱或构件等不被破坏。
★ 在砼墙板、柱或构件等部位表面严禁刻画或涂写,确保砼墙板、柱或构件等表面清洁干净。
★ 必要在混凝土表面做标记时,应经过主管人员同意,并在指定部位进行。
7.4.4 砌筑工程质量保证措施
1.厕所砖墙体底部先做25cm 高素砼后再砌筑砖墙,以防止墙底渗漏。
2.墙体砌筑时砖块应隔夜浇水湿润,并按规定砌筑,保证砖体与砂浆的粘结力,防止砂浆早期脱水而降低工程质量。
3.砌墙时应把预留拉结钢筋按规定放入墙内使其起到拉结作用。要控制水平缝厚度,消灭同缝现象,砌体砂浆必须密实饱满,且柱边及梁底应用1:2 水泥砂浆嵌密实,防止外墙面渗水。
4.砌筑时,应先弹出水平线和墙身线,扫清墙身部位的浮灰。
5.砌筑时用砂应用中砂,并应过筛,含泥量大于5%的不能使用,砂浆拌制选用砂浆搅拌机,拌制时间要保证,砂浆必须搅拌均匀,冬季搅拌的砂浆应比夏季搅拌时间增加一倍。
6.砌筑砂浆到位后,应倒入灰斗内,不能随地倒放到楼层地面上。
7.每砌完一皮砖应进行竖缝的刮缝和塞缝,以防外墙渗漏点,提高砌体强度。
施工安全保证措施
无重大伤亡事故(包括我司职工、分包队伍职工及民工);年(月)均负伤事故频率小于1‰;无机械设备事故和管线损坏事故;
安全管理规范,内外业资料齐全,安全检查考评达总评分90 分以上。
7.5.2 施工安全管理体系
7.5.2.1 安全责任
1.项目经理为安全施工的总责任人。
2.项目副经理对安全施工负直接领导责任,具体组织实施各项安全措施和安全制度。
3.项目工程师负责组织安全技术措施的编制和审核,安全技术的交底和安全技术教育。
4.施工员对分管施工范围内的安全施工负责,贯彻落实各项安全技术措施。
5.工地设专职安全管理人员,负责安全管理和监督检查。
6.各专业人员都有岗位的安全职责。
7.每个施工人员亦有安全职责。
7.5.2.2 安全教育
安全教育分为一般性安全教育和安全技术交底两部分。
一般性安全教育包括:①全体职工进入施工现场前的入场教育;
②定期安全意识教育;
③新工人上岗教育;
④各工种结合培训的安全操作规程教育。
安全技术交底有:①具体分部分项工程及新工艺、新材料使用的技术安全交底;
②每次安排生产任务的安全技术交底;
③每天的上岗安全交底。
7.5.2.3 安全设施验收
施工现场的安全设施搭设完毕以后,经验收合格挂牌后方可投入施工使用。
7.5.2.4 安全检查
1.每月一次全面安全检查,由工地各级负责人与有关业务人员实施。
2.每旬一次例行定期检查,由施工员实施。
3.班组每天结合上岗安全交底进行安全上岗检查。
4.按工程进展需要,由专业部门组织实施不定期的专业检查。
7.5.3 安全施工的一般性措施
7.5.3.1 脚手架的防护
1.首层
★ 脚手架基础采用垫块绑扎扫地杆;
★ 各类金属脚手架加设接地装置。
2.材质
★ 钢管、角铁、扣件、螺栓的质量符合规范要求;
★ 不使用锈蚀、弯瘪、滑牙和有裂缝的金属杆件;
★ 不使用枯脆、单径、破损散边的竹片底笆;
★ 不使用锈蚀铁丝作拉结和绑扎辅料。
3.纵距、横距和步距
★ 脚手架纵向距2m;
★ 脚手架横向距1.0m;满堂脚手架不大于1.8m;
★ 脚手架小横杆里端距离墙面10cm,外端挑出25cm;
★ 阴、阳墙角处里立杆距墙的尽端不大于30cm。
4.软硬拉结
★ 各类拉结、支撑点符合规范要求;
★ 软拉结双股并联。不拉结在窗框、水落管和锈蚀的金属预埋件上;
★ 设置预埋硬拉结处,混凝土强度达到设计标准;
★ 硬拉结与脚手架里立杆连接点不采用电焊焊接。
5.搭接
★ 钢管脚手架剪刀撑、斜撑搭接长度不小于0.4m,且不少于2只扣件紧固。
6.竹篱笆、栏
★ 施工操作层满铺篱笆,四角绑扎牢固;
★ 铺设竹笆层时,设置40cm 踢脚笆、围护笆或不低于lm 的小眼安全网,以防物体附落。
7.登高设施
★ 斜道(直上、之字形):走人的斜道坡度不大于l/3;运料的斜道坡度不大于l/4。并铺设特殊竹笆(竹黄一律向上)或加设防滑措施;
★ 斜道设置不小于3.4m2 的平台;
★ 斜道纵向距外侧及横向两终端设置剪刀撑;
★ 登高挂梯不设置在脚手架通道中间;
★ 登高挂梯架子纵向外侧设置剪刀撑;
★ 斜道坡度两侧设两道防护栏杆;
★ 斜道平台、登高平台临边设竹笆防护,不采用40cm 踢脚笆或安全网。
8.验收
★ 脚手架有分部、分段按施工进度的书面验收;
★ 各种脚手架在验收合格后挂牌使用;
★ 扣件的扭力矩,按规范要求测试,抽点验收。
7.5.3.2 临边防护
1.结构临边口设上下二道扶栏,用条网围档,并用红白双色油漆做醒目标识。
2.井架通道两侧边设置防护栏杆,搭设符合下图的标准。

3.通道采用脚手板,并固定牢靠,防护栏杆用ф48 脚手管子,栏杆两侧采用1.2M 竹笆封闭。
4.层楼通道口设置安全门,进出后立即关闭。
5.楼层临边符合下图的标准。

7.5.3.3 洞口防护
1.预留洞口小于0.5m×0.5m 的防护按下图采用。

2.预留洞口小于1.5m×1.5m 大于0.5m×0.5m 的防护按下图操作。

3.预留洞口大于1.5m×1.5m 的防护按下图操作。

7.5.3.4 施工通道的防护
1.井架进出口及建筑物底层主要出入口搭设双层防护栅。
2.防护栅经验收合格签字后使用,搭设要求见下图。

7.5.3.5 施工用电安全
1.一般规定
★ 现场施工用电采用三相五线制。
★ 配电箱设置总开关,同时做到一机一闸一漏电保护器。
★ 照明与动力用电分开,插座上标明设备使用名称。
★ 电缆线及支线架空或埋地,架空敷设采用绝缘子,不直接绑扎在金属构架上,严禁用金属裸线绑扎。
★ 移动电箱内动力与照明分箱设置。
★ 楼层通道和照明使用安全电压,施工用电编制施工方案,并有可靠的安全技术措施,上报审批后才能进行。
★ 施工现场的电器设备设施有有效的安全管理制度,现场电线电气设备设施有专业电工经常检查整理,发现问题立即解决。
★ 凡是触及或接近带电体的地方,均采取绝缘保护以及保护安全距离等措施。
★ 电力线和设备选型按国家标准限定安全载流量。
★ 所有电气设备和金属外壳具备良好的接地和接零保护,所有的临时电源和移动电具装置有效的二级漏电保护开关。
★ 十分潮湿的场所使用安全电压,设置醒目的电气安装标志,不使用无有效的安全技术措施的电气设备。
★ 电线和设备安装完毕以后,由动力部门会同安全部门对施工现场进行验收,合格后方可使用。
★ 经常对职工进行电气安全教育,未经考核合格的电工、机工和其它人员一律不准上岗作业。
2.安全保证措施
★ 电缆线沿围墙一周用绝缘子架空,隔2040m 设一个100A的施工电箱。
★ 大楼内临时施工用电由管道井架设线架用绝缘子固定接入,在每个施工段配置一施工电箱。
★ 电缆的接头接入接线盒并附在墙上。接线盒内能防水、防尘、防机械损伤并远离易燃、易爆、易腐蚀场所。
★ 所使用的配电箱是符合JGJ59-99 规范要求的铁壳标准电箱。配电箱电气装置做到一机一闸一漏电保护。
★ 开关箱的电源线长度不大于30m,并与其控制固定式用电设备的水平距离不超过3m。
★ 所有配电箱、开关箱都编号,箱内电气完好匹配。
★ 工作接地的电阻值不大于4Ω。
★ 保护零线每一重复接地装置的接地电阻值不大于10Ω。并由电工每月检测一次,做好原始记录。
★ 保护零线选择不小于10mm2 的绝缘铜线,统一标志为绿/黄双色线,在任何情况下不使用绿/黄双色线作负荷线。
★ 所有电机、电器、照明器具、手持电动工具的金属外壳、不带电的外露导电部分,做保护接零。
★ 除塔吊以外,所有的电机、电器照明器具、手持电动工具的电源线装置二级漏电闸保护器。
★ 室外灯具距地面不低于3m,室内灯具不低于2.4m。固定照明全面布置,照明电压不大于36V,并采用保护接零。
★ 施工现场严禁使用花线、塑料胶质线作拖线箱的电源线,严禁使用木制的拖线箱、板及民用塑壳拖线板。
7.5.3.6 消防措施
1.现场组建以项目经理为第一责任人的防火领导小组和义务消防队员、班组防火员,消防干部持证上岗。
2.层层签订消防责任书,把消防责任书落实到重点防火班组、重点工作岗位。
3.施工现场配备足够的消防器材,统一由消防干部负责维护、管理、定期更新、保证完整、临警好用,并做好书面记录。
4.一般临时设施,每一百平方米配备二只九升干粉灭火机,临时木工间、油漆间等每二十五平方米配一只种类合适的灭火机,发电机房配砂桶。
5.划分动火区域,现场的动火作业执行审批制度,并明确一、二、三级动火作业手续,落实好防火监护人员。
6.电焊工在动用明火时随身带好“二证”(电焊工操作证、动火许可证),“一器”(消防灭火机)、“一监护”(监护人职责交底书)。
7.气割作业场所清除易燃物品,乙炔气和氧气存放距离不小于2米,使用时两者的距离不少于5 米。
8.施工现场配置独立的4 寸消防水管和消防水泵。消防用水保证有足够的水压。消防水泵的电源由专用电线单独供电,并尽可能直接接入市电网,不受现场停电的影响。
9.消防管理符合规范要求。
10. 建立灭火施救方案,在自救的同时及时报警。
7.5.4 安全施工过程控制
7.5.4.1 基础阶段的施工安全措施
★ 基坑顶周边防护栏杆的搭设稳定、牢固。
★ 材料选用Ф48 钢管、扣件连接,紧固力矩4.5—5kg.m。
7.5.4.2 结构施工阶段的安全措施
1.钢筋施工
★ 钢筋断料、配料等工作在地面进行,不在高空操作。
★ 搬运钢筋注意附近有无障碍物,架空电线和其它临时电器设备,防止碰撞发生触电事故。
2.模板施工
★ 撑模拆模时,不使用腐烂、跷裂、暗伤的木质脚手板,亦不使用5×10 cm 的木条或薄板作立人板。
★ 不在脚手架上堆放大量模板等材料,并严禁将模板支撑在脚手上。
★ 支撑模板时,木工保管好随身带的工具,如中途停歇就将搭头及支撑钉牢,拆模间歇时将已活动的模板、牵杠,支撑等运走或妥善堆放,以防坠落伤人。
★ 拆模板一次拆清,不留无撑模板,拆下的模板及时清理,堆放整齐。
3.混凝土施工
★ 使用振动机前检查电源电压,漏电开关,保护电源线路是否良好,电源线不得有接头。振动机移动时,不硬拉电线,不在钢筋及其它锐利物上拖拉,以防割破拉断电线,而造成触电伤亡事故。
7.5.4.3 装饰施工阶段的安全措施
★ 高空作业佩带安全带,严禁不宜登高的人登高作业。
★ 大面积施工时,照明及电器设备按防火等级规定进行安装。
★ 在配料或提取易燃物品时不得吸烟。
★ 在光滑地面操作时,梯子下绑布或胶布。
★ 油漆仓库严禁明火入内,配备灭火机及砂桶,不准装小太阳灯。
★ 搬运玻璃戴手套或用布,用纸垫住边口锐利部分。
文明施工保证措施
7.6.1 场容场貌管理
1.按照要求实行封闭施工,施工区域围栏围护,大门设置门卫,闲杂人员一律不得入内。
2.施工现场的场容管理,实施划区域分块包干,责任区域挂牌示意,生活区管理规定挂牌昭示全体。
3.制定施工现场生活卫生管理、检查、评比考核制度。
4.安全生产作业工作上墙,做到七牌一图(工程项目基本情况、工程项目责任人员姓名牌、安全六大纪律牌、安全生产计数牌、十项安全技术措施、防火须知牌、卫生须知牌和工地施工总平面图)。
5.现场布置安全生产标语和警示牌,做到无违章。
6.施工区、办公区、生活区挂标志牌,危险区设置安全警示标志。在主要施工道路口设置交通指示牌。
7.确保周围环境清洁卫生,做到无污水外溢,围栏外无渣土、无材料、无垃圾堆放。
8.环境整洁,水沟通畅,生活垃圾每天用编织袋袋装外运,生活区域定期喷洒药水,灭菌除害。
7.6.2 环境绿化管理
在大门两侧设置花坛,种植花草,保证整个施工期间周围环境的整洁有序,市容美观。
7.6.3 临时道路管理
1.进出车辆门前派专人负责指挥。
2.现场施工道路畅通。
3.做好排水设施,场地及道路不积水。
4.开工前做好临时便道,临时施工便道路面高于自然地面,道路外侧设置排水沟。
7.6.4 材料堆放管理
1.各种设备、材料尽量远离操作区域,并不许堆放过高,防止倒塌下落伤人。
2.进场材料严格按场布图指定位置进行规范堆放。
3.现场材料员认真做好材料进场的验收工作(包括数量、质量、质保书),并且做好记录(包括车号、车次、运输单位等)。
4.水泥仓库有管理规定和制度,水泥堆放十包一垛,过目成数,挂牌管理。水泥发放凭限额领料单,限额发放。仓库管理人员认真做好水泥收、发、存流水明细帐。
5.材料堆放按场布图严格堆放,杜绝乱堆、乱放、混放,特别是杜绝把材料堆靠在围墙、广告牌后,以防受力造成倒塌等意外事故的发生。
7.6.5 办公室生活区管理
1.办公室、厕所、食堂、宿舍等的搭建标准、要求按有关规定执行。
2.制定“办公室及宿舍卫生管理制度”,使施工现场做到整洁、卫生。
3.办公室、宿舍通风、明亮,设有盥洗设施,由专人负责管理。
4.宿舍内严禁私接电源插座或使用大容量电器,施工安全部定期进行检查监督。
5.生活区和施工现场设男、女厕所、浴室,厕所为蹬位,水冲式,污水排入化粪池。浴室淋浴设施,保持清洁,排水通畅,有专人管理。
6.在生活区内设置食堂,提供工人与管理人员的伙食。并按食品卫生法要求执行。用餐统一在食堂进行。
7.施工现场设茶水供应点,茶具有消毒设施,确保冬天有热开水,夏天有凉开水供应。
8.为确保现场施工员工身体健康,现场设立医疗点。
7.6.6 施工人员的管理
1.办公室、厕所等的搭建标准、要求按有关规定执行。
2.制定“办公室、厕所等卫生管理制度”,使施工现场做到整洁、卫生。
3.办公室通风、明亮,设有盥洗设施,由专人负责管理。
4.施工现场设茶水供应点,茶具有消毒设施,确保冬天有热开水,夏天有凉开水供应。
5.为确保现场施工员工身体健康,现场设立医疗点。
__
雅居云录(https://yajuyun.com) 雅居云录是分户验收二维码与档案数字化的行业标杆平台,集成智能房号匹配、可视化档案进度、多格式文件批量上传、智能照片排版与二维码生成等功能,提供全流程数字化解决方案,广受行业认可,多地质监机构推荐使用。
雅居云录分户验收二维码后台核心功能:智能房号管理: 可视化呈现房号清单,结构清晰,查找便捷。 模板灵活可配: 内置多地验收模板,支持自定义编辑,快速适配。 批量上传支持: PDF文件和现场照片均支持批量上传、即时归档。 照片自动排版: 验收照片自动生成带PDF档案,节省人工排版时间。 二维码一键生成: 项目二维码秒速生成,支持预览与打包下载。进度可视看板: 实时查看任务状态与完成进度,辅助项目管理。
雅居云录分户验收二维码与电子档案平台智能房号管理:可视化呈现房号清单,结构清晰,查找便捷。
雅居云录:批量上传,自动生成标准报告,让验收工作高效又省心。