目 录 1.编制依据 3 1.1七零八所科研办公楼工程《施工合同》 3 1.2 施工图 4 1.3岩土工程勘察报告 4 1.4主要规程、规范 4 1.5主要图集 6 1.6主要法规 6 1.7其它 7 2.工程概况 7 2.1总体简介 7 2.2建筑设计概况 8 2.3结构设计概况 9 2.4水暧设计概况 10 2.5电气设计概况 11 2.6 工程主要平、立、剖面图(见附图) 12 2.7施工条件 12 2.8主要实物量 13 2.9技术与工艺 14 2.10工程重点和难点分析 14 3.施工部署 15 3.1经…

2025-08-12 199点热度 阅读全文

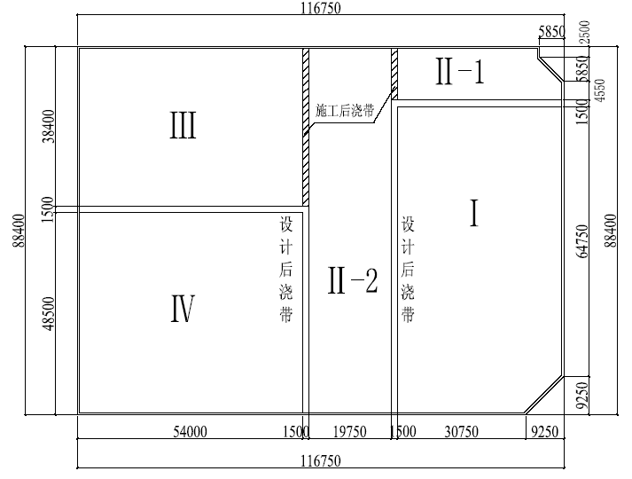
目录 第一章 编制依据 2 第二章 工程概况 3 第三章 施工难点 4 第四章 技术准备 5 第五章 施工部署 38 第六章 混凝土浇筑 55 第七章 施工缝处理 60 第八章 安全与环保措施 64 第九章 附图 66 编制依据 1.1 设计图纸:北京建筑设计院提供的世纪财富中心项目施工图。 1.2 现行的国家和省、市的有关规范、规程和标准: 建筑地基基础工程施工质量验收规范(GB 50202-2002) 高层建筑箱型基础与筏型基础技术规范 (JGJ 6-99) 地下工程防水技术规范(GB 50108-2001) …

2025-08-12 156点热度 阅读全文

目录 第一章 编制依据 2 第二章 工程概况 3 第三章 施工难点 4 第四章 技术准备 5 第五章 施工部署 38 第六章 混凝土浇筑 55 第七章 施工缝处理 60 第八章 安全与环保措施 64 第九章 附图 66 编制依据 1.1 设计图纸:北京建筑设计院提供的世纪财富中心项目施工图。 1.2 现行的国家和省、市的有关规范、规程和标准: 建筑地基基础工程施工质量验收规范(GB 50202-2002) 高层建筑箱型基础与筏型基础技术规范 (JGJ 6-99) 地下工程防水技术规范(GB 50108-2001) …

2025-08-12 123点热度 阅读全文

广东省民用建筑节能条例 (2011年3月30日广东省第十一届人民代表大会常务委员会第二十五次会议通过) 广东省第十一届人民代表大会常务委员会公告 (第62号) 《广东省民用建筑节能条例》已由广东省第十一届人民代表大会常务委员会第二十五次会议于2011年3月30日通过,现予公布,自2011年7月1日起施行。 广东省人民代表大会常务委员会 2011年3月30日 广东省民用建筑节能条例   第一章 总则 第一条 为了促进民用建筑节能,加强民用建筑节能管理,降低民用建筑使用过程中的能源消耗,提高能源利用效率,根据…

2025-08-06 82点热度 阅读全文

[建设银行XX市分行] 装 饰 工 程 施 工 组 织 设 计 编制日期:二零零五年七月 目 录 第一章 编制说明 -------------------------------------------- 1、编制说明----------------------------------------- 2、编制依据----------------------------------------- 第二章 工程概况--------------------------------------------- 第三章 质量目…

2025-08-06 110点热度 阅读全文

第一章 工程概况及现场条件 1.1 工程概况 CBD国际新城售楼处工程位于北京市朝阳区朝阳门外关东店南街23号原北京市开关厂院内,占地684.28平方米,总建筑面积1621.20平方米,地上三层,层高3.8米,檐高12.45米(局部14米),由北京万通世界房地产有限公司投资兴建,北京筑合建筑设计事务所承担工程设计任务。 1.1.2 建筑设计 本工程分为东北与西南两个三角形功能区,东北部分为销售大厅,西南部分为办公区与样板间,地面与楼面主要采用高档进口石材面,由于其独具的展示与样板功能,因此内墙采用清水钢筋混凝土剪力…

2025-08-06 163点热度 阅读全文

第一章 工程概况及现场条件 1.1 工程概况 CBD国际新城售楼处工程位于北京市朝阳区朝阳门外关东店南街23号原北京市开关厂院内,占地684.28平方米,总建筑面积1621.20平方米,地上三层,层高3.8米,檐高12.45米(局部14米),由北京万通世界房地产有限公司投资兴建,北京筑合建筑设计事务所承担工程设计任务。 1.1.2 建筑设计 本工程分为东北与西南两个三角形功能区,东北部分为销售大厅,西南部分为办公区与样板间,地面与楼面主要采用高档进口石材面,由于其独具的展示与样板功能,因此内墙采用清水钢筋混凝土剪力…

2025-08-06 108点热度 阅读全文

目 录 一、引用文件 - 2 - 二、工程概况 - 4 - 2.1总体简介 - 4 - 2.2建筑设计概况 - 5 - 2.3结构设计概况 - 6 - 2.4水暧设计概况 - 7 - 2.5电气设计概况 - 7 - 三、项目创优策划组织机构 - 8 - 四、项目部创优策划准备 - 9 - 五、项目部创优质量、环境、职业安全健康控制 - 13 - 六、施工项目质量问题分析处理程序 - 30 - 七、质量、环境、职业安全健康控制过程持续改进 - 32 - 八、以QEOHS体系管理程序文件为指导思想,加强整个工程的监视和…

2025-08-04 108点热度 阅读全文

目录 第一章 000-封面及卷内文件目录 3 第二章 001-建筑施工场地示意图 6 第三章 002-施工工地环境保护审批表 11 第四章 003-施工现场环境保护措施 21 第五章 004-自我保障体系网络图 27 第六章 005-施工现场环保员职责 29 第七章 006-工地使用作业队伍基本情况 32 第八章 007-环境保护教育考核记录 36 第九章 008-环保活动及自检整改记录 48 第十章 009-噪音自我监控记录 55 第十一章 010-环境保护隐患通知单 58 第十二章 011-环境污染罚款通知单 …

2025-07-22 170点热度 阅读全文

目录 第一章 编制依据 2 第二章 工程概况 3 第三章 施工难点 4 第四章 技术准备 5 第五章 施工部署 38 第六章 混凝土浇筑 55 第七章 施工缝处理 60 第八章 安全与环保措施 64 第九章 附图 66 编制依据 1.1 设计图纸:北京建筑设计院提供的世纪财富中心项目施工图。 1.2 现行的国家和省、市的有关规范、规程和标准: 建筑地基基础工程施工质量验收规范(GB 50202-2002) 高层建筑箱型基础与筏型基础技术规范 (JGJ 6-99) 地下工程防水技术规范(GB 50108-2001) …

2025-07-21 147点热度 阅读全文
1234520